Cinifabrique Extension - The Cube

Page 1

HAIDY SAMIR AHMED NOURELDIN - 10876020

TARA DAOUD - 10865605

CHRISTELLE MOUANNES - 10818511

MADHULI MANGESH AWASARKAR - 10873794

POLITECNICO DI MILANO School of Architecture, Urban Plannning & Construction Engineering 2022 - 2023
GIAN
SUSTAINABLE CONSTRUCTION STUDIO ATELIER HTCM PROFESSORS CONCEPT SHEET PANEL 01
GIACOMO BOFFI
LUCA BRUNETTI MARCO SCAIONI

SUSTAINABLE

POLITECNICO DI MILANO School of Architecture, Urban Plannning & Construction Engineering 2022 - 2023

GIACOMO BOFFI GIAN LUCA BRUNETTI MARCO SCAIONI

HAIDY SAMIR AHMED NOURELDIN - 10876020

TARA DAOUD - 10865605

CHRISTELLE MOUANNES - 10818511

MADHULI MANGESH AWASARKAR - 10873794

CONSTRUCTION
ROOF PLAN SCALE 1: 100 PANEL 02
STUDIO ATELIER HTCM PROFESSORS
POLITECNICO DI MILANO School of Architecture, Urban Plannning & Construction Engineering 2022 - 2023 HAIDY SAMIR AHMED NOURELDIN - 10876020 TARA DAOUD - 10865605 CHRISTELLE MOUANNES - 10818511 MADHULI MANGESH AWASARKAR - 10873794 GIACOMO BOFFI GIAN LUCA BRUNETTI MARCO SCAIONI SUSTAINABLE CONSTRUCTION STUDIO ATELIER HTCM PROFESSORS FLOOR PLANS PANEL 03
MAIN ENTRANCE VIEW
GROUND FLOOR PLAN Scale 1:100 FIRST FLOOR PLAN Scale 1:100

POLITECNICO DI MILANO School of Architecture, Urban Plannning & Construction Engineering 2022 - 2023

ATELIER HTCM PROFESSORS

GIACOMO BOFFI GIAN LUCA BRUNETTI MARCO SCAIONI

EAST ELEVATION Scale 1:100

WEST ELEVATION Scale 1:100

SOUTH ELEVATION Scale 1:100

NORTH ELEVATION Scale 1:100

HAIDY SAMIR AHMED NOURELDIN - 10876020

TARA DAOUD - 10865605

CHRISTELLE MOUANNES - 10818511

MADHULI MANGESH AWASARKAR - 10873794

SUSTAINABLE CONSTRUCTION STUDIO
ELEVATIONS PANEL 04

GL

1 2

GL

GL 0.24*0.56 GL 0.24*0.56 GL 0.24*0.56 GL 0.24*0.56

GL 0.24*0.56 GL 0.24*0.56 GL 0.24*0.56 GL 0.24*0.56

GL 0.24*0.56 GL 0.24*0.56 GL 0.24*0.56 GL 0.24*0.56 GL 0.24*0.56

GIACOMO BOFFI GIAN LUCA BRUNETTI MARCO SCAIONI

GL 0.24*0.56

GL 0.24*0.56 GL 0.24*0.56 GL 0.24*0.56 GL 0.24*0.56

GL 0.24*0.56 GL 0.24*0.56 GL 0.24*0.56 GL 0.24*0.56 GL 0.24*0.56 GL 0.24*0.56

GL 0.24*0.56 GL 0.24*0.56 GL 0.24*0.56 GL

54 55 56

GL 0.24*0.56

GL 0.24*0.56 GL 0.24*0.56 GL 0.24*0.56 26 27 28 29 30 31 32 33 34 35 36 38 37 39 40 41

42 43 44 46 47 48 49

GL 0.24*0.56

GL 0.24*0.56 GL 0.24*0.56 GL 0.24*0.56 1 2 3 4 5 6 7 8 9 10 11 12 13 14 15 16 17 18 19 20 21 22 25 24 23

GL 0.24*0.56 GL 0.24*0.56 GL 0.24*0.56 GL 0.24*0.56 GL 0.24*0.56 GL 0.24*0.56 GL 0.24*0.56 GL 0.24*0.56 GL 0.24*0.56 1.80 1.80 1.80 1.80 1.80 1.80 1.80 1.80 1.80 1.80 1.80 1.80 1.80 1.80 1.80 1.80 1.80 1.80 1.80 1.80 1.80 1.80 1.80 1.80 1.80 1.80 1.80 1.80 1.80

45 50 51 52 53

GL

1 2 3 4 5 6 7 8 9 10 11 12 13 14 15 16 17 18 19 20 21 22 25 24 23 GL 0.24*0.44 27 28 29 30 31 32 33 34 35 36 37 40 41 42 43 44 46 47 48 49 45 50 51 52 53 54 55 GL 0.24*0.44 GL 0.24*0.44 GL 0.24*0.44 GL 0.24*0.44 GL 0.24*0.44 GL 0.24*0.44 GL 0.24*0.44 GL 0.24*0.44 GL 0.24*0.44 GL 0.24*0.44 GL 0.24*0.44 GL 0.24*0.44 GL 0.24*0.44 GL 0.24*0.44 GL 0.24*0.44 GL 0.24*0.44 GL 0.24*0.44 GL 0.24*0.44 GL 0.24*0.44 GL 0.24*0.44 GL 0.24*0.44 GL 0.24*0.44 GL 0.24*0.44 GL 0.24*0.44 GL 0.24*0.44 GL 0.24*0.44 GL 0.24*0.44 GL 0.24*0.44 GL 0.24*0.44 GL 0.24*0.44 GL 0.24*0.44 GL 0.24*0.44 GL 0.24*0.44 GL 0.24*0.44 1.80 1.80 1.80 1.80 1.80 1.80 1.80 1.80 1.80 1.80 1.80 1.80 1.80 1.80 1.80 1.80 1.80 1.80 1.80 1.80 1.80 1.80 1.80 1.80 1.80 1.80 1.80 1.80 1.80 GL 0.24m x 0.44m GL 0.24m x 0.56m GL 0.24m x 0.56m COLUMN 5 COLUMN 13 LOAD ON CL-13 AT ROOF LEVEL = 86 KN LOAD ON CL-13 AT 1ST FLOOR LEVEL = 262 KN LOAD ON CL-13 AT GROUND FLOOR LEVEL = 427 KN STRUCTURAL PLANS PANEL 05

HAIDY SAMIR AHMED NOURELDIN - 10876020

TARA DAOUD - 10865605

POLITECNICO DI MILANO School of Architecture, Urban Plannning & Construction Engineering 2022 - 2023
SUSTAINABLE CONSTRUCTION STUDIO DN UP DN
3 4 5 6 7 8 9 10 11 12 13 14 15 16 17 18 19 20 21 22 25 24 23 1.80 1.80 1.80 1.80 1.80 1.80 1.80 1.80 1.80 1.80
26 27 28 29 30 31 32 33 34 35 36 38 37 39 40 41 42 43 44 46 47 48 49 45 50 51 52 53 54 55 56 GL
GL
GL
GL
GL
GL
GL
CHRISTELLE MOUANNES - 10818511 MADHULI MANGESH AWASARKAR - 10873794 GL
1.80 1.80 1.80 1.80 1.80 1.80 1.80 1.80 1.80 1.80 1.80 1.80 1.80 1.80 1.80 1.80 1.80 1.80 1.80
0.24*0.56
0.24*0.56
0.24*0.56
0.24*0.56
0.24*0.56
0.24*0.56 GL 0.24*0.56
0.24*0.56
0.24*0.56 GL 0.24*0.56 GL 0.24*0.56 GL 0.24*0.56 GL 0.24*0.56 GL 0.24*0.56 GL 0.24*0.56 GL 0.24*0.56 GL 0.24*0.56 GL 0.24*0.56 GL 0.24*0.56 GL 0.24*0.56 GL 0.24*0.56 GL 0.24*0.56 GL 0.24*0.56 GL 0.24*0.56 GL
0.24*0.56 GL 0.24*0.56 GL 0.24*0.56
0.24*0.56
0.24*0.56
GL 0.24*0.56 GL 0.24*0.56
LEVEL
FLOOR PLAN Scale
GL
0.24*0.56
0.24*0.56
0.24*0.56
GROUND FLOOR PLAN Scale 1:100 PLATFORM
PLAN Scale 1:100 FIRST
1:100
POLITECNICO DI MILANO School of Architecture, Urban Plannning & Construction Engineering 2022 - 2023 HAIDY SAMIR AHMED NOURELDIN - 10876020 TARA DAOUD - 10865605 CHRISTELLE MOUANNES - 10818511 MADHULI MANGESH AWASARKAR - 10873794 GIACOMO BOFFI GIAN LUCA BRUNETTI MARCO SCAIONI SUSTAINABLE CONSTRUCTION STUDIO ATELIER HTCM PROFESSORS WEST SIDE VIEW SHOWING THE DOUBLE SKIN DETAILS EAST SIDE VIEW SHOWING THE DOUBLE SKIN DETAILS 3D VIEWS PANEL 06
POLITECNICO DI MILANO School of Architecture, Urban Plannning & Construction Engineering 2022 - 2023 HAIDY SAMIR AHMED NOURELDIN - 10876020 TARA DAOUD - 10865605 CHRISTELLE MOUANNES - 10818511 MADHULI MANGESH AWASARKAR - 10873794 GIACOMO BOFFI GIAN LUCA BRUNETTI MARCO SCAIONI SUSTAINABLE CONSTRUCTION STUDIO ATELIER HTCM PROFESSORS
VIEW OF THE PASSAGE NEAR COURTYARD
OF NEW DESIGN FROM SOUTH (ENTRANCE) VIEW FROM THE WEST SIDE 3D VIEWS PANEL 07
INTERIOR
VIEW

CiniFabrique_StudyArea

POLITECNICO DI MILANO School of Architecture, Urban Plannning & Construction Engineering 2022 - 2023
HAIDY SAMIR AHMED NOURELDIN - 10876020 TARA DAOUD - 10865605
GIACOMO BOFFI GIAN LUCA BRUNETTI MARCO SCAIONI SUSTAINABLE CONSTRUCTION STUDIO ATELIER HTCM PROFESSORS Project Cinifabrique Existing Building Parking Electric board Green Area New Design SHP_Electricboard SHP_Fence SHP_Footprint SHP_Vehicle area SHP_Floor SHP_Green area SHP_Misclleneous SHP_Elevation SHP_New Design Trees 29.12.22_Export — entities A_Electric board A_Elevation A_Fence A_Footprint A_Green Area A_Misclenneous A_Trees A_Vehicle area A-Floor A_Floor A_New Design Base Map CF_ElevationPoints su manufatto / edificio - al piede su manufatto / edificio - in gronda o su copertura suolo CiniFabrique_StudyArea — CF_CyclingArea CiniFabrique_StudyArea — CF_EquippedArea
— CF_Fences
— CF_GrassOrUncultivated
— CF_PedestrianArea
— CF_RailTransport
— CF_StreetArea
CHRISTELLE MOUANNES - 10818511 MADHULI MANGESH AWASARKAR - 10873794
CiniFabrique_StudyArea
CiniFabrique_StudyArea
CiniFabrique_StudyArea
CiniFabrique_StudyArea
CiniFabrique_StudyArea
— CF_StreetElement
— CF_TransportInfrastructureItem
CiniFabrique_StudyArea
CF_SportArea CF_GreenArea
LEGEND ADVANCED SURVEY DRAWING PANEL 08 N
CiniFabrique_StudyArea — CF_VehicleArea CiniFabrique_StudyArea — CF_WoodsArea
POLITECNICO DI MILANO School of Architecture, Urban Plannning & Construction Engineering 2022 2023
SAMIR AHMED NOURELDIN - 10876020
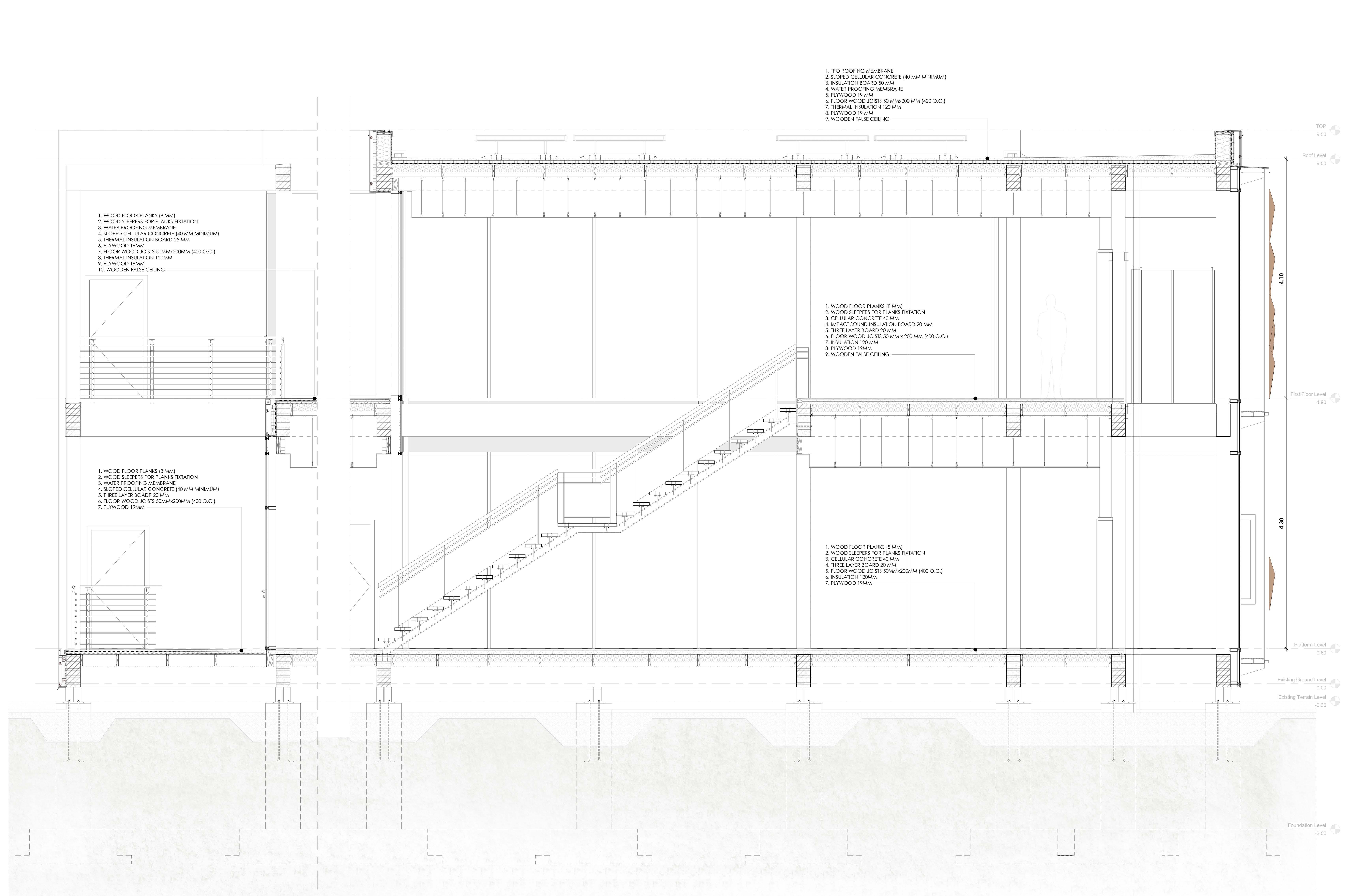
GIACOMO BOFFI GIAN LUCA BRUNETTI MARCO SCAIONI SUSTAINABLE CONSTRUCTION STUDIO ATELIER HTCM PROFESSORS SECTION 01 PANEL 09 SECTION A Scale 1:20
HAIDY
TARA DAOUD 10865605 CHRISTELLE MOUANNES 10818511 MADHULI MANGESH AWASARKAR 10873794
POLITECNICO DI MILANO School of Architecture, Urban Plannning & Construction Engineering 2022 2023
SAMIR AHMED NOURELDIN - 10876020
GIACOMO BOFFI GIAN LUCA BRUNETTI MARCO SCAIONI SUSTAINABLE CONSTRUCTION STUDIO ATELIER HTCM PROFESSORS SECTION 02 PANEL 10 SECTION B Scale 1:20
HAIDY
TARA DAOUD 10865605 CHRISTELLE MOUANNES 10818511 MADHULI MANGESH AWASARKAR 10873794
POLITECNICO DI MILANO School of Architecture, Urban Plannning & Construction Engineering 2022 2023
SAMIR AHMED NOURELDIN - 10876020
GIACOMO BOFFI GIAN LUCA BRUNETTI MARCO SCAIONI SUSTAINABLE CONSTRUCTION STUDIO ATELIER HTCM PROFESSORS SECTION 03 PANEL 11 SECTION C Scale 1:20
HAIDY
TARA DAOUD 10865605 CHRISTELLE MOUANNES 10818511 MADHULI MANGESH AWASARKAR 10873794

DETAIL 01

RAIL CONNECTION DETAIL Scale 1:10

DETAIL 02

ENTRANCE STAIR DETAIL Scale 1:10

SUSTAINABLE CONSTRUCTION STUDIO

POLITECNICO DI MILANO School of Architecture, Urban Plannning & Construction Engineering 2022 - 2023

DETAIL 03 PARAPET DETAIL COURT Scale 1:10

ATELIER HTCM PROFESSORS

GIACOMO BOFFI GIAN LUCA BRUNETTI MARCO SCAIONI

HAIDY SAMIR AHMED NOURELDIN - 10876020

TARA DAOUD - 10865605

CHRISTELLE MOUANNES - 10818511

MADHULI MANGESH AWASARKAR - 10873794

BUILDING DETAILS PANEL 12
POLITECNICO DI MILANO School of Architecture, Urban Plannning & Construction Engineering 2022 - 2023
GIACOMO BOFFI GIAN LUCA BRUNETTI MARCO SCAIONI SUSTAINABLE CONSTRUCTION STUDIO ATELIER HTCM PROFESSORS FACADE DETAILS PANEL 13 01 02 03 04 05 06 06 07 07 11 10 14 13 13 3.10 3.10 15 12 16 01 ALUMINUM PANELS - BUILDING SKIN 02 GLASS PANELS 03 OPAQUE PANEL 06 INSULATION PANEL 05 ALUMINUM PROFILE C-BRACKET 07 VERTICAL PIVOT WINDOW 08 HIGH DENISTY TIMBER PANELS 04 STAINLESS STEEL PERFORATED SHEETS 09 TIMBER PANELS FIXATION SYSTEM W/ BLIND SCREW 10 PLYWOOD 19 MM 01 02 03 04 05 06 08 09 10 11 11 THERMAL INSULATION 12 BACKENING METAL SHEET 12 07 13 ALUMINUM T BRACKET 14 GALVANIZED METAL COPING WITH DRIP EDGE 15 DRIP EDGE 16 WATER PROOFING MEMBRANE 17 ALUMINUM L PROFILE 19 PANEL FIXING BRACKET WITH BLIND SCREW 18 WALL BRACKET 20 STEEL KNIFE PLATE CONNECTOR FOR COLUMN 21 GLULAM BEAM 01 02 03 06 07 11 10 14 13 15 12 16 17 19 18 02 01 07 03 20 21
05
HAIDY SAMIR AHMED NOURELDIN - 10876020 TARA DAOUD - 10865605 CHRISTELLE MOUANNES - 10818511 MADHULI MANGESH AWASARKAR - 10873794
WALL SECTION -EScale 1:20 DETAIL
04
DETAIL 05 Scale 1:10 DETAIL 04 Scale 1:10 DETAIL
ENLARGED FLOOR PLAN -DScale 1:20

POLITECNICO DI MILANO

School of Architecture, Urban Plannning & Construction Engineering 2022 - 2023

GIACOMO BOFFI GIAN LUCA BRUNETTI MARCO SCAIONI FACADE DETAIL

HAIDY SAMIR AHMED NOURELDIN - 10876020

TARA DAOUD - 10865605

FACADE DETAIL COLUMN BASE DETAIL FACADE DETAILS

CHRISTELLE MOUANNES - 10818511

PANEL 14

MADHULI MANGESH AWASARKAR - 10873794 SUSTAINABLE CONSTRUCTION STUDIO ATELIER HTCM PROFESSORS

Turn static files into dynamic content formats.

Create a flipbook
Issuu converts static files into: digital portfolios, online yearbooks, online catalogs, digital photo albums and more. Sign up and create your flipbook.
Cinifabrique Extension - The Cube by Haidy Samir - Issuu