Portfolio


![]()


Architect
+91-9686852200 Phone E-Mail Website guruvishwanadh@gmal.com
Interiror-Portfoio@1
Arch-Portfolio@2, Bm-Portfolio@3
am an arch tect guided by the ethos of uniqueness and a constant quest for new experiences thr ve on find ng innovative solut ons to challenges embracing the bel ef that "design is not just what it looks like and feels like, design is also how it works." I am defined by my ded cation to hard work and my insatiable des re to learn
Language
Engl sh Hindi
Telugu Kannada
BachelorofArchitecture
DayanadasagarcolegeofArchitecture,Bangalore 2015-2020
BIMArchitectureProfessionalCourse Novatr Bangaore 2023-2024
Jan2023-Present
WorkedasaSeniorArchtect@INKArchitecture,managingateamof4 comprisingjuniorarchitectsand nterns Ihandledcommercialinterior projectsandindustrialprojects,providingmewithversatieexperience acrossvariousproecttypes Myrole ncludedHRresponsibilities project coordination,projectmanagement andconsultant cient andvendor managementtoensureseamlessproectexecution
June2021-Sept2022
WorkedasaJuniorArchitect@YellowDoorArchitectsandWDASpaces (sistercompanies)inBangaore whereIhandledvariousinterior residential,andF&Bprojectsthroughoutmytenure alsoindependently managedinterns supportingtheirdevelopmentandcontrbutingto successfulprojectoutcomes
Dec2019-Aug2020
Workedasanintern@Svamitvaarchitecturestudio Bangalore






"Knowledge and awareness are vague and perhaps better called illusions; everyone lives within their own subjective interpretation."


Enchanting Office (Pg:12-13)
Methods Office (Pg:14-15)
Indee (Pg:16-17)
Smoor (Pg:5-7)
After The Rain (Pg:8-11)









As a project visualizer, I handle the preparation of 3D digital modeling, rendering by coordinating with the principle architects preparation of execution/detailed drawings, such as the fluting detail, dispensary wall and counter drawings
Design Concept: The Smoor outlet in Bangalore Airport's Terminal 2 aims to seamlessly blend modern design with local influences With sleek lines and strategic lighting, the space fosters a sense of sophistication and comfort, inviting travelers to indulge in a culinary journey amidst their journey. Sustainability is prioritized through eco-friendly materials, reflecting both environmental responsibility and Smoor's ethos

















Spiritual Foyer: A Lord Ganesha statue greets guests, setting a serene and welcoming tone.

Client Background & Goal: Mr Akshay (Amazon prime director - india head)&Mrs Arushi
Design Concept: The After the Rain interiors combine modern aesthetics from T E Group with personalized design elements tailored to the clients lifestyle.
By integrating their existing furniture, art, and spiritual values, the design creates a harmonious, welcoming space that connects seamlessly with nature.
The lower living room features an L-shaped seating area and a bar counter by the accent wall, facing the interior garden. A sliding door and jali brickwork separate the living area from the parking, connecting the interior to the exterior


The upper level includes a family area with a casual sofa, TV unit, and decor table, overlooking the lower living space. The accent wall and skylit staircase connect the two levels, enhancing the flow between floors







The wood-themed lower room opens to pool and garden through large sliding doors, allowing natural light to fill the space It features light wooden flooring and textured paint, with wooden beams complemented by light rattan accents, creating a warm and balanced aesthetic.





The upper bedroom features a fixed glass window and a sliding door to the deck, offering views from the bed.
A home office setup with a study table and shelving is placed by the window, while a lamppost bed and dark navy blue accent wall create a modern contrast to the lower bedroom



The room is designed with adaptability in mind, reflecting the daughter's age and evolving preferences. A vibrant color scheme of peach, olive green, and neutral grey ensures the space evolves as she grows. Fluted panels near the bed and study area provide customizable surfaces, allowing for creative expression through drawings, paintings, and personalized decor, making the space adaptable to her changing needs
The study area blends simplicity and elegance, with a functional desk and upper cabinets on the right On the left, a sofa doubles as a reading nook, framed by minimalist beading and picture frames The existing wardrobe is enhanced with rose gold mirror sliding doors, serving as a striking accent in the space.


Lounge/Entrance

Company Background & Goal: Travelopia is an office that specializes in curating bespoke travel experiences, fulfilling the wanderlust dreams of every adventurer, is designed to evoke the spirit of exploration.
Design Concept: office design, we aimed to cultivate an environment where functionality meets inspiration. Through strategic elements such as open workstations, exposed ceilings, and a range of seating options, from bench seating to outdoor-facing sofas, we ' ve prioritized both comfort and creativity. By integrating travel posters and classic artwork throughout the space, we seek to immerse employees in the spirit of exploration, igniting their imagination and fostering innovation within the workspace



As project lead, I am responsible for preparing digital models and execution/furniture drawings Coordinating with electrical, HVAC, and furniture consultants and making sure the project progress according to timeline.
Site supervision for a smooth progress and immediate response to tackle the unforseen problems arise at and revise them at site that goes with design





Company Background & Goal: Methods
India Pvt Ltd is a pioneering firm specializing in innovative engineering solutions
Design Concept: The design offers a dynamic office space featuring conference rooms, workstations, informal discussion areas, administrative spaces, cabins, training rooms, courtyards, an outdoor cafeteria, and a serene terrace Designed with meticulous attention to detail, the integration of these elements fosters a versatile environment conducive to productivity and collaboration, all while maintaining a commitment to sustainability


spaces




I am responsible for preparing presentation and construction drawings under the supervision of the principal architect This involves conducting research to design innovative solutions that meet the requirements of the client unique preferences. Additionally, I handle the preparation of 3D modeling, rendering, execution drawings



Company Background & Goal: Indee, a fast-growing entertainment company, a fast-growing entertainment company, sought to cultivate a dynamic, collaborative atmosphere to inspire creativity and innovation
Design Concept: The design concept for Indee's office centers on fostering collaboration and dynamism. It features an open layout with diverse breakout spaces.
Collaboration &Dynamic Features: The design facilitates collaboration and flexibility through an open layout and varied breakout areas, while promoting dynamism with features such as a central workstation, lounges, phone booths, versatile seating options, meeting rooms of various sizes, informal discussion zones with whiteboards, a fullyequipped pantry, and a dedicated dining area with high-top seating


As project lead, I am responsible for preparing presentation and construction drawings under the supervision of the principal architect. This involves conducting research to identify new materials that enhance the design's value while aligning with the client's unique preferences. Additionally, I handle the preparation of presentations, 3D modeling, rendering, execution drawings, and coordinate consultants throughout the project's execution.




Located in Sira Industrial Area, Tumkur District, Karnataka, the Kavia Factory was designed for Toyota to produce next-generation car parts, enhancing space and operational efficiency. The LEED Silver certified facility supports both skilled labor and office staff while integrating sustainable practices

As project lead, I am responsible for preparing presentation and construction drawings the principal architect. This involves conducting research to identify new materials that enhance the design's value while aligning with the client's unique preferences. Additionally, I handle the preparation of presentations, 3D modeling, rendering, execution drawings, and coordinate consultants throughout the project's execution.
As the key person i have to coordinate with all the stakeholders involved in the project, oversee the meetings and update the necessary design changes in the project






First Floor Plan


Second Floor Plan

Designed for Toyota: Purpose-built to manufacture next-generation car parts, enhancing efficiency over the previous facility.
Workforce Capacity: Accommodates 450 people by 2030, with three shifts of 150 workers. 80% of the space is for skilled labor, 20% for office staff.
LEED Silver & Landscaping: The factory targets 10,000 kWh energy efficiency, achieving LEED Silver certification, with 20% of the 4,038 36 sqm plot dedicated to landscaping
Stakeholder Collaboration: The design and construction involved collaboration between multiple stakeholders, including architects (yourself and team), structural engineers, MEPF consultants, sustainability experts, HVAC consultants, and contractors





Lightweight Decking Slab: A lighter floorweight decking slab was implemented to facilitate efficient and streamlined construction.
Polycarbonate Facade: Polycarbonate sheets were incorporated into the exterior façade, allowing natural ventilation for 75% of the factory, contributing to LEED certification requirements.
Fire Safety: Fire-rated staircases and comprehensive fire protection measures were prioritized to ensure safety compliance. Sustainable Design: Sustainable design principles and eco-friendly materials were employed throughout the construction process, aligning with the project’s environmental goals.

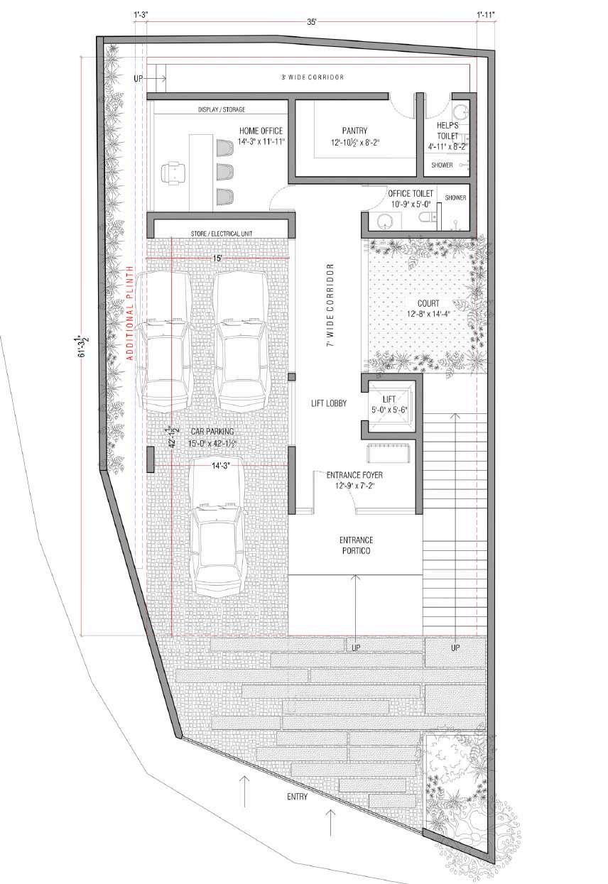
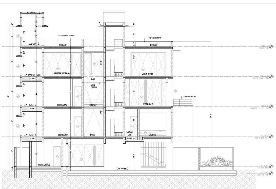
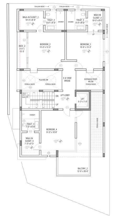
Located in SR Palya, Bangalore, this residential project for real estate developer Mr. Vinay integrates modern design with traditional Indian elements The five-bedroom house features a home theater and office, strategically positioned on a corner plot to maximize natural light and ventilation while shielding from pollution. A central skylight illuminates the interconnected upper floors, connected by a glass bridge, ensuring ample light reaches the ground floor.


As project lead, I am responsible for preparing presentation and construction drawings This involves conducting research to identify new materials that enhance the design's value while aligning with the client's unique preferences.
































The Traditional Courtyard Concept Was Implemented Vertically as Per the Client’s Ideation to Stick to His Roots
The Playful Arrangement of The Spaces Created A Central Breakout Zone Which Acts as A Transition In Between The Levels.

As we ascend to the upper floors it shows the intricate connection of spaces along the transitional spaces which becomes the ingenuity of the residence
Next to the courtyard, the family area on the corner floor overlooks the northfacing balcony, offering energizing vibes all day


The yoga/multipurpose room faces north to capture tranquil ventilation, while the study room to the southeast challenges evening airflow, creating a horizontal and vertical connection.
This Transition Space Allows the People to Connect Visually Not Just Horizontally but Also Vertically
Transitional spaces like the staircase and double-height area create a visual connection axis in this design strategy.
The bedrooms are placed to the rear, which provides seclusion and privacy from the active communal spaces. Although all the spaces are woven into an intricate pattern, they consistently connect to the transition space, which provides supervision over the other spaces.

The ground floor is designed with parking at the front and a garden space next to it, showcasing the intent of incorporating greenery to offer natural ventilation to the occupants.
As we ascend to the upper floors, the intricate connection of spaces with transitional areas emerges, embodying the ingenuity of the residence





The common transitions between floors separate the active and passive areas of the residence, interlinking every space and offering a better view outward
Natural light illuminates all spaces, casting interesting shadows on the walls throughout the day via skylights. This play of light and vision is highlighted by the double-height design, bringing sunlight into each room and space, creating a dynamic vertical feel when sunlight streams down the middle of the building.




As Name Suggests Sangam Means “A Place Where Gathering Takes Place”. This Project Was A Clubhouse Cum Community Gathering Space For A Gated Community That Is Located Outskirts Of Bangalore
The Architectural Design Of This Project Is Open, We Planned A Tall Compound Wall Around Site Boundary And Opened One Side Of The Site Which Opens Up Towards A Small Park.
preparation of presentation drawings, Design options,3d views, permit drawings and constructions documents research on ecofriendly material (such as ramming earth ) and metal staircase options that can be provided without disturbing the concept that has been achieved . coordinating with consultants and suppliers for to achieve the zero carbon footprint materials for the project.








• The ground floor is entirely open, serving as a multi-purpose hall that can extend outside with sliding panels, adapting to various needs.
• The setback area of the site features a simple landscape design, doubling as an extension of the multipurpose hall, allowing light and air inside Adjacent to the park, the clubhouse is linked via an outdoor transition seating area • On the first floor, there's a game room and library with security controls, while balconies offer outdoor seating/play areas.
• Open walls are incorporated to maximize space and adaptability, following a contemporary and sustainable material palette suited to the project's humble nature






