Bim Portfolio

![]()

Architect
am an arch tect guided by the ethos of uniqueness and a constant quest for new experiences thr ve on find ng innovative solut ons to challenges embracing the bel ef that "design is not just what it looks like and feels like, design is also how it works." I am defined by my ded cation to hard work and my insatiable des re to learn
Language
Engl sh Hindi
Telugu Kannada
+91-9686852200
Phone E-Mail Websitelinks guruvishwanadh@gmalcom
Interiror-Portfoio@1 Arch-Portfolio@2, Bm-Portfolio@3
BachelorofArchitecture
DayanadasagarcolegeofArchitecture,Bangalore 2015-2020
BIMArchitectureProfessionalCourse
Novatr Bangaore 2023-2024
Jan2023-Present
WorkedasaSeniorArchtect@INKArchitecture,managingateamof4 comprisingjuniorarchitectsand nterns Ihandledcommercialinterior projectsandindustrialprojects,providingmewithversatieexperience acrossvariousproecttypes Myrole ncludedHRresponsibilities project coordination,projectmanagement andconsultant cient andvendor managementtoensureseamlessproectexecution
June2021-Sept2022
WorkedasaJuniorArchitect@YellowDoorArchitectsandWDASpaces (sistercompanies)inBangaore whereIhandledvariousinterior residential,andF&Bprojectsthroughoutmytenure alsoindependently managedinterns supportingtheirdevelopmentandcontrbutingto successfulprojectoutcomes
Dec2019-Aug2020
Workedasanintern@Svamitvaarchitecturestudio Bangalore






"Knowledge and awareness are vague and perhaps better called illusions; everyone lives within their own subjective interpretation."

Introduction to the Project.
Conceptual brief & Allocated Zone.
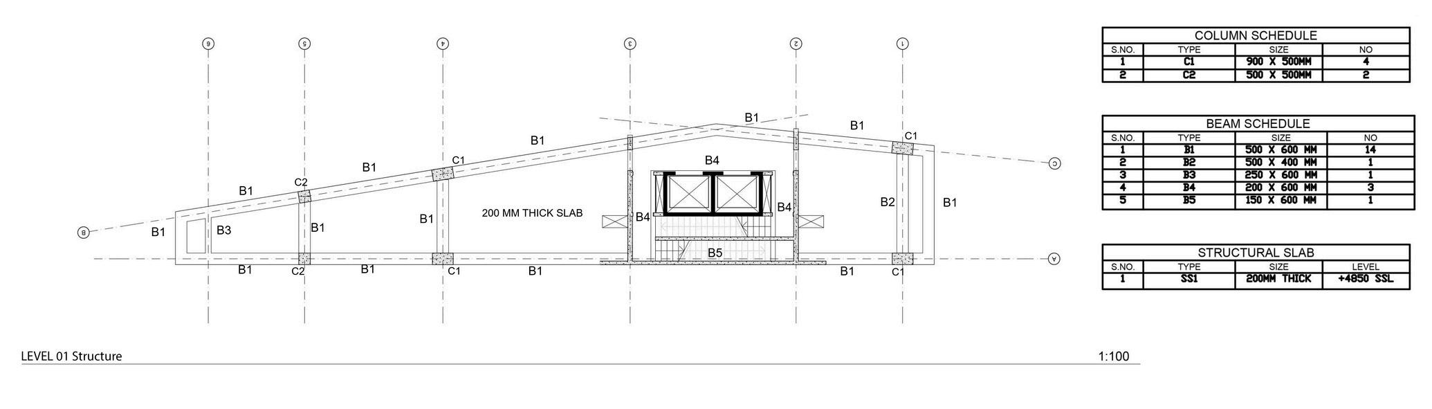
Plans (Floor plans, Area,Sturctural framing plan, Reflected Ceiling Plan, Structural Framing Plan)
Section and Detail Callout
Sections

Project Goal: Introducing Enzyme, a transformative development project located at The Wellington St and Queens Road Central in Hong Kong's Central District With the goal of maximizing ROI and creating a prominent landmark, this project seeks to revitalize an underutilized building from the 70s. With a current GFA of 162.7 sqm, Enzyme explores renovation, expansion, mixed-use development, and sustainable design to unlock its full potential and contribute to the iconic skyline of Hong Kong.



Project Typology: MixedUse(Office and Commercial)
Plot Area: 203.7 sqm
Floor Area Ratio(FAR): 13.8
GFA: 162 7 sqm
Height Restriction: 21 Storeys
LOD: 350
Tools used for the project:
Modelling and DraftingAutodesk Revit
Render - Twinmotion
Clash test - Navisworks

Stage 01
Strategic definition
Identifying the client's requirements and conducting a project feasibility check.
preparation and briefing
To assemble the project team, define the structure, teams, and the roles and responsibilities.
B.E.P preparation with the client
M I D P (master delivery plan)
Stage 02
Concept design package
Existing building assessment. Research and inspiration Concept development and space planning. Massing and form studies.
Material and color selection Visualization Conceptual documentation and design report
Stage 03
Design development
Design studies of architectural and structural documentation. Coordination model integration. Package documentation Client submission
Stage 04
Techniocal design Model Coordination& Views Setup Clash DetectionNavisworks Clash Resolution. Design Development Technical Package Production
Stage 05,06,07
Design development
4D simulation in Revit and Navisworks. Quality control for IFC and RVT models Construction package Project Timeline simulation (5D) Quantification workbook (6D) manufacturing and construction Handout and closeout to client and contractor.
In use




efine by integrating Office and Service Apartments, g to the area ' s dynamic needs. Leveraging the prime location maximize the site's potential through extrusion, setbacks, and volume and recover GFA. Meticulous planning s and ground-level public spaces, fostering a harmonious onality and leisure, sculpting an architectural landmark ' s pulse.

: Current Building Volume Stage 1: Extrude to the maximum allowed number of stories

: Creating a series of setlowed as per the local on the addition of extra in order to make up for the A.

Stage 3: The creation of sky gardens and public spaces, also allows the volume to grow higher recovering GFA, increasing the final number of stories.


The site plan demonstrates compliance with regulations, offering ample open space around the building
The ground floor functions as the main entrance lobby and a potential public area. Additionally, basement parking facilities are integrated to enhance convenience for occupants and visitors.

Our 3D views provide a captivating glimpse into intricately layered architectural creations, showcasing meticulous attention to detail. Through immersive experiences, we reveal the seamless integration of spatial planning, structural elements, and interior design, exploring the dynamic interplay between light, volume, and materiality.


Floor plans, simplified from detailed Revit drawings, provide stakeholders with a comprehensive understanding of a building's design for informed decision-making during construction

Typical layout: Typical layouts, such as office spaces with breakout terraces, adhere to standard conventions, offering predictable spatial arrangements commonly found in buildings, ensuring ease of understanding and implementation during construction.

Atypical layout: Atypical layouts, featuring unconventional spatial arrangements like expansive terraces within office spaces and ground-level public areas with private lobbies for offices, deviate from norms, offering opportunities for creativity but requiring careful consideration and planning during construction.





The structural layout follows a minimalist approach, featuring only few columns and a spacious core with walls in various directions to maximize free space, crucial for office environments. The core design comprises two compact boxes for elevator concentration. Work sets for architectural and structural files are created separately and utilized as Revit links, ensuring efficient collaboration and coordination









Integrating information from various disciplines enables early issue identification, fostering improved communication, collaboration, and project performance. Architecture model Structure & M.E.P model
(Architectural+Structural+M.E.P)
Once architectural planning and modeling for Zone 01 are complete, models from other zones and disciplines merge into a federated model
This consolidated model, unified under shared coordinates, undergoes clash detection








Navisworks clash detection plays a pivotal role in coordinating and executing construction projects by identifying clashes between architectural, structural, and MEP components. The process involves automated analysis to detect clashes in virtual models, followed by collaborative resolution among stakeholders. The goal is to achieve clash-free models, enhancing constructability and project efficiency.

Coordinated model Zone 01 clash detection in navisworks

Search sets


The clash detections are performed based on the clash detection matrix and its rules. Different search sets are created based on specific needs, and the results are communicated to the respective disciplines.
The resulting hard clash reports are sent to the respective disciplines, and corrections are made in the models based on the clash report Subsequently, the clash detection process is repeated until the number of clashes is reduced to the desired outcome.



4D BIM integrates the 3D model with the construction schedule, allowing visualization of construction sequencing over time. Its benefits include phase planning simulation to identify bottlenecks, proactive clash detection to address conflicts early, and improved communication between design and construction teams.


5D BIM This feature seamlessly integrates cost information with the 3D model and construction schedule, facilitating precise cost estimation, real-time budget monitoring, and value engineering.

Timeliner simulation in Navisworks can be easily prepared via CSV file, setting sets based on 4D parameters, attaching them to corresponding data entries, and extracting the simulation in movie format precise cost estimation and scheduling, thereby enhancing accuracy
The simulation offers stakeholders a comprehensive understanding of construction tasks and their respective timelines. It facilitates efficient scheduling by identifying areas where simultaneous work can occur without time conflicts, thus optimizing project efficiency




It allows for linking building components to cost data for materials, labor, and equipment, enabling accurate cost estimates throughout the project lifecycle. Additionally, the system streamlines quantification by extracting quantity data effortlessly from Navisworks and exporting material items to Excel for further analysis, enhancing project management and cost control

