Portfólio de Arquitetura e Design

Page 1

POR TFÓ LIO

ARQUITETURA // DESIGN

GUILHERME HENRIQUE SILVA

SUMÁRIO

CV 04

HABITAÇÃO BENTO BICUDO/ TFG_ 06

CASA CAJAMAR_ 16

APARTAMENTO ALECRINS _26

BANCO SAPATEIRA CAROLA_ 36

Guilherme Henrique Silva Rua dos Alecrins, 400 – Cajamar, SP +55 11 97686-3517 guilherme_henriquez@outlook.com issuu.com/guilherme_henrique CV/ 4

FORMAÇÃO

2016 – 2020

Arquitetura e Urbanismo

Universidade Nove de Julho

COMPLEMENTARES

28h - 2020

Representação Arquitetônica

Hub Prática Criativa

SOFTWARES

ArchiCad avançado

AutoCAD, SketchUp, Pacote Office

intermediário+

Photoshop, V-Ray intermediário

Revit, InDesign e Illustrator básico

EXPERIÊNCIA PROFISSIONAL

04/2018 – 08/2018

Estágio Temporário – ArquiDecor

Projetos

05/2019 – 08/2019

Designer Aprendiz – GAMB

08/2019 – 12/2020

Aprendiz – Registro Joias

12/2020 – 08/2022

Designer de Joias – Registro Joias

IDIOMAS

Inglês intermediário

Espanhol intermediário

INTERESSES

Desenvolver e aperfeiçoar os processos projetuais, da concepção formal á execução dos conceitos da arquitetura e design. Compreender o uso da madeira na arquitetura, entendendo seu sistema construtivo, estratégias de menor impacto ambiental e local.

5
6

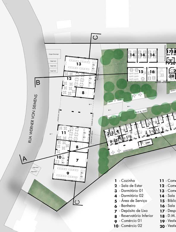
HABITAÇÃO BENTO BICUDO/ TFG

10º semestre/ Desenvolvimento individual Orientação por Ana Carolina Susin e Marcia Gois

O terreno propoê uma caminhabilidade em toda sua longitudinal fazendo com que seja um caminho encurtado entre quadras e mais vivo para o edifício. Se tratando de uma área próximo a Marginal do Tietê, a vista é tratada como um ponto onde os moradores podem usufruir no pavimento intermediário e corredores, deixando os edifícios mais permeáveis na paisagem. A implantação de três blocos habitacionais possibilita criar

um pátio onde acontece a fruição pública junto das áreas de permanência no percorrer do terreno, acontecendo os acessos a pré-escola e as unidades habitacionais. O uso de pilotis proporciona um vão livre com comércio local para o entorno e soluciona um piso intermediário aberto para a paisagem, assim como o vão aberto entre as unidades dando a oportunidade de contemplar a paisagem local.

7

IMPLANTAÇÃO

8
9

PAVIMENTO TIPO

10
11

unidades

9 unidades

270 unidades

unidades

PLANTA CHAVE Tipologia A 60m² 140
Tipologia B 70m² 121
Tipologia PCD 70m²

CORTE AA

CORTE BB DETALHE BRISE

13 2,80 0,50 1,00 1,10 0,70 Brise de Concreto 0,10x0,50m Esquadria Metálica Branca Laje Pré Moldada h= 0,30m Bloco de Concreto 0,14x0,19x0,39m 0 0,50 1 2m 2,80 0,50 1,00 1,10 0,70 Concreto 50m Esquadria Metálica Moldada m x0,39m 0 0,50 1 2m
14
15
16

CASA CAJAMAR 2022

Projetado por Guilherme Henrique

Em um terreno estreito, o térreo se distribui de forma uniforme e totalmente aberta com o mínimo de alteração no terreno. Os ambientes são divididos apenas pelo elemento da escada, integrando sala de estar e cozinha, com vista para o jardim externo em desnível.

No pavimento superior, os dormitórios ganham uma área externa e grandes aberturas para maior aproveitamento da iluminação e ventilação natural.

17
18
19
20
21
22
23
24
25
26

APARTAMENTO ALECRINS

2022

Projetado por Guilherme Henrique

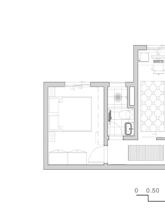
Privilegiado pela iluminação natural durante o dia todo, o apartamento tem tons claros e muita madeira, demonstrando a personalidade dos moradores com bastante aconchego em cada ambiente. Todos ambientes são biofílicos, assim como no escritório onde funciona o estudio de arquitetura, todas as plantas utilizadas são tropicais, sendo assim com manutenção simples e adaptável á qualquer ambiente.

27
28 PLANTA APARTAMENTO

APARTAMENTO ALECRINS

29
30
31
32
33
34
35
36

BANCO SAPATEIRA CAROLA

Em desenvolvimento Design e Execução por Guilherme Henrique

Desenhado para ser eficiente e de rápida utilização, o Banco Sapateira Carola possui uma caixa central, como o tronco do corpo humano, reforçando o travamento das peças de madeira em toda estrutura. O assento centralizado proporciona o acesso rápido aos calçados, não somente pela frontal mas também pelas laterais, bem como uma gaveta abaixo do assento, para armazenamento de pertences.

37

Turn static files into dynamic content formats.

Create a flipbook
Portfólio de Arquitetura e Design by guilherme_henrique - Issuu