Architecture Portfolio_Guido_Correa

Page 1


Architecture

Portfolio

Residential

Location: Ottawa, Ontario,Canada

Urbankeios Design

Nick Semanyk

Jillian Brown

Role:

DraftingAutocad, 3D Modelling Sketchup

Residential

Location: Ottawa, Ontario,Canada

Urbankeios Design

Nick Semanyk

Jillian Brown

Role:

DraftingAutocad, 3D Modelling Sketchup

Residential

Location: Ottawa, Ontario,Canada

Urbankeios Design

Nick Semanyk

Jillian Brown

Role:

DraftingAutocad, 3D Modelling Sketchup

Public spaces

Papallona Square

Location:

Barrio del Coll

Barcelona

Client

Barcelona City Hall

Architect

Xavier Solà I Subirana

Construction

9TeamGroup

Role:

Architectural assistant

DraftingAutocad 2D,

Sketchup 3D

General plan

Public spaces

Vista Park Square

Location:

Barrio del Carmel

Barcelona

Client Barcelona City Hall

Architect

Xavier SolàI Subirana

Role:

Architectural assistant

DraftingAutocad 2D, Sketchup 3D

Public spaces

St Genis Square

Location:

Barrio del Carmel

Barcelona

Client

Barcelona City Hall

Architect

Role:

Architectural assistant

DraftingAutocad 2D, Sketchup 3D

Xavier Solà I Subirana

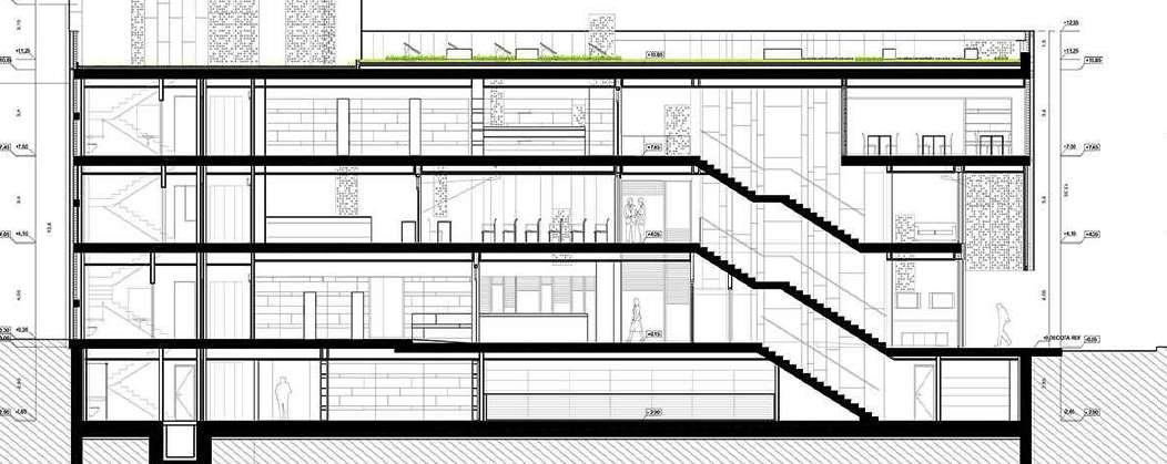
Central Library

Seville

Location

Seville,Spain

Project of Certification of the title ofArchitect in Spain

Sevilla University School of Architecture

2010-2011

Residential

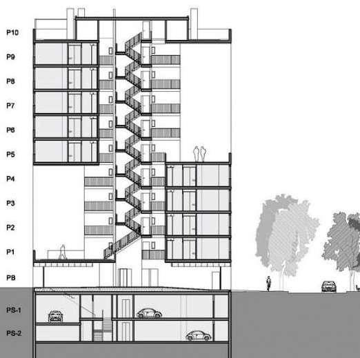
Block 81 social housing commercial premises

Location

Barbera del Valles, Barcelona

Client Proviure, S.L.U

Architect

RGAArquitectes SA

Construction

Beta Conkret, S.A 2005-2009

Architectural technologist

DraftingAutocad 2D, Microstation

Plan 1ª-2ª-3ª-4ª

Plan 5ª-6ª-7ª-8ª-9ª

Section

Residential

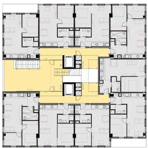
Block 324 housing commercial

Location: Vilafranca del Penedes Barcelona

Architect RGAArquitectes SA

Contruction Construcciones

Reyal, S.A 2004-2008

Role:

Architectural technologist

DraftingAutocad 2D, Microstation

Other projects

1. Concept Design luxury homes, Vilalba. Barcelona RGAArquitectes

2. Housing in Prat de Llobregat Barcelona TotArquitectura

3. Housing in Terrassa, Barcelona TotArquitectura

4. HousingTerrassa, Barcelona TotArquitectura

Other projects

4.Two multifamily blocks in Sant Cugat del Valles

Barcelona

TotArquitectura

5. Housing in Vilafranca del Penedes, Barcelona

TotArquitectura

6. Housing in Casteldefells, Barcelona

TotArquitectura

Turn static files into dynamic content formats.

Create a flipbook
Issuu converts static files into: digital portfolios, online yearbooks, online catalogs, digital photo albums and more. Sign up and create your flipbook.
Architecture Portfolio_Guido_Correa by Guido Correa - Issuu