Aufnahmeinformationen für medizintourismuspatienten

Page 1

AUFNAHMEINFORMATIONEN FÜR MEDIZINTOURIS MUSPATIENTEN

>>>> >>
>>>> 2 INHALT ALLGEMEINE INFORMATIONEN...............................................................4 ÜBER UNS...................................................................................................5 Qualitätspolitik..........................................................................................6 IHRE MEINUNG ZÄHLT. BEWERTEN SIE UNS!.............................................7 DAS KRANKENHAUS..................................................................................8 PLÄNE UND EINGÄNGE (Ihr Weg zu uns) ..............................................9 KRANKENHAUSAUFENTHALT ....................................................................14 - Bei Ihrer Ankunft..................................................................................15 - UNSERE ZIMMER...................................................................................15 - Aufnahme in der Klinik und Entlassung............................................15 - Sicherheit und Identifikation der Patienten.....................................17 - Persönliche Gebrauchsgegenstände..............................................17 - Verpflegung........................................................................................18 - Wertgegenstände..............................................................................18 - Telefon, WIFI ........................................................................................19 - Pflegedienstruf/Pfleger/-in rufen.......................................................19 - Besuchszeiten......................................................................................20 - Regeln für Ruhe...................................................................................20 - Blumen und Pflanzen..........................................................................20 - Wäschereiservice................................................................................20 - Smart TV...............................................................................................21 Tips und Empfehlungen für Ihren Aufenthalt........................................21 - Cafetería..............................................................................................21 - Zimmerservice.....................................................................................21 - Verkaufsautomaten...........................................................................22 - Umweltschutzmaßnahmen................................................................22 - Empfehlungen.....................................................................................23 ZUGÄNGLICHKEIT.....................................................................................24 - Eingang................................................................................................25 - Bewegen im Innenbereich................................................................27 - Bereiche oder Leistungen..................................................................29 - Außenbereiche...................................................................................30 RECHTE UND PFLICHTEN...........................................................................29 NOTFÄLLE UND NOTAUSGÄNGE.............................................................32 TOURISTISCHE INFORMATIONEN ÜBER IBIZA...........................................35

WILLKOMMEN

Wir von der Poliklinik Nuestra Señora del Rosario heißen Sie willkommen und danken Ihnen, dass Sie sich für unser Zentrum entschieden haben und uns bei Ihrer Behandlung und/oder Erholung vertrauen.

Wir wollen Ihnen die bestmögliche Pflege garantieren und bieten Ihnen dazu mehr als 50 Jahre Erfahrung, die beste Technologie auf der Insel, die modernsten und innovativsten Techniken und ein hochqualifiziertes Personal, das sich ständig weiterbildet, um Ihnen eine individuelle, respektvolle und menschliche Hilfe zu bieten. Unser Team setzt jeden Tag alles daran, dass Sie während Ihres Aufenthalts in unserem Krankenhaus so zufrieden wie möglich sind.

Mit dieser Broschüre möchten wir Ihnen alle Dienstleistungen und Einrichtungen erklären, die sowohl Sie, als auch Ihre Familienangehörigen nutzen können.

Wenn Sie Fragen oder Anregungen haben, lassen Sie es uns über unser Personal wissen.

Wir wünschen Ihnen eine baldige Heilung und einen angenehmen Aufenthalt.

Dr Francisco Javier Vilás San Julián

Geschäftsführer GRUPO POLICLÍNICA

>>>> 3

ALLGEMEINE

>>>> 4

ÜBER UNS

Die Grupo Policlínica existiert bereits seit mehr als einem halben Jahrhundert durch die harte Arbeit, Hingabe und Liebe des Dr. Julián Vilás Ferrer für Ibiza, der das Fundament für eine qualitativ hochwertige, private Krankenversorgung auf der Insel gelegt hat. Unter der Leitung seiner Kinder, Dr. Francisco Javier Vilás und Marta Vilás ist das Krankenhaus nicht nur gewachsen, sondern hat auch verschiedene externe Praxen, eine Abteilung für Rehabilitation, einen eigenen Krankentransport:und ein Zentrum für plastische und ästhetische Medizin aufgenommen. Wir sind nun an verschiedenen Orten der Insel und arbeiten mit dem öffentlichen Gesundheitssystem der Balearen, IBSalut, zusammen und versorgen die Bevölkerung der Inselgruppe Pityusen in den Bereichen Hämodynamik und Neurochirurgie.

Die ständige Innovation und das Streben nach einer hochwertigen Versorgung Ibizas waren außerdem kontinuierliche Ziele der Gruppe. Dies hat unsere Neurochirurgie zu einem Pionier und den einzigen zugelassenen Ausbildern in Europa für modernste Interventionstechniken für die Wirbelsäule gemacht

Außerdem kann die Gruppe über die Stiftung Julián Vilás Ferrer Initiativen ergreifen, mit denen sie der Gesellschaft Ibizas die Unterstützung und Zuneigung zurückgeben kann, die sie in all denen Jahren erhalten hat.

Die Verpflichtung zur Qualität gegenüber unseren Patienten und Kunden hat einen „lebendigen“ Wert, der fern von dem Einhalten der Regelungen und festgelegten Vorgehensweisen sich ständig um die Verbesserung der Pflegestandards bemüht.

>>>> 5

ALLGEMEINE

QUALITÄTSPOLITIK

Die Grupo Policlínica ist eine führende Firmengruppe für medizinische Dienste seit 1969.

Mit mehr als 50 Jahren im Dienste der Bürger Ibizas und Formenteras lag unser Hauptinteresse stets auf der Anwendung modernster Technologien zusammen mit einem hervorragenden medizinischen Personal und einer herzlichen und persönlichen Behandlung jedes Patienten.

Wir halten uns an Verfahren zur Sicherheit und Pflegequalität, die sich an die Notwendigkeiten und Erwartungen unserer Patienten richten.

Für dieses Ziel hat die Grupo Policlínica (bestehend aus Policlínica Ntra. Sra. del Rosario, Eiviconsulta, Clínica Vila Parc, Logprosa und Clínica Premium-Eiviestetic) folgende Prinzipien definiert und sich zu deren Einhaltung verpflichtet:

1. Unsere Pflegeleistung konzentriert sich auf unsere Patienten und wir kümmern uns um ihre Sicherheit und Erfüllung ihrer Erwartungen.

2. Wir streben ständig danach, die Qualität unserer Leistungen über verschiedene Klinikkommissionen zu steigern, die unsere Daten analysieren, und uns darüber informieren, in welchen Gebieten wir uns verbessern können.

3. Wir erfüllen die gesetzlichen Anforderungen und geltenden Normen der Branche über die Kommission für Pflegedienstethik und Risikovermeidung.

4. Grupo Policlínica bietet die berufliche Entwicklung der Personen, die für uns arbeiten, als einen unentbehrlichen Antrieb für Innovation und Wissen Daher gehören Weiterbildung und Wiederholung zu unseren Hauptzielen.

5. Wir halten es für sehr wichtig, unseren Patienten moderne, innovative Geräte zu bieten, die sich an den technischen Fortschritt anpassen.

>>>> 6

6. Unser persönlicher Service für unsere Patienten ermöglicht es uns, zu einer Referenz für den Medizintourismus und jederzeit freundlich und herzlich zu sein. Nach diesem Prinzip wollen wir unseren Kunden mit Nähe, Verantwortung, Vertrauen, Ehrlichkeit/Transparenz, menschlicher Wärme, Respekt, Ethik, Überwindung, Anstrengung, Vertraulichkeit und Nachhaltigkeit die Werte und Eckpfeiler unserer Organisation vermitteln Unsere Stärke ist es, wie Patienten zu denken.

7. Die Grupo Policlínica trifft medizinische Entscheidungen auf einer Methodik, deren Basis wissenschaftliche Tatsachen sind. Sie wendet wissentlich, vernünftig und bewusst die besten Testverfahren der Forschung an, um Entscheidungen über die Gesundheit unserer Patienten zu treffen.

8. Die Grupo Policlínica bietet ihren Patienten und Kunden persönliche, sichere und individuelle Transportdienste an, die sich nach deren Anforderungen, Wünschen und Erwartungen richten.

Unsere Qualitätspolitik, die den Rahmen für die Definition und Prüfung strategischer Objekte und der Qualität sind, ist eingeführt, aktuell und allen unseren Angestellten bekannt.

IHRE MEINUNG ZÄHLT. BEWERTEN SIE UNS!

Zögern Sie nicht, uns alle Ihre Vorschläge und Kommentare mitzuteilen.

Sie können das tun mit:

• einer Mail an calidad@grupopoliclinica es

• einem Besuch des Abschnitts „Bewerten Sie uns“ auf unserer Internetseite www.grupopoliclinica.es (, die Sie über den Touch-Screen in Ihrem Zimmer aufrufen können).

• einem Brief, den Sie in den Briefkasten an der Hauptrezeption und auf der 3. Etage im Wartebereich der Intensivstation einwerfen können.

• über unsere APP, die Sie in Google Play (für Android) oder im Apple Store (für Iphone) herunterladen können.

Denken Sie daran, dass eine Minute Ihrer Zeit uns helfen kann, Ihren Aufenthalt zu verbessern.

>>>> 7

DAS KRANKENHAUS

Wir verfügen über 36 Zimmer: 33 Standardzimmer und 3 Suiten.

Medizinischer Transport der Grupo Policlínica

Bei Bedarf können Sie unseren dringenden oder planmäßigen medizinischen Transportdienst in Anspruch nehmen.

Kontakt: +34690191919

Anreise mit eigenem Auto

In den umliegenden Straßen gibt es gebührenpflichtige Parkplätze (blaue Zone).

Wenn Sie wollen, können Sie die Parkgebühren über eine APP entrichten. Sie finden die Informationen dafür an den Parkscheinautomaten.

Das Krankenhaus befindet sich in Vía Romana S/N, 07800 Ibiza.

Öffentlicher Nahverkehr

Die nächsten Bushaltestellen befinden sich in der Avenida España nur wenige Minuten von der Klinik entfernt.

Taxi

Wenn Sie ein Taxi benötigen, können Sie es an der Hauptrezeption oder in der Notaufnahme anfordern

Mietfahrräder/Parkmöglichkeiten

Mietstationen befinden sich gegenüber des Zentrums in der Via Romana.

>>>> 9
SIE
PLÄNE UND EINGÄNGE WIE
UNS ERREICHEN

DAS KRANKENHAUS

LABOR

KERNSPINTOMOGRAPHIE

OPERATIONSSAAL FÜR HÄMODYNAMIK

COMPUTERTOMOGRAPHIE

RADIOLOGIE

RÖNTGEN

NOTAUFNAHME - EMPFANG

NOTAUFNAHME - WARTESAAL

EIN-/AUSGANG

AUFZUG

ZUTRITT VERBOTEN

BEHINDERTENTOILE

TTEN TOILETTEN

>>>> 10
0. ETAGE

1. ETAGE

HAUPTREZEPTION

WARTESAAL

AUFZUG

TTEN TOILETTEN

CAFETERIA

KERNSPINTOMOGRAPHIE

ZUTRITT VERBOTEN

CHIRURGIE

KREISSSAAL

RADIOLOGIE

KARDIOLOGIE

PATIENTENAUFNAHME

>>>> 11

DAS KRANKENHAUS

2. ETAGE

PEDIATRIEBOX

PFLEGEÜBERWACHUNG

WARTESAAL

AUFZUG

NOTAUSGANG-

ZUTRITT VERBOTEN

TTEN TOILETTEN

>>>> 12
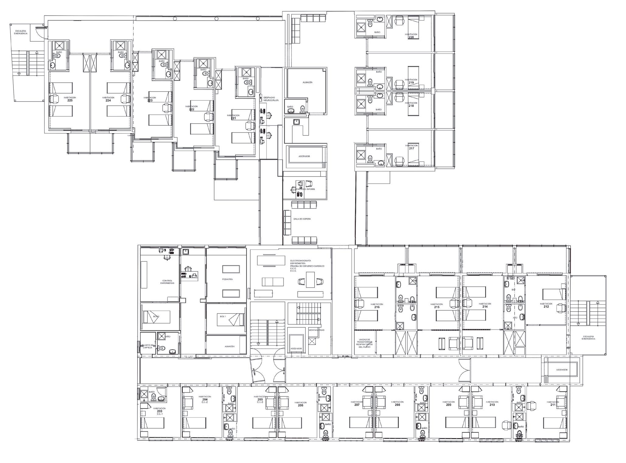
2 2 5 2 2 4 2 2 3 2 2 2 2 21 21 2 21 1 20 9 20 7 20 5 21 0 20 8 20 6 20 4 20 3 21 4 21 5 21 6 2 2 0 2 1 9 2 1 8 2 1 7 NURSING CONTROL PATIENTENZIMME R
ZIMMER FÜR MEDIZINTOURISMUS
203-221
217-220
>>>> 13
3 1 1 3 1 0 3 0 9 3 0 8 30 7 30 1 30 2 30 3 30 4 30 5 30 6 PATIENTENZIMME
MEDIZINTOURISMUS
INTENSIVSTATION
AUFZUG
3. ETAGE
R 301-307 SUITE ZIMMER FÜR
308-311 NOTAUSGANG-
PFLEGEÜBERWACHUNG
WARTESAAL BEHINDERTENTOILETTEN ZUTRITT VERBOTEN

KRANKENHAUSAUFENTHALT

Der Flughafen von Ibiza ist mit Flügen aus vielen Städten Europas oder mit einer Zwischenlandung in Palma de Mallorca, das nur etwa 25 Flugminuten entfernt ist, sehr gut erreichbar. Sie können die Flugpläne unter www.aena.es abrufen.

Der Flughafen ist nicht einmal 7 Km vom Krankenhaus entfernt

BEI IHRER ANKUNFT

UNSERE ZIMMER

Unser Krankenhaus verfügt über 36 Zimmer: 33 Standardzimmer und 3 VIP-Zimmer. Für den Medizintourismus bieten wir 8 Standardzimmer und 3 VIP-Zimmer mit viel Raum und komplett ausgestattet, um Ihnen den größtmöglichen Komfort während Ihres Aufenthalts zu bieten.

Alle unsere Zimmer verfügen über: Schlafsofa für die Begleitperson, Klimaanlage und Heizung, Smart TV, Safe, Schrank für Ihre Kleidung und persönlichen Gegenstände und ein Set mit Dingen für den persönlichen Gebrauch.

Alle Zimmern für den Medizintourismus verfügen über Hausschuhe, einen Korb mit den für Ihren Aufenthalt nötigen Toilettenartikeln, Wäschereiservice und eine Liste mit externen Dienstleistungen. Die Luxuszimmer (VIP) verfügen für Sie und für Ihre Begleitung über einen Raum, in dem Sie sich entspannen und verschiedene Getränke genießen können, einen eigenen Computer und Internetzugang.

Wenn Sie Zeitungen in Ihrer Sprache wünschen, fragen Sie unser Personal.

AUFNAHME IN DIE KLINIK UND ENTLASSUNG

Die Zeiträume für die Aufnahme an der Hauptrezeption sind Montag bis Freitag von 8:00h bis 21:00h und Samstag von 8:00h bis 14:30h.

>>>> 15

KRANKENHAUSAUFENTHALT

Ihre Einweisung wird von unserer internationalen Abteilung geplant und bestätigt. Am Tag Ihrer Einweisung empfängt ein Mitarbeiter unserer internationalen Abteilung Sie und Ihre Begleitperson zur vereinbarten Uhrzeit an der Hauptrezeption.

Unser Mitarbeiter der internationalen Abteilung benötigt an der Rezeption einen Identifikationsnachweis (Personalausweis oder Pass) für Ihren Check-in

Ein Mitarbeiter der internationalen Abteilung begleitet Sie auf Ihr Zimmer und übergibt Ihnen die Einweisungsdokumente und ein Identifikationsarmband und veranlasst die medizinischen Behandlungen.

Sobald Ihr Arzt Sie entlässt, übergibt er Ihnen die entsprechenden Dokumente über die Behandlung: den oder die Arztberichte und den Entlassungsschein, eine CD oder DVD mit allen durchgeführten radiologischen Methoden, Rezepte, falls Sie noch weiter Medikamente einnehmen müssen, und, falls eine weitere Kontrolle nötig sein sollte, einen Termin und weitere Dokumente.

Medizinische Informationen

Alle notwendigen medizinischen Informationen erhalten Sie vom für Ihre Einweisung verantwortlichen Arzt.>

Um Ihr Recht auf Vertraulichkeit zu bewahren, informiert der Arzt ausschließlich die Personen, die Sie benannt haben. Aus Gründen der Vertraulichkeit werden keine Auskünfte über das Telefon erteilt.

Medikamente

Wenn Sie Medikamente einnehmen, schreiben Sie sie auf und übergeben Sie die Liste dem Pflegepersonal.

Vergessen Sie nicht, Ihrem Arzt bei der Einweisung mitzuteilen, welche Medikamente Sie einnehmen.

Voruntersuchungen

Vergessen Sie nicht, die Untersuchungsergebnisse mitzubringen, die Sie für Ihre Behandlung oder Einweisung gemacht haben.

>>>> 16
• • •

SICHERHEIT UND IDENTIFIKATION DER PATIENTEN

In der Poliklinik Ntra Sra del Rosario möchten wir unsere Patienten sofort erkennen, um die medizinische Sicherheit während ihres Aufenthaltes zu garantieren. Wir benutzen dafür besondere Armbänder. Ein solches Armband hat einen sicheren Verschluss, der während Ihres Aufenthaltes im Krankenhaus nicht geöffnet werden kann. Wir befestigen das Armband am Handgelenk des von Ihnen bevorzugten Arms oder an Ihrem Fußknöchel, wenn es die Behandlungen stören könnte.

Es ist sehr wichtig, dass Sie dessen Bruch, Raub oder Verlust melden. Es benötigt keine besondere Pflege und Sie können sich damit waschen und es erst beim Verlassen des Krankenhauses abnehmen.

Vor einer invasiven oder nicht invasiven Behandlung, die an Ihnen durchgeführt wird, wird immer Ihre Identität geprüft.

Wenn Sie Allergien gegen Medikamente oder Intoleranzen haben, wird Ihr Armband mit einem roten Punkt markiert, um Ihre Sicherheit zu gewährleisten und die damit verbundenen Gefahren zu vermeiden.

In einem solchen Fall prüft der Arzt die Allergien in Ihrer Krankengeschichte

PERSÖNLICHE GEBRAUCHSGEGENSTÄNDE

Sie erhalten Hausschuhe und Toilettenartikel. Wenn Sie in einem „Standard-Superior-Zimmer“ (VIP) untergebracht sind, erhalten Sie außerdem noch einen Bademantel.

Wenn Sie Zahnersatz oder Hörgeräte, Brillen usw. tragen, bewahren Sie diese an einem geeigneten Ort auf und teilen Sie es dem Pflegepersonal mit, damit diese Dinge nicht verlorengehen.

>>>> 17

KRANKENHAUSAUFENTHALT

VERPFLEGUNG

Ein Team von Diät- und Ernährungsexperten kümmert sich im Krankenhaus darum, die Ernährung der Patienten zu planen und zu überwachen. Wenn Sie wegen Intoleranzen, Allergien oder religiösen Überzeugungen bestimmte Nahrungsmittel nicht essen können, teilen Sie dies dem Pflegepersonal mit.

Der Speiseplan wird auf die jeweiligen Ernährungsanforderungen der Patienten angepasst. Die Patienten und deren Begleitung können aber auch extern Essen bestellen, sofern keine medizinischen Gründe dagegensprechen.

Der ungefähre Zeitraum, in denen Sie Essen auf dem Zimmer erhalten ist: Frühstück: 09:00 h | Mittagessen: 12:00 h | KAFFEE: 17:00 h | Abendessen: 20:00 h

WERTGEGENSTÄNDE

Jedes Zimmer verfügt über einen Safe, in dem Sie Ihre Wertgegenstände deponieren sollten.

Wenn Sie wollen, können Sie dies beim Personal an der Rezeption anfordern. Wenn Sie ihn nicht nutzen wollen, empfehlen wir Ihnen, alle Ihre Wertgegenstände (Schmuck, Geld) Ihren Familienangehörigen zu übergeben.

Die Poliklinik Ntra. Sra. del Rosario S.L. Übernimmt keinerlei Haftung bei Verlust von Gegenständen oder Bargeld, die nicht im Safe aufbewahrt worden sind.

>>>> 18

Die Telefonnummer des Krankenhauses lautet +34 971 30 19 16 (24h pro Tag) besetzt.

Auf allen Zimmern befindet sich ein Telefon, von dem Sie die folgenden Nummern anrufen können:

• Hauptrezeption: wählen Sie die 190

• Externe Anrufe: wählen Sie die 0 und dann die Telefonnummer, die Sie anrufen wollen. Sie müssen das Personal der Rezeption bitten, dies zu aktivieren.

Wenn Familienangehörige oder Freunde Sie von außerhalb anrufen wollen, müssen sie die Nummer +34 971 30 19 16 und dann die Durchwahl (Zimmernummer) wählen, sobald Sie dazu aufgefordert werden.

Das Krankenhaus verfügt über einen kostenlosen Internetzugang auf seinem Gelände. Fragen Sie an der Hauptrezeption oder der Notfallaufnahme (an Feiertagen und Wochenenden) nach dem Passwort..

Sie können sich auch über einen QR-Code mit dem Handy oder über einen Verkaufsautomaten mit unserem kostenpflichtigen Hochgeschwindigkeitsnetz verbinden.

Das Krankenhaus übernimmt auf keinen Fall eine Haftung für Schäden, die dadurch Ihrem Handy entstehen können.

RUFANLAGE/PFLEGEDIENSTRUF

Es befindet sich am Kopfende Ihres Bettes und Sie können damit Kontakt mit dem Pflegedienst aufnehmen, der Sie so schnell wie möglich aufsuchen wird.

>>>> 19
TELEFON WIFI

KRANKENHAUSAUFENTHALT

BESUCHSZEITEN

Es gibt keine festgelegten Besuchszeiten, aber wir bitten Sie darum aus Rücksicht auf die anderen Patienten ab 22 Uhr keinen Besuch mehr zu empfangen und die Nachtruhe zu beachten.

Besuche auf der Intensivstation sind auf bestimmte Zeiten eingeschränkt: Von 13 00 h bis 14 00 h und von 20 00 h bis 21 00 h

(Wenn Sie weitere Fragen haben, fordern Sie unser „ Handbuch für Familienangehörige mit Patienten auf der Intensivstation“ an.)

Diese Zeiten können sich unter außergewöhnlichen Umständen ändern.

REGELN FÜR RUHE

Wir bitten Sie, während Ihres Aufenthalts die Regeln für Ruhe zu beachten und sich mit Rücksicht auf die anderen Patienten im Krankenhaus zu verhalten.

BLUMEN UND PFLANZEN

Blumen in den Zimmern sind gestattet. Allerdings sollten es nicht mehr als zwei oder drei Sträuße gleichzeitig sein. Wenn Sie die Blumen in Ihrer Nachtruhe stören, raten wir Ihnen, sie ins Bad zu stellen.

WÄSCHEREISERVICE

Das Krankenhaus bietet einen Wäschereiservice für die eingewiesenen Patienten an. Um diesen Service zu nutzen, setzen Sie sich mit der verantwortlichen Person in Verbindung, die Ihnen die geltenden Tarife nennt.

>>>> 20

SMART TV.

Ihr Zimmer verfügt über ein Smart TV.

Um es nutzen zu können, müssen Sie vorher den fälligen Betrag am Automat in der zweiten Etage neben dem Pflegedienst entrichten (mit Ausnahme der VIP-Zimmer, in denen die Nutzung kostenlos ist)..

In der zweiten Etage können Sie an einem Automaten für sich und Ihre Begleitung Kopfhörer erwerben.

Die Fernbedienung des Fernsehers befindet sich am Kopfende des Bettes neben der Klingel.

KRANKENTRANSPORT

Wir verfügen über eigene Krankentransporte für alle Patienten, die dies benötigen. Wir führen geplante Transporte und Notfalltransporte durch.

Kontakt für Krankentransporte: +34 690 191919

ÜBERSETZUNGSSERVICE

Wir verfügen über Übersetzer für Englisch, Deutsch und Französisch.

TIPS UND EMPFEHLUNGEN FÜR IHREN AUFENTHALT

CAFETERIA

Das Zentrum verfügt in der ersten Etage über eine Cafeteria, die von Montag bis Freitag von 8:00h bis 15:00h und Samstag von 8:00 bis 13:00h geöffnet ist.

ZIMMERSERVICE

Die Poliklink Sra. del Rosario kümmert sich um alle Leistungen der Unterbringung (Frühstück, Zwischenmahlzeit, Abendessen und Bett für die Begleitung). Wenn Sie Fragen haben, setzen Sie sich mit dem Personal in Verbindung, das Ihnen auch die geltenden Tarife nennt.

>>>> 21

KRANKENHAUSAUFENTHALT

VERKAUFSAUTOMATEN

Verkaufsautomaten mit kalten und heißen Getränken und Nahrungsmitteln befinden sich Im Wartesaal vor der Intensivstation (3. Etage), im Bereich der Cafeteria (2. Etage) und im Notfallbereich. In der 2. Etage ist ein Automat mit Wasser und kalten Getränken vorhanden.

HINWEISE FÜR DEN UMWELTSCHUTZ

Die Poliklinik Ntra Sra. del Rosario hat sich dazu verpflichtet, sich ständig zu verbessern, um die größtmögliche Qualität der Leistungen mit Rücksicht auf die Umwelt zu bieten.

Wir hoffen auf die Mitwirkung unserer Patienten und deren Begleitung weil eine kleine Änderung unserer Verhaltensweisen und Gewohnheiten einen großen Einfluss auf unsere Umwelt hat.

Wir danken Ihnen für Ihre Mitwirkung und bitten Sie, folgende Empfehlungen zu beachten:

▪ Vermeiden Sie tropfende Wasserhähne. Benutzen Sie die Toilettenspülung effizient und benutzen Sie die Toilette nicht als Mülleimer.

▪ Verschwenden Sie kein Wasser und nutzen Sie nur die Menge, die Sie benötigen. Versuchen Sie, den Verbrauch zu optimieren.

▪ verhindern Sie, dass gefährliche Substanzen ins Wasser gelangen (chemische Produkte, Quecksilber usw.)

▪ Nutzen Sie das Tageslicht, solange es möglich ist. Schalten Sie das Licht in den Zimmern aus, in denen sich zu diesem Zeitpunkt niemand aufhält.

▪ Nutzen Sie die Heizung und Klimaanlage effizient. Öffnen Sie nicht die Türen und Fenster, damit keine warme oder kühle Luft entweicht.

▪ Wenn Flüssigkeiten überlaufen oder versehentlich verschüttet werden oder Fehler im Überwachungssystem für den Transport/Transfer von Flüssigkeiten auftreten, melden Sie dies bitte umgehend dem Krankenhauspersonal.

>>>> 22

HINWEISE

Verlassen Sie bitte nicht Ihr Zimmer, ohne dies vorher dem Pflegepersonal.

zu melden. Nutzen Sie Ihr Handy möglichst wenig im Krankenhaus, weil es die Funktion der Geräte beeinflussen könnte.

Im gesamten Krankenhausbereich gilt ein Rauchverbot. Bitte helfen Sie uns, diese Regelung zu erfüllen.

Nehmen Sie Rücksicht darauf, dass andere Patienten sich ausruhen. Vermeiden Sie es, laut zu sprechen und sich in den Fluren aufzuhalten. In der 2. und 3. Etage sind Wartesäle für die Familienangehörigen vorhanden.

Achten Sie auf die Lautstärke Ihres Fernsehens. Die Patienten brauchen Ruhe und Erholung. Bewahren Sie bei einem Notfall die Ruhe und folgen Sie den.

Anweisungen des Krankenhauspersonals und folgen Sie den Schildern.

>>>> 23

ZUGÄNGLICHKEIT

>>>> 24

ZUGANG | ZUGÄNGLICHKEIT

Bereich oder Station

Eigenschaften

Notaufnahme, Hauptempfang, Einweisung, Radiologie, Patientenauskunft, Intensivstationen

Hämodynamik, MKR, barrierefreie Toilette im Erdgeschoss

Zugang

Ohne Absätze Ebener Zugang

Türtyp

Schiebetür Klapptür

Türbreite Hindernisse

Türblatt mit 210 cm

Ohne Hindernisse

Türblatt mit 110 cm

Ohne Hindernisse

Barrierefreier Zugang

NOTAUFNAHME

Barrierefreier Zugang

MKR

>>>> 25 /////////////////////// ///////////////////////////////////////// //////////////////////////////////////////////////////////////////////////////////////////////////////////////////////////////////////////////////////////////////// ////////////////////////////////////////////////////////////////////////////////////////////////////////////////////////////////////////////////////////////////////

BEWEGEN

IM INNEREN |

Bereich oder Station

Notaufnahme, Hauptempfang, Einweisung, Radiologie, Patientenauskunft, Intensivstationen

Hämodynamik, MKR, barrierefreie Toilette im Erdgeschoss

Verfügbare Gangbreite

Größer als 90 cm

Rollstuhlgerecht

Aufzugmaße

Aufzuganpassungen

Hinweisschilder

Größer als 90 cm

komplett vollkommen

Groß, Maße über 100 x 125 cm

Knöpfe mit Blindenschrift, Leuchtschilder

Texte in Kontrastfarben, zugelassene Piktogramme

Ohne Hindernisse - -

Innenbereiche in der Poliklinik

>>>> 26 ////////////////////////////////////////////////////////////////////////////////////////////////////////////////////////////////////////////////////////////////////
/////////////////////////////////////////////////
Eigenschaften
////////////////////////////////////////
ZUGÄNGLICHKEIT

Bereich oder Station

Eigenschaften

Notaufnahme, Hauptempfang, Einweisung, Radiologie, Patientenauskunft, Intensivstationen

Hämodynamik, MKR, barrierefreie Toilette im Erdgeschoss

Öffentliche Toilette

Angepasst

Behindertengerechtes Zimmer Körperliche Behinderung und Sehbehinderung

Bad für MKR Teilweise angepasst

Angepasst - -

Personal mit Kundenkontakt ist in Umgang mit Kunden mit Behinderungen geschult

Festgelegte Verfahrensweisen für Menschen mit Behinderung

Induktionsschleifen

Nein - Nein

Behindertengerechte Toilette im Wartebereich der Intensivstation

• Türbreite: 80 cm

• Vorhandener Platz zum Drehen: Mindestdurchmesser von 1,50 m

• Vorhandene Breite neben der Toilette: >80 cm auf beiden Seiten

• Haltestangen an der Toilette: auf beiden Seiten, klappbar

• Waschbecken: ohne Podest und mit Einhandhebelmischer teilweise angepasste Toilette

• Gleiche Eigenschaften wie die teilweise angepassten Toiletten.

-

• Dusche: Duschbreite größer als 70 cm, Duschwanne mit einem Absatz kleiner als 2 cm.

• Duschzubehör: zugelassener Duschstuhl Feste, horizontale.

• Haltestange an der Wand neben dem Duschstuhl.

>>>> 27 //////////////////////////////////////////////////////////////////////////////////////////////////////////////////////////////////////////////////////////////////// ////////////////////////////////////////////////////////////////////////////////////////////////////////////////////////////////////////////////////////////////////

Name des Orts Bürgersteige

Mit niedrigem Bordstein, zugelassenem Belag und Standardbreite

Parkplätze: nicht

Ort: nicht

Leicht zu erkennen verfügbar verfügbar

>>>> 28 //////////////////////////////////////////////////////////////////////////////////////////////////////////////////////////////////////////////////////////////////////////////////////////////////////////////////////
Poliklinik Ntra. Sra. Del Rosario
Ort
A U S S E N A N L A G E N
Consultas Externas /////////////////////////////////// Außenbereich Poliklinik Ntra. Sra. Del Rosario
Exterior

RECHTE UND PFLICHTEN

Nach den Gesetzen 5/2003 vom 4. April über die Gesundheit auf den Balearen und 41/2002 vom 14. November über die grundlegenden Regelungen der Autonomie von Patienten und den Rechten und Pflichten über klinische Information Dokumentation in Zusammenhang mit den medizinischen Leistungen dieses Krankenhauses haben Sie die folgenden Rechte:

Grundrechte

Recht auf Privatsphäre

Recht auf Information

Recht auf Selbstbestimmung des Patienten

>>>> 29
4

1.- Grundrechte

• Das Recht auf medizinische Hilfe im Rahmen des Gesetzes 5/2003 vom 4. April über die medizinische Versorgung auf den Balearen.

• Das Recht auf Privatsphäre und Persönlichkeitsrecht, auf Menschenwürde und eine Behandlung ohne jegliche Diskrimination.

• Das Recht auf Informationen über unterschiedliche medizinischen Leistungen, die Sie in Anspruch nehmen können, und deren Kosten und Voraussetzungen für deren Anwendung.

• Das Recht auf Reklamation der medizinischen Leistungen und das Recht, Vorschläge zu unterbreiten und darauf eine Antwort gemäß der gesetzlichen Regelungen zu erhalten.

• Das Recht auf ausreichende, verständliche Informationen über die Faktoren, Situationen und Risiken für die Gesundheit einzelner Personen, sowie die allgemeine Gesundheit.

• Das Recht auf medizinische Information auf eine für Sie verständliche Weise in einer der offiziellen Sprachen der Autonomen Region und Sicherstellung, dass diese für die Patienten verständlich ist.

2.- Recht auf Privatsphäre

• Das Recht auf Vertraulichkeit aller Informationen in Zusammenhang mit Ihrer Behandlung und Aufenthalt oder Behandlung in dieser Einrichtung, sowie in den öffentlichen medizinischen Einrichtungen. Niemand darf ohne vorherige, gesetzlich geregelte Genehmigung auf Ihre medizinischen Daten zugreifen.

3.- Recht auf Information

• Sie haben das Recht auf eine umfassende und kontinuierliche verständliche Information in Wort und Schrift über Ihre Behandlung und die Diagnosen, die Prognosen und Behandlungsoptionen.

Sie können aus den folgenden Varianten wählen: Sie können auf Informationen verzichten, über die verschiedenen therapeutischen Optionen der Klinik wählen, die Behandlung verweigern und/oder eine andere Person ausdrücklich benennen, die solche Informationen erhält.

>>>> 32

• Wenn Sie über Diagnose- und Behandlungsmethoden informiert werden, die im Rahmen von Forschung und Lehre bei Ihnen angewendet werden, birgt dies in keinem Fall bekannte, zusätzliche Risiken für Ihre Gesundheit. In jedem Fall ist eine vorherige Information und schriftliche Genehmigung und die Genehmigung durch den Arzt und die Leitung der zuständigen medizinischen Einrichtung notwendig.

• Sie haben das Recht auf eine zweite medizinische Meinung entsprechend der gesetzlichen Regelungen, um das grundlegende Verhältnis zwischen Arzt und Patienten zu stärken und die Behandlungsmethoden zu ergänzen.

• Sie haben das Recht auf eine Entlassung aus dem Krankenhaus nach Beendigung Ihres Aufenthalts in einem angemessenen Zeitraum.

• Die vom Patienten dazu berechtigten Personen haben das Recht auf Information auf die gleiche Weise wie der der Patient.

4.- Recht auf Selbstbestimmung des Patienten

• Alle Handlungen im medizinischen Umfeld des Patienten erfordern eine freie und freiwillige Zustimmung der betroffenen Personen, nachdem alle behandlungsrelevanten Informationen vorliegen und alle Optionen des Falls bewertet wurden.

• Sie dürfen die Behandlung außer in den gesetzlich geregelten Fällen verweigern. Ihre Verweigerung der Behandlung müssen Sie schriftlich geltend machen.

• Sie haben das Recht auf Information über jegliche Handlungen und verfügbaren Informationen in Bezug auf Ihre Gesundheit, wobei die gesetzlich festgelegten Ausnahmen ausgeschlossen sind.

• Sie haben das Recht auf eine Bestätigung aller Ihrer Behandlungen in schriftlicher Form oder in einer technisch angemessenen Weise.

• Sie haben das Recht auf Herausgabe aller Unterlagen, die Ihren Gesundheitszustand bestätigen.

• Sie haben das Recht auf Zugriff auf Ihre Patientenakte und eine Kopie aller darin enthaltenen Daten, ohne dass die Rechte Dritter oder die Vertraulichkeit der Daten beeinträchtigt oder dass den an der Erstellung beteiligten Fachkräfte Nachteile entstehen.

>>>> 30
>>>>

• Sie haben das Recht, im Voraus Ihren Willen über die Pflege und Behandlung Ihrer Gesundheit oder, im Falle des Todes über Ihren Körper und dessen Organen, zu äußern, so dass dieser in Situationen umgesetzt wird, in denen Sie ihn nicht persönlich ausdrücken können.

5.- Im Zusammenhang mit den meidzinischen Leistungen dieses Krankenhauses haben Sie die Pflicht:

• Alle allgemeinen Vorschriften medizinischer Art, die für die gesamte Bevölkerung gelten, sowie die spezifisch für medizinische Leistungen geltenden zu erfüllen

• Die Einrichtungen so zu nutzen, dass sie in einem angemessenen bewohnbarem, hygienischen und sicherem Zustand bleiben, (5/ 03, 24)

• Auf eine angemessene Nutzung der Ressourcen achten, die vom Gesundheitssystem geboten werden, hauptsächlich solcher, die sich auf die Nutzung von Leistungen, Verfahren bei Arbeitsunfähigkeit, permanenter Behinderung und therapeutischer und sozialer Leistungen beziehen. (5/ 03, 24).

• Alle Regeln und Verfahren über Nutzung und Ausübung der Ihnen per Gesetz gegebenen Rechte einhalten.

• Die im Krankenhaus festgelegten Regelungen und das Personal, das diese Leistungen dort erbringt, respektieren.

• Ein entsprechendes Dokument zu unterschreiben, wenn Sie eine medizinische Behandlung nicht annehmen und diese nicht wünschen, in dem Sie ausdrücklich erklären, dass Sie ausreichend informiert worden sind und das vorgeschlagene Verfahren verweigern.

• Dem medizinischen Personal möglichst früh mitzuteilen, dass Sie eine vorher geplante Leistung nicht nutzen werden, um eine angemessene Planung der Leistungen zu ermöglichen, sondern auch, um anderen Patienten auf der Warteliste diese Behandlung zu ermöglichen.

• Mit den Gesundheitsbehörden bei der Vorbeugung von Krankheiten zusammenzuarbeiten.

• Informationen über Ihren physischen Zustand oder Ihre Gesundheit wahrheitsgemäß zu geben und auch bei deren Erlangung zusammenzuarbeiten, besonders wenn dies aus Gründen des öffentlichen Interesses oder der medizinischen Behandlung notwendig ist.

• Jegliche Anomalien zu melden, die Sie in der Struktur, Organisation und Funktionieren der Klinik und den medizinischen Leistungen beobachtet haben.

>>>> 31

NOTFÄLLE UND NOTAUSGÄNGE

>>>> 32

IN NOTFÄLLEN

Das Krankenhaus verfügt über 9 Zugänge und 6 Notausgänge.

• ERDGESCHOSS. (2) Eingang über Notaufnahme und Zugang zur Hämodynamik

• Etage 1 . (3) Haupteingang, Cafeteria und chirugisches Lager.

• Etage 2 (2) und Etage 3 (2) Treppenaufgang über Calle Archiduque Luis Salvador und über Vía Romana.

9 ZUGANGSTÜREN 6 NOTAUSGÄNGE

>>>> 33
>>>> 34 TOURISTISCHE INFORMATIONEN ÜBER IBIZA https://turismo.eivissa.es/ http://ibiza.travel/ https://www.descubreibiza.com/es Touristische Dienstleistungen H24 Agentur Kontakt: reservas@h24agency.es Unterkunft, Ausflüge, etc.33

APP GRUPPE POLIKLINIK: Laden Sie sich unsere App auf Ihr Handy, mit der Sie auf das Patientenportal zugreifen und weitere nützliche Informationen, z. B. Nachrichten, Fragen, Fachärzte usw. erfahren

Suchen Sie in Ihrem App-Shop nach „Grupo Policlínica“.

PATIENTENPORTAL: Im Patientenportal können Sie auf Ihre Daten und Berichte oder Untersuchungsergebnisse zugreifen und Termine mit Ärzten vereinbaren oder absagen. Sie gelangen zum Portal über unsere App oder unsere Internetadresse: https://portalpaciente.grupopoliclinica.es:4443/

: 971 30 23 54
Tel. www.grupopoliclinica.es >>>> >>>> F1901150002 v.5_DE
C/ Vía Romana, s/n - 07800 Ibiza
Poliklinik Nuestra del Rosario, immer an Ihrer Seite, wenn Sie uns brauchen.

Turn static files into dynamic content formats.

Create a flipbook
Issuu converts static files into: digital portfolios, online yearbooks, online catalogs, digital photo albums and more. Sign up and create your flipbook.