

PORTFOLIO
Greta Yue 2023-2025

Education
Greta Yue
Email: greta.yue1015@gmail.com
Phone: +44 07436327884
Skills 15/10/2005






Bartlett School of Architecture, University College London
MEng in Engineering and Architecture Design
Project & Workshop
Smart Shelter Foundation Workshop
Led a team of 6 over 4 weeks to develop a climate responsive rammed earth settlement concept for displaced communities in Somalia, awarded Best Design Award.
Pingyao Heritage Conservation Camp – REMPART
Supported the conservation of Guandi Temple and a Yuan dynasty residential façade, producing AutoCAD measured survey drawings and on site condition records.
Digital Future Workshop – ZHA CODE & Tongji University
Collaborated under Shajay Bhooshan and the ZHA CODE team on AI assisted parametric design workflows, developing an MLP driven SDF morphogenesis system and final exhibition visualisations.
Internships
Project Planning Assistant, Zhuhai Design Center
Supported curatorial planning by producing spatial layouts, exhibition graphics and 3D venue models, coordinating communication between curators, designers and contractors.
Design Collaborator, Zhuhai Beijing Normal University
Developed the visual identity, packaging and communication concept for Starlight Slides within a Future Seeds Fund supported interdisciplinary biochip based product design project.
Sep. 2023 - Jun. 2027
London, UK Online

Oct. 2025 - Nov. 2025
Jul. 2025 - Aug. 2025
Pingyao, China Shanghai, China

Jun. 2025 - Jul. 2025
Jun. 2024 - Aug. 2024
Zhuhai, China
Jun. 2023 - Nov. 2023
Zhuhai, China























01. Porous Engine
Site: Hackney Marshes Filter Bed, London
Grade: Year 2
Date: 2025.01-05



This project reimagines a distillery as a porous engine. With concept of "erosion" and "machinery", materials, shaping an educational, productive, and public environment.
The form is carved through Boolean subtractions to respond to light, wind, and circulation. distillation process spatially legible.








Secondary Beam Densification
Diagonal Bracing Tension Rod


"machinery", the building is organised around three interlocking flows for visitors, workers, and

circulation. Pipes, ducts, and machinery are exposed and integrated into the architecture, making the
ETABS modelling was used to analyse floor deflection generated by the eroded slab geometry. Several structural strategies were tested to improve stiffness while maintaining architectural clarity.
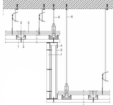
Increasing secondary beam density strengthened the grid but added weight and did not sufficiently reduce deflection. Diagonal bracing with hanging columns improved structural stability, yet visually disrupted the façade. The final solution introduced tension rods suspending the floor plate, concealed within façade glass joints to stabilise the structure while preserving spatial clarity.








02. Scalar Spire
Site: Huangpu riverside, Shanghai, China
Grade: Year 2
Date: 2025.6-7.
Scalar Spire is a computational design research workshop with the ZHA CODE team, exploring tower and machine learning.
A C# driven generative pipeline was used to define MLP model, and produce SDF based massing variations outputs were refined into mesh geometries and





project developed during the Digital Future tower morphogenesis through Signed Distance Fields
define design parameters and constraints, train an variations through latent space exploration. Selected visualised as a family of tower proposals.



HAREER
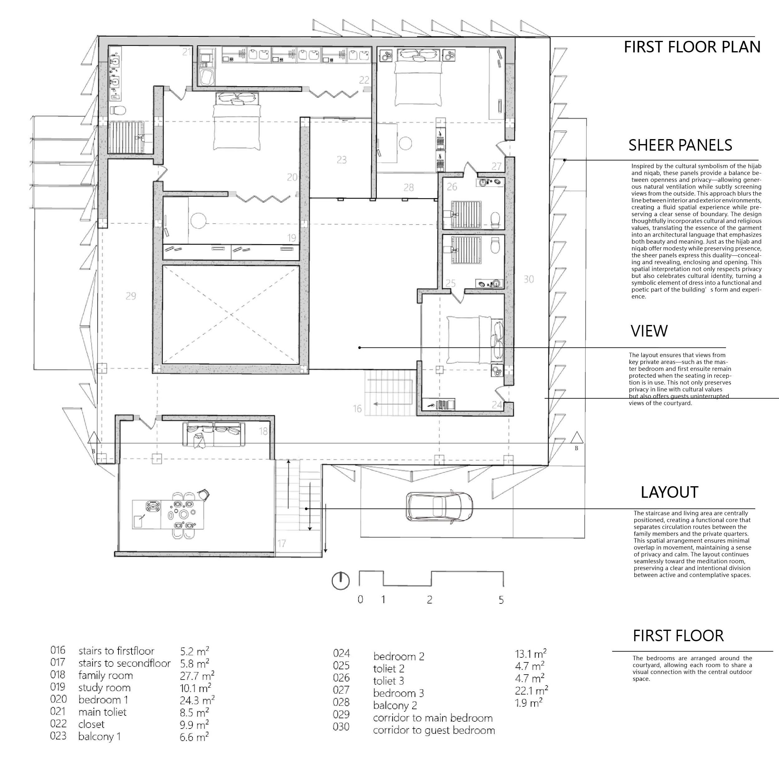
03. House of Future
Site: Dubai, EAU
Grade: Year 2
Date: 2025.02-04
This project proposes a single family housing prototype for contemporary living in the UAE, designed for a standard 450 m² plot. The scheme explores a compact residential model that can accommodate future expansion, while responding to local social patterns, privacy requirements, and extreme climatic conditions.











Homes are arranged around shared landscape spaces that encourage interaction while preserving privacy. The modular layout allows houses to expand gradually as families grow.


The core design concept is derived from the Arabic cultural idea of the “veil”, or hareer. This idea is reinterpreted architecturally as a rotatable curtain-like façade that wraps the house. Acting as both enclosure and filter, the screen mediates light, privacy, and visibility while creating a layered threshold between interior life and the surrounding landscape.






The veil façade also functions as a passive environmental system. Adjustable panels provide shading and reduce solar gain, while filtered openings allow controlled airflow through the building envelope.
Behind this protective layer, the house is organised around a central courtyard and a full height atrium to introduce daylight and promote natural ventilation. Together, the layered façade, shaded courtyard, and vertical air movement create a cooler microclimate and a sequence of living spaces that shift between openness and enclosure. This allows the home to adapt to seasonal change and different patterns of inhabitation.







04. Weather Bartender
Site: Hackney Marshes Filter Bed, London, UK
Grade: Year 2
Date: 2024.10-12.

Weather Bartender is a site-specific interactive installation at Hackney Marshes Filter Beds that translates short-term weather changes into a drinkable output.
The system has three parts: a rack holding multiple syringes of different liquids, environmental sensors sampling temperature, humidity and wind, and a motor driven dispensing mechanism controlled by an Arduino.










Sensor data accumulates over time and triggers dispensing events. Two stepper motors drive the process: one selects the syringe by rotation, while the other pushes a fixed unit of liquid. The released units build up to produce a final drink that represents weather variation within the recorded period.






05. The Wind Redirector
Site: Llwyngwern Quarry, Pantperthog, Uk
Grade: Year 3
Date: 2025.9-11.
Wind Redirector is a site specific pavilion proposal for the Centre for Alternative Technology in Wales that treats wind as a primary design driver.The pavilion redirects and reshapes prevailing winds to support local pollination and seed dispersal, strengthening native habitats and improving ecological resilience on site.



Findings from the tests were translated into three typologies, Jet, Diffusion and Chimney, and further refined into smooth minimal surface forms for the final pavilion proposal.



























The site is defined by exposed quarry by topography. Site condition and habitat point for airflow capture and redirection.
































terrain, strong prevailing winds and distinct vegetation zones shaped habitat patterns were mapped to identify an optimal upwind intervention redirection.




















