1715 SOUTH BOULEVARD

![]()


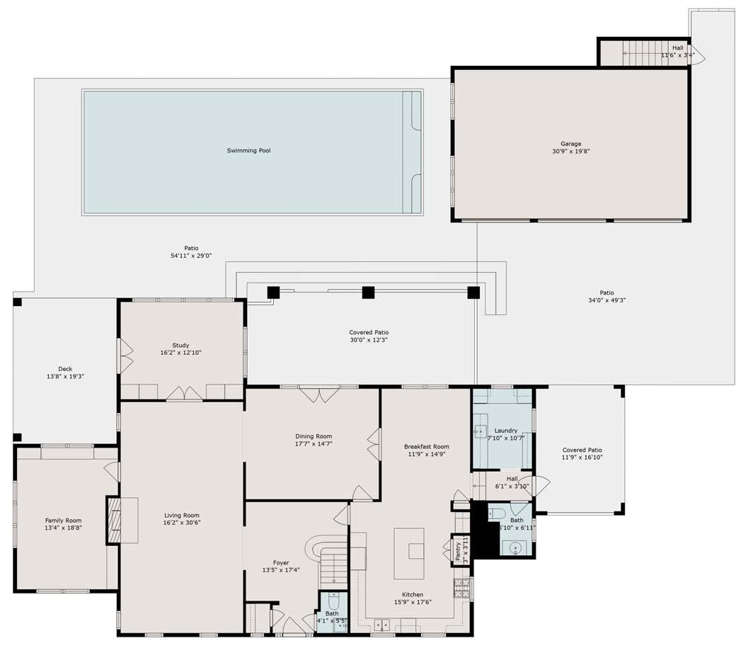
Sitting pretty on beautiful grounds and on a majestic oak-lined boulevard is 1715 South Blvd. Designed by architect J. W. Northrup, Jr. in 1926 (HCAD). On almost one-half acre, this dreamy home has been thoughtfully updated to retain the charm of the old with all the modern conveniences. This is your chance to live on one of the most beautiful streets in Houston. Two-story entry with gracious staircase, dramatically proportioned formals, walls of windows and French doors, remodeled cook’s kitchen, covered porch overlooking gardens and pool, spacious primary bedroom with sitting room, third floor game room and guest house are just a few of the stand-out features. Formal living and dining rooms, five bedrooms, four full baths plus two powder baths. The guest house offers two bedrooms, one bath and full kitchen. In close proximity to The Museum District, Hermann Park, Houston Zoo, Rice Village, Rice University, Medical Center, downtown and minutes to the Galleria. All per Seller.
Lot 2 1,658 sf
House 4 ,605 sf
Built 1 926
Bed/Baths 5/4+
Stories 2
Room Dimensions
















IN EVERY DETAIL











