Auditorium Theatre of Llinars del Valles
Alvaro Siza Vieira & Aresta with G.O.P.
Barcelona, Spain
2015

Jared Gray IV

![]()
Auditorium Theatre of Llinars del Valles
Alvaro Siza Vieira & Aresta with G.O.P.
Barcelona, Spain
2015

Jared Gray IV

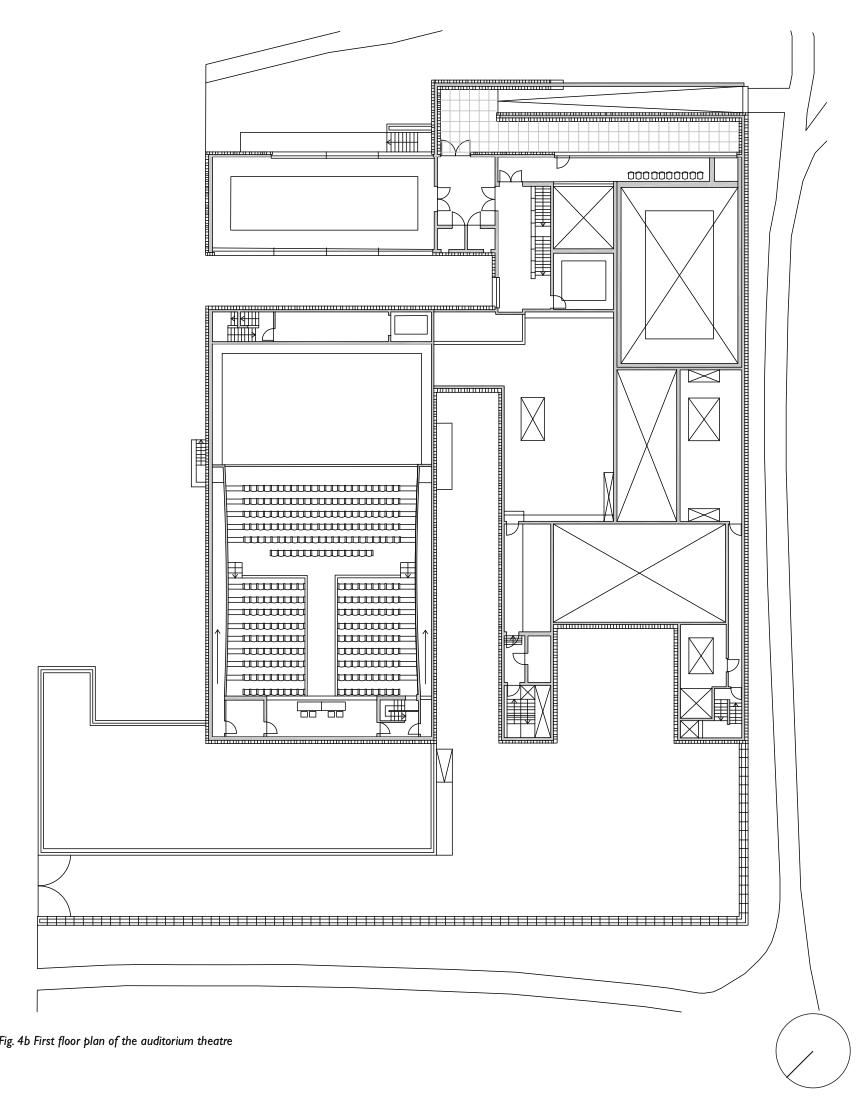
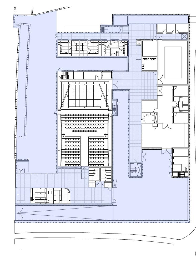
The Auditorium Theatre by Alvaro Siza is located in the town of Llinars des Valles just outside the city of Barcelona, Spain. Siza collaborated with a local firm (ARESTA) in Llinars des Valles in order to learn the local customs and their vernacular architecture. The Auditorium Theatre was part of a larger plan (Can Marquès plan) which would turn an agricultural house into a music school, an auditorium theatre, and an apartment complex (was never completed). The intention of this plan was to make the theatre and music school the cultural heart of Llinars des Valles. The municipality had suggested concrete as the main material for the buidling but Siza insisted on using orange ceramic brick, which is a commonly used building material for most of the buildings in the area. He added that by using materials of the region it will unify the building with its context. The interior tiles are made out of locally mined natural stone (creme color- expresses form, light, and spaces well). Siza also chose to use materials and techniques that relate the auditorium theatre to the vernacular architecture of Catalonia. For Siza, the inspiration for this project was: 1.) Environment/Place 2.) Program/Function 3.) Relation with Catalan Culture. He attempts to emulate the mountains in the distance with the stepping and stacking of cubic forms. They seem to have a randomness but actually follow a grid system. Siza plays a game of volumes versus cavities and hiding versus revealing with the way he adds and subtracts from the building mass. The exterior is very orthagonal and cubic which contrasts the interior as it’s very light and organic. Siza designed the entrance as an agora or an open space. The Auditorium Theatre is more like one building with four buildings in it. They are split according to function: 1.) Foyer 2.) Theatre Space 3.) Dressing rooms and Rehearsal Spaces 4.) Offices and Technical Spaces. “The stage box” is the largest volume of the building and towers over the rest of the building mass (three floors), all program is situated according to the stage box. Linking these different functions is ample amounts of routing space. Routing space plays an important role in guiding visitors from one area to another while concealing and revealing part of the building. Siza achieves this with the way he places the volumes of different spaces, creating subtle thresholds by altering the ceiling heights. Lastly, Le Corbusier’s term, Promenade Architecturale is a key concept used in Siza’s design which is when the buildings intent is gradually revealed over time, rather than at a single entrance. The building is a series of revelations and concealments, allowing the visitor to experience the space based on Alvaro Siza’s objective. It is important to note that the cloud-like curvature of the ceiling in the theare space is acoustically important and a juxtapostion to the exterior.




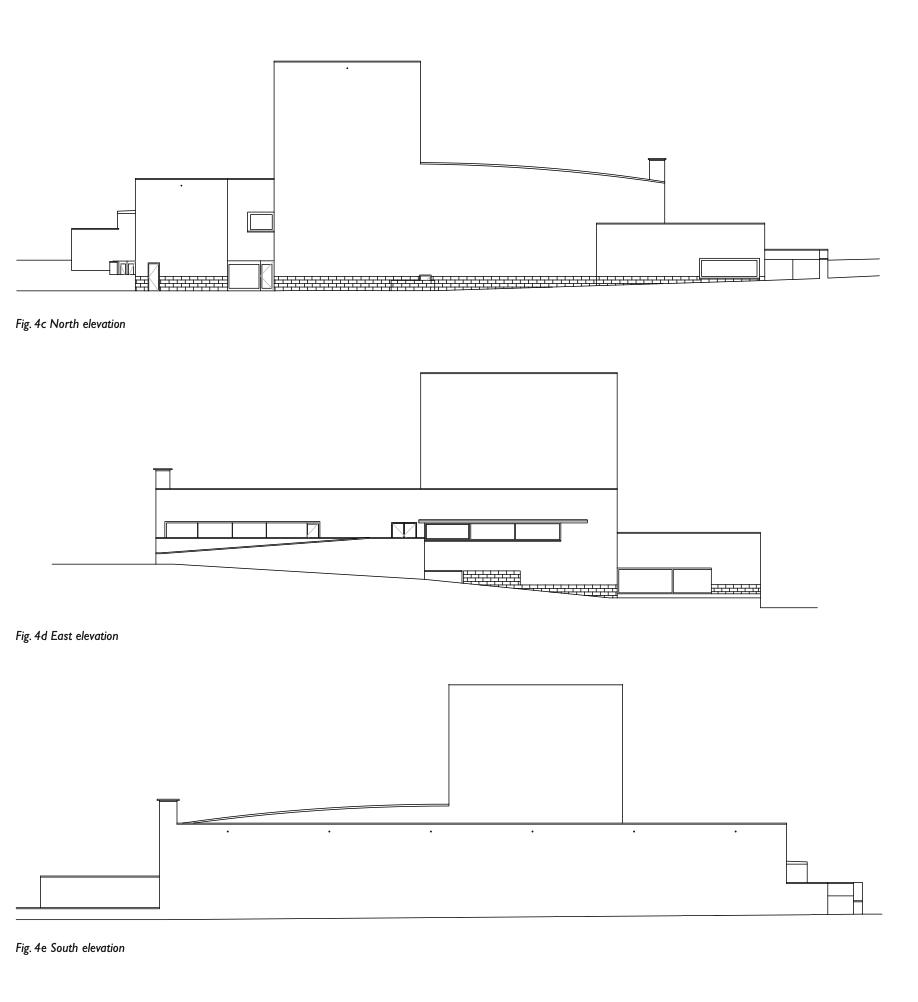
South Elevation pictured on top with the West Elevation pictured below shows how the buildings form is constantly hiding and revealing itself as you take in new perspectives

This image of the agora highlights the stepping mass of the building while also bringing attention to how the voids of the building glow at night, in contrast they are not noticable during the day
Images highlights the cubic forms used and the great shadows they produce. Image also highlights how the buildings form steps like the mountains in the background



This image with context captures the essence of the project with stepping of volumes meant to mimic the mountains nearby. The image also shows how Siza played with adding and sub-
The agora or entryway is pictured above while also highlighting the massive volume of the stage box. It truly has a towering prescence. You can also notice how Siza choses to ‘wrap’ the ground material up the base of the building

Courtyards filter the openings like intimacy layers, enabling diverse points of access to the building in accordance to its users: artists, workshop participants, staff and theater goers.
The stage box is soft and organic with its acoustic ceiling which spans 18.5 meters of curvilinear, cloudlike lightness. This image also highligthts the promenade architecturale entry/ exit corridor
The main foyer before entering the theater is clad in tiles made out of locally mined stone and Siza chose to have them ‘wrap’ up the walls. White walls and celings with indirect lighting add to the organic feel



Siza chose to make the room white and gray to express form, light and space well, it is also a nice contrast to the light color of the wood. The large curvature acts as an acoustic ceiling but also as an indirect light

Initial sketch of the auditorium theatre with context by Siza captures the essence of the project with stepping of volumes meant to mimic the mountains nearby

Image shows relationshop between the building form and its context, Siza designed the building mass to blend in with the layering of the mountains in the background
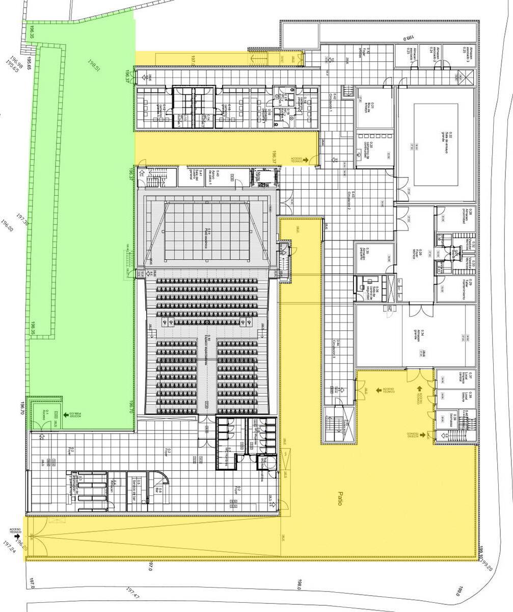
Image shows how Siza designed the main entryway as an agora or open space alongside the main road (green) and the yellow is for more private entrances (for artists, workshop goers)





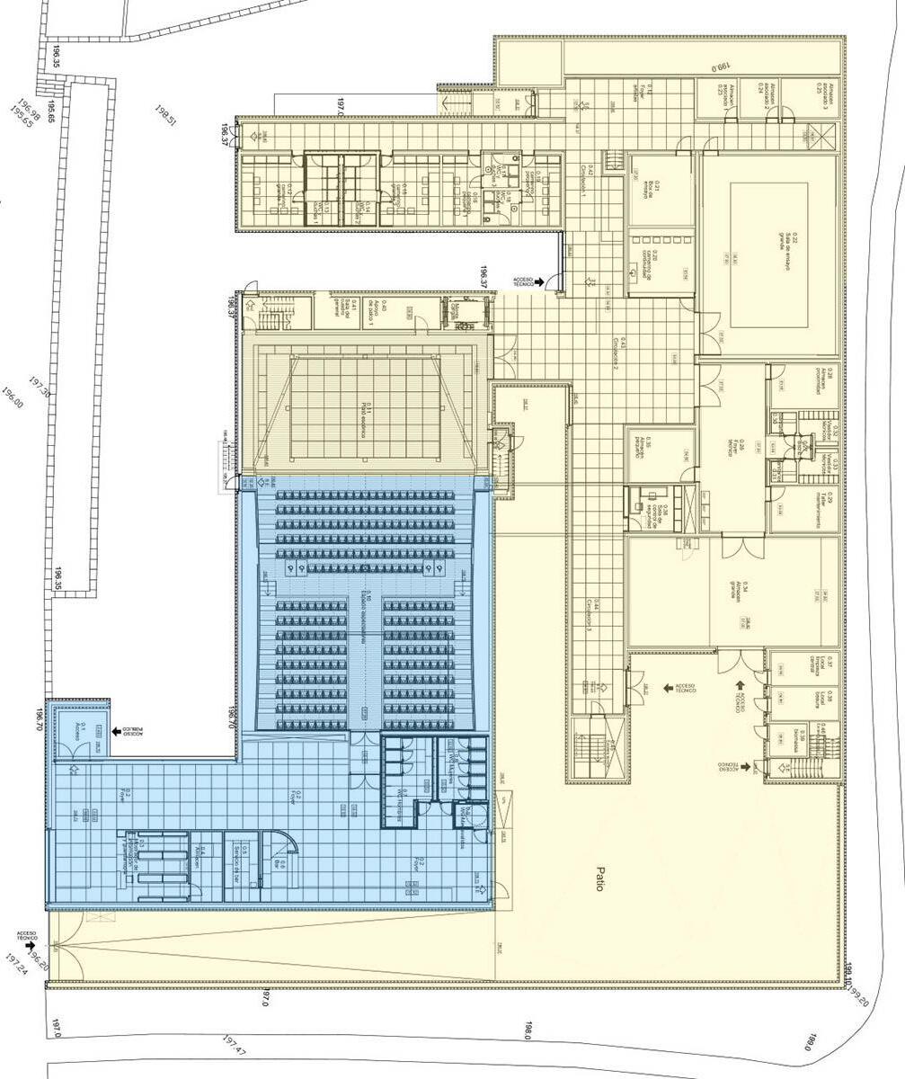
4 Buildings in 1: Functions
1.) Foyer
2.) Theatre Space
3.) Office/ Technical Spaces
4.) Dressing Rooms (numerically ordered darkest to lightest)

Public vs. Private Blue- Public Yellow- Private

Circulation Diagram

The design follows a grid system of cubic forms

Siza experimented with subtracting from the rectangular volume


4 Buildings in 1: Functions 1.) Foyer
2.) Theatre Space
3.) Office/ Technical Spaces
4.) Dressing Rooms (numerically ordered darkest to lightest)

Public vs. Private Blue- Public Yellow- Private

Offices

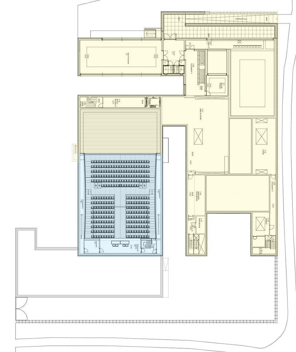
4 Buildings in 1: Functions Circulation Diagram
Foyer Theatre Dressing Rooms

Routing space is highlighted in light blue, plays an important role in guiding visitors from one part of the building to another while concealing/ revealing parts of the building. This is the negative space between the main four ‘function boxes’

The diagram above describes the performer-audience relationship with the green being the audience and the yellow being the performer space


This Section-Cut highlights the performer-audience relationship, the curvilinear ceiling and the massive volume of the stage box
Siza chose to make the room white and gray to express form, light and space well, it is also a nice contrast to the light color of the wood. The large curvature acts as an acoustic ceiling but also as an indirect light fixture

These elevations illustrate how as you walk around the building the building form drastically changes, it is constantly revealing and hid-


Siza chose to use ceramic brick as the face for the building since it is a commonly used building material in the area. He also wanted an earth tone to blend in with the surrounding landscape.
Siza chose to use a light creme colored stone which was locally mined, the material ‘wraps’ up the bottom half of the walls and counters. The use of whites and grays help highlight light, space, and form of the interior


This diagram shows the varying heights of the different cubic volumes. By altering the building height in different areas it creates subtle thresholds that allow the visitor to experience the concealing/reavealing of the Auditorium Theatre
Choupina, A. (2016, February 04). Llinars Auditorium by Álvaro Siza Aresta Arquitectura. Retrieved September 20, 2021, http://aasarchitecture. com/2016/02/llinars-auditorium-by-alvaro-siza-aresta-arquitectura.html
Auditorium Theatre of Llinars del Valles / Álvaro Siza Vieira Aresta G.O.P. (2016, February 04). Retrieved September 20, 2021, http://www.archdaily. com/781571/auditorium-theatre-of-llinars-del-valles-alvaro-siza-vieira-plus- aresta-plus-gop
Learning from a building: Auditorium Theatre
Deckers, S. W. J. (Author). 26 Jun 2018
Kiser, Kirsten. “Auditorium Theatre- Llinars Del Valles.” Barcelona: https://www.arauacustica.com/files/noticias/pdf_esp_1231.pdf, February 15, 2016.
Chahine, Aline, Please enter your name here, and October 23. “Auditorium Theatre Of LLINARS Del Valles / Álvaro SIZA Vieira + Aresta + G.o.p.” Architecture Lab, April 6, 2017.
https://www.architecturelab.net/auditorium-theatre-of-llinars-del-valles-alvaro-siza-vieira-aresta-g-o-p/.