






![]()









2022-built bayfront masterpiece with deeded beach access and an elevated pool and spa, perfectly positioned on the peaceful south end of Estero Island. Located on an extra-wide homesite with a double-wide driveway, this exceptional coastal retreat offers 120 feet of waterfrontage and sweeping, unobstructed bay views A true beach and boater’s paradise, the property includes dual boat lifts a covered 16,000 lb lift and an additional 10,000 lb lift and is located less than a quarter mile from the sugar-sand shores of Fort Myers Beach
Designed for seamless indoor-outdoor living, the home features a Galvalume metal roof, hurricane-impact windows and doors, electric storm shutters, and electric sliders The elevated saltwater pool and spa can be heated by gas or electric and features a tanning ledge and water elements, while the fully equipped summer kitchen with swinging chairs and fireplace creates the ultimate entertaining space. The outdoor living area also includes a spacious yard, covered lanai, and an expansive dock ideal for fishing and waterfront relaxation
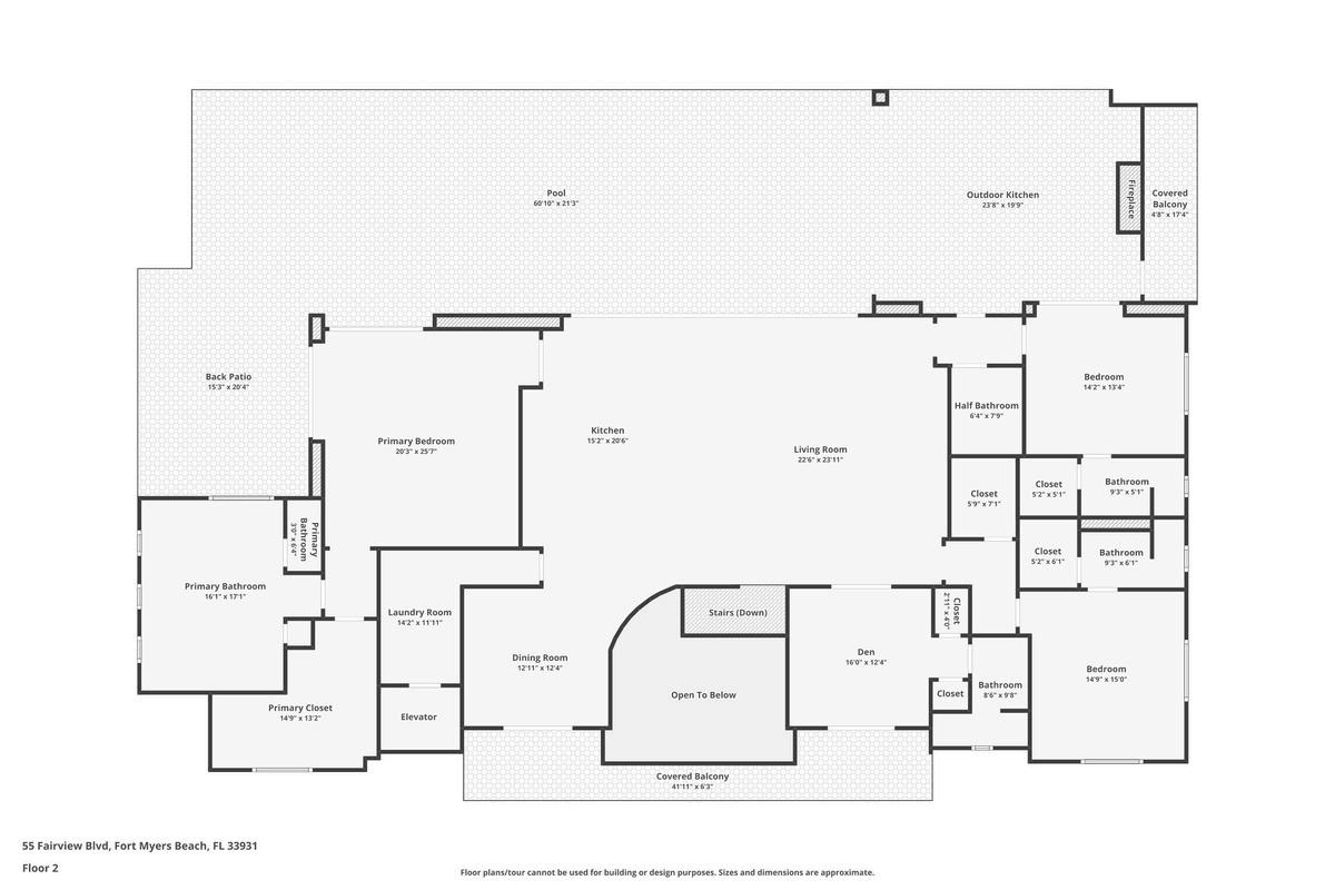
Inside, approximately 3,481 square feet of living space includes 3 bedrooms plus an office (or optional 4th bedroom), 4.5 bathrooms, ground-floor flex space, elevator, and garage space for 10+ vehicles The coastal contemporary interior features beautiful oak flooring, soaring ceilings with custom details, a grand wood staircase, and abundant natural light throughout
The chef’s kitchen showcases illuminated Cristallo countertops and backsplash, white and ocean-blue cabinetry, high-end appliances, and a butler’s pantry The primary suite serves as a private retreat with direct access to the pool deck, stunning water views, a large custom closet, and a spa-like bath featuring Cristallo counters, dual vanities, a soaking tub, and an oversized glass-enclosed shower with multiple showerheads Additional highlights include an automatic whole-home generator, two tankless water heaters, electric interior shades, Lutron lighting system, and surround sound, all ideally located near dining, Lovers Key and Bonita Beach, and just minutes from Times Square and the vibrant energy of Fort Myers Beach.







Exceptional 2022-built bayfront residence with deeded beach access, 120 feet of waterfrontage, dual boat lifts, and breathtaking unobstructed bay views on the peaceful south end of Estero Island.






