

![]()


GRAHAM FAUPEL MENDENHALL & ASSOCIATES




Set on a peaceful stretch of land bordering the Elk Refuge, this 6,735-square-foot log home offers a refined take on mountain living, just minutes from the heart of Jackson. Carefully reimagined, the property showcases a blend of thoughtful design and functional updates that honor its surroundings. A newly designed landscape transforms the outdoor experience with the addition of a pond and a recirculating stream. Berms have been repositioned and reseeded with native plants, ensuring the property blends effortlessly into the natural environment.









Inside, a modern refresh brings new life to the home, with updated furnishings and finishes that elevate the interiors while maintaining their warm, inviting character. Expansive windows capture sweeping views of the Tetons, making the outdoors an integral part of the living space.








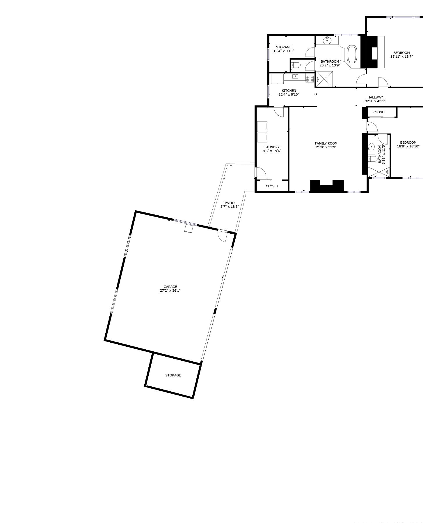
The 1,300-square-foot primary suite offers the owner a private space with a luxuriously large bathroom, walk-in closet, and expansive windows showcasing outstanding views of the Tetons.















Enhancing the property further, a 999-squarefoot guest house is currently under construction, with completion scheduled for Fall 2025. Thoughtfully designed, it will include two bedrooms, two bathrooms, and a private patio, offering the perfect space for visitors. Groundwork is already underway, marking the next chapter of this exceptional property.




• Year Built: 1998
•Remodeled: 2021
•5.15Acres
•Neighborhood: Nowlin Mountain Meadows (National Elk Refuge Inholding)
•Expansive Teton & Elk Refuge Views
• 5 Bedrooms | 5.5 Bathrooms
• 6,735 sqft
• Stone Floors
• Media Room with Projector
• Bunk Room
• Office
• Wetbars x2
• 3 Car Heated Smart Garage -EV Charger
• Five Fireplaces -Woodburining: 4 -Electric: 1
• Stone Patio with Hot Tub, Cold Plunge, and Gas Fire Pit
• Covered Stone Porch
• Private Pond
• Extensive Landscaping
• Gravel Driveway with a Paved Motor Court
Kitchen:
• Refrigerator: Sub-Zero
• Oven: Viking (x2)
• Stove: Viking
• Microwave: GE
• Dishwasher: KitchenAid
Kitchenette:
• Microwave: GE
• Refrigerator: KitchenAid
• Dishwasher: KitchenAid
• 4 Burner Stove
Laundry:
• Washer/Dryer: LG x 2
• Scheduled for Completion in Fall 2025
• Groundwork Underway
• 999 sqft
• 2 Bedrooms
• 2 Bathrooms
• Private Patio Systems
• Lutron Lighting System (JH AV)
• Heat: Forced Air Ducts, Hydronic In-Floor
• Sewer: Septic
• Central Air (Hoback HVAC)
• New Sonos System
• New Projector in Media Room
• One of the Few Homes Located Within the National Elk Refuge
• Heated Floors
• Steamer added to Primary Suite Shower
• Private Pond
• 4 Miles from The Town Square Fees
• Taxes: $70,038.67 (2024)


= 1'-0"








Provided as a courtesy of Graham-Faupel-Mendenhall Compass Real Estate 80 W Broadway PO Box 4897
Jackson, WY 83001
Mobilegfm@compass com http://www grahamfaupelmendenhall com
Non-Public: No Start Showing Date: 01/27/2025
House Style: 1 Story Year Built: 1998

Last Major Remod: 2021 Main House Total Bedrooms: 5
Main House BathsHalf: 1 Main House Total Baths: 6
Main House Baths-3/4: 0
Ownership: Single Family Main House 2nd Flr & Above SqFt: 0 Main House-Main Level SqFt: 6,735
Main House Garage Type: Detached Main House # Stalls: 3
House-BG SqFt
Guest House Bedrooms: 0 Guest House Baths: 0 Guest House Garage SqFt: 0 Guest House SqFt: 0
Overall Garage SqFt: 1,210
Overall Livable SqFt: 6,735 Acres: 5 15
Lot Size: Senior Community YN: Horses Allowed: Yes # Horses Allowed: 2
List Price Per SqFt: 2,449 89 Sold Price Per SqFt:
Common Name:
County: Teton
Area: 08 - Town of Jackson Subdivision: Nowlin Mountain Meadows Lot #: 4 Zoning: Rural
Flood Zone: Flood Class:
Ann HOA Fee $: 1,000 Association Fee Frequency: Annually Taxes: 70,038 60 Tax Year: 2024
Latitude: 43 509106 Longitude: -110 691833
Possession: At Closing
In-House Listing #:
Legal Description: LOT 4, NOWLIN MOUNTAIN MEADOW SUBDIVISION
Exclusions:
Public Remarks: Set on a peaceful stretch of land bordering the Elk Refuge, this 6,735-square-foot log home offers a refined take on mountain living, just minutes from the heart of Jackson Carefully reimagined, the property showcases a blend of thoughtful design and functional updates that honor its surroundings A newly designed landscape transforms the outdoor experience with the addition of a pond and a recirculating stream Berms have been repositioned and reseeded with native plants, ensuring the property blends effortlessly into the natural environment Inside, a modern refresh brings new life to the home, with updated furnishings and finishes that elevate the interiors while maintaining their warm, inviting character
Water: Well
Sewer: Septic (existing)
Basement: Unfinished
Construction: Log
Exterior: Log; Masonry
Furnished: Furnished
Ground Flr Mstr Bdrm: Ground Flr Mst Bdrm: Yes
Amenities: Deck; Fenced; Fire Sprinkler; Garage Door Opener; Gas Heating Stove; Guest House; Handicap Access; Hi-Speed Internet; Hot Tub; Landscaped; Porch; Satellite Dish; Sauna; Security System; Sprinkler System; Storage Shed; Water Feature; Wet Bar; G-Veh Charge Station
Agent Owned: N
Seller Concessions:
Listing Price: 16,500,000
Property Features: Adjacent Open Space; Adjacent Pub Land; Cul de Sac; Electric to Property; Fenced; On Gravel Road; Phone connected to Home; Phone to Lot Line; Pond; Trees; Year Round Access
Interior Trim: Alder
Hardwood Floors: Stone Roof: Shake; Wood
Fireplace: Electric #: 1; Wood #: 1
Air Conditioning: Central Air
Fuel Type: Electric; Propane
Propane Tank: Owned
Heat: Forced Air Ducts; Hydronic in-floor
Appliances: Dishwasher; Disposal; Dryer; Freezer; Microwave; Range/Oven/Cooktop; Refrigerator; Washer
Driveway: Concrete; Gravel
View: Grand Teton View; Gros Ventre Mtn View; Mountain View; Sleeping Indian View; Snow King; Teton View; Water View; Scenic
Special Rooms: Bonus Room; Eat-in Kitchen; Mud Room; Pantry; Storage; Study; Theater Room
Lifestyle: Country Living; Hunting; Mountain; Outdoor Recreation; Ranch/Farm
LO: Compass Real Estate Information is deemed to be reliable, but is not guaranteed. © 2025 MLS and FBS. Prepared by Graham-Faupel-Mendenhall on Tuesday, January 28, 2025 9:59 AM. The information on this sheet has been made available by the MLS and may not be the