21CUSHINGROAD
Wellesley,Massachusetts




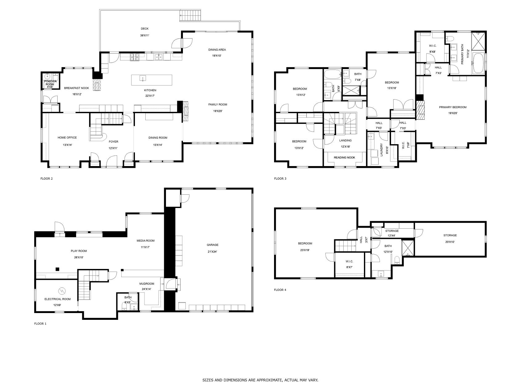
21CushingRoad,Wellesley
Discover luxury and sophistication in this renovated/expanded five-bedroom, six-bathroom
Cliff Estates masterpiece Set on a manicured lot, this home offers four levels of meticulously designed living space. The grand foyer leads to elegant living and dining areas with custom millwork, rich hardwood floors, and oversized windows The chef?s kitchen boasts an oversized island, top-tier appliances, a wet bar, and a cozy fireplace, flowing into a spacious family room beaming with natural
sun lighting and a statement fireplace. Enjoy a first-floor office, a well-appointed mudroom, and a three-car heated garage for added convenience The luxurious primary suite features a spa-like bath, walk-in closets, and a fireplace. Three additional bedrooms and a charming window-seat nook complete the second floor The third level offers a private suite, while the finished lower level includes a media room, playroom, and storage. All are within close proximity to the train,restaurants,and shops.
Seller welcomes offers with requests for buyer concessions.
$3,790,000
5 BEDROOMS
4F 2H BATHROOMS
4,558 SQUARE FEET
3 CAR HEATED GARAGE
OPEN FLOOR PLAN













