





























![]()































PROJECT DESCRIPTION
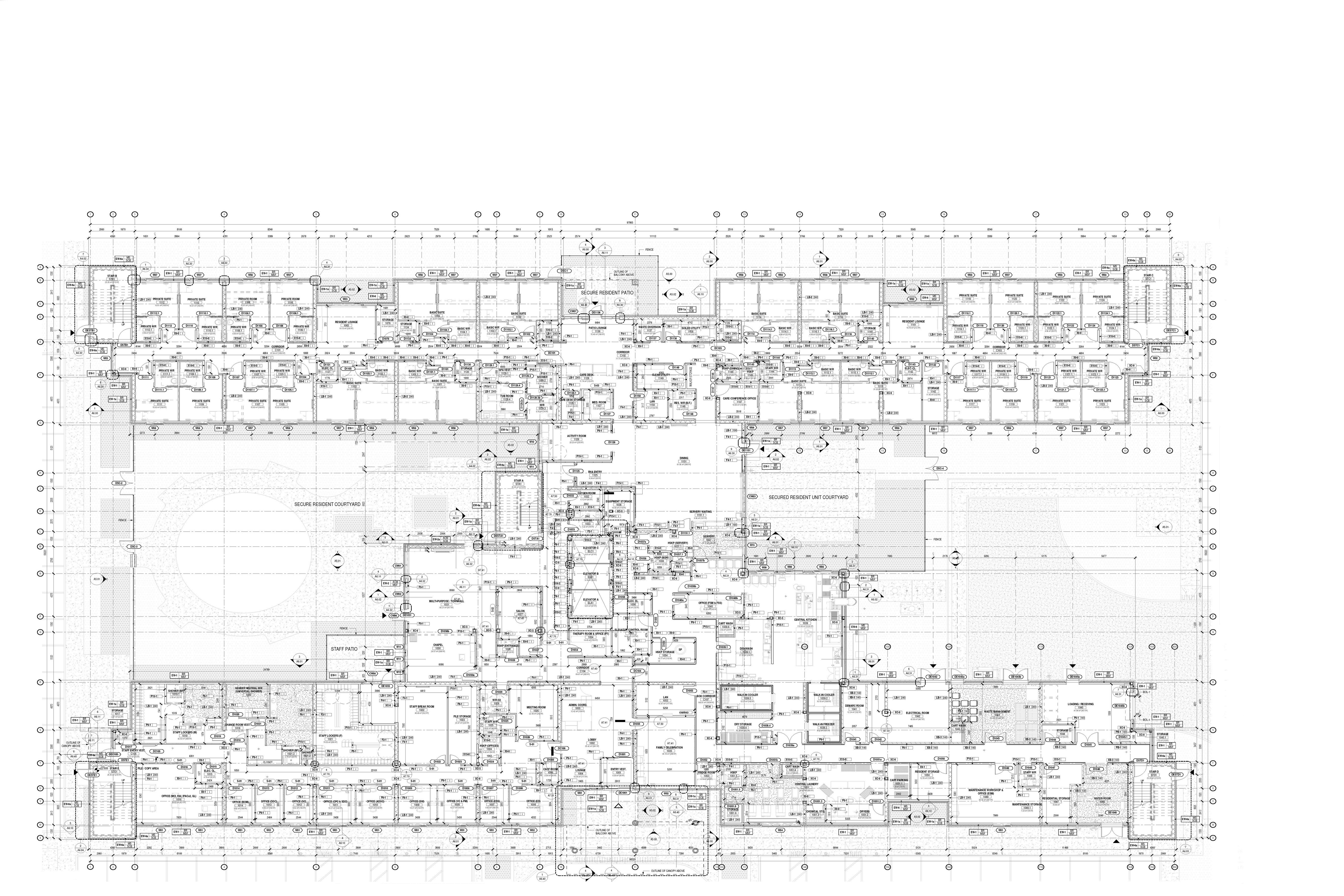
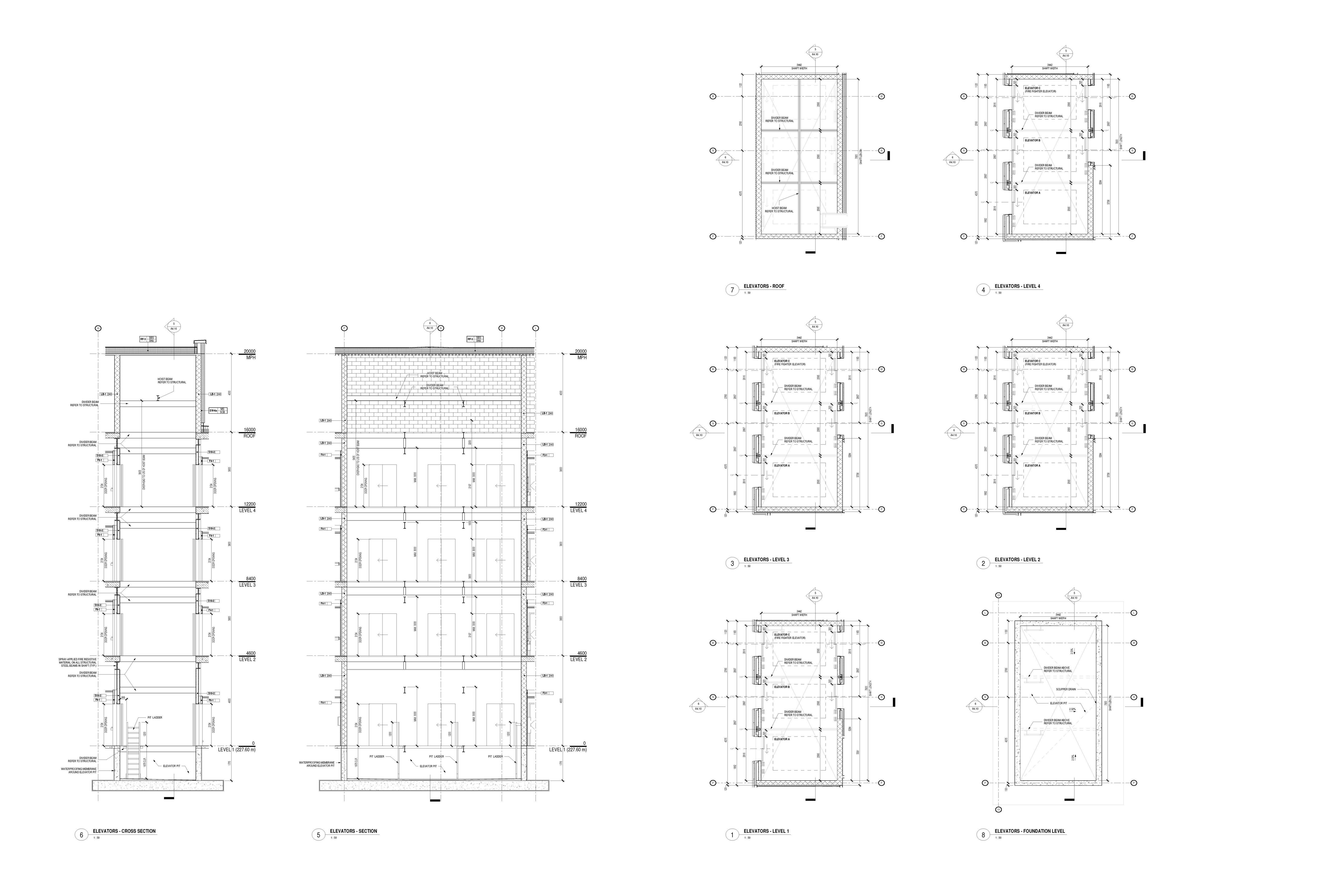
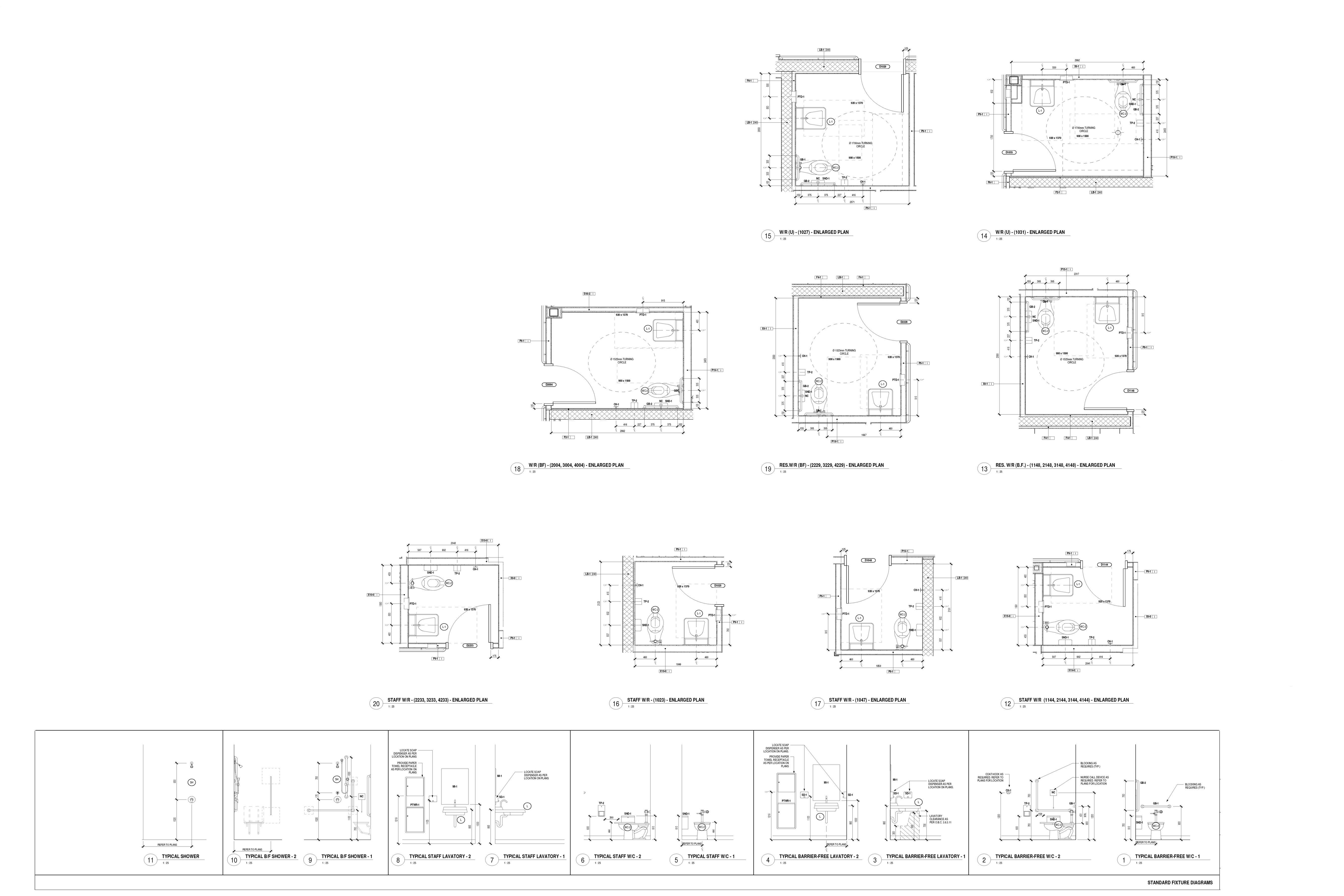
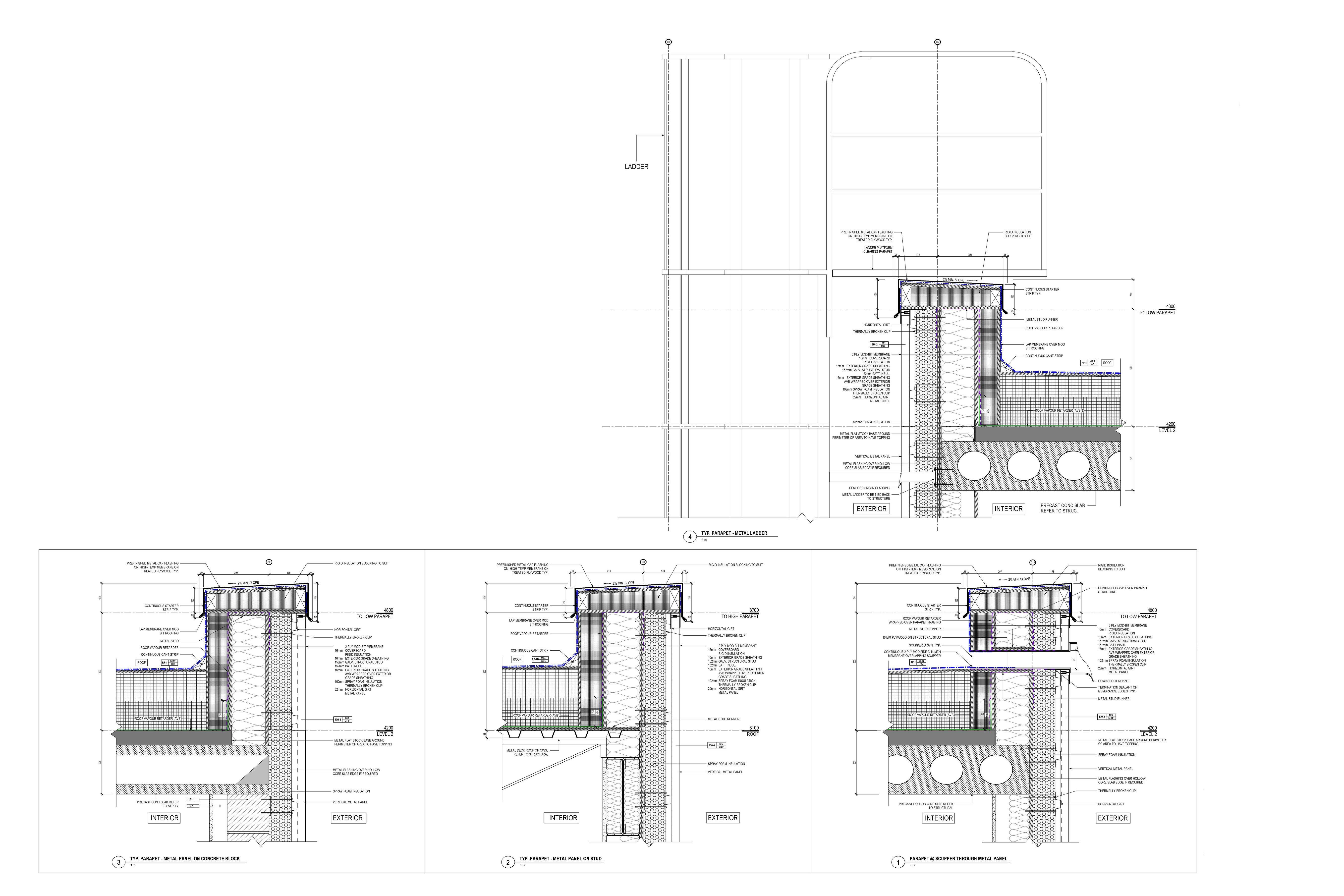
A multifunctional student residence has been des gned The building has a width of 21 m, a length of 28 m, and a height of 34 8 m Due to ts height, the building qualifies as a high-rise building (W) for structures between 25 m and 55 m The floors of the building are varied; the fo low ng spaces have been designed: residentia , auxil ary, techn cal, util ty, sanitary, commun cat on areas, and parking. A green roof with a pergola has been designed
The ma n idea of the project is to des gn a mu tifunct onal dormitory that would be able to meet the needs of its residents: sport culture, music, cinema, café The relevance of the chosen top c lies in creat ng comfortable iv ng conditions for students
It is a build ng w th a core-frame structural system The structure is made of reinforced concrete, used here as the structural system and allowing free shaping of the building form The system is based on the cooperation of the core and the frame composed of columns and floor beams
POTENTIAL BUILDING ADAPTATIONS







Yurii Musurivskyi | Architectural Designer
arch.yurii@gmail.com 647-877-1641
www.linkedin.com/in/yurii-musurivskyi