

GAVIN GERSHMAN
gavin_gershman@gsd.harvard.edu instagram - @gavinarchitecture
1-(317)-605-6642
EDUCATION
HARVARD G.S.D.
candidate for march program boston, ma 2024 - current
NORTHEASTERN UNIVERSITY
candidate for b.s. in architectural studies w/ minor in urban landscape design boston, ma 2021 - 2024
UNIVERSITY OF DENVER
candidate for b s in ecology and biodiversity w/ minor in jazz guitar denver, co 2019 - 2020
ACHIEVEMENTS
SUMMA CUM LAUDE spring 2024
PORTFOLIO PRIZE FIRST PLACE: neu schoolwide design competition spring 2024 GPA AWARD: highest gpa of neu architecture students class of 2024 spring 2024
EXPERIENTIAL EDUCATION AWARD: outstanding students committed to cooperative education spring 2024
A.R.C.C. KING STUDENT MEDAL: excellence in architectural and environmental design research spring 2024
LEADERSHIP
HARVARD GSD CLASS REPRESENTATIVE (ELECTED)
boston, ma fall 2024 - spring 2025
Advocated for my peers through correspondence with academic chairs on relevant matters such as curriculum, well-being and safety.
PEER MENTOR TEACHING ASSISTANT
boston, ma fall 2023
Worked closely with course instructor, Amanda Lawrence, to facilitate student engagement. Developed medium for first year and transfer architecture students to engage with Northeastern’s campus and architectural happenings. Led discussions and training sessions with students.
NORTHEASTERN SOLAR DECATHLON: ARCHITECTURAL LEAD (ELECTED) 2023 - 2024
Guided first and second year students through the process of designing a multi-family structure. Shared common practices of the trade and organized exercises encouraging all students to develop their voice in the design. Attended Solar Decathlon Conference in Golden, Colorado.
FIRM OUTREACH COORDINATOR (ELECTED) 2021 - 2024
Engaged in executive board meetings and coordinated communications with local Boston architecture firms and consultants to support our RFP in Roxbury.
COMMUNITY ENGAGEMENT
JAMES ‘66 AND JILL GABBE CREATIVE LEADER SCHOLARSHIP GRANT spring 2023
NORTHEASTERN C.A.M.D. HONORS IN THE DISCIPLINE spring 2023
NORTHEASTERN C.A.M.D. STUDENT RESEARCH GRANT spring 2023 PAVE STUDENT DESIGN COMPETITION FOR CITY RELIEF APPLICANT fall 2022
BLACK PANTHER COMMEMORATION & COMMUNITY
roxbury in boston, ma volunteer design services summer 2023
GARDEN
Worked to build a community garden, education center, and memorial to the Boston Black Panther Party. Executed design rendering, landscape planting plan, installation, and community feedback meetings.
AFRICAN BUILT HERITAGE PLATFORM
boston, ma architectural researcher summer 2023 - spring 2024
Explored how cultural sites across Sub-Saharan Africa could be preserved. Performed tasks ranging from desktop research, community meetings, and travel to Porto Novo, Benin to engage with community leaders directly. Independently held exhibition of images taken on trip.
VERNACULAR: FRAMEWORK FOR ARCHITECTURAL DESIGN
boston, ma independent researcher spring 2023
Explored how domestic architecture can relate to its inhabitants through stakeholder engagement. Received several grants, traveled internationally to engage with shareholders directly. Exhibited work on Northeastern campus and received Honors in the Discipline designation.
THE BUS STOP: DESIGN COMPETITION FOR RELIEF AID
new york, ny competition applicant spring 2022
Independently designed submittal for 2022 PAVE student design competition. Proposed 3,600ft2 of all-weather shelter by recycling two decommissioned buses set up by 2-4 people in 30 minutes. Worked within given paramenters to imagine a portable, adaptable safe space.
EMPLOYMENT
OFFSHOOTS INC.
boston, ma field associate summer 2024
SOCIAL IMPACT COLLECTIVE
boston, ma architectural consultant summer 2023 - winter 2023
Worked on installation crew, fostering productive landscapes. Engaged in best horticulture practices working with arborists, cleints, and landscape architects.
Executed RFP’s in Roxbury for dense community owned housing. Performed tasks ranging from community meetings, site analysis, renderings to 3D printing.
BECHTEL FRANK ERICKSON ARCHITECTS
lexington, ma architectural apprentice summer 2022 - winter 2022
BLACKLINE STUDIO
indianapolis, in architectural intern summer 2021 and 2022
Designed and managed net-zero passive house project. Performed tasks ranging from field measuring, rendering, consulting, and preparing construction documents.
Performed tasks ranging from field measuring, to drawing as-builts, to design work, both sketching and 3D modeling in sketchup, to preparing construction documents in autocad.
EVOLUTIONARY BIOLOGY LAB
denver, co lab tech fall 2019 - fall 2020
THE FOREST FLOWER
indianapolis, in florist
summer 2017-2019
Worked under post-doc breeding Hawaiian crickets to study evolutionary biology. Cleaned cricket cages and lab equipment along with sequencing genomes.
Acquired responsibility of managing cash register on top of previous duties such as, caring for donkeys, forming garden beds, watering plants, and helping guests.
Engaged in designing for community resilience and supporting native ecologies through shareholder engagement and biophilic design. Born and raised in rural Indiana. Drawn to creative problem-solving and discovery through design. Fourth-year B.S. Architecture Studies Honors student at









STONY BROOK WILDS
3170 STUDIO | MARIE LAW ADAMS |2023
0.25 MILE RADIUS
MISSION HILL, BOSTON, MA


STONY BROOK
JAMAICA POND
OLD HARBOR
CHARLES RIVER
MUDDY RIVER
STONY BROOK WILDS
3170 STUDIO | MARIE LAW ADAMS |2023
MISSION HILL, BOSTON, MA
This three member group studio assignment was situated in the neighborhood of Mission Hill. A place shaped by institutional encroachment and urban renewal. From our individual mapping assignment, we created a values based proposal exploring a new vision for urban planning driven by ecological systems. After our larger proposal, each group member chose to detail a specific condition of the site. I detailed the various river conditions.
Underneath our existing site runs the culverted stony brook river. Our design intention is to educate the community on ecological stewardship, bringing diverse opportunities for all species. Integrating habitats of all species with the surrounding Mission Maine and Alice Taylor housing developments. Informed by my map, the river bed serves as a catch basin for stormwater, reducing the mixing of stormwater with sewer systems.
We organized our ecological spaces and built spaces on contrastic principles. The river orientation prioritized historical context and exposure to direct light. The buildings were organized on the urban grid surrounding the site. The rivers intersection of the urban grid is shown in plan by the chamfering of housing blocks. A secondary goal was to continue the Southwest corridor. We implemented a series of active play fields, and playgrounds to service the housing on our proposal and the greater community.
The idea generation was done collectively, but I alone dealt with the linework, modeling and graphical composition of the drawings included in this portfolio. We developed a set of facade guidelines which we then individually interpreted. My facade design was implemented along the river, featuring wooden slats to house birds, integrating various species dwelling.


pavillion at river termination at intersectoin of two neighborhoods housing developments

provide housing on river frontage for creatures of all species
facade not to extrude past three feet to preserve street daylight
between 20-40% window to wall ratio

transec oft boardwalk intersection, residential corridor, and river ecologies
Integration of species habitat, boardwalk providing a means of integrating larger species above with smaller species below. Full nutrient cycles are supported by decomposing snags.


I desinged this facade given the gruops agreed upon parameters. The horizontal wood slats offer an integration bird and human habitats. On the ground level the horizontal slats rotate into flexible public seating.

INDIGENOUS DWELLING
4970 INDEPENDENT RESEARCH | 2023
FIELD RESEARCH - QUEBEC CITY, CANADA
EXHIBITION - BOSTON, U.S.A.
Within a period of three months, I won several grants to fund my independent research, traveled to Quebec to engage with shareholders directly, and featured my findings in an exhibition
The goal of this project is to better understand how designers can generate designs that uphold locally specific community heritage through shareholder engagement. I chose two cultural regions for their similar climactic conditions and access to natural resources.
STUDY PROCESS


This project aims to examine how cultural differences are expressed architecturally. The framework is not absolute but supplements the common practice of engaging with shareholders through design.
One chosen cultural region is home to the Ainu Indigenous Peoples, located in what is currently known as southern Hokkaido, Japan. The other chosen cultural region is home to the Wendat (Huron) First Nation, located in what is currently known as Quebec, Canada.
FRAMEWORK




















INDIGENOUS DWELLING| AINU STRUCTURE ANALYSIS
4970 INDEPENDENT RESEARCH | 2023
FIELD RESEARCH - QUEBEC CITY, CANADA EXHIBITION - BOSTON, U.S.A.
I utilized scholarly articles, personal recounts, and imagery to build social, economical, and architectural understanding of the Ainu Peoples. I synthesized specifics of their structures’ construction into the accompanying sketches
It was necessary to understand the roles of community members in both in daily life and in ceremonies in order to begin to understand the role of their architecture.
Their Cise, or primary dwelling, is highly individual. When the head of the house dies, the Cise is burned. The approach to a Cise is always through tall crops which grow around the perimeter. Typically, it is a one room, 5-ridge, hip-roof structure, featuring a central fireplace, and hanging mats for interior partitions.




INDIGENOUS DWELLING| AINU SPATIAL ORGANIZATION
4970 INDEPENDENT RESEARCH | 2023
FIELD
EXHIBITION - BOSTON, U.S.A.
INDIVIDUAL ORGANIZATION


REGIONAL ORGANIZATION

VILLAGE WENDAT VILLAGE
INDIGENOUS DWELLING| WENDAT STRUCTURE ANALYSIS
4970 INDEPENDENT RESEARCH | 2023
FIELD RESEARCH - QUEBEC CITY, CANADA
EXHIBITION - BOSTON, U.S.A.
After desktop research, I utilized methods of shareholder engagement to build a social, economic, and architectural understanding of the Wendat Peoples. I synthesized their structures’ construction into the accompanying sketches.
I engaged directly with members of the Wendat community who narrated their social roles as well as the role of their dwellings.
Their Longhouse, or the primary dwelling, is highly communal. The approach to a Longhouse is always through a maze of layered perimeter walls. A oneroom barrel-vaulted structure houses one clan or single familial lineage. The structure’s design derives more of a utilitarian purpose than a spiritual one. It functions as a smokehouse, preserving meats stored above sleeping bunks.




image by author | Turtle Clan Longhouse
INDIGENOUS DWELLING| WENDAT SPATIAL ORGANIZATION
4970 INDEPENDENT RESEARCH | 2023 COMMUNAL ORGNIZATION
ORGANIZATION

REGIONAL ORGANIZATION COMMUNAL ORGANIZATION

2-5 layer cedar palisade used as maze to confuse raiders, cedar resistant to rot
AINU CLAN DISPERSAL WENDAT CLAN DISPERSAL


VILLAGE WENDAT VILLAGE
T(R)EA HOUSE
INDEPENDENT PRACTICE | 2023
ZIONSVILLE, IN
The T(r)ea house takes aesthetic hints from Shinto-Buddhist tea houses. A 12x12’ platform accommodates a traditional tatami mat configuration and wrap around porch.
The client’s desired open-air tree house took one month from initial design to completion. The structure sits amongst the trees above the Western edge of the pond. Its location welcomes morning sun rays, illuminating the interior, providing an ideal space for morning meditation and grounding exercises.
The T(r)ea House tested my ability as a project manager, as I sourced lumber, hired a carpenter, finished the project on time, and delivered under budget.
I hired a local carpenter to assist in roof framing but otherwise completed carpentry and installation myself. ( I am pictured constructing at various phases.)







BLACK PANTHER COMMEMORATION
RESEARCH ASSISTANT | 2023
ROXBURY, BOSTON, MA
This community garden renovation, in honor and memory of the Black Panther Party, is dedicated to educating its community on sustainable nutrition practices.
The memorial is comprised of ten corten pillars housing a plaque for each point in the 10-Point Program. As people walk by the garden, they are reminded of the pillars of the Black Panther Party, who previously occupied the site.
I was invited to contribute graphics to aid in the community’s visualization of the final result. After contributing digitally, I helped with the installation of the plaques. Following the installation I engaged in feedback conversations with the neighborhood residents. ( I am pictured in a green hat.)




installation of pillar
corten monument amongst community garden
UNHOUSED POP-UP SHELTER
INDEPENDENT COMPETITION | 2022

two recycled transit buses with retractable canopies
UNHOUSED POP-UP SHELTER
INDEPENDENT
COMPETITION | 2022
NEW YORK, NEW YORK
I completed a submission for the 2022 PAVE Global student competition proposal for City Relief, a non-profit organization.
The prompt asked for a pop-up day shelter for people experiencing homelessness. I designed an environment featuring the safe and efficient distribution of a warm meal, bathroom, and supplies.
I planned a 3,600ft2 all-weather shelter by recycling two decommissioned buses set up in 30 minutes, offering a portable safe space capable of growing with its community’s needs through the use
TARP MECHANISM

of extendable canopies.
As guests wait in lines for warm food and bathroom services, food and drink options are made available on line stanchions. Cross ventilation circulates fresh air throughout the interior. Guests then pass through either bus receiving a warm shower, food, or supplies. After walking through the pass-throughs, guests are greeted by an open-seating community room, where they can receive private counseling. The flexible community room between the two parked buses adjusts from two adjacent retractable canopies.
CIRCULATION AND VENTILATION




1 approach from street retail booths setup outside separating loud footraffic from softer private counseling





GREEN EDGE LIBRARY
2130 STUDIO | INSTRUCTOR - H. KILLION MOKWETE | 2021
CHINATOWN, BOSTON, MA

GREEN EDGE LIBRARY
2130 STUDIO | INSTRUCTOR - H. KILLION MOKWETE | 2021
CHINATOWN, BOSTON, MA
I designed the Green Edge Library in a second year design studio at Northeastern University.
The Green Edge Library is a public library proposal for Boston’s Chinatown community. Boston’s Chinatown master plan calls for an answer to its proximity to highway exhaust. In response to shareholder needs, the plan aims to provide a sense of community identity and increase air quality. Through various precedent studies, my design implements biophilic methods to solve the community’s needs. The greenery acts as an urban forest’s edge, creating a distinct boundary for Chinatown. A green roof captures air and rainwater while filtering toxic metals through phytoremediation.
The library features concentric blooming cycles on the green facade and companion gardening in the interior beds ensures the green identity lasts through all seasons. The interior companion gardening engages community members directly with the structure. The design improves the area’s biodiversity featuring native plants as a refuge for local and migratory fauna. As the proposal replaces a concrete parking structure, the demolished site agregate is reused to form the concrete structure.











WEST NORTH


EAST















(Ilex vomitoria)
red (arctostaphylosbearberry uva-ursi)
wax myrtle (myrica)

fir mistletoe dwarf (arceuthobium abietinum)
apache mistletoe (arceuthobiumdwarf apachecum)
(brassica oleracea var. capitata & solanum tuberosum)



squash (cucurbita)
pea (pisum sativum)
climbing hydrangea (hydrangea petiolaris)
trumpet creeper (campsis radicans)
flowering dogwood (cornus florida)
hummingbird shrub (hamelia patens)
carrot & chive (daucus carota subsp. sativus & allium schoenoprasum)
hemlock dwarf (tsuga canadensis)
eastern arborvitae (thuja occidentalis)

abstraction of Torii Gate welcoming community into courtyard
PASSIVE HOUSE

PASSIVE HOUSE
PRACTICE | B.F.E. ARCHITECTS |2022
LEXINGTON, MA
The client shared a passion for sustainable development, supporting the team to implement passive house strategies to achieve a net-zero energy custom residential project. A few of the most notable strategies implimented by the team include minimizing surface area, window orientation, and using a wall composition that ensures a congruent thermal envelope. The firm principal and I worked from the preliminary design phase until the submission of construction documents, with me initally drafting drawings for him to redline. I coordinated internally and externally with local surveyors and consultants throughout.
The glazing on the east facade features a brise soleil that deflects glare at eye level towards the interior ceiling of the double-height space within. This double-height space serves both the living room and kitchen. Above the kitchen is an open loft that looks out into the double-high space below and borrows the light from the brise soleil.


GAUSSIAN CIRCUS
CORE 1 | HARVARD G.S.D. |2024
CAMBRIDGE, MA
Exploration of a methods of panelizing a mirrored conoid and hyperboloid, this circus tent utilizes three different methods of discretization to open new levels of wilderment to the circus tent typology.
This project draws on the effects of the hall of mirrors. With each surface being planar, mirrors can be suspended accross the ceiling plane. Adding a new dimension to the acrobatics and theatrics.
This was a two person group effort. The geometry and panelization logic was largely collaborative, but I alone authored the shown drawings.




rehearsal section
GEODESIC TOWER
CORE 1 | HARVARD G.S.D. |2024
CAMBRIDGE, MA
Exploration of the geodesic through construction, modeling, and iteration to articulate the beauty of structural stress. A rectangular piece of aluminum was manipulated through bending to create a strucutral loop shape. The desired ratio of material thickness, width, and length was explored through physical model iteration.
Once the desired ratio was found, the loop was oriented into idential interlocking modules. These modules can grow to be a tower or shrink down to the scale of the domicile. Where the loop’s faces meet, it finds itself perpindicular to the ground. This perpindicularity is what hosts a typical building core. It is also responsible for the modules ability to unendingly stack.




CEILING PLAN
CORE 1 | HARVARD G.S.D. |2024
CAMBRIDGE, MA
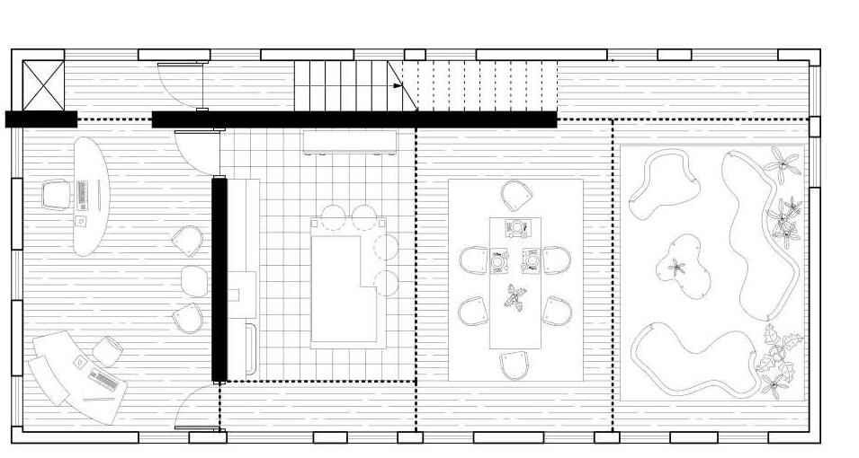
Owner occupied shared dwelling. Occupants share common programs such as kitchen, dining, office, living. This reduces needed building area, reducing carbon and environmental impact per person by simply building less.
Utilizing the ceiling plan to experiment with a theory that blends Raum and Free plan. Bringing a gradient of volumes by only changing the ceiling height.
More poche in the ceiling allows for easier time running MEP systems as well as creating opportunities for unique inhabitable volumes within the floorplate.





MACHINE FOR LEARNING
CORE 1 | HARVARD G.S.D. |2024
CAMBRIDGE, MA
One building, two schools. High school and middle school share common amenities such as cafe, gymnasium, library. A migrating central corridor moves students with the site topography, connecting two different level streets. On either side of this corridor are exposed chutes, displaying all of the MEP that are necessary for operating the building. The intention with displaying the organs of the building is to inspire curiosity to what might be behind our familiar white gypsum walls.

The schools programs are stacked, classrooms on one side while larger spaces on the other. Stacking program makes the building run more efficiently as similar MEP zones are grouped. Despite their similar orientation, experientially the schools are separated by a migrating switchback staircase. The stair orients the occupant so that the middle school classrooms are always on one’s left side, while the high school classrooms are always on the right.












































































































































