| Architecture | Urban Conservation | Part - 2

Page 1

| Architecture | Urban Conservation | Gaurish Deshpande selected works 2020 - 2022 P O RTF O LI O
| Architecture | Urban Conservation | Gaurish Deshpande +91 - 8975610681 | gaurishdeshpande2123@gmail.com

Education | Work experience

2020-2022

Masters in urban conservation

| K.R.V.I.A. Mumbai University Of Mumbai

SAHEC studio

Mumbai

2023 | Jnr Urban Conservation Architect

2014-2019

Bachelor of architecture

| B.K.P.S. C.O.A. Pune

Savitribai Phule Pune University

Vikas Dilawari Architects

Mumbai

2022-2023 | Jnr Conservation Architect

2014-2012

Intermediate | S.M. Lohia junior college

Freelance projects

Kolhapur

2002-2012

Kolhapur H.S.C. High school

| Seventh Day Adventist Higher secondary school, Kolhapur I..C.S.E.

2020-2022 | Architect

Eco-Solutions pvt. ltd.

Pune

2019-2020 | Green Architect

Beri Architects and Engineers pvt. ltd.

Kolhapur

2018 | Intern

Srujan research planning foundation

Pune

2017 | Summer internship

Vijay Sahadev Architects

Latur

2016 | Summer internship

Navkar Architects

Pune

2015 | Summer internship

|
graphics credentials note - all contents are produced by author unless specified otherwise. 01 02 08 04 06 05 07 03 Academic work Professional work
Architectural conservation Historic urban cores Fort conservation Architectural project Other works 01 17 25 33 37 45 49 51 53 01 02 03 04 05 06 07 08 09 |Contents

Architectural projects

Project credits :

Role : Site location :

Objectives :

Residential bungalow | Kolhapur 06

Freelance individual project | 2021

Preliminary design and finalisation, sanctioning, working drawings, building services layouts, on site supervision and maintaining R.A. bills.

RS.No.1116/1B/14/ Plot no. 2, Hariom Nagar, Kolhapur - 416010

• To promote sustainable and cost effective building construction techniques.

• To acheive effective and workable spans using R.C.C. frame structure.

• To promote natural and ecofriendly material finishes.

Project specifications :

Site area -1058 sq.ft. -23 ft x 46 ft

Offset margins -2.25 m (front) -1.5 m (back)

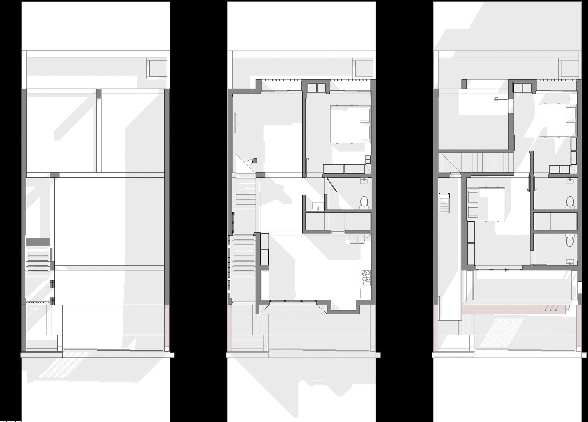
Stilt floor plan First floor plan Second floor plan 1 1 2 3 4 13 13 13 5 6 8 14 16 16 15 15 7 7 10 11 9 12 13 17 18
10. Handwash 11. Kitchen 12.
13. Staircase
14.
15.
16.
17.
18.
Section
Utility
| Second floor plan
Children bedroom
Attached toilet
Terrace
Master bedroom
Balcony
Front view Filler slab Rat trap bond Front
elevation
|
On site photos during construction

Project credits : Associated team :

Role : Site location :

Objectives : Project specifications :

Eco Solutions pvt. ltd. | Office work | 2019

Ar. Anshul Gujarathi (Director)

Preliminary design and finalisation.

Plot no. 28, Near wilderness hilltop resort, Khadakwasla, Pune - 411025

• To promote extrovert planning method.

• To achieve solar passive design principles in the development process. Site area - 51200 sq.ft. -320

at Khadakwasla |
Architectural projects Farmhouse
Pune 07
01. Parking area 02. Verandah 03. Entance lobby 04. Storage and maintenance 05. Powder room 06. Living room
Open kitchen
dining 08. Open dining area 09. Servants
10. Staircase
12.
ft x 160 ft
07.
+
quarters + att. toilet
11. Open courtyard
Bedrooms (3 nos,) + att. toilet 13. Family room 14. Terraces 15. Bedroom + att. toilet
Ground floor plan First floor plan Roof plan 1 2 3 4 14 14 14 14 14 14 14 14 9 10 11 16 16 16 15 12 12 12 5 6 13 7 8 | Ground floor plan | First floor plan
16. Skylights
Longitudinal site section
Isometric view

Project credits: Associated team :

Role :

Site location :

Objectives :

Project specifications :

Eco Solutions pvt. ltd. | Office work | 2019

Ar. Anshul Gujarathi (Director)

Preliminary design and finalisation.

Dhule, Maharashtra.

• Compact planning using maximum livable area compliant for RERA registration.

Site area - 5040 sq.ft. -56 ft x 90 ft

Requirements - 2BHK -7 nos.

- 2.5BHK -3 nos.

- Shops -2 nos.

- Parking -10 cars, 25 two wheelers + visitor parking space. Services - Lift, staircase, common passages, service duct, maintenance room.

Architectural projects Mixed-use residential appartment | Dhule 08
Stilt floor plan Typical floor plan (1st and 2nd) Third floor plan 01. Entry points 02. Parking area 03. Staircase and lift 04. Shops 05. Living room 06. Kitchen 07. Bedroom 08. Study 09. Terraces 4 4 1 1 1 2 2 2 2 2 2 3 3 8 8 5 5 5 5 5 9 5 9 6 6 6 6 6 6 7 7 7 7 7 7 7 7 7 7 7 7 3
Section Isometric view Side elevation Front elevation 1 1 1 1 4 4 2 2 9 9
Other works Architectural documentation works | Hand done works 09 | Documenting
and
street elevation
character for study tour | Fountainhas, Goa (2015)
| Documenting traditional wada for L.I.K nasa trophy | Kinhai village, Satara (2015) | Roof plan | Old Kinhai village
|
Nandimandap Entranceway Sabhamandap Antarala Garbhagriha
Isometric
view of Shri Kopeshwar Mandir for study tour | Saswad, Maharashtra (2014)
Thank you +91 8975610681 | gaurishdeshpande2123@gmail.com

Turn static files into dynamic content formats.

Create a flipbook
Issuu converts static files into: digital portfolios, online yearbooks, online catalogs, digital photo albums and more. Sign up and create your flipbook.
| Architecture | Urban Conservation | Part - 2 by Gaurish Deshpande - Issuu