Future, Analyse af Termonet

Page 1

TERMONET

FUTURE case 1

1
FUTU nergiE Ressourcer

Projektleder

Projektet er støttet af

Projektet støttes af den Europæiske Regionaludviklingsfond og Interreg ÖKS samt Region Hovedstaden, Region Sjælland og Region Skåne.

Forfattere

Dorte Skaarup Østergaard, Jakob Worm og Linn Laurberg Jensen

Publiceret af

FUTURE

Layout forside og bagside

Kasper Laulund Kjeldsmark (Gate 21)

2021

2

FUTURE FREMTIDENS INTELLIGENTE ENERGI- OG RESSOURCESYSTEM

FUTURE-projektet består af syv visionære casesamarbejder på tværs af de tre regioner i Greater Copenhagen. De syv cases tester og demonstrerer forskellige teknologier, værktøjer eller forretningsmodeller indenfor vedvarende energi eller udnyttelse af ressourcer:

• Case 1: Fleksibel energilagring i individuelle bygninger

•Case 2: Integration af vedvarende energi i komplekse bygninger

• Case 3: Forbedret energihusholdning gennem balanceret varme og køling i sygehusbygninger

•Case 4: Energioptimering gennem smarte grids i bygninger

•Case 5: Cirkulære løsninger, der integrerer energi, ressourcer og affald

•Case 6: Resttekstiler som en del af fremtidens byggeri

• Case 7: Intelligent brug af produktdata, der forbedrer og fremmer genbrug i cirkulære samfund

Vedvarende energi

Projektet vil:

• Udnytte, integrere og lagre vedvarende energi bedre, så vi får et mere fleksibelt energisystem

•Fremme energieffektive løsninger i bygninger

Derfor skal vi designe løsninger og infrastruktur, der kan bygge bro mellem behovet for forsyningssikkerhed på den ene side, og det faktum at vedvarende energikilder ofte fluktuerer.

Ressourceudnyttelse

Projektet vil:

• Øge ressourceeffektiviteten og skabe en cirkulær omstilling af samfundet. Vi skal forlænge levetiden af materialer, genanvende affald og rester så de indgår i nye kredsløb.

• Begrænse produktionen af jomfruelige materialer og dermed også energiforbruget

Derfor demonstrerer projektet, hvordan man lokalt kan styre produkt- og materialestrømme, så man fremmer en mere intelligent materialeanvendelse

Læs mere her: https://www.gate21.dk/future/

FUTURE Termonet

NORDJYLLAND Jyllandsgade 1 9520 Skørping

MIDTJYLLAND Vestergade 48 H, 3. sal 8000 Aarhus C

SJÆLLAND A.C. Meyers Vænge 15 2450 København SV

Tlf. +45 9682 0400

Fax +45 9839 2498

Juni 2021

www.planenergi.dk

planenergi@planenergi.dk

CVR: 7403 8212

Rekvirent

Gate 21

Att: Tommy Olsen

Notat udarbejdet af PlanEnergi

Jakob Worm

e-mail: jw@planenergi.dk

Tlf.: 2972 6845

Dorte Skaarup Østergaard

e-mail: dso@planenergi.dk

Tlf.: 5053 6279

Linn Laurberg Jensen

e-mail: llj@planenergi.dk

Tlf.: 2238 5356

Kvalitetssikret af: Leo Holm

e-mail:lh@planenergi.dk

Tlf.: 4032 5064

Projekt ref.: 21-026

Side 2 af 39 Indholdsfortegnelse 1 Indledning............................................................................................................... 4 1.1.1 Teoretisk tilgang 4 1.2 Konklusioner 5 1.2.1 Forbrugerøkonomi; er det billigt?...............................................6 1.2.2 Forbrugerøkonomi; er det en sikker investering?....................6 1.2.3 Brugervenlighed 6 1.2.4 Støj 7 1.2.5 Mulighed for køling ......................................................................7 1.2.6 Samfundsøkonomi.......................................................................7 1.2.7 Energieffektivitet 7 1.2.8 Udnyttelse af overskudsvarme 7 1.2.9 Indpasning i el-systemet..............................................................8 1.2.10 Fleksibilitet ved skift af varmeforsyning ....................................8 1.2.11 Samlet klima-effekt 8 1.3 Usikkerheder..........................................................................................9 1.4 Introduktion til termonet konceptet ...................................................9 2 Tekniske og økonomiske sammenligninger 11 2.1 Organisering 11 2.2 Introduktion til cases...........................................................................11 2.2.1 Bjæverskov, Køge .......................................................................11 2.2.2 Ulstrup, Kalundborg 11 2.2.3 Kædehusbebyggelse, Fredensborg..........................................11 2.2.4 Resort Lidsø, Lolland..................................................................12 2.3 Scenarier og forudsætninger 12 2.3.1 Varme- og energi beregninger 12 2.3.2 Varmeoptag og jordtyper..........................................................12 2.3.3 Lægning af jordvarmeslanger...................................................13 2.3.4 Ledningsnet 14 2.3.5 Priser for lægning af jordvarmeslanger 14 2.3.6 Lodrette boringer.......................................................................15 2.3.7 Energifanger................................................................................15 2.3.8 Søvarme 16 2.3.9 Fjernvarmeforsyning 16 2.3.10 Omkostninger til brugerinstallationer.....................................17 2.3.11 Eludgifter.....................................................................................17 2.3.12 Projektøkonomi og tilbagebetalingstider 18 2.4 Case 1 [Bjæverskov, Køge]..................................................................19
Case 2 [Ulstrup, Kalundborg].............................................................22
Case 3 [Område 1, Fredensborg] 25
Case 4 [Resort Lidsø, Lolland] 27
2.5
2.6
2.7
Side 3 af 39 2.8 Samfundsøkonomisk vurdering 29 3 Vurdering og nødvendige rammebetingelser ..............................................................................................31 3.1 Varmeforsyningsloven........................................................................32 3.2 Projektbekendtgørelse 32 3.3 VVM-anmeldelse 33 3.4 Mulighed for kommunegaranti..........................................................34 3.5 Regulatoriske problemstillinger 34 4 Konklusioner .....................................................................................................................................................35 5 Bilag ....................................................................................................................................................................37 5.1 Energifanger fra firmaet SolarVenti ..................................................37 5.2 Jordvarme fra firmaet Engtoft Entreprise 39

1 Indledning

Formålet med denne rapport er at vurdere om og hvornår et termonet er en god løsning. Der er set på hvilke ydre omstændigheder der evt. skal til, for at det er rentabelt at etablere et termonet. For at besvare disse spørgsmål er der regnet på rentabiliteten af at etablere termonet i 4 forskellige cases:

• Bjæverskov i Køge Kommune,

• Ulstrup i Kalundborg Kommune,

• en kædehusbebyggelse i Fredensborg Kommune

• sommerferieområdet Resort Lidsø på Lolland.

De fire cases beskrives og sammenlignes med følgende teknologier:

• Individuelle varmepumper af typen luft/vand (l/v varmepumper). Dvs. at husejer selv køber varmepumpen og det er ejerens eget ansvar at købe el til varmepumpen og drifte den bedst muligt. Denne løsning er referencen for de øvrige alternativer.

• Etablering af et termonet hvor der cirkulerer brine (frostsikret vand) mellem en fælles varmekilde og varmepumper i husene. Den typiske varmekilde er jordvarme, enten som lodrette boringer eller traditionelt som vandrette slanger. I beregningerne er jordvarmen også suppleret med energifangere. Desuden er der vurderet på at anvende overskudsvarme i en case. Der er tale om kendte teknikker, som er afprøvet i forskellige sammenhænge, men ikke i større bebyggelser.

• Fjernvarme er her beregnet som en lokal varmecentral med en varmepumpe (luft/vand). I denne sammenhæng er udfordringen at skalere fjernvarme ned til mindre bebyggelser. Fjernvarme er kendt for at give forbrugerne høj komfort og en sikker varmeforsyning.

1.1.1 Teoretisk tilgang

Tilgangen til denne type analyse har en del af sin teoretiske ballast fra Henrik Lunds bog fra 2009: ”Choice awareness and renewable energy systems”. Den introducerer teorien om valgbevidsthed. Teorien går bl.a. på, at når samfundet definerer og søger at implementere mål, der indebærer radikale teknologiske ændringer, vil eksisterende organisationer ofte søge at skabe den opfattelse, at samfundet ikke har noget valg, men at implementere de teknologier, der vil bevare de eksisterende positioner. Bogen fremfører også, at samfundet i en sådan situation vil have gavn af at fokusere på valgbevidsthed, dvs. øge bevidstheden om, at der findes alternativer, og at det er muligt at træffe et valg.

I den aktuelle situation er der bred bevidsthed og konsensus om at anvendelse af olie og naturgas til opvarmning skal udfases. Derfor er vi i en situation i områderne med olie- og naturgas, hvor borgere og lokalsamfund skal vælge hvordan fremtidens opvarmning skal foregå. Der er allerede en heftig markedsføring af individuelle varmepumper i disse områder, samt mulighed for statstilskud.

Desuden er der i nogle af områderne, der støder op til eksisterende fjernvarmebyer, et arbejde for at konvertere nogle af disse bysamfund til fjernvarme. Disse tiltag sker dog ukoordineret og meget forskelligt, og baseres på de lokale fjernvarmeselskabers interesser om at tilbyde fjernvarme til de konkrete byer.

Der er således i høj grad brug for en overordnet vurdering af hvilken ny opvarmningsform der tjener borgerne og samfundet bedst i disse områder. I dette spørgsmål spiller kommunerne en nøglerolle.

Side 4 af 39

Varmeplanlægning er kommunernes ansvar og håbet med denne rapport er at kunne inspirere og folde problematikken ud.

1.2 Konklusioner

I denne rapport er der regnet på forskellige cases for at se på fordele og ulemper ved termonet sammenlignet med hhv. individuelle l/v varmepumper og fjernvarme. Beregningerne viser at der økonomisk er ret små forskelle mellem løsningerne. Generelt er skift fra oliefyr eller naturgas til en varmepumpe dog en god ide.

Individuelle forhold i bebyggelsen eller landsbyen kan betyde meget for valget af den bedste løsning. Det umiddelbare valg står i første omgang mellem en individuel løsning hvor man selv køber en varmepumpe eller en kollektiv løsning med rør mellem husene.

Den oplagte fordel ved den kollektive løsning er spørgsmålet om støj; man undgår luft/vand varmepumpens udedel og den støj ventilatoren giver. Det kan betyde meget i tættere bebyggelser, men kan være næsten ligegyldigt i spredt bebyggelse.

En anden væsentlig forskel er på det samfundsmæssige plan; løsningens mulighed for at passe ind i det fremtidige elsystems behov for fleksibilitet. Fremover må det formodes at varmepumpernes evne til fleksibilitet vil blive vigtigere, så de bliver medspillere i den grønne omstilling. På dette punkt vil de kollektive løsninger stå stærkere. I et termonet vil en forretningsmodel med mange varmepumper der driftes og styres fra ét sted, langt bedre kunne tilpasse sig elsystemet. Der er dog væsentlige begrænsninger i muligheden for at lagre varme i husene samt styring af mange varmepumper. På dette punkt er fjernvarmeløsningen klart bedst. Her er det muligt at drifte én fælles varmepumpe optimalt og også få plads til et lager (en tank med vand) som er nødvendig for at kunne spille sammen med elsystemet.

Termonet kan have en fordel hvis husene ligger spredt, da rør og jordarbejder er billigere for termonet end for fjernvarme. Hvis der skal etableres et termonet vil traditionel jordvarme være billigere end boringer. Hvis jordvarmen suppleres med energifangere, vil det også betyde en besparelse i investering.

Termonet kan bedst betale sig at etablere når rørene så vidt muligt ikke skal graves ned i befæstede områder. Det vil sige hvis nettet anlægges under byggemodningen til nybyggeri, eller hvis der er grønne områder mellem husene hvor rørene nemt kan lægges. I sådanne tilfælde kan det også betale sig at forbinde huse som ligger med større afstand, da det i så fald er billigt at lægge rørene i jorden og de samtidigt fungerer som varmekilde. Hvis der skal opgraves befæstet areal, kan termonet bedst betale sig i tilfælde hvor husene ligger tæt og der kan kobles mange huse på nettet med færrest muligt meter rør. Dette er ligesom for traditionel fjernvarme.

Når der sammenlignes på totale investeringer, er der en tendens til at termonet løsninger kan blive billigere end fjernvarme, men det afhænger af de lokale forhold. De individuelle l/v varmepumper kan være investeringsmæssigt billigere end de andre løsninger, men finansierings- og driftsforhold gør den individuelle løsning knap så billig.

Fordele og ulemper ved de nævnte løsninger afhænger som det fremgår i høj grad af hvad man fokuserer på. Nedenfor er det anskueliggjort og uddybet efterfølgende:

Side 5 af 39

1.2.1 Forbrugerøkonomi; er det billigt?

I casen fra Fredensborg med mindre huse vil den årlige udgift til referencen ligge på ca. 12.000 kr /år og løsninger med termonet eller fjernvarme ca. 1.000 kr. billigere pr. år. Hvis man ser udelukkende på privatøkonomien, kan man komme billigst til en l/v varmpumpe, men det kan være på bekostning af kvaliteten. Det kan gå ud over COP på anlægget når man køber en billig varmepumpe.

1.2.2 Forbrugerøkonomi; er det en sikker investering?

Generelt må man sige at hvis man står med en investering alene overfor en leverandør, står man svagere end hvis man er med i en gruppe (et kollektivt system). Derudover er der det særlige at man normalt som almindelig køber ikke har mulighed for selv at tjekke hvor effektivt varmpumpen kører. Der er ikke målere på hvor meget varme anlægget leverer og man har ikke mulighed for at tjekke COP værdierne og det er meget sværere at spotte om der kan være eventuelle fejl.

Ved et kollektivt system hvor man afregnes på varmeside vil der være måler på både el og varme. Desuden vil en professionel operatør i det kollektive system have bedre forudsætninger for at tjekke driftsdata og rette eventuelle fejl, så varmepumpen kan køre optimalt.

1.2.3 Brugervenlighed

Alle de nævnte løsninger er i dag nemme at tilgå, og normalt vil man som forbruger ikke skulle bekymre sig om driften når anlægget er indreguleret. Se dog ovenfor om målere.

Side 6 af 39

Den mest simple installation hos forbrugeren er fjernvarmeinstallationen

1.2.4 Støj

Den oplagte fordel ved den kollektive løsning er spørgsmålet om støj; man undgår luft/vand varmepumpens udedel og den ventilator støj den giver. Det kan betyde meget i tættere bebyggelser, men kan være næsten ligegyldigt i spredt bebyggelse.

1.2.5 Mulighed for køling

I nyere huse med store vinduespartier og manglende solafskærmning vil man ofte opleve høje rumtemperaturer om sommeren. Nogle enkelte tyr til at købe egentlige airconditionanlæg, men de fleste kan klare sig med almindelige ventilatorer. Men med en varmepumpe i huset giver det muligheden for også at levere køling. Her kan især termonettet levere kølig brine som kan anvendes, enten i gulvslanger eller som en køleflade i et ventilationsanlæg. Den passive køling hvor brinen fra jorden anvendes direkte er energimæssigt langt at foretrække frem for en aktiv køling med varmepumpe eller aircondition.

1.2.6 Samfundsøkonomi

I lovgivningen omkring varmeforsyning er det beskrevet hvordan man udregner den samfundsmæssige økonomi for de forskellige muligheder. I denne rapport er der regnet på scenarierne for Bjæverskov: Overordnet set er det for Bjæverskov-casen, Alt #3 (Termonet med jordvarme og energifang), der har den samfundsøkonomiske laveste omkostning, mens Alt #0 med individuelle varmepumper ligger nogenlunde lige med fjernvarmeløsningerne.

Det er ofte omkostninger til investeringer, drift og vedligehold samt omkostninger til køb af brændsler sammen med køb og salg af el, der er udslagsgivende for den samfundsøkonomiske økonomi. Resultatet af samfundsøkonomien derfor variere fra projekt til projekt.

1.2.7 Energieffektivitet

Der er flere forskellige forhold der har indflydelse på dette emne. I termonetløsningerne er der ikke tab i ledningsnettet som ved fjernvarme. Termonettes fordel er at kunne høste varme fra forskellige kilder indenfor ledningsnettets rækkevidde og der kan optages varme fra jorden i hele termonettets udstrækning. Ved fjernvarme er der varmetab fra rørene i jorden, som typisk ligger på 15-20% i nye anlæg.

Effektiviteten af det samlede system afhænger også af varmepumperne. Som tidligere nævnt mangler de individuelle varmepumper ofte målere så det er svært at kontrollere effektiviteten. I praksis er der stor variation på varmepumper og deres effektivitet. Større varmepumper, der drives af professionelle, vil have større effektivitet. For store varmepumper til fjernvarme vil dette opveje tabene i ledningsnettet så den samlede systemeffektivitet er ret ens mellem termonet og fjernvarme. Ved egne l/v varmepumper kan man som nævnt have en dårlig drift uden at kunne konstatere det.

1.2.8 Udnyttelse af overskudsvarme

Ved de kollektive anlæg med ledninger i jorden bliver det muligt at udnytte overskudsvarme fra virksomheder. Nogle virksomheder kan levere en høj temperatur (f.eks. 65-70 °C), som passer til fjernvarme. Mange andre virksomheder har varme ved lavere temperaturer (f.eks. 20-40 °C) og det vil passe fint til termonet. Der er således ofte muligheder, som dog skal analyseres i hvert enkelt tilfælde.

Side 7 af 39

1.2.9 Indpasning i el-systemet

For at en varmepumpe skal kunne være en aktiv del i elsystemet kræver det en vis fleksibilitet, dvs. at driften skal kunne skubbes en eller flere timer. Dette behov viser sig allerede i dag, hvor eldistributionsselskaberne har indført en spidslast tarif, så el er dyrere mellem kl. 17 og 20 en stor del af året. Der skal således være mulighed for at kunne lagre varme i den periode hvor varmepumpen er slukket. Desuden skal den være udstyret med automatik og den skal have forbindelse til en driftsoperatør eller have sit eget program til at styre driften.

Det er mest sandsynligt at det i fremtiden vil være varmepumper der styres af en professionel der vil kunne tilpasses elsystemets behov for fleksibilitet. Det vil således være styrede varmepumper i et termonet eller i fjernvarmen der vil kunne levere fleksibilitet. Desuden vil én centralt placeret varmepumpe på en fjernvarmecentral være nemmere at styre end mange decentrale varmepumper. På dette punkt er fjernvarmeløsningen klart bedst. Her er det muligt at drifte én fælles varmepumpe optimalt og også få plads til et lager (en tank med vand) som er nødvendig for at kunne spille sammen med elsystemet.

Et andet forhold vedrørende elsystemet er behovet for forstærkning. Ved én centralt placeret varmepumpe vil elforsyningen være designet præcist til denne løsning. For de lokale elnet vil varmepumper i de enkelte husstande gøre at ældre elnet skal forstærkes. Dette forhold er ikke regnet ind i økonomien. Hvis der i stedet etableres en central varmepumpe (og fjernvarme) i en by vil elforsyningen blive enklere og givetvis billigere.

1.2.10 Fleksibilitet ved skift af varmeforsyning

En vigtig fordel ved fjernvarme er, at der kan skiftes varmeforsyning fra den første varmepumpe til en nyere udgave eller andet. På et tidspunkt indenfor de næste 15-20 år vil man komme i en situation hvor der bliver behov for ændringer i varmeforsyningen og det er langt nemmere på en fjernvarmecentral end hos hver enkelt forbruger. Det har vist sig i fjernvarmeværkernes historie at være en stor fordel, som har givet forbrugerne billigere og mere grøn varme. Ved termonet kan der nemt suppleres med flere eller skiftes varmekilder til brinen. Dette er en fordel - og er især relevant når man tænker på at det samtidig er nemt at udvide termonettet - nemmere end ved fjernvarme.

1.2.11 Samlet klima-effekt

Der er ikke lavet beregninger for CO2 belastningen af casene. I de samfundsøkonomiske beregninger er der en CO2 beregning, men den tager ikke hensyn til om elforbrug kan flyttes til timer med mindre timebelastning. Et andet forhold, som der ikke er regnet på, er en livscyklusvurdering på varmepumper, rør og øvrig teknik.

Vurderingen her går således på hvilke løsning der bedst kan udnytte timer med lavest CO2 belastning i elsystemet, og det er de løsninger der er fleksible. Her er fjernvarmeløsningen med én stor varmepumpe og et varmelager den bedste.

I tilfælde hvor det ikke er rentabelt at etablere fjernvarme, har termonettet en klar fordel da det hjælper til at substituere fossile brændsler

Se øvrige overvejelser og konklusioner i kapitel 4.

Side 8 af 39

1.3 Usikkerheder

De større usikkerheder, som er knyttet til beregningerne i nærværende rapport, handler især om lægning af rør og varmeoptag fra de nye termonet. Varmeoptaget fra jorden kan variere betydeligt alt efter jordtype, og det forventes at der kan være store variationer i udgiften til at lægge et termonet, alt efter hvorvidt der kræves individuel nedgravning af frem og retur, og alt efter hvordan rørene kan lægges i praksis og hvor meget plads der er til at lægge rørene på den givne lokalitet. Hvis rørene skal lægges i vejsider hvor der også ligger andre kabler og rør, kan dette være en fordyrende faktor. Det skal derfor noteres at disse parametre i nærværende rapport er baseret på standardoverslag, og der bør foretages specifikke vurderinger når en case analyseres i detaljer.

1.4 Introduktion til termonet konceptet

Et termonet er en fælles varmeløsning, som kan ses som en kombination af et fjernvarmenet og individuelle jordvarmepumper. Systemet har således et fælles jordvarmeanlæg hvori der fremføres vand eller brine med en temperatur der vil svare nogenlunde til jordens temperatur eller grundvandets temperatur. I hvert hus udnyttes varmen, som cirkuleres i det fælles rørnet til opvarmning via en varmepumpe. Varmepumpen hiver varmen ud af nettet/brinen og anvender den til at levere rumopvarmning og brugsvand ved højere temperaturer. Termonettet kan dermed ses som et koldt fjernvarmesystem og det kan også klassificeres som et kollektivt forsyningsanlæg når der er en samlet anlægskapacitet på over 0,25MW. Det fælles net giver gode muligheder for at anvende mange forskellige varmekilder. Varmekilderne kan for eksempel være lodrette lukkede boringer, åbne grundvandsboringer, almindelige jordvarmeslanger eller overskudsvarme. En illustration af et termonet kan ses på Figur 1.

Side 9 af 39
Figur 1: Illustration af et termonet med varmepumper i hvert hus og et fælles ledningsnet, der er koblet til overskudsvarmekilde og en lodret jordboring1 . 1 Illustration fra foreningen Termonet Danmarks hjemmeside (Termonet.dk)

Termonettet har en række fordele når man sammenligner med varmeforsyning via individuelle varmepumper eller et mere traditionelt fjernvarmenet. Fordelene i forhold til individuelle varmepumper er blandt andet:

- Mulighed for at udnytte mange forskellige varmekilder inkl. spildvarmekilder ved lav temperatur

- Mindre el-forbrug i varmepumpen end ved luft/vand varmepumper, fordi jordtemperaturen er højere end f.eks. luftens temperatur i vinterhalvåret og der derved opnås højere SCOP2 i varmepumpen

- Mindre CO2 belastning end for luft/vand varmepumper grundet højere SCOP

- Ingen støj fra individuelle luft-vand varmepumper

- Fælles anlæg gør koncepter med lodrette jordvarmeboringer mere konkurrencedygtige med andre varmeforsyningsformer

- Der kræves ikke nødvendigvis et stort grønt område til anlæg af vandrette jordvarmeslanger

Modsat traditionel fjernvarme har vandet i rørene en lavere temperatur. Det har den fordel at det giver mulighed for frikøling om sommeren, hvorved jorden ”genoplades” med varme. Hovedsageligt giver det dog to store fordele til sammenligning med traditionel fjernvarme

1. Varmetab i rørene ændres til varmeoptag

2. Billigere rørtyper uden isolering, som f.eks. HDPE kan anvendes

Termonet-konceptet er stadigvæk forholdsvis nyt og der er derfor ikke mange eksempler på opførte termonet i Danmark. Konceptet er dog afprøvet i nogle installationer rundt om i landet, der kan findes på Termonet Danmarks hjemmeside her: https://termonet.dk/projekter/

Termonet er hovedsageligt udført i nybyggede områder, men der er også enkelte eksempler på eksisterende huse, som er tilkoblet mindre termonet. Blandt andet er forsyningsformen afprøvet til 15 parcelhuse i Silkeborg, hvoraf de 14 huse var nybyggede og blev opført efter anlæggelse af termonettet. Det største termonet i Danmark er i Jyllinge med 71 boliger. Et mindre termonet er også opført til tre huse i Skjoldbjerg, hvoraf de to er eksisterende huse fra 1970’erne. Termonet er ligeledes hovedsageligt afprøvet i forbindelse med mindre bebyggelser, og en af de større installationer på nuværende tidspunkt dækker f.eks. 51 nye Lind og Risør boliger i Tune.

2 SCOP: Seasonal coefficient of performance

Side 10 af 39

2 Tekniske og økonomiske sammenligninger

I dette afsnit gives en gennemgang af metoden, der er anvendt til at analysere de fire cases og de grundlæggende antagelser, der er taget i forbindelse med arbejdet. Alle priser der er angivet, er som udgangspunkt ekskl. moms.

2.1 Organisering

Der er taget udgangspunkt i at forbrugerne ydes samme komfort, som traditionel fjernvarme. Det vil sige at forbrugerne bliver afregnet på ”varmesiden” og at der er en organisation der tager sig af både etablering og drift af systemet. Dvs. at det er organisationen der ifm. termonet ejer varmepumperne selv om de står i husstandene.

Det er denne model der anvendes i projektet Kold Fjernvarme i Silkeborg. Her har Silkeborg Forsyning givet husejerne de samme betingelser, som hvis de havde en almindelig fjernvarme installation.

Det betyder også at projektet er underlagt ”Varmeforsyningsloven” med de muligheder og bindinger det giver.

En anden mulig organisering kunne være at kun selve termonette ejeres i fællesskab og at varmepumperne ejes individuelt. Men det er altså ikke tilfældet i denne rapport.

2.2 Introduktion til cases

2.2.1 Bjæverskov, Køge Bjæverskov er en større landsby i Køge Kommune. Der er ca. 1.100 husstande, som ligger relativt tæt i villakvarterer. Desuden er der offentlige institutioner med varmeforbrug. Derudover er der et par virksomheder med mulighed for levering af overskudsvarme. Samt en transformatorstation i nærheden, hvor der også er kilder til overskudsvarme. Den nuværende varmeforsyning består primært af naturgas (76 % af varmeforbruget og 75 % af husstandene) samt olie (13 % af varmeforbruget og 11 % af husstandene). Derudover er der boliger med elvarme, varmepumper og biomassefyr.

2.2.2 Ulstrup, Kalundborg

Ulstrup er en landsby nord for Kalundborg. Der er omkring 235 husstande i landsbyen, og husene har i dag ingen kollektiv energiforsyning og ca. halvdelen er opvarmet med oliefyr mens de resterende er opvarmet med varmpumper, elvarme eller biomasse. Der er ikke oplagte kilder med overskudsvarme i nærheden

2.2.3 Kædehusbebyggelse, Fredensborg

Der ses på et område med kædehuse i Fredensborg, som i nærværende rapport benævnes område 1. Området består af omkring 100 huse, hvoraf størstedelen i dag er opvarmet med naturgas, mens en mindre del er elopvarmede. Mellem husrækkerne er der grønne kiler med græs og syd for husene findes et større grønt område med græs.

Side 11 af 39

2.2.4 Resort Lidsø, Lolland

Der er tale om et sommerhusområde hvor Lidsø Gods vil bygge 42 nye sommerhuse i et område ved ved

Kramnitze i Rødby Fjord. Der er mulighed for at vinde varmekilden i søvand i området. Varmebehovet regnes som ved nye helårs huse.

2.3 Scenarier og forudsætninger

For hver af de 4 cases med byer i forskellig udformning er der sammenlignet et antal scenarier for mulig varmeforsyning De forsyningsscenarier, der er inkluderet, er:

Bjæverskov Ulstrup Fredensborg Lidsø

Termonet med jordboringer #1 #1 #1 #1

Termonet med overskudsvarme og

jordboringer #2

Termonet med jordvarme og energifang #3 #2 #2

Termonet med søvarme #2

Fjernvarme med l/v varmepumpe #4 #3 #3

Fjernvarme med overskudsvarme og l/v

varmepumpe #5

De er sammenlignet med en reference med individuel l/v varmepumpe i eget regi.

Scenarierne med overskudsvarme indgår kun for Bjæverskov

2.3.1 Varme- og energi beregninger

Varmebehovet i bygningerne i de fire cases er som udgangspunkt taget fra Varmeatlas. For typiske parcelhuse som er med i studiet, er varmebehovet på 14-18 MWh/år. Det antages at 15 % af dette består af varmt brugsvand. Spidslasten i husene er sat til ca. 8,5 kW per hus.

Det antages at jordvarmepumperne som kobles til et termonet har en SCOP på 3,4 mens individuelle luft/vand varmepumper der ses som reference til termonettet har en SCOP på 3,0. Den mængde energi der skal leveres fra termonettet reduceres svarende til denne SCOP, da den resterende del af varmebehovet dækkes af el fra varmepumpen.

Spidslasten i det samlede termonet er estimeret tilsvarende som for et fjernvarmenet, ud fra fordelen ved at alle forbrugere ikke står i en spidslast situation samtidig.

I nærværende projekt er der ikke regnet på kølebehov i bygningerne, da de udvalgte cases hovedsageligt omfatter eksisterende bygninger.

2.3.2

I det følgende skelnes der mellem vandret og lodret jordvarme. Den vandrette jordvarme er den traditionelle jordvarme som etableres i græsplæner eller marker. Den lodrette løsning kræver boringer og anvendes normalt kun hvis der mangler plads i den vandrette løsning.

Side 12 af 39
Varmeoptag og jordtyper

Varmeoptaget fra jorden afhænger meget af de lokale jordforhold. Estimater for hvordan jorden ser ud forskellige steder i Danmark kan findes fra f.eks. GEUS, men specifik viden om emnet kan først opnås ved at lave prøveboringer og undersøge jordforholdene mere detaljeret. I dette projekt er formålet at lave et overslag over hvornår termonet er rentabelt, og der er derfor anvendt standardværdier for varmeoptag fra jorden.

Der er i projektet antaget et varmeoptag på 20 W/m fra jordvarmeslanger og vandrette rør, mens der er antaget et varmeoptag på 35 W/m for lodrette boringer3 . De 20 W/m er angivet per m rør der lægges i jorden, mens de 35 W/m for den lodrette boring angives i forhold til dybden på boringen. Varmeoptaget i lodrette boringer kan være betydeligt højere end 35W/m4, og det kan ifølge referencerne være op til 6070 W/m i tilfælde af at der tilføres overskudsvarme til jorden fra frikøl eller andre kilder. Det angivne tal for den lodrette boring anses derfor som forholdsvis konservativt. Varmeoptaget varierer over året ligesom jordtemperaturen. I disse beregninger er der dog taget udgangspunkt i en gennemsnitsværdi.

Det er antaget at termonettet har en driftstid på 2.850 timer om året, hvorved den årlige gennemsnitlige varmeudvinding er ca. 6,5 W/m for de vandrette slanger og 11,4 W/m for de lodrette boringer.

Antallet af lodrette boringer og den nødvendige størrelse af spildvarmekilder fastsættes som forskellen mellem varmebehovet til spidslast og årligt varmebehov fratrukket varmeoptag fra det vandrette ledningsnet.

Lodrette boringer tænkes i dette projekt udført, som lukkede U-boringer, hvor det lukkede jordvarmekredsløb udveksler varme med den omkringliggende jord. Boringerne kan typisk være mellem 40-200 m dybe og der bør være 5-7 m mellem de lodrette boringer for at undgå at de har negativ indvirkning på hinanden. Boringer på mere end 250-300 m kræver tilladelse efter undergrundsloven

2.3.3 Lægning af jordvarmeslanger

I nedstående link har firmaet Vølund beskrevet deres regler for lægning af jordvarmeslanger:

https://volundvt.dk/installatoer/jordvarmepumpe/laegningsinstruktion-af-slanger-til-jordvarme Almindeligvis vil man lægge jordvarmeslanger med en afstand på minimum 1 m, for at sikre at slangerne ikke påvirker hinanden, hvilket kan betyde at varmeoptaget fra den enkelte slange mindskes. I dette projekt antages det derfor, at jordvarmeslanger skal lægges med en afstand på 1 m, hvilket i de eksisterende bydele antages at betyde at der skal graves individuelle render til fremløb og returløb, alternativt skal frem og retur spules eller skydes ned i jorden individuelt. I eksisterende bebyggelser kan dette være en betydeligt besværliggørende og fordyrende faktor, fordi der ikke altid er plads til at lægge slangerne med 1 meters mellemrum i vej- og grøftekanter. Ved en detaljeret vurdering af et kommende projekt, må de praktiske forhold undersøges nærmere.

I nærværende projekt er der regnet med omkostninger til at nedgrave/lægge varmeslanger i både frem og retur i termonettet. Modsvarende er der for fjernvarmeløsningen regnet med, at man kan nøjes med at grave en enkelt rende og lægge f.eks. et twin-rør, hvorved der kun skal graves halvt så mange meter rende som for termonet.

3 Den lille blå om varmepumper, Dansk Energi, 1. udgave marts 2011.

4 Inga Sørensen, Jordvarmeboringer – problemstillinger og perspektiver, artikel i Vand og Jord nr. 3, 2010.

Side 13 af 39

Længden af de vandrette slanger i de udvalgte cases er estimeret ud fra geografien de enkelte steder

2.3.4 Ledningsnet

Der er ikke beregnet et egentligt ledningsnet i de 4 cases, men der dog vurderet på størrelser af rør i systemerne. Hvis der skal arbejdes videre med et projekt, vil der skulle regnes på dimensioner af et fordelingsnet, både for termonet og fjernvarmenet. Det kan gøres i et program som Termis eller Energis fra Danfoss. Det er som nævnt ikke foretaget i denne udredning men ledningerne er skitseret groft i forhold til spidslasterne og temperaturdifferenserne i de forskellige cases.

Nærværende projekt sigter mod at give et overslag på hvornår termonet kan betale sig at etablere. Der er derfor ikke gået i detaljer med tekniske løsninger til hydraulik i det store ledningsnet eller dimensionering af rørene i nettet. Der kan på denne foranledning være nogle usikkerheder især for større termonet, som vi ikke har set eksempler på i Danmark endnu. Disse usikkerheder er ikke beskrevet eller nærmere inkluderet i dette projekt.

2.3.5 Priser for lægning af jordvarmeslanger

Jordvarmeslanger kan potentielt lægges på mange måder. I græsplæner kan de spules ned med en maskine, de kan lægges i hver sin ende af meter brede render og de kan, måske i nogle tilfælde, skydes i jorden. I nærværende projekt, er priserne til lægning af jordvarmeslanger antaget delvist i forhold til referencepriser hos entreprenører og delvist ud fra erfaringsværdier for omkostninger ved at lægge vandrør.

Selve rørene til termonettet er meget billige og skal ikke isoleres, og det forventes derfor, at der er meget lille udgift forbundet med selve indkøbet af rør og svejsning af rørene. Det er hovedsageligt gravearbejdet, der er dyrt. Derudover er det yderligere fordyrende hvis der graves i områder med belægning, da fliser og asfalt i så fald også skal reetableres. For fjernvarmerørene der undersøges i referencen, er udgifterne til selve rørene og håndtering betydelige.

På Figur 2 ses en sammenligning af de estimerede priser til at lægge 1 m termonet slange og 1 m fjernvarmerør i en diameter omkring DN40. Som tidligere nævnt forudsættes at skulle lægges dobbelt så lang ledningslængde for termonet som for fjernvarme, da der både skal lægges frem og retur separat for at opretholde en afstand på 1 m mellem jordvarmeslangerne. Modsat kan fjernvarmerør etableres som twinrør hvor frem og retur føres i samme rør og der kun skal graves én rende.

I praksis vil man på en etableret vej skulle forholde sig til 3. parters ledninger og f.eks. isolere den koldeste af termoledninger i nærheden af vand- og kloakledninger så risiko for frysninger undgås. Desuden skal man forholde sig til om brineledningerne kan ligge i samme side af vejen og hvordan man krydser veje.

I mange tilfælde vil det være nemmest og billigst at lægge brineledninger med mindre end 1 m. Det vil så til gengæld risikere at gå ud over varmeoptaget. Det er et område og problematikker som bør undersøges nærmere. Der er således mulighed for at etablering af termonet kan blive billigere, men i veje med mange andre ledninger vil termonet opleve det samme bøvl og fordyrelser, som man kender fra fjernvarme- og vandsektoren.

Side 14 af 39

2.3.6 Lodrette boringer

Prisen på lodrette boringer afhænger naturligt nok af adgangsforholdene og antallet af boringer, der udføres. I dette projekt antages det at boringer udføres til 120 m dybde og at boringerne koster 80.000 DKK pr. stk. Denne pris er sat jævnfør erfaringer fra det udførte termonet i Silkeborg.

Geodrilling angiver at prisen for 1 boring på 120 er ca. 80.000 kr. ekskl moms, mens prisen for 10 boringer er 66.000 kr. ekskl. moms. Prisen flader ud herefter, men det er nok ikke urealistisk at kunne ramme 60.000 kr. pr. boring ekskl. moms ved 20 boringer og op Dvs. at prisen for lodret jordvarme nærmer sig vandret . Men det er stadig i bebyggelser hvor der er begrænset plads at boringerne er atraktive.

2.3.7 Energifanger

Firmaet SolarVenti, der sælger en udgave af energifangere skriver således:

En energifanger er en slags åben solfanger, uden glasdæklag, der udnytter varmen både fra luft, sol, regn mm. En varmepumpes bedste driftstemperatur (på den kolde side) er 10 – 15 grader og her er netop en energifanger det mest egnede. For hver grad temperaturen i jorden stiger forbedres driften betydeligt. Bedst kombineres den med jordslanger ved at man ganske enkelt varmer jorden aktivt op til i nærheden af 20 grader i løbet af sommeren, og desuden sparer på den lagrede varme hen ad vejen. Ved nyetablering kan man nøjes med ca den halve længde jordslange. (Fordel når der er pladsmangel) Den kan gemmes godt af vejen, samt udformes på flere måder (f.x. som et hegn)

Materialerne er særdeles vejrbestandige, og er afprøvet gennem 30 år

Side 15 af 39
Figur 2: Sammenligning af de antagede omkostninger til nedgravning af rør til termonet og til almindelig fjernvarme. Omkostningerne til termonet er i denne rapport antaget at inkludere nedgravning af to rørstykker (frem og retur) der placeres min. 1m fra hinanden, mens fjernvarme antages at være et twinrør, så frem og retur føres i samme rør og der kun skal graves en rørgrav.
0 500 1.000 1.500 2.000 2.500 Termonet Fjernvarme DKK/m Befæstet areal Gravearbejde Rørpris

2.3.8 Søvarme

I Den lille blå om varmepumper beskrives søvarme: ”Sø- og havvand som varmekilde kræver en særlig tilladelse fra kommunen. Her vurderes det, om energioptaget fra søen vil påvirke søen for meget i form af ændrede temperaturforhold. Dette afhænger af søens størrelse og den fauna, der er i denne, men også af hvor meget energi man vil trække fra søen. Specielt i vintermånederne kan dyrelivet i søen blive påvirket. Kommunen vurderer ansøgningen i forhold til bekendtgørelsen om etablering af jordslangeanlæg, men også i forhold til naturbeskyttelsesloven, såfremt søen er større end 100 m2 Søvandsanlæg, populært kaldet søvarme, etableres ved, at der nedlægges en slange i søen svarende til en jordslange for jordvarmeanlæg. Slangen lægges typisk på søens bund, hvor den skal forankres forsvarligt. Systemet fungerer ligesom et jordvarmeanlæg, hvor der i slangen cirkulerer en frostsikret væske. Der er ikke nogen officielle dimensioneringsregler i Danmark for søvarme-varmeoptagere. Varmeoptaget er typisk 20-40 W/m for en 40 mm PEL slange ved temperaturer over 0,5 °C. Søens temperatur kan variere fra 0 °C til 20 °C over året. Typisk er søen kold i vinter- og forårsmånederne og varm i efteråret. Er der gennemstrømning af grundvand, vil temperaturen være 6-8 °C hele året.”

2.3.9 Fjernvarmeforsyning

I fjernvarme-scenarierne er der som udgangspunkt regnet med en varmeforsyning fra en centralt placeret l/v varmepumpe. Det er den teknologi som vinder udbredelse i disse år og installeres hos mange fjernvarmeværker. Varmepumpen dimensioneres til at dække 85 % af spidslast behovet og 95 % af det årlige varmebehov. Som spids- og reserve-kedel regnes med en naturgaskedel.

Anlægspriserne og driftsudgifter er dels taget fra Energistyrelsens Teknologikatalog og dels baseret på PlanEnergis erfaringer fra udbudte projekter med større varmepumper.

Selve fjernvarmenettet udlægges som serie 3 rør, der er den bedste kvalitet samt et temperatursæt på 70 ◦C i fremløb og 35 ◦C i returtemperatur.

Side 16 af 39
Figur 3: Billeder af en energifanger fra en vinterdag. Den kolde brine fra varmpumpen kommer op i fangeren i nederste venstre hjørne og vender i den højre ende. Undervejs kan mn se at den opvarmes af luften. Se også beskrivelsen i bilaget.

2.3.10 Omkostninger til brugerinstallationer

I huse forsynet med termonet installeres inde-delen af en varmepumpe, som kobles på det fælles net. Prisen for denne er sat til 50.000 DKK. Prisen for en individuel luft/vand-varmepumpe er sat til 85.000 DKK, mens prisen for en fjernvarmeunit er sat til 15.000 DKK5. I alle tilfælde er det estimeret at installationen af selve varmepumpen eller fjernvarmeuniten koster 5.000 DKK. For termonet- og fjernvarmeløsningerne installeres også en energimåler til afregning af forbrug, som koster ca. 3.000 DKK. For varmepumperne i termonettet antages der en ekstra udgift til el-tilslutning på ca. 8.200 DKK til etablering af måler til brug for afregning, hvilket kan være nødvendigt hvis termonettet etableres som en fælles varmeforsyning, hvor varmepumpen ejes og driftes af en fælles varmeudbyder. Til gengæld antages det så, at lån til varmepumpe og andre installationer til termonet, ligesom for fjernvarme, kan optages til en lav rente gennem kommunekredit da det er et kollektive forsyningsanlæg med garanti fra kommunen

Lån til en individuelle luft/vand varmepumpe antages at optages til en rente på 4 %, som en almindelig privat forbruger vil kunne optage lån til.

Der antages udgifter til drift og vedligehold af varmepumper og målere i termonettet på 1.750 DKK per forbruger per år, og mindre udgifter til administration og service. Det samme antages til et fjernvarmenet med fælles stor varmepumpe.

2.3.11 Eludgifter

Elpiser er angivet i henhold til Cerius prisstruktur. Tabel 1 viser de input der er anvendt for varmepumper hos individuelle forbrugere.

Tabel 1: Elpriser (excl.moms.) for varmepumper i et termonet. Se https://cerius.dk/priser-og-tariffer/tariffer-ogabonnementer/gruppe-c/

Priserne i kolonne ”C-forbruger” er de priser og takster der anvendes for en almindelig forbruger, der køber el til sin egen varmepumpe (referencen). Kolonnen th. er de takster og priser der er anvendt når det er et selskab der ejer og driver varmepumperne. Forskellene er dels: elspotprisen, som er indkøbsprisen for el på time basis. Der kan et selskab købe el lidt billigere end en privat forbruger. Dels er det spørgsmålet om at kunne styre varmepumpen så spidslastperioden mellem kl. 17 og 20 undgås.

Side 17 af 39
Tariffer elkøb Cerius C-forbruger C-forbruger, selskab Spidslast (kl 17-20, okt-marts) 546 546 Timer/år Lavlast (alle andre timer) 8.214 8.214 Timer/år Undgå spidslast Nej 50% Distributionstarif,spidslast 475,70 475,70 kr./MWh Distributionstarif,lavlast 154,10 154,10 kr./MWh Distributionstarif, reelt 174,14 164,44 kr./MWh Transmissionstarif 110,00 110,00 kr./MWh Energiafgift 8,00 8,00 kr./MWh I alt 292,14 282,44 kr./MWh Elspot 240,00 220,00 kr./MWh Samlet elpris 532,14 502,44 kr./MWh
5 I overensstemmelse med tal fra Teknologikataloget

Her forventes det at et selskab med kontrol over varmepumpen i højere grad vil kunne styre varmepumperne end en privat forbruger. Dette vil selvfølgelig ikke altid være tilfældet, men der er udgangspunktet for sammenligningen.

For et fjernvarmeselskab er tarifstukturen anderledes end for en husstand, da der er et større forbrug på ét sted, og det gør at elprisen bliver lavere, som vist i Tabel 2.

Tabel 2: Elpriser (excl.moms.) for central varmepumpe til fjernvarme.

Tariffer elkøb Cerius B-forbruger,

Det kan bemærkes at elspotprisen på det seneste er steget, så den er mindst dobbelt så høj nu som angivet i tabellen. Det er dog valgt at fastholde den på det her niveau da markedet er meget volantilt.

2.3.12 Projektøkonomi og tilbagebetalingstider

Det antages at tekniske installationer tilbagebetales på 15 år, mens lodrette boringer tilbagebetales over 25 år og ledningsnet over 30 år.

Omkostninger til det samlede projekt tillægges 5 % til uforudsete udgifter og 4 % til projektering.

Lån til kollektive forsyningsanlæg kan optages til en rente på 0,75 % gennem kommunekredit. Dertil lægges en rente for garantien for lån, som stilles af kommunen. Her er der regnet en 1 %, som Køge Kommune opkræver af de forsyningsselskaber hvor der stilles med en kommune-garanti. I beregning af kapitalomkostningerne (renter og afdrag på lån) tages der udgangspunkt i de enkelte investeringsgrupper, og der beregnes en ydelse med renten på 1,75 % samt en forventet afskrivningstid for den pågældende gruppe (f.eks. varmepumper afskrives over 15 år.) I beregningen betragtes det således som en række lån med forskellig løbetid. I praksis vil der normalt blive optaget ét lån med en løbetid på 25 år. Metoden med at regne med flere forskellige lån gør sammenligningen mellem forskellige scenarier mere rimelig.

Side 18 af 39
fjernvarme Spidslast (kl 17-20, hverdage okt-marts) 1.365 Timer/år Højlast (7-23, hverdage, sommmer + vinter; 6-7+20-24)2.205 Timer/år Lavlast (alleandre timer) 5.190 Timer/år Styring der undgår spilslast Ja Distributionstarif,spidslast 167,70 kr./MWh Distributionstarif,højlast 104,80 kr./MWh Distributionstarif,lavlast 48,60 kr./MWh Undgå spidslast 100% Undgå højlast 50% Distributionstarif, reelt 58,45 kr./MWh Transmissionstarif 110,00 kr./MWh Energiafgift 4,00 kr./MWh I alt 172,45 kr./MWh Elspot 220,00 kr./MWh Samlet elpris 392,45 kr./MWh

2.4

Bjæverskov er en ret stor landsby med ca. 1.000 husstand samt butikker, institutioner og erhvervsområde. Fra Køge Kommune er der oplyst en række data for varmeforbrug og det har ført til antagelser om tilslutning til et fælles net (enten termonet eller fjernvarme)

Varmegrundlag og tilslutning

Ved design af et termonet er det vigtigt at dimensionerne på rørene ikke bliver for store da temperaturdifferensen i termonet er meget lavere end for fjernvarme. I en by der er så stor som Bjæverskov er det forudsat at byen inddeles i områder, som forsynes fra et jordvarme-felt i udkanten af byen. Det er illustreret på kortet nedenfor. Uanset om der er tale om lodret eller vandret jordvarme er der umiddelbart godt plads omkring byen, hvis man kan blive enig med lodsejerne om leje af jord til formålet.

Der er andre mulige varmekilder i Bjæverskov. Der er overskudsvarme fra et par virksomheder og en transformatorstation. Der har været kontakt til det lokale gartneri, som har en naturgaskedel og store drivhuse som måske kunne udnyttes i forhold til overskudsvarme. Desuden er der virksomheden Centralrøgeriet som også kunne være en varmekilde. Den største kontakt har der dog været til Energinet som driver transformerstationen i udkanten af byen.

På nuværende tidspunkt er det stadigt usikkert hvor dyrt det vil blive at få etableret udstyr til at udnytte kilderne, men som kurverne nedenfor viser er der varme at hente. På årsbasis vil overskudsvarme kunne dække mindst halvdelen af byens varmebehov. Hvis der skal etableres en ledning fra industriområdet vil

Side 19 af 39
Case 1 [Bjæverskov, Køge] Tabel 3: Varmegrundlag i Bjæverskov og antagelse om tilslutning til kollektivt net. Figur 4: Skitse t.v. med opdeling af byen og forsyningsområder til termonet Skitse t.h. med hovedforsyningsledninger til distribution af overskudsvarme fra transformerstationen.
Varme Antal potientielt Tilslutning Antal Varmesalg Naturgas 15.716 MWh oghus 827 60% 496 9.430 MWh/år Olie 2.994 - 118 85% 100 2.545 MWh/år Biomasse 278 - 13 50% 7 139 MWh/år Elvarme 1.332 - 78 50% 39 666 MWh/år Varmepumpe 874 - 58 25% 15 219 MWh/år Skovboskolen, Hallen ogIF Frem 1.106 - 3 100% 3 1.106 MWh/år Guldminen/ Dueslaget2/Dueslaget1 125 - 2 100% 2 125 MWh/år Bjæverskov medborgerhus, tidl. Bibliotek 36 - 1 100% 1 36 MWh/år Bjæverskov ældrecenter 355 - 1 100% 1 355 MWh/år Samletantal ognetto varmebehov 1.101 664 14.620 MWh/år

det være muligt at varmeforsyne de andre virksomheder i området, det er dog ikke medregnet i projektet.

En anden usikkerhedskilde er i hvor høj grad overskudsvarmen i et termonet vil tabes i jorden mellem transformerstationen og husstandene, eller om jorden omkring slangerne vil virke som varmelager. Hvis der er fjernvarme vil fysikken omkring varmetab være mere kendt, men for termonet er det stadig ukendt land

Figur

transformerstation i perioden januar 2017 til maj 2021. Kilde: Energinet.

Ud over usikkerheden med varmekilderne er der usikkerhed i forhold til omkostningerne ved at etablere ledningsnettet i byen og udarbejde en fair sammenligning mellem de to typer af ledningsnet.

For at holde dimensionerne i termonettet på et rimeligt niveau opdeles byerne i flere områder, som har forbindelse til et felt med jordvarme. I casen med Bjæverskov er der regnet på at byen kan deles op i 18 områder.

Side 20 af 39
Figur 5: Billede af transformerstationen i Bjæverskov fra Energinet 6: Tab fra

#1Termonetmedjordboringer

#2Termonetmedoverskudsvarme ogjordboringer#3Termonetmedjordvarme ogenergifang

Som det ses i tabellerne ovenfor, er der meget stor forskel på de økonomiske resultater. For termonettet er det en fordel at kunne holde dimensionerne små, men det bliver svært når der i #2 er overskudsvarme fra udkanten af byen der skal fordeles. I beregningerne betyder det en forskel på 10 mio.kr. Det skal tjekkes nærmere hvis man ønsker at arbejde videre i Bjæverskov. En anden stor forskel til fjernvarmenettene hvor der er op til 40 mio.kr i forskel.

I figuren nedenfor er det forsøgt vist hvor anlægsudgifterne ligger i de beregnede scenarier. De blå søjler er summen af udgifter til varmeproduktionsanlæg (varmepumper med udstyr som boringer, energifanger mv.) De orange søjler er omkostninger til ledninger.

Side 21 af 39
Tabel 4: Beregning af dimensioner og økonomi for ledninger i scenarierne med termonet. Tabel 5: Beregning af dimensioner og økonomi for ledninger i scenarierne med fjernvarme.
Andel
Flow Valgt
Flow
Flow ValgtrørØi m3/h mm m3/h mm m3/h mm Ledningmedstørste dimension 100% 24 102 100% 138 205 100% 25 102 Ledningmedmiddel effekti bebyggelse 50% 12 82 50% 69 147 50% 13 82 Ledningmedmindre effekti bebyggelse 10% 2 41 10% 14 82 10% 3 41 Stikledningtil enkeltbolig 1 26 1 26 1 26 Ledningmedstørste dimension 10% 80% 7.048 10% 80% 7.826 10% 80% 7.048 Ledningmedmiddel effekti bebyggelse 40% 50% 9.983 40% 50% 18.435 40% 50% 9.983 Ledningmedmindre effekti bebyggelse 50% 100% 4.046 50% 100% 5.157 50% 100% 4.046 Stikledningtil enkeltbolig 50% 14.922 50% 14.922 50% 14.922 Ialt: 35.999 46.339 35.999
Figur 7: Fordeling af investeringer i scenarierne
af effekt
rørØi Andel af effekt
ValgtrørØi Andel af effekt
Investeringi net i 1.000kr. Fordelingi boligområde Andel i ubefæstiget Fordelingi boligområde Andel i ubefæstiget Investeringi net i 1.000kr. Investeringi net i 1.000kr. Andelafeffekt Flow ValgtrørØi Andelafeffekt Flow ValgtrørØi 0 m3/h mm 0 m3/h mm Ledningmedstørstedimension 100% 124 207 100% 124 207 Ledningmedmiddeleffektibebyggelse 50% 62 132 50% 62 132 Ledningmedmindreeffektibebyggelse 10% 12 70 10% 12 70 Stikledningtilenkeltbolig 100% 0 17 100% 0 17 Ledningmedstørstedimension 10% 80% 9.145 10% 80% 20.519 Ledningmedmiddeleffektibebyggelse 40% 50% 25.697 40% 50% 25.697 Ledningmedmindreeffektibebyggelse 50% 100% 20.176 50% 100% 20.176 Stikledningtilenkeltbolig 50% 20.734 50% 20.734 Ialt: 75.752 87.127 #4Fjernvarmemedl/vvarmepumpe #5Fjernvarmemedoverskudsvarmeogl/vvarmepumpe Andeli ubefæstiget Investeringinet i1.000kr. Fordelingi boligområde Andeli ubefæstiget Investeringinet i1.000kr. Fordelingi boligområde
Fordelingi boligområde Andel i ubefæstiget

Figuren viser tydeligt at fjernvarmescenarierne er dyre med ledningerne og termonettene er dyre med det øvrige udstyr; varmepumper mv.

De samlede omkostninger er vist nedenfor som udgifterne for en gennemsnitshusstand.

Figur 8: Årlige omkostninger (excl.moms) for varme i et gennemsnitligt hus (18 MWh/år), ved de forskellige varmeforsyningsscenarier.

For de tre termonetscenarier ses det på figuren at driftsomkostningerne er ens mens det er KO (kapitalomkostningerne til investeringen) der gør at #3 er den billigste løsning. De to fjernvarmescenarier er billigere i drift, men her er de dyrere at etablere.

Det ses at det igen er meget afgørende hvordan ledningsnettene prissættes. Hvis der skal arbejdes videre med et projekt i Bjæverskov er der en række forhold der skal undersøges nærmere.

2.5 Case 2 [Ulstrup, Kalundborg]

Figur 9 viser et oversigtskort over Ulstrup føring af hovedledninger til et varmenet i landsbyen. Der er omkring 235 boliger i landsbyen og det er antaget at de 148 kobles til termonettet. Det gennemsnitlige årlige varmeforbrug i husene er ca. 16 MWh.

Der ses på enten lodrette boringer eller energifangere som varmekilder til termonettet. Alternativt ses der på referencescenarier med en lille fjernvarmeløsning med central luft/vand varmepumpe eller individuelle luft/vand varmepumper i hvert enkelt hus. Kalundborg Kommune har gjort opmærksom på hensynet til drikkevand i området, og det er derfor uvis om der kan laves lodrette boringer i området. Forholdet til drikkevand skal afklares med kommunen i et egentligt projekt.Lodrette boringer inddrages dog alligevel som en reference, da det kunne være relevant i andre lignende landsbyer.

Side 22 af 39

Den totale længde af ledninger i termonettet inklusive stikledninger til hvert tilkoblet hus er estimeret til omkring 18.000 m. Det antages at 50-80 % af ledningerne kan nedgraves i ubefæstet areal, og med de estimerede rørdimensioner anslås en gennemsnitlig pris for lægning af termonet på ca. 400 DKK/m. Den gennemsnitlige pris for lægning af fjernvarmerør er anslået til ca. 1.700 DKK/m.

Det vandrette ledningsnet i Ulstrup vil ved et varmeoptag på 20 W/m dække ca. 60% af det årlige varmebehov og af spidslastbehovet i landsbyen. Dermed skal de resterende ca. 40 % dækkes af lodrette boringer eller energifang. Det skal pointeres, at varmeoptaget fra de vandrette jordvarmeslanger i scenariet er lige så bekostelige som den lodrette boring, når der ses på mængden af optaget varme. Begge dele koster ca. 19-20 DKK/W. Dette er en interessant betragtning, som betyder at det ud fra de givne forudsætninger lige så godt kan betale sig, at begrænse det vandrette ledningsnet hvis muligt, og lave flere lodrette boringer. Tilsvarende kunne man lave færre lodrette boringer og øge længden af de vandrette varmeslanger hvis muligt. Det skal pointeres, at hvis der kan nedgraves klassiske jordvarmeslanger på en åben græsplæne/mark, forventes dette at være betydeligt billigere.

Figur 10 viser de årlige varmeudgifter i gennemsnitshuset i Ulstrup for forskellige scenarier for varmeforsyning. Som det fremgår af figuren, ligger omkostningerne for de forskellige varmeforsyninger tæt. Med de valgte beregningsforudsætninger er termonet med lodrette jordvarmeboringer den dyreste løsning, med en merudgift på ca. 2.000 DKK/år i forhold til de billigste alternativer, som er individuel l/v varmepumpe og fjernvarme med l/v varmepumpe. Termonet med jordvarme og energifang er kun minimalt dyrere end de billigste alternativer, men kræver at der kan findes passende placeringer til vandrette jordvarmeslanger og energifang.

Side 23 af 39
Figur 9: Oversigtskort over Ulstrup og de antagende hovedledninger i termonettet.

#1 Termonet med jordboringer

#2 Termonet med jordvarme og energifang

#3 Fjernvarme med l/v varmepumpe

Reference; individuel l/v varmepumpe

Omkostninger for gennemsnitlig husstand [DKK/år]

Drift Kapitalomkostninger

Som det ses af figuren, er det især kapitalomkostningerne, der udgør en stor andel af den samlede pris i varmeforsyningen. For termonetløsningen med lodrette boringer fordeler kapitalomkostningerne sig som vist på Figur 11.

Kapitalomkostninger termonet

Boringer

Ledningsnet - hovedledninger

og stik

El-forsyning til VP

Energimålere

Varmepumper indkøb

Varmepumper installation

Diverse og uforudsigelige

Som det ses af figuren udgøres de største poster af 1: indkøb til varmepumper i bygningerne, 2: investering i ledningsnettet og 3: investering i de lodrette boringer. Derudover udgør el-forsyning til varmepumperne en stor post, som kunne undgås hvis afregning til kunderne kan foretages på en smartere måde, eller hvis kunderne selv kan stå for el-afregning til deres egne units.

Side 24 af 39
Figur 10: Årlige varmeudgifter inkl. renter til investering for forskellige varmeforsyninger i gennemsnitshuset i Ulstrup (16 MWh/år) Figur 11: Fordeling af kapitalomkostninger til termonet i Ulstrup.

Det er derfor oplagt at se på, hvor store ændringer, der skal til på disse poster, for at termonet med lodrette boringer bliver en økonomisk foretrukken løsning. Der er derfor foretaget følgende følsomhedsanalyser:

1) 90 % af ledningerne er på ubefæstet areal (238 DKK/m i stedet for 398 DKK/m)

2) 30 % af ledningerne er på ubefæstet areal (585 DKK/m i stedet for 398 DKK/m)

3) Ledninger afskrives over 50 år

4) Der spares 5.000 DKK per varmepumpe grundet samlet indkøb (45.000 DKK i stedet for 50.000DKK)

5) Man kan undvære udgiften til særskilt el-tavle og måler til VP (ca. 8.200 DKK sparet)

6) Der kan optages 45 W/m lodret boring (i stedet for 35 W/m)

7) Kombination af 1, 4 og 6.

Resultatet af analyserne i forhold til de årlige udgifter for et gennemsnitshus, er illustreret i Figur 12. Den stiplede linje markerer omkostningerne for løsninger med individuelle luft/vand varmepumper eller traditionel fjernvarme med luft/vand varmepumpe omkring 12.200-12.400 DKK/år. Som det ses af figuren, har justeringerne stor indflydelse på den samlede økonomi i termonettet. Man skal dog kombinere flere af de angivne tiltag, som for punkt 7, før termonettet med lodrette boringer er direkte økonomisk konkurrencedygtigt med individuelle luft/vand varmepumper eller fjernvarme med central luft/vand varmepumpe i Ulstrup.

Figur 12: Følsomhedsanalyse for årlige varmeudgifter ved termonet med lodret boring i Ulstrup.

Det kan bemærkes at hvis samme sæt følsomhedsberegninger blev udført på "termonet med vandrette slanger og energifang", så ville man formentligt komme ned på noget der var lavere end udgifterne til luft/vand varmepumper.

2.6 Case 3 [Område 1, Fredensborg]

For casen i Fredensborg, ses der nærmere på et bebyggelsesområde med tætliggende enfamilieshuse omringet af fælles grønne områder, som i det følgende vil blive benævnt Område 1. En stilistisk skitse af

Side 25 af 39

husområdet ses på Figur 13 Der er i alt 102 huse i området, hvoraf omkring 25 % er opvarmet med elvarme, mens resten opvarmes med naturgas. Det antages i beregningerne at 85 af husene tilkobles en ny fælles varmeløsning. Det gennemsnitlige årlige varmeforbrug i husene er estimeret til 16,3 MWh/år.

Der ses på enten lodrette boringer eller almindelige jordvarmeslanger kombineret med energifangere som varmekilder til termonettet. Det grønne område syd for boligerne er rigeligt stort til at anlægge vandrette jordvarmeslanger, hvilket gør dette til en attraktiv løsning hvis beboerne kan få mulighed for at bruge området til dette. Alternativt ses der på et scenarie med en lille fjernvarmeløsning med central luft/vand varmepumpe og referencescenariet med individuelle luft/vand varmepumper i hvert enkelt hus.

Det antages at de fælles varmerør til bebyggelsen lægges i de grønne korridorer mellem husene, hvorved der kun skal lægges meget få rør under befæstet areal. For termonet-løsningen er det at foretrække at lægge en ekstra afgrening op til en husrække hvis det giver mulighed for mindre gravearbejde i befæstet areal, da rørene i så fald er billigere at grave ned, og der optages ekstra varme fra de ekstra rør. Baseret på dette udgangspunkt er det estimeret, at ledningsnettet vil være ca. 7.000 m langt. Dertil kommer 2.000 m ledninger til fordeling til grupper med lodrette boringer i scenariet hvor dette anlægges. Det antages at 95 % af rørene kan lægges på ubefæstet areal, hvilket giver en gennemsnitlig ledningspris på ca. 210 DKK/m.

For scenariet hvor der ses på vandrette jordvarmeslanger i det grønne område syd for boligerne, anslås det, at der skal anlægges 12.000 m ledning til at dække hele det resterende varmebehov. Anvendes der lige dele jordvarmeslanger og energifang, anslås det, at der skal anlægges ca. 7.000 m jordvarmeslanger og installeres 170 m2 energifang.

Figur 14 viser de årlige udgifter til varme i et hus med gennemsnitligt varmebehov i Område 1, ved anlæggelse af forskellige varmeforsyningsløsninger. Som det ses af figuren, er de billigste løsninger termonet med jordvarme og energifang eller fjernvarme med luft/vand varmepumpe. For jordvarme kan

Side 26 af 39
Figur 13: Stilistisk gengivelse af kædehusbebyggelse med grønne kiler imellem husene.

man evt. forestille sig at energifang erstattes af længere jordvarmeslanger, hvilket er en mulighed hvis jordvarmeslanger kan lægges i de grønne områder omkring bebyggelsen. For fjernvarmeløsningen er der i dette tilfælde også regnet med, at fjernvarmerørene lægges i de ubefæstede grønne kiler mellem husene, for at gøre løsningen så billig som mulig. Lægges rørene i befæstet vejareal, vil fjernvarmenettet derfor blive en del dyrere. Individuelle luft/vand varmepumper koster ca. 1.000 DKK/år mere end de billigste løsninger, mens termonet med lodrette boringer anslås at koste ca. 1.000 DKK/år mere igen.

#1 Termonet med jordboringer

#2 Termonet med jordvarme og energifang

#3 Fjernvarme med l/v varmepumpe

Reference; individuel l/v varmepumpe

Årlige omkostninger i gennemsnitshus [DKK/år]

Drift Kapitalomkostninger

Ud fra beregningerne ser det ud til, at en fælles termonet-løsning kunne være en god investering, også når man tager i betragtning at denne løsning vil kunne give færre problemer med støj fra varmepumper, som vil kunne genere både i referencen med individuelle luft/vand varmepumper, men også hvis der bygges en fælles fjernvarmeløsning med central varmepumpe. Det økonomiske resultat er også her meget tæt.

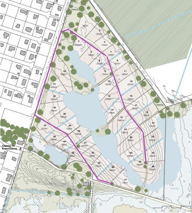
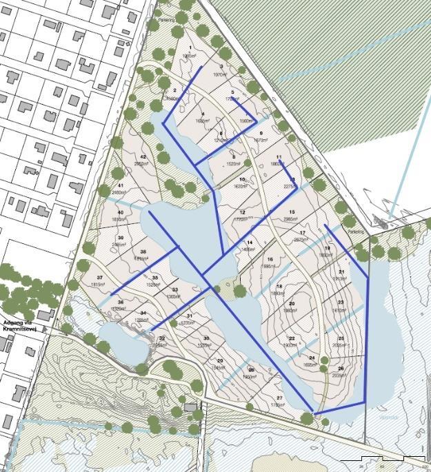
2.7 Case 4 [Resort Lidsø, Lolland]

Der er tale om et sommerhusområde hvor Lidsø Gods vil bygge 42 nye sommerhuse i et område ved ved Kramnitze i Rødby Fjord. Der er mulighed for at finde varme i søvand i området.

Varmebehovet regnes som ved nye helårs huse. Der regnes med huse på i gennemsnit 150 m2. Det vil give et årligt varmebehov på 7.500 kWh/hus.

Side 27 af 39
Figur 14: Overslag over årlige omkostninger for varme i et gennemsnitligt hus i Område 1, ved forskellige varmeforsyningsscenarier.

Situationsplan for Resort Lidsø udarbejdet af Diener&Diener Architekten.18.02.2021. På planen t.v. er indtegnet med lilla et termonet i vejene i området. På planen t.h. er indtegnet søvandsledninger, der kan fungere som termonet. I begge situationer skal der etableres stik til husene.

Der er opmålt at der skal være 2.000 m ledning termonet i vejene i #1 og den samme længde ledning i søerne i #2. Dertil lægges 2.100 m stik i begge scenarierne.

Reference; individuel l/v varmepumpe

#2 Termonet med søvandsvarme

#1 Termonet med jordvarme

Figur

De årlige omkostninger (excl.moms) for varme i et gennemsnitligt hus (7,5 MWh/år), ved de forskellige scenarier.

Det ses at resultat også her ligger relativt tæt og der skal en nøjere vurdering til at afgøre hvilken løsning der er bedst. Dog er det klart at enten jordvarme eller søvarme vil give mindre støj end de traditionelle l/v varmepumper.

Side 28 af 39
Figur 15: 16:
- 2.000 4.000 6.000 8.000 10.000 12.000
Drift KO

I #1 blev der regnet med jordboringer, men det ser ud til at termonettet i sig selv er stor nok til at dække varmebehovet og der er ikke brug for boringer.

2.8 Samfundsøkonomisk vurdering

Rammebetingelser er belyst i Kapital 3, her fremgår det at et termonet med en samlet varmekapacitet på over 250 kW skal godkendes efter gældende regler på lige fod med fjernvarme og skal følge samme krav for godkendelse efter Varmeforsyningsloven og Projektbekendtgørelsen. Dvs. at et projekt med en samlet kapacitet på over 250 kW skal udvise positiv samfundsøkonomi for at kunne godkendes som varmeforsyning.

Den samfundsøkonomiske beregning består af prissætning af følgende elementer:

• Investeringer

• Omkostninger til drift og vedligehold

• Køb af brændsler

• Salg af el til nettet

• Køb af el fra nettet

• Forvridningstab, afgifter

• Forvridningstab, tilskud

• CO2-omkostninger, brændsler

• CO2-omkostninger, el (er indeholdt i el-priserne, og derfor 0 her)

• Metan og lattergas, brændsler

• Metan og lattergas, el

• SO2, NOX og PM2,5, brændsler

• SO2, NOX og PM2,5, el

Det er ofte omkostninger til investeringer, drift og vedligehold samt omkostninger til køb af brændsler sammen med køb og salg af el, der er udslagsgivende for den samfundsøkonomiske økonomi.

For Bjæverskov casen er der vurderet på samfundsøkonomien, hvor de samme scenarier, der er opstillet selskabsøkonomisk sammenlignes og vurderes samfundsøkonomisk baseret på gældende standarder og regler.

Ved beregning af de samfundsøkonomiske konsekvenser betragtes omkostningerne for de enkelte alternativer, set fra samfundets side. De samlede omkostninger for hvert år tilbagediskonteres med en kalkulationsrente på 3,5 % p.a., og der anvendes en nettoafgiftsfaktor på 1,28 og en afgiftsforvridningsfaktor på 10 %. Herved beregnes nutidsværdierne for de enkelte alternativer.

De samfundsøkonomiske konsekvensberegninger er udarbejdet i henhold til Energistyrelsens ”Vejledning i samfundsøkonomiske analyser på energiområdet, juli 2018”, samt Energistyrelsens ”Samfundsøkonomiske beregningsforudsætninger for energipriser og emissioner”, 20. november 2018, samt senere opdateringer (seneste fra januar 2021).

Der er for Bjæverskov sammenlignet følgende alternativer:

Alternativ # 0 Nuværende, individuel forsyning med l/v varmepumper

Alternativ # 1 Termonet med jordboringer

Side 29 af 39

Alternativ # 2 Termonet med overskudsvarme og jordboringer

Alternativ # 3 Termonet med jordvarme og energifag

Alternativ # 4 Fjernvarme med l/v varmepumper

Alternativ # 5 Fjernvarme med overskudsvarme og l/v varmepumper

Der er benyttet drifts- og vedligeholdelsesomkostninger og investeringer som i selskabsøkonomien for scenarierne i Bjæverskov.

I de samfundsøkonomiske vurderinger er de samfundsøkonomiske nutidsværdier tilbagediskonteret til 2019. Samfundsøkonomien er beregnet over en betragtningsperiode på 20 år. I den følgende graf fremgår elementerne for de sammenlignede scenarier, med de samfundsøkonomiske værdier angivet i mio. kr. set over betragtningsperioden på 20 år.

Figur 17: Vurdering af samfundsøkonomiske omkostninger fordelt på de forskellige elementer set over betragtningsperioden på 20 år.

Det ses, at investeringerne her har en markant betydning for det samfundsøkonomiske resultat – og der er for alle alternativer tale om et signifikant element. Derudover er de afgørende elementer omkostninger til drift- og vedligehold samt Køb af el, hvor en højere COP-værdi for varmepumper er en fordel. CO2-omkostninger for el pr. definition er indeholdt i el-prisen, mens omkostninger til metan- og lattergas-emissioner er prissat som CO2-udledninger uden for kvotesektoren.

Da en stor fordel ved centrale varmepumper, som eksempelvis ses her i Alt # 4 og 5, med en l/vvarmepumpe i fjernvarmealternativer, er den fleksibilitet varmepumpen giver på fjernvarmen, er der regnet med 50 % lavere eltarif i disse alternativer.

Side 30 af 39

Overordnet set er det for Bjæverskov-casen, Alt #3, der har den samfundsøkonomiske laveste omkostning, mens Alt #0 med individuelle varmepumper ligger nogenlunde lige med Alt # 4 og 5, hvor der er vurderet på etablering af et fjernvarmenet med en l/v-varmepumpe samt udnyttelse af overskudsvarme i Alt #5.

Den samfundsøkonomiske vurdering skal foretages for hvert enkelt specifikt projekt, da de afgørende omkostninger vil afhænge af den givne case. Der kan eksempelvis nævnes, at der opleves markante forskelle i omkostninger til ledningsarbejde sammenlignet regionalt mellem Jylland og Sjælland, og der opleves generelt højkonjunktur i Danmark, hvorved priser og entreprise arbejde osv. kan forventes at være højere end normalt.

3 Vurdering og nødvendige rammebetingelser

Rammebetingelserne for etablering og drift af et termonet afhænger af en række juridiske forudsætninger Og heraf, hvorvidt termonettet må anses for at være et kollektivt varmeforsyningsanlæg, idet varmeforsyningslovens regler i så fald finder anvendelse.

Varmeforsyningsloven finder som udgangspunkt anvendelse på kollektive varmeforsyningsanlæg, som disse er defineret i lovens §2:

”§2.Vedkollektivevarmeforsyningsanlægforståsvirksomhed,derdriverfølgendeanlægmeddetformål atlevereenergitilbygningersopvarmningogforsyningmedvarmtvand,jf.dogstk.2:

1)Anlægtilproduktionogfremføringafandrebrændbaregasarterendnaturgas.

2)Anlægtilfremføringafopvarmetvandellerdampfrakraft-varme-værker,affaldsforbrændingsanlæg, industrivirksomheder,geotermiskeanlægm.v.

3) Fjernvarmeforsyningsanlæg, solvarmeanlæg, affaldsforbrændingsanlæg m.v., herunder varmepumpertilkombineretproduktionafvarmeogkølingogkraft-varme-anlægmedeneleffektpå25 MWellerderunder.

4)Blokvarmecentraler,herunderkraft-varme-centralermedeneleffektpå25MWellerderunder. Stk. 2. Kollektive varmeforsyningsanlæg som nævnt i stk. 1 omfatter ikke anlæg til produktion af opvarmetvand,dampellergas,derharenvarmekapacitetpåunder0,25MW,elleranlægtilfremføring afopvarmetvand,dampellergas,hvordeproduktionsanlæg,derleverertilanlægget,sammenlagthar envarmekapacitetpåunder0,25MW.”

Der er således en grænse ved en samlet kapacitet i det planlagte termonet ved 0,25 MW. I det følgende gennemgås hovedtrækkene i rammebetingelserne for kollektive varmeforsyningsanlæg over 0,25 MW.

Jf. Heatplan A/S ligger der for termonettet følgende vurderinger: ”Som det fremgår, er den installerede varmekapacitet afgørende for vurderingen af, hvorvidt termonetteterellerikkeeromfattetafVFL.Såfremtvarmekapacitetenerunder0,25MW,erderikketale ometkollektivtvarmeforsyningsanlæg,hvorimodderertaleometkollektivtvarmeforsyningsanlæg,når varmekapacitetener0,25MWellerderover.

Side 31 af 39

Detervoresvurdering,attermonettetmedhøjgradafsandsynlighedmåansesforatværeetkollektivt varmeforsyningsanlæg,hviskapacitetenafdetenkelteanlægerover0,25MW.

Hertilskaldetbemærkes,atdetafEnergistyrelsenspraksisfremgår,atderkanforeliggeetkollektivt varmeforsyningsanlæg,hvisindividuellejordvarmepumperikkeetableresogdrivesalene,mentilsluttes etfællesnet,hvorfjernvarmevandvedultralavtemperaturboostesviavarmepumperhosdeenkelte forbrugere.Iuddybendenotat,jf.bilag1,henvisesdertilenudtalelsefraEnergistyrelsenvedrørende ”koldfjernvarme”.

Det skal yderligere bemærkes, at om termonettet i det konkrete tilfælde ejes og drives af eget forsyningsselskabellerafetforbrugerejetandelsselskab,erudenbetydningforvurderingeniforholdtil VFL,daspørgsmåletaleneafhængerafanlæggetsformålogtekniskeegenskaber.”6

Derudover oplyses det for termonet og øvrige forsyningsanlæg under 0,25 MW:

”Varmeforsyningslovens (red.: VFL) definition af kollektive varmeforsyningsanlæg betyder, at anlæg under0,25MWikkeeromfattetafVFL’sprisregulering,ikkeskalgodkendesafkommunenihenholdtil projektbekendtgørelsen,samtikkekanopnåkommunegarantistillelseforanlægget.

Grænsenpåde0,25MWopgøresiforholdtildeenkelte,fysiskafgrænsedeanlæg.Sammejuridiske enhedkandervedgodthaveflerefysiskafgrænsedeanlæg,somhverisærerunder0,25MW,mensom samleterover0,25MW,udenatdisseanlægvilbliveomfattetafVFL

Rammerforaftalegrundlagetfremgårherefterafdenalmindeligeforbrugerbeskyttelseslovgivning,i stedet for VFL. Forbrugeraftalelovens bestemmelser finder derfor anvendelse, også i forhold til tariffastsættelse.”

3.1 Varmeforsyningsloven

Hvis termonettets samlede kapacitet er over 0,25 MW vil det givne projekt dermed være omfattet af Varmeforsyningsloven.

Seneste udgave af Varmeforsyningsloven er i skrivende stund: LBK nr. 1201215 af 06/0214/08/2020 udstedt af Klima-, Energi- og Forsyningsministeriet

Selve etableringen af anlægget gennemføres via Projektbekendtgørelsen, der er udstedt for kollektive varmeforsyningsanlæg i medfør af Varmeforsyningsloven.

3.2 Projektbekendtgørelse

Retningslinjerne for udarbejdelse og myndighedsbehandling af projektforslag er affattet i Projektbekendtgørelsen; Bekendtgørelse om godkendelse af projekter for kollektive varmeforsyningsanlæg, BEK nr. 1794 af 2/12/2020 af Energi-, Forsynings- og Klimaministeriet.

Projektbekendtgørelsen er grundlaget for kommunernes sagsbehandling af projektforslaget for kollektive varmeforsyningsanlæg, da projektforslaget indeholder forudsætningerne for at kommunen

6 Heatplan A/SKOLD-projektet, Afrapportering 30. november 2017

Side 32 af 39

kan træffe en afgørelse. Minimumskrav til indhold i et projektforslag er givet i Projektbekendtgørelsen. Det gælder bl.a.:

• Regler om partshøring

• Krav til materiale

• Regler for beregningsforudsætninger

Generelt gælder, at kommunalbestyrelsen skal godkende det samfundsøkonomisk mest fordelagtige projekt. Samfundsøkonomien er den afgørende del for et givent projekt. Derfor vil der i et projektforslag skulle opstilles og regnes på en række (reelle og realistiske) alternativer, for at kunne bevise at termonet er den samfundsøkonomiske mest fordelagtige forsyningsform i det givne projekt.

Alternativer til et reference-scenarie kan eksempelvis være:

• Individuel forsyning fra luft-vand varmepumper

• Individuel forsyning fra jordvarmeanlæg

• Traditionel fjernvarme med lokal produktion eller via transmissionsledning

Ved ansøgning gennem projektforslag gøres der opmærksom på at der med godkendelsen opnås en ret til at forsyne et område med varme, men at godkendelsen også medfører forsyningspligt over for de ejendomme, der er beliggende i området.

3.3 VVM-anmeldelse

I forbindelse med udarbejdelse af projektforslaget skal projektet vurderes i henhold til Lovbekendtgørelse LBK nr. 973 af 25/06/2020 om miljøvurdering af planer og programmer og af konkrete projekter (VVM) i medfør af lov om planlægning, LOV nr. 427 af 18/05/2016 (i det følgende kaldet VVMbekendtgørelsen).

Traditionelle fjernvarmenet vurderes til at være omfattet af følgende punkter i Bilag 2 i VVMbekendtgørelsen:

Punkt 3 i Bilag 2 vedrører energiindustrien:

..

b) Industrianlæg til transport af gas, damp og varmt vand

Overordnet, må termonet indgå under samme vurdering. Derudover nævnes geotermiske boringer under punkt 2 i Bilag 2 for Udvindingsindustrien:

d) Dybdeboringer (projekter, som ikke er omfattet af bilag 1), navnlig:

i) geotermiske boringer

Idet termonet må anses opført i bekendtgørelsens bilag 2, medfører det, at der skal udarbejdes en VVManmeldelse fra bygherre til den pågældende kommune, der på baggrund af anmeldelse samt data for projektet udarbejder en screening vedr. krav om miljøvurdering og tilladelse. Screeningen danner baggrund for myndighedens afgørelse af, om projektet vurderes at medføre væsentlige miljøpåvirkninger og dermed er omfattet af krav om miljøvurdering og tilladelse.

Side 33 af 39

Det pålægger kommunen at igangsætte denne screening. Såfremt der vil blive krævet miljøvurdering, skal der udarbejdes en miljøkonsekvensrapport i henhold VVM-Bekendtgørelsen, før plangrundlaget er på plads og projektet kan realiseres.

3.4 Mulighed for kommunegaranti

I Varmeforsyningsloven er det angivet, at en kommune kan stille garanti for lånoptagelse til finansiering af anlægsinvesteringer eller driftsaktiviteter i en virksomhed omfattet af §2b

Kommunen kan også stille garanti for private varmeforsyningsvirksomheders lånoptagelse, så længe der blot er tale om virksomhed, som kommunen selv vil kunne varetage efter §2b i Varmeforsyningsloven.

Det bør bemærkes, at muligheden for kommunal garantistillelse ikke gælder, hvis der er tale om virksomhed, som driver varmepumper til kombineret produktion af varme og køling, jf. §2d i Varmeforsyningsloven.

For termonet-konceptet betyder det, at der i forbindelse med etablering af termonet til kollektiv varmeforsyning på over 0,25 MW vil være mulighed for at opnå kommunal garantistillelse, såfremt der udelukkende er tale om varmeproduktion.

Hvis termonettet etableres med henblik på kombineret produktion af varme og køling, er det usikkert om kommunen må stille kommunegaranti til projektet. Der mangler så vidt vides en afklaring fra Energistyrelsen, som foreningen Termonet Danmark følger op på.

3.5 Regulatoriske problemstillinger

I projekterne ”Landsbyvarme med ATES” og ”HEATPLAN A/S – KOLD-projektet” gennemgås nogle af de juridiske udfordringer som termonet konceptet er underlagt. Først og fremmest er det væsentligt, at der kan opnås lav rente til investeringerne i et termonet system. Dette kan opnås ved at der kan opnås kommunal garantistillelse, hvorved der kan opnås et favorabelt lån med lav rente. For at dette kan opnås skal anlægget som udgangspunkt leve op til varmeforsyningslovens §2b. Dette kræver umiddelbart følgende:

- Der skal være en samlet varmeleverance på over 250 kW for at det kan anses som et kollektivt system

- Der må kun leveres varme og ikke køling

- Løsningen skal være samfundsøkonomisk rentabel i forhold til andre bæredygtige opvarmningsformer, f.eks. individuelle luft/vand varmepumper eller mere traditionel fjernvarme

- Der er en række krav til praksis angående prisstruktur og økonomi

Side 34 af 39

4 Konklusioner

Termonettet har en række fordele når man sammenligner med varmeforsyning med individuelle varmepumper eller et mere traditionelt fjernvarmenet. Fordelene i forhold til individuelle varmepumper (luft/vand) er blandt andet:

- Ingen støj fra individuelle luft-vand varmepumper

- Mulighed for at udnytte mange forskellige varmekilder inkl. spildvarmekilder ved lav temperatur

- Mindre el-forbrug i varmepumpen end ved luft/vand varmepumper, fordi jordtemperaturen er højere end f.eks. luftens temperatur i vinterhalvåret og der derved opnås højere SCOP i varmepumpen

- Mindre CO2 belastning end for luft/vand varmepumper grundet højere SCOP

- Der kræves ikke nødvendigvis et stort grønt område til anlæg af vandrette jordvarmeslanger da der kan kombineres med lodrette jordvarmeboringer eller energifangere.

- I termonet med jordvarme ligger temperaturen i brinen på omkring 10 °C Det har den fordel at det giver mulighed for frikøling om sommeren, hvorved jorden ”genoplades” med varme. Hvis bebyggelsen / landsbyen har en rimelig tæt karakter, er det også oplagt at overveje en fjernvarmeløsning. Det kan være relevant i mange områder hvor der i dag er forsyning med naturgas. Termonet har to fordele til sammenligning med traditionel fjernvarme:

- Varmetab i rørene ændres til varmeoptag

- Billigere rørtyper uden isolering, som f.eks. HDPE kan anvendes.

En ulempe ved et termonet er at energien ikke kan udnyttes direkte i bygningen og vil kræve lokale varmepumper. Dermed er forsyningen afhængig af elforbrug hos de individuelle forbrugere, og de mange små varmepumper er ofte dyrere og mindre effektive end en stor varmepumpe. Ligeledes kan der ikke opnås samme fleksibilitet i elforbruget, som når varmen leveres fra en stor varmepumpe med et større centralt varmelager.

I de bebyggelser, som egner sig til fjernvarme, er det væsentligt at sammenligne termonet med varmeforsyning fra et mere traditionelt fjernvarmesystem, hvor varmen leveres via en stor varmepumpe med lager Én stor varmepumpe kan nemmere indgå i reguleringen i elnettet, så el fra sol og vind udnyttes bedre.

Derfor er fjernvarme ofte den bedste og mest klima rigtige løsning til byer/bebyggelser hvor husene ligger så tæt, som vi kender det fra mange bebyggelser og villakvarterer. Desuden er det en fordel hvis der er en storforbruger som en skole eller institution.

Hvis bebyggelsen er mere spredt eller der er tale om en ny-udstykning med større afstand til eksisterende fjernvarme er termonet relevant.

Der kan være ”mellem-løsninger” hvor mindre klynger af bygninger, kan forbindes via termonet og have lokale produktionsanlæg, der hæver temperaturen med større varmepumper og sender det ud i lokale mere traditionelle fjernvarmenet. Det betyder, at man kan etablere billigere transmissionsnet med lunkent vand fra virksomheder eller f.eks. rensningsanlæg, og så kan separate små fjernvarmenet levere lokalt til de enkelte bygninger. Fordelen her er, at såfremt en virksomhed kan levere mellem- eller lavtemperatur kvalitet varme eller varmen kan hentes fra undergrunden, så kan flere mindre bysamfund

Side 35 af 39

få glæde af energien, men omkostninger til rør og gravearbejder reduceres sammenlignet med et traditionelt fjernvarmenet.

Når det kommer til termonet-konceptet, er der et behov for at udvikle koncepter og metoder. Det er f eks. en afgørende parameter for beregningerne i denne rapport, at termonettenes frem- og retur ledninger ikke må ligge for tæt. Det er en omkostning når man skal etablere net i vej med fortov i villakvarterer og tilsvarende tættere bebyggede områder. Når der skal graves to render og alle ejendomme skal forbindes med frem- og returledninger ville det være nemmere og billigere hvis de kan ligge i samme rende (ligesom fjernvarmerør). En mulighed er at isolere det ene rør for at sinke varmeoverføringen mellem de to rør. Det er et område hvor der givetvis kan optimeres.

Et andet område der bør undersøges nærmere, er kombinationerne af større termonet med jordvarme suppleret med energifangere. Kombinationen giver fordelen ved direkte at udnytte sommerluften og solen samt at kunne lagre mere energi omkring jordslangerne. Det samme gælder med udnyttelse af overskudsvarme i større termonet.

Selv om fjernvarme er en mere moden teknologi end termonet så er fjernvarmen også i udvikling, hvor der er fokus på at minimere fremløbstemperatur og udnytte energi bedst muligt ved at optimere på forbrugerinstallationer.

Se øvrige overvejelser og konklusioner i kapitel 1.2.

Side 36 af 39

5 Bilag

5.1

Side 37 af 39
Energifanger fra firmaet SolarVenti
Side 38 af 39

5.2 Jordvarme fra firmaet Engtoft Entreprise

Engtoft Entreprise ApS angivet på deres hjemmeside nogle listepriser og forbehold:

Priser for nedpløjning af jordvarmeslanger ekskl. moms

Maskinpris inkl fører

Nedpløjning forgår med gravemaskine med specialplov, hvis denne ikke kan grave, ved stenholdig jord, store sten, fundament eller lign, afregnes med timepris.

Ved ufremkommelige arealer som skråninger, mudder, afregnes med timepris.

Inden arbejdets begyndelse skal alle ledninger, kabler og rør være markeret. Derudover skal de være indtegnet på matrikelkort.

Engtoft Entreprise fralægger sig ethvert ansvar ved overgravning af ikke anviste ledninger, kabler, rør eller hvis dækbånd mangler.

Rydning af arealer, f.eks. belægning, træer, buske, udføres på timepris. Arealerne af det opgravede kan sætte sig.

Overskudsjord, opgravede sten og div. kan bortskaffes på timepris + gebyr.

Der kan være reetableringsproblemer forbundet med årstiden, dette bedes aftalt på forhånd.

Priser og forbehold fra Engtoft Entreprise. Kilde: https://jordvarmeslanger.nu/prisliste/

Side 39 af 39
Parcelhuse og mindre områder pr. meter fra 40 kr. Markarealer eller lign pr. meter fra 30 kr. Levering af DS godkendt
meter 10 kr. Udgifter til kørsel
maskine.
1 t maskine inkl. fører, pris pr. time 485 kr. 14 t maskine inkl. fører, pris pr. time 750 kr. Opstart og kørsel 1.500 kr. Opstart og kørsel, svært fremkommelige forhold 2.500 kr. Sætning af brønd. Ekskl pris for brønd 2.000 kr. Uderføring af slanger ved eks. ledninger og kloak. Pris pr stk 500 kr.
jordvarmeslange. 40 mm. Pris pr
og

FUTURessourcer nergiE

Turn static files into dynamic content formats.

Create a flipbook
Issuu converts static files into: digital portfolios, online yearbooks, online catalogs, digital photo albums and more. Sign up and create your flipbook.