Architecture Portfolio Y1-Y5

Page 1


ARCHITECTURE PORTFOLIO

YE GANGHUA

ganghuaye@gmail.com

Architecture Photography: https://gajerlab.squarespace.com/

ACADEMIA

National University of Singapore

Masters of Architecture /CAP 4.72

Architecture Design Thesis (A)

Photoshop

Illustrator

InDesign

Premiere

Pro

AutoCAD

Rhino

Grasshopper

Sketchup

Enscape

ACHIEVEMENTS

BCA iBuild Scholarship

Dean’s List (Y3S2)

Dean’s List (Y2S1)

International Building Design Competition 2022 First Prize (Group)

Bachelors of Architecture (Hons.) / CAP. 4.68 (Highest Distinction)

Technological University (TU) Delft Student Exchange Programme

WORK EXPERIENCES

K2LD Architects, AIP

Assisted with tender drawings, design iterations for residential projects, rendering and constructional drawings

AR1101 Design Studio

Teaching Assistant

Spark Architects, Internship

Assisted with photoshop rendering, design iterations, compiling meeting deck and drafting

META Architecture, Internship

Assisted with realistic rendering, constructional detailing for furniture and design iterations for projects

Formwerkz Architects, Internship

Assisted with making of physical model and rendering

2019-2024

2022-2023

Feb 2023Aug 2023

Aug 2021Nov 2021

May 2021Aug 2021

Oct 2020Nov 2020

Jun 2019Jul 2019

I II III IV V

TABLE OF CONTENTS

PRODUCTIVE NOSTALGIA

BALESTIER, DISRUPTED .

BREATHING LIGHT

TO WATCH, SIGNAL AND RELAY

GREY FOREST

REST, ROAM, RUN

THE HARMONOGRAPH

TRANTSPARENT MACHINE

FORUMTAINMENT

LIVING ANEW

I

Productive Nostalgia

Disappearance and Re-emergence of the Sungei Road Thieves Market

Site: Sungei Road, Singapore

Thesis Design - Tutor. Cheah Kok Ming

Date: May 2024

Individual Work

“Underpinning the process of this thesis is a forensic-like rigour to unearth every details of a buried past. The research coupled by intensive mapping and drawing revealed and connected several bits of information that contributed to a manifesto and design strategies for driving the idea of “productive nostalgia”. The thesis proposes “productive nostalgia” as a developmental approach that creates contemporary relevance without sacrificing historical authenticity to mere pastiche.”

-Prof Cheah Kok Ming

The thesis argues that the act of making a field/site drawing constitutes as a method of design—where designing is already in the making of a “site”, by collating (and collaging) drawings, photographs and texts to re-enact the temporal grounds between the multiple disappearances and re-emergences of Singapore’s (almost) obliterated thieves market. By drawing links between the historical evidences through drawing as research, a series of nodes and infrastructure is traced and subsequently incorporated into the design. The architectural strategies follow the opportunistic nature of the vendors, hence a taxonomy of ‘how to steal the city’ is developed to renew the network of the market.

Tracing the Infrastructural Voids

To renew the ecology of the market, a combination of sites is derived from existing ecological remnants of the former market (memory void) and overlayed with present infrastructural voids (physical void) to renew the ecology of the market on an urban scale. The renewed network consists of a distributed set of sanitary, water, storage, rain refuge infrastructures, and resource supply.

Extending Invitation

The infrastructure of infrastructures taps on the existing transportation and gathering nodes to draw the crowds towards the market, leading from the adjacent nodes towards the canal where the main market stretch is located.

Borrowing Banality

Learning from the former Sungei Road Thieves Market vendors, the design of infrastructures adopts the same opportunistic attitude; ‘stealing’ or borrowing the underused and everyday objects in the city.

Doubling Function

The infrastructures adopt an alternative form of planning whereby spaces serve dual functions during different times of the day, even remaining ‘incognito’ at times.

“Often as part of our studies we draw what is disappearing from people’s lives–the histories of what people once had, we are not nostalgic, but we try to find out why certain things have been lost. And if we find a reason, we try to make a hybrid of what is appearing and what has disappeared.”

Can the act of drawing reveal the intelligence and invisible networks of a “ghostly” and fleeting site? Tracing and layering photographs with ethnographic textual records, this drawing method challenges site documentation conventions as “objective” processes of recording the site “as-itis” from a distance. Rather, the argument here is that the act of making a field/site drawing already constitutes a method of design—where designing is already in the making of a “site”, by collating (and collaging) drawings, photographs, and texts to re-enact the temporal grounds between the multiple disappearances and re-emergences of Singapore’s (almost) obliterated thieves market.

The series of drawings across periods traces the ghost of the Sungei Road Thieves market and seeks to visualize the invisible networks of the former market, both in its past and present state. Since the former market has been evicted since 2017, the drawing started as an alternative way to situate the site through intensive drawing and research. Through drawing as research, the former market revealed itself to be a network of relationships between people and places.

With new interpretations from tracing through photographs and ethnographic records, the book reveals itself as an alternative reading of the site whereby the reader can juxtapose different instances of history, allowing one to draw connections between the ones that existed, disappeared, remained, and those that reemerged. Referencing the game Exquisite Corpse, the book is formatted as a design playbook, allowing the reader to use pictures and words to form their interpretations of the place, thereby challenging the conventionally static reading and representation of history and memories.

II

Balestier . Disrupted

An urban artefact within interstitial spaces

Site: Balestier Road, Singapore

ARCH 1102 - Tutor. Adrian Lai

Date: April 2020

Individual Work

Layers of history have shaped Balestier to become the way it is today; a merge between the old and the contemporary. Over the years, the insertion, addition, and removal of buildings along Balestier road have given it a special character. These actions have led to the emergence of new spaces that are often underused. Despite our negligence for these spaces, they serve as a dialogue between the old and new and a binding device for people with varied agendas.

As Balestier develops itself further, the culture cities have become more and more fragmented due to the disruptions created. Instead of neglecting the significance of these pockets of space, we can activate these underused spaces and amplify their historical significance.

I envision these spaces to allow people to pause and ponder over the history of Balestier and activate the unused spaces for more interactive human activities.

Overlayering of Disruptions

The facade of buildings provides continuity

Almost every building has four walls that enclose a private area in Balestier, these walls not only act as physical barriers, they are also the cover pages to each shophouse story. The facade is efficient in telling the origins of the shophouse, the parti walls allow for physical separation of units, specifically the old and the new units.

Urban cracks are created between the physical boundaries of buildings. Specifically, alleys between shophouses or shophouses and new buildings. As buildings are removed and added, these spaces are morphed into different shapes and sizes. These spaces often serve a passive role in the urban fabric as they are constantly shaped by the changes to its surrounding. Hence, these spaces are often neglected and unkempt due to its constant state of flux.

Abstract Collage
Spatial Collage
Timeline mapping

Ramp as folded planes

Walk up the ramp along the side of the road, you will be greeted by a wall slighting towards you, you walk through the unusual gateway and enter a much narrower space. Turn right and observe the interior of the slanted wall, creating this oblique setback. Walk straight, turn right again, you see this gentle ramp that guides you out towards where the light is. As you approach the end, a big projector screen reveals itself gradually. Turn right and see another slope, but a much wider and steeper ramp guiding you towards the first rooftop. Walk up the ramp and turn right or left to head towards the second roof space.

Plan

Elevation

III BREATHING LIGHT

A contemporary interpretation of Wayang Kulit Performance

Site: Marina Promenade

ARCH 2101 - Tutor. Roy Pang

Date: April 2021

Pair Work

Breathing Light attempts to revitalise Wayang Kulit by reinterpreting it through a contemporary presentation whilst meeting the basic comfort need of the Dhalang. The reinterpretation would encompass: 1. the envelope as part of the story-telling process; 2. retaining 360-degree multiperspectivity of the performance.

Wayang Kulit (Shadow Puppet; which also means ‘Skins Reimagined’) extracts the notion of membrane of an organism skin. Here, each module mimics at a molecular level that would perform a specific function - structure, movement, aperture, views, rays. This is achieved through the manipulation of the module’s form, scale, tessellation and joineries. Akin to a living organism, this project breathes - light. The reimagined visualisation reify the movement of the Dhalang through animation of light and shadow on the floor. The Dhalang moves the puppet, which moves the envelope, which mediate the light, which alter the atmosphere. The transference of this energy seeks to elevate the atmosphere during the intense fighting scene. The light scape created on the ground is carefully planned - Seat Zone, Stand Zone, Light Zone, Dark Zone - where the order of movement and behaviour of the spectators is intentionally arranged and orchestrated. This orchestration draws relationship back to the light source where the skin would become an actor of filter and mediator.

Climate, in this project, is essentially about the flow of elements. We attempted to reformulate the task of an envelope that traditionally protects one from the external. This project re-organises the climatic negotiation from outside-in to inside-out, an aspect often neglected yet critical to the atmospheric conditions to an internal space. In an up-scaled context, it would have been about the control of light, sound and air-pollution that spills from indoor to the external environment. In speculation, we embraced the Breathing Light’s capacity of transferring and amplifying the energy outward. Keeping to the theme of performance, the entire orchestral is reimagined with its function, element, action and equipment in mind.

Exploded Axonometric

Plan: Anthropometry and Viewership

Section: Front-Back
Spatial Organisation
Ideal Light and Shadow Effect

Module Variations

The entire envelope was constructed with more than 18 different variations of module, each variation is derived with reference to design intent

Design Speculation: Wayang Kulit Family

C: Bonang
B: Kendhang
A: Gender
F: Dhalang
E: Spectator Seats
D: Gong
Front
Side Panel
Light Effect
Re-route Pulling Mechanism

IV To Watch, Signal and Relay

ReUSE Italy: Torre Rinalda Competition

Date: June 2023

Pair Work

On the quaint shores of Southern Italy, suburban Lecce, stand Torre Rinalda and others of its kind.

The family of lookout towers line Puglia's coast. They were guards to territories nested behind them in the 16th century, strong yet graceful; dutiful yet never segregating the city from the coast's beauty.

There is something romantic about the way these towers operated, the way they would allow silent watching of the Adriatic Sea through tiny peepholes in their robust walls, discretely set out thin traces of smoke to signal danger, and quietly release a humble horseback soldier into cities for warning if need be. These notions of watching, signaling and relaying became habitual; they were how these towns got by through difficult times, and their everyday operation formed part of the city's history.

The project aims to retain and build on this simple yet alluring magic of the towers' performance which carries a strong cultural significance.

The proposed design intervention on Torre Rinalda is a typology of public space developed to promote the relevance of watching, signaling and relaying in a modern context that celebrates heritage and is devoid of marauders.

This typology of space is one that builds upwards over a portion of the existing tower, extending from the latter's geometry and exuding strength without being overwhelmingly prominent. By bridging the old and new in created spaces, the public can be exposed to their unique relationship. Such connections are also made through a careful adoption of materials: Steel is a contemporary material as sturdy and durable as the olden-day limestone, albeit more lightweight in its appearance; It represents the present that juxtaposes, yet complements the past. The designed porous panels also have perforations mimicking the finish of limestone to achieve visual continuity and familiarity while ascending the tower. Illusionary materials like mirrors and glass are carefully integrated into the form to further blend the past and present.

By manipulating volumes, the design conceives a multi-functional space that can support unique local festivities. A continuous circulation route wraps the tower along its peripheries and serves as an alternative route up. An interplay of solids and voids on the facades then choreographs for a gradual revelation of views as one makes their way up, reminding visitors that this is after all, beyond a current day multi-functional festive space, a watchtower to begin with and in the end.

To Watch, Signal and Relay.

Torre Chianca

V Grey Forest

A Dust Harvesting Research Centre

Site: Pasir Panjang

ARCH 3102 - Tutor. Ng Sanson

Date: April 2022

Individual Work

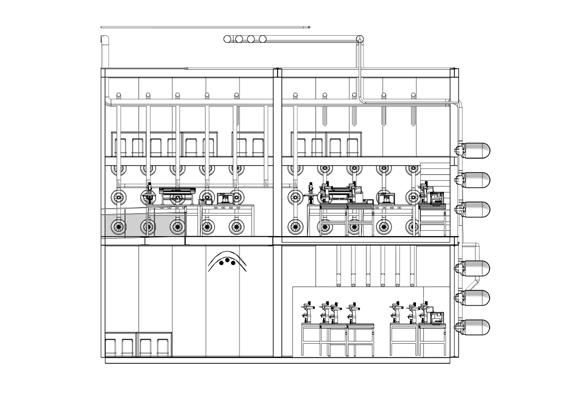
Dust as a matter constitutes by-products from both nature and artificial processes is often alienated due to man’s tendency to impose maximal control over its environment. The proposal argues for a nuanced environment whereby dust is seen as a resource, information, capable of shaping its own form and augment our relationship with the physical environment. With dust being the main focus, the design concept pushes the conventional understanding of cleaning, and questions how far can we push the methods of productive cleaning. The site is situated between West Coast Highway and Belayer’s Creek; two seemingly opposing environment is bridged by a spatial filter that operates to capture dust content from the urban environment, and in doing so, purify the air. The approach focuses on the use of air flow to influence the accumulation and movement of dust in an attempt to visualise this invisible matter, bringing to light its aesthetic and practical qualities.

Worm Eye Perspective
Dusty Alley
Dusty Corridor
Dusty Wall
Dusty Harvest
Structural Axonometry
Filtering
Dust as Enclosure
Dust as Landscape
Dust as Canopy
Main Perspective
Extraction Lane
Moving Dust
Trapping Dust
Processing Dust
Falling Dust
Extraction Lane
Processing Lane
Designing Lane

VI

Rest, Roam, Run

Adaptive Reuse of Former Malay Film Studio Into A Pet Centric Mixed-Use Residential Complex

Site: Balestier, Singapore

ARCH 5805 - Tutor. Lawrence Ler

Date: August 2023

Individual Work

Pets, humans’ best companion is increasingly prone to abuse and abandonment. To cope with the issue, the project attempts alleviate the problem by providing residential apartments to bridge the knowledge gap of pet adopters, pet owners and the public who wants to know more about pets. The building is mixed use, combining a pet street, training centre and service apartments; distributed strategically through out the building.

The pet centric residential complex aims to create a safe and fun community for crossing sharing of pet-related knowledge, and build a stronger pet-to-owner relationship through adventure and learning.

Movement Through The Site

Movement Through The Thoroughfare

Movement Through The Field

Movement Through The Layers

VII

THE HARMONOGRAPH

A fashion house designed from a 3D harmonograph

Site: Orange Grove Rd, Singapore

ARCH 2101 - Tutor. Joseph Lim

Date: September 2020

Individual Work

“the unfolding of number in space ,the basic journey is from a single point, into a line, out to the plane, through to the third dimension and beyond”

Along the vibrant Orchard road, a fashion house is proposed for the lead designers of threeASfour, inspired by one of their famous collection, the Harmonograph dress. The design aims to portray the architecture as a living organism, inspired by the sinuous flow of lines from the 3D harmonograph. Within the 3D harmonograph lies several envelopes that are seemingly alike, yet they differ slightly.

Grasshopper scripting was used to setup a digital harmonograph, which consisted three variables for manipulation; amplitude, frequency and phase. A series of systematic experiments were conducted to observe the effect of variable and the possible combinations to generate visually appealing Harmonographs.

The equation that describes a harmonograph is the relationship between two decaying sine waves. The Lissajous Curve is often used as the harmonograph curve equation.

3D Harmonograph

Sectional Axonometry

Sectional Isometry

Internal insulation and Facade System
diagrid

VIII

TRANSPARENT MACHINE

A Mass Entrepreneurship Campus

Site: Kaki Bukit

ARCH 3101 - Tutor. Jaxe Pan

Date: November 2021

Individual Work

The New Athen’s Charter Eighth suggestion considers the city as a continuous, concave, and airconditioned space. It was formulated as a way of viewing architecture not as a visual presence, but a sensorial, experiential, and immaterial reality. This project expressed the continuous city through the creation of a site specific Tartan Grid to facilitate the association of different programs together. The grid is formed with respect to the old columns, and further subdivded to increase walkability within the campus. The intention is to create an intimate street system, reducing the scale between the structures and the road. Existing buildings are transformed into generators as they are equipped with mechanical system that act as an initial affordance to start a cluster.

The interstitial spaces act as frames of growth for the clusters to expand outwards, achieving the idea of a concave city where private spaces are externalised while public spaces are internalised. The expansion is regulated by different courtyard typologies derived from existing informal ways of spatial expansion.

An air-conditioned space is also a total space, in this project the mechanical system acts as medium to create a total space. The machine and mechanical system have become an extension of our body as our relationship with technology has become increasingly complex. The act of externalising these mechanical systems aims to surpass the limits of building, allowing the external and internal to become a blend instead of discrete elements. By retaining the current aerial energy circuit and proliferate it throughout the site, the campus becomes an open latticework.

Urban Tartan Grid

The continuous city is expressed through the creation of a customized Tartan grid to facilitate the association of different programs together. The grid is formed with respect to the old columns, and further sub-divided to increase walkability on site. The intention is to create an intimate street system, reducing the scale between the structures and the road, to create this space of flows that aims to drive the process of mass entrepreneurship.

Intermediate

spaces as frames of growth

The spatial expansion logic follows that of the existing tenants who utilised vacant spaces for expasion.

In the transparent campus, the spatial expansion logic takes reference from those of the existing.

Mechanical System as a total space

As the machine and the mechanical system have become an extension of our body as our relationship with technology becomes increasingly complex. The act of externalizing these mechanical systems aims to surpass the limits of buildings, one that can be used to activate activities and services diffuse throughout the environment

By retaining the current aerial energy circuit and the extension of its reach creates this total space of creative production.

Set in an impending scenario wherein the process of mass production leads to a loop of stagnation due to excessive focus on quantitative output, the project reimagines an alternative mode of progression through a shift towards the qualitative output.

This will be achieved through the process of mass entrepreneurship, whereby small business owners and independent workers can carry out aesthetic and technological research in territories with a high density of cultural information and human exchange.

Existing buildings as generators

The existing buildings contain the necessary mechanical system and machinery set-ups from the previous owner. These existing set-ups act an initial affordance to start a cluster.

For instance, The site was initially occupied by a hardware store/metal processing factory, this leads to a design cluster that focuses on metal products

Green Dedensification

There is an existing green phenomenon observed on site as many tenants own a plot of green plants infront of their shops, the agglomeration of such spaces form a natural landscape of green buffers that dedensifies the clusters of industrial activities. This phenonmenon is later translated into a series of courtyard typologies.

Mechanical System as a total space

Instead of assuming that matter is ordered in some mysterious unknown way, the aesthetic of weak architecture places everything on the surface. Hence the physical environment can only be ordered by the individual that experiences it Becoming an open latticework

Exploded Axonometry

Spatial Typologies

Spatial Expansion

Opacity

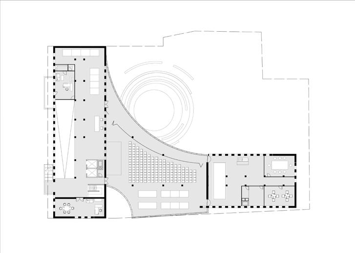
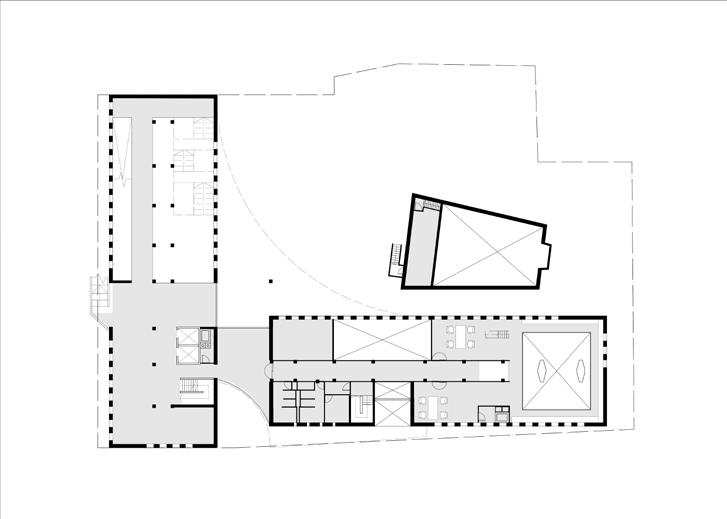
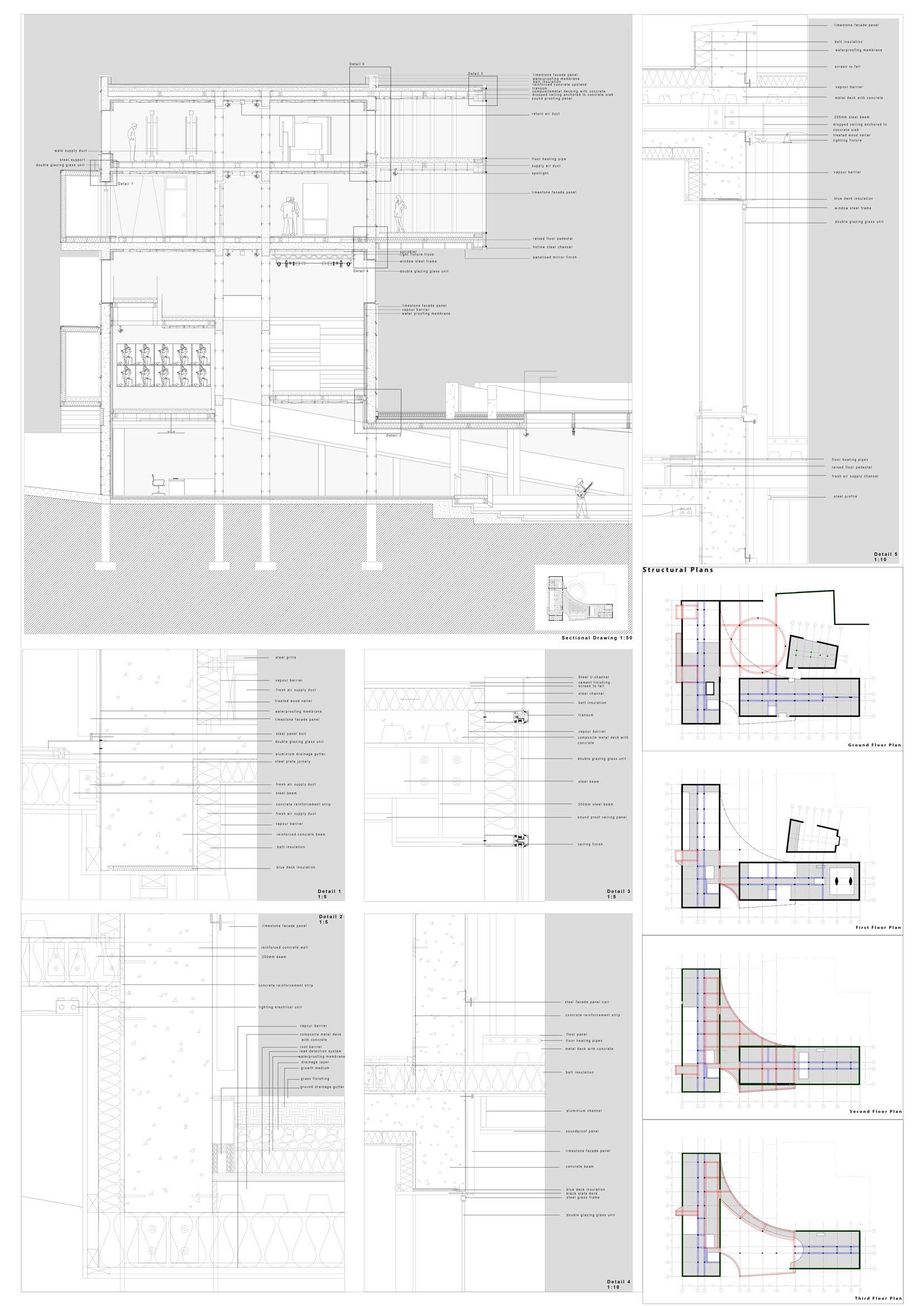
IX Forumtainment

Readaptive Use of Former American Embassy in the Hague, Netherlands

Site: Hague, Netherlands

TU Delft Exchange - Tutor. Alexander

Date: Feburary 2023

Individual Work

The readpative use of the former American Embassy attempts to merge the concept of forum and entertainment, forming a new typology of contemporary museum whereby the appreciation of art is both interactive and enriching. The proposal seeks to depoliticise the former American Embassy through means of constructive discussion and artistic performance. As the former American embassy acted as a stage for democracy, the new museum seeks to transform such a charged site into a place whereby informal art and casual interaction can take place. The design strategies focus on creating a new identity; connection. This form of connection can be interpreted on different levels; physical urban connection, visual connection and programmatic connection. From these various types of connection, the project seeks to give the place back to the people, transforming it into a spot where meaningful interactions can take place.

Sloped Piazza
Concerts
Street Stage Public Library
Boundary Condition in 1958
Boundary Mapping
M&E Layout
Old Building Facade Unrolled
New Building Facade Unrolled
New Building Section Unrolled

X Living Anew

International Building Design Competition (IBDC 2022) Award: First Prize

Date: June 2022

Group of three

Singapore's fervor for redevelopment has produce a climate where construction, use, destruction, and tabula rasa embody the typical lifespan of a building. With the identified challenge faced by Singapore, Aging Population; Land Scarcity; Food Dependency; Green Plan; Smart Nation, the typical redevelopment process must be revolutionalised to ensure a brighter future for the built environment. Living Anew aims at tackling the presented issues through proposing an alternative to a tabula rasa redevelopment. The change of use of old compounds through retrofitting and addition rejuvenates the spaces, generating an active, harmonious, and self-sustaining community. Former Bishan Park Secondary School, an unutilised school compound resulting from the MOE school mergers was chosen due to its locale and scale. It provided the ideal incubating ground for a proposed rejuvenation.

The project commences with carbon-conscious intentions at the initiating phase, efficient construction methods were implemented with innovative design. Minimal demolition to existing structures to provide natural thermal comfort and flexibility in configurations, paired with integrated sustainability strategies such as water conservation, solar panels, and local food production, to further emphasise carbon-conscious living.

Due to time constraints and untimely covid pandemic surges, the small team of three implemented Integrated Design and Delivery to maximise efficiency. A carefully curated list of software was chosen in line with our design intentions and personal capabilities to ensure smooth production. The resultant design is an integrated community with self-sufficiency and communal living, implemented on an existing infrastructure through retrofitting and addition, rejuvenating a unutilized built site.unique local festivities. A continuous circulation route wraps the tower along its peripheries and serves as an alternative route up. An interplay of solids and voids on the fa ades then choreographs for a gradual revelation of views as one makes their way up, reminding visitors that this is after all, beyond a current day multi-functional festive space, a watchtower to begin with and in the end.

To Be Continued...

Turn static files into dynamic content formats.

Create a flipbook
Issuu converts static files into: digital portfolios, online yearbooks, online catalogs, digital photo albums and more. Sign up and create your flipbook.