Architectural Portfolio 2022-2024

Page 1

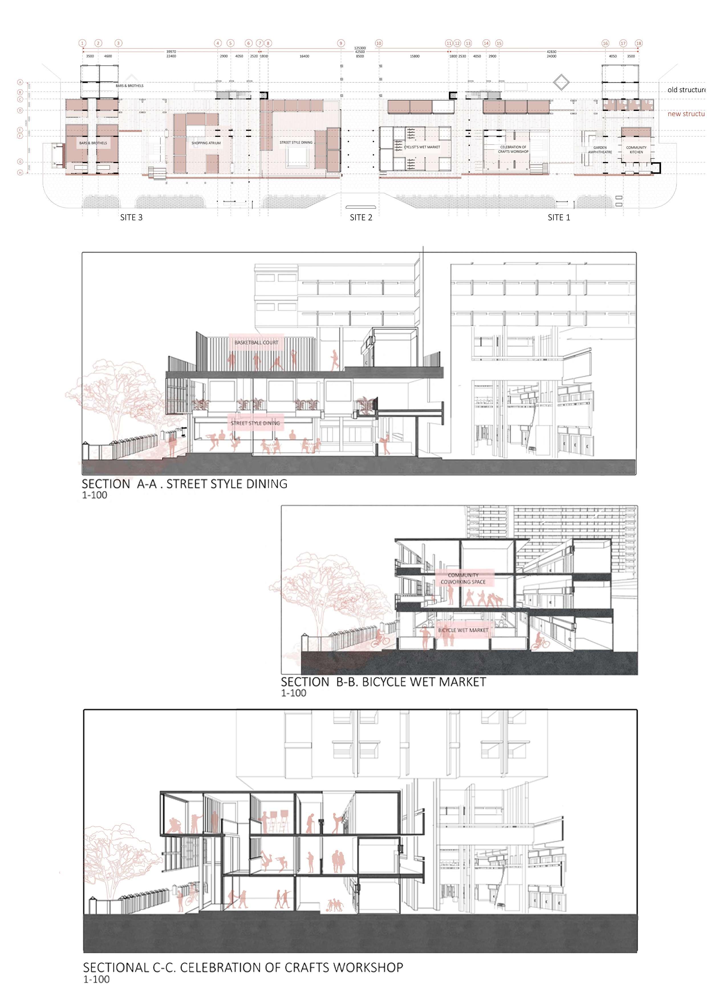
THE MEANDERING SHOPHOUSE

Residence celebrate community as they weave though the meandering patterns of dwellings that connect, shift and peel apart creating pockets of voids, nuturing moments of interactions and intimacy

The Meandering shophouse is a multi-use residential building heavily inspired by the seperation of public and privates spaces in primary architectural archetype along Rowell Road - the Shop house, along with the site’s typological anomalies. The form of the residence was developed from a digitally generated probe and, through its form, suggested multiple ways of separating private and public spaces through vertical circulation.

The final dwelling analogue that was settled upon allowed for an apparent continuous common circulation path all along the side of the building that breaks up the public and private programs by the level.

The units were split and organized according to the form suggested by the probe resulting in a natural circulation plan to develop. The voids are further expanded to allow for more communal spaces - adapted from the typological anomaly of shophouses peeling apart at the party wall, create random openings that connect the 5 ft way to the back ally.

Spaces were developed with the degree of light exposure in mind, as the level of privacy dramatically depends on the amount of light received in the room, the communal areas are more open and hence receive much more light and ventilation compared to the close off privates spaces of the bedrooms and living halls. As such, the floor material was swapped for mesh instead to allow for ample light to enter the center of the building - where residents will mainly circulate through and fro.

GENERATING PROBE AND DWELLING UNITS

The form of the residence was developed from a digitally generated probe and, through its form, suggested multiple ways of habitation along with ways of separating private and public spaces through vertical circulation.

We moved on to finding ways to connect these probes, and creating different ways of creating dwelling

COLLECTIVE DWELLING STUDIES

We moved on to experimenting on the possible types of collective dwelling that could be produced through the horizontal, verticle and diagonal dwelling units. The final dwelling analogue that was settled upon allowed for an apparent continuous common circulation path all along the side of the building that breaks up the public and private programs by the level.

The site analysis help to give some insight into how the shop houses are arranged in Rowell road in relation to wind and ventillation along with the use of voids to connect the 5ft way and the backlane - acting as spots for commune and rest between the activities of the 5ft way and backlane.

STUDYING TYPOLOGICAL PATTERNS

The project draws inspiration from principles of the egg crate and light shelf, aiming to regulate rain and daylighting conditions while optimizing for views and wind dynamics. The core kinetic system operates by adjusting the depth of the aperture, akin to a telescope, to manage climatic influences.

Extensive experimentation informed critical design parameters such as aperture size, depth, arrangement, and profiles, tailored to meet specific light requirements within interior spaces. The final iteration culminated in three distinct modes corresponding to prevalent sky conditions in Singapore: clear skies, cloudy, and overcast. This design approach ensures the maintenance of an ideal lux range under varying external conditions.

Operational details involve a system of linear actuators and low-profile rail connections managed by the school’s building management system. This setup enables real-time adaptation to external conditions, ensuring optimal indoor environmental quality.

The design of The Telescopic Mosaic embodies a progressive approach to architectural climate responsiveness, blending innovative technology with traditional design principles to enhance occupant comfort and sustainability.

Video Process

Now You See Me Hawker

Nestled in the heart of Queenstown, Meiling Market and Food Center stands as a vital hub in the tranquil community of Meiling Heights. Drawing patrons from diverse backgrounds with a shared love for food and local cuisine, this hawker center embodies Singapore’s rich food culture. However, as meal times pass, the market’s vibrancy fades, reflecting broader challenges facing hawker centers and wet markets in the area.

The decline in nearby shops mirrors the community’s struggle to find spaces for communal activities beyond dining, often leading patrons to leave once their meals are finished. Meanwhile, newer hawker developments threaten unique Singaporean programs like the wet market, echoing similar shifts seen in Holland Hawker Center and Tiong Bahru.

In our innovative approach to hawker center design—dubbed “Now You See Me” Hawker—we envision a series of central focal points that enhance visibility both inward and outward, adapting to site conditions to foster a vibrant community spirit within the center. Our initial studies focused on creating architectural probes and market models with a specific aim: exploring forms that frame inward and outward views through strategic placement of staircases and windows.

By strategically positioning staircases, we facilitate visual connections between spaces, programs, and people, shaping gathering and segregation within the center. This initiative stems from a commitment to restore spatial equity. As newer hawker centers emerge, wet market areas—integral to hawker subculture—are often allocated less space.

Therefore, “Now You See Me” Hawker aims to enrich the hawker experience, encouraging patrons to rediscover and embrace their local hawker center, particularly the farm-to-table opportunities inherent in the wet market’s integration within our new hawker configuration. Each program cluster is meticulously calibrated to determine whether activities benefit from outward views or inward cohesion, with stair heights adjusted accordingly to meet specific spatial requirements.

8 Studio Title

One key cluster focuses on transitioning from the wet market to the hawker space, with kitchen and assembly points in stalls adapted to accommodate collective cooking needs. Another cluster encourages local gardening within Meiling, promoting edible vegetation cultivation and crop rearing to support the hawker center’s food recycling ethos.

In summary, “Now You See Me” Hawker introduces a fresh typology of hawker centers that celebrates the interconnectedness of hawkers, wet market vendors, and sustainable food recycling practices. This initiative champions community engagement and the preservation of Singapore’s unique culinary heritage.

9 Studio Title
Studio Title

Turn static files into dynamic content formats.

Create a flipbook
Issuu converts static files into: digital portfolios, online yearbooks, online catalogs, digital photo albums and more. Sign up and create your flipbook.
Architectural Portfolio 2022-2024 by Faith Yeo - Issuu