


![]()



Luxury meets technology in a modern hacienda inside Westlake's gated Granada development










You voted for the top educators in the area. Did your child's teacher make the list?
















Delve deeper into the details of this hacienda-style home as we let you flip through our pinboard of color swatches, furniture fabrics and more design choices that make this house, well, a Home of Dreams — then, get tips on how to make it work in your own home.



School Guide Looking for a school? Here’s your guide to area private schools, colleges and graduate programs. 32

60
Top Teachers 2018
One teaches 3D animation. Another has students build card stock roller coasters. Another didn’t plan to become a teacher. Meet the 10 private and public school teachers who were named Fort Worth’s best in 2018.
67














Topping Out
The Dickies Arena is halfway here.
16
Marine Creek Gets Schooled An elementary, middle, high school and county college — all in one spot in Marine Creek.
Designs on Luxury
A local artist makes her mark on an unlikely canvas — the designer handbag.
24
Handle With Flair Looking to get in on the hand-painted handbag trend? Here are five artists you need to know.
26

A Historic City With Heart Where to eat, play and stay in the historic city of Savannah. etc. go
26
Mausoleum doors in Bonaventure Cemetery in Savannah, Georgia


Pie in the Sky A 90-mile drive for wood-fired pizza under the stars? We’re down.
134
Tapas or Bust? Is Magnolia Avenue’s La Zona worth the hype?
136
The Feed Find out which popular Near Southside bakery is currently moonlighting as a pizza joint, where to find Guatemalan food in Fort Worth, and more foodie news.
138
Restaurant Listings A comprehensive guide to area restaurants.
120. Ten Things to Do This Month Fortress Festival is still going.
114. Leukemia Texas Ball, HuRrAh! 2018
116. Girl Scouts Women of Distinction, A Regal Affair
152. Architecture inspired by the water.

Start
Set your course today for Don Davis Auto Group.


» I swear it feels like just yesterday when I wrote my first editor’s letter that turned into my de facto love letter to the city of Fort Worth. In reality, it was November 2015 — and since then, 32 issues of this magazine have come and gone. Never mind, it feels like 10 years ago.
Two months into my job here, my husband and I put an offer on a home that was virtually falling down a hill and took on the task of our first serious remodel. A couple weeks later, we found out I was pregnant. I didn’t know at the time that both of those things would play a significant role in this issue.
For the next 10 months, I found myself where anyone who has ever built or remodeled a house finds themselves — sifting through faucets, fixtures, swatches, wood stains, hardware and paint colors; staring at the calendar and budgets; and visiting 100-plus-degree job sites, wondering if each and every rain shower would take us off schedule.
After that, the Fort Worth Magazine Home of Dreams and Dream Home concepts (annual signature projects from this magazine) took on a new importance. We, as in the team here, decided it was time to pivot. Instead of showcasing
images of the home, we wanted to bring you the details. So this time, you’ll find 21 pages of light fixtures, sketches, custom furniture and other design elements that get down to the nitty-gritty of the build.
But this new format is my parting gift, and this editor’s letter is my last. It’s time for me to put up the red pen for a while. Because, that baby I mentioned is now a toddler, and turns out, she is a lot of work. And so is this job. The time came where I felt it necessary to choose. A little girl named Kate won.
It’s hard to say goodbye to a job that you love and really hard to say goodbye to the team here. So, I’m not going to. There is no period here. Rather, an ellipsis. For now, I need to be elsewhere, but perhaps one day I’ll be back.
Until then, you might catch me still working on our sister publication, Fort Worth HOME. As of press time, it’s undecided who will sit in this chair next, but whoever it is, I’ll be forever jealous of their super-cool job.

Kendall Louis Executive Editor KdllLi


ON THE COVER: The Design Center was the chosen interior designer for the massive Home of Dreams. The team customdesigned much of the furniture. Our favorite part? Six teak dining chairs. “These chairs bring that organic midcentury feel but with a new, modern edge in their design,” said The Design Center’s Debbie Auldridge. One of the chairs is styled here with a large green blown-glass bowl and a sleek console table, also from The Design Center.















» If it weren’t for our teachers, we wouldn’t be doing what we’re doing today. We asked our writers: Who was your favorite teacher growing up?

Scott Nishimura
My favorite teacher was a guy I never took a class from: George Pica, a professor at the University of Missouri School of Journalism. Pica was a great, gentle mentor and counselor. He’d randomly open a dictionary to a word, think about it for a few minutes, then turn to his IBM Selectric typewriter and start writing. Scott takes on the Top Teachers himself on page 60

Jenny B. Davis
I’ll always be grateful to my eighth-grade German teacher, Linda Shannon, for matching me with an amazing host family when I participated in a study abroad program in 1983. I went on to major in German in college, and I’ve spent nearly every summer since staying with members of the same family in Germany, Spain, Holland and Croatia. In June, we marked 35 years of friendship, and before our celebratory dinner at my host parents’ home in Cologne, we happily raised a glass to Frau Shannon.
Turn to page 21 for Jenny’s chat with a local artist with an unlikely canvas — designer handbags.

Linda Simmons
Miss Hudson, my sixth- and seventh-grade Language Arts teacher was, while perhaps not my favorite, certainly my most memorable. Miss Hudson taught the value of words, both spoken and written. I can still remember her drilling us on the power of spicy adjectives and vibrant verbs — her right hand floating across the chalkboard, filling it with ideas. I will never forget her.
Linda has the details on where to eat, play and stay in Savannah on page 26 Then on page 131, she travels 90 miles to St. Jo, Texas, for wood-fired pizza under the stars.

Courtney Dabney
My humanities teacher, Elizabeth Gooch, made middle school tolerable. She tapped into what made each of us special and intentionally encouraged it. For a student with dyslexia, being taught that what others saw as my learning disability was actually the creativity that made me unique — was life changing. The confidence she instilled carried me through college and a master’s degree. Thank you, Mrs. Gooch.
Courtney gives her take on Magnolia Avenue’s hottest new tapas bar on page 134.
VOLUME 21, NUMBER 08, AUGUST 2018
owner/publisher hal a. brown
associate publisher diane ayres
editorial
executive editor kendall louis
creative director craig sylva art directors spray gleaves, ayla haynes
advertising art director ed woolf
managing editor samantha calimbahin
photographer olaf growald
contributing writers courtney dabney, malcolm mayhew, scott nishimura, linda simmons style contributor jenny b. davis
column writer hugh savage proofreader sharon casseday illustrator charles marsh
editorial interns brandi addison, sheila ellis, erin pinkham, blythe wise
advertising sales director brian ritenour x151
advertising account supervisor gina burns-wigginton x150
senior account executive marion c. knight x135
account executive will epps x155
account executive rachael lindley x140
account executive erin buck x129
account executive tammy denapoli x141
director of events & marketing natasha freimark x158
digital marketing & development director robby kyser
corporate chief financial officer charles newton
founding publisher mark hulme
To subscribe to Fort Worth Magazine, or to ask questions regarding your subscription, call 800.856.2032.
©2018 Panther City Media Group.
All rights reserved. No part of this publication may be reproduced without written permission from the publisher.
Fort Worth Magazine (ISSN 1536-8939) is published monthly by Panther City Media Group, LP, 6777 Camp Bowie Blvd, Suite 130, Fort Worth, TX 76116. Periodicals Postage Paid at Fort Worth, Texas. POSTMASTER: Send change of address notices and undeliverable copies to Fort Worth Magazine, P.O. Box 433329, Palm Coast, FL 32143-3329. Volume 21, Number 8, August 2018. Basic Subscription price: $23.95 per year. Single copy price: $4.99
contact us
For questions or comments, contact Samantha Calimbahin at scalimbahin@fwtexas.com. For subscription questions, please call 800.856.2032.



Every closet is full of untapped possibility. To fit more than you can imagine. To function better than you’d believe. From simple organizers to custom walk-in wonders, the t ransformation begins at containerstore.com.
Alas, the time has come for our executive editor
Kendall Louis to take her final bow. As her time at Fort Worth Magazine comes to a close, we let her sit in the interview chair this time around and talk about her favorite moments.

Take us back to day one. What was your first day like at the mag?
I was just continuously telling myself to pretend I knew what I was doing and project an air of authority. It worked. I figured out what to do pretty quickly, and people have acted like I’m in charge ever since. Tricked you!
Which story or issue would you say was the most challenging to work on?
Probably The Crime Issue in December 2017. I was very aware of being sensitive to, and doing right by, the families who went through those tragedies. And dark content like that is a major departure from what we normally do, so I was always keeping our readers, my boss (owner Hal Brown) and the rest of the staff top of mind too.
From a new logo to a whole layout redesign, the magazine has changed quite a bit under your direction. But ... how did you change?
I used to work in the digital world, not print, so I used to think in stories. Now I think in pictures and design. My love for home design and interiors has also been reignited since we launched Fort Worth HOME in June 2017. I can’t get enough tiles, light fixtures and paint colors. So, everything came full circle really because that’s what this issue is all about.
Got a favorite cover?
Probably the June 2018 Best Of cover. Pink Fort Worth, gold rings, fried chicken, biscuits. Love it all. Plus, I got to pretend to be a hand model.
The thing you’ll miss the most?
Margarita Fridays. Just kidding, I’m still going to those. I’ll probably miss cover shoots the most. It’s the culmination of all the work that goes into the issue. It’s super collaborative. And it’s finally seeing everything you’ve thought about for months come to life.
Where will we be finding you next?
The tennis court? Cycling class?
Lululemon? I’m kidding, of course (kind of). I’m taking some time off to spend time with my family, so you might see me around town with a screaming, crying or laughing toddler. Maybe I’ll actually go to the grocery store and cook something rather than living off of Instacart and Blue Apron. I’m also going to keep working on the never-ending project of finishing my house so I’ll be frequenting a lot more early morning estate sales. Plus I’m going to keep reading the magazine and keep looking for ways to be creative.

Save the date: On Sept. 6, the best chefs in Fort Worth will battle it out at River Ranch Stockyards for our annual Top Chef competition. Watch the chefs cook while you participate in live auctions, sip on cocktails — oh yeah, and eat. Get tickets now. fwtx.com/topchef
A good doctor knows a good doctor. If you’re a physician in Fort Worth, go on our website to nominate your peers who deserve to be on our 2019 Top Doctors list. fwtx.com/top-doctors
If you aren’t following the fwtx.com blogs, why not? Here are a few of the exclusive online stories you missed this month.
bonappétit
Which Fort Worth Coffee Shop Best Suits Your Personality? fwvoice










Another Name Change for Fort Worth’s Historic Golf Tournament fwculture
Independent Bookshops in Fort Worth




















» Topping Out. Dickies Arena is more than halfway done. The team celebrated by placing the ceremonial last beam in front of a crowd of media and nearly 900 construction workers at the end of June.
continued on page 16 »
continued from page 15 » Upon completion, the multipurpose venue will seat 14,000. The total cost of the project is $540 million — that number includes parking, infrastructure and roads. Half the funds will come from the city (capped at $225 million), and the other from private donations managed by a nonprofit headed by Fort Worth billionaire Ed Bass.
The center is scheduled to be finished in November 2019, in time for the 2020 Fort Worth Stock Show and Rodeo.
1,839,564 man-hours completed
3,544 workers participated on-site

6 minutes
The amount of time it would take to get from Fort Worth to Dallas via a proposed hyperloop. The Dallas-Fort Worth Regional Transportation Council announced in July that it will explore the technology. The new mode of transportation, currently operating on a test track in the Nevada desert, uses magnetic levitation technology to allow vehicles to travel at very high speeds.
2,200 tons of structural steel 1,000 concrete piers
8,800 tons of metal rebar 87,000 yards of structural concrete 1.3 million bricks
concrete blocks
» The 85-acre area along Marine Creek Parkway, north of Interstate 820, is already home to Chisholm Trail High School, the Hollenstein Career and Technology Center, and the Tarrant County College Northwest campus. Soon, a middle school will join the bunch — Marine Creek Middle School, currently under construction and expected to open August 2019. An elementary school, still in the early planning process, is in the works as well.
“It’s really about connecting the community,” says Clete Welch, chief operations officer for the Eagle Mountain-Saginaw Independent School District. The district currently has 19,300 students from prekindergarten through 12th grade and expects that number to grow, depending on factors like the state of the housing market and development. According to the district’s first quarter 2018 demographic report, the district projects that enrollment will increase to more than 25,000 students by the 2027-28 school year and will top out at 40,000 when the area is completely built out.
The upcoming middle school — whose mascot will be the Mustang and colors will be dark blue and silver — will stand at two stories and 165,000 square feet. The school will have a walking path connected to Marine Creek Lake and trail system. The school district is working on the project with VLK Architects and Pogue Construction.
Aside from educational facilities (which also include plans for a future elementary school, as well as an additional school district building), there’s more development in the pipeline for the area. YMCA is currently fundraising to build a location within the vicinity. East of Old Decatur Road will be the upcoming Quarry Falls development, which will feature a beach area and Ferris wheel among other recreational activities. Construction on the neighborhood retail and gas station portions of Quarry Falls is expected to begin within the next four months.
Eagle Mountain-Saginaw is planning two additional schools for the district as well. In February, the district closed on the property for its 16th elementary school, Copper Creek Elementary School. Copper Creek will be located along Blue Mound Road, across from the Bureau of Engraving and Printing facility. Additionally, the school district is planning to begin the design process for its fourth high school, Eagle Mountain High School, in 2019. Both schools are expected to open in 2020.






to become lifelong readers, they need to think of reading as a fun activity. Reading in school helps them achieve proficiency, but it often isn’t fun, and only fun leads to a life of wanting to read. In the library world, we like to say that all kids are readers, but many just simply haven’t found the right book yet.
Q. What’s next for the Fort Worth Library?
A. Fort Worth is big — I’m looking into ways we can expand our services outside of the traditional library building. I’d love to be in a shopping space or mixed-use building. There is lots of evidence that shows that libraries have a halo effect on retail — people come for us and stay to shop. I know we are supportive of the economic development goals of the city.
Q. In July, the library launched a service that allows people with no access to the internet to check out wireless hotspots. Tell us about that.
A. I’m thrilled that we are rolling out a pilot project to check out wireless hotspots in four branches that are in high poverty areas so that kids and adults can have internet access at home, a benefit that I would argue is a need-to-have these days and not just a nice-to-have … They can check the hotspot out for three weeks just like a book, and up to 10 devices can connect to it at any time. If this is successful, which I am certain it’s going to be, the next step would be to expand it to other locations and also potentially to check out laptops or tablets.
Q. Being quiet in the library — is that still a thing?
A. We haven’t been quiet places in a long time … The library itself is loud, it’s boisterous, it’s a community space. I can’t tell you the last time I shushed someone.
Q. Have you ever shushed anyone?
A. Sure! Of course.




1. Yoga Joes. These green army men in yoga poses stand on Manya’s desk and make for great conversation starters, she says.
2. A S’well water bottle. Manya once lived in Washington, D.C., which is why her water bottle shows the D.C. subway system. She can still tell you where she got on and off.
3. “History has its eyes on you” popsocket. Manya loves the Broadway musical “Hamilton” and recently saw it at The Kennedy Center.
4. Purple Molly. The City of Fort Worth’s logo, Molly, made purple using a 3-D printer.


5. Part of Our Lives by Wayne A. Wiegand. Manya is a huge fan of this author and says the book made an impact on her career in the library.
6. Yoga mat. Yoga is Manya’s “go-to for feeling good.” She goes to Indigo Yoga regularly.
7. Kindle. Manya says she reads ebooks almost exclusively, and many ebooks can be borrowed from the Fort Worth Library via the Libby app.


Artist Kris Ammon adds a personal touch to designer bags.
BY JENNY B. DAVIS

» When it comes to hand-painting that Hermes or adding monograms to Vuittons, Dallas-based artist Kris Ammon is definitely making her mark. Ammon spent a decade in luxury fashion marketing before deciding to combine her professional experience with the artistic talent she’d been developing since childhood. She founded KCA Designs in late 2017, and since then, she’s hand-painted countless cross-bodies, totes, satchels, jean jackets, leather motos and more, creating one-of-a-kind, wearable works of art. »
by
FWTX: Putting paint on highend handbags? How did you ever get that idea?
Kris Ammon: About four years ago, I started doing fashion illustrations, but I also was painting more on the side. I had a good friend ask me one day if I would consider painting on her bag, and that got me started. It was really as simple as that; I just finally tied together so many things that I love into one super-fun, full-time gig!
FWTX: Where does your inspiration come from?
KA: I like to get inspiration from a variety of sources — sometimes that comes from collaborating with a client and starting with what they might like; then we expand on that based on the piece. Other times, I find inspiration in music, wallpaper, movies — really anything. I am constantly sending myself notes and emails as soon as I get an idea or taking screenshots of things I come across online so I can remember them later when I need them. I will paint just about anything with the exception of stripes.
FWTX: OK, now I have to ask: Why no stripes?
KA: I knew you would ask! Very simply, if a client wants stripes, they are typically going after the Louis Vuitton Mon Monogram or a classic Goyard look. I don’t want to
To book a custom design with Kris Ammon, direct message her through Instagram (@kcadesignco) or email her for a quote through her website, kcadesignco.com. Meet with Kris in person on Aug. 30 at a pop-up event at Byrd+Bleecker from 11 a.m.- 2 p.m. (2070 Kenley St., Fort Worth, 817.989.1500; byrdandbleecker.com; @byrdshop).

directly copy other artists, and they do incredible work. My thought is, “Why not just go directly to them for that?”
FWTX: Then you get to be more creative, and they get a cooler bag — a win/win! Is there a style or an image in particular that you get a lot of requests for?
KA: The requests are honestly all over the place. I do a fair amount of monograms, but the amount of “other” requests is higher. I find that many of my clients have animals or symbols that are very meaningful to them, and they want to incorporate them into the design, which I think is very fun.
FWTX: I know you’ve painted a lot of bags, but is there one in particular that stands out — a design you’re particularly proud of or that
you enjoyed painting?
KA: It is so hard to pick a favorite, but one recent design that I really loved was a leopard that I painted on a Louis Vuitton Neverfull tote. It took quite a bit longer than my normal graphics, but I think it turned out great, and the client adored it.
FWTX: Does it ever make you nervous to be painting on a canvas that’s worth thousands of dollars?
KA: When I first started, I was very nervous to paint on clients’ treasured pieces. I will never forget how I felt when I painted my first Birkin. I was terrified. I am not sure if I took a breath during that entire process.
FWTX: Is there any handbag that you think would be almost sacrilegious to paint on?
KA: I would almost never tell someone not to paint something if
they have their heart set on adding a design to it, but I always remind them that it is permanent and they should choose carefully. I think the only thing I would not paint on personally is a piece that I inherited. I have a vintage Gucci bag and wallet that I got from my late grandmother, and I would never even think about painting that, but anything else, why not?
FWTX: I know you paint more than just bags. Tell me about some of the other pieces you’ve transformed.
KA: I have a lot of requests for made-to-order denim jackets. I can paint, monogram and embroider them, and in some cases, I can even design and create custom patches and brooches. I just created a custom denim jacket for my little niece — it’s posted on my Instagram — and it’s thrilling to see how much she loves it.



Craig Rogers President & CEO




BY JENNY B. DAVIS
» Birkins and Balenciaga rarely turn heads, but holding a handbag that’s also a work of art? That’s next level. Customized bags are having a moment, and fashion-forward women know that the ultimate OOTD accessory is accented with monograms, hand-painted designs and graffiti accents. (Plus it’s a great way to give a favorite older bag an instant fashion refresh.)








If you can dream it, Dallas artist Kris Ammon of KCA Designs can paint it. From simple multicolor monograms to complex Japanese cartoon characters, jungle cats, hearts, flowers or more, if you supply the bag, she can bring your inspo to life. kcadesignco.com or @kcadesignco on Instagram. Prices vary depending on complexity.



Brooklyn-based British multimedia artist Patrick Church has become an Instagram star, thanks to the instantly recognizable — and often quite daring —pop art motifs he paints on suits, bags, boots and even underwear. His work has appeared in Vogue Spain, L’Officiel and Out magazines; he’s collaborated with BLK Denim and Opening Ceremony; and V Magazine called his paintings “a bridge between fashion and art.” patrickchurchartist.com Prices vary depending on complexity; as shown, $300




Forget the DIY approach — this storied French fashion house is tricking out its best-selling bags for you with its graffiti-emblazoned city bags and market totes. Fans of creative director Demna Gvasalia’s artistic approach include Kendall Jenner, Kim Kardashian and Tracee Ellis Ross. Neiman Marcus Fort Worth, 5200 Monahans Ave., Fort Worth. 817.738.3581. neimanmarcus. com.; Mini City Bag: $1,890; Market Tote, $2,090.


Leatherology is well-known for its range of foil-stamped leather goods, but the brand recently partnered with the artists behind the Dallas pop-up experiential art installation sensation, Sweet Tooth Hotel, to create an ultra-exclusive capsule collection of painted bags. Featured artists are Rob Wilson, Jeremy Biggers, Jojo Chuang and Shamsy Roomiani, and the bags can be purchased online or in person at the Sweet Tooth Hotel, which has been extended through August. Sweet Tooth Hotel, 2316 Victory Park Lane, Dallas. sweettoothhotel.com; Leatherology X Jeremy BIggers Parker backpack, $750
The motto of this California-based brand is “Tell Your Story,” and they make it possible with a wide range of charming designs and bold fonts that can be mixed and matched to personalize their high-quality canvas totes, clutches and small accessories. Founded by the husband and wife team of Irene Chen and Matthew Grenby, the duo handles both design and graphics, and every bag is finished in the U.S. You Are Here, 5109 Pershing Ave., Fort Worth. 817.862.7466. youareherefw.com; Prices vary; as shown, $188












From the Savannah River on the northern edge to the mystical Bonaventure Cemetery on the southern, Savannah has something for everyone — architecture, history, preservation, music, cuisine — and, being the hostess city of the South, the best hospitality around.
BY LINDA BLACKWELL SIMMONS
It’s mid-April and I’m strolling down Bull Street, cutting through one of the 22 squares that grace Savannah — seeing the centuries-old Southern live oaks laden with Spanish moss, smelling the blossoming azaleas, and hearing the genteel horse-drawn carriage rounding the corner. Savannah is embraced in a time capsule — its sultry seductiveness can quickly capture the soul and calm the mind.
In 1733, General James Edward Oglethorpe, an English gentleman, along with 120 fellow passengers, docked the ship, Anne, near a rise above the Savannah River. Here he founded Georgia, the 13th colony of America, and Savannah, its first city. Gen-
eral Oglethorpe designed what is now, at 2.5 square miles, the largest urban historic district in the U.S. His plan has withstood the test of almost three centuries. When General William Tecumseh Sherman burned cities across Georgia in 1864, a number of Savannah civic leaders rode out to tell him they would surrender if he would not destroy their lovely town. He agreed and posted his troops in the home known today as the Green-Meldrim House, a Gothic Revival structure on the west side of Madison Square. Headquartering there that cold winter, Sherman proudly presented the city of Savannah to President Lincoln that Christmas.
During the 1950s and 1960s, historic
Savannah went into serious decline with the loss of some elegant mansions. Soon seven preservation-minded women came together to revive the Historic Savannah Foundation (HSF originally founded in 1955), and demolitions came to a halt. Today this organization works with the Savannah College of Art and Design (SCAD) to repurpose old buildings, including several nostalgic theaters. It has been said that grand architecture is like a silent symphony. These organizations work in harmony to ensure the music continues for future generations.
Today Savannah serves as a haven for artists, writers and poets and continues to enchant visitors from all over the world.


BREAKFAST - CLARY’S CAFÉ Step back in time to the nostalgic diner where breakfast is served each day until 4 p.m. Family pictures and memorabilia adorn the walls from past decades when this cafe served as a drugstore with a soda fountain. Clary’s was featured in the 1994 book, Midnight in the Garden of Good and Evil 404 Abercorn St., claryscafe.com
LUNCH - MRS. WILKES DINING ROOM
The essence of Southern cooking, served family style, this restaurant opened in the early 1940s. No reservations are taken. A line forms each morning, and doors do not open until 11 a.m. sharp. The original Mrs. Wilkes died in 2002, but her descendants continue the tradition. 107 W. Jones St., mrswilkes.com
SIX PENCE PUB Take a picture in front, and everyone will think you are in London. Six Pence served as a scene in the Julia Roberts 1995 movie, “Something to Talk About.” 245 Bull St., sixpencepub.com
AFTERNOON TREAT - LEOPOLD’S ICE
CREAM Put aside the no-sugar rule for a bit. Three brothers from Greece founded Leopold’s in 1919. Named one of the top ice cream parlors in the world. Try the lavender flavor. 212 E. Broughton St., leopoldsicecream.com
DINNER - BELLA NAPOLI From the old country to the low country. You will likely meet Franco, the manager, who may remind you of the Soup Nazi in “Seinfeld.” But that is all part of the atmosphere, and the imported Italian chef makes it worthwhile. 18 E. State St., bellanapolibistro.com
THE OLDE PINK HOUSE For fine dining, eat upstairs. The basement bar is also home to dining, plus it has a piano player and possibly one of the best mint juleps in the South. 23 Abercorn St.
see and do
WALK. “The best way to learn about historic Savannah is to take a tour, but the only way to experience it is to walk it,” said a native resident sitting next to me at Clary’s Café, a woman who made three syllables out of the word waaaaalk.
If walking is difficult, hire a pedicab or a horse-drawn carriage.
TOUR THE JULIETTE GORDON LOW
HISTORIC HOME The birthplace of the founder of the Girl Scouts and the first Girl Scout Headquarters. Built in 1818, it was designated a National Historic Landmark in 1965. 10 E. Oglethorpe Ave., juliettegordonlowbirthplace.org
VISIT THE SAVANNAH THEATRE ON CHIPPEWA SQUARE Opened in 1818, it’s the oldest continuously operating theater in the U.S. SCAD assisted in the refurbishing, saving the vintage design. And while on Chippewa Square, notice the spot where Forrest Gump sat. 222 Bull St., savannahtheatre.com
SEE THE CATHEDRAL OF ST. JOHN
THE BAPTIST Built in 1876, this French Gothic-style structure burned in 1898 but was restored and reopened in 1912. It is the oldest Catholic cathedral in the state of Georgia. 222 E. Harris St., savannahcathedral.org

STROLL THROUGH COLONIAL PARK
CEMETERY Burials here are from 17501853. See the section where the victims of the 1820 yellow fever epidemic are buried. The story goes that citizens were so fearful of the disease they would bury victims before they were sure they were dead. The buried were provided a ringer (just in case); thus, the term “dead ringer” was born. 200 Abercorn St., savannahga.gov
When in Savannah, a bed and breakfast is the only way to stay. THE HAMILTON-TURNER INN,
LAFAYETTE SQUARE Located in the midhistoric district, an easy walk to lovely Forsyth Park, the largest park in the historic district, and built in 1873 as a private home, this is one of the most exquisite inns in Savannah. There is complimentary breakfast and wine and hors d’oeuvres in late afternoon. 330 Abercorn St., hamilton-turnerinn.com
KEHOE HOUSE, COLUMBIA SQUARE
Built in 1892 and located on the northern edge of the historic district, Kehoe House is a short walk to the shops and restaurants lining the Savannah River. Once a private home, the hotel’s rooms are elegantly furnished with antiques. Complimentary breakfast is offered in the morning, and wine and hors d’oeuvres in the late afternoon. This is an adult-only inn. 123 Habersham St., kehoehouse.com
PLANTERS INN, REYNOLDS SQUARE
Located next to The Olde Pink House and also a short walk to the riverfront, Planters Inn has colorful guest rooms, complimentary breakfast and an afternoon wine and cheese hour — plus bedtime cookies. 29 Abercorn St., plantersinnsavannah.com
24E DESIGN Ruel Joyner follows two previous generations in his family’s business by designing and curating furnishings and objects from all over the world.
24 E. Broughton St., 24estyle.com
CITY MARKET Daytime or evening, there is always something happening. Meander through the art galleries and shops, and enjoy live music on certain nights of the week. 219 W. Bryan St., savannahcitymarket.com













































Beginning Aug. 25, the Home of Dreams will be open for tours that benefit the magazine’s official charity, a Wish with Wings.
BY KENDALL LOUIS
Step inside the Fort Worth Magazine Home of Dreams, where contemporary design invades a hacienda-style home. Southlake’s PentaVia Custom Homes worked with The Design Center on the furniture and finish out for 2210 Costa Del Sol in Westlake’s Granada development. The dramatic 6,465-square-foot, five-bedroom, six-bath home, designed by architect John Hathaway of Austin’s Vanguard Studio, utilizes unusual angles and multifunctional spaces for a home that will leave any future homeowner completely content.

Here, we walk you through the design and architecture of 2210 Costa Del Sol, listed by Dona Robinson of Allie Beth Allman & Associates for $2.895 million.
Welcome to a resort.

The hacienda-style exterior at 2210 Costa Del Sol is the first hint that this home is part house, part luxury resort. Steel gates surrounded by gas lanterns with a trellis sitting above serve as the entry to the Home of Dreams’ courtyard, with water features and well-planned landscaping. The front door of the home opens directly into the family room, so the courtyard serves as the entry area. It also offers an exterior entry to the guest suite.









Roof: Texas Tile Roofing 2616 Weaver St., Haltom City, TX 76117; (817) 838-6100 texastileroofing.com
Fencing: Magnolia Fence 6080 Hulen St., Ste. 360, Box 197, Fort Worth, TX 761320; (817) 995-7467 magnoliafenceandpatio.com
Landscaping, irrigation and yard lights: Guardado Landscaping 3228 Alta Mere Drive, Fort Worth, TX 76116; (817) 732-3434 guardadolandscaping.com
Iron front gate: Durango Doors 4015 W. Vickery Blvd., Fort Worth, TX 76107; (817) 368-5709 durangodoors.com

Luxury wine rooms are one of the latest home design trends. Gone are cellars and dark rooms hiding wine collections away. Now, wine rooms are designed for displaying bottles in prominent spaces. Such is the case in the Home of Dreams, where a 1,000-bottle wine room sits beneath the stairwell, but behind large glass and steel doors, easily viewable from the dining room, kitchen and family room.
The pièce de résistance hangs not far away. A 123-foot light fixture suspends above the stairwell. The long and linear fixture is visible through the windows and sets the tone for brass accents throughout the home. Rough stone shapes on the glass make the fixture look more organic.


mudroom Form and function. her office A feminine workspace.
Porcelain tile starts in the mudroom and leads into another small office — designed with a feminine touch, thanks to bright white quartz master countertops that sit atop ebony-stained rift-cut cabinets.


Conkle’s Custom Cabinets built and installed white oak, rift-cut cabinets in the small mudroom off of the garage. The efficient cabinets hide away backpacks, sports equipment and other various items that accumulate as residents come and go.

TIP
For a stained wood finish with a contemporary look, go for rift-cut cabinets. The fine grain pattern adds warmth without being rustic and accentuates clean lines in the cabinets.
A room without walls.
A massive family room anchors Costa Del Sol, and guests arrive via a courtyard through a 4-by-10-foot pivoting glass front door. Oversized windows and doors overlooking the pool and cabana create the opposing wall. A two-sided fireplace by Metro Brick & Stone separates the room from a hallway that leads to the study, guest suite and master bedroom. The open floorplan allows visitors to see into the dramatic kitchen.
One huge pivot door, that sits on an axis rather than hinges, welcomes guests to the home. “With the home’s modern style and interior design being bright whites with black and gold accents, we wanted to be sure that we chose furniture and accessories in those same hues but also add in some wood for warmth to give dimension and depth,” says The Design Center’s Debbie Auldridge.
Two 40-foot-long steel I-beam headers in the family room carry 106 pounds per square inch each.



White oak floors will give you a more predictable color outcome with a light stain color.

Floors are No. 1 Common White Oak. This grade of wood presents some color variation and will also show some typical wood characteristics such as knots and pinholes.


Fireplace inserts: Trinity Hearth & Home 2917 North, State Highway 161, Grand Prairie, TX 75050; (972) 215-7675 trinityfireside.com
Floors, hardwood and carpet: Vintage Floors 5136 Camp Bowie Blvd., Fort Worth, TX 76107; (817) 877-1564 facebook.com/ vintagefloorsfortworth



“It’s a bright crisp white that sets the perfect canvas to bring in other textures and finishes. It contrasts beautifully with the black windows and door.”
Christina Singca, PentaVia Homes


Most of the home is painted in Sherwin-Williams Snowbound, a creamy white that has slight hints of taupe.

In recent years, powder bathrooms have become known for being small spaces with big design — this one is no different. An arched indent provides a framed space for a floating vanity made out of Calacatta gold with a thick mitered edge.
A “head knocker” above the toilet provides storage that’s not available due to the floating vanity.



A mitered edge is used to create thick countertops. Two slabs are cut to a 45-degree angle to form a corner that creates a 90-degree angle. It creates the appearance of a thicker countertop.

construction lingo
Head knocker
A set of cabinets that sits above the toilet.

“We chose teak dining chairs to bring a warm contrast not only in color but in texture to the oval marble dining table. These chairs bring that organic midcentury feel but with a new modern edge in their design.”
Debbie Auldridge, The Design Center
Anchoring the first floor, the kitchen is built for entertaining. Surprises arise in every corner. A secret pantry door is disguised as simple shelves but swings inward to a large pantry with counter and shelving space for both food and unsightly appliances. The secret pantry also leads to the bar/prep kitchen.
Back in the kitchen, a large waterfall island in Calacatta gold separates the kitchen from the dining and family rooms. The same Calacatta gold material is integrated into the slab backsplash behind the vent hood. The cabinets are all full overlay — meaning that the cabinet door covers the entire box — and painted in a high-gloss white paint for a more contemporary look. A full-size refrigerator and freezer are separated by a coffee station and microwave drawer, and it’s all enclosed in large custom-built cabinetry that dominates one wall of the kitchen. This is another new design trend that allows for more storage while cutting back on the amount of upper cabinets that are necessary in the space.
Countertops: KLZ Stone 11129 Zodiac Lane, Ste. 300, Dallas, TX 75229; (972) 807-6187 klzstone.com
Sleek design and warm touches create an entertainment oasis.



Countertop fabrication: Absolute Stone 11655 Alta Vista Road, Ste. A, Fort Worth, TX 76244; (469) 621-8387 absolutestoneusa.com
Appliances and accessories: The Jarrell Co. 1900 S. Main St., Ste. 110, Grapevine,TX 76051; (817) 532-5530 jarrellco.com




































The cabinets in the bar/prep kitchen are all painted in SherwinWilliams Caviar to match the vent hood color in the kitchen. SW 6990
Venetian Calacatta backsplash
Part bar, part butler’s kitchen, this multipurpose space is fully equipped to act as a service kitchen or bar. The design is simple but stylish with dark cabinetry, stainless steel appliances, brass hardware, white Quartz Master countertops and a Venetian Calacatta backsplash. “It’s a pretty active bar,” Christina Singca, with PentaVia, points out, adding that there will be a double oven, sink, refrigerator, ice maker and dishwasher. The bar also has a pass-through window to the game room so bartenders can serve drinks from this spot.
bar/prep kitchen
A multifunctional space hides in plain sight.

“The white counter won’t compete with the marble in the kitchen and will lighten up the space since the cabinetry is black.”
Christina Singca, PentaVia Custom Homes

VENDOR SPOTLIGHT
Light and plumbing fixtures: Ferguson Bath, Kitchen & Lighting Gallery
3433 W. 7th St., Fort Worth, TX 76107; (817) 348-8489 ferguson.com
Audio/video/security: H. Customs Audio Video 2421 Callender Road, Ste. 139, Mansfield, TX 76063; (817) 300-1518 hcustoms.com
The Design Center chose the Robert Leather Armchair with a quilted back to add interest.




Sitting just off the kitchen, the game room has easy access to every space — a pass-through window to the bar, a door with access to the outdoor living, pool and cabana and walkway to the kitchen.
The center of the party.
Enclosed in a corner of the game room is the cigar room, walled off by a steel and glass door and window unit. All details were considered for the cigar room — a humidor system will allow actual cigar smoking, and charcoal-colored bookshelves create a manly aesthetic. But the real star in the cigar room is the Shou Sugi Ban walls by Reclaimed DesignWorks. When burned, it takes on the look of alligator skin for a dose of unexpected character. The space can also be used for something else like a sitting area or card room.


Sherwin-Williams Caviar is again used on the bookshelves in the cigar room — this time in a high-gloss finish.

Shou Sugi Ban is a Japanese method of preserving and finishing Accoya wood with fire. The result is an alligator-skin finish. Accoya wood is modified timber that is guaranteed for 50 years above ground and 25 years in ground or freshwater. While slow-growing hardwoods are often treated with toxic chemicals, Accoya wood is produced with a nontoxic acetylation process. Accoya is rot and insect protected.



The theme of contemporary finishes with touches of geometric design continues in the game room with the Raef Pendant

Seamless living through all seasons.




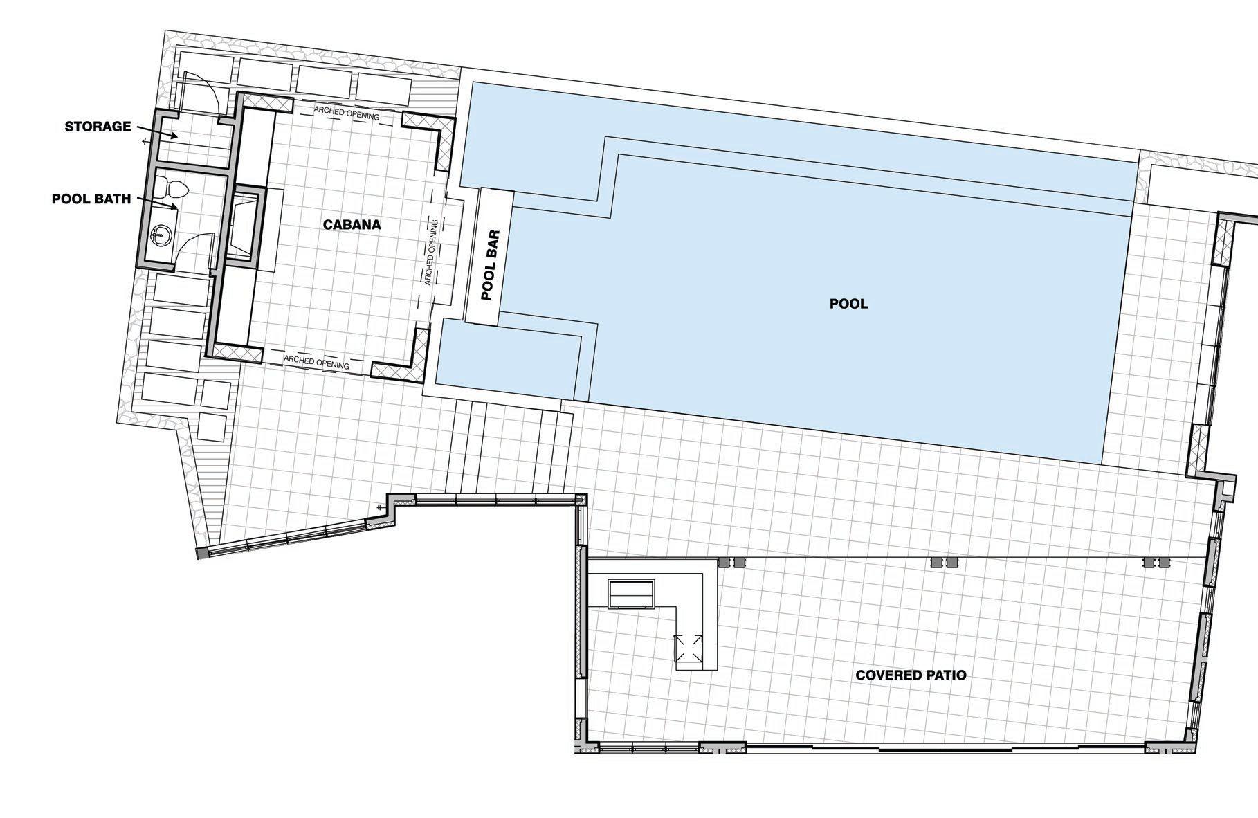
An outdoor living area, accessible via the game room, living room and master suite, overlooks the sparkling backyard pool. A built-in outdoor kitchen area with a 42-inch grill offers easy access to the indoor kitchen via a convenient passthrough window — another entertainment haven in this well-thought-out home. Tiles in various shades of blue surround the zero-edge pool, which has been graded to shield the view of any homesites below. Yard Art Patio & Fireplace outfitted the outdoor space with clean and modern couches, loveseats and chairs, while three 60-inch fans add a breeze throughout the year.

to shield the view of any outfitted the outdoor with a





VENDOR SPOTLIGHT
Patio furniture: Yard Art Patio & Fireplace Multiple Locations (817) 946-0362 myyardart.com
Deco pavers: Whiz-Q Stone 4501 E. Loop 820 S., Fort Worth, TX 76119; (817) 429-0822 whiz-q.com
Gutters and downspouts: Loveless Gutters P.O. Box 905, Colleyville, TX 76035; (817) 590-2583 lovelessgutter.com
Official Realtor: Dona RobinsonAllie Beth Allman & Associates | a Berkshire Hathaway Affiliate 550 Reserve St., Ste. 320, Southlake, TX 76092; (214) 906-7069 donarobinsongroup.com










A swim-up bar with built-in bar stools faces the cabana.


Stone materials: Metro Brick and Stone Co. 2184 Joe Field Road, Dallas, TX 75229; (972) 991-4488 metrobrick.com
A charming cabana situated at one end of the pool provides shade for additional seating and a fireplace for outdoor living throughout the year. The structure conveniently houses the well-appointed pool bath that mixes dark floors with a custom stained-wood vanity and more brass fixtures.



The cabana furniture from Yard Art Patio & Fireplace is the Geneva collection by Indosoul.


Stucco: Centurion Stone 526 Benson Lane, Roanoke, TX 76262; (817) 753-6242 centurionstone.com



















There’s a lot to love about the well-appointed master suite, but perhaps the most striking is the view. Double steel doors open to the pool, lengthwise in a perfect display of symmetry. This gives an idyllic view of the hot tub (just steps away from the exterior master doors), swim-up bar and cabana — a constant reminder that your home is also a resort. Another massive beam sits below the vaulted ceiling.
The master bath is located through pocket doors off of the master hallway. Eyes are immediately drawn to three-dimensional, gold hexagon tiles that serve as a backdrop to the large, white freestanding tub. The tub and shower sit in front of a huge window — no problem. An electromagnetic film will change the glass from clear to frosted with the flip of a switch when privacy is needed.
Identical dual vanities trick the mind’s eye with waterfall countertops flowing over floating cabinets with a custom three-dimensional geometric design.

The Design Center designed a custom tufted king bed.
Builder:
PentaVia Custom Homes P.O. Box 94033 Southlake, TX 76092; (817) 768-3884; pentaviacustomhomes.com




Interior designer: The Design Center/Western Heritage Furniture 1525 Fort Worth Highway, Weatherford, TX 76086; (817) 594-4051 westernheritageweatherford.net



His closet has a stackable washer and dryer. Her closet has a built-in makeup vanity next to the window, allowing for natural light.
A wall of gold hexagon tiles sits behind the freestanding tub.







All cabinetry is completely custom, so she can display a variety of handbags and shoes. netry etely so she play y of s and


Oro Hexagon Tile by Stone Products Unlimited from Daltile


from


















A spacious master sitting area is defined by a dramatic goldleaf light fixture. A door leads to a workout room with built-in shelves, a mini fridge and storage for cabinetry. There’s enough room for yoga mats and a few pieces of workout equipment. Hardwood floors were continued in this room so it can be used as an office or other kind of flex space. Workout rooms off the master are another trend in home building so homeowners can exercise after waking up and get in the shower without ever leaving their suite.
master sitting area & workout room Room for it all.
















































































Windows were placed high on one wall in the guest room so a bed could still be placed against the same wall without blocking light.



Cabinets: Mike Conkle’s Custom Cabinets
318 W. Kennedale Parkway, Kennedale, TX 76060; (817) 483-9658 mikeconkle.com
Bold statements mixed with high levels of comfort.
A spacious vestibule leads to the guest suite, adding a layer of privacy for visitors. Light flows into the well-planned suite through doors that lead to the courtyard with a water feature and foliage, providing a point of entry for guests and a serene ambiance at the same time. A vaulted ceiling with a beam ties the room to the rest of the house. Guests need not even leave for provisions, as there’s a cabinet with a bar and mini fridge. Cabinets are a stained white oak to add a level of variety from the painted cabinets found in other areas of the home. A bold and graphic dedicated guest bath off the entry hall utilizes a black marble “Nero” tile laid in a herringbone pattern around the shower. The Nero is mixed with the Venetian Calacatta from the floor in the shower pan. Chrome appliances mix with dark tiles for another blend of masculine and feminine.


The Design Center furnished the guest suite with glossy white furniture by Aico and a lamp with crystal accents.
Door and cabinet hardware: Pierce Fine Decorative Hardware and Plumbing 4030 W. Vickery Blvd., Fort Worth, TX 76107; (817) 737-9090 piercehardware.com



A guest hallway light is brass like most of the light fixtures throughout the home, while plumbing and light fixtures in the guest bath are chrome. So, what’s the tip to mixing metals? “Personally, I don’t think the so-called ‘rules’ apply as long as you make it work,” says PentaVia designer Christina Singca. “For me, I try to create a layered look by having one dominant metal and using others as an accent.”
A Hudson Valley Lighting fixture from Ferguson hangs in the guest hallway.

The Hubbardton Forge Otto Sphere Pendant in Black and Brass is from Ferguson. Adjustable rods make it possible to position the light at different angles.


A tongue-and-groove ceiling is a good way to add warmth to a room while still maintaining a clean and modern look. Tongueand-groove ceilings add a textural element to a room and can be installed directly over drywall.
CONSTRUCTION LINGO
Tongue and Groove Wooden planks joined by interlocking ridges and grooves down their sides.




A cedar tongue-and-groove ceiling in the library — stained to match the beams in the family room in a dark ebony color — creates the most rustic statement in the otherwise contemporary home. Touches of brass and black are found throughout the space — brass picture lights stand out against the dark painted cabinets. No fireplace needed in this study. The fireplace in the family room is centered with the library doorway, allowing it to be enjoyed from multiple locations.








A spacious landing area sits at the top of a wide staircase. The room, which can be used as a playroom or upstairs TV room, is at the center of four bedrooms and a conveniently located utility room with a washer and dryer. Built-in cabinetry, painted in Sherwin-Williams Iron Ore, provides a space for media storage and mounting the television. A modern black iron horizontal rail overlooks the floor below, and the dramatic 123-foot chandelier that hangs above the entry is visible from this space.
The star of the show upstairs is an outdoor balcony with a fireplace and glass railing for a clear view. A linear palazoo outdoor gas fireplace with LED lights, by Trinity Hearth & Home, ensures this space is a continuation of entertaining areas.
The utility room is outfitted with Kimona Silk porcelain tiles – inspired by the look of woven silk, they actually look like linen and add a sense of texture to the space. This plays well against the mosaic and glass backsplash.
Four Swivel Chat Chairs from the Elements Air collection by Homecrest surround a reclaimed porcelain table by OW Lee. All outdoor furniture is courtesy of Yard Art Patio & Fireplace.

Tile material: Daltile


6323 Airport Freeway, Haltom City TX, 76117; (817) 332-4161 daltile.com Foam insulation: Red Oak Insulation 301 Overlook Drive, Red Oak, TX 75154; (972) 617-0740 redoakinsulation.com








Every project presents an opportunity for greatness. JELD-WEN® windows and doors enable you to bring your vision to life exactly as you imagined. Choose from an unrivaled array of styles, colors and hardware that add to performance, along with a warranty that we stand behind with conviction.


The
three
upstairs bedrooms and bathrooms were kept neutral to ensure Costa Del Sol would be a good fit for various families.


Interior painting: J & V Painting Plus 4429 Birchman Ave., Fort Worth, TX 76107; (817) 994-3277 jandvpainting.com
for a family.

3
One bathroom, that’s shared with the playroom, has fun with mosaic shapes. And a gray hexagon floor carries over in the shower pan.




Paint materials: Sherwin-Williams Multiple Locations 4806 Camp Bowie Blvd., Fort Worth, TX 76107; (817) 989-8000 sherwin-williams.com
4

Another bathroom plays with both contrast and a neutral palette. A threedimensional wall tile mixes with a black-and-white penny rim floor for a bath that combines modern and vintage elements. Even dual pendants offer a vintagemeets-industrial nod. The Fanimation fan with wood blades in the bedroom adds a natural element.








Curved light fixtures hang in the more feminine bath with polished nickel instead of chrome finishes. A diamond-shaped porcelain tile in the style of Carrara marble serves as the durable floor, while Carrara subway tiles surround the tub walls. 34 Roof: Texas Tile Roofing 34 Iron front gate: Durango Doors 34 Landscaping, irrigation and yard lights: Guardado Landscaping
34 Fencing: Magnolia Fence
36 Floors, hardwood and carpet: Vintage Floors
36 Fireplace inserts: Trinity Hearth & Home
38 Appliances and accessories: The Jarrell Co.


38 Countertops: KLZ Stone
38 Countertop fabrication: Absolute Stone
40 Light and plumbing fixtures: Ferguson Bath, Kitchen & Lighting Gallery
40 Audio/video/security: H. Customs Audio Video 42 Deco pavers: Whiz-Q Stone
42 Official Realtor: Dona Robinson - Allie Beth Allman & Associates | a Berkshire Hathaway Affiliate
42 Patio furniture: Yard Art Patio & Fireplace
42 Gutters and downspouts: Loveless Gutters
44 Stone materials: Metro Brick and Stone Co. 44 Stucco: Centurion Stone 46 Builder: PentaVia Custom Homes
46 Interior designer: The Design Center/Western Heritage Furniture
Beginning Aug. 25, the Home of Dreams will be open for tours that benefit the magazine’s official charity, a Wish with Wings. Visit fwtx.com for more details.
50 Cabinets: Mike Conkle’s Custom Cabinets
50 Door and cabinet hardware: Pierce Fine Decorative Hardware and Plumbing
52 Foam installation: Red Oak Insulation
52 Tile material: Daltile
54 Interior painting and wallpaper: J & V Painting Plus
54 Paint materials: Sherwin-Williams

When it comes to your dream home – making sure it is perfect means tons of tough decisions. Let our knowledgeable product experts relieve the stress and restore the fun while introducing you and your design team to our extensive collection of products from the most sought after brands. Request your appointment today at fergusonshowrooms.com










Our Top Teachers work everywhere from urban districts to private schools, but they’ve got one thing in common: passion for their kids.
BY SCOTT NISHIMURA
» Fort Worth Magazine’s 2018 crop of Top Teachers bears a lot of similarities to those of years past. We’ve got a mix of teachers who went into the craft from the start of their careers and a number who were doing something else — including law, banking and accounting — before they found a new passion in the classroom. They’ve kept up with changing pedagogy that today demands lots of activity to keep kids engaged. And they’ve somehow maintained the energy to keep on educating our kids.
As always, the magazine honors five private and five public school teachers in this issue every year. We begin by asking our readers, through an online poll on our website fwtx.com, to vote for whom they think we should honor. Students, parents, fellow teachers and staff members this year submitted more than 600 votes. And as is always the case, we vet our final list through the teachers’ headmasters and principals.
Dolores Huerta Elementary School, Fort Worth ISD The kids at Eddie Arellano’s Dolores Huerta — an elementary school on Fort Worth’s North Side — are diverse, Hispanic and black, bilingual and poor. Arellano, who teaches second-graders and has taught for 28 years, 13 at Huerta, spends a lot of time teaching kids about their heritage. He’s created an in-school museum that the students contribute to, researching family histories and exploring ethnic leaders. For Earth Day, Hispanic Heritage and Black History celebrations, Arellano assigns themes and has his students reading related books and creating images for the classroom bulletin board. To get his kids thinking about college, he created the Discover College Project in 1990,
where students are paired with pen pals at his alma mater, University of North Texas, where he studied radio, TV and film before going on to his master’s at Texas Wesleyan University. The college project includes an annual campus tour. “This teacher has been giving 150 percent for more than 25 years as an educator,” one parent said, in nominating Arellano. “What’s not provided by the school district, he gladly reaches into his personal funds to do what needs to be done.”
SHAULA SHAFFER Academy at Nola Dunn, Burleson ISD Shaula Shaffer, who just finished her 11th year of teaching, five at Nola Dunn, jokes she feels she ought to
apologize to her earliest students. “When I first started, I didn’t know what in the world I was doing,” says Shaffer, an ex-banker. The pedagogy at Nola Dunn, a lottery-admission elementary, is centered on brain-based learning, under which methods, lessons, and programs are based on research into how the brain learns. Parents ask to get their kids into Shaffer’s homeroom; Nola Dunn kindergarteners keep their homeroom teachers in first grade. Shaffer, who received her undergraduate degree from the University of Maryland and master’s in education from Grand Canyon University, is known for methodical teaching. Her students do rotations in math and reading, moving from one station to the next. “We are always actively engaged,” she says. To teach money management, her classroom has a “store”; students earn 5 cents a day and pay Shaffer back if they don’t do their work. A parent runs the store and is one of numerous who serve Shaffer’s classroom as volunteers. “She has parents in her room all the time,” Lindsey Byrd, the school’s principal, says.
The Oakridge School, Arlington Wesley Irons has a straightforward goal for his upper-school physics and astronomy students. “My goal is to inspire a genuine curiosity with the way the universe works,” he says. “I find it fascinating, and I find learning about it joyful.” A graduate of Keller High School, he served four years in the Marines and then enrolled at the University of Texas at Austin, where he graduated with
a degree in physics. He won a spot in the graduate program at Johns Hopkins University but left after a year. “I decided I didn’t want to do research for a career. I left graduate school to teach.” Irons spent his first year teaching in The Woodlands, then was hired by Oakridge, where he just finished his third year. Irons likes his students doing inquiry-based labs. “At the end of the day, they’re able to do real science.” He breaks his classes into small groups with roles such as leader, scribe and skeptic. Parents, in nominating Irons, praise him for teaching the math behind physics: “He has an understated sense of humor that students like, so they feel comfortable approaching him.”
Rivertree Academy, Fort Worth Tracy McLean, in teaching for 29 years, was grammar head for a private school in Fort Worth when she headed back into the classroom. She came to Rivertree, a small private school, where she’s just finished her second year teaching third- and fourthgraders. “The first thing is you get to love our kids,” she says. “Spend summer praying for them. [Ask] what can I do better?” That may involve changing teaching approaches. “You can’t make that split decision; you have to plan ahead for it. And always remember they’re kids. What works today may not work tomorrow.” In 2017, Rivertree adopted the Charlotte Mason curriculum, named for a British educator who advocated a holistic teaching approach focused on home, development of good habits, and promotion of ac-
tive thoughts and ideas. Most Rivertree students come from its lower-income Como neighborhood. The school serves breakfast, lunch and snacks; offers after-school activities; and runs service projects with students. “We try to teach our kids to give back,” McLean says. McLean is a nurturer and mentor to students and other teachers. “The kids grow academically, behaviorally, spiritually, emotionally,” Emily Ryan, the principal, says.
McLean Middle School, Fort Worth ISD Devin Bohannon has a straightforward perspective on students who have sometimes-severe learning disabilities: “If you don’t tell them they can’t climb stairs, they’re usually climbing stairs,” Bohannon, McLean Middle School’s special needs teacher, says. Bohannon, who has an adult brother on the autism spectrum, has taught special needs children for 21 years, five at McLean. She was working for a lawyer and preparing to go into teaching when she got a call directing her to a job posting for a special needs teacher in Crowley. Bohannon showed up and ended up helping a young man with cerebral palsy in the waiting room, unaware she was being observed. “I got the job.” Bohannon regularly uses assistive technology, three years ago piloting a program using MinecraftEdu. Her students socialize and team with others and next year will work with theater classes and produce a show. Bohannon got her kids into Special Olympics, and she takes the students on bowling and movie nights. “Her calling
is to work with special needs kids,” Barbara Ozuna, McLean’s principal, says. “She feels very strongly that special needs kids should not be treated any differently than regular kids.”
South Hills High School, Fort Worth ISD
Like several others among this year’s Top Teachers, Saleta Thomas was something else before she became a teacher. Thomas, who grew up in Levelland and graduated from Texas Tech, was an accountant. Her dad was a CPA and her mother, a teacher. Her husband was an elementary school principal in Cisco when one of the district’s English teachers died; the school moved its business teacher to English and asked Thomas to teach business. “They asked me to do it for one year, the week before school started,” she says. It stuck, and Thomas has been teaching for 20 years, 17 at South Hills. Today, she teaches 3D Animation and Video Game Design in South Hills’ digital graphics and video games Program of Choice. Thomas views it as teaching computer science; animation and games is a much more palatable branding to many students. “It’s all in the wording. I don’t think [a lot of students] have confidence in themselves that they can do computer science.” A fellow teacher, in nominating Thomas: “She is amazing with her ability to catch on to new technologies and help her students be at the cutting edge.”








SARAH SMITH
Fort Worth Country Day School, Fort Worth
Sarah Smith was an appellate lawyer, educated at the University of North Carolina and University of Texas School of Law, when she decided she wanted to do something else. “It didn’t fulfill me. I felt I had something more to give.” Smith, who graduated from Country Day in 1991 as senior class president, obtained her teaching certificate and got a job as a kindergarten associate at Country Day, under the school’s two-year program to give budding teachers a start and then send them off to other jobs. “Halfway through her first year, we knew we had to hire her,” Trey Blair, head of lower school, says. The school hired her full time. Five years in, Smith is known for unflappability. “Her room is incredibly calm,” Blair says. “She’s tolerant of lots of movement. She’s never low. She’s never high. The kids eat that up.” Smith’s two sons attend. She spends a lot of time with parents. Teaching has changed. “It’s become much more child-centered,” Smith says. “We learn much more actively. Back then, it was one spelling test for 20 kids. Now on Fridays, I give four spelling tests [depending on students’ levels].”
students and teachers are figuring stuff out together, that’s what makes it the most fun,” he says. His students might go Eggstreme parachuting, in which they try to parachute an egg to the ground without breaking it. Last year, he had them build complex rollercoasters out of cardstock, running marbles down them. Gaul loads his classes with forensics, where his students solve crimes or mysteries. “Why is the stream polluted? Who polluted it?”
Gaul says. Or there could be a “suspicious death with vague evidence. They’re missing certain pieces. Sometimes there isn’t an answer, and that’s OK.” Gaul’s been teaching 26 years, 18 at All Saints’. A graduate of St. John’s University in Minnesota, Gaul began teaching in Wisconsin, moved to Fort Worth in 2000 with his wife, a TCU faculty member, and earned a master’s from TCU. Gaul wants his students to ask questions. “My teachers were really intimidating,” he says. Tad Bird, All Saints’ head of school, calls Gaul “one of the most dynamic teachers I know.”
Southwest Christian School, Fort Worth
“Back then, it was one spelling test for 20 kids. Now on Fridays, I give four spelling tests [depending on students’ levels].”
Sarah Smith, Fort Worth Country Day
Everman High School, Everman ISD
Michael Boone gets second looks when he tells them he’s the boys head soccer coach and the AP Calculus teacher at Everman High School. He was no great success when he started teaching calculus at Everman 14 years ago.
DAVID GAUL
All Saints’ Episcopal School, Fort Worth
David Gaul’s sixth-grade science classes are a collaborative exploration in which he likes to make himself a student, too. “When
Susan Carr got into teaching accidentally, moving into it to help take care of her sister and children. “I was never going to be teacher,” Carr, who earned a BFA from TCU and was a photographer for 12 years before becoming a teacher, jokes. “But God has a sense of humor.” Carr, who earned her master’s in education from TCU, is entering her 21st year of teaching — nine years
in Montessori and 11 at Southwest Christian, where she teaches Bible to seventhand eighth-graders. Carr’s students do archaeology projects and work with board games, clay, paint, song, and acting. Students also do service projects. “The Gospel was spread because Paul was a doer,” she says. “Luke was a doer. We’ve got to become doers.” Middle school — she teaches Old Testament to seventh-graders and New Testament to eighth-graders — is a good time to teach Bible, Carr says. “This is the time they start thinking about that on their own,” she says. Joey Richards, the middle school principal, says, “I’ve never seen her not represent Christ well. She is so loving and so nurturing; the kids are drawn to her.”
“Not very successful,” Boone says. He knew calculus but wasn’t trained in how to teach it. At least, “there was no expectation from the kids. The unspoken thing was nobody ever passes the AP Calculus test.” Today, more than 50 percent of Boone’s students annually pass it. Boone, who graduated from Poly High School, was a natural at math, tutoring kids for free since seventh grade. “It was enjoyable to get somebody to understand it. I didn’t think to get paid.” Boone attended Texas A&MCommerce on scholarship, studying math and intending to teach. His first job was at Poly; then he applied at Everman. He didn’t get the job, but the principal noticed he lived in Everman. “She needed a math teacher, AP Calculus.” Jason Miller, Everman’s principal today, says Boone brings the coach’s intensity into his math classes. “He’s constantly open to his students,” Miller says. “His test scores show the same thing.”













» Each year, thousands of parents and students begin their hunt for the perfect school. Filling out application after application, setting up interviews and making multiple visits to schools can be a daunting task. Where will my child excel academically, grow personally and truly enjoy learning?
Whether you’re seeking a school for a specific teaching methodology or prefer that your child learn in a religious environment at a school that shares your family’s vision, the search can seem overwhelming. Things can get especially tricky if you are enrolling more than one child into private school or college — one size doesn’t fit all, and it’s difficult to find just the right match. Extensive research is often required, and critical questions will arise regarding tuition costs, test assessments, personal interviews and the application process, among others. When it comes down to it, choosing a school for your child is no easy task, to say the least.
On the following pages, you will find a comprehensive list of private schools, colleges and graduate programs in the area. From fine arts academies and faith-based schools, to Montessori academies and schools focused on accelerated learning for the gifted and talented, the 2018 School Guide gives parents an in-depth look at each school, including student-to-teacher ratio, cost of tuition and enrollment.
We hope you will find this quick reference to the area’s schools and colleges helpful as you explore the possibilities of your child’s education.


/ covenantchristian.net


More than a mission, it’s our obsession.
>> It’s why our students earned $92 million in merit scholarships this year.

>> It’s why voters approved our $750 million Bond Program to provide innovative learning spaces, technology upgrades, and much more.
>> It’s why we’re changing the city skyline with our new I.M. Terrell Academy for STEM and Visual and Performing Arts.




Print creates an emotional connection. Print builds relationships.
Physical material is more “real” to the brain, involves more emotional processing, is better connected to memory, with greater internalization of ads-all important for brand associations. (FORBES)

Join us for an admissions event! RSVP at tvs.org/admissions
KINDERGARTEN COFFEE: Tuesday, October 9, 9:30 a.m.
KINDERGARTEN RACCOON AFTERNOON: October 18 or November 27, 4 p.m.
KINDERGARTEN INFO SESSION: Monday, October 29, 5:30 p.m.
K-12 OPEN HOUSE: Sunday, November 4, 2-4 p.m.
/ 817.924.5123 / olvfw.com
/ Mansfield / 817.460.3315 / pantego.com
/ parkrowchristian.net
/ 817.545.5485 / primrosebedford.com
/ 817.423.4000 / primrosecolumbustrail.com
/ primrosehalljohnson.com
Primrose School at Heritage Keller / 817.741.5044 / primroseheritage.com
Primrose School at Hidden Lakes Southlake / 817.337.4666 / primrosehiddenlakes.com
Primrose School of Keller Keller / 817.337.0717 / primrosekeller.com
Primrose School of Mid-Cities Hurst / 817.485.8993 / primrosemidcities.com
Primrose School of NE Green Oaks Arlington / 817.543.2626 / primrosenegreenoaks.com
Primrose School of Parkwood Hill Fort Worth / 817.281.5322 / primroseparkwoodhill.com
Primrose School of Southlake Southlake / 817.421.8087 / primrosesouthlake.com
Primrose School of Walnut Creek Mansfield / 817.477.0880 /
Academy Fort Worth / 817.420.9310 / rivertreeacademy.org
/ stgeorgecatholicschool.org
St. Ignatius College Preparatory Fort
/ 817.801.4801 / iggies.net
























Hills / 817.284.2228 / stjs.org
/ 817.419.6800 / stjosephtx.org
/
/ 817.451.9383 / saintritaschool.net
Springs Christian School Arlington / 817.478.7091 / PK 3-4: 817.478.2727 / 12 mos.-4: 817.478.4003/ tatespringschristianschool.com
/








Methodist University Dallas / 214.768.2000 / smu.edu
Southwestern Baptist Theological Seminary 817.923.1921, x 2700 / admissions.swbts.edu












Numbers don’t lie. Fort Worth Magazine reaches more social media users than any other publication in the
Our dedicated digital staff works diligently to bring an added value to advertisers by delivering your message directly to our readers. We bring Fort Worth to your fingertips.




























/ sfasu.edu




































Instantly transform your home into a more spectacular space.
Crestron motorized shades and drapery systems transform any room into a more spectacular space. Our stunning designer fabrics, elegant hardware, and world-class technology ensure you find the perfect shading solution for all the windows in your home.















The Jarrell Company | Appliances, Plumbing and Decorative Hardware
SPECIALTY: We work with both professionals and homeowners to MEMBERSHIPS/AFFILIATIONS:
GREATEST PROFESSIONAL ACHIEVEMENT:
PHILOSOPHY:

FREE ADVICE:
BIGGEST MISTAKE PEOPLE MAKE WHEN BUILDING A HOME:
PICTURED:
CONTACT INFORMATION:

FOCUS: We concentrate on natural stone materials in custom homes and commercial buildings. PROFESSIONAL MEMBERSHIPS/AFFILIATIONS: Absolute Stone & Tile has worked with Fort Worth Magazine
GREATEST PROFESSIONAL ACHIEVEMENT: Servicing the DFW area and becoming a BUSINESS PHILOSOPHY: -

a prompt and reliable service. FREE ADVICE:

PICTURED:
FOCUS: Sales and installation of Centurion Stone. We also do stucco installation. GREATEST PROFESSIONAL ACHIEVEMENT: Building the DFW market over the last ten years from nothing to what it has become today. BUSINESS PHILOSOPHY: I just try to always do honest business guided by a strong set of personal moral values. FREE ADVICE: Pay attention to detail. BIGGEST MISTAKE PEOPLE MAKE WHEN BUILDING A HOME: Not selecting a reputable builder. PICTURED: Jeremy Holt.
CONTACT INFORMATION:

jholt@centurionstoneofdfw.com Centurionstone.com


FOCUS: Daltile is the industry-leading brand of ceramic, porcelain, glass and metal tile, as well as natural stone, large-format slab and countertop products. AWARDS/RECOGNITIONS: Daltile is widely recognized in the industry. Daltile has won many awards, including No. 1 Ceramic Tile in Builder Magazine’s Brand Use Study; Best New Tile in Floor Covering Weekly’s Dealers’ Choice Awards for the 14th consecutive year (winning product – Daltile Panoramic Porcelain Surfaces); Best of Surfaces Product Award (winning products – Daltile Marble Attaché and Daltile West Village); Beautiful Kitchens & Baths 30 Most Innovative Products Awards (winning product – Daltile Fabric Art); Floor Covering News Award of Excellence; No. 1 Ceramic Tile in Floor Covering Weekly’s RECO Report. MEMBERSHIPS/AFFILIATIONS: Daltile is a member of Tile Council of North America, American Society of Interior Designers, and National Tile Contractors Association.

Our company’sing an unparalleled breadth and depth of products through our 250 company-owned Sales Service Centers, Stone Slab Yards, and Gallery Design Centers across the country. BUSINESS PHILOSOPHY: With products and styles for every budget, Daltile delivers the broadest array of tile with unmatched availability, helping customers bring any design imaginable to life. FREE ADVICE: When developing a home
PICTURED: Jennifer Hipp, Scott Rowe and Kelsey Powell.
CONTACT INFORMATION: daltile.com
Dona Robinson Allie Beth Allman & Associates | a Berkshire Hathaway Affiliate
FOCUS: To take people home. Each person has a dream of where they want to live; for some it is building their perfect place, for others it’s to move into a wonderfully crafted place to immediately begin creating memories. Dona is a partner to her clients and builders, giving insight,lio and an integrated marketing plan. AWARDS/RECOGNITIONS:
Home Marketing Specialist. GREATEST PROFESSIONAL ACHIEVEMENT:
D Magazine MOTTO: “Live Beautifully.”
FREE ADVICE: you how to sell your home for top dollar or to purchase at a fair market value.
BIGGEST MISTAKE PEOPLE MAKE WHEN BUILDING A HOME: If they plan to live in the home more than a few years, it is important that their lifestyle. It’s also important to choose materials that are timeless.
PICTURED:
CONTACT INFORMATION:


CONCENTRATION: Durango Doors of DFW specializes in fenestration solutions (windows and doors). The trends of indoor/outdoor living and more contemporary architecture has spurred the use of bigger door panels that function as bi-fold and multi-slide panels that are basically moveable walls. We still sell a sig-
choice of the market. The minimum stiles and rails maximize glass size to provide a sleek open look. We
WHY CHOOSE THEM: We think of
where one can go and get a level of personalized ser-
made to order. Other products we sell include decoraDurango products meet the need of today’s architec-
see for yourself. PHILOSOPHY: We always strive to exceed our customers’ expectations through personsale. PICTURED:
CONTACT INFORMATION:

durangodoorsdfw@sbcglobal.net durangodoors.com

CONCENTRATION: Guardado Landscaping is a landscaping and retail garden center. RECOGNITIONS/AWARDS: 2006 and 2008 Fort Worth Magazine Dream Homes; 2008 Fort Worth Magazine Green Home; 2008 Kaleidoscope Home. PROFESSIONAL MEMBERSHIPS: Texas Nursery and Landscape Association, Alabama Nursery Association, Better Business Bureau, Greater Fort Worth Builder’s Association. GREATEST PROFESSIONAL ACHIEVEMENT: “Every day there is a professional
PHILOSOPHY: FREE
ADVICE: done means that promises have been kept and the customer is delighted
best possible service. There are many landscaping companies to choose from, so be sure that the vendors you choose are licensed, bonded and fully insured. BIGGEST MISTAKE PEOPLE MAKE WHEN BUILDING A HOME: Not taking the landscaping seriously. Because landscaping is
CONTACT INFORMATION:
sales@guardadolandscaping.net guardadolandscaping.com


FOCUS: Since 2004, H. Customs Audio Video has concentrated in the Sales and Installation of Residential and Commercial Electronics with a focus on automation. Home Automation integrates lighting, HVAC, cameras, security, televisions, home theaters and whole house audio that can easily be controlled from any tablet, smartphone, computer, or Control4 touchscreen. BUSINESS PHILOSOPHY: H. Customs strives to provide the best in high-performance audio and video with a dedicated personalized approach to meet each of our customers’ needs. We help create Home Automation simplicity by using the best Smart Home Technology. ADVICE: Contact a custom integrator instead of going to the “big box” stores. We
EXPERTISE: We have been in business for 14 years and have handled
area of expertise for our company as they advance in technology. This allows us to seamlessly automate lighting, HVAC, whole house audio and video distribution in more reliable ways than in the past. H. Customs per-

PICTURED: Kevin Fowlds,

CONTACT INFORMATION:
hcustoms.com
FOCUS: J & V Painting services your commercial, residential and faux
ishes, tape and bed work, and pressure washing service. We are also the leading edge on acrylics as noted by our competition. We also use oil bases, epoxy and lacquer. AWARDS/RECOGNITIONS: 2000, Southern Living; 2002, Historic Fort Worth Designer Showcase; 2008, Charity Designer Showhouse; 2017-2018, Fort Worth Magazine Best Of; repetitive recommendations of decorators and customers. MEMBERSHIPS/ AFFILIATIONS: BBB, IDAL - International Decorative Artisans League. GREATEST PROFESSIONAL ACHIEVEMENT: Continuing to service PHILOSOPHY:
dedicated workforce. FREE ADVICE: Don’t expect to get a perfect paint
job for a cheap price. Ask what you are going to get; for example, what type of paint, number of coats, what will I get for this price? BIGGEST MISTAKE PEOPLE MAKE WHEN BUILDING A HOME: Getting in a hurry at the end of a job. Don’t start with a deadline. If you must, let everyone involved in the process be aware so that they can tell if it is possible.
PICTURED: Kim Nappier, Jon Nappier and Sara Hiett.
CONTACT INFORMATION:
jon@jandvpainting.com sara@jandvpainting.com jandvpainting.com




FOCUS: MEMBERSHIPS: GREATEST PROFESSIONAL ACHIEVEMENT: We are theMOTTO: From our hearts to your FREE ADVICE: BIGGEST



MISTAKE PEOPLE MAKE WHEN BUILDING A HOME: PICTURED: CONTACT INFORMATION:


SPECIALTY: Seamless 1/2 Round Aluminum, 1/2 Round Copper, 5-inch and 6-inch Ogee Gutter Systems; 6-inch Seamless commercial box gutter. MEMBERSHIPS/AFFILIATIONS: Better Business Bureau and Builder Association. BUSINESS PHILOSOPHY: I run Loveless Gutters today with the following values instilled in me by my father over the years: Hard Work, Dedication, Perseverance, and Pride. My father’s motto was always “Take the time to do it right.” And it still holds true today. I take pride in our name and in our work. I am dedicated to bring Quality, Function and Aesthetics to every job. BIGGEST MISTAKE
PEOPLE MAKE WHEN BUILDING A HOME: Not being involved enough. CHARITABLE WORK: Dream Homes, House for Cook Children’s. PICTURED: James Loveless.
CONTACT INFORMATION: lovelessgutter.com




BIGGEST MISTAKE PEOPLE MAKE WHEN BUILDING A HOME: They let it become stressful. Slow down and enjoy building your home. PICTURED: Robert Whittaker and Michael Whittaker.
CONTACT INFORMATION:
FOCUS: Fences, pergolas and outdoor patios. AWARDS/RECOGNITIONS: Super Service Award, Angie’s List, 2015-2017; Fort Worth Magazine Best of Fort Worth, 2017-2018; XTO Energy Safety Contractor of the Year, Entrepreneur of the Year 2017 runner-up. MEMBERSHIPS/ AFFILIATIONS: American Fence Association (AFA), Young Professionals of Fort Worth, and Entrepreneurs’ Organization. GREATEST PROFESSIONAL ACHIEVEMENT: Providing a stable and safe work environment for 30-plus full-time employees, 80 percent of which have been with us for three-plus years. While industry standard subcontracts the work out, we have created a model against that. MOTTO: If you dream it, we can build it! FREE ADVICE: Do your research. Know your contractors. Take the time to meet with them and get to know them.
magnoliafenceandpatio.com
FOCUS/SPECIALTY: Metro Brick & Stone has been helping build the Metroplex for more than 35 years. From matching brick for small repairs
have owned and operated a stone quarry in Granbury for more than 17 years. Metro Brick & Stone makes it easy for selections when you visit our Dallas showroom, Ennis showroom, and now our stone fabrication facility in Tolar. We now have a wire saw installed to slab our Granbury blocks and added more specialty saws to make tile or any architectural stone cuts requested. Metro Brick specializes in using reclaimed brick from Chicago, Kansas, Oklahoma, Boston and local sources. WHAT SETS US APART: What sets us apart from most brick and stone suppliers is that we keep up with the newest and latest demands. We are focused on service, and we understand and have the knowledge of our
industry better than most! MEMBERSHIPS/AFFILIATIONS: -
cil. GREATEST PROFESSIONAL ACHIEVEMENT: Being in business for 35 years and feeding lots of families. MOTTO: Your Specialty Brick Source. FREE ADVICE: Educate yourself about brick and stone; understand what you are purchasing regardless if you purchase from Metro Brick & Stone. PICTURED: Dennis Calander, President/Owner.
CONTACT INFORMATION: info@metrobrick.com metrobrick.com



FOCUS: Providing exceptional custom cabinet products and installation for our customers with quality and exceptional service. AWARDS/ RECOGNITIONS: Featured in several local magazines for exceptional craftsmanship. Outstanding payment history from all our vendors.
MEMBERSHIPS/AFFILIATIONS: FSC certification. GREATEST PROFESSIONAL ACHIEVEMENT: Constantly producing a high-quality product at a competitive price using innovative design techniques and high-tech machining centers. BUSINESS PHILOSOPHY: Take care of our customers; our livelihood depends on it. FREE ADVICE: BIGGEST MISTAKE PEOPLE
MAKE WHEN BUILDING A HOME: Not choosing a building contractor that uses high-quality building materials and quality subcontractors.
PICTURED: Ricky Gonzalez and Dean Ojeda.
CONTACT INFORMATION:

817.483.9658
mikeconkle@mikeconkle.com mikeconkle.com
FOCUS: PentaVia Custom Homes are more than houses. Through thoughtful design, exquisite craftsmanship, and seamless integration, we create homes, memories and relationships that will last a lifetime. Bottom line, the journey must be set with proper expectations, commuAWARDS/
RECOGNITIONS: Award-winning Builder for Best in Show Fort Worth Parade of Homes, Home of Dreams 2017, Fort Worth Magazine Best of Builders 2018. GREATEST PROFESSIONAL ACHIEVEMENT: Execution of a client’s dream home is more than constructing a physi-
tions with real people doing life together. BUSINESS PHILOSOPHY:
builds: Physical, Emotional, Intellectual, Social, and Personal. Experience
ATIONS: Greater Fort Worth Builders Association, Better Business Bureau, a Wish with Wings donor and supporter. BIGGEST MISTAKE PEOPLE MAKE WHEN BUILDING A HOME:
builder for quality and follow-through. Second would be to understand that this is not a sprint on price and speed of the build. If quality is going to be had with attention to details, then time needs to be spent in a job that’s well done. PICTURED: Curt Dubose.
CONTACT INFORMATION:



BUSINESS PHILOSOPHY:



FOCUS: Founded by Henry Sherwin and Edward Williams in 1866, The Sherwin-Williams Company has not only grown to be the largest producer of paints and coatings in the U.S., but is among the largest producers in the world. Our Camp Bowie location services DIY homeowners, residential repaint contractors, multi-family apartment facilities, and commercial paint contractors. It’s our goal to provide quality products to our customers along with exceptional Trademark Service. AWARDS/RECOGNITIONS: Ranked among the Top Painting and Coating Manufacturers, named one of America’s Best Employers by Forbes magazine, Forbes Top 100 Most Innovated
microbicidal paint that kills 99.9 percent of germs within two hours of exposure on a painted surface. GREATEST ACHIEVEMENT: We celebrated our 150th Anniversary in 2016. MOTTO: Cover the Earth.
Ask Sherwin-Williams. FREE ADVICE: Your home is one of the biggest investments of your life. Invest into a quality paint product from SherwinWilliams to protect it. BIGGEST MISTAKE PEOPLE MAKE WHEN BUILDING A HOME: Acting as your own general contractor, not utilizing a professional paint contractor, and cutting corners on budget.
PICTURED: Livan Torres, Timber Condra, Joshua Spaulding, Jasmine Battle, and Christina Alexander.
CONTACT INFORMATION: Multiple Locations

sherwin-williams.com



PICTURED: Tammy McBee, owner; Debbie Hundley, interior designer.
CONTACT INFORMATION:
FOCUS: Furniture sales and interior design. In our stores we are committed to providing the best shopping experience possible with unique, high-quality furniture, accessories and art. When designing your home, we will make it both functional and fabulous, all at the same time. AWARDS/ RECOGNITIONS: Voted several years as Best Furniture Store in Parker County and received the Fort Worth Press Family Business Award. MEMBERSHIPS/AFFILIATIONS: Weatherford Chamber of Commerce; Hudson Oaks Chamber of Commerce. GREATEST PROFESSIONAL ACHIEVEMENT: In our 20 years in business, we have designed and decclients. MOTTO: We strive to make your dreams a reality. Your home is your haven. FREE ADVICE: your personality. Have fun with it! Choose fabrics and colors that make you happy. BIGGEST MISTAKE PEOPLE MAKE WHEN DESIGNING A SPACE: Building and designing or redecorating a home can be overwhelming. Don’t get stressed. Allow us to help you create a home
ronmcbee@att.net westernheritageweatherford.net
FOCUS: AWARDS/RECOGNITIONS: PROFESSIONAL MEMBERSHIPS:

PROFESSIONAL ACHIEVEMENT: MOTTO: FREE ADVICE:

BIGGEST BUILDING MISTAKE PEOPLE MAKE:
FOCUS: Yard Art Patio & Fireplace is focused on creating a relaxed shopping experience with a knowledgeable team and the best selection of outdoor furniture in the world. AWARDS/RECOGNITIONS:
2018, 2014, 2013, 2012 and 2008; Casual Living 100 Powerhouse winner 2004-2016. MEMBERSHIPS/AFFILIATIONS: We are members of the ICFA, ASID, HPB and AFHA. GREATEST PROFESSIONAL ACHIEVEMENT: Our greatest professional achievement is that we were able to stand strong and grow during a time of recession and small businesses closing, thanks to our dedication, hard work and, most of all, our customers. PHILOSOPHY: Our business philosophy is to provide our clients with the best outdoor furniture at the
best prices! FREE ADVICE: Like everything else out there in the world, you get what you pay for. We are lucky because we specialize in quality outdoor furniture. BIGGEST MISTAKE PEOPLE MAKE WHEN BUILDING A HOME: The No. 1 mistake people make when building their home is space. Most people do not take into account how much space the furniture they want will take up. PICTURED: Garrett Wallace and Butch Wallace.
CONTACT INFORMATION: MyYardArt.com





































The BEATLEukemia Ball, a black-tie event that benefits Leukemia Texas, was an evening of cocktails, an exclusive auction, and dinner at the Fort Worth Omni, followed by a spectacular musical show and dancing. The musical entertainment was provided by The Fab Four – The Ultimate Tribute to The Beatles.
by Scott Walker








Models took the runway during the HuRrAh! Fashion & Food fundraiser, May 19, to raise money for 41-year-old Arlington nonprofit Helping Restore Ability.








Getting consistent year-round home comfort you can count on doesn’t happen by accident. Trane systems endure rigorous testing to ensure reliability and long lasting performance for you and your family. Combine that with No Interest if paid in full within 72 Months on qualifying purchases made between January 1, 2018 and September 30, 2018 and you have an offer that’s too good to let pass and it’s only available through Trane Comfort Specialist dealers!






Girl Scouts of Texas Oklahoma Plains honored five community leaders at its 2018 Women of Distinction luncheon on May 16 at the Fort Worth Club.
Photos by Glenda Holcomb Moreno.



A Regal Affair: An Evening with The Royal Chef was a gala charity event held May 10 benefiting Universal Health Resources. The event celebrated the wedding of Prince Harry and Meghan Markle.
Photos by Glamourcraft Photography.



All Things Considered with local host Justin Martin on KERA 90.1 is news radio that drives your drive home. Go for the day’s biggest local, national and international stories. Go for analysis, commentary and insightful features. Go because it’s the most listened-to afternoon-drive news radio program in the country. Go Public.


ALL THINGS CONSIDERED WITH JUSTIN MARTIN
WEEKDAYS 4-6:30 PM, 7-8 PM






This summer concert series from the team behind Fortress Festival presents music geniuses from all over. Taiwan-born, Canadian musician and actor, Alex Zhang Hungtai, recently retired from his band, Dirty Beaches, explores improvised music, free jazz and compositions. His solo work includes saxophone, synthesizers, percussion and piano.
Modern Art Museum of Fort Worth. 3200 Darnell St. themodern.org. 817.738.9215.

Niku No Hi
Aug. 29
Shinjuku Station celebrates the unofficial Japanese holiday “Niku No Hi” with a special cooked meat platter. Past specials have included meats like Wagyu ribeye, skirt steak, short ribs and teres major (beef shoulder). Keep an eye on Shinjuku’s social media for menu announcements. Shinjuku Station. 711 W. Magnolia Ave. shinjuku-station.com. 817.923.2695.
Aug. 2-16
Fort Worth’s newest summer music series for rock ‘n’ roll fans has two events left for 2018. Hosted at Inspiration Alley in The Foundry District, Thursday on the Rocks this month will feature the talent of artists like Dead Vinyl and Lou CharLe$. On top of that,
enjoy local art vendors and a beer and wine cash bar. If Inspiration Alley leaves you feeling, well, inspired, there are also tables with arts and crafts available for you to get creative. The Foundry District. 200 Carroll St. thefoundrydistrictfw.com.
4
Aug. 24
Stevie Ray Vaughan vs. Jimi Hendrix Tribute
It’s a guitarist showdown in Arlington. Stevie Ray Vaughan and Jimi Hendrix — or at least, their tribute bands (Texas Flood and Forever Hendrix) — will return to the stage to battle it out at Arlington Music Hall. By the end of the night, you will be filled with “pride and joy” and feeling “bold as love.” Arlington Music Hall. 224 N. Center St., Arlington. arlingtonmusichall.net. 817.226.4400.


Aug. 5
Design the newest décor for your home or make a gift for someone you love.
GIFTED, the newest shop to open at The Foundry District, is teaming up with handmade goods shop Savvie Studio for a workshop on the Arab textile of Macramé. All materials, plus light snacks and beverages, are provided.
Gifted. 212 Carroll St., Ste. 110. giftedftw.com.








Aug.
Chef Jeff and the rest of the team at Taste Community Restaurant will prepare a menu from Miami as part of the Summer Nights Dinner and Fundraiser series. Staff will dress in their 1980s best — costume for guests is optional but encouraged. All ticket sales will benefit the Taste Project.
Taste Community Restaurant. 1200 S. Main St. tasteproject.org. 817.759.9045.

Aug. 9









Bring your boxers — Wild Acre Brewing Company is hosting a fundraising event for the Tarrant County Homeless Coalition and collecting pairs of boxers for men in need. Eat some bratwurst, drink craft beer, check out men’s pop-up shops and listen to live music. Each patron will receive three beers, food and a pint glass — with additional goodies — per ticket purchase.
s ng e s pairs d. Eat r aft p -up music. three a ss —

Wild Acre Brewing Company. 734 E. El Paso St., Ste. 190. wildacrebrewing.com. 817.882.9453.





Head to the Fort Worth Botanic Garden for the monthly traditional Japanese Tea Ceremony in its Japanese Garden. A Q&A forum and tea sampling follows the ceremony.
Fort Worth Botanic Garden. 3220 Botanic Garden Blvd. fwbg.org. 817.392.5510


Blues in the Night Through Aug. 26
Got the blues?
Tony Award-nominated musical “Blues in the Night” is now playing at Jubilee Theatre. Hear 26 classic numbers, including “When a Woman Loves a Man” and “Wasted Life Blues,” set to a sorrowful narrative about three women and their experiences with “a lying, cheating, snake of a man.” Jubilee Theatre. 506 Main St. jubileetheatre.org. 817.338.4411.
10
Bits & Bites
2018 Aug. 9
Sample wines, cocktails and food from the Crockett Row restaurants and bars to kick off DFW Restaurant Week. This wine walk event will also have live music at its main stage. Proceeds from the ticket sales and cash bar revenue will benefit Lena Pope and North Texas Food Bank.
Crockett Row at West 7th. 816 Foch St. crockettrow.com.


Fort Worth Magazine celebrates the local culinary scene by hosting the ultimate action-packed culinary competition of the year, the Top Chef Challenge.
Join chef host Jon Bonnell as four competing chefs battle it out to be crowned Fort Worth Magazine’s Top Chef. Watch the chefs cook while you participate in live auctions, sip on cocktails and grab a bite at this annual event.
Thursday, Sept. 6 6 - 9 p.m.
River Ranch Stockyards
500 NE 23rd St., Fort Worth
Purchase tickets: fwtx.com








The simple things combine for a delicious 90-mile trek that’s worth the drive — any way you slice it.
BY LINDA BLACKWELL SIMMONS

On a brilliant summer afternoon, my party of four left Fort Worth to meander up to St. Jo, the oldest town in Montague County, about 90 miles — to the Red River Valley — and to what some call the North Texas Hill Country. Traffic soon became sparse and the color greener as our winding two-lane road provided idyllic views near small towns, such as Alvord and Forestburg. Our destination? Ancient Ovens, to enjoy woodfired pizza and artisan bread under the stars.
Denis and Susan Moody did not plan to own a restaurant where they would serve up to 120 customers, two, sometimes three nights a week. Denis is a hometown boy, who grew up in Benbrook and attended Western Hills High School in the 1970s. Joining the U.S. Navy in 1977, he served around the world for 30 years.
“I enjoyed living in other countries, but one place was always more special than the others — Sigonella, Sicily. It was there where I became fascinated with the art of wood-fired »



oven cooking,” says Denis.
The couple moved to St. Jo in 2005, where they built a house on 55 acres of land. Denis retired from the military the following year and, like others, contemplated what he wanted to do. After attending a course in Minnesota on “how to build wood-fired ovens,” he, together with a friend, built the oven that is still used today at Ancient Ovens. His original goal was to build and sell the ovens to upscale homebuilders, but this was not to be. The housing market tumbled about this time.
“Just as one door closed, another opened. Susan and I began using our new oven — first serving family, then friends, and then members of our church in nearby Muenster. Soon strangers began calling, saying they had heard about the oven cooking and asked if they could come.”
In 2009, Ancient Ovens officially opened. Commute time is short — the cooking and dining areas are only a few feet from the couple’s home. Word of mouth is its chief marketing tool, increasing patrons from a few diners each weekend to a reservation list with standbys accommodated if possible.

“We’ve had guests from all over the United States and as far as the Galapagos Islands,” Susan adds.


Ancient Ovens is open most of the year except the last part of August and shortly before Christmas until the end of January. For those who might want to make an overnight trip, a turn-of-thecentury hotel (1900, that is) sits on the square in St. Jo.
Ancient Ovens does not just serve pizza. The evening embodies a four-course meal presented slowly with time to relish each. The first course is an artisan sourdough bread coupled with a piquant spinach artichoke dip (there was much talk about this dip around our table, mostly that we wanted more); the second is what Denis calls his Italian teardrop appetizer, consisting of a garlic butter-basted pastry filled with chopped green olives and cream cheese; the third, a Neapolitan-style pizza (in order to accommodate the high heat of 700 degrees, not as heavily laden with meat and vegetables as traditional American style) — and finally, a dark chocolate hazelnut dessert pizza, very thin. These are all prepared in the oven by what the Moodys refer to as their “dream team,” one of whom is Eryn, their daughter. Most of the courses are delivered to the tables, but the pizza is served next to the oven where guests stand in line to choose from 30 combinations of toppings. This is an eclectic part of the evening where
diners mingle. We visited with members of a Wichita Falls law firm, a couple celebrating their wedding anniversary (they come to Ancient Ovens each year) and another celebrating a birthday.
“From couples to parties of 40, we take care of ‘em. We serve one time per night; your table is yours for the entire evening,” Denis says.
The dining is mostly open-aired, but the oven resides under a covered patio with tables named Hippy Hollow (where we sat), Goat Locker, Main Street, Semper Fi, and E – Spot, named after Eryn and another member of the dream team.
The peaceful countryside, the tranquil setting, the ambient lighting, and the fourcourse meal all result in a night to remember. Denis is constantly roaming through the seating area, chatting with his patrons, learning their names, and ensuring they are happy. This is one of the reasons diners return time after time.
Primary dining nights are Friday and Saturday by reservation only. Guests bring their own libation. Two wineries are close by, Arche and Blue Ostrich. Denis has not abandoned Fort Worth. He and Susan come back to Fort Worth often to enjoy their favorite “city” restaurants.
“Turnabout is fair play,” he said. ancientovens.com










The new La Zona on Magnolia wants to be a true tapas bar, but it might be facing an identity crisis.
BY COURTNEY DABNEY
Unique concept La Zona opened on West Magnolia Avenue in January and gets big style points for its epic vision — one building with cocktails and tapas, another for churros and coffee, and a patio sandwiched in between with movies projected on the patio. But, it’s still working on service issues and tweaking its menu and hours. I’m told that a new lunch menu, as well as an updated cocktail menu, could roll out soon.
The entire grouping is known as La Zona and intended to resemble a little plaza that you just happened to stumble upon while exploring Madrid, Spain. The larger building houses Hotel Madrid, which is set up like the lobby/bar of a typical pensión (boutique hotel), complete with a room key holder. The smaller one is called St. Sophia and is a tiny espresso bar (no real seating
inside) that also fries fresh churros — these are the real deal and are now available during lunch service as well.
The stage is definitely set, but with some longer than expected wait times (this problem is being remedied by new management in place since April) and a hit-ormiss menu, La Zona is still finding its way.
The bar still seems more efficient than the kitchen (I have visited three times now). The freshly crafted cocktails are delish, and drink orders arrive quickly.
A few of the starters are pretty good, like the Queso Frito ($6.50), which is fried goat cheese balls served


with crackers and honey. I also enjoyed the charcuterie and cheese board ($14) and the meatballs in cream sauce ($7). But, the Calamares Fritos ($8), served with a spicy marinara, was tough and flavorless, and the Huevos Rotos french fries with a dusting of ham and cheese are a bore ($7).
Most of the menu is comprised of pizzas. The most successful specimen is the Pepperoni Pizza ($13), loaded with cheese and oily pepperoni. But, the Mushroom ($12) has few mushrooms to speak of and none of the promised white truffle oil.
La Zona
Location: 1264 W. Magnolia Ave.
Hours: Hours vary by day
Phone: 817.489.5055
lazonafw.com
What We Liked: With new solar shades in place, you can still enjoy an evening on the patio with a quirky vintage movie projected on one wall.
Non-pizza options include the La Zona Burger ($11), which has a fried egg and a nice smear of “sauce secreto,” offering up a hint of blue cheese. The Grilled Cheese ($9) is a decadent dish, marrying the flavors of melting gouda, strawberry jam and salty prosciutto ham. For dessert, order the churros, fresh from the fryer with cinnamon sugar, or the Wedding Cake ($6), which is moist and rich with an apricot brandy sauce.
What We Didn’t: Spotty service at times, and the kitchen doesn’t execute as well as the bar.
Recommendations: Visit in the morning before it gets too hot and sit on the patio with churros and coffee.
What Fort Worth really needs is an interesting tapas bar. I just wish La Zona would focus more attention to crafting a good menu to go along with its environment.



Please join us as we celebrate years of giving with the Days of Christmas.

SAVE THE DATE OCTOBER - , 2018 WILL ROGERS MEMORIAL CENTER
Shop more than 230 unique merchants including home decor, jewelry, clothing, gourmet food, children’s products, seasonal items and more!
COCKTAILS IN COWTOWN PREVIEW PARTY
WEDNESDAY, OCTOBER AT P.M.


MAKING SPIRITS BRIGHT PRIVATE SHOPPING & BRUNCH

THURSDAY, OCTOBER AT A.M.

COOKIES & COCOA WITH SANTA
SATURDAY, OCTOBER AT A.M.
SUNDAY, OCTOBER AT A.M.
For tickets, sponsorship and special event information visit
Near Southside bakery Stir Crazy Baked Goods has spent the past few weeks moonlighting as a pizza joint. During the day, you can still load up on all your baked goods needs. But on select Monday and Saturday evenings, new local pop-up kitchen Black Cat Pizza takes over, dishing out terrific New York-style pizza by the slice. You should remember Black Cat chef Jamie Fernandez from his memorable stint as executive chef at nearby 44Bootlegger, which closed in April. He now divides his time cooking at Ellerbe Fine Foods and running his popular pizza pop-ups at Stir Crazy.
“The idea came from my kids. They absolutely love pizza,” he says.
“Anyone who makes pizza will tell you: It’s just a lot of fun.” Fernandez keeps it simple, offering gargantuan slices of pizza topped with pepperoni, cheese and mushrooms, and variations thereof. He also offers at least one unusual specialty pie. A recent offering: a pizza with a salsa verde base. His next pop-up is scheduled for Stir Crazy on Saturday, Aug. 4. 1251 W. Magnolia Ave.,
BY MALCOLM MAYHEW
Freelance food writer Malcolm Mayhew can be reached at malcolm.mayhew@hotmail.com or on Twitter at @foodfortworth.
Follow Black Cat Pizza on Instagram for more events @black_cat_pizza
Guatemalan food hasn’t exactly been easy to come by in Fort Worth. But a charming new family-run restaurant on Sylvania Avenue is filling the void nicely. El Meson Chapin specializes in authentic Guatemalan fare — dishes such as kak’ik, a turkey soup made with puréed tomatoes, tomatillos and garlic; pache de papa, a Guatemalan tamale made with potato, chicken, chili peppers and tomato sauce; and pepian, a chicken stew in a spicy pumpkin and sesame sauce. Also on the menu are enchiladas, which aren’t of the usual Tex-Mex variety. Rather, Guatemalan enchiladas are more akin to what we call tostadas They’re comprised of flat, crunchy tortillas topped with ground beef, lettuce, mayonnaise, sliced beet and a boiled egg. All entrees come with an order of excellent corn tortillas, made in-house. Many of the drinks are handmade, too, including the must-try atol de elote, a
creamy, hot beverage made with sweet corn. The restaurant is run by Guatemala native Rolando Son and his family. 1560 N. Sylvania Ave., 682-385-9246.
Fort Worth’s charmingly old-school pizza joint Parton’s Pizza will celebrate the big 5-0 this year by expanding its dining room into the space next door — a huge deal for the Cherry Lane pizza spot, which has remained virtually unchanged since opening in 1968. The last location standing in what was originally a local mini-chain, the restaurant specializes in thin, crispy pizza, served by the whole pie or by the slice as part of the restaurant’s massively popular buffet. The pizza’s good, but people also pile in to awe at the scenery: flashing lights and over-the-top decor trumpeting the next major holiday, redand-white tablecloths, sparkly red booths. “There will be much more of that,” laughs owner Jody Parton. “Much, much more.” Parton says construction should be finished in the next month or so. 2813 S. Cherry Lane, 817-244-5152.
If all goes according to schedule, much of the Texas Live! entertainment complex in Arlington will open on Thursday, Aug. 9. This will include Troy

Aikman’s self-named restaurant and sports bar, Troy’s; the third location of North Texas barbecue joint Lockhart Smokehouse; Pudge’s Pizza, a pizza spot from Hall of Fame baseball catcher Iván “Pudge” Rodríguez; and the tentatively named Guy!, a tacos and margaritasdriven restaurant from celebrity chef Guy Fieri. Located between the Texas Rangers’ Globe Life Park and Dallas Cowboys’ AT&T Stadium, the $250 million dining, entertainment and hospitality district is being developed in partnership between
the Texas Rangers, The Cordish Companies and the City of Arlington. 1650 E. Randol Mill Road, Arlington, texas-live.com.
The march of Dallas restaurants into Fort Worth continues with the arrival of Tricky Fish, a new concept from Addison-based Razzoo’s. Slated to wash ashore at the Waterside development early August, the casual spot takes its cues from the Cajun-style food of New Orleans and the coastal cuisine of the Gulf. Menu items will include peeland-eat shrimp, crawfish étouffée, po’boy and muffuletta sandwiches, fish and chips and lemon pepper shrimp tacos. For weekend brunch, there will be praline pancakes with orange cream and praline whiskey syrup, fried green tomatoes, and shrimp and grits made with bacon, corn and Shiner Bock barbecue sauce. There will be a full bar, too, with seasonal cocktails and craft beer. The first location of Tricky Fish opened last year in Addison. 5917 Convair Drive, Fort Worth, tricky-fish.com.







The Listings section is a readers service compiled by the Fort Worth Magazine editorial staff. The magazine does not accept advertising or other compensation in exchange for the listings. Listings are updated regularly. To correct a listing or request a restaurant be considered for the list, contact Samantha Calimbahin at scalimbahin@fwtexas.com.
pricing: $ - Entrees up to $10, $ $ - Entrees $10-$20, $ $ $ - Entrees $20-$25, $ $ $ $ - Entrees $25 and over
Babe’s Chicken Dinner House 230 N. Center St., 817.801.0300. Lunch Hours 11am-2pm Mon.Fri.; Dinner Hours 5pm-9pm Mon.-Fri; All Day 11am-9pm Sat. and Sun. $
BJ’s Restaurant And Brewhouse 201 E. Interstate 20, 817.465.5225. 11am-midnight Mon.-Thur.; 11am-1am Fri.; 11am-1am Sat.; 10am-midnight Sun. $-$$
Chef Point Cafe 5901 Watauga Rd., Watauga, 817.656.0080. 11am-9pm Mon.-Thu.; 11am10pm Fri.; 7am-10pm Sat.; 10am-8pm Sun. Breakfast Saturdays. $-$$
Dave & Busters 425 Curtis Mathes Way, 817.525.2501. 11am-midnight Sun.-Thur.; 11am-1am Fri.-Sat. $$
Houlihan’s 401 E. 1-20 Hwy., 817.375.3863. 11am-midnight, bar 1am Mon.-Thu.; 11am1am, bar 2am Fri.-Sat.; 11am-10pm, bar midnight Sun. $$-$$$
Humperdink’s Restaurant And Brewery 700 Six Flags Drive, 817.640.8553. 11am-midnight Sun.-Thurs.; 11am-2am Fri.-Sat. $$
J Gilligan’s Bar & Grill 400 E. Abram. 817.274.8561. 11am-10pm Mon.-Wed.; 11am-midnight Thu.Sat.; 11am-9pm Sun.; drafthouse open nightly 11am-2am $
Mac’s Bar & Grill 6077 W. I-20 Frontage Rd., 817.572.0541. 11am-10pm Mon.-Thu.; 11am-11pm Fri.-Sat.; 10am-2:30pm and 3pm-10pm Sun. $$ No Frills Grill 4914 Little Rd., 817.478.1766. Other locations: 801 S. Main St. #109, Keller, 817.741.6344. 2851 Matlock Rd., Ste. 422, Mansfield, 817.473.6699. 1550 Eastchase Pkwy., Ste. 1200, Arlington, 817.274.5433. 11am-2am daily. $ Rose Garden Tearoom 3708 W. Pioneer Pkwy., 817.795.3093. 11:30am-3:30pm Mon.-Sat.; closed Sun. $
Restaurant 506 at The Sanford House 506 N. Center St., 817.801.5541. Closed Mon.-Tues.; 11am-2pm, 5:30pm-9pm Wed.-Fri.; 10:30am2pm, 5:30pm-9pm Sat.; 10:30am-2pm Sun. $$ Southern Recipes Grill 2715 N. Collins St., 817.469.9878. 11am-9pm Mon.-Fri.; 8am-9pm Sat.; 8am-4pm Sun. $-$$
Steve’s Garden & Grill 223 Depot St., Mansfield. 817.473.8733. Tues.-Thur. 11am-9pm; Fri. 11am-10pm; Sat. 4 pm-10pm; Sun.-Mon. closed. $-$$ Ventana Grille 7005 Golf Club Dr., 817.548.5047. 6:30am-9pm daily $-$$
Babe’s Chicken Dinner House 120 S. Main St., 817.447.3400. 11am-2pm lunch and 5pm-9pm dinner Mon.-Fri.; 11am-9pm Sat.-Sun. $
Dalton’s Corner Bar & Grill 200 S. Main St., 817.295.5456. 11am-2am Mon.-Sun. $$
The Porch 140 S. Wilson St., 817.426.9900. 6:30am-8pm Mon.-Thu.; 6:30am-9pm Fri.-Sat.; 9am-8pm Sun. $$
Market Street 5605 Colleyville Blvd., 817.577.5020. 6am-10pm daily. $
Trio New American Cafe 8300 Precinct Line Road, Ste. 104, 817.503.8440. Closed Sun.-Mon.; 11am-3pm, 5pm-9pm Tue.-Sat. BYOB. $$
Bird Cafe 155 E. 4th and Commerce, 817.332.2473. 11am-midnight Mon.-Thur.; 11am-1am Fri.; 10am-1am Sat.; 10am-10pm Sun. $$
Bluebonnet Café 2223 Haltom Rd., Haltom City, 817.834.4988. 6:30am-2:30pm Mon.-Sat. $
Brewed 801 W. Magnolia Ave., 817.945.1545. 8am10pm Tue.-Wed.; 8am-11pm Thu.; 8am-midnight Fri.-Sat.; 9:30am-2:30pm Sun. $-$$
Buffalo Bros Pizza Wings & Subs 3015 S. University Dr., 817. 386.9601. 11am-2am daily. $$ Buttons 4701 W. Freeway, 817.735.4900. 11am10pm Sun.-Tues.; 11am-midnight Wed.-Thu.; 11am-2am Fri; noon-2am Sat. $$$
Cork & Pig Tavern 2869 Crockett St., 817.759.9280. 11am-10pm Mon.-Thurs.; 11am-11:30pm Fri.; 9am-11:30pm Sat.; 9am - 9pm Sun. $$$
Cast Iron Restaurant 1300 Houston St., 817.350.4106. 6am-11am Breakfast; 11am-2pm Brunch, Sun.; 11am-2pm Lunch, Mon.-Sat.; 5pm-10pm Dinner, daily. $$
Cat City Grill 1208 W. Magnolia Ave., 817.916.5333. Lunch: 11am-2:30pm Mon.-Fri.; Dinner: 5:30pm-9pm Mon.-Thu.; 5:30pm10pm Fri.-Sat.; Brunch: 10:30am-1:30pm Sun. $$-$$$
Charleston’s 3020 S. Hulen St., 817.735.8900. 11am-10pm Mon.-Sat.; 11am-9pm Sun. $$ Clay Pigeon 2731 White Settlement Rd., 817.882.8065. 4:30pm-10pm Mon.-Sat. $$$
Curly’s Frozen Custard 4017 Camp Bowie Blvd., 817.763.8700. 11am-9pm Sun.-Thu.; 11am10pm Fri.-Sat. $
Del Frisco’s Grille 154 E. 3rd St., 817.887.9900. 11am-4pm Lunch, Sat.; 11am-3pm Lunch, Sun.; 4pm-10pm Dinner, Sun. and 4pm-11pm Mon.-Sat. $$
Dixie House Cafe 3701 E. Belknap St., 817.222.0883. Other locations: 6200 Cal-
houn St., 817.451.6180. 5401 S. Hulen St., 817.361.8500. 5401 Blue Mound Rd., 817.625.4115. 6:30am-8:30pm Mon.-Sat.; 7am3pm Sun. $
Drew’s Place 5701 Curzon Ave., 817.735.4408. 10:30am-6pm Tue.-Sat.; 11am-3pm Sun. $-$$
Ellerbe Fine Foods 1501 W. Magnolia Ave., 817.926.3663. Closed Sun.-Mon.; 11am-2pm and 5:30pm-9pm, Tue.-Thu.; 11am-2pm and 5:30-10pm, Fri.; 5:30pm-10pm, Sat. $$-$$$
Fred’s Texas Cafe 915 Currie St., 817.332.0083. 10:30am-midnight Tue.-Sat.; 10am-9pm Sun. 10:30am-9pm Mon. 2730 Western Center, 817.232.0111. 10:30am-midnight Tue.-Sat.; 3509 Blue Bonnet Circle, 817.916.4650. 10:30am-midnight, daily. $$
HG Sply Co. 1621 River Run, Ste. 176, 682.730.6070. 11am-10pm Mon.-Thurs.; 11ammidnight Fri.; 10am-midnight Sat.; 10am10pm Sun. $$-$$$
Hookers Grill. 213 West Exchange Ave., 817. 773.8373. 11 a.m.-3 p.m. Wed.-Thurs., 11 a.m.-2 a.m. Fri.-Sat., 11 a.m.-7 p.m. Sun. $$
Little Red Wasp 808 Main St., 817.877.3111. 11am10pm Mon.-Fri.; 10am-10pm Sat.-Sun.; Brunch to 4pm Sat.-Sun. $$-$$$
Lucile’s Stateside Bistro 4700 Camp Bowie Blvd., 817.738.4761. 11am-10pm Mon.-Thu.; 11am11pm Fri.; 9am-11pm Sat.; 9am-10pm Sun. $$ The Lunch Box 6333 Camp Bowie Blvd., 817.738.2181. 8am-2:30pm, daily. $
MASH’D 2948 Crockett Street. Hours: MondayThursday: 11am-9pm, Friday: 11am-11pm, Saturday:10am-11pm, Sunday: 10am-9pm $$
MAX’s Wine Dive 2421 W. 7th St., Ste. 109, 817.870.1100 4pm-11pm Mon.-Thu.; 4pm-midnight Fri.; 10am-midnight Sat.; 10am-10pm Sun.; Brunch 10am-3pm Sat. & Sun.; Happy Hour 4pm-6pm Mon.-Fri. $-$$
Montgomery Street Café 2000 Montgomery St., 817.731.8033. 6am-2pm Mon.-Fri.; 7am-Noon Sat.; Closed Sun. $
Old Neighborhood Grill 1633 Park Place Ave., 817.923.2282. 7am-9pm Mon.-Fri.; 8am-9pm Sat.; Closed Sun. $
Ol’ South Pancake House 1509 S. University Dr., 817.336.0311. Open 24 hours. $
Pappadeaux 2708 W. Freeway, 817.877.8843. Other location: 1304 E. Copeland Rd., Arlington, 817.543.0544. 11am-10pm Sun.-Thu.; 11am11pm Fri.-Sat. $$
Paris Coffee Shop 704 W. Magnolia, 817.335.2041. 6am-2:30pm Mon.-Fri.; Breakfast Only 6am11am Sat. $

Park Hill Cafe 2974 Park Hill Dr., 817.921.5660. 10am-2:30pm Mon.-Fri.; 10am-1pm Sat.-Sun. $-$$
Pop’s Safari 2929 Morton St., 817.877.0916. 9am10pm Mon.-Thu.; 9am-midnight Fri.-Sat.; Closed Sun. $$-$$$
Press Cafe 4801 Edwards Ranch Road, Ste. 105, 817.570.6002. 7am-10pm Mon.-Sun. $-$$ Rise & Shine 3636 Altamesa Blvd., 817.423.3555. 6am-2pm daily. $
Secret Garden Tearoom 2601 Montgomery St., 817.763.9787. 10am-6pm Mon.-Sat.; Noon-6pm Sun. $
The Rose Garden Tea Room 7200 Camp Bowie Blvd., 817.731.7673. 11:30am-3:30pm Mon-Sat.; 12pm-3:30pm Sun. $$
The Social House 840 Currie St., 817.820. 1510. 11am-2am Mon.-Sun. $$
Twin Creeks Café 3400 W. Loop 820 S. (inside Frank Kent Honda), 817.244.9600. 7:30am3:30pm Mon.-Fri.; 8am-3:30pm Sat. $
Vidalias Southern Cuisine 200 Main St., 817.210.2222. 6am-10pm daily. $$ Varsity Tavern 1005 Norwood St., 817.882.6699. 11am-2am Mon-Sun. Brunch 11am-4pm Sat-Sun. $$
Westside Café 7950 W. Camp Bowie Blvd., 817.560.1996. 6am-9pm Sat.-Thurs.; 6am-10pm Fri. $ GRAPEVINE
Mac’s on Main 909 S. Main St., Ste. 110, 817.251.6227. 11am-3pm, Lunch Mon.-Sat.; 4:30-9:30pm Mon.-Thu.; 4:30pm-10pm Fri.-Sat.; 10am-2:30pm Brunch, Sun.; 4:30pm-9:30pm Sun. $$
Tolbert’s Restaurant 423 S. Main St. 817.421.4888. 11am-9pm Mon.-Thu.; 11am-9:30pm Fri.-Sat.; 11am-8:30pm Sun. $$
Winewood Grill 1265 S. Main St., Grapevine, 76051 817.421.0200. 11am-10pm Mon.-Thu.; 11am-11pm Fri.-Sat.; 11am-9pm Sun. $$-$$$ KELLER/LAKE COUNTRY
FnG Eats 201 Town Center Ln., Ste. 1101, 11am9pm Mon.-Thu.; 11am-10pm Fri.; 10:30am10pm Sat.; 10:30am-9pm Sun. . $$ Main St. Cafe 900 S. Main St., 817.741.7600. 6am9pm, daily. $
Manny G’s Restaurant 444 Keller Pkwy., 817.431.9393. 8am-10pm, daily. $$
Seven Mile Café 110 W. Vine St., 817.379.3186. 7am-2pm, daily. $$
Snooty Pig Cafe 1540 Keller Pkwy, Ste. 130, 817.431.0064. 6:30am-2pm Mon.-Fri.; 7am-2pm Sat.-Sun. $
No Frills Grill and Sports Bar 801 S. Main St., 817.741.6344. 11am-2am, Daily. $$
The Angry Leprechaun 2041 Rufe Snow, Ste. 203, 817.903.9664. 11am-11pm Sun.-Thu.; 11am12am Fri.-Sat. $
Bronson Rock Wood-Fired Grill & Bar 250 S. Main St., 817.431.5543. 11am-12am Sun.-Wed.; 11am2am Thu.-Sat. $$
Dallas Craft Co. 1821 S. Main St., 817.337.0284. 11am-12am Mon.-Thu.; 11am-2am Fri.; 10am2am Sat.; 10am-12am Sun. $$
Judge Bean’s Restaurant & Cantina 314 N. Main St., 817.379.5872. 8am-9pm Sun.-Thu.; 8am-
10pm Fri.-Sat. $
Keller Tavern 128 S. Main St., 817.337.6711. 11am12am Sun.-Wed.; 11am-2am Thu.-Sat. $$
The Backstreet Bar & Grill 104 Navajo Dr., 817.337.7917. 4pm-12am Tue.-Thu.; 4pm-1am Fri.-Sat.; 3pm-9pm Sun.; Closed Mon. $$
The Local Watering Hole 1632 Keller Pkwy., Ste. 100, 817.431.3203. 11am-10pm Mon.-Thu.; 11am-11pm Fri.-Sat.; 11am-9pm Sun. $$
Babe’s Chicken Dinner House 104 N. Oak, 817.491.2900. 11am-2pm, 4:30pm-9pm Mon.Thurs.; 11am-2pm, 4:30pm-9pm Fri.; 11am9pm Sat.; 10:30am-9pm Sun. $ Classic Cafe 504 N. Oak St., 817.430.8185. Lunch Hours 11am-2:30pm Mon.-Fri.; Dinner Hours 5pm-9pm Mon.-Thu.; 5pm-10pm Fri. & Sat. $$-$$$
Dove Creek Café 204 S. Hwy. 377, 817.491.4973. 6am-8pm Mon.-Fri.; 6am-3pm Sat. & Sun. $
Reno Red’s Frontier Cooking 304 S. Hwy. 377, 817.491.4855. 11am-9pm Mon.-Thu.; 11am10pm Fri.-Sat.; 11am-10pm Sun. $-$$
Café Express 1472 Main St., 817.251.0063. 7am9pm Sun.-Thu.; 7am-10pm Fri.-Sat. $$
The Cheesecake Factory 1440 Plaza Place, 817.310.0050. 11am-11pm Mon.-Thu.; 11ammidnight Fri.-Sat.; 10am-11pm Sun. $$
Del Frisco’s Grille 1200 E. Southlake Blvd., 817.410.3777. 11am-11pm Mon.-Sat.; 10am-9pm Sun. $$
Modern Market 1161 E. Southlake Blvd. Bldg. O, Suite 260. 817.442.0123. 8:30am-9:30pm, Mon.-Sun. $$
Wildwood Grill 2700 E. Southlake Blvd., 817.748.2100. 11am-10pm, daily. $-$$
Fire Oak Grill 114 Austin Ave., 817.598.0400. Lunch: 11:30am-2pm Tue.-Fri.; Dinner: 5pm9pm Tue.-Thu.; 5pm-10pm Fri.-Sat. $$-$$$
Iron Skillet Restaurant 2001 Santa Fe Drive, 817.594.0245. Open 24 hours. $$
Weatherford Downtown Café 101 W. Church St., 817.594.8717. 7am-3pm Mon.-Wed.; 7am-8pm Thu.-Sat.; 8am-3pm Sun. $
Bethany Boba Tea House 705 Park Row Dr., 817.461.1245. 11am-10pm daily. $
Genghis Grill 4000 Five Points Blvd., Ste. 189, 817.465.7847. 11am-10pm Mon.-Thu.; 11am11pm Fri.; 10am-11pm Sat; 10am-10pm Sun. $$
Orchid City Fusion Cafe 2135 Southeast Pkwy., 817.468.3777. 11am-9pm Mon.-Sat.; noon-9pm Sun. $$
Pei Wei 2100 N. Collins St., 817.299.8687. Other locations: 4133 E. Cooper St., 817.466.4545. 11am-9pm Sun.-Thu.; 11am-10pm Fri.-Sat. $
Piranha’s Killer Sushi 859 N.E. Green Oaks Blvd., 817.261.1636. Other locations: Arlington Highlands 309 Curtis Mathes Way, Ste. 149 817.465.6455 11am-10pm Mon.-Thu.; 11am11pm Fri.; noon-11pm Sat.; Noon-10pm Sun. $$ Sukhothai 423 Fielder North Plaza, 817.860.4107.
11am-2pm Mon.-Fri.; 5pm-9:30pm Mon.-Sat. $
Taste Of Thai 2535 E. Arkansas Lane, 817.543.0110. 11am-10pm Mon.-Fri.; Noon10pm Sat.; Noon-9:30pm Sun. $
BEDFORD
MK’s Sushi 2400 Airport Fwy., Ste. 130, 817.545.4149. 11am-10pm Mon.-Sat.; 4:30pm-10pm Sun. $$
Thai Jasmine 3104 Harwood Rd., 817.283.8228. 11am-9pm Sun.-Thurs.; 11am-9:30pm Fri.-Sat. $ BURLESON
Taste Of Asia 130 NW John Jones Drive, Ste 206, 817.426.2239. 11am-9pm Mon.-Sun. $ FORT WORTH
Asia Bowl & Grill 2400 Lands End, Ste. 115, 817.738.1688. 11am-9pm Sun.-Thurs.; 11am9:30pm Fri.-Sat. $
Blue Sushi Sake Grill 3131 W. 7th St., 817.332.2583. 11am-10pm Mon.-Thu.; 11ammidnight Fri.; noon-midnight Sat.; noon-10pm Sun. $-$$
Cannon Chinese Kitchen 304 W. Cannon St. 817.238.3726. 11:30am-2:30pm Lunch, Tues.Fri.; 5pm-9pm Dinner, Tues.-Thurs.; 5pm10pm Dinner, Fri.-Sat. Closed Sun. $$
Edohana Hibachi Sushi 2704 S. Hulen, 817.924.1144. Other locations: 5816 S.W. Loop 820, 817.731.6002. Lunch 11:15am-2:15pm Mon.-Fri.; Dinner 5:15pm-10pm Mon.-Thu.; 4:45pm-10:30pm Fri.-Sat.; 4:45pm-9:30pm Sun $$
Hanabi Ramen & Izakaya 3204 Camp Bowie Blvd., 817.420.6703. Lunch 11am-2:30pm Mon.-Sat.; Dinner 5pm-10pm Mon.-Thu.; 5pm-11pm Fri.Sat.; Closed Sun. $$
HoYA Korean Kitchen 355 W. 3rd St., 817.334.7999. 11am-9pm Mon.-Sun. $
Japanese Palace 8445 Camp Bowie W., 817.244.0144. 5pm-10pm Sun.-Thu.; 5pm-11pm Fri.-Sat. $$-$$$
Kona Grill 3028 Crockett St., 817.210.4216. 11am10pm Mon.-Thu.; 11am-11pm Fri.-Sat.; 11am10pm Sun. $$
Little Lilly Sushi 6100 Camp Bowie, Ste. 12, 817.989.8886. 11am-2pm Mon.-Sat.; 5pm-10pm Mon.-Thu.; 5pm-11pm Fri.-Sat.; noon-9pm Sun. $$
My Lan 4015 E. Belknap St., 817.222.1471. 9am9pm Mon.-Sun. Closed Wed. $
Pappa Chang Asian Bistro 1526 Pennsylvania Ave., 817.348.9888. 11am-9:30pm Sun.-Thurs.; 11am-10pm Fri.-Sat. $
Pei Wei 5900 Overton Ridge Blvd., Ste. 130, 817.294.0808. Other location: 2600 W. 7th St., Ste. 101, Montgomery Plaza, 817.806.9950. 11am-9pm Sun.-Thu.; 11am-10pm Fri.-Sat. $
P.F. Chang’s 400 Throckmorton, 817.840.2450. 11am-10pm Sun.-Thu.; 11am-11pm Fri.-Sat. $
Pho Little Saigon 1712 Mall Circle., 817.738.0040. 10am-9pm Mon.-Sun. $
Phu Lam 4125 E. Belknap St., 817.831.9888. 10am9pm Daily $-$$
Piranha Killer Sushi 335 W. 3rd St., 817.348.0200. 11am-10pm Mon.-Wed.; 11am-11pm Thu.; 11am-midnight Fri.; noon-midnight Sat.; noon-10pm Sun. $$

Shinjuku Station 711 W. Magnolia Ave., 817.923.2695. 5pm-9pm Mon.; 11am-9pm Tues.-Thu.; 11am-10pm Fri.; 5pm-10pm Sat. $-$$
Spice 411 W. Magnolia Ave., 817.984.1800. 11am9:30pm Mon.-Thu.; 11am-10pm Fri.-Sat.; 11am-9pm Sun. $$
Sushi Axiom Japanese Fusion Restaurant 4625 Donnelly Ave., Ste. 101, 817.735.9100. 11am-10pm Mon.-Fri.; Noon-10pm Sat.; Noon-9pm Sun. Other locations: 2600 W. 7th St., 817.877.3331. 11am-10pm Mon.-Thu.; 11am11pm Fri.; noon-11pm Sat.; noon-9pm Sun. $$
Szechuan 4750 Bryant Irvin Rd., Cityview Plaza, 817.346.6111. 11am-10:30pm Fri.-Sat.; 11am-9:30pm Sun. Other location: 5712 Locke Ave., 817.738.7300. 11am-10:30pm Fri.; 11am9:30pm Sat.-Sun. $-$$
Taste Of Asia 4484 Bryant Irvin Road, Ste. 101, 817.732.8688. 11am-9:30pm Sun.-Thu.; 11am10pm Fri.-Sat.; 9324 Clifford St., Ste. 116, 817.246.4802. 11am-9pm Sun.-Thu.; 11am10pm Fri.-Sat,; 7420 Beach St., 817.503.1818. 11am-9pm Sun.-Thu.; 11am-10pm Fri.-Sat. $
Thailicious 4601 W. Freeway. Ste. 206 (Chapel Hill at I-30 & Hulen), 817.737.8111. 11am9:30pm Mon.-Thu. 11am-10pm Fri.-Sat. $-$$
Thai Select 4630 SW Loop 820, 817.731.0455. 11am-9:30pm Mon.-Thur.; 11am-10pm Fri.Sat.; 11am-9pm Sun. $
Thai Tina’s 600 Commerce St., 817.332.0088. 11am-9pm Sun.-Thu.; 11am-10pm Fri.-Sat.; 11am-midnight Bar, Sun.-Sat. $$
Tu Hai Restaurant 3909 E. Belknap St., 817.834.6473. 9am-8pm Mon.-Sat; Closed Sun.
$ GRAPEVINE
Edohana Hibachi Sushi 1501 W. State Hwy. 114 Ste. 100, 817.251.2004. 11:15am-2:30pm Lunch, Mon.-Fri.; 5pm-9:30pm Mon.-Thurs.; 5pm10pm Fri.-Sat.; 5pm-9:30pm Sun. $$ P.F. Chang’s 650 W. Highway 114, 817.421.6658. 11am-10pm Sun.-Thu.; 11am-11pm Fri.-Sat. $$ HURST
Sweet Basil Thai Cuisine 977 Melbourne Rd., 817.268.2899. Lunch: 11am-2:30pm Mon.-Fri.; Dinner: 5pm-9:30pm Mon.-Fri.; 11am-9:30pm Sat.; 11:30am-8pm Sun. $-$$
ASIAN
Pho in the Box 536 Keller Pkwy., 817.431.2583. 11 am-9pm Wed.-Mon.; Closed Tue. $ Simply Thai 2041 Rufe Snow Dr., Ste. 205, 817.849.2105. 11am-9pm Sun.-Thu.; 11am-9:30 Fri.-Sat. $$
Yokohama Hibachi & Sushi 1600 Keller Pkwy., Ste. 100, 817.741.6688. 11am-2:30 pm Lunch, Sun.-Fri.; 5pm-9:30 Dinner, Sun.-Thu.; 5pm10pm Dinner, Fri.-Sat. $$-$$$
Asian Wok 841 N. Tarrant Pkwy., Ste. 101, 817.503.9999. 11am-9pm Mon.-Thu.; 11am9:30pm Fri.-Sat.; 12pm-8pm Sun. $
Golden Thai Cuisine 1600 Keller Pkwy., Ste. 140, 817.741.5558. 11am-9pm Sun.-Thu.; 11am10pm Fri.-Sat. $$
Hong Kong Express 121 Rufe Snow Dr., Ste. E127, 817.431.1286. 11am-9:30pm Sun.-Thu.; 11am10pm Fri.-Sat. $
Rice Box 1000 S. Main St., Ste. 500, 817.741.6797. 11am-10pm, daily. $
Sea Siam Thai Restaurant 940 Keller Pkwy, Ste. 230, 817.431.1581. 11am-2:30pm Lunch, Mon.Fri.; 5pm-9pm Dinner, Mon.-Fri.; 12pm-9pm Sat.; Closed Sun. $$
Sake Hibachi Sushi And Bar 100 W. Debbie Lane, Mansfield, 817.453.5888. 11am-10pm, Mon.Thu.; 11am-10:30pm, Fri.-Sat.; noon-10pm, Sun. $-$$
Kobeya Japanese Hibachi & Sushi 1230 Main St., 817.416.6161. 11:30am-2pm Lunch, Mon.-Fri.; Noon-3p.m. Lunch, Sat.; 5pm-9:30pm, Dinner, Mon.-Thurs.; 5pm-10:30pm Dinner, Fri.-Sat.; Noon-9pm Sun. $$
Pei Wei 1582 E. Southlake Blvd., 817.722.0070. 11am-9pm Sun.-Thurs.; 11am-10pm Fri.-Sat. $
RA Sushi 1131 E. Southlake Blvd. Bldg. L. 817.601.9590. 11am-12am Sun.-Thu.; 11am1am Fri.-Sat. $$
Sushi Sam 500 W. Southlake Blvd., Ste. 138, 817.410.1991. 11am-9:30pm Mon.-Thurs.; 11am-11pm Fri.-Sat.; 5pm-9:30pm Sun. $-$$
David’s Barbecue 2224 W. Park Row Dr., Ste. H, 817.261.9998. 11am-9pm Tues.-Sat. $
Dickey’s Barbecue Pit 5530 S. Cooper, 817.468.0898. 1801 Ballpark Way, 817.261.6600. 11am-9pm daily. $
Oh My BBQ 901 E. Arkansas Ln. 817.303.1499. 10am-8pm Mon.-Thurs.; 10am-9pm Fri.-Sat. $
FORT WORTH
Angelo’s 2533 White Settlement Rd., 817.332.0357. 11am-9pm Mon.-Wed.; 11am-10pm Thu.-Sat.; closed Sun. $
Billy Bob’s Texas Honky Tonk Kitchen 2520 Rodeo Plaza. 817.626.2340. 11am-9pm Mon.Wed.; 11am-10pm Thu.; 11am-1am Fri.-Sat.; noon-9pm Sun. $
Billy’s Oak Acres BBQ 7709 Camp Bowie W Blvd. 817.731.2278. 11am-8:30pm Tue.-Sat.; 11am4pm Sun. $
Cooper’s Old Time Pit Bar-B-Que 301 Stockyards Blvd., 817.626.6464. 11am-8:30pm Sun.-Thu.; 11am-9:30pm Fri. and Sat. $
Cousin’s Pit Barbecue 6262 McCart Ave., 817.346.2511. Other locations: 5125 Bryant Irvin Rd., 817.346.3999. 9560. Feather Grass Ln., 817.750.2020. 11am-9pm Mon.-Sat. $
Dickey’s Barbecue Pit 451 University Dr., 817.231.8813. 11am-9pm daily. Other locations: 951 N. Beach St., 682.647.0222. 11am-9pm daily. 1989 Colonial Pwy., 817.759.7400. 11am9pm daily. 5412 Blue Mound Rd., 817.289.0027. 10:30am-8:30pm Sun.-Thu.; 10:30am-9pm Fri.-Sat. $
Heim Barbecue 1109 W. Magnolia Ave., 817.882.6970. 11am-10pm Wed.- Mon. Closed Tues. $$
Railhead Smokehouse 2900 Montgomery St., 817.738.9808. 11am-9pm Mon.-Sat. $ Red Hot And Blue 3000 S. Hulen St., 817.731.8770. 9143 Grapevine Hwy., 817.605.1333. 11am-9pm
Sun.-Thu.; 11am-10pm Fri.-Sat. $$
Riscky’s 6701 Camp Bowie Blvd., 817.989.1800. Other locations: 140 E. Exchange Ave. 817.626.7777. 300 Main St., 817.877.3306. 9000 Benbrook Blvd., 817.249.3320. 10:30am-8:30pm Mon.-Sat. $
Sammie’s Bar-B-Q 3801 E. Belknap, 817.834.1822. 9am-9pm Mon.-Thu.; 9am-10pm Fri.-Sat.; 11am-5pm, Sun. $-$$
Smokey’s Bbq 5300 E. Lancaster Ave. 817.451.8222. 11am-”until we run out” Mon.Fri.; 8am-”until we run out” Sat.-Sun. $ The Smoke Pit 2401 E. Belknap St., 817.222.0455. 10:30am-3:30pm Mon.; 10:30am-7pm Tues.Wed.; 10:30am-8pm Thurs.-Fri.; 10:30am-6pm Sat. $-$$
Trailboss Burgers 140 E. Exchange Ave, 817.625.1070. 11am-7pm Sun.-Thu.; 11am-9pm Fri.; 11am-10pm Sat. $-$$
HURST
Dickey’s Barbecue Pit 1858 Precinct Line Rd., 817.656.0200. 10:30am-9pm daily. $
KELLER
Roscoe’s Smokehouse 134 S. Main St., 682.593.7799. 11am-9pm Sun.-Wed.; 11am11pm Thu.-Sat. $$
WHITE SETTLEMENT
Soda Springs Bar-B-Q 8620 Clifford St., 817.246.4644. Mon.-Sat. 11am-2pm; Thurs. 4 pm-8pm; Fri. 11am-8:30pm; Sat. 11am-8pm; Sun. closed. $-$$
Texas De Brazil 101 N. Houston St., 817.882.9500. 11am-3pm Brunch, Sun.; 11am-3:30pm Lunch, Sun.; 11am-2pm Lunch, Fri.; 5pm-9:30pm Dinner, Mon.-Thu.; 5pm-10pm Fri.; 4:30pm-10pm Sat.; 4pm-9pm Sun. $$$
GRAPEVINE
Boi Na Braza 4025 William D. Tate, 817.251.9881. 5pm-9:45pm Mon.-Sat.; 5pm-8:45pm Sun. $$$
Al’s Hamburger’s 1001 N.E. Green Oaks Blvd.. Ste. 103, 817.275.8918. 7am-9pm, daily. $ Chapps 2045 N. Hwy. 360, 817.649.3000. Other locations: 153 Southwest Plaza (1-20 & Little Road), 817.483.8008, 11am-9pm Sun.-Thurs.; 11am-10pm Fri.-Sat. 2596 E. Arkansas, 817.460.2097. 10:45am-9pm Mon.-Fri.; 11am9pm Sat.-Sun. $
Chop House Burgers 2230 Park Row Drive, Ste. A, 817.459.3700. 11am-9pm Mon.-Thurs.; 11am10pm Fri.-Sat. $
Kincaid’s 3900 Arlington Highlands Blvd., Ste. 113, 817.466.4211. 11am-9pm Mon.-Sat.; 11am-7pm Sun. $
Tom’s Burgers & Grill 1530 N. Cooper St., 817.459.9000. 6am-10pm Mon.-Sat.; 6am-9pm Sun. $-$$
Dutch’s 3009 S. University Dr., 817.927.5522. 11am-9pm Sun.-Wed.; 11am-10pm Thu.-Sat. $
The Great Outdoors 3204 Camp Bowie Blvd., 817.877.4400. 9am-9pm Mon.-Sat.;


Fort Worth Magazine produces branded events throughout the year offering advertisers a faceto-face opportunity with our readers. Top Doctors, Top Attorneys, Top Chef and Best Of are just a few of the exclusive events our subscribers look forward to each year. We bring every party to life.
Fort Worth Magazine. Where Events Begin. Where the Best Begins.
10am-8pm Sun. $
Hopdoddy 2300 W. Seventh St., Ste. 140, 817.270.2337. 11 a.m.-10 p.m. Sun.-Thurs. 11 a.m.-11 p.m. Fri.-Sat. $$
Kincaid’s 4901 Camp Bowie Blvd., 817.732.2881, 11am-8pm Mon.-Sat.; 11am-3pm Sun. Other locations: 4825 Overton Ridge Blvd., 817.370.6400. 3124 Texas Sage Trail, 817.750.3200. 11am-9pm Mon.-Sat.; 11am-7pm Sun. $
The Love Shack 110 E. Exchange Ave., 817.740.8812, 11am-9pm Sun.-Wed.; 11am10pm Thurs.; 11am-1am Fri.-Sat. $
M & O Station Grill 200 Carroll St., 817.882.8020. 11am-4pm Mon.;
11am-9pm Tues.-Sat. Closed Sun. $
Rodeo Goat 2836 Bledsoe & Currie, 817.877.4628. 11am-10pm Sun.-Thu.; 11am-midnight Fri.-Sat. $-$$
Shaw’s Patio Bar And Grill 1051 W. Magnolia Ave. 817.926.2116. 11am-2:30pm Mon.; 11am- 9pm Tue.-Thu.; 11am-11pm Fri.; 10:30am-11pm Sat.; 10:30am-8pm Sun. $-$$
Tommy’s Hamburger Grill 5228 Camp Bowie Blvd., 817.569.1111. Other location: 2455 Forest Park Blvd., 817.920.1776. 11am-9pm Mon.-Sat.; 11am-8pm Sun. $
Woodshed Smokehouse 3201 Riverfront Drive, 817.877.4545. 8am-11am Breakfast, Mon.-Sat.; 8am-2pm Brunch, Sun.; 11am-10pm Lunch, Mon.-Thurs.; 11am-11pm Fri.-Sat.; Noon-10pm Sun.; until midnight, Bar, Wed.-Sat. $-$$
Z’s Café 1116 Pennsylvania Ave. 817.348.9000. 10am-2pm Mon.-Fri. $ KELLER
Chapps Burgers 1004 Keller Pkwy., Ste. B106, 817.431.3888. 11am-9pm, daily. $
Bottlecap Alley Icehouse Grill 148 S. Main St., 682.593.0493. 11am-10pm Sun.-Thu.; 11am11pm Fri.-Sat. $ SOUTHLAKE
Johnny B’s Burgers & Shakes 2704 E. Southlake Blvd., 817.749.0000. 10:30am-8:30pm Mon.-Thu.; 10:30am-9pm Fri.-Sat.; 10:30am-3pm Sun. $ Kincaid’s 100 N. Kimball Ave., 817.416.2573. 11am-9pm Mon.-Sat.; 11am-7pm Sun. $
Continental
ARLINGTON
Café At Daireds 2400 W. I-20, 817.465.9797. 817.465.9797. 12pm-6pm Sun.; 9am-6pm Mon.; 9am-7pm Tue.; 9am-9pm Wed.-Thu.; 9am-6pm Fri.; 8:30am-5:30pm Sat. $-$$
FORT WORTH
Six10Grille 610 Main St., 817.332.0100. 6:30am10:30am Mon.-Fri. $-$$$
Delis & Bakeries
ARLINGTON
Iris Bagel And Coffee House 5801 W. Interstate 20, 817.561.9989. 5:30am-2pm Mon.-Sat.; 7am-2pm Sun. $
FORT WORTH
85°C Bakery Café 628 Harrold St., Ste. 140, 817.882.8585. 8am-9pm Sun.-Sat. $ Baker Bros. American Deli 6333 Camp Bowie
Blvd., Ste. 244, 817.989.1400. Other locations: 501 Carroll St., Ste. 658., 817.332.0500. 3300 Heritage Trace Pwy., Ste. 110, 817.750.6666. 10am-9pm daily. $
Black Rooster Bakery 2430 Forest Park Blvd., 817.924.1600. 7am-6pm Tue.-Fri., 8am-4pm Sat. $
Bluebonnet Bakery 4705 Camp Bowie Blvd., 817.731.4233. 7am-6pm Mon.-Fri.; 7am-4pm Sat. $
Boopa’s Bagel Deli 6513 N. Beach St., 817.232.4771. 5:30am-2pm Mon.-Fri.; 6:30am-2pm Sat.; 6:30am-1pm Sun. $
Busy B’s Bakery 3701 Southwest Blvd., 817.731.8986. 5:30am-noon Tues.-Sun. $
Carshon’s Delicatessen 3133 Cleburne Rd., 817.923.1907. 9am-3pm Mon.-Sat. $
Corner Bakery Café 3010 S. Hulen St., 817.665.9949. 6:30am-9pm daily. $
The Cupcake Cottage 5015 El Campo Ave., 817.732.5670. 10am-4pm Tues.-Fri.; 10am-2pm Sat. $
Esperanza’s Mexican Café & Bakery 2122 N. Main St., 817.626.5770. 6am-7pm daily. Other locations: 1601 Park Place Ave. 817.923.1992, 6:30am-9pm Mon.-Thu.; 6am-10pm Fri.-Sat.; 6am-5pm Sun. $
J. Rae’s 935 Foch St., 817.332.0090. 9am-7pm Mon.-Fri.; 9am-5pm Sat. $
McKinley’s Fine Bakery & Café 1616 S. University Dr. Ste. 301, 817.332.3242, 7am-6:30pm Mon.Fri.; 8am-6:30pm Sat.; 11am-5pm Sun. $
Panera Bread 1700 S. University Dr., 817.870.1959. Other location: 1804 Precinct Line Rd., 817.605.0766. 1409 N. Collins, Arlington, 817.548.8726. 2140 E. Southlake Blvd., Ste. S. 817.416.5566. 4611 S. Hulen St. 817.370.1802. 6:30am-9pm Mon.-Sat.; 7am-8pm Sun. $ Pearl Snap Kolaches 4006 White Settlement Road. 817.233.8899. 6am-2pm Mon.-Fri., 7am-2 pm Sat.-Sun. Other location: 2743 S Hulen Street. 817.233.8899. 6am-12pm Mon.-Fri., 7am-12 pm Sat.-Sun. $
Sweet Sammies 825 Currie St., 817.332.0022. 11am-9pm Mon.-Wed.; 11am-10pm Thurs.Sat.; Noon-9pm Sun. $ Swiss Pastry Shop 3936 W. Vickery, 817.732.5661. 7am-6pm Bakery, 7am-11am Breakfast, 11am3:30pm Tues.-Sat. $
The Snooty Pig 2401 Westport Pkwy., Ste. 120, 817.837.1077. Other locations: 100 Country Club Rd., 940.464.0748; 2940 Justin Rd., 972.966.1091, 6:30am-2pm Mon.-Fri.; 7am-2pm Sat.-Sun. $
Yogi’s Deli and Grille 2710 S. Hulen St., 817.924.4500. 6:30am-3:30pm Mon.-Fri.; 7am3:30pm Sat.; 7:30am-3pm Sun. $ Yolk 305 Main St., 817.730.4000. 6am-3pm Mon.Fri.; 7am-3pm Sat.&Sun. $
GRAPEVINE
Breadhaus 700 W. Dallas Rd., 817.488.5223. 9am6pm Tues.-Fri.; 9am-4pm Sat. $$
Main Street Bistro and Bakery 316 Main St., 817.424.4333, 6:30am-3pm Mon.; 6:30am9pm Tues.-Thurs.; 6:30am-10:30pm Fri.-Sat.; 6:30am-9pm Sun. $
The Snooty Pig 4010 William D. Tate,
817.283.3800. 6:30am-2pm Mon.-Fri.; 7am-2pm Sat.-Sun. $
Weinburger’s Deli 601 S. Main St., Ste. 100, 817.416.5574. 10am-7pm Mon.-Sat.; 11am-3pm Sun. $
HUDSON OAKS
Ultimate Cupcake 3316 Fort Worth Highway, 817.596.9090. 10am-5pm Tue.-Fri.; 10am-1pm Sat.; Closed Sun.-Mon. $
KELLER
Bakeology DFW 126 Taylor St., 817.562.2500. 10am-4pm Tue.-Fri.; 10am-12pm Sat.; Closed Mon.-Sun. $$
Cupcake Loco 900 S. Main St., Ste. 351, 682.593.0630. 10:30am-5:30pm Tue.-Fri.; 10:30am-5pm Sat.; Closed Sun.-Mon. $ Smallcakes 721 Keller Pkwy., Ste. 103, 682.593.8100. 10am-8pm Sun.-Thu.; 10am-9pm Fri.-Sat. $
Sweet Memories Cakes & Catering 138 Keller Pkwy., 817.379.3777. 9am-5pm Tue.-Fri. $$
Texas Harvest Pie Company 138 Olive St., 817.798.9474. 11am-5pm Tue.-Sat.; Closed Mon.-Sun. $$
Brew’n Blues Coffee House 841 N. Tarrant Pkwy., Ste. 100, 817.485.0909. 6am-6pm Mon.-Fri.; 7am-6pm Sat.-Sun. $
Elegant Cakery 5351 Nolen Drive, Ste. 200, 817.488.7580. 10am-6pm Tue.-Fri.; 10am-3pm Sat. $-$$
Weinburger’s Deli 3 Village Circle, Ste. 116, Westlake, 817.491.9119. 8:30am-7pm Mon.-Sat.; 11am-3pm Sun. $
ARLINGTON
The Melting Pot 4000 Five Points Dr., Ste. 119, 817.472.9988. 5pm-10pm Mon.-Thu.; 5pm-11pm Fri.; 3:30pm-11pm Sat.; 3pm-9pm Sun. $$-$$$
FORT WORTH
Café Modern 3200 Darnell, 817.738.9215. 11am2:30pm Lunch, Tues.-Fri.; 10am-3pm Sat.-Sun.; 5pm-8pm Dinner (during lecture series), Tues.; 5pm-8:30pm Dinner, Fri.; Bar: 10am4:30pm, Tues.-Sun.; 10am-9:30pm Fri. $$ Fixture - Kitchen and Social Lounge 401 W. Magnolia Ave., 817-708-2663. 11am-9pm Mon.-Thu.; 11am-10pm Fri.; 10am-10pm Sat.; 10am-2pm Sun. $$
Kimbell Art Museum 3333 Camp Bowie Blvd., 817.332.8451, ext. 251. For reservations call 817.332.8541 ext. 277. Lunch 11:30am-2pm Tue.-Thu. & Sat.; noon-2pm Fri. & Sun.; Dinner 5:30pm-7:30pm Fri. $$
Lili’s Bistro 1310 W. Magnolia Ave., 817.877.0700. Lunch Hours 11am-2:30pm Mon.-Sat.; Dinner Hours 5:30pm-9pm Tue.-Thu.; 6pm-10pm Fri. & Sat. $$
Reservoir Bar, Patio And Kitchen 1001 Foch St. 817.334.0560. 3pm-2am Mon.-Fri.; noon-2am Sat.-Sun. $-$$
Righteous Foods 3405 W. 7th St., 817.850.9996. 7am-9pm Mon.-Fri.; 9am-9pm Sat.; Closed Sun. $$
Simply Fondue 111 W. 4th St., 817.348.0633, 5pm10pm Sun.-Thurs.; 5pm-11pm Fri.-Sat. $$-$$$























Spiral Diner 1314 W. Magnolia, 817.332.8834. 11am-10pm Tue.-Fri.; 9am-10pm Sat.-Sun. $
Taste Community Restaurant 1200 South Main St., 817.759.9045. 11am-2pm Tues.-Sun. Prices vary.
Winslow’s Wine Café 4101 Camp Bowie Blvd. 817.546-6843. Mon.-Thu. 4pm-11pm; Fri. 4pm-midnight; Sat. 10:30am-2pm and 4pm-midnight; Sun. 10:30am-2pm and 4pm-10pm. $-$$$$
FORT WORTH
King Tut 1512 Magnolia Ave., 817.335.3051. 11am2:30pm Mon.-Sat. 5:30pm-9pm Mon.-Sat. $$
La Madeleine 2101 N. Collins St., Arlington, 817.461.3634. 6:30am-10pm daily. Other location: 4201 S Cooper St., Arlington, 817.417.5100. 6:30am-10pm Sun.-Thu.; 6:30am-11pm Fri.-Sat. $ FORT WORTH
La Madeleine 6140 Camp Bowie Blvd., 817.654.0471. 6:30am-10pm Sun.-Thu.; 6:30am11pm Fri.-Sat. Other locations: 4626 SW Loop 820. 817.717.5200.; 900 Hwy. 114 W., Grapevine, 817.251.0255. 6:30am-10pm daily $ Paris 7th 3324 W 6th St. 817.489.5300. 5:30pm-9:30pm Tue -Sat.; Closed Sun.Mon. $$$ Saint-Emilion 3617 W. 7th St., 817.737.2781. 5:30pm-9:30pm Tue.-Thu.; 5:30pm-10pm Fri.-Sat. $$$
FORT WORTH
Edelweiss 3801 Southwest Blvd., 817.738.5934. 5pm-9:30pm Wed.-Thu.; 5pm-10:30pm Fri.Sat.; Noon-9pm Sun. $$ Greenwood’s 3522 Bluebonnet Cir., 817.921.6777. Lunch: 11am-2pm Thu. & Fri. 4pm-9pm Tue. Thu.; 4pm-10pm Fri.-Sat. $$
FORT WORTH
Café Medi 420 Grapevine Hwy., Ste. 101A, Hurst, 817.788.5110. Other location: 129 E. Olive St., Keller, 817.337.3204. 11am-2:30pm, 5pm-10pm Tue.-Sat.; 11am-9pm Sun. $ Greek House 2426 Forest Park Blvd., 817.921.1473. 11am-8pm Mon.-Sat. $ Jazz Café 2504 Montgomery St., 817.737.0043. 11am-3pm Mon.-Fri.; 9am-3pm Sat.; 9am-2pm Sun. $ The Vine Greek Taverna 2708 W. 7th St., 817.334.0888. 11am-2pm Tue.-Sat.; 5pm-9pm Tue.-Sat. $
Tandoor Indian Restaurant 1200 N. Fielder Rd., Ste. 532, 817.261.6604. 11:30am-2:30pm Lunch, 5:30pm-10pm Dinner, daily. $-$$
FORT WORTH
Bombay Grill 4625 Donnelly Ave., 817.377.9395.

There’s nothing like this giveand-take, nonprofit restaurant, where patrons pick their prices and revenues go toward fighting hunger in the community. There’s also nothing like its summer menu, which includes vegan Gazpacho made with watermelon, tomato and cucumber; Elote Fritters topped with lime crème fraiche and queso fresco; and a BBQ Burger topped with fried haystack onions. You have a month left to enjoy it all before the menu changes Sept. 4. tasteproject.org
1200 South Main St.
817.759.9045
Tues.-Sun. 11 a.m.-2 p.m.

11am-2pm Lunch, Mon.-Thurs.; 5:30pm-10pm Dinner, Mon.-Thurs.; 11am-2pm Lunch, Fri.; 5:30pm-10:30pm Dinner, Fri.; 11:30am-2:30pm Lunch, Sat.; 5:30pm-10:30pm Dinner, Sat.; 11:30am-2:30pm Lunch, Sun; 5:30pm-9pm Dinner, Sun. $ Maharaja 6308 Hulen Bend Blvd., 817.263.7156. 11am-2pm Mon.-Fri.; 11:30am-2:30pm Sat.-Sun.; 5:30pm-10pm Sun.-Thu.; 5:30pm10:30pm Fri.-Sat. $$
Route 66 100 E Altamesa Blvd. 469.605.9684. 11am-9pm every day. Buffet every day, specials at dinner. $$
Birraporetti’s 668 Lincoln Square, 817.265.0555. 5pm-10pm daily. $$
Italianni’s 1601 Precinct Line Rd., Hurst, 817.498.6770. 11am-10pm Sun.-Thu.; 11am11pm Fri.-Sat. $$
La Bistro 722 Grapevine Hwy., Hurst, 817.281.9333. 11am-9:30pm Tues.-Thurs.; 11am-9:30pm Fri.; 5pm-9:30pm Sat.; 11am9pm Sun. $$
Mama’s Pizza 1200 N. Fielder, 817.795.8700. Lunch buffet: 11am-2pm daily. Delivery through Entrees-To-Go: 11am10pm Mon.-Thu.; 11am-11pm Fri.-Sat.; noon-10pm Sun. $
Mellow Mushroom 200 N. Center St. 817.274.7173. 11am-9pm Sun.-Thu.; 11am-10pm Fri.-Sat. $$
Moni’s 1730 W. Randol Mill Road, Ste. 100, 817.860.6664. 11am-10pm Mon.-Sat.; 11am9pm Sun. $$
Nizza Pizza 1430 S. Cooper, 817.274.5222. 11am10pm Sun.-Thu.; 11am-11pm Fri.-Sat. $
Palio’s Pizza Café 5712 Colleyville Blvd. Ste. 130, 817.605.7555. 11am-9:30pm Sun.-Thurs.; 11am11pm Fri.-Sat. $
Piccolo Mondo 829 E. Lamar Blvd., 817.265.9174. Lunch: 11:30am-2:15pm Mon.-Fri.; Dinner: 5:30pm-10:15pm Mon.-Thu.; 5:30pm-11pm Fri. & Sat.; 5pm-10pm Sun. $-$$
Prespa’s 4720 Sublett Road, Arlington, 817.561.7540. Other location: 3100 W. Arkansas Ln. B, Dalworthington Gardens, 817.459.2775. 11am-9pm Mon.-Thu.; 11am-10pm Fri.-Sat.; 11am-9pm Sun. $$
Aventino’s Italian 5800 Lovell Ave., 817.570.7940.11am-2pm Mon.-Fri.; 5pm-9pm Mon.-Thurs.; 5:30pm-10pm Fri. & Sat. $$$
Bella Italia West 5139 Camp Bowie Blvd., 817.738.1700. 11:30am-1:30pm Mon.-Fri.; 6pm9pm Mon.-Thu.; 6pm-10pm Fri.-Sat. $$
Café Bella 3548 South Hills Ave., 817.922.9500. 11am-10pm Mon.-Fri.; 4pm-10pm Sat. Closed Sun. $-$$
Campisi’s 6150 Camp Bowie Blvd., 817.916.4561. 11am-10pm Mon.-Sun. $$
Cane Rosso 815 W. Magnolia Ave., 817.922.9222. 11am-3pm Lunch, Tue.-Sun.; Brunch 11am3pm Sat.-Sun.; Dinner 5pm-10pm Mon.-Thu.; 5pm-11pm Fri.-Sun. $$
Fortuna 5837 Camp Bowie Blvd., 817.737.4469. 11am-10pm, daily. $







SATURDAY, AUGUST 25, 2018
6:00 - 9:00 P.M.
The Worthington Renaissance Hotel 200 Main St., Fort Worth, TX 76102
$100 INDIVIDUAL TICKETS
COCKTAIL ATTIRE
PLEASE RSVP BY AUGUST 15, 2018


MUSIC PROVIDED BY: THE FREDDIE JONES JAZZ GROUP
6:00 P.M.
Yappy Hour Cocktail Reception with Light Refreshments
Silent Auction
7:00 P.M.
Dinner
Live Auction
HSNT Hero Awards


La Piazza 2930 Bledsoe St., 817.334.0000, 5pm10pm Mon.-Thurs.; 5pm-11pm Fri.-Sat.; Closed Sun. (in the summer). $$$
Mama’s Pizza 1813 W. Berry St., 817.923.3541. Other locations: 5800 Camp Bowie Blvd., 817.731.6262. 5811 Bryant Irvin, Ste. 101, 817.346.6262. Lunch buffet: 11am-2pm daily. Delivery through Entrees-To-Go: 11am-10pm Mon.-Thu.; 11am-11pm Fri.-Sat. $
Mancuso’s 9500 White Settlement Rd., 817.246.7041. 10:30am-9pm Sun.-Thu.; 10:30am-10pm Fri.-Sat.; 10am-9pm Sun. $
Margie’s Original Italian Kitchen 9805 Camp Bowie W., 817.244.4301. 5pm-10pm Wed.Thurs., Sun.; 5pm-11pm Fri.-Sat. $$
MidiCi Pizza 629 Stayton St., Ste. 160, 817.349.0031. 11am-9pm Sun.-Thurs.; 11am11pm Fri.-Sat. $$
Mellow Mushroom 3455 Bluebonnet Circle, 817.207.9677. 11am-9pm Sun.-Thurs.; 11am-10pm Fri.-Sat. $$
Milano’s 3416 W. 7th St., 817.332.5226. 11am-10pm Mon.-Sat. $
Nizza Pizza 401 University Dr., 817.877.3900. 11am-10pm Sun.-Thu.; 10:30am-11pm Fri.-Sat. $
Nonna Tata 1400 W. Magnolia Ave., 817.332.0250, 11am-2pm Lunch, Tue.-Fri.; 5:30pm-8:30pm Dinner, Tue.-Thu.; 5:30pm-9:30pm Fri.; 5:30pm-9pm Sat. $-$$
Piattello Italian Kitchen 5924 Convair Drive, Ste. 412, 817.349.0484, Sun.-Thurs. 11 a.m.-2 p.m, 5 p.m.-9 p.m.; Fri.-Sat. 11 a.m.-2 p.m., 5 p.m.-10 p.m.; Sat.-Sun. Brunch 10:30 a.m.-3 p.m.; Sun.Sat. Coffee Bar 7 a.m.-Close $$
Piola 3700 Mattison Ave., 817.989.0007. 11am-2pm Mon-Fri; 5pm-10pm Mon-Sat. $$
Pizzeria Uno Chicago Grill 300 Houston St., 817.885.8667. 11am-11pm Sun.-Thu.; 11ammidnight Fri. & Sat. $
Taverna Risotteria 450 Throckmorton St., 817.885.7502. Sunday brunch. 11am-10pm Mon.-Thu.; 11am-11pm Fri. & Sat.; 10am-10pm Sun. $-$$
Thirteen Pies 2949 Crockett St., 817.769.3590. 11am-10pm Sun.-Thu.; 11am-11pm Sat. $$ KELLER
Niki’s Italian Bistro II 2041 Rufe Snow Dr., Ste. 209, 817.514.0892. 11am-10pm Mon.-Sat.; 11am-9pm Sun. $$
Bosses Pizza 201 N. Main St., 817.337.9988. 11am9pm Sun.-Thu.; 11am-10pm Fri.-Sat. $ Devivo Bros. Eatery 750 S. Main St., Ste. 165, 817.431.6890. 7am-9pm Mon.-Sat.; 7am-3pm Sun. $$
Joe’s Pasta ‘N Pizza 837 Keller Pkwy., 817.431.0361. 11am-10pm Mon.-Fri.; 12pm-10pm Sat.; 11am9pm Sun. $
My New York Pizza 841 N. Tarrant Pkwy, 817.514.7700. 11am-10pm Mon.-Sat.; 11am9pm Sun. $
Palio’s Pizza Cafe 460 Keller Pkwy., Ste. D, 817.431.2344. 11am-9pm Sun.-Thu.; 11am-9:30 Fri.-Sat. $$
SOUTHLAKE/COLLEYVILLE
Brio Tuscan Grill 1431 Plaza Place, Southlake, 817.310.3136. 11am-10pm Mon.-Thu.; 11am-
11pm Fri.-Sat.; 11am-9pm Sun. $-$$
Buca Di Beppo 2701 E. State Hwy. 114, Southlake, 817.749.6262. 11am-10pm Mon.-Thu.; 11am11pm Fri.-Sat.; 11am-9pm Sun. $$
Ferrari’s Italian Villa 1200 William D. Tate Ave., 817.251.2525, 5pm-9:30pm Mon.-Thurs.; 5pm10:30pm Fri.-Sat.; Closed Sun. $$-$$$
Nizza Pizza 3930 Glade Rd., Ste. 101, 817.283.4700. 11am-10pm Sun.-Thu.; 10:30am-11pm Fri.-Sat. $
Ruggeri’s Ristorante 32 Village Ln., Ste. 100, Colleyville, 817.503.7373. Lunch: 11am-2pm Mon.Fri.; Dinner: 5pm-9pm Sun.-Thu.; 5pm-10pm Fri.-Sat. $$
Fireside Pies 1285 S. Main St., Grapevine, 817.416.1285. 11am-10pm Sun.-Thu.; 11am11pm Sat. $$
Dona Carmen Pupuseria Restaurant. 1818 Hemphill St. 817.920.9868. 9am-9pm Sun.-Sat. 1712 N Sylvania Ave. 682.647.1700. 8:30am-8:30pm Sun.-Sat. $
Gloria’s Colleyville: 5611 Colleyville Blvd., 817.656.1784. 11am-10pm daily. Fort Worth: 2600 W. 7th St., 817.332.8800. 11am-9pm Sun.Mon.; 11am-10pm Tue.-Thu.; 11am-10:30pm Fri.-Sat. Arlington: 3901 Arlington Highlands Blvd., Ste. 137, 817.701.2981. 11am-11pm Fri.Sat. $-$$
Trevino’s 1812 Montgomery St., 817.731.8226. 11am-9pm Mon.-Thu.; 11am-10pm Fri.; 10am9:30pm Sat.; 10am-8:30pm Sun. $-$$
Yucatan Taco Stand 909 West Magnolia Ave., 817.924.8646. 10am-10pm Sun.; 11am-10pm Mon.-Thu.; 11am-midnight Fri.; 10ammidnight Sat. $$
Byblos 1406 N. Main St., 817.625.9667. 11am-4pm and 5pm-10pm Mon.-Wed.; 11am-2am Thu.Fri.; 4pm-1:30am Sat.; Sunday available for private parties. $$
Chadra Mezza & Grill 1622 Park Place Ave., 817.924.2372. 11am-3pm Mon.-Tues.; 11am10pm Wed.-Sat.; Closed Sun. $-$$ Istanbul Grill 401 Throckmorton St., 817.885.7326. 11 a.m.-10 p.m. Mon.-Thu.; 11 a.m.-11 p.m. Fri.Sat.; 11 a.m.-10 p.m. Sun. $-$$$
Opa Mediterranean Cafe 2708 W. 7th St., 817.334.0888, 11am-3pm Mon.-Thurs.; 5pm9pm Mon.-Thurs.; 11am-10pm Fri.-Sat. $ Saffron Sky 449 N. Beach St., 682.708.3901. 11am-6pm Mon.-Fri.; 11am-4pm Sat.; Closed Sun. $-$$
Terra Mediterranean Grill 2973 Crockett St., 817.744.7485. 11am-2:30pm, 5pm-10pm, Mon.Fri.; 11am-11pm, Sat.; 11am-3pm Lunch, 5pm9pm Dinner, Sun. $-$$
Cafe Medi 129 E. Olive St., 817.337.3204. 11am2:30pm Lunch, Tue.-Sat.; 5pm-10pm Dinner, Tue.-Sat.; 11am-9pm Sun.; Closed Mon. $$
Luna Grill 1141 E. Southlake Blvd. Suite 530.
817.488.8811. 11am-9pm Mon.-Sun. $-$$
Chipotle 5001 S. Cooper St., Ste. 125, 817.522.0012. Other location: 2151 N. Collins St., 817.459.0939. 11am-10pm daily. $ Chuy’s 4001 Bagpiper Way, Ste. 199, 817.557.2489. 11am-10pm Sun.-Thu.; 11am-11pm Fri.-Sat. $ El Fenix 1620 E. Copeland Rd., 682.558.8890. Other location: 4608 S. Cooper Rd., 817.557.4309. 11am-10pm daily. $
Fuzzy’s Taco Shop 510 East Abram, 817.265.8226. Other locations: 4201 W. Green Oaks Blvd., Arlington, 817.516.8226. 2030 Glade Rd, Ste. 296, Grapevine, 817.416.8226. 480 W. Southlake Blvd., Ste. 101, Southlake, 817. 488.2500. 7ammidnight Mon.-Wed.; 7am-1am Thu.; 7am3am Fri. & Sat.; 7am-10pm Sun. $
Rio Mambo 6407 S. Cooper St. 817.465.3122, 11am-9:30pm Mon.-Thurs.; 11am-11pm Fri.; 10am-1:30am Sat.; 10am-9:30pm Sun. $$
El Fenix 401 State Hwy. 114 W., Grapevine, 817.421.1151. 11am-10pm daily. $
Esparza’s 124 E. Worth St., 817.481.4668. 11am10pm Mon.-Thu.; 11am-11pm Fri.-Sat.; 11am9:30pm Sun. $
La Hacienda Ranch 5250 Hwy. 121, Colleyville, 817.318.7500. 11am-10pm Sun.-Thu.; 11am11pm Fri.-Sat. $$
Rio Mambo 5150 Hwy. 121, 817.354.3124. 11am9:30pm Mon.-Thurs.; 11am-11pm Fri.; 10am11pm Sat.; 10am-9:30pm Sun. $$
Benito’s Restaurant 1450 W. Magnolia Ave., 817.332.8633. 11am-9pm Mon.-Thu., 11am2am Fri.; 10am-2am Sat.; 10am-9pm Sun. $$ Cantina Laredo 530 Throckmorton St., 817.810.0773, 11am-9pm Sun.-Thurs; 11am11pm Fri.-Sat. Other location: 4020 William D. Tate, Ste. 208, Grapevine, 817.358.0505, 11am-10pm Mon.-Thurs.; 11am-11pm Fri.-Sat.; 11am-9pm Sun. $-$$
Chimy’s Cerveceria 1053 Foch St., 817.348.8888. 11am-midnight Mon.-Sat. $
El Fenix 6391 Camp Bowie Blvd., 817.732.5584. 11am-10pm daily. $
El Rancho Grande 1400 N. Main St., 817.624.9206. 11am-9pm Mon.-Thu.; 11am-10pm Fri.-Sat. $-$$
Enchiladas Ole 901 N. Sylvania Ave., 817.984.1360, 11am-3pm Mon.-Wed.; 11am8pm Thurs.; 10am-9pm Sat.; Closed Sun. $$
Fuzzy’s Taco Shop 2917 W. Berry St., 817.924.7943. Other Locations: 2719 Race St., 817.831.8226. 5710 Rufe Snow, 817.465.3899. 6353 Camp Bowie Blvd., Ste. 101, 817.989.8226. 5724 Bryant Irvin Rd., 817.292.8226. 9180 N. Fwy., Ste. 500, 817.750.8226. 7am-midnight Mon.-Wed.; 7am-1am Thu.; 7am-3am Fri. & Sat.; 7am-10pm Sun. $
Joe T. Garcia’s 2201 N. Commerce, 817.626.4356. Cash only. 11am-2:30pm, 5pm-10pm Mon.Thu.; 11am-11pm Fri.-Sat.; 11am-10pm Sun. $$
La Familia 841 Foch St., 817.870.2002, 11am-9pm


















Tues.-Thurs.; 11am-9:30pm Fri.-Sat.; Closed Sun.-Mon. $
La Playa Maya 6209 Sunset Dr., 817.738.3329. Other locations: 1540 N. Main St., 817.624.8411. 3200 Hemphill St., 817.924.0698. 11am-10pm Sun.-Thu.; 11am-11pm Fri.-Sat. $
Los Asaderos 1535 N. Main St., 817.626.3399, 11am-10pm Mon.; Closed Tues.; 11am-10pm Wed.-Thurs.; 11am-midnight Fri.-Sat.; 10am10pm Sun. $-$$
Los Molcajetes 4320 Western Center Blvd., 817.306.9000. 11am-9:30pm Mon.-Thu.; 11am10pm Fri.; 9am-10pm Sat.; 9am-9pm Sun. $ Los Vaqueros 2629 N. Main St., 817.624.1511, 11am-9pm Sun.-Thurs.; 11am-10pm Fri.Sat. Other Location: 3105 Cockrell Ave., 817.710.8828, 10:30am-9pm Sun.; 11am-9pm Mon.-Thurs.; 11am-11pm Fri.-Sat. Crown Valley Golf Club, 29 Crown Road, Weatherford. 817.441.2300, 11am-9pm Tues.-Sun. $ Mi Cocina 509 Main St., 817.877.3600, 10:30am9pm Sun.; 10:30am-10pm Mon.-Thurs.; 10:30am-11pm Fri.-Sat. Other locations: 4601 W. Freeway (I-30 and Hulen), 817.569.1444, 11am-10pm Mon.-Sun. 9369 Rain Lily Trail. 817.750.6426, 11am-10pm Tues.-Thurs.; 11am11pm Fri.-Sat. $
The Original 4713 Camp Bowie Blvd., 817.738.6226, 11am-9pm Tues.-Thurs.; 11am10pm Fri.-Sat.; 11am-9pm Sun. $ Pappasito’s Cantina 2704 W. Freeway, 817.877.5546. Other location: 321 W. Road to Six Flags, Arlington, 817.795.3535, 11am-10pm Mon.-Thurs.; 11am-11pm Fri.-Sat.; 10:30am10pm Sun. $$
Pulidos 2900 Pulido St., 817.731.4241. Other location: 5051 Hwy. 377 S., 817.732.7871. 11am9:30pm Mon.-Thu.; 11am-10pm Fri.-Sat. $ Rio Mambo 6125 SW Loop 820, 817.423.3124, 11am-9:30pm Mon.-Thurs.; 11am-11pm Fri.; 10am-11pm Sat.; 10am-9:30pm Sun. 1302 S. Main St., Weatherford. 817.598.5944, 11am9:30pm Mon.-Thurs.; 11am-11pm Fri.; 10am11pm Sat.; 10am-9:30pm Sun. $$ Salsa Limon 4200 S. Freeway, Ste. 1099, 817.921.4435, 10am-9pm Mon.-Thu.; 10am-2am Fri.-Sat.; 10am-10pm Sun.; 2916 W. Berry St. 817.675.2519, 7am-9pm Mon.-Thurs.; 7am-2am Fri.-Sat.; 8am-8pm Sun. $ Torchy’s Tacos 928 Northton St. 817.289.8226. 7am-10pm Mon.-Thu.; 7am-11pm Fri.; 8am11pm Sat.; 8am-10pm Sun. $ Uncle Julio’s 5301 Camp Bowie Blvd., 817.377.2777. 11am-10:30pm Mon.-Thu.; 11am-11:30pm Fri.; 10am-11:30pm Sat.; 10am-10:30pm Sun. $$ Velvet Taco 2700 W 7th St., 817.887.9810, 10ammidnight Mon.-Wed.; 10am-3am Thurs.; 10am-4am Fri.; 9am-4am Sat.; 9am-midnight Sun. $
Wild Salsa 300 Throckmorton St., Ste. 180, 682.316.3230. Mon-Thurs. 11 a.m.-10 p.m.; Fri.Sat. 11 a.m.-11 p.m.; Sunday Closed; Happy Hour Mon.-Sat. 3 p.m.-7 p.m.; Fri.-Sat. 9 p.m.-Close; Brunch Sat. 11 a.m. -3 p.m. $$-$$$$
KELLER
Baja Grill 721 Keller Pkwy., Ste. 116, 817.741.1155.
4pm-9pm Mon.-Thu.; 4pm-10pm Fri.; 11am10pm Sat.; 11am-9pm Sun. $$
Chuco’s Taco Bodega 797 Keller Pkwy., 817.903.0757. 7am-7pm Mon.-Sat.; 9am-2pm Sun. $
Funky Baja’s Cantina 721 Keller Pkwy., Ste. 100, 817.745.1099. 11am-10pm Mon.-Sun. $
Jalapeno’s Taqueria 149 S. Main St., 817.753.6409. 6:30am-7:30pm Mon.-Sat.; 7am-2pm Sun. $
Kassandra’s Mexican Kitchen 813 Keller Pkwy., 817.337.1577. 7am-9pm Mon.-Sat.; Closed Sun. $
Lupe’s Tex-Mex Grill 2122 Rufe Snow Dr., Ste. 108, 817.428.7700. 11am-9:30pm Sun.-Thu.; 11am10:30pm Fri.-Sat. $$
Maria Cuca’s Mexican Cuisine 800 S. Main St., Ste. 206, 817.741.0213. 11am-9pm, daily. $$ Mexican Inn 680 S. Main St., 817.741.6891. 11am9pm Sun.-Thu.; 11am-10pm Fri.-Sat. $$
Puerta Vieja Mexican Grill 101 Town Center Ln., Ste. 117, 817.562-5301. Closed Mon.; 11am-9pm Tue.-Thu.; 11am-10pm Fri.-Sat.; 11am-9pm Sun. $$
Tacusa 761 Keller Pkwy., Ste. 107, 817.741.3554. 10am-8pm Mon.-Fri.; 9am-8pm Sat.; Closed Sun. $
Tres Casas Mexican Grill 208 N. Main St., 817.753.7003. 11am-9pm Mon.-Thu.; 8am-9pm Fri.-Sat.; 8am-3pm Sun. $
Mi Chula’s 1431 Southlake Blvd., Ste. 551, 817.756.6920. 11am-9pm Sun-Thu.; 11am10pm Fri.-Sat. $$
Fish City Grill 3900 Arlington Highlands Blvd., 817.465.0001. 11am-10pm Mon.- Thu.; 11am–11pm Fri.-Sat.; 11am- 9pm Sun. $-$$
Pappadeaux 1304 E. Copeland Rd., 817.543.0544. 11am-10pm Sun.-Thu.; 11am-11pm Fri.-Sat. $$
Razzoo’s 4001. S. Cooper St., 817.467.6510. 11am11pm Sun.-Thu.; 11am-midnight Fri.-Sat. $$ Rockfish 3785 S. Cooper St., Arlington, 817.419.9988. 11am-10pm Sun.-Thu.; 11am11pm Fri.-Sat. $$
Blu Crab 6115 Camp Bowie Blvd., 817.763.8585. Mon.-Sat. 11am-10pm; Sun. 11am-9pm. $$$$
Daddy Jack’s 353 Throckmorton St., 817.332.2477. 11am-2pm Mon.-Sat.; 5pm-10pm Sun.-Thu.; 5pm-11pm Fri.-Sat. $$
Eddie V’s 3100 W. 7th St. 817.336.8000, 4pm-10pm Sun.; 4pm-11pm Mon.-Thu.; 4pm-midnight Fri.-Sat. $$$$
J&J Oyster Bar 612 N. University Dr., 817.335.2756. 11am-midnight Sun.-Thu.; 11am-2am Fri.-Sat. $
Lone Star Oyster Bar 4750 Bryant Irvin Rd., 817.370.0030. 11am-2am Tue.-Sat.; 11am-midnight Sun.-Mon. $
Pacific Table 1600 S. University Drive, 817.887.9995. 11am-10pm Mon.-Fri.; 11am10pm Sat.; 9am-9pm Sun. $$ Pappadeaux 2708 W. Freeway, 817.877.8843. Other location: 600 W. Hwy 114, Grapevine, 817.488.6220. 11am-10pm Sun.-Thu.; 11am-
11pm Fri.-Sat. $$
Razzoo’s 318 Main St. in Sundance Square, 817.429.7009. Other locations: 4700 Bryant Irvin Rd. in Cityview, 817.292.8584. 2950 Texas Sage Trail, 817.750.0011. 11am-11pm Sun.-Thu.; 11am-2am Fri.-Sat. $$
Zeke’s Fish & Chips 5920 Curzon Ave., 817.731.3321. 11am-9pm Mon.-Thu.; 11am10pm Fri.-Sat.; noon-9pm Sun. $
Fish City Grill 2750 E. Southlake Blvd., Ste. 130, 817.748.0456. 11am-9pm Sun.-Thu.; 11am10pm Fri.-Sat. $-$$
Rockfish 228 State St., 817.442.0131. 11am-10pm Mon.-Thu.; 11am-11pm Fri.-Sat.; 11am-9pm Sun. $$
Truluck’s Seafood, Steak & Crab House 1420 Plaza Pl., 817.912.0500. 5pm-10pm Sun.-Thu.; 5pm-11pm Fri.-Sat. $$$
Fish Creek 4899 E. I-20., 817.441.1746. 11am-9pm Sun.-Thu.; 11am-10pm Fri.; noon-10pm Sat. $$
Blue Mesa Bar & Grill 612 Carroll St., 817.332.6372. Other Location: 550 Lincoln Square, Arlington, 682.323.3050. 11am-10pm Mon.-Thu.; 11am11pm Fri.-Sat.; 9am-10pm Sun. $$
Bonnell’s Fine Texas Cuisine 4259 Bryant Irvin Rd., 817.738.5489. Lunch: 11am-2:30pm Tues.Fri.; Dinner: 5:30pm-9pm Tues.-Sat. Closed Sun.-Mon. $$$
Buffalo West 7101 Camp Bowie W., 817.732.2370, 11am-10pm Mon.-Sat.; 10:30am-8:30pm Sun. $-$$$
Lonesome Dove Western Bistro 2406 N. Main St., 817.740.8810. 11:30am-2:30pm Tue.-Sat.; 5pm10pm Mon.-Thu.; 5pm-11pm Fri.-Sat. $$$
Michaels Restaurant & Ancho Chile Bar 3413 W. 7th St., 817.877.3413, 11am-11pm Dining and Bar, Mon.Wed.; 11am-midnight Dining and Bar, Thurs.-Sat.; 11am-11pm Kitchen, Mon.Fri.; 11am-midnight Kitchen, Thurs.-Sat.; 11am-4pm Brunch, Sun. $
Reata 310 Houston St., 817.336.1009. 11am2:30pm, 5pm-10:30pm daily. $$
The Tavern 2755 S. Hulen St. 817.923.6200. 11am-10pm Mon.-Fri.; 9am-10pm Sat.; 9am-9pm Sun. $$
The Keg Steakhouse & Bar 4001 Arlington Heights Blvd., Ste. 101, 817.465.3700, 4pm11pm Mon.-Sat.; 4pm-10pm Sun. $$$
Fly by Night Cattle Co. 2705 CR 1125, 817.645.7000. 5pm-10pm Thurs.-Sat. $$-$$$$
B&B Butchers & Restaurant 5212 Marathon Ave. 817.737.5212. Butcher Shop Mon.-Sat. 8 a.m.-7 p.m., Sun. 8 a.m.-6 p.m.; Steakhouse Sun.Tues. 11 a.m.-10 p.m., Wed. 11 a.m.-11 p.m., Thurs.-Sat. 11 a.m.-midnight. $$-$$$$
Bob’s Steak and Chop House 1300 Houston St., 817.350.4100. 5-10pm Mon.-Thu.; 5-11pm Fri.
and Sat.; Closed Sun. $$$$
The Capital Grille 800 Main St., 817.348.9200. Lunch: 11am-4pm Mon.-Fri.; Dinner: 4pm10pm Mon.-Thu.; 4pm-11pm Fri.; 5pm-11pm Sat.; 4pm-9pm Sun. $$$$
Cattlemen’s Steak House 2458 N. Main St., 817.624.3945. 11am-10:30pm Mon.-Thu.; 11am11pm Fri.-Sat.; noon-9pm Sun. $$$
Del Frisco’s Double Eagle Steakhouse 812 Main St., 817.877.3999. 5pm-10pm Mon.-Thu.; 5pm11pm Fri.-Sat.; 5pm-9pm Sun. $$$$
Grace Restaurant 777 Main St., 817.877.3388. 5:30pm-9:30pm daily. $$$$
H3 Ranch 105 E. Exchange Ave., 817.624.1246, 11am-10pm Mon.-Thurs.; 11am-11pm Fri.; 9am-11pm Sat.; 9am-10pm Sun. $$$
Hoffbrau 1712 S. University Dr., 817.870.1952. 11am-10pm Sun.-Thu.; 11am-11pm Fri.-Sat. $$
M&M Steakhouse 1106 N.W. 28th St., 817.624.0612. Cash only. 5pm-11pm Tue.-Sat. $$
Riscky’s Steakhouse 140 E. Exchange Ave., 817.626.7777. 11am-9pm Sun.-Mon.; 11am10pm Tue.-Thu.; 11am-11pm Fri.-Sat. $$-$$$
Ruth’s Chris 813 Main St., 817.348.0080. 5pm-10 pm Mon.-Thu.; 5pm-11pm Fri.-Sat.; 4pm-9pm Sun. $$$
Silver Fox Steakhouse 1651 S. University Dr., 817.332.9060. Other location: 1235 William D. Tate, Grapevine, 817.329.6995. 4pm-10pm Mon.-Sat. $$$ GRAPEVINE / SOUTHLAKE / COLLEYVILLE / KELLER
J.R.’s Steak and Grill 5400 State Hwy. 121, 817.355.1414. 11am-10pm Mon.-Sat.; Closed Sun. $$$
Kirby’s Steakhouse 3305 E. State Hwy. 114, Southlake, 817.410.2221. 5pm-10pm Mon.Thu.; 5pm-11pm Fri.-Sat.; 5pm-9pm Sun. $$$
Old Hickory Steakhouse Restaurant Gaylord Texan Hotel & Convention Center, 1501 Gaylord Trail, 817.778.2215 (after 5pm, 817.778.2280). Nightly, 5:30pm-10pm. $$$$
Texas Bleu Steakhouse 124 S.Main St., Keller, 817.431.5188. 5pm-9pm Tue.-Thu.; 5pm-10pm Fri.-Sat.; Closed Sun.-Mon. $$$



» The architecture of the Tarrant County College Trinity River East Campus is meant to pay homage to the Trinity, with glass curtain wall systems, plazas and courtyards that meander like a river between buildings, and water that starts its flow at street level and ends in a waterfall at the lower plaza. The campus is the work of Fort Worth-based Bennett Benner Partners and Canadian architect Bing Thom Architects (now known as Revery Architecture). It sure is pretty — but please, don’t skateboard here.
PHOTO BY BRIAN LUENSER
CONTACT US For questions or comments, contact Samantha Calimabahin at scalimbahin@fwtexas.com. For subscription questions, please call 800.856.2032. To subscribe visit fwtx.com/subscribe









































We know what it’s like to have high standards. That’s why each approved certified pre-owned Land Rover must pass the same comprehensive 165-point inspection and safety check it did before the vehicle originally drove off the lot. That, along with the reassurance of a 7-year/100,000-mile limited warranty † and 24/7 roadside assistance, will ensure you’ll feel confident taking it out on any adventure.
Park Place Jaguar DFW
1300 East State Highway 114, Grapevine, TX 75261
972 407 7000
ParkPlace.com