Vestre Stationsvej 8-10, 5000 Odense

Page 1

Salgsprospekt

Bruger/projektejendom midt i

Odense C

• Samlet etageareal: 4.403 m²

• Senest anvendt til undervisning

• Tom og frigjort for lejere

• Mange anvendelsesmuligheder

• Kontordomicil/bolig/hotel

• 34 p-pladser på matriklen

• Pris: 39.500.000 kr.

Vestre Stationsvej 8-10

5000 Odense C

Colliers | 2 3 Introduktion og transaktionsstruktur 5 Markedet 7 Beliggenhed 10 Ejendommen 15 Plantegninger 17 Alternativ anvendelse 18 Økonomi 19 Pris 21 Fotos 25 Om Colliers 27 Kontakt Indhold Salgsprospekt | Vestre Stationsvej 8-10, 5000 Odense C | Sagsnr. C-011165 | MFU/LRK | Rev.nr. C2325

Introduktion og transaktionsstruktur

Introduktion

Vestre Stationsvej 8-10, 5000 Odense C (“ejendommen”) har et bruttoudlejningsareal på 4.403 m² inkl. Kælder og carport.

Ejendommen ligger i Odense Centrum med kort afstand til Odense Banegård og bymidtens butikker og restauranter.

Colliers er engageret som sælgerrådgiver for Freja Ejendomme A/S (”sælger”) i forbindelse med det potentielle salg af ejendommen.

Dette salgsprospekt har til formål at præsentere ejendommen, så potentielle købere kan vurdere potentialet. Interesserede købere vil have mulighed for at besigtige ejendommen med en repræsentant fra Colliers.

Transaktionsstruktur

Transaktionen struktureres som en traditionel ejendomshandel, hvor køber forinden kan få adgang til et virtuelt datarum med ejendommens dokumenter. Ejendommen overtages, som den er og forefindes.

Sælger forudsætter, at køber ved tiltrædelse af en betinget købsaftale stiller behørig sikkerhed for købesummens betaling, som på det aftalte overdragelsestidspunkt erstattes af en kontant deponering i et af sælger anvist pengeinstitut. Ejendommen sælges med fuld ansvarsfraskrivelse fra sælgersiden.

Colliers | 3
Salgsprospekt | Vestre Stationsvej 8-10, 5000 Odense C | Sagsnr. C-011165 | MFU/LRK | Rev.nr. C2325
Colliers | 4
Odense

Markedet i Odense

Odense i udvikling

Odense Kommune har oplevet konstant befolkningstilvækst i mere end ti år. Mellem 2011 og 2021 er befolkningstallet vokset fra ca. 189.500 til ca. 205.500, svarende til en befolkningstilvækst på 8,5%. I 2030 forventes Odense Kommune at have oplevet en befolkningstilvækst på 4,4%, som i særdeleshed vil være drevet af en stigning i antallet af børn, unge familier og ældre.

Modsat forventes der et fald blandt de 18-29-årige, herunder de studerende, samt i den ældste del af arbejdsstyrken.

Odenses befolkning har, som de andre store universitetsbyer, en relativ lav gennemsnitsalder. Dette afspejles også i det lave antal pensionister i byen sammenlignet med på landsplan.

At byen er et videnscenter for teknologi, kommer til udtryk i det høje antal indbyggere med en bachelor eller professionsbachelor. Unikt for Odense er en droneklynge under opførelse ved HCA Airport samt den store mængde robotvirksomheder. Disse klynger forventes at styrke innovation og vækst for byen.

Derudover gør det store sundhedsvæsen sig også bemærket i beskæftigelsen i Odense, idet hele 11% er beskæftiget indenfor denne sektor sammenlignet med 6,5% nationalt.

Colliers | 5
Salgsprospekt | Vestre Stationsvej 8-10, 5000 Odense C | Sagsnr. C-011165 | MFU/LRK | Rev.nr. C2325
Kilde: Colliers

Markedet | Odense

Kontormarkedet Boligmarkedet

Note: Lejeniveau er anført i kr. pr. m² pr. år ekskl. drift

Kilde: Colliers

Den stabile efterspørgsel mærkes på tomgangsraterne for kontor i Odense, der nu er tilbage på samme niveau som før de første nedlukninger ramte Danmark. De primære beliggenheder for kontorlejemål i Odense er koncentreret omkring nyudviklede områder, heriblandt SDU og Cortex. I Odense centrum findes der et begrænset antal primære kontorejendomme. Dog vil den nuværende transformation af Odense centrum og havn give disse områder et løft og positionere dem som attraktive kontorområder. Både leje- og afkastniveauet forventes at være stabilt i det kommende år og ligger for primære kontorlejemål på de bedste beliggenheder i Odense på 1.250 – 1.350 kr. pr. m².

Note: Lejeniveaet er angiver i kr. pr. m² for nyopførte boliger. Niveauet for 2022 angiver Colliers’ forventninger.

Kilde: Colliers

Odense er en by, hvor der er en massiv udvikling af nye boligprojekter, dog uden at tomgangsniveauet indtil videre er blevet påvirket. I de igangværende projekter i byen er der et stort fokus på at udvikle den rette type lejemål, især mindre boliger, da der opleves en massiv efterspørgsel efter disse. Lejeniveauet har været stagnerende for boliger i Odense, da den store stigning i udbuddet har holdt efterspørgslen i skak. Det samme gør sig gældende for investorernes afkastkrav, og denne tendens forventes at fortsætte.

Som følge af et lejeboligmarked, hvor efterspørgslen flugter fint med udbuddet, vurderes tomgangsraten at være på et sundt niveau. Fra 2017-2022 Q3 blev der opført knap 5.000 nye etageboliger, fordelt på 418.200 kvadratmeter, svarende til en gennemsnitsstørrelse på 85 m² pr. bolig. Dette afspejler en massiv efterspørgsel efter nye etageboliger i området, og i denne forbindelse skiller Odense sig ud fra andre større byer såsom Aarhus og Aalborg. Her er antallet af tomme etageboliger gradvist steget i takt med et større udbud.

Som i de andre større uddannelsesbyer har de studerende i Odense en tendens til i højere grad at bosætte sig i andre boligtyper end studieboliger. Udviklingen har dog været mere beskeden i Odense og primært omfattet et skift fra kollegie-/studieboliger samt almene boliger til større delevenlige lejligheder.

Colliers | 6
Salgsprospekt | Vestre Stationsvej 8-10, 5000 Odense C | Sagsnr. C-011165 | MFU/LRK | Rev.nr. C2325
Colliers | 7
Salgsprospekt | Vestre Stationsvej 8-10, 5000 Odense C | Sagsnr. C-011165 | MFU/LRK | Rev.nr. C2325 Vestre Stationsvej 8-10 8
Beliggenhed

Attraktiv beliggenhed midt i Odense C

Området er præget af etageejendomme med boliger, ikoniske byhuse, kontorfælleskaber og flere butikker og restauranter. I kort afstand fra ejendommen findes Odense Banegård, som giver let adgang til resten af Danmark. Desuden findes Odense gågademiljø og hele bymidten lige rundt om hjørnet.

Letbanestop Odense
Bro Vestre Stationsvej Odense Havn ○ ○ Letbanestop ○
HF & STX
Banegård Kongens
○ ○ Gågade
Odense Banegård
gågade 700 m 100 m 150 m
Busstoppested Byens
Fyns
Odense
Have

Afstande

700 m til Odense Banegård

100 m til offentlig transport

2 km til Odense Havn

5,2 km til motorvej

120 min. til København

Colliers | 9
Salgsprospekt | Vestre Stationsvej 8-10, 5000 Odense C | Sagsnr. C-011165 | MFU/LRK | Rev.nr. C2325

Ejendommen

Stamdata

Adresse

Vestre Stationsvej 8-10

Grundareal

Postnummer og by

5000 Odense C

Opført/ombygget år

Kommune

Odense Kommune

Bebygget areal iht. BBR

Matrikelnummer

1086 Odense Bygrunde

Samlet etageareal iht. BBR

Offentlig vurdering 2022

34.000.000 kr.

Heraf erhverv

Heraf grundværdi

3.934.700 kr.

Heraf kælder og carport

Colliers | 11 3.196
1.153
54
2.555 m² 4.403
1.294
m² og
m² 1960-1983/1992
Salgsprospekt | Vestre Stationsvej 8-10, 5000 Odense C | Sagsnr. C-011165 | MFU/LRK | Rev.nr. C2325

Øvrige forhold

Plangrundlag

Ifølge kommuneplanramme nr. 1.BE.17 er området, hvor ejendommen ligger, udlagt til følgende anvendelse (nedenstående er et uddrag):

Generel anvendelse er blandet bolig og erhverv. Specifik anvendelse er angivet til boligområde, kontor- og serviceerhverv, butikker. Området skal anvendes til bolig- og serviceformål. Dagligvarebutikker må max være 500 m², og udvalgsvarebutikker må max være 500 m².

Maksimale andel af grundarealet der må bebygges er 50%.

Maksimale antal etager er 4,5 Ved større sammenhængende byggeri kan bygningshøjden øges med 1 etage over den maksimale etage højde, hvis det er nødvendigt for at tilpasse til eksisterende bebyggelse. Bestemmelsen om "max antal etager" skal dog overholdes for bebyggelsen under ét. Herudover er lokalplan nr. 0-760 omhandlende Odense Letbane gældende for ejendommen.

Energimærke

Ejendommen er omfattet af reglerne om energimærkning og er energimærket med karakteren C.

Tankanlæg

Ingen eksisterende tankanlæg ifølge BBR-meddelelsen.

Miljø

Ifølge oplysninger hentet elektronisk den 6. januar 2023 fra Danmarks Miljøportal er nærværende matrikel kortlagt på vidensniveau 1 og 2. Yderligere oplysninger kan fås ved henvendelse til Colliers.

Colliers | 12
Salgsprospekt | Vestre Stationsvej 8-10, 5000 Odense C | Sagsnr. C-011165 | MFU/LRK | Rev.nr. C2325

Oversigtskort – matr.nr. 1086 Odense Bygrunde

Colliers | 13
Salgsprospekt | Vestre Stationsvej 8-10, 5000 Odense C | Sagsnr. C-011165 | MFU/LRK | Rev.nr. C2325

Ejendommen

Historie

Ejendommen er opført i flere tempi fra 1960 med tilhørende tilbygning fra 1992 og har senest været anvendt til undervisningsformål for Social- og Sundhedsskolen.

Beskrivelse

Markant kontor- og undervisningsejendom beliggende i Odense centrum med let adgang til offentlig transport, og med letbanestop lige ved siden af ejendommen samt 700 m til Odense Banegård.

Ejendommen er i gennemgående god og velvedligeholdt stand med løbende foretagne istandsættelser. Qua tidligere anvendelse imødekommer ejendommen diverse myndighedsmæssige krav hvad angår ventilation og adgangsforhold mv. Endvidere særdeles fleksibelt indrettet med gangarealer samt møde- og undervisningslokaler af varierende størrelser på 1. og 2. sal som let kan ændres i forhold til ny brugers/ejers ønsker.

Stueplan er indrettet med præsentabelt ankomstområde samt videre adgang til receptionsafsnit og administration, mens kantine og produktionskøkken ligeledes er placeret i forlængelse af indgangspartiet.

Kælderen er meget anvendelig og udgravet på indvendig side mod p-areal, således der er undervisningslokaler med ensidet belysning. Derudover også fitnessrum og gymnastiksal til ejendommens brugere.

Ejendommen er udstyret med elevator som går fra kælder til kvist. Udenomsarealerne er udlagt til parkering med 34 p-pladser samt cykelskur, mens grundet er hegnet med portadgang fra Dronningensgade.

Der ses at være gode muligheder for alternativ anvendelse til hotel eller boliger.

Colliers | 14
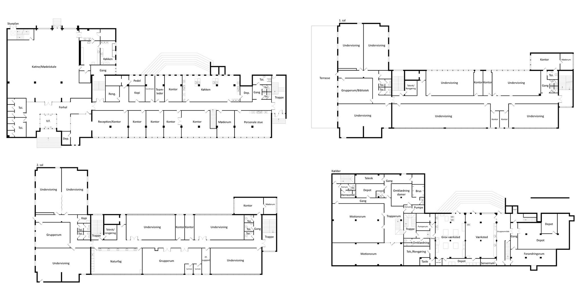
Salgsprospekt | Vestre Stationsvej 8-10, 5000 Odense C | Sagsnr. C-011165 | MFU/LRK | Rev.nr. C2325 Bygning 1 Areal Erhverv / Undervisning 3.196 m² Kælder 1.153 m² Etageareal i alt 4.349 m² Bygning 2 Areal Carport (halvtag med cykelstativer) 54 m² Arealer iht. BBR

Plantegning – eksisterende forhold

Colliers | 15
Salgsprospekt | Vestre Stationsvej 8-10, 5000 Odense C | Sagsnr. C-011165 | MFU/LRK | Rev.nr. C2325

Servitutter og hæftelser

1 12.05.1873

om bebyggelse, benyttelse mv

om hegn, hegnsmur mv, fortov 3 13.04.1885

2 12.02.1877

om hegn, hegnsmur mv, forsynings/afløbsledninger mv 4 05.02.1894

grænseregulering mv

5 19.12.1922

om Fælles brandmur/gavl mv, forbehold af dizpositionsret og evt. fjernelse mv

6 07.03.1935 Dokument om carport/garage mv

7 08.08.1938

om altaner mv 8 20.12.1944

om tilbagerykning af façade og fjernelse af kældertrappe mv

NB: Ejendommen sælges uden hæftelser.

24.04.1947

om forsynings-/afløbsledninger mv

26.06.1948 Dokument om forsynings-/afløbsledninger mv, Ikke til hinder for prioritering 11 17.12.1949 Dokument om forsynings-/afløbsledninger mv, fortov

om fjernvarme/anlæg mv

Colliers | 16
Servitutter
Tinglyste hæftelser
Salgsprospekt | Vestre Stationsvej 8-10, 5000 Odense C | Sagsnr. C-011165 | MFU/LRK | Rev.nr. C2325 Nr. Kreditor Hovedstol (kr.) Rente 13 Afgiftspantebrev 5.000.000 14 Afgiftspantebrev 10.500.000 15 Afgiftspantebrev 2.082.932 16 Afgiftspantebrev 4.147.000 17 Afgiftspantebrev 1.937.000 18 Afgiftspantebrev 14.914.000 Nr. Dato Beskrivelse
Dokument
Dokument
Dokument
Dokumentom
Dokument
Dokument
Dokument
Dokument
9
Dokument
10
12 25.03.1955

Projekt – alternativ anvendelse

Kombineret erhverv/bolig

Sælger har tidligere udfærdiget et konkret projektforslag til konvertering til erhverv/bolig som potentielt kan danne grundlag for investors videre drøftelser omkring udvikling af ejendommen med Odense kommune. Derudover ligger der også et andet projekt på ejendommen til ungdomsboliger som indledningsvist er drøftet med Odense Kommune. Sælger indestår ikke for projektets endelige godkendelse. Kontakt endelig Colliers for nærmere information herom.

Hotel / Service Apartments

Der ses ligeledes at være gode muligheder for projektudvikling til hotel eller Service Apartments. Ejendommens eksisterende rammer og bygningskrop stemmer meget godt overens i forhold til at kunne udnytte faciliteterne funktionelt til netop denne anvendelse. Derudover er der i Odense også et pænt potentiale til hoteldrift, da branchen gennem de senere år har oplevet en markant stigning i belægningsgraden i takt med den stigende turisme. Odense er vokset som by med et stort kulturelt udbud samt en byudvikling som har skabt øget fokus på byen som destination for både nationale såvel som internationale turister.

Colliers | 17
Salgsprospekt | Vestre Stationsvej 8-10, 5000 Odense C | Sagsnr. C-011165 | MFU/LRK | Rev.nr. C2325
Økonomi

Prisfastsættelse

Salgspris

39.500.000 kr.

Omkostninger ved tinglysning af adkomst betales af køber.

Ejendommen sælges med sædvanlig ansvarsfraskrivelse, Alt overtages som det er og forefindes.

I øvrigt afholder parterne selv udgifter til egen advokat og øvrige rådgivere.

Colliers | 19
Salgsprospekt | Vestre Stationsvej 8-10, 5000 Odense C | Sagsnr. C-011165 | MFU/LRK | Rev.nr. C2325

Driftsbudget

• Forsikring er anslået til 15 kr. pr. m²

• Udvendig vedligeholdelse er anslået til 40 kr. pr. m²

Driftsomkostninger er estimeret til de aktuelle forventede udgifter ekskl. forbrug og renovation.

Køber anmodes om selv at udarbejde driftsbudget i henhold til dennes fremtidige udnyttelse og anvendelse af ejendommen.

Ejendommen er ikke frivilligt momsregistreret. Der overtages således ingen momsreguleringsforpligtelse.

Colliers | 20
Salgsprospekt | Vestre Stationsvej 8-10, 5000 Odense C | Sagsnr. C-011165 | MFU/LRK | Rev.nr. C2325
Omkostninger, anslået Brutto, kr. Grundskyld 2023 85.422 Øvrige afgifter 2023 2.516 Forsikring, anslået 66.045 Vicevært/renholdelse, anslået 50.000 Udvendig vedligeholdelse, anslået 127.840 I alt , anslået 331.823 I alt pr. m² (3.196 m²) 103

Attraktiv beliggenhed

Kantine med produktionskøkken

Hvem er Colliers?

Vi sætter pris på ejendomme.

Colliers (NASDAQ, TSX: CIGI) er en førende global rådgiver indenfor erhvervs- og investeringsejendomme. Vi har kontorer i 65 lande og mere end 18.000 dedikerede medarbejdere, der samarbejder om at yde ekspertbistand til kunder i ejendomssektoren. I mere end 28 år har vores erfarne lederteam, hvoraf en stor del er medejere, leveret et akkumuleret investeringsafkast på ca. 20% årligt til Colliers’ aktionærer.

Da vi har en årlig omsætning på 4,5 mia. dollar globalt og administrerer ejendomme til en værdi af 98 mia. dollar, er vi i stand til at finde de bedste løsninger for hver enkelt ejendom samt skabe værdi for vores kunder, vores investorer og vores medarbejdere.

I Danmark er Colliers den absolut største og mest erfarne mægler og rådgiver indenfor erhvervs- og investeringsejendomme. Vi er landsdækkende med godt 160 medarbejdere fordelt på kontorer i København, Aarhus, Aalborg, Odense og Vejle.

Læs mere på corporate.colliers.com, Twitter @Colliers eller LinkedIn.

Colliers | 25
Colliers | 26 +150 Eksperter Om Colliers ~35% Markedsandel 5 Kontorer +18.000 Eksperter 4,6 mia. dollar Global omsætning 63 Lande Colliers på verdensplan Colliers i Danmark Antallet af lande er inklusive tilknyttede selskaber. Salgsprospekt | Vestre Stationsvej 8-10, 5000 Odense C | Sagsnr. C-011165 | MFU/LRK | Rev.nr. C2325
Colliers | 27 Kontakt Salgsprospekt | Vestre Stationsvej 8-10, 5000 Odense C | Sagsnr. C-011165 | MFU/LRK | Rev.nr. C2325 Martin Fuhlendorff Senior Commercial Real Estate Advisor 20 45 35 13 martin.fuhlendorff@colliers.com Louise Kromann Project Coordinator 23 49 10 98 louise.kromann@colliers.com

Odense

Tagtækkervej 8

5230 Odense M

København

Toldbodgade 33

1253 København K

Aarhus

Søren Frichs Vej 38A

8230 Åbyhøj

Aalborg

Østre Havnegade 20

9000 Aalborg

Vejle

Dandyvej 3B

7100 Vejle

colliers.com

70 23 00 20

VIGTIGE FORHOLD/DISCLAIMER | Dette dokument er udarbejdet af Colliers

International Danmark A/S. Colliers er ansvarlig for dokumentets indhold i henhold til dansk ret. Colliers er dog ikke ansvarlig for fejl, udeladelser, tilbageholdte informationer eller upræcise oplysninger/vurderinger i dokumentet, som kan henføres til eksterne (herunder offentlige) kilder eller til informationer/oplysninger modtaget fra opdragsgiver eller tredjemand. Colliers’ ansvar er i alle tilfælde begrænset til det honorar, som Colliers har oppebåret for udarbejdelsen af dokumentet. Dokumentet er udarbejdet til brug for opdragsgiver under de forudsætninger og med det formål, som fremgår af aftalen med opdragsgiver, og må ikke videregives til andre uden Colliers’ forudgående skriftlige samtykke.

Turn static files into dynamic content formats.

Create a flipbook
Issuu converts static files into: digital portfolios, online yearbooks, online catalogs, digital photo albums and more. Sign up and create your flipbook.