J.B. Winsløws Vej 25, 5000 Odense C

Page 1


Domicilejendom til laboratorie, kontor-/undervisning- eller forskningsformål

▪ Domicilejendom med mange anvendelsesmuligheder

▪ Særdeles velbeliggende med gode tilkørselsforhold

▪ Elevatorbetjent ejendom

▪ Gode parkeringsforhold på ejendommen

Domicilejendom med mange anvendelsesmuligheder

På yderst attraktiv placering i Odense C, udbydes her erhvervslejemål med flere anvendelsesmuligheder indenfor bl.a. kontor-, klinik, undervisnings- og forskningsformål.

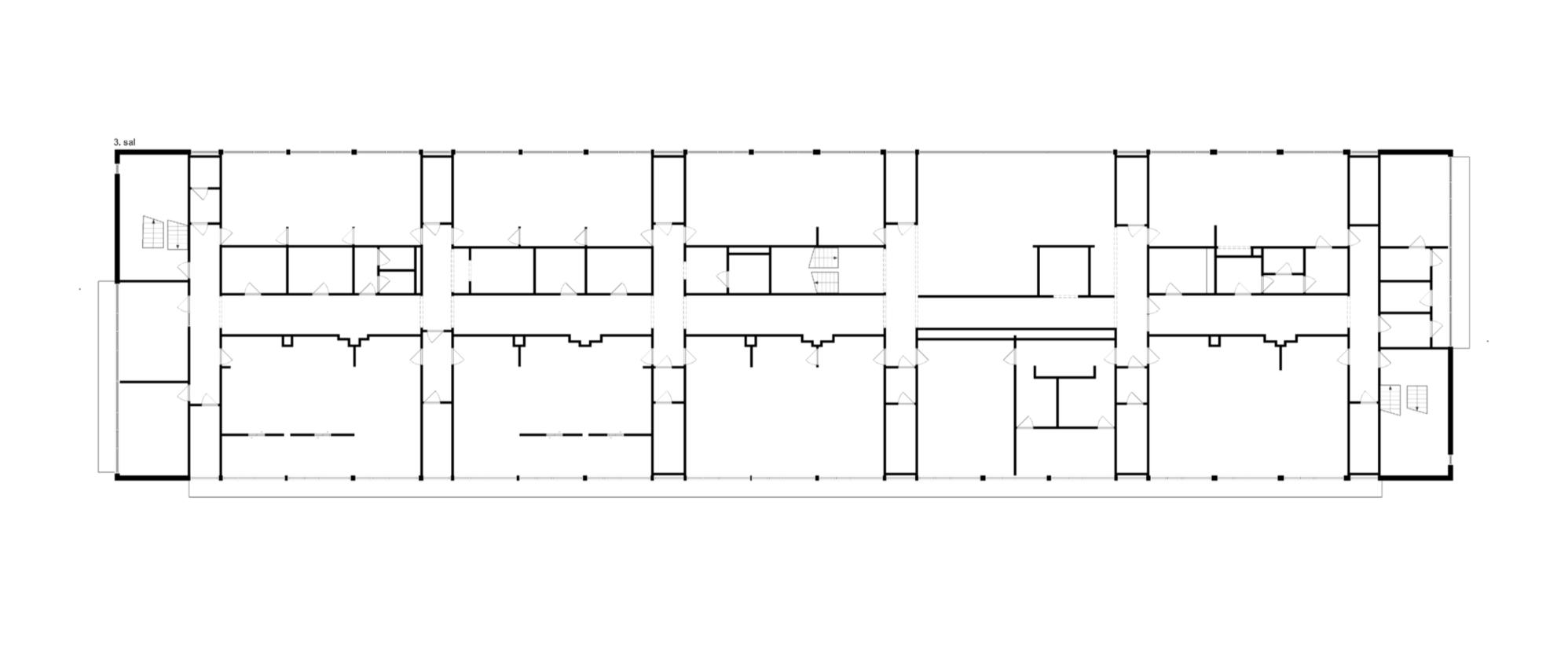
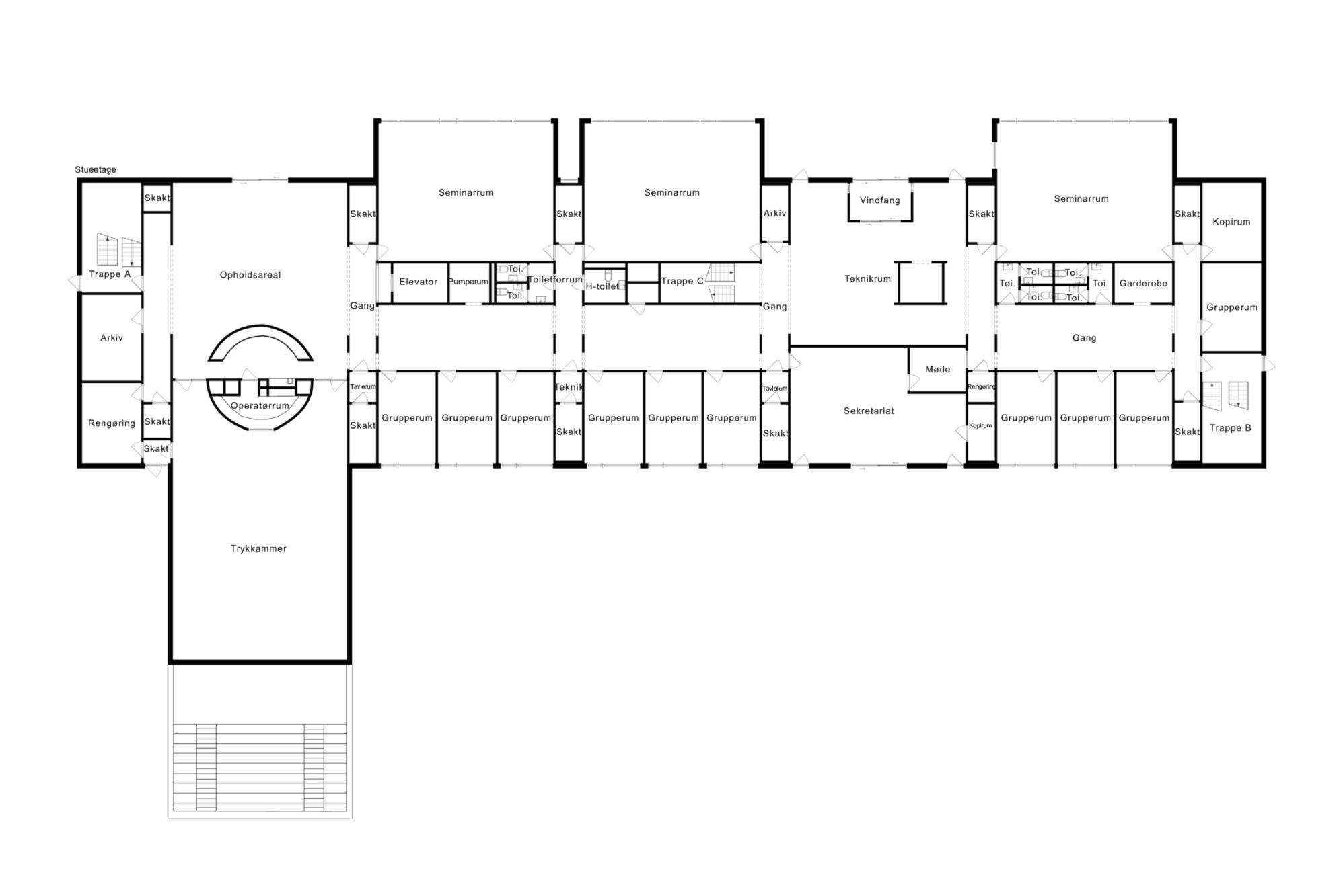
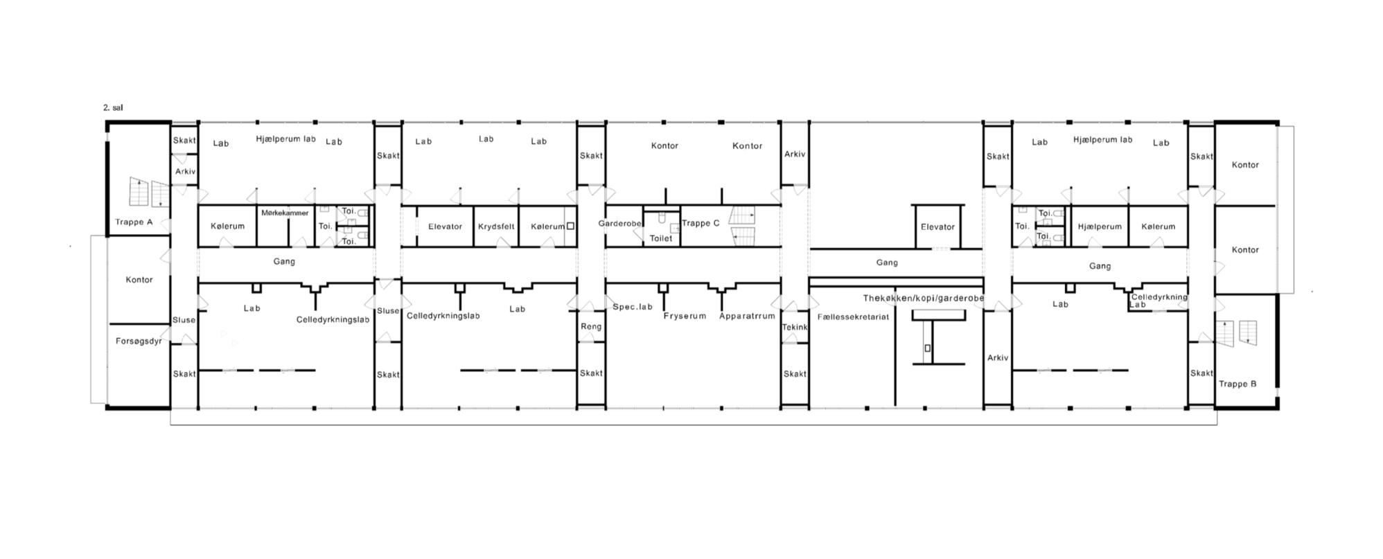
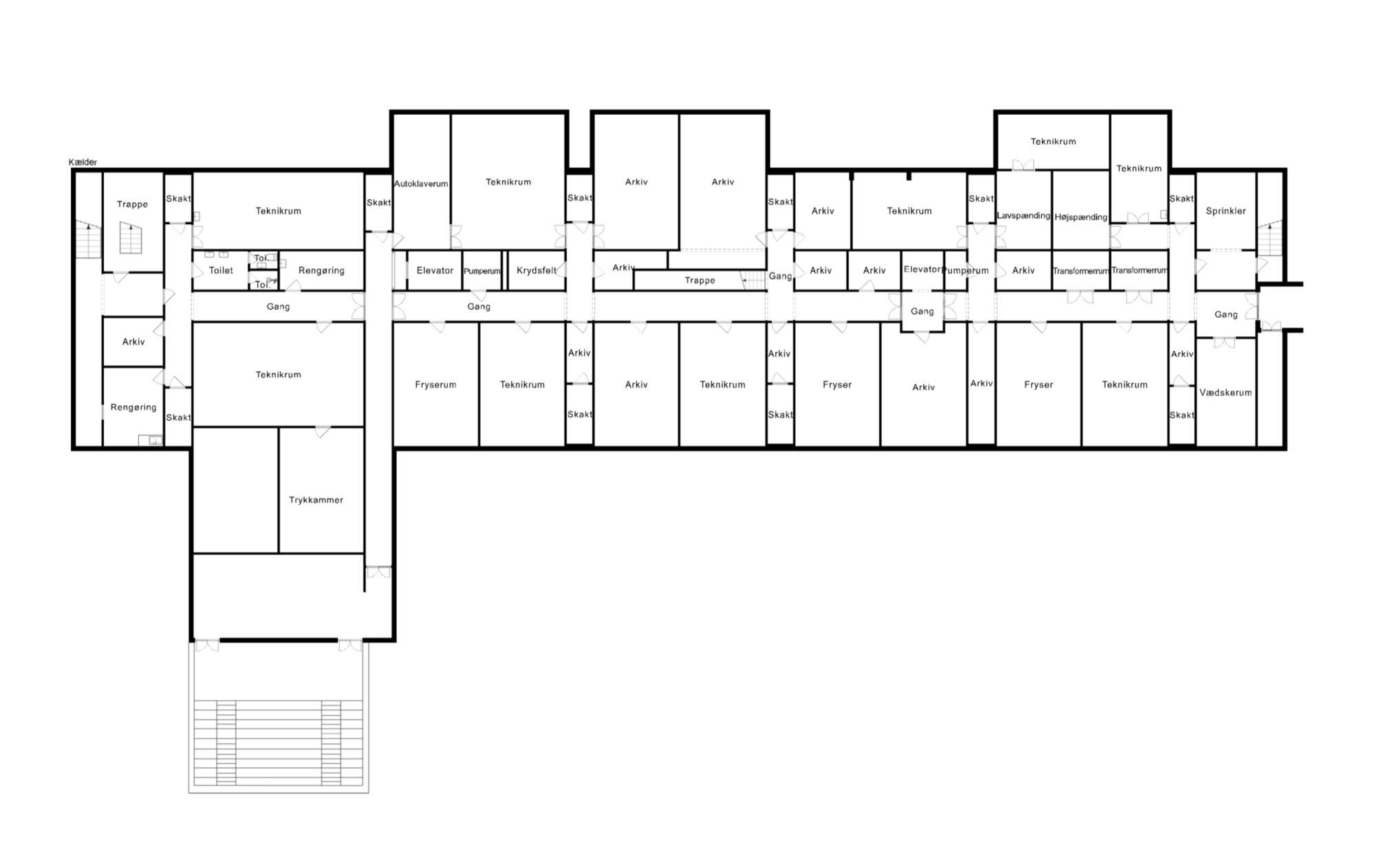
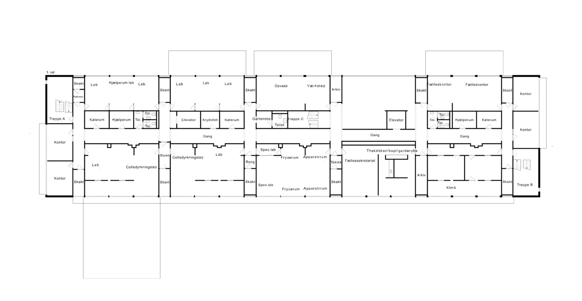
Ejendommen er opført i 2004 og indeholder stueplan, 1., 2. og 3. sal samt kælderplan. Det samlede etageareal i ejendommen udgør 6.695 m², som fordeler sig med 5.204 m² fra stueetagen til 3. sal samt 1.491 m² kælder.

Bygningen i stueetagen og indrettet med et præsentabelt indgangs- og ankomstområde med åbent atrium indeholdende elevator og trappe til de øvrige etager i ejendommen. Stueetagen fremstår særdeles velholdt og indeholder toiletter, kontor/møde- og undervisningslokaler samt auditorium til ca. 100 personer.

Hele ejendommen har tidligere været udlejet til Syddansk Universitet til brug for undervisnings- og forskningsformål, og fremstår dermed på de øvrige etager indrettet med en række laboratorier i varierende størrelser, som vil være særdeles

velegnet til lignende anvendelse, men som også vil kunne omdannes til alm. kontor, klinik eller undervisningsbrug.

Ejendommen er yderst velbeliggende tæt på hjørnet af Falen og J.B. Winsløws Vej. dvs. tæt på centrum i Odense og med kort afstand til Fynske Motorvej, som dermed sikrer en kommende lejer gode tilkørselsforhold og adgang til offentlig transport.

På ejendommen forefindes mange parkeringspladser som kan lejes efter behov.

For yderligere information om mulighederne på ejendommen, kontakt Nordicals Fyn.

Ejendommen udlejes for Freja Ejendomme, statens ejendomsselskab.

Laboratorier

Selve laboratorierne er generisk indrettet i forhold til inventar, fremføring af laboratorieinstallationer mv. I lejemålene forefindes vaskeborde, punktsug, skabe mv.

Laboratorierne i bygningen er henholdsvis uklassificerede og klasse 1 laboratorier, såfremt de har været anvendt til formål, hvor GMO har været brugt. De klassificerede områder er forsynet med trykstyring på ventilationen for henholdsvis over- eller undertryk.

På alle etager forefindes kølerum.

Generelt forefindes følgende installationer i alle laboratorier:

- Brugsvand (varmt/koldt)

- Osmosevand

- Trykluft

- Vakuum

- Punktsug

- Sprinkling

Skulle der være behov for yderligere supplerende installationer vurderes det, at der er plads i bygningens installationsskakte.

Lejevilkår

Etageareal 6.695 m²

Kontor/klinik m.v.

Kælder 5.204 m² | kr. 950 pr. m² 1.491 m² | kr. 350 pr. m²

Årlig leje ex. drift kr. 5.465.650

Depositum kr. 2.732.825 | 6 mdr. leje

Driftsudgifter

Skatter og afgifter kr. 1.097.980 kr. 241.020

El | Renovation

A conto varme

Betales direkte til forsyningsselskab

A conto vand Kr. 769.925

Anvendelse

Lejeregulering

Uopsigelighed

Opsigelsesvarsel

Overtagelsestidspunkt

Overtagelsesstand

Afregnes til udlejer efter bimåler

Kontor/klinik/undervisning/forskning m.v.

NPI, dog minimum 3%

Lejer | Udlejer efter nærmere aftale

Lejer 6 måneder | Udlejer 12 måneder

Efter nærmere aftale

Efter nærmere aftale

Parkering Ja – kr. 500 + moms pr. plads pr. måned

Fremlejeret Ja

Afståelsesret Nej

Vedligeholdelse

Indvendig: lejer | Udvendig: udlejer

Energimærke C

Moms 25%

Alle ydelser tillægges moms

Supplerende oplysninger

Installationer m.m.:

Varme Fjernvarme

Vand Alment vandforsyningsanlæg

Plan-/Offentlige forhold:

Zonestatus Byzone

Vejforhold Offentlig

Området hvor ejendommen er beliggende gælder lokalplan nr. 2-1103, idet denne bestemmer følgende:

Området må kun anvendes til kontor- og serviceerhvervsformål og til offentlige formål, herunder men ikke begrænset til – publikumsrettede og offentlige sundhedserhverv, klinikker og uddannelses- og kursusvirksomhed samt medicinsk fakultet, med tilhørende opholds-, færdsels- og parkeringsarealer.

Ejendommen er beliggende på hjørnet af Sdr. Boulevard og J.B. Winsløws Vej i Odense C og har dermed en ideel placering for dem der ønsker nem adgang til centrum og offentlig transport samt til Fynske Motorvej.

Beliggende kun ca. 2 km fra starten af Odense gågade, er det nemt at komme til byens faciliteter og mange tilbud, enten om det er til fods eller med offentlig transport.

Med kort afstand til Ring 2 ved det store kryds Falen / Kløvermosevej er der nem adgang til resten af byen og de omkringliggende områder.

Fynske Motorvej (E20) er beliggende under 10 minutters kørsel fra ejendommen, hvilket gør det nemt at pendle til andre dele af Fyn og resten af Danmark.

En yderst præsentabel ejendom på en særdeles god beliggenhed.

• Odense gågade | 2,1 km

• Odense Universitetshospital | 0,7 km

• Busstoppested Sdr. Boulevard | 0,3 km

• Ring 2 | 0,5 km

• Fynske Motorvej | 4,5 km

• SDU | 6,2 km

• Cortex Park | 6,0 km

• Forskerparken | 4,8 km

Kontakt

Kontakt

Alle henvendelser vedrørende lejemålet, herunder aftale om besigtigelse, bedes rettet til Nordicals Odense.

For yderligere information kontakt venligst:

Simon Vinther Blach Erhvervsmægler

+45 2311 1988

svb@nordicals.dk

Anja Kreutzmann Sagskoordinator

+45 3025 2919

akn@nordicals.dk

Om Nordicals

Vi er markedsledende erhvervsmægler i vores markedsområde Fyn, med forretninger i både Odense, Middelfart og Svendborg og har mere end 30 års erfaring inden for salg og udlejning af erhvervsejendomme.

Nyeste statistik viser, at vi har 32% af det samlede salgsudbud samt 45% af det samlede lejeudbud i vores markedsområde (Fyn).

Som en del af Danmarks største, partnerdrevne kæde med 24 forretninger i hele landet, har vi et stærkt samarbejde på tværs af landet. Dette gør det muligt for os at have et indgående kendskab til markedet i hele Danmark.

Vi kender derfor hvert et hjørne af markedet og ved, hvor det bevæger sig hen. Det gør vi med vores lokale forankring i hele landet og med vores datadrevne analyseunivers, Nordicals ForesightTM. Vi kombinerer således lokal indsigt med et globalt udsyn, så vi holder vores kunder opdateret på de internationale markeds- og samfundstendenser, analyserer dem og perspektiverer dem til deres verden og markedsmuligheder.

Nordicals er Danmarks største, partnerdrevne erhvervsmæglerkæde med 24 forretninger og 170 eksperter over hele landet. Vi kender derfor ejendomsmarkedet og ved, hvor det bevæger sig hen – både nationalt og helt ned på lokalt byniveau.

Nordicals i tal

24

partnerdrevne forretninger på tværs af Danmark 2.500

ejendomme til salg og udlejning for kunder

170

eksperter inden for ejendomsrådgivning

360

graders markedsperspektiv med Nordicals Foresight * +1.000

transaktioner inden for salg og udlejning i 2023 14.000

Besøger hvert kvartal Nordicals Foresight

| 5700@nordicals.dk Nordicals Middelfart | Jernbanegade 57, 5500 Middelfart | 5500@nordicals.dk nordicals.dk | 6613 8060

Turn static files into dynamic content formats.

Create a flipbook
Issuu converts static files into: digital portfolios, online yearbooks, online catalogs, digital photo albums and more. Sign up and create your flipbook.
J.B. Winsløws Vej 25, 5000 Odense C by Freja ejendomme - Issuu