Særdeles velbeliggende med gode tilkørselsforhold
Elevatorbetjent ejendom
Gode parkeringsforhold på ejendommen
17
Domicilejendom med mange anvendelsesmuligheder
På yderst attraktiv placering i Odense C, udbydes her domicilejendom med flere anvendelses-muligheder indenfor bl.a. kontor-, klinik, undervisnings- og forskningsformål.
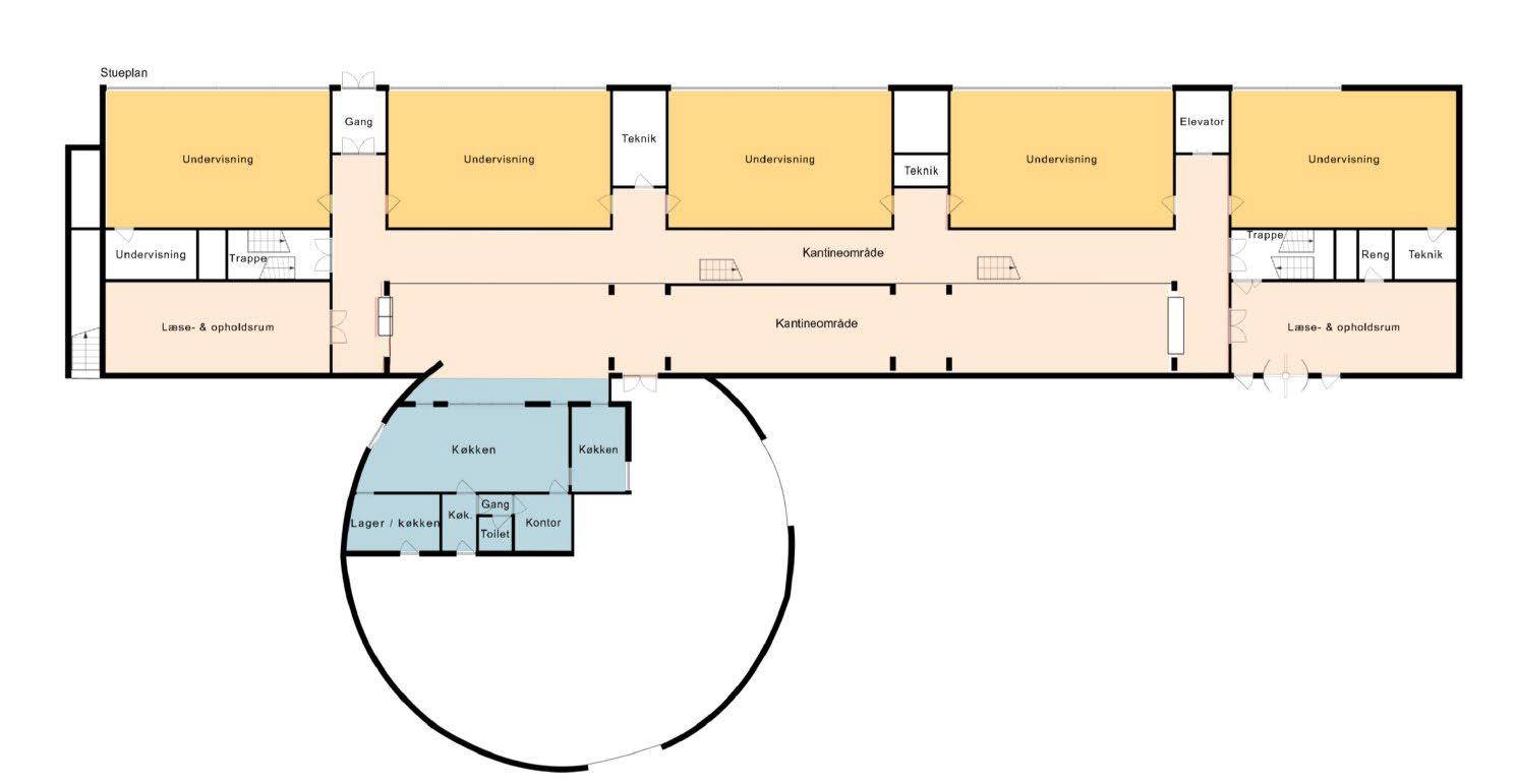
Ejendommen er opført i 2001 og indeholder stueplan, 1., 2. og 3. sal samt kælderplan. Det samlede etageareal i ejendommen udgør 5.280 m², som fordeler sig med 4.140 m² fra stueetagen til 3. sal samt 1.140 m² kælder.
Ejendommens stueetage fremstår med et præsentabelt atrium indrettet som ankomstområde med mødecenter og kantine med tilhørende produktionskøkken. Stueetagen er tillige indrettet med møde og undervisningslokaler, men vil efter behov kunne ombygges til eksempelvis kontorer eller flere mødelokaler. Fra kantineområdet er der direkte udgang til et attraktivt gårdmiljø.
Adgang til de øvrige etager kan ske via elevator eller ejendommens flotte hovedtrappe, som er placeret midt i ejendommens atrium. Etagerne her er indrettet med en kombination af enkeltmands- og storrumskontorer, mødelokaler og undervisningslokaler samt laboratorier, som tillige kan ombygges til brug for kontorer.
Indretningsforslag til kontorbrug kan rekvireres hos Nordicals.
I forslaget er der lagt op til 236 arbejdspladser, der er alene tale om et forslag, som på antal arbejdspladser kan skaleres op eller ned efter behov.
Ejendommen har en spændende indretning med synlige betonkonstruktioner fsva. søjler og vægge. Gulvbelægningen er en kombination af flisebelægning, trægulve og linoleum.
Ejendommen har tidligere været udlejet til Syddansk Universitet til brug for undervisningsog forskningsformål. Ejendommen er særdeles velegnet som firmadomicil, undervisning, kontorfællesskab eller lignende.
Ejendommen er yderst velbeliggende tæt på hjørnet af Falen og J.B. Winsløws Vej. dvs. tæt på centrum i Odense og med kort afstand til Fynske Motorvej, som dermed sikrer en kommende lejer gode tilkørsels-forhold og adgang til offentlig transport.
På ejendommen forefindes mange p-pladser som kan lejes efter behov.
For yderligere information om mulighederne på ejendommen, kontakt Nordicals Fyn.
Ejendommen udlejes for Freja Ejendomme, statens ejendomsselskab.
Lejevilkår
Etageareal 5.280 m²
Kontor/klinik
Kælder 4.140 m² | kr. 950 pr. m² 1.140 m² | kr. 350 pr. m²
Årlig leje ex. drift kr. 4.332.000
Depositum kr. 2.166.000 | 6 mdr. leje
Driftsudgifter kr. 594.221
El | Renovation
Betales direkte til forsyningsselskab
A conto varme | vand Betales direkte til forsyningsselskab
Området hvor ejendommen er beliggende gælder lokalplan nr. 2-1103, idet denne bestemmer følgende:
Området må kun anvendes til kontor- og serviceerhvervsformål og til offentlige formål, herunder men ikke begrænset til – publikumsrettede og offentlige sundhedserhverv, klinikker og uddannelses- og kursusvirksomhed samt medicinsk fakultet, med tilhørende opholds-, færdsels- og parkeringsarealer.
Ejendommen er beliggende på hjørnet af Sdr. Boulevard og J.B. Winsløws Vej i Odense C og har dermed en ideel placering for dem der ønsker nem adgang til centrum og offentlig transport samt til Fynske Motorvej.
Beliggende kun ca. 2 km fra starten af Odense gågade, er det nemt at komme til byens faciliteter og mange tilbud, enten om det er til fods eller med offentlig transport.
Med kort afstand til Ring 2 ved det store kryds Falen / Kløvermosevej er der nem adgang til resten af byen og de omkringliggende områder.
Fynske Motorvej (E20) er beliggende under 10 minutters kørsel fra ejendommen, hvilket gør det nemt at pendle til andre dele af Fyn og resten af Danmark.
En yderst præsentabel ejendom på en særdeles god beliggenhed.
• Odense gågade | 2,1 km
• Odense Universitetshospital | 0,6 km
• Busstoppested Sdr. Boulevard | 0,2 km
• Ring 2 | 0,6 km
• Fynske Motorvej | 4,5 km
• SDU | 6,2 km
• Cortex Park | 6,0 km
• Forskerparken | 4,8 km
Kontakt
Kontakt
Alle henvendelser vedrørende lejemålet, herunder aftale om besigtigelse, bedes rettet til Nordicals Odense.
For yderligere information kontakt venligst:
Simon Vinther Blach Erhvervsmægler
+45 2311 1988
svb@nordicals.dk
Anja Kreutzmann Sagskoordinator
+45 3025 2919 akn@nordicals.dk
Om Nordicals
Vi er markedsledende erhvervsmægler i vores markedsområde Fyn, med forretninger i både Odense og Middelfart samt Svendborg og har mere end 30 års erfaring inden for salg og udlejning af erhvervsejendomme.
Nyeste statistik viser, at vi har 32% af det samlede salgsudbud samt 45% af det samlede lejeudbud i vores markedsområde (Fyn).
Som en del af Danmarks største, partnerdrevne kæde med 24 forretninger i hele landet, har vi et stærkt samarbejde på tværs af landet. Dette gør det muligt for os at have et indgående kendskab til markedet i hele Danmark.
Vi kender derfor hvert et hjørne af markedet og ved, hvor det bevæger sig hen. Det gør vi med vores lokale forankring i hele landet og med vores datadrevne analyseunivers, Nordicals ForesightTM. Vi kombinerer således lokal indsigt med et globalt udsyn, så vi holder vores kunder opdateret på de internationale markeds- og samfundstendenser, analyserer dem og perspektiverer dem til deres verden og markedsmuligheder.
Nordicals er Danmarks største, partnerdrevne erhvervsmæglerkæde med 24 forretninger og 170 eksperter over hele landet. Vi kender derfor ejendomsmarkedet og ved, hvor det bevæger sig hen – både nationalt og helt ned på lokalt byniveau.
Nordicals i tal
24
partnerdrevne forretninger på tværs af Danmark 2.500
ejendomme til salg og udlejning for kunder
170
eksperter inden for ejendomsrådgivning
360
graders markedsperspektiv med Nordicals Foresight * +1.000
transaktioner inden for salg og udlejning i 2023 14.000
Besøger hvert kvartal Nordicals Foresight
Disclaimer
Dette dokument er udarbejdet af Nordicals Fyn Medmindre andet er angivet, gælder følgende for oplysningerne dette dokument : Nordicals indestår ikke for, at oplysningerne er nøjagtige eller fuldstændige Oplysningerne er ikke uafhængigt verificeret Oplysningerne dette dokument er tilvejebragt under den forudsætning, at Nordicals og enhver partner eller medarbejder ikke er ansvarlig for fejl eller unøjagtigheder i dokumentet, som måtte være forårsaget af uagtsomhed eller lignende eller for tab eller skade som følge af sådanne fejl, udeladelser eller unøjagtigheder Det er ikke tilladt, helt eller delvist, at anvende eller kopiere dokumentet i nogen form, hverken tekst, grafik eller billeder, uden forudgående accept fra Nordicals