Valuation Pack - Defining Homes

Page 1

A DISTINCT + LIMITED COLLECTION.

ARCHITECTURE—12 RESIDENCES—26 SURROUNDS—52 COLLABORATORS—64

FOR BURWOOD. FOR YOU.

Artist impression
Artist impression

Surrounded by greenery, The Defining Homes at Burwood Brickworks are limited in number and premium in nature. Architecturally distinct homes paired with verdant outlooks, landscaped alcoves and green space ensure an offering unlike anything else. The Defining Homes provide families new and old with a place to grow, learn and enjoy, all within a green, world-leading lifestyle precinct.

Artist impression
10 11

ARCHITECTURE

“The homes at Burwood Brickworks are a collection of carefully planned and curated dwellings, surrounded by green spaces and retail amenity. The arrangement of the dwellings ensures that optimum solar orientation is achieved for each space, creating sunny and light filled living for interior and outdoor areas. Rear yards, courtyards and balconies provide a variety of external living spaces for the various dwellings. Living areas flow directly to the outdoor areas, creating a strong connection between indoors and outdoors .”

A RARE COLLECTION OF HOMES, EACH EXHIBITING A DISTINCT UNIQUENESS

TOGETHER FORMING A GRACEFUL + CONTEMPORARY STREETSCAPE.

Artist impression
Artist impression

Each home is nestled amidst the established, tree-lined neighbourhood of a world-leading precinct. The design uses traditional brickwork and timber features, contrasted with the more modern elements of steel and concrete render, for a timeless expression. Considered for every family, the homes spread generously across two levels with living areas and multiple outdoor spaces that can adapt to the needs of different lifestyles.

Artist impression
THE DEFINING HOMES 18 19 ARCHITECTURE

DKO HAS DESIGNED EVERY HOME TO STAND OUT INDIVIDUALLY AND TO HARMONISE TOGETHER.

Artist impression THE DEFINING HOMES 20
Artist impression
Artist impression
Artist impression

RESIDENCES

“Harmonising with the building’s architecture, interiors have been designed to directly reflect the surrounding curated green space and community expression of the development. Available in two understated palettes — Heart and Soul — the interior aesthetic explores subtle tones inspired by nature, creating a layered and neutral interior that recedes and allows an owner’s personality to come to the fore. Flexible living arrangements allow moments of quiet contemplation while also catering to communal gatherings on a large scale. Voluminous apertures link living spaces to the outside bringing landscape views and nature into the home.”

NATURAL LIGHT ILLUMINATES POLISHED + SOPHISTICATED LIVING SPACES

THAT OPEN ONTO GENEROUS + VERDANT, OUTDOOR HAVENS.

Artist impression. Upgrades shown include twin downlights, LED strip light to bulkhead, fireplace and joinery, desk drawers and lighting to desk shelves, and 40mm Caesarstone benchtop. Curtains not included.
Artist impression. Upgrades shown include twin downlights, LED strip light to bulkhead, fireplace and joinery, desk drawers and lighting to desk shelves, and 40mm Caesarstone benchtop. Curtains not included.
Artist impression. Upgrades shown include marble
LED lighting to
40mm
Curtains not included.
splashback,
bulkhead,
Caesarstone benchtop.

The large floorplans are defined by their open flow and energised by natural light. Balance, connection and comfort are priorities in spaces finished with precision and consideration for a more refined way of life. The palette borrows textures from nature to include warming touches of timber and stone, while the more reflective surfaces illuminate and add a sense of volume. Full height glass sliders create an open relationship between inside and out, allowing sunlight to filter within, while black metal frames surround picture-perfect views. The layouts are flexible to adapt to changing lifestyles.

There’s the option to make the spaces even more luxurious than they already are. The stone surround fireplace, bespoke joinery and a range of personalised finishes provide an added sense of grandeur to each dwelling.

Artist impression. Curtains not included. THE DEFINING HOMES 34
Artist impression. Upgrades shown include marble
not
splashback, LED lighting to bulkhead, 40mm Caesarstone benchtop. Curtains
included.

The kitchen – the heart of the home – comes in a light or dark colour scheme, an offering that highlights the intuitive and sophisticated design of these homes. Quality stainless steel appliances and optional textured natural stone add a sense of luxury and will satisfy the keen home cook.

The Caesarstone island benchtop – which can also be used as a breakfast bar – is a polished centrepiece with an elegant waterfall detail. The stone benchtops are paired with a Caesarstone-finish splashback, which can be upgraded to marble-finish. All homes are fitted with high quality Smeg appliances while many also offer a walk-in pantry.

Kitchen upgrades include linear pendant lights, premium Astra Walker tapware, additional LED strip lights, USB ports and extra electrical sockets, marble splashbacks, 40mm Caesarstone benchtops, and custom joinery packages within the butler’s pantries.

Artist impression. Upgrades shown include 40mm Caesarstone benchtop. THE DEFINING HOMES 38
Artist impression. Light scheme kitchen. Upgrades shown include lighting to desk shelves, kitchen pendant light, Astra Walker tapware, LED strip light to bulkhead, marble splashback and 40mm Caesarstone benchtop. Artist impression. Dark scheme kitchen. Upgrades shown include lighting to desk shelves, kitchen pendant light, Astra Walker tapware,LED strip light to bulkhead, marble splashback and 40mm Caesarstone benchtop.
Artist impression. Curtains not included.

FLEXIBLE LIVING ARRANGEMENTS ALLOW FOR MOMENTS OF QUIET CONTEMPLATION.

The bathrooms and bedrooms are designed to be calm and restorative. Generous proportions and crafted finishes distinguish the more private and tranquil spaces of each dwelling. They are designed for relaxation, with an emphasis on light-filled, airy aesthetics and tactile details of timber, stone and wool for added warmth and intimacy.

DKO ARCHITECTURE
Artist impression
impression. Dark scheme bathroom. Upgrades shown include freestanding bath and tap, marble stone bencthop and Astra Walker basin mixer and spout. THE DEFINING HOMES 46
Artist
Artist
impression.
Dark scheme bathroom. Upgrades shown include marble stone bencthop and Astra Walker basin mixer and spout.
Artist impression. Light scheme bathroom. Upgrades shown
include freestanding bath and tap, marble stone bencthop and Astra Walker basin mixer and spout.

INCLUSIONS UPGRADES

Please note: light scheme will be provided as standard. Purchasers are required to select dark scheme as a nil-value upgrade. Artist impression. Upgrades shown include LED Strip Lighting to lowered ceiling, 40mm Caesarstone benchtop and natural Stone splashback.
STANDARD INCLUSIONS

Standard Inclusions

KITCHEN

Benchtop 20mm Caesarstone benchtops

FLOORING

Flooring Engineered oak timber flooring as indicated in Contract for Sale

Standard Inclusions

Splashback Caesarstone splashback between benchtop and overhead cupboard

100% wool blend carpet as indicated in Contract for Sale

Joinery Soft-close laminate cupboard doors and drawers with LED strip to underside of overhead cabinets

Oven Electric oven 900mm wide stainless steel (Smeg or similar)

Cooktop Gas cooktop 900mm wide stainless steel (Smeg or similar)

Rangehood Concealed rangehood 900mm wide (Smeg or similar)

Dishwasher Under bench 600mm wide freestanding dishwasher stainless steel (Smeg or similar)

Fridge Water point in fridge cavity

Pantry* Walk-in pantry with melamine shelving

Sink Undermount double bowl stainless steel sink

Taps Mixer tap with swivel spout chrome

*Walk-in pantry not available in the following homes: 703—707, 712 and 713.

Please note that while reasonable care is taken to ensure that the contents in this inclusions list are correct, this information is to be used as a guide only. Changes may be made during the development process and dimensions, specifications and fittings may vary for reasons outside of the sellers’ control. Purchasers must rely on their own enquiries and the Contract for Sale.

Glazed porcelain tiles to wet areas as indicated in Contract for Sale

BUILT-IN DESK

Study Desk^ Timber-look laminate desktop and shelving

^Study desk not available in the following homes: 703—707, 712, 713, 718 and 720.

Please note that while reasonable care is taken to ensure that the contents in this inclusions list are correct, this information is to be used as a guide only. Changes may be made during the development process and dimensions, specifications and fittings may vary for reasons outside of the sellers’ control. Purchasers must rely on their own enquiries and the Contract for Sale.

BATHROOM BATHROOM

Vanity 20mm Caesarstone stone vanity tops (bathroom and ensuite)

Timber look laminate drawer unit

Undermount Vitreous china basin

Tapware Chrome tapware

Shower Overhead and hand-held shower with diverter

Rails Double towel rail Toilet Toilet roll holder Wall faced toilet suite in Vitreous china

BEDROOM

Bath Hob-mounted bath (bathroom and ensuite where applicable)

Tiling Full height porcelain wall tiling (bathroom and ensuite)

Cabinet Semi-recessed shaving cabinet with black aluminium frame to mirrored cabinet doors with LED Strip light to underside of shaving cabinet (ensuite)

Mirror Mirror with powdercoat shelf (bathroom and powder room)

Please note that while reasonable care is taken to ensure that the contents in this inclusions list are correct, this information is to be used as a guide only. Changes may be made during the development process and dimensions, specifications and fittings may vary for reasons outside of the sellers’ control. Purchasers must rely on their own enquiries and the Contract for Sale.

Walk-InWardrobe* Built-in laminate shelving and drawer unit with single hanging rail (master bedroom)

Wardrobe Built-in melamine shelving and drawer unit with single hanging rail

Sliding wardrobe door system with mirror panels

*Laminate shelving not available in homes 703—707. Melamine shelving and drawer unit with single hanging rail provided.

Please note that while reasonable care is taken to ensure that the contents in this inclusions list are correct, this information is to be used as a guide only. Changes may be made during the development process and dimensions, specifications and fittings may vary for reasons outside of the sellers’ control. Purchasers must rely on their own enquiries and the Contract for Sale.

Standard Inclusions
Inclusions
Standard
UPGRADES
Artist impression. Upgrades shown include twin downlights, fireplace and joinery. Curtains not included.
THE

JOINERY FIXTURES + FITTINGS

Tapware Package Astra Walker tapware and accessories in Ice Grey finish

Dishwasher Fully integrated 600mm dishwasher (Smeg or similar)

Toilets Astra Walker concealed cistern toilets

Bath Freestanding bath (bathroom and ensuite where the ensuite has a bath)

Natural Stone Package Natural stone splashback between benchtop and overhead cupboard 20mm natural stone vanity top (bathroom and ensuite)

Kitchen Benchtops 40mm Caesarstone benchtop

Toilet Roca In-Wash® Inspira — Smart Toilet

Please note that while reasonable care is taken to ensure that the contents in this upgrades list are correct, this information is to be used as a guide only. Changes may be made during the development process and dimensions, specifications and fittings may vary for reasons outside of the sellers’ control. Purchasers must rely on their own enquiries and the Contract for Sale.

Butler’s Pantry Package* 20mm Caesarstone benchtop

Laminate cupboard and drawer with microwave cavity. Timber-look laminate shelves above benchtop with LED strip light to underside of bottom shelf

Caesarstone splashback

Undermount single bowl sink and chrome mixer tap

Billie Zip Taps (boiling and chilled water)

*Butler’s pantry upgrade not available in the following homes: 703—707 and 712—713.

Please note that while reasonable care is taken to ensure that the contents in this upgrades list are correct, this information is to be used as a guide only. Changes may be made during the development process and dimensions, specifications and fittings may vary for reasons outside of the sellers’ control. Purchasers must rely on their own enquiries and the Contract for Sale.

The Upgrades The Upgrades

LIGHTING + ELECTRICAL, HEATING + COOLING

Laundry Package* 20mm Caesarstone benchtop

Laminate overhead cabinets

Fireplace only option^

Gas fireplace with natural stone-faced plinth to match kitchen splashback upgrade with timber-look shelving and single drawer. LED lighting to underside of shelving

Fireplace and Entertainment Unit option+

Entertainment unit and gas fireplace with natural stone-faced plinth to match kitchen splashback upgrade with timber-look shelving and drawers. LED lighting to underside of shelving

Built-In Desk Package† Timber-look laminate drawer unit. LED lighting to underside of shelving

Walk-InWardrobe Package

Timber-look laminate drawer unit

LED strip light above hanging rail

* Laundry package not available in home 718.

^ Fireplace only option available in the following homes: 703—707, 712—713 and 718.

+ Fireplace and Entertainment Unit option only available in the following homes: 704—707, 717 and 720. † Built-in desk package not available in the following homes: 703—707, 712—713, 718 and 720.

Please note that while reasonable care is taken to ensure that the contents in this upgrades list are correct, this information is to be used as a guide only. Changes may be made during the development process and dimensions, specifications and fittings may vary for reasons outside of the sellers’ control. Purchasers must rely on their own enquiries and the Contract for Sale.

Electrical USB points and additional GPOs

Lighting Twin LED downlights to living and meals area

Feature pendant light over kitchen island bench

Heating and Cooling*

Level-zoned refrigerated cooling to home and ceiling fans are provided to all bedrooms as standard

DOORS

Door Package Sliding flyscreen to living area glazed sliding door

Security screen to front entry door

* Ducted Heating provided as standard only in homes 703—707. Ceiling fans only available when add-on cooling upgrade has been selected.

Please note that while reasonable care is taken to ensure that the contents in this upgrades list are correct, this information is to be used as a guide only. Changes may be made during the development process and dimensions, specifications and fittings may vary for reasons outside of the sellers’ control. Purchasers must rely on their own enquiries and the Contract for Sale.

JOINERY The Upgrades The Upgrades

GENERAL

INCLUSIONS Artist impression. Upgrades shown include 40mm Caesarstone benchtop.

Cornices Square set cornices throughout

Windows Flyscreens to all openable windows

GENERAL ELECTRICAL

Solar PV System 2kw solar systems for 3 Bedroom homes, and 3kw systems for 4 and 5 Bedroom homes

Master Switch Master electrical switch to turn-off lighting and appliances in stand-by mode

TV TV point to primary living area and master bedroom. TV point to secondary living area where applicable

Telephone Telephone point to primary living area and master bedroom

Data Data point to primary living and master bedroom. Data point to secondary living area where applicable

Smoke Detectors Hard wired with battery back up

EXTERNAL + LANDSCAPING

Driveway and Entry Path Exposed aggregate where applicable

Rear Yard Paving Concrete pavers where applicable

Garden Beds Mulched and irrigated to front yard only where applicable

Lawn Areas Turf to rear yard only where applicable

Fencing Includes side and boundary fencing as nominated on Contract for Sale

External Outdoor gas point

EXTERNAL MATERIALS

Roofing Material Zincalume or Colorbond finish

Bricks Clay

External Cladding Panel cladding: composite board with expressed joints and painted finish where applicable

Horizontal and vertical cladding: composite weatherboards painted finish where applicable. Timber-look vertical boards where applicable

Render: lightweight cladding with rendered finish where applicable

External Balustrade Aluminium framed glazed balustrade where applicable. Vertical steel powdercoat finish where applicable

Garage Door Colorbond sectional overhead door

General Inclusions General Inclusions
Please note that while reasonable care is taken to ensure that the contents in this inclusions list are correct, this information is to be used as a guide only. Changes may be made during the development process and dimensions, specifications and fittings may vary for reasons outside of the sellers’ control. Purchasers must rely on their own enquiries and the Contract for Sale.
Please note that while reasonable care is taken to ensure that the contents in this inclusions list are correct, this information is to be used as a guide only. Changes may be made during the development process and dimensions, specifications and fittings may vary for reasons outside of the sellers’ control. Purchasers must rely on their own enquiries and the Contract for Sale.

HEATING + COOLING

Hot Water Service Gas boosted solar hot water service

Heating* Ducted heating system

Cooling 1 x split system to living area and 1 x split system to master bedroom (3 bedroom homes). Add on zoned refrigerated cooling (4 & 5 bedroom homes)

Ceiling Fans^ Provided to all bedrooms and upstairs living areas

CEILING HEIGHTS

Ceiling Heights Main living floor: 2700mm (nom.) to primary living floor area (lowered ceilings where indicated in Contract for Sale)

Bedrooms floor: 2550mm (nom.) to remainder

DISPLAY CENTRE — 78 MIDDLEBOROUGH ROAD, BURWOOD EAST 3151

*Ducted Heating provided as standard only in the following homes: 703—707. ^Ceiling Fans only available when add-on cooling Upgrade has been selected.

Please note that while reasonable care is taken to ensure that the contents in this inclusions list are correct, this information is to be used as a guide only. Changes may be made during the development process and dimensions, specifications and fittings may vary for reasons outside of the sellers’ control. Purchasers must rely on their own enquiries and the Contract for Sale.

© Savi Communications 2021.
General Inclusions

SURROUNDS

THE DEFINING HOMES ARE AT THE HEART OF AN EXCITING URBAN LIFESTYLE.

“A well thought out approach values nature, sustainability, urban amenity and privacy as important elements of the overall design of Burwood Brickworks, bringing a new level of mindful, connected living to Melbourne. Both energetic and calm, the precinct is a rare blend of urban buzz and quiet residential charm. A profusion of greenery offers places to play and unwind in nature. These restful spaces dot the neighbourhood and can be found just moments from a plethora of lively destinations for dining, shopping and entertainment, that form the award-winning urban heart of the precinct.”

EXEMPLARY RESIDENCES, WORLD LEADING RETAIL + EXPANSIVE GREEN SPACES COMBINE TO MAKE THIS ONE OF THE WORLD’S BEST PRECINCTS.

FRASERS PROPERTY AUSTRALIA

THE DEFINING HOMES ARE AT THE HEART OF AN EXCITING URBAN LIFESTYLE.

EXEMPLARY RESIDENCES, WORLD LEADING RETAIL + EXPANSIVE GREEN SPACES COMBINE TO MAKE THIS ONE OF THE WORLD’S BEST PRECINCTS.

This plan is an artist impression and should be used as a guide only. Artist impression
Middleborough Road Eley Road

The

Defining Homes

These quality residences are created with comfort and sustainability in mind and leave a minimal environmental footprint, which saves significantly on power bills. All homes are located within easy walking distance of the Village Green.

Shops

and entertainment

A world first retail experience: intelligent architecture, renewable practices and an abundance of amenity and community. The shopping centre houses over 40 retailers, a cinema, childcare centre, medical centre and an abundance of restaurants and cafés. The Burwood Brickworks Shopping Centre is targeting full Living Building Challenge® certification. This means it generates more energy than it consumes, retaining and recycling all of the water it uses, dedicating 20% of its site footprint for food growing; among many other sustainable initiatives.

A rooftop urban farm acre farm & eatery Brickworks is home to a quail coop, composting and worm farms, as well as an impressive collection of vertical and hydroponic planting structures and garden beds, all alongside a beautiful restaurant and café offering a true paddock-to-plate service.

Village Green

Making up 1 hectare of the 2.5 hectares of open space throughout Burwood Brickworks, the Village Green offers residents and the wider community the opportunity to get outside and take in nature.

The Link

The Link acts as the precinct’s main thoroughfare, connecting the Urban Plaza to an abundance of green space via carefully articulated walking and cycling paths.

Urban Plaza

An outdoor extension of the retail centre offers paved paths winding past alcoves, grassy mounds and intimate spaces that make the most of the outdoors.

Burwood Brickworks is a world leading community

As a result of tailored community and environmental initiatives that will be delivered at Burwood Brickworks, the Green Building Council of Australia has independently awarded the precinct a 6 Star Green Star Communities rating. This verifies it as one of the best designed and thoughtfully considered communities in the world.

Middleborough Road

This plan is an artist impression and should be used as a guide only. Artist impression
Eley Road
Artist impression

Burwood Brickworks Shopping Centre is a social hub with a bubbling coffee culture, restaurants, specialty stores, a florist and indoor plant store, a barber and hairdresser, a chemist, an Asian grocer and a boutique butcher. Pick up fresh produce on your way home, along with a bottle of wine, or choose to dine out in one of the many eateries that add fresh flavour to a precinct brimming with modern amenity and the charm of a close community. Eat Street sits on the edge of the central Urban Plaza and offers residents an abundance of delightful culinary options.

The ultimate retail environment

The Burwood Brickworks Shopping Centre is bathed in natural light, flushed with fresh air and invigorated with indoor plantings.

Naturally powered

All electricity consumed comes from renewable resources, with the surplus generation going back into the grid.

Burwood Brickworks Shopping Centre
THE DEFINING HOMES 60
Burwood Brickworks Shopping Centre

20% of the retail space is dedicated to agriculture, with a 2,000sqm urban farm located on the shopping centre’s rooftop. This encompasses a greenhouse, external planter boxes and landscaped growing areas, as well as a large restaurant and café that offer an abundance of culinary delights and a true paddock-to-plate dining experience.

Repurposing for the better

The centre collects all organic waste to repurpose for compost and other resources.

Water-wise

All grey and black water is captured, treated and recycled on site.

acre Farm & Eatery,
acre Farmhouse restaurant, Burwood Brickworks
Burwood Brickworks
63 SURROUNDS

COLLABORATORS

Sharing an appreciation for authentic design and craftsmanship, Frasers Property and DKO have created The Defining Homes to elevate the experience of a modern lifestyle. This final stage for Burwood Brickworks has provided the opportunity for both teams to work closely together to deliver something truly unique amidst the energy of Burwood Brickworks. The process of development, architecture and interior design has been approached in a holistic way and expressed as a cultivated residential statement with genuine connection to its natural and urban environments.

FRASERS PROPERTY AUSTRALIA

CREATING PROUD COMMUNITIES SINCE 1924.

Burwood Brickworks, VIC, Winner, Excellence in Sustainability, The Urban Developer Awards 2020 (November 2020)

LONGEVITY

More than 95 years of history in Australia.

PROSPERITY

Personalised customer care and rewards.

RELIABILITY

Property services and utilities you can rely on.

COMMUNITY

RECENT AWARDS

Central Park, NSW: Winner, President’s Award, UDIA NSW Crown Group Awards for Excellence 2019 (August 2019)

Burwood Brickworks, VIC, Winner, Retail Development of the Year, The Urban Developer Awards 2020 (December 2020)

Burwood Brickworks, VIC, Winner, Retail Development of the Year, Urban Task Force Development Excellence Awards 2020 (November 2020)

Burwood Brickworks, VIC, Commercial Architecture (Large) Winner for the Shopping Centre, 2020 Sustainability Awards (November 2020)

Burwood Brickworks, VIC, Commercial Architecture (Small) Winner for Acre Farm Eatery, 2020 Sustainability Awards (November 2020)

Burwood Brickworks, VIC, Best of the Best Award, 2020 Sustainability Awards (November 2020)

Burwood Brickworks, VIC, Green Space Urban Award, Australian Institute of Horticulture awards: AIH Awards 2020 (November 2020)

Burwood Brickworks, VIC, Winner of the Architectural Design Urban Design and Public Spaces category (Awarded to Balarinji for Mandy Nicholson’s Mural), 2020 Good Design Awards (September 2020)

Burwood Brickworks, VIC, Winner – Victoria (Awarded to Spencer Group Engineering Pty Ltd), Australian Engineering Excellence Awards 2020 (September 2020)

Burwood Brickworks, VIC, Shortlisted, Urban Renewal Award, 2020 UDIA National Awards for Excellence (December 2020)

Burwood Brickworks, VIC, Shortlisted, Great Place Award, 2020 UDIA Awards for Excellence - Victoria (December 2020)

Burwood Brickworks, VIC, Finalist, Built Environment Category, The Premier’s Sustainability Awards 2020 (December 2020) Central Park, NSW: Winner, Environmental Excellence, UDIA Wingate National Awards for excellence 2020 (May 2020)

Ed. Square, NSW: Finalist, Environmental Excellence, UDIA Wingate National Awards for Excellence 2020 (May 2020)

Burwood Brickworks, VIC: Shortlist, Retail Design, 2020 Australian Interior Design Awards (March 2020)

Mambourin, VIC: Winner, Corian Design Awards 2019 for Outstanding Design Edition 2 (July 2019)

Central Park, NSW: Winner, Excellence in Masterplanned Communities, UDIA NSW Crown Group Awards for Excellence 2019 (July 2019)

DUO, Central Park, NSW: Winner, Excellence in Mixed-Use Development, UDIA NSW Crown Group Awards for Excellence 2019 (July 2019)

The Residences at Yungaba House, QLD: Winner, Excellence in MediumDensity Development, 2017 UDIA Qld Mitchell Brandtman Awards for Excellence (November 2017)

Central Park Sydney by Tzannes and Cox Richardson and Foster and Partners, National: Winner, Sustainable Architecture: David Oppenheim Award, Australian Institute of Architects 2017 National Architecture Awards (November 2017)

Lumiere, Sydney, Global: Winner, 10 Year Award of Excellence, Council on Tall Buildings and Urban Habitat (CTBUH) Awards 2017 (May 2018)

Newport Hamilton Reach, National: Winner, Crown Group Award for Best Residential Development, 2018 Property Council of Australia Rider Levett Bucknall Innovation & Excellence Awards (May 2018)

The Residences at Yungaba House, National: Finalist, S4B Studio Award for Best Heritage Development, 2018 Property Council of Australia Rider Levett Bucknall Innovation & Excellence Awards (May 2018)

“Beaches” Coast Papamoa Beach, Tauranga, NZ: Winner, Best in Category, NATURAL HABITATS Urban Land Developments Property Award, 2018 Property Council New Zealand Rider Levett Bucknall Innovation & Excellence Awards (June 2018)

Absolute, Putney Hill, NSW: Finalist, Excellence in Marketing — Land Development, 2018 UDIA NSW Crown Group Awards for Excellence (August 2018)

Tailor’s Walk, NSW: Finalist, Excellence in Medium-Density Development: Above 100 Dwellings, 2018 UDIA NSW Crown Group Awards for Excellence (August 2018)

Built on a foundation of connectivity, health and well-being.

Riverlight, Queensland

QUALITY

DUO, Central Park, NSW: Finalist, Award for Best Mixed Use Development, Property Council RLB Innovation & Excellence Awards 2020 (December 2019)

Fairwater, NSW: Winner, Excellence in Innovation, AIRAH Awards 2019 (November 2019)

River Homes, Hamilton Reach, QLD: Winner, Premium Small Scale Development, UDIA QLD Awards for Excellence 2019 (November 2019)

Central Park, NSW: Development of the Year – Urban Regeneration, Urban Developer Awards 2019 (October 2019)

Putney Hill – Canopy Apartments, NSW: Finalist, Excellence in MediumDensity Development: Above 100 Dwellings, 2018 UDIA NSW Crown Group Awards for Excellence (August 2018)

Centrale, North Ryde, NSW: Finalist, Excellence in High-Density Development, 2018 UDIA NSW Crown Group Awards for Excellence (August 2018)

Tailor’s Walk, NSW: Finalist, Excellence in Urban Renewal / Adaptive Reuse, 2018 UDIA NSW Crown Group Awards for Excellence (August 2018)

Award winning sustainable home design for a life time of living.

There’s one measure above all that tells us we’ve succeeded. We never ask to see it, but we observe it often: it’s the smile of pride in what you’ve achieved. It’s seen in the nod of a neighbour, the togetherness of friends, or the laughter of children at play. Small moments that become the measure of how well you’ve planned and saved and worked to make it all happen.

About Frasers Property Australia.

We’ve been creating memorable places for Australians to feel proud of since 1924. Underpinning our strength is the support of parent company, Frasers Property Limited – one of the world’s leading real-estate brands, managing over S$38.7 billion in assets on five continents. Global in scale,

we remain local at heart. After almost a century of creating homes and places for tens of thousands of Australians, experience tells us that what matters the most is the simple joy of living in a place you’re proud to call home.

Care that lasts a lifetime.

At Frasers Property, we believe purchasing property should be more than just a transaction. That’s why we have Prosperity, our Customer Care and Rewards program. Prosperity means you’ll be supported throughout your whole property journey and given access to an enviable range of rewards and benefits, all designed to make a real difference in your life. If you purchase property from us, you are rewarded membership for life.

Central Park, NSW: Winner, Excellence in Sustainability, Urban Developer Awards 2019 (October 2019)

Fairwater, NSW: Finalist, Development of the Year – Medium Density Residential, Urban Developer Awards (October 2019)

One Central Park, NSW: Winner, 50 Most Influential Tall Buildings of the Last 50 Years, Council on Tall Buildings and Urban Habitat (CTBUH) 50th Anniversary Awards (September 2019)

Connor, Central Park, National: Winner, Development of the Year — HighDensity Residential, The Urban Developer Awards 2018 (September 2018)

Frasers Property Australia, Global: Finalist, Special Recognition: Better Places for People, 2018 World Green Building Council Asia Pacific Awards (September 2018)

Frasers Property Australia, Global Finalist, AGC Asia Pacific Pte Ltd Business Leadership in Sustainability, 2019 World Green Building Council Asia Pacific Awards (September 2018)

Kensington Street & Spice Alley, won by Greencliff and Frasers Property Australia, National: Winner, Winner for Urban Renewal Development, 2018 Urban Taskforce Australia Development Excellence Awards (July 2018)

COLLABORATORS 69

CREATING PROUD COMMUNITIES SINCE 1924.

Burwood Brickworks, VIC, Winner, Excellence in Sustainability, The Urban Developer Awards 2020 (November 2020)

Burwood Brickworks, VIC, Winner, Retail Development of the Year, The Urban Developer Awards 2020 (December 2020)

RECENT AWARDS

Central Park, NSW: Winner, President’s Award, UDIA NSW Crown Group Awards for Excellence 2019 (August 2019)

Mambourin, VIC: Winner, Corian Design Awards 2019 for Outstanding Design Edition 2 (July 2019)

Burwood Brickworks, VIC, Winner, Retail Development of the Year, Urban Task Force Development Excellence Awards 2020 (November 2020)

Burwood Brickworks, VIC, Commercial Architecture (Large) Winner for the Shopping Centre, 2020 Sustainability Awards (November 2020)

Burwood Brickworks, VIC, Commercial Architecture (Small) Winner for Acre Farm Eatery, 2020 Sustainability Awards (November 2020)

Burwood Brickworks, VIC, Best of the Best Award, 2020 Sustainability Awards (November 2020)

Burwood Brickworks, VIC, Green Space Urban Award, Australian Institute of Horticulture awards: AIH Awards 2020 (November 2020)

Burwood Brickworks, VIC, Winner of the Architectural Design Urban Design and Public Spaces category (Awarded to Balarinji for Mandy Nicholson’s Mural), 2020 Good Design Awards (September 2020)

Burwood Brickworks, VIC, Winner – Victoria (Awarded to Spencer Group Engineering Pty Ltd), Australian Engineering Excellence Awards 2020 (September 2020)

Burwood Brickworks, VIC, Shortlisted, Urban Renewal Award, 2020 UDIA National Awards for Excellence (December 2020)

Burwood Brickworks, VIC, Shortlisted, Great Place Award, 2020 UDIA Awards for Excellence - Victoria (December 2020)

Burwood Brickworks, VIC, Finalist, Built Environment Category, The Premier’s Sustainability Awards 2020 (December 2020) Central Park, NSW: Winner, Environmental Excellence, UDIA Wingate National Awards for excellence 2020 (May 2020)

Ed. Square, NSW: Finalist, Environmental Excellence, UDIA Wingate National Awards for Excellence 2020 (May 2020)

Burwood Brickworks, VIC: Shortlist, Retail Design, 2020 Australian Interior Design Awards (March 2020)

DUO, Central Park, NSW: Finalist, Award for Best Mixed Use Development, Property Council RLB Innovation & Excellence Awards 2020 (December 2019)

Fairwater, NSW: Winner, Excellence in Innovation, AIRAH Awards 2019 (November 2019)

River Homes, Hamilton Reach, QLD: Winner, Premium Small Scale Development, UDIA QLD Awards for Excellence 2019 (November 2019)

Central Park, NSW: Development of the Year – Urban Regeneration, Urban Developer Awards 2019 (October 2019)

Central Park, NSW: Winner, Excellence in Masterplanned Communities, UDIA NSW Crown Group Awards for Excellence 2019 (July 2019)

DUO, Central Park, NSW: Winner, Excellence in Mixed-Use Development, UDIA NSW Crown Group Awards for Excellence 2019 (July 2019)

The Residences at Yungaba House, QLD: Winner, Excellence in MediumDensity Development, 2017 UDIA Qld Mitchell Brandtman Awards for Excellence (November 2017)

Central Park Sydney by Tzannes and Cox Richardson and Foster and Partners, National: Winner, Sustainable Architecture: David Oppenheim Award, Australian Institute of Architects 2017 National Architecture Awards (November 2017)

Lumiere, Sydney, Global: Winner, 10 Year Award of Excellence, Council on Tall Buildings and Urban Habitat (CTBUH) Awards 2017 (May 2018)

Newport Hamilton Reach, National: Winner, Crown Group Award for Best Residential Development, 2018 Property Council of Australia Rider Levett Bucknall Innovation & Excellence Awards (May 2018)

The Residences at Yungaba House, National: Finalist, S4B Studio Award for Best Heritage Development, 2018 Property Council of Australia Rider Levett Bucknall Innovation & Excellence Awards (May 2018)

“Beaches” Coast Papamoa Beach, Tauranga, NZ: Winner, Best in Category, NATURAL HABITATS Urban Land Developments Property Award, 2018 Property Council New Zealand Rider Levett Bucknall Innovation & Excellence Awards (June 2018)

Absolute, Putney Hill, NSW: Finalist, Excellence in Marketing — Land Development, 2018 UDIA NSW Crown Group Awards for Excellence (August 2018)

Tailor’s Walk, NSW: Finalist, Excellence in Medium-Density Development: Above 100 Dwellings, 2018 UDIA NSW Crown Group Awards for Excellence (August 2018)

Putney Hill – Canopy Apartments, NSW: Finalist, Excellence in MediumDensity Development: Above 100 Dwellings, 2018 UDIA NSW Crown Group Awards for Excellence (August 2018)

Centrale, North Ryde, NSW: Finalist, Excellence in High-Density Development, 2018 UDIA NSW Crown Group Awards for Excellence (August 2018)

Tailor’s Walk, NSW: Finalist, Excellence in Urban Renewal / Adaptive Reuse, 2018 UDIA NSW Crown Group Awards for Excellence (August 2018)

There’s one measure above all that tells us we’ve succeeded. We never ask to see it, but we observe it often: it’s the smile of pride in what you’ve achieved. It’s seen in the nod of a neighbour, the togetherness of friends, or the laughter of children at play. Small moments that become the measure of how well you’ve planned and saved and worked to make it all happen.

About Frasers Property Australia.

We’ve been creating memorable places for Australians to feel proud of since 1924. Underpinning our strength is the support of parent company, Frasers Property Limited – one of the world’s leading real-estate brands, managing over S$38.7 billion in assets on five continents. Global in scale,

we remain local at heart. After almost a century of creating homes and places for tens of thousands of Australians, experience tells us that what matters the most is the simple joy of living in a place you’re proud to call home.

Care that lasts a lifetime.

At Frasers Property, we believe purchasing property should be more than just a transaction. That’s why we have Prosperity, our Customer Care and Rewards program. Prosperity means you’ll be supported throughout your whole property journey and given access to an enviable range of rewards and benefits, all designed to make a real difference in your life. If you purchase property from us, you are rewarded membership for life.

Central Park, NSW: Winner, Excellence in Sustainability, Urban Developer Awards 2019 (October 2019)

Fairwater, NSW: Finalist, Development of the Year – Medium Density Residential, Urban Developer Awards (October 2019)

One Central Park, NSW: Winner, 50 Most Influential Tall Buildings of the Last 50 Years, Council on Tall Buildings and Urban Habitat (CTBUH) 50th Anniversary Awards (September 2019)

Connor, Central Park, National: Winner, Development of the Year — HighDensity Residential, The Urban Developer Awards 2018 (September 2018)

Frasers Property Australia, Global: Finalist, Special Recognition: Better Places for People, 2018 World Green Building Council Asia Pacific Awards (September 2018)

Frasers Property Australia, Global Finalist, AGC Asia Pacific Pte Ltd Business Leadership in Sustainability, 2019 World Green Building Council Asia Pacific Awards (September 2018)

Kensington Street & Spice Alley, won by Greencliff and Frasers Property Australia, National: Winner, Winner for Urban Renewal Development, 2018 Urban Taskforce Australia Development Excellence Awards (July 2018)

Newport, Hamilton Reach in QLD — 2018 PCA National Award for Best Residential Development
THE DEFINING HOMES 68 COLLABORATORS 69
Riverlight, Queensland

DKO ARCHITECTURE

Since first opening its doors in 2000, DKO has grown from a small team delivering medium density residential architecture into a practice of over 170 design professionals working out of multiple offices in Australia, New Zealand and Asia. While the practice has expanded, so too has the breadth of projects it undertakes, from bespoke residences to distinctive residential communities, luxury hotels, unique hospitality and workplace interiors, urban design and large-scale masterplanning.

What remains consistent however is the pursuit of high quality architecture driven by the needs of the client, the site’s opportunities and the dynamic

process of translating design intent into built outcome. At the core of DKO’s design philosophy, lies a commitment to an urban architecture that serves people, respects place and stands the test of time. The passionate and accomplished interior design team at DKO focus on sharp, intelligent and articulated design. With understanding of how a space works, moves and moulds with the user, DKO’s intuitive approach encourages collaboration on each project, bringing individual strengths and varied experience to maintain a crisp, lively and reflective angle on their designs.

Bedford Street, Collingwood, Victoria
COLLABORATORS 71
Williams Road, South Yarra, Victoria

HOME 701

3 BEDROOM + 2 BATHROOM + 1 CAR
Artist impression

Village Green

Making up 1 hectare of the 2.5 hectares of open space throughout Burwood Brickworks, the Village Green offers residents and the wider community the opportunity to get outside and take in nature.

The Link

The Link acts as the precinct’s main thoroughfare, connecting the Urban Plaza to an abundance of green space via carefully articulated walking and cycling paths.

Urban Plaza

An outdoor extension of the retail centre offers paved paths winding past grassy mounds and intimate spaces that make the most of the outdoors.

Future-forward retail

A world first retail experience: intelligent architecture, renewable practices and an abundance of amenity and community. The shopping centre houses over 40 retailers, a cinema, childcare centre, medical centre and an abundance of restaurants and cafés. The Burwood Brickworks Shopping Centre has achieved full Living Building Challenge® certification. This means it generates more energy than it consumes, retaining and recycling all of the water it uses, dedicating 20% of its site footprint for food growing; among many other sustainable initiatives.

A rooftop urban farm

acre farm and eatery Brickworks is home to a quail coop, composting and worm farms, as well as an impressive collection of vertical and hydroponic planting structures and garden beds, all alongside a beautiful café and restaurant offering paddockto-plate dining.

This plan is an artist’s impression. It is not to scale and should be used as a guide only. Please refer to the contract for sale for specifications and the inclusions list for details on landscaping, fencing, gates, driveways, turf etc. Purchasers must rely on their own enquiries and the contract for sale.
THE DEFINING HOMES ARE IN A PREMIUM LOCATION, WITH THE VILLAGE GREEN AND THE LINK JUST A MOMENT AWAY.
Home type 1 2+ 3 1 Home type 2 3+ 4 2 Home type 3 2+ 4 2
THE SHOPS AND ENTERTAINMENT, ROOFTOP URBAN FARM AND URBAN PLAZA ARE ALL WITHIN EASY WALKING DISTANCE OF THE DEFINING HOMES.
719 704 702 708 711 716 715 714 709 710 701

GROUND FLOOR FIRST FLOOR

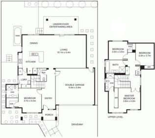
LOT 701

GROUND FLOOR FIRST FLOOR LOT 701

GROUND FLOOR FIRST FLOOR 0 1m 2m 4m The dimensions and depictions of the layout of the house in this floor plan are approximations only, not to scale and may vary to the house when built. All room measurements are measured from internal walls to internal walls and may vary. Purchasers must rely on their own enquiries and the contract for sale.
0 1m 2m 4m
final issue 01 / 02 / 2021 3 4 GARAGE PORCH 26 5 1 9 198 6 m2 AREA SCHEDULE 3B G1 LOT 701 1 2 GROUND FLOOR FIRST FLOOR 67 8 102 4 170 2 m2 1 2 3 4 5 MEALS KIT STORAGE AREA PDR LIVING ENTRY GARAGE LDRY PORCH AC HWS 1 2 3 4 5 6 7 10 11 12 13 14 15 16 OBSCURE WIR BATH ENS BED 1 BED 2 BED 3 2ND LIVING PDR ST ST
3 4 GARAGE PORCH AREA 1 2 GROUND FIRST 1 2 3 4 5 MEALS KIT STORAGE AREA PDR LIVING ENTRY GARAGE LDRY PORCH AC HWS 1 2 3 4 5 6 7 8 9 10 11 12 13 14 15 16 OBSCURE WIR BATH ENS BED 1 BED 2 BED 3 2ND LIVING PDR ST ST
Bedroom 3 Bathroom 2 Powder room 2 Car 1 Lot area 193m Ground Floor 67.8m First Floor 102.4m Total Indoor Area 170.2m2 Garage 26.5m Porch 1.9m Total Indoor and Outdoor Area 198.6m2
HOME 701

HOME 702

3 BEDROOM + 2 BATHROOM + 1 CAR
Artist impression

Village Green

Making up 1 hectare of the 2.5 hectares of open space throughout Burwood Brickworks, the Village Green offers residents and the wider community the opportunity to get outside and take in nature.

The Link

The Link acts as the precinct’s main thoroughfare, connecting the Urban Plaza to an abundance of green space via carefully articulated walking and cycling paths.

Urban Plaza

An outdoor extension of the retail centre offers paved paths winding past grassy mounds and intimate spaces that make the most of the outdoors.

Future-forward retail

A world first retail experience: intelligent architecture, renewable practices and an abundance of amenity and community. The shopping centre houses over 40 retailers, a cinema, childcare centre, medical centre and an abundance of restaurants and cafés. The Burwood Brickworks Shopping Centre has achieved full Living Building Challenge® certification. This means it generates more energy than it consumes, retaining and recycling all of the water it uses, dedicating 20% of its site footprint for food growing; among many other sustainable initiatives.

A rooftop urban farm

acre farm and eatery Brickworks is home to a quail coop, composting and worm farms, as well as an impressive collection of vertical and hydroponic planting structures and garden beds, all alongside a beautiful café and restaurant offering paddockto-plate dining.

This plan is an artist’s impression. It is not to scale and should be used as a guide only. Please refer to the contract for sale for specifications and the inclusions list for details on landscaping, fencing, gates, driveways, turf etc. Purchasers must rely on their own enquiries and the contract for sale.
THE DEFINING HOMES ARE IN A PREMIUM LOCATION, WITH THE VILLAGE GREEN AND THE LINK JUST A MOMENT AWAY.
Home type 1 2+ 3 1 Home type 2 3+ 4 2 Home type 3 2+ 4 2
THE SHOPS AND ENTERTAINMENT, ROOFTOP URBAN FARM AND URBAN PLAZA ARE ALL WITHIN EASY WALKING DISTANCE OF THE DEFINING HOMES.
719 704 701 708 711 716 715 714 709 710 702

GROUND FLOOR FIRST FLOOR

LOT 702

GROUND FLOOR FIRST FLOOR LOT 702

GROUND FLOOR FIRST FLOOR The dimensions and depictions of the layout of the house in this floor plan are approximations only, not to scale and may vary to the house when built. All room measurements are measured from internal walls to internal walls and may vary. Purchasers must rely on their own enquiries and the contract for sale.
0 1m 2m 4m
final issue 01 / 02 / 2021 3 4 GARAGE PORCH 26 5 1 9 196 9 m2 AREA SCHEDULE 3B G1 LOT 702 1 2 GROUND FLOOR FIRST FLOOR 67 1 101 4 168 5 m2 1 2 3 4 5 MEALS KIT STORAGE AREA PDR LIVING ENTRY GARAGE LDRY PORCH AC HWS 1 2 3 4 5 6 7 10 11 12 13 14 15 16 OBSCURE WIR BATH ENS BED 1 BED 2 BED 3 2ND LIVING PDR ST ST
3 4 GARAGE PORCH AREA 1 2 GROUND FIRST 1 2 3 4 5 MEALS KIT STORAGE AREA PDR LIVING ENTRY GARAGE LDRY PORCH AC HWS 1 2 3 4 5 6 7 8 9 10 11 12 13 14 15 16 OBSCURE WIR BATH ENS BED 1 BED 2 BED 3 2ND LIVING PDR ST ST
Bedroom 3 Bathroom 2 Powder room 2 Car 1 Lot area 171m Ground Floor 67.1m First Floor 101.4m Total Indoor Area 168.5m2 Garage 26.5m Porch 1.9m Total Indoor and Outdoor Area 196.9m2 0 1m 2m 4m
HOME 702

HOME 704

3 BEDROOM + 2 BATHROOM + 1 CAR
Artist impression

Village Green

Making up 1 hectare of the 2.5 hectares of open space throughout Burwood Brickworks, the Village Green offers residents and the wider community the opportunity to get outside and take in nature.

The Link

The Link acts as the precinct’s main thoroughfare, connecting the Urban Plaza to an abundance of green space via carefully articulated walking and cycling paths.

Urban Plaza

An outdoor extension of the retail centre offers paved paths winding past grassy mounds and intimate spaces that make the most of the outdoors.

Future-forward retail

A world first retail experience: intelligent architecture, renewable practices and an abundance of amenity and community. The shopping centre houses over 40 retailers, a cinema, childcare centre, medical centre and an abundance of restaurants and cafés. The Burwood Brickworks Shopping Centre has achieved full Living Building Challenge® certification. This means it generates more energy than it consumes, retaining and recycling all of the water it uses, dedicating 20% of its site footprint for food growing; among many other sustainable initiatives.

A rooftop urban farm

acre farm and eatery Brickworks is home to a quail coop, composting and worm farms, as well as an impressive collection of vertical and hydroponic planting structures and garden beds, all alongside a beautiful café and restaurant offering paddockto-plate dining.

This plan is an artist’s impression. It is not to scale and should be used as a guide only. Please refer to the contract for sale for specifications and the inclusions list for details on landscaping, fencing, gates, driveways, turf etc. Purchasers must rely on their own enquiries and the contract for sale.
THE DEFINING HOMES ARE IN A PREMIUM LOCATION, WITH THE VILLAGE GREEN AND THE LINK JUST A MOMENT AWAY.
Home type 1 2+ 3 1 Home type 2 3+ 4 2 Home type 3 2+ 4 2
THE SHOPS AND ENTERTAINMENT, ROOFTOP URBAN FARM AND URBAN PLAZA ARE ALL WITHIN EASY WALKING DISTANCE OF THE DEFINING HOMES.
719 704 701 702 708 711 716 715 714 709 710

GROUND FLOOR

GROUND FLOOR FIRST FLOOR

FIRST FLOOR

LOT 704

GROUND FLOOR FIRST FLOOR The dimensions and depictions of the layout of the house in this floor plan are approximations only, not to scale and may vary to the house when built. All room measurements are measured from internal walls to internal walls and may vary. Purchasers must rely on their own enquiries and the contract for sale. Bedroom 3 Bathroom 2 Powder room 1 Car 1 Lot area 194m2 Ground Floor 71.6m2 First Floor 95.7m2 Total Indoor Area 167.3m2 Garage 25.5m2 Porch 2.9m2 Total Indoor and Outdoor Area 195.7m2
0 1m 2m m LOT
final issue 02 / 03 / 2021 3 4 GARAGE PORCH 25 5 2 9 195 7 m2 AREA SCHEDULE: 3B F1 1 2 GROUND FLOOR FIRST FLOOR 71 6 95 7 167 3 m2 AC ENTRY PDR KIT LDRY ST GARAGE STORAGE AREA PORCH MEALS LIVING RETAINING WALL OBSCURE HWS OBSCURE OBSCURE OBSCURE BATH 2ND LIVING WC BED 3 BED 1 WIR BED 2 ENS ST
HOME 704
704
0
3 4 AREA 1 2 AC ENTRY PDR KIT LDRY ST GARAGE STORAGE AREA PORCH MEALS LIVING RETAINING WALL OBSCURE HWS OBSCURE OBSCURE OBSCURE BATH 2ND LIVING WC BED 3 BED 1 WIR BED 2 ENS ST
0 1m 2m 4m

HOME 708

3 BEDROOM + 2 BATHROOM + 1 CAR
Artist impression — based on home 704

Village Green

Making up 1 hectare of the 2.5 hectares of open space throughout Burwood Brickworks, the Village Green offers residents and the wider community the opportunity to get outside and take in nature.

The Link

The Link acts as the precinct’s main thoroughfare, connecting the Urban Plaza to an abundance of green space via carefully articulated walking and cycling paths.

Urban Plaza

An outdoor extension of the retail centre offers paved paths winding past grassy mounds and intimate spaces that make the most of the outdoors.

Future-forward retail

A world first retail experience: intelligent architecture, renewable practices and an abundance of amenity and community. The shopping centre houses over 40 retailers, a cinema, childcare centre, medical centre and an abundance of restaurants and cafés. The Burwood Brickworks Shopping Centre has achieved full Living Building Challenge® certification. This means it generates more energy than it consumes, retaining and recycling all of the water it uses, dedicating 20% of its site footprint for food growing; among many other sustainable initiatives.

A rooftop urban farm

acre farm and eatery Brickworks is home to a quail coop, composting and worm farms, as well as an impressive collection of vertical and hydroponic planting structures and garden beds, all alongside a beautiful café and restaurant offering paddockto-plate dining.

This plan is an artist’s impression. It is not to scale and should be used as a guide only. Please refer to the contract for sale for specifications and the inclusions list for details on landscaping, fencing, gates, driveways, turf etc. Purchasers must rely on their own enquiries and the contract for sale.
THE DEFINING HOMES ARE IN A PREMIUM LOCATION, WITH THE VILLAGE GREEN AND THE LINK JUST A MOMENT AWAY.
Home type 1 2+ 3 1 Home type 2 3+ 4 2 Home type 3 2+ 4 2
THE SHOPS AND ENTERTAINMENT, ROOFTOP URBAN FARM AND URBAN PLAZA ARE ALL WITHIN EASY WALKING DISTANCE OF THE DEFINING HOMES.
719 704 701 702 711 716 715 714 709 710 708

GROUND FLOOR

GROUND FLOOR

FIRST FLOOR

FIRST FLOOR

GROUND FLOOR FIRST FLOOR The dimensions and depictions of the layout of the house in this floor plan are approximations only, not to scale and may vary to the house when built. All room measurements are measured from internal walls to internal walls and may vary. Purchasers must rely on their own enquiries and the contract for sale.
Bedroom 3 Bathroom 2 Powder room 2 Car 1 Lot area 195m Ground Floor 71.6m First Floor 95.7m Total Indoor Area 167.3m2 Garage 25.5m Porch 2.9m Total Indoor and Outdoor Area 195.7m2 0 1m 2m 4m LOT 708 final issue 02 / 03 / 2021 AC PDR KIT LDRY ST GARAGE STORAGE AREA PORCH ENTRY MEALS LIVING RETAINING WALL OBSCURE HWS OBSCURE OBSCURE OBSCURE BATH 2ND LIVING WC BED 3 BED 1 WIR BED 2 ENS ST 3 4 GARAGE PORCH 25 5 2 9 195 7 m AREA SCHEDULE: 3B F1 1 2 GROUND FLOOR FIRST FLOOR 71 6 95 7 167 3 m
HOME 708
0
AC PDR KIT LDRY ST GARAGE STORAGE AREA PORCH ENTRY MEALS LIVING RETAINING WALL OBSCURE HWS OBSCURE OBSCURE OBSCURE BATH 2ND LIVING WC BED 3 BED 1 WIR BED 2 ENS ST 3 4 AREA 1 2
LOT 708
0 1m 2m 4m

HOME 709

3 BEDROOM + 2 BATHROOM + 1 CAR
Artist impression — based on home 705

Village Green

Making up 1 hectare of the 2.5 hectares of open space throughout Burwood Brickworks, the Village Green offers residents and the wider community the opportunity to get outside and take in nature.

The Link

The Link acts as the precinct’s main thoroughfare, connecting the Urban Plaza to an abundance of green space via carefully articulated walking and cycling paths.

Urban Plaza

An outdoor extension of the retail centre offers paved paths winding past grassy mounds and intimate spaces that make the most of the outdoors.

Future-forward retail

A world first retail experience: intelligent architecture, renewable practices and an abundance of amenity and community. The shopping centre houses over 40 retailers, a cinema, childcare centre, medical centre and an abundance of restaurants and cafés. The Burwood Brickworks Shopping Centre has achieved full Living Building Challenge® certification. This means it generates more energy than it consumes, retaining and recycling all of the water it uses, dedicating 20% of its site footprint for food growing; among many other sustainable initiatives.

A rooftop urban farm

acre farm and eatery Brickworks is home to a quail coop, composting and worm farms, as well as an impressive collection of vertical and hydroponic planting structures and garden beds, all alongside a beautiful café and restaurant offering paddockto-plate dining.

This plan is an artist’s impression. It is not to scale and should be used as a guide only. Please refer to the contract for sale for specifications and the inclusions list for details on landscaping, fencing, gates, driveways, turf etc. Purchasers must rely on their own enquiries and the contract for sale.
THE DEFINING HOMES ARE IN A PREMIUM LOCATION, WITH THE VILLAGE GREEN AND THE LINK JUST A MOMENT AWAY.
Home type 1 2+ 3 1 Home type 2 3+ 4 2 Home type 3 2+ 4 2
THE SHOPS AND ENTERTAINMENT, ROOFTOP URBAN FARM AND URBAN PLAZA ARE ALL WITHIN EASY WALKING DISTANCE OF THE DEFINING HOMES.
719 704 701 702 708 711 716 715 714 710 709

GROUND FLOOR FIRST FLOOR

GROUND FLOOR FIRST FLOOR

LOT 709

GROUND FLOOR FIRST FLOOR The dimensions and depictions of the layout of the house in this floor plan are approximations only, not to scale and may vary to the house when built. All room measurements are measured from internal walls to internal walls and may vary. Purchasers must rely on their own enquiries and the contract for sale.
Bedroom 3 Bathroom 2 Powder room 2 Car 1 Lot area 165m Ground Floor 69.8m First Floor 94.7m Total Indoor Area 164.5m2 Garage 25.5m Porch 2.0m Total Indoor and Outdoor Area 192.0m2 0 1m 2m 4m LOT 709 final issue 02 / 03 / 2021 AC PDR KIT LDRY ST GARAGE STORAGE AREA PORCH ENTRY MEALS LIVING RETAINING WALL HWS OBSCURE WIR BATH ENS BED 1 BED 2 BED 3 2ND LIVING WC ST 3 4 GARAGE PORCH 25 5 2 0 192 0 m AREA SCHEDULE 3B F2 1 2 GROUND FLOOR FIRST FLOOR 69 8 94 7 164 5 m
0
AC PDR KIT LDRY ST GARAGE STORAGE AREA PORCH ENTRY MEALS LIVING RETAINING WALL HWS OBSCURE WIR BATH ENS BED 1 BED 2 BED 3 2ND LIVING WC ST 3 4 AREA 1 2
0 1m 2m 4m
HOME 709

HOME 710

3 BEDROOM + 2 BATHROOM + 1 CAR
Artist impression — based on home 705

Village Green

Making up 1 hectare of the 2.5 hectares of open space throughout Burwood Brickworks, the Village Green offers residents and the wider community the opportunity to get outside and take in nature.

The Link

The Link acts as the precinct’s main thoroughfare, connecting the Urban Plaza to an abundance of green space via carefully articulated walking and cycling paths.

Urban Plaza

An outdoor extension of the retail centre offers paved paths winding past grassy mounds and intimate spaces that make the most of the outdoors.

Future-forward retail

A world first retail experience: intelligent architecture, renewable practices and an abundance of amenity and community. The shopping centre houses over 40 retailers, a cinema, childcare centre, medical centre and an abundance of restaurants and cafés. The Burwood Brickworks Shopping Centre has achieved full Living Building Challenge® certification. This means it generates more energy than it consumes, retaining and recycling all of the water it uses, dedicating 20% of its site footprint for food growing; among many other sustainable initiatives.

A rooftop urban farm

acre farm and eatery Brickworks is home to a quail coop, composting and worm farms, as well as an impressive collection of vertical and hydroponic planting structures and garden beds, all alongside a beautiful café and restaurant offering paddockto-plate dining.

This plan is an artist’s impression. It is not to scale and should be used as a guide only. Please refer to the contract for sale for specifications and the inclusions list for details on landscaping, fencing, gates, driveways, turf etc. Purchasers must rely on their own enquiries and the contract for sale.
THE DEFINING HOMES ARE IN A PREMIUM LOCATION, WITH THE VILLAGE GREEN AND THE LINK JUST A MOMENT AWAY.
Home type 1 2+ 3 1 Home type 2 3+ 4 2 Home type 3 2+ 4 2
THE SHOPS AND ENTERTAINMENT, ROOFTOP URBAN FARM AND URBAN PLAZA ARE ALL WITHIN EASY WALKING DISTANCE OF THE DEFINING HOMES.
719 704 701 702 708 711 716 715 714 709 710

GROUND FLOOR

GROUND FLOOR

FIRST FLOOR

FIRST FLOOR

LOT 710

GROUND FLOOR FIRST FLOOR The dimensions and depictions of the layout of the house in this floor plan are approximations only, not to scale and may vary to the house when built. All room measurements are measured from internal walls to internal walls and may vary. Purchasers must rely on their own enquiries and the contract for sale. HOME
Bedroom 3 Bathroom 2 Powder room 2 Car 1 Lot area 165m Ground Floor 69.8m First Floor 94.7m Total Indoor Area 164.5m2 Garage 25.5m Porch 2.0m Total Indoor and Outdoor Area 192.0m2 0 1m 2m 4m LOT 710 final issue 02 / 03 / 2021 AC PDR KIT LDRY ST GARAGE STORAGE AREA PORCH ENTRY MEALS LIVING RETAINING WALL HWS OBSCURE WIR BATH ENS BED 1 BED 2 BED 3 2ND LIVING WC ST 3 4 GARAGE PORCH 25 5 2 0 192 0 m AREA SCHEDULE 3B F2 1 2 GROUND FLOOR FIRST FLOOR 69 8 94 7 164 5 m
710
0
AC PDR KIT LDRY ST GARAGE STORAGE AREA PORCH ENTRY MEALS LIVING RETAINING WALL HWS OBSCURE WIR BATH ENS BED 1 BED 2 BED 3 2ND LIVING WC ST 3 4 AREA 1 2
0 1m 2m 4m

HOME 711

3 BEDROOM + 2 BATHROOM + 1 CAR
Artist impression — based on home 704

Village Green

Making up 1 hectare of the 2.5 hectares of open space throughout Burwood Brickworks, the Village Green offers residents and the wider community the opportunity to get outside and take in nature.

The Link

The Link acts as the precinct’s main thoroughfare, connecting the Urban Plaza to an abundance of green space via carefully articulated walking and cycling paths.

Urban Plaza

An outdoor extension of the retail centre offers paved paths winding past grassy mounds and intimate spaces that make the most of the outdoors.

Future-forward retail

A world first retail experience: intelligent architecture, renewable practices and an abundance of amenity and community. The shopping centre houses over 40 retailers, a cinema, childcare centre, medical centre and an abundance of restaurants and cafés. The Burwood Brickworks Shopping Centre has achieved full Living Building Challenge® certification. This means it generates more energy than it consumes, retaining and recycling all of the water it uses, dedicating 20% of its site footprint for food growing; among many other sustainable initiatives.

A rooftop urban farm

acre farm and eatery Brickworks is home to a quail coop, composting and worm farms, as well as an impressive collection of vertical and hydroponic planting structures and garden beds, all alongside a beautiful café and restaurant offering paddockto-plate dining.

This plan is an artist’s impression. It is not to scale and should be used as a guide only. Please refer to the contract for sale for specifications and the inclusions list for details on landscaping, fencing, gates, driveways, turf etc. Purchasers must rely on their own enquiries and the contract for sale.
THE DEFINING HOMES ARE IN A PREMIUM LOCATION, WITH THE VILLAGE GREEN AND THE LINK JUST A MOMENT AWAY.
Home type 1 2+ 3 1 Home type 2 3+ 4 2 Home type 3 2+ 4 2
THE SHOPS AND ENTERTAINMENT, ROOFTOP URBAN FARM AND URBAN PLAZA ARE ALL WITHIN EASY WALKING DISTANCE OF THE DEFINING HOMES.
719 704 701 702 708 716 715 714 709 710 711

GROUND FLOOR

GROUND FLOOR

FIRST FLOOR

FIRST FLOOR

LOT 711

GROUND FLOOR FIRST FLOOR The dimensions and depictions of the layout of the house in this floor plan are approximations only, not to scale and may vary to the house when built. All room measurements are measured from internal walls to internal walls and may vary. Purchasers must rely on their own enquiries and the contract for sale. HOME
Bedroom 3 Bathroom 2 Powder room 2 Car 1 Lot area 194m Ground Floor 71.6m First Floor 95.7m Total Indoor Area 167.3m2 Garage 25.5m Porch 2.9m Total Indoor and Outdoor Area 195.7m2 0 1m 2m 4m LOT 711 final issue 02 / 03 / 2021 AC ENTRY PDR KIT LDRY ST GARAGE STORAGE AREA PORCH MEALS LIVING RETAINING WALL OBSCURE HWS OBSCURE OBSCURE OBSCURE BATH 2ND LIVING WC BED 3 BED 1 WIR BED 2 ENS ST 3 4 GARAGE PORCH 25 5 2 9 195 7 m2 AREA SCHEDULE: 3B F1 1 2 GROUND FLOOR FIRST FLOOR 71 6 95 7 167 3 m2
711
0
AC ENTRY PDR KIT LDRY ST GARAGE STORAGE AREA PORCH MEALS LIVING RETAINING WALL OBSCURE HWS OBSCURE OBSCURE OBSCURE BATH 2ND LIVING WC BED 3 BED 1 WIR BED 2 ENS ST 3 4 AREA 1 2
0 1m 2m 4m

HOME 714

4 BEDROOM + 3 BATHROOM + 2 CAR
Artist impression — based on home 602

Village Green

Making up 1 hectare of the 2.5 hectares of open space throughout Burwood Brickworks, the Village Green offers residents and the wider community the opportunity to get outside and take in nature.

The Link

The Link acts as the precinct’s main thoroughfare, connecting the Urban Plaza to an abundance of green space via carefully articulated walking and cycling paths.

Urban Plaza

An outdoor extension of the retail centre offers paved paths winding past grassy mounds and intimate spaces that make the most of the outdoors.

Future-forward retail

A world first retail experience: intelligent architecture, renewable practices and an abundance of amenity and community. The shopping centre houses over 40 retailers, a cinema, childcare centre, medical centre and an abundance of restaurants and cafés. The Burwood Brickworks Shopping Centre has achieved full Living Building Challenge® certification. This means it generates more energy than it consumes, retaining and recycling all of the water it uses, dedicating 20% of its site footprint for food growing; among many other sustainable initiatives.

A rooftop urban farm

acre farm and eatery Brickworks is home to a quail coop, composting and worm farms, as well as an impressive collection of vertical and hydroponic planting structures and garden beds, all alongside a beautiful café and restaurant offering paddockto-plate dining.

This plan is an artist’s impression. It is not to scale and should be used as a guide only. Please refer to the contract for sale for specifications and the inclusions list for details on landscaping, fencing, gates, driveways, turf etc. Purchasers must rely on their own enquiries and the contract for sale.
THE DEFINING HOMES ARE IN A PREMIUM LOCATION, WITH THE VILLAGE GREEN AND THE LINK JUST A MOMENT AWAY.
Home type 1 2+ 3 1 Home type 2 3+ 4 2 Home type 3 2+ 4 2
THE SHOPS AND ENTERTAINMENT, ROOFTOP URBAN FARM AND URBAN PLAZA ARE ALL WITHIN EASY WALKING DISTANCE OF THE DEFINING HOMES.
719 704 701 702 708 711 716 715 709 710 714
GROUND FLOOR FIRST FLOOR The dimensions and depictions of the layout of the house in this floor plan are approximations only, not to scale and may vary to the house when built. All room measurements are measured from internal walls to internal walls and may vary. Purchasers must rely on their own enquiries and the contract for sale. HOME 714 0 1 m 2 m LOT 714 final 02 / 03 STORAGE AREA BED 4 ENS ST GARAGE ENTRY PORCH AC HWS RETAINING WALL LIVING BED 3 WIR BED 2 BED 1 ENS L DRY PDR BATH KIT MEALS BALCONY OBSCURE OBSCURE OBSCURE OBSCURE COVERED DECK ST 4 5 6 7 PORCH COVERED DECK BALCONY GARAGE AREA SCHEDULE : 1 2 GROUND FLOOR FIRST FLOOR GROUND FLOOR FIRST FLOOR 0 1 m 2 m LOT 714 final 02 / 03 STORAGE AREA BED 4 ENS ST GARAGE ENTRY PORCH AC HWS RETAINING WALL LIVING BED 3 WIR BED 2 BED 1 ENS L DRY PDR BATH KIT MEALS BALCONY OBSCURE OBSCURE OBSCURE OBSCURE COVERED DECK ST 4 5 6 7 PORCH COVERED DECK BALCONY GARAGE AREA SCHEDULE : 1 2 GROUND FLOOR FIRST FLOOR GROUND FLOOR FIRST FLOOR Bedroom 4 Bathroom 3 Powder room 1 Car 2 Lot area 295m Ground Floor 50.5m First Floor 151.0m Total Indoor Area 201.5m2 Garage 39.9m Porch 2.8m Balcony 13.0m Covered Deck 15.8m Total Indoor and Outdoor Area 273.0m2 0 1m 2m 4m

HOME 715

4 BEDROOM + 3 BATHROOM + 2 CAR
Artist impression

Village Green

Making up 1 hectare of the 2.5 hectares of open space throughout Burwood Brickworks, the Village Green offers residents and the wider community the opportunity to get outside and take in nature.

The Link

The Link acts as the precinct’s main thoroughfare, connecting the Urban Plaza to an abundance of green space via carefully articulated walking and cycling paths.

Urban Plaza

An outdoor extension of the retail centre offers paved paths winding past grassy mounds and intimate spaces that make the most of the outdoors.

Future-forward retail

A world first retail experience: intelligent architecture, renewable practices and an abundance of amenity and community. The shopping centre houses over 40 retailers, a cinema, childcare centre, medical centre and an abundance of restaurants and cafés. The Burwood Brickworks Shopping Centre has achieved full Living Building Challenge® certification. This means it generates more energy than it consumes, retaining and recycling all of the water it uses, dedicating 20% of its site footprint for food growing; among many other sustainable initiatives.

A rooftop urban farm

acre farm and eatery Brickworks is home to a quail coop, composting and worm farms, as well as an impressive collection of vertical and hydroponic planting structures and garden beds, all alongside a beautiful café and restaurant offering paddockto-plate dining.

This plan is an artist’s impression. It is not to scale and should be used as a guide only. Please refer to the contract for sale for specifications and the inclusions list for details on landscaping, fencing, gates, driveways, turf etc. Purchasers must rely on their own enquiries and the contract for sale.
THE DEFINING HOMES ARE IN A PREMIUM LOCATION, WITH THE VILLAGE GREEN AND THE LINK JUST A MOMENT AWAY.
Home type 1 2+ 3 1 Home type 2 3+ 4 2 Home type 3 2+ 4 2
THE SHOPS AND ENTERTAINMENT, ROOFTOP URBAN FARM AND URBAN PLAZA ARE ALL WITHIN EASY WALKING DISTANCE OF THE DEFINING HOMES.
719 704 701 702 708 711 716 714 709 710 715
GROUND FLOOR FIRST FLOOR The dimensions and depictions of the layout of the house in this floor plan are approximations only, not to scale and may vary to the house when built. All room measurements are measured from internal walls to internal walls and may vary. Purchasers must rely on their own enquiries and the contract for sale. HOME 715 0 1 m 2 m LOT 715 final 01 / 02 STORAGE AREA BED 4 ENS ST GARAGE ENTRY PORCH AC HWS LIVING BED 3 WIR BED 2 BED 1 ENS L DRY PDR BATH KIT MEALS BALCONY OBSCURE OBSCURE OBSCURE OBSCURE COVERED DECK ST 4 5 6 7 PORCH COVERED DECK BALCONY GARAGE AREA SCHEDULE : 1 2 GROUND FLOOR FIRST FLOOR GROUND FLOOR FIRST FLOOR 0 1 m 2 m LOT 715 final 01 / 02 STORAGE AREA BED 4 ENS ST GARAGE ENTRY PORCH AC HWS LIVING BED 3 WIR BED 2 BED 1 ENS L DRY PDR BATH KIT MEALS BALCONY OBSCURE OBSCURE OBSCURE OBSCURE COVERED DECK ST 4 5 6 7 PORCH COVERED DECK BALCONY GARAGE AREA SCHEDULE : 1 2 GROUND FLOOR FIRST FLOOR GROUND FLOOR FIRST FLOOR Bedroom 4 Bathroom 3 Powder room 1 Car 2 Lot area 295m Ground Floor 50.5m First Floor 151.0m Total Indoor Area 201.5m2 Garage 39.9m Porch 2.8m Balcony 13.0m Covered Deck 15.8m Total Indoor and Outdoor Area 273.0m2 0 1m 2m 4m

HOME 716

4 BEDROOM + 3 BATHROOM + 2 CAR
Artist impression

Village Green

Making up 1 hectare of the 2.5 hectares of open space throughout Burwood Brickworks, the Village Green offers residents and the wider community the opportunity to get outside and take in nature.

The Link

The Link acts as the precinct’s main thoroughfare, connecting the Urban Plaza to an abundance of green space via carefully articulated walking and cycling paths.

Urban Plaza

An outdoor extension of the retail centre offers paved paths winding past grassy mounds and intimate spaces that make the most of the outdoors.

Future-forward retail

A world first retail experience: intelligent architecture, renewable practices and an abundance of amenity and community. The shopping centre houses over 40 retailers, a cinema, childcare centre, medical centre and an abundance of restaurants and cafés. The Burwood Brickworks Shopping Centre has achieved full Living Building Challenge® certification. This means it generates more energy than it consumes, retaining and recycling all of the water it uses, dedicating 20% of its site footprint for food growing; among many other sustainable initiatives.

A rooftop urban farm

acre farm and eatery Brickworks is home to a quail coop, composting and worm farms, as well as an impressive collection of vertical and hydroponic planting structures and garden beds, all alongside a beautiful café and restaurant offering paddockto-plate dining.

This plan is an artist’s impression. It is not to scale and should be used as a guide only. Please refer to the contract for sale for specifications and the inclusions list for details on landscaping, fencing, gates, driveways, turf etc. Purchasers must rely on their own enquiries and the contract for sale.
THE DEFINING HOMES ARE IN A PREMIUM LOCATION, WITH THE VILLAGE GREEN AND THE LINK JUST A MOMENT AWAY.
Home type 1 2+ 3 1 Home type 2 3+ 4 2 Home type 3 2+ 4 2
THE SHOPS AND ENTERTAINMENT, ROOFTOP URBAN FARM AND URBAN PLAZA ARE ALL WITHIN EASY WALKING DISTANCE OF THE DEFINING HOMES.
719 704 701 702 708 711 715 714 709 710 716
GROUND FLOOR FIRST FLOOR The dimensions and depictions of the layout of the house in this floor plan are approximations only, not to scale and may vary to the house when built. All room measurements are measured from internal walls to internal walls and may vary. Purchasers must rely on their own enquiries and the contract for sale. HOME 716 0 1 m 2 m LOT 716 final 01 / 02 STORAGE AREA BED 4 BATH ST GARAGE ENTRY 2 ND LIVING PORCH AC HWS OBSCURE 1 3 4 5 6 8 10 11 12 13 15 16 MEALS BALCONY WIR L DRY BATH ENS BED 1 BED 2 BED 3 LIVING KIT PDR COVERED DECK OBSCURE OBSCURE OBSCURE OBSCURE ST 4 5 6 7 PORCH BALCONY COVERED DECK GARAGE AREA SCHEDULE : 1 2 GROUND FLOOR FIRST FLOOR GROUND FLOOR FIRST FLOOR 0 1 m 2 m LOT 716 final 01 / 02 STORAGE AREA BED 4 BATH ST GARAGE ENTRY 2 ND LIVING PORCH AC HWS OBSCURE 1 2 3 4 6 7 8 10 11 12 13 14 15 MEALS BALCONY WIR L DRY BATH ENS BED 1 BED 2 BED 3 LIVING KIT PDR COVERED DECK OBSCURE OBSCURE OBSCURE OBSCURE ST 4 5 6 7 PORCH BALCONY COVERED DECK GARAGE AREA SCHEDULE : 1 2 GROUND FLOOR FIRST FLOOR GROUND FLOOR FIRST FLOOR Bedroom 4 Bathroom 3 Powder room 1 Car 1 Lot area 339m Ground Floor 66.4m First Floor 158.7m Total Indoor Area 225.1m2 Garage 28.6m Porch 1.8m Balcony 11.0m Covered Deck 14.9m Total Indoor and Outdoor Area 281.4m2 0 1m 2m 4m

HOME 719

4 BEDROOM + 2 BATHROOM + 2 CAR
Artist impression — based on home 623 (mirrored)

Village Green

Making up 1 hectare of the 2.5 hectares of open space throughout Burwood Brickworks, the Village Green offers residents and the wider community the opportunity to get outside and take in nature.

The Link

The Link acts as the precinct’s main thoroughfare, connecting the Urban Plaza to an abundance of green space via carefully articulated walking and cycling paths.

Urban Plaza

An outdoor extension of the retail centre offers paved paths winding past grassy mounds and intimate spaces that make the most of the outdoors.

Future-forward retail

A world first retail experience: intelligent architecture, renewable practices and an abundance of amenity and community. The shopping centre houses over 40 retailers, a cinema, childcare centre, medical centre and an abundance of restaurants and cafés. The Burwood Brickworks Shopping Centre has achieved full Living Building Challenge® certification. This means it generates more energy than it consumes, retaining and recycling all of the water it uses, dedicating 20% of its site footprint for food growing; among many other sustainable initiatives.

A rooftop urban farm

acre farm and eatery Brickworks is home to a quail coop, composting and worm farms, as well as an impressive collection of vertical and hydroponic planting structures and garden beds, all alongside a beautiful café and restaurant offering paddockto-plate dining.

This plan is an artist’s impression. It is not to scale and should be used as a guide only. Please refer to the contract for sale for specifications and the inclusions list for details on landscaping, fencing, gates, driveways, turf etc. Purchasers must rely on their own enquiries and the contract for sale.
THE DEFINING HOMES ARE IN A PREMIUM LOCATION, WITH THE VILLAGE GREEN AND THE LINK JUST A MOMENT AWAY.
Home type 1 2+ 3 1 Home type 2 3+ 4 2 Home type 3 2+ 4 2
THE SHOPS AND ENTERTAINMENT, ROOFTOP URBAN FARM AND URBAN PLAZA ARE ALL WITHIN EASY WALKING DISTANCE OF THE DEFINING HOMES.
704 719 701 702 708 711 716 715 714 709 710
GROUND FLOOR FIRST FLOOR The dimensions and depictions of the layout of the house in this floor plan are approximations only, not to scale and may vary to the house when built. All room measurements are measured from internal walls to internal walls and may vary. Purchasers must rely on their own enquiries and the contract for sale. HOME
Bedroom 4 Bathroom 2 Powder room 2 Car 2 Lot area 252m Ground Floor 82.6m First Floor 116.0m Total Indoor Area 198.6m2 Garage 38.3m Porch 2.6m Total Indoor and Outdoor Area 239.5m2 LOT
MEALS LIVING ENTRY PDR WIP KIT LDRY ST GARAGE STORAGE AREA PORCH STEP STEP OBSCURE HWS AC 10 11 12 13 14 15 16 OBSCURE OBSCURE OBSCURE BATH WC BED 3 BED 4 BED 2 BED 1 WIR ENS 2 ND LIVING OBSCURE OBSCURE ST 3 4 AREA 1 2
LOT
MEALS LIVING ENTRY PDR WIP KIT LDRY ST GARAGE STORAGE AREA PORCH STEP STEP OBSCURE HWS AC 1 2 3 4 5 6 7 8 9 10 11 12 13 14 15 16 OBSCURE OBSCURE OBSCURE BATH WC BED 3 BED 4 BED 2 BED 1 WIR ENS 2 ND LIVING OBSCURE OBSCURE ST 3 4 AREA 1 2
0 1m 2m 4m
719
719
GROUND FLOOR FIRST FLOOR
719
GROUND FLOOR FIRST FLOOR

HOME 703

3 BEDROOM + 2 BATHROOM + 1 CAR
Artist impression

Village Green

Making up 1 hectare of the 2.5 hectares of open space throughout Burwood Brickworks, the Village Green offers residents and the wider community the opportunity to get outside and take in nature.

The Link

The Link acts as the precinct’s main thoroughfare, connecting the Urban Plaza to an abundance of green space via carefully articulated walking and cycling paths.

Urban Plaza

An outdoor extension of the retail centre offers paved paths winding past grassy mounds and intimate spaces that make the most of the outdoors.

Future-forward retail

Designed to be the world’s most sustainable shopping centre with over 40 retailers as well as a full line Woolworths, all within walking distance from home. Amenities include a cinema, childcare centre and an abundance of restaurants and cafés.

A rooftop urban farm

acre farm and eatery Brickworks is home to a quail coop, composting and worm farms, as well as an impressive collection of vertical and hydroponic planting structures and garden beds, all alongside a beautiful café and restaurant offering paddockto-plate dining.

THE DEFINING HOMES ARE IN A PREMIUM LOCATION, WITH THE VILLAGE GREEN AND THE LINK JUST A MOMENT AWAY.
718 704 705 706 707 720 717 713 712 703
THE SHOPS AND ENTERTAINMENT, ROOFTOP URBAN FARM AND URBAN PLAZA ARE ALL WITHIN EASY WALKING DISTANCE OF THE DEFINING HOMES.
Home type 1 2+ 3 1 Home type 2 3+ 4 2 Home type 3 2+ 4 2 Home type 4 2+ 4 1 Home type 5 3+ 5 2
This plan is an artist’s impression. It is not to scale and should be used as a guide only. Please refer to the contract for sale for specifications and the inclusions list for details on landscaping, fencing, gates, driveways, turf etc. Purchasers must rely on their own enquiries and the contract for sale.

HOME 703

GROUND FLOOR

GROUND FLOOR

FIRST FLOOR

LOT 703

FIRST FLOOR LOT 703

0 1m 2m 4m
final issue 01 / 02 / 2021 1 2 3 4 5 MEALS KIT STORAGE AREA PDR LIVING ENTRY GARAGE LDRY PORCH AC HWS 1 2 3 4 5 6 7 8 9 10 11 12 13 14 15 16 OBSCURE OBSCURE OBSCURE WIR BATH ENS BED 1 BED 2 BED 3 2ND LIVING PDR ST ST 3 4 GARAGE PORCH 26 5 1 9 198 6 m2 AREA SCHEDULE: 3B G1 LOT 703 1 2 GROUND FLOOR FIRST FLOOR 67 8 102 4 170 2 m2
1 2 3 4 5 MEALS KIT STORAGE AREA PDR LIVING ENTRY GARAGE LDRY PORCH AC HWS 1 2 3 4 5 6 7 8 9 10 11 12 13 14 15 16 OBSCURE OBSCURE OBSCURE WIR BATH ENS BED 1 BED 2 BED 3 2ND LIVING PDR ST ST 3 4 GARAGE PORCH AREA 1 2 GROUND FIRST
GROUND FLOOR FIRST FLOOR Bedroom 3 Bathroom 2 Powder room 2 Car 1 Lot area 193m Ground Floor 67.8m First Floor 102.4m Total Indoor Area 170.2m2 Garage 26.5m Porch 1.9m Total Indoor and Outdoor Area 198.6m2 0 1m 2m 4m The dimensions and depictions of the layout of the house in this floor plan are approximations only, not to scale and may vary to the house when built. All room measurements are measured from internal walls to internal walls and may vary. Purchasers must rely on their own enquiries and the contract for sale.

HOME 704

3 BEDROOM + 2 BATHROOM + 1 CAR
Artist impression

Village Green

Making up 1 hectare of the 2.5 hectares of open space throughout Burwood Brickworks, the Village Green offers residents and the wider community the opportunity to get outside and take in nature.

The Link

The Link acts as the precinct’s main thoroughfare, connecting the Urban Plaza to an abundance of green space via carefully articulated walking and cycling paths.

Urban Plaza

An outdoor extension of the retail centre offers paved paths winding past grassy mounds and intimate spaces that make the most of the outdoors.

Future-forward retail

Designed to be the world’s most sustainable shopping centre with over 40 retailers as well as a full line Woolworths, all within walking distance from home. Amenities include a cinema, childcare centre and an abundance of restaurants and cafés.

A rooftop urban farm

acre farm and eatery Brickworks is home to a quail coop, composting and worm farms, as well as an impressive collection of vertical and hydroponic planting structures and garden beds, all alongside a beautiful café and restaurant offering paddockto-plate dining.

THE DEFINING HOMES ARE IN A PREMIUM LOCATION, WITH THE VILLAGE GREEN AND THE LINK JUST A MOMENT AWAY.
704 703 Home type 1 2+ 3 1 Home type 2 3+ 4 2 Home type 3 2+ 4 2 Home type 4 2+ 4 1 Home type 5 3+ 5 2 718 705 706 707 720 717 713 712
THE SHOPS AND ENTERTAINMENT, ROOFTOP URBAN FARM AND URBAN PLAZA ARE ALL WITHIN EASY WALKING DISTANCE OF THE DEFINING HOMES.
This plan is an artist’s impression. It is not to scale and should be used as a guide only. Please refer to the contract for sale for specifications and the inclusions list for details on landscaping, fencing, gates, driveways, turf etc. Purchasers must rely on their own enquiries and the contract for sale.
GROUND FLOOR FIRST FLOOR Bedroom 3 Bathroom 2 Powder room 1 Car 1 Lot area 194m Ground Floor 71.6m First Floor 95.7m Total Indoor Area 167.3m2 Garage 25.5m Porch 2.9m Total Indoor and Outdoor Area 195.7m2 0 1m 2m 4m 0 1m 2m m LOT 704 final issue 02 / 03 / 2021 3 4 GARAGE PORCH 25 5 2 9 195 7 m2 AREA SCHEDULE: 3B F1 1 2 GROUND FLOOR FIRST FLOOR 71 6 95 7 167 3 m2 AC ENTRY PDR KIT LDRY ST GARAGE STORAGE AREA PORCH MEALS LIVING RETAINING WALL OBSCURE HWS OBSCURE OBSCURE OBSCURE BATH 2ND LIVING WC BED 3 BED 1 WIR BED 2 ENS ST GROUND FLOOR FIRST FLOOR 0 LOT 704 3 4 AREA 1 2 AC ENTRY PDR KIT LDRY ST GARAGE STORAGE AREA PORCH MEALS LIVING RETAINING WALL OBSCURE HWS OBSCURE OBSCURE OBSCURE BATH 2ND LIVING WC BED 3 BED 1 WIR BED 2 ENS ST GROUND FLOOR FIRST FLOOR The dimensions and depictions of the layout of the house in this floor plan are approximations only, not to scale and may vary to the house when built. All room measurements are measured from internal walls to internal walls and may vary. Purchasers must rely on their own enquiries and the contract for sale.
HOME 704

HOME 705

3 BEDROOM + 2 BATHROOM + 1 CAR
Artist impression

Village Green

Making up 1 hectare of the 2.5 hectares of open space throughout Burwood Brickworks, the Village Green offers residents and the wider community the opportunity to get outside and take in nature.

The Link

The Link acts as the precinct’s main thoroughfare, connecting the Urban Plaza to an abundance of green space via carefully articulated walking and cycling paths.

Urban Plaza

An outdoor extension of the retail centre offers paved paths winding past grassy mounds and intimate spaces that make the most of the outdoors.

Future-forward retail

Designed to be the world’s most sustainable shopping centre with over 40 retailers as well as a full line Woolworths, all within walking distance from home. Amenities include a cinema, childcare centre and an abundance of restaurants and cafés.

A rooftop urban farm

acre farm and eatery Brickworks is home to a quail coop, composting and worm farms, as well as an impressive collection of vertical and hydroponic planting structures and garden beds, all alongside a beautiful café and restaurant offering paddockto-plate dining.

THE DEFINING HOMES ARE IN A PREMIUM LOCATION, WITH THE VILLAGE GREEN AND THE LINK JUST A MOMENT AWAY.
705 703 Home type 1 2+ 3 1 Home type 2 3+ 4 2 Home type 3 2+ 4 2 Home type 4 2+ 4 1 Home type 5 3+ 5 2 718 704 706 707 720 717 713 712
THE SHOPS AND ENTERTAINMENT, ROOFTOP URBAN FARM AND URBAN PLAZA ARE ALL WITHIN EASY WALKING DISTANCE OF THE DEFINING HOMES.
This plan is an artist’s impression. It is not to scale and should be used as a guide only. Please refer to the contract for sale for specifications and the inclusions list for details on landscaping, fencing, gates, driveways, turf etc. Purchasers must rely on their own enquiries and the contract for sale.
GROUND FLOOR FIRST FLOOR Bedroom 3 Bathroom 2 Powder room 2 Car 1 Lot area 165m Ground Floor 69.8m First Floor 94.7m Total Indoor Area 164.5m2 Garage 25.5m Porch 2.0m Total Indoor and Outdoor Area 192.0m2 0 1m 2m 4m LOT 705 final issue 02 / 03 / 2021 3 4 GARAGE PORCH 25 5 2 0 192 0 m2 AREA SCHEDULE 3B F2 1 2 GROUND FLOOR FIRST FLOOR 69 8 94 7 164 5 m2 AC PDR KIT LDRY ST GARAGE STORAGE AREA PORCH ENTRY MEALS LIVING RETAINING WALL HWS OBSCURE WIR BATH ENS BED 1 BED 2 BED 3 2ND LIVING WC ST GROUND FLOOR FIRST FLOOR 0 LOT 705 3 4 AREA 1 2 AC PDR KIT LDRY ST GARAGE STORAGE AREA PORCH ENTRY MEALS LIVING RETAINING WALL HWS OBSCURE WIR BATH ENS BED 1 BED 2 BED 3 2ND LIVING WC ST GROUND FLOOR FIRST FLOOR 0 1m 2m 4m The dimensions and depictions of the layout of the house in this floor plan are approximations only, not to scale and may vary to the house when built. All room measurements are measured from internal walls to internal walls and may vary. Purchasers must rely on their own enquiries and the contract for sale.
HOME 705

HOME 706

3 BEDROOM + 2 BATHROOM + 1 CAR
Artist impression — based on home 705

Village Green

Making up 1 hectare of the 2.5 hectares of open space throughout Burwood Brickworks, the Village Green offers residents and the wider community the opportunity to get outside and take in nature.

The Link

The Link acts as the precinct’s main thoroughfare, connecting the Urban Plaza to an abundance of green space via carefully articulated walking and cycling paths.

Urban Plaza

An outdoor extension of the retail centre offers paved paths winding past grassy mounds and intimate spaces that make the most of the outdoors.

Future-forward retail

Designed to be the world’s most sustainable shopping centre with over 40 retailers as well as a full line Woolworths, all within walking distance from home. Amenities include a cinema, childcare centre and an abundance of restaurants and cafés.

A rooftop urban farm

acre farm and eatery Brickworks is home to a quail coop, composting and worm farms, as well as an impressive collection of vertical and hydroponic planting structures and garden beds, all alongside a beautiful café and restaurant offering paddockto-plate dining.

THE DEFINING HOMES ARE IN A PREMIUM LOCATION, WITH THE VILLAGE GREEN AND THE LINK JUST A MOMENT AWAY.
706 703 Home type 1 2+ 3 1 Home type 2 3+ 4 2 Home type 3 2+ 4 2 Home type 4 2+ 4 1 Home type 5 3+ 5 2 718 704 705 707 720 717 713 712
THE SHOPS AND ENTERTAINMENT, ROOFTOP URBAN FARM AND URBAN PLAZA ARE ALL WITHIN EASY WALKING DISTANCE OF THE DEFINING HOMES.
This plan is an artist’s impression. It is not to scale and should be used as a guide only. Please refer to the contract for sale for specifications and the inclusions list for details on landscaping, fencing, gates, driveways, turf etc. Purchasers must rely on their own enquiries and the contract for sale.
GROUND FLOOR FIRST FLOOR Bedroom 3 Bathroom 2 Powder room 1 Car 1 Lot area 165m Ground Floor 69.8m First Floor 94.7m Total Indoor Area 164.5m2 Garage 25.5m Porch 2.0m Total Indoor and Outdoor Area 192.0m2 0 1m 2m 4m LOT 706 final issue 02 / 03 / 2021 AC PDR KIT LDRY ST GARAGE STORAGE AREA PORCH ENTRY MEALS LIVING RETAINING WALL HWS OBSCURE WIR BATH ENS BED 1 BED 2 BED 3 2ND LIVING WC ST 3 4 GARAGE PORCH 25 5 2 0 192 0 m2 AREA SCHEDULE 3B F2 1 2 GROUND FLOOR FIRST FLOOR 69 8 94 7 164 5 m2 GROUND FLOOR FIRST FLOOR 0 LOT 706 AC PDR KIT LDRY ST GARAGE STORAGE AREA PORCH ENTRY MEALS LIVING RETAINING WALL HWS OBSCURE WIR BATH ENS BED 1 BED 2 BED 3 2ND LIVING WC ST 3 4 AREA 1 2 GROUND FLOOR FIRST FLOOR 0 1m 2m 4m The dimensions and depictions of the layout of the house in this floor plan are approximations only, not to scale and may vary to the house when built. All room measurements are measured from internal walls to internal walls and may vary. Purchasers must rely on their own enquiries and the contract for sale.
HOME 706

HOME 707

3 BEDROOM + 2 BATHROOM + 1 CAR
Artist impression — based on home 704

Village Green

Making up 1 hectare of the 2.5 hectares of open space throughout Burwood Brickworks, the Village Green offers residents and the wider community the opportunity to get outside and take in nature.

The Link

The Link acts as the precinct’s main thoroughfare, connecting the Urban Plaza to an abundance of green space via carefully articulated walking and cycling paths.

Urban Plaza

An outdoor extension of the retail centre offers paved paths winding past grassy mounds and intimate spaces that make the most of the outdoors.

Future-forward retail

Designed to be the world’s most sustainable shopping centre with over 40 retailers as well as a full line Woolworths, all within walking distance from home. Amenities include a cinema, childcare centre and an abundance of restaurants and cafés.

A rooftop urban farm

acre farm and eatery Brickworks is home to a quail coop, composting and worm farms, as well as an impressive collection of vertical and hydroponic planting structures and garden beds, all alongside a beautiful café and restaurant offering paddockto-plate dining.

THE DEFINING HOMES ARE IN A PREMIUM LOCATION, WITH THE VILLAGE GREEN AND THE LINK JUST A MOMENT AWAY.
707 703 Home type 1 2+ 3 1 Home type 2 3+ 4 2 Home type 3 2+ 4 2 Home type 4 2+ 4 1 Home type 5 3+ 5 2 718 704 705 706 720 717 713 712
THE SHOPS AND ENTERTAINMENT, ROOFTOP URBAN FARM AND URBAN PLAZA ARE ALL WITHIN EASY WALKING DISTANCE OF THE DEFINING HOMES.
This plan is an artist’s impression. It is not to scale and should be used as a guide only. Please refer to the contract for sale for specifications and the inclusions list for details on landscaping, fencing, gates, driveways, turf etc. Purchasers must rely on their own enquiries and the contract for sale.
GROUND FLOOR FIRST FLOOR Bedroom 3 Bathroom 2 Powder room 1 Car 1 Lot area 194m Ground Floor 71.6m First Floor 95.7m Total Indoor Area 167.3m2 Garage 25.5m Porch 2.9m Total Indoor and Outdoor Area 195.7m2 0 1m 2m 4m LOT 707 final issue 02 / 03 / 2021 AC PDR KIT LDRY ST GARAGE STORAGE AREA PORCH ENTRY MEALS LIVING RETAINING WALL OBSCURE HWS OBSCURE OBSCURE OBSCURE WIR BATH ENS BED 1 BED 2 BED 3 2ND LIVING WC ST 3 4 GARAGE PORCH 25 5 2 9 195 7 m AREA SCHEDULE: 3B F1 1 2 GROUND FLOOR FIRST FLOOR 71 6 95 7 167 3 m GROUND FLOOR FIRST FLOOR 0 LOT 707 AC PDR KIT LDRY ST GARAGE STORAGE AREA PORCH ENTRY MEALS LIVING RETAINING WALL OBSCURE HWS OBSCURE OBSCURE OBSCURE WIR BATH ENS BED 1 BED 2 BED 3 2ND LIVING WC ST 3 4 AREA 1 2 GROUND FLOOR FIRST FLOOR 0 1m 2m 4m The dimensions and depictions of the layout of the house in this floor plan are approximations only, not to scale and may vary to the house when built. All room measurements are measured from internal walls to internal walls and may vary. Purchasers must rely on their own enquiries and the contract for sale.
HOME 707

HOME 712

4 BEDROOM + 3 BATHROOM + 2 CAR
Artist impression — based on home 603

Village Green

Making up 1 hectare of the 2.5 hectares of open space throughout Burwood Brickworks, the Village Green offers residents and the wider community the opportunity to get outside and take in nature.

The Link

The Link acts as the precinct’s main thoroughfare, connecting the Urban Plaza to an abundance of green space via carefully articulated walking and cycling paths.

Urban Plaza

An outdoor extension of the retail centre offers paved paths winding past grassy mounds and intimate spaces that make the most of the outdoors.

Future-forward retail

Designed to be the world’s most sustainable shopping centre with over 40 retailers as well as a full line Woolworths, all within walking distance from home. Amenities include a cinema, childcare centre and an abundance of restaurants and cafés.

A rooftop urban farm

acre farm and eatery Brickworks is home to a quail coop, composting and worm farms, as well as an impressive collection of vertical and hydroponic planting structures and garden beds, all alongside a beautiful café and restaurant offering paddockto-plate dining.

THE DEFINING HOMES ARE IN A PREMIUM LOCATION, WITH THE VILLAGE GREEN AND THE LINK JUST A MOMENT AWAY.
712 703 Home type 1 2+ 3 1 Home type 2 3+ 4 2 Home type 3 2+ 4 2 Home type 4 2+ 4 1 Home type 5 3+ 5 2 718 704 705 706 707 720 717 713
THE SHOPS AND ENTERTAINMENT, ROOFTOP URBAN FARM AND URBAN PLAZA ARE ALL WITHIN EASY WALKING DISTANCE OF THE DEFINING HOMES.
This plan is an artist’s impression. It is not to scale and should be used as a guide only. Please refer to the contract for sale for specifications and the inclusions list for details on landscaping, fencing, gates, driveways, turf etc. Purchasers must rely on their own enquiries and the contract for sale.
GROUND FLOOR FIRST FLOOR Bedroom 4 Bathroom 3 Powder room 1 Car 2 Lot area 295m Ground Floor 50.5m First Floor 151.2m Total Indoor Area 201.7m2 Garage 39.9m Porch 2.8m Balcony 13.2m Covered Deck 15.8m Total Indoor and Outdoor Area 273.4m2 0 1m 2m 4m 0 1 m 2 m LOT 712 final 02 / 03 STORAGE AREA BED 4 ENS ST GARAGE ENTRY AC PORCH HWS RETAINING WALL LIVING BED 3 WIR BED 2 BED 1 ENS L DRY PDR BATH KIT MEALS BALCONY OBSCURE OBSCURE OBSCURE OBSCURE COVERED DECK ST 3 4 5 6 PORCH BALCONY COVERED DECK GARAGE AREA SCHEDULE : 1 2 GROUND FLOOR FIRST FLOOR GROUND FLOOR FIRST FLOOR 0 1 m 2 m LOT 712 final 02 / 03 STORAGE AREA BED 4 ENS ST GARAGE ENTRY AC PORCH HWS RETAINING WALL LIVING BED 3 WIR BED 2 BED 1 ENS L DRY PDR BATH KIT MEALS BALCONY OBSCURE OBSCURE OBSCURE OBSCURE COVERED DECK ST 3 4 5 6 PORCH BALCONY COVERED DECK GARAGE AREA SCHEDULE : 1 2 GROUND FLOOR FIRST FLOOR GROUND FLOOR FIRST FLOOR The dimensions and depictions of the layout of the house in this floor plan are approximations only, not to scale and may vary to the house when built. All room measurements are measured from internal walls to internal walls and may vary. Purchasers must rely on their own enquiries and the contract for sale.
HOME 712

HOME 713

4 BEDROOM + 3 BATHROOM + 2 CAR
Artist impression — based on home 604

Village Green

Making up 1 hectare of the 2.5 hectares of open space throughout Burwood Brickworks, the Village Green offers residents and the wider community the opportunity to get outside and take in nature.

The Link

The Link acts as the precinct’s main thoroughfare, connecting the Urban Plaza to an abundance of green space via carefully articulated walking and cycling paths.

Urban Plaza

An outdoor extension of the retail centre offers paved paths winding past grassy mounds and intimate spaces that make the most of the outdoors.

Future-forward retail

Designed to be the world’s most sustainable shopping centre with over 40 retailers as well as a full line Woolworths, all within walking distance from home. Amenities include a cinema, childcare centre and an abundance of restaurants and cafés.

A rooftop urban farm

acre farm and eatery Brickworks is home to a quail coop, composting and worm farms, as well as an impressive collection of vertical and hydroponic planting structures and garden beds, all alongside a beautiful café and restaurant offering paddockto-plate dining.

THE DEFINING HOMES ARE IN A PREMIUM LOCATION, WITH THE VILLAGE GREEN AND THE LINK JUST A MOMENT AWAY.
713 Home type 1 2+ 3 1 Home type 2 3+ 4 2 Home type 3 2+ 4 2 Home type 4 2+ 4 1 Home type 5 3+ 5 2 703 718 704 705 706 707 720 717 712
THE SHOPS AND ENTERTAINMENT, ROOFTOP URBAN FARM AND URBAN PLAZA ARE ALL WITHIN EASY WALKING DISTANCE OF THE DEFINING HOMES.
This plan is an artist’s impression. It is not to scale and should be used as a guide only. Please refer to the contract for sale for specifications and the inclusions list for details on landscaping, fencing, gates, driveways, turf etc. Purchasers must rely on their own enquiries and the contract for sale.
GROUND FLOOR FIRST FLOOR 0 1 m 2 m LOT 713 final 02 / 03 AC STORAGE AREA BED 4 ENS ST GARAGE ENTRY PORCH HWS RETAINING WALL LIVING BED 3 WIR BED 2 BED 1 ENS L DRY PDR BATH KIT MEALS BALCONY OBSCURE OBSCURE OBSCURE OBSCURE COVERED DECK ST 3 4 5 6 PORCH BALCONY COVERED DECK GARAGE AREA SCHEDULE : 1 2 GROUND FLOOR FIRST FLOOR GROUND FLOOR FIRST FLOOR 0 1 m 2 m LOT 713 final 02 / 03 AC STORAGE AREA BED 4 ENS ST GARAGE ENTRY PORCH HWS RETAINING WALL LIVING BED 3 WIR BED 2 BED 1 ENS L DRY PDR BATH KIT MEALS BALCONY OBSCURE OBSCURE OBSCURE OBSCURE COVERED DECK ST 3 4 5 6 PORCH BALCONY COVERED DECK GARAGE AREA SCHEDULE : 1 2 GROUND FLOOR FIRST FLOOR GROUND FLOOR FIRST FLOOR Bedroom 4 Bathroom 3 Powder room 1 Car 2 Lot area 295m Ground Floor 50.5m First Floor 151.2m Total Indoor Area 201.7m2 Garage 39.9m Porch 2.8m Balcony 13.2m Covered Deck 15.8m Total Indoor and Outdoor Area 273.4m2 0 1m 2m 4m The dimensions and depictions of the layout of the house in this floor plan are approximations only, not to scale and may vary to the house when built. All room measurements are measured from internal walls to internal walls and may vary. Purchasers must rely on their own enquiries and the contract for sale.
HOME 713

HOME 717

4 BEDROOM + 2 BATHROOM + 2 CAR
Artist impression — based on home 623 (mirrored)

Village Green

Making up 1 hectare of the 2.5 hectares of open space throughout Burwood Brickworks, the Village Green offers residents and the wider community the opportunity to get outside and take in nature.

The Link

The Link acts as the precinct’s main thoroughfare, connecting the Urban Plaza to an abundance of green space via carefully articulated walking and cycling paths.

Urban Plaza

An outdoor extension of the retail centre offers paved paths winding past grassy mounds and intimate spaces that make the most of the outdoors.

Future-forward retail

Designed to be the world’s most sustainable shopping centre with over 40 retailers as well as a full line Woolworths, all within walking distance from home. Amenities include a cinema, childcare centre and an abundance of restaurants and cafés.

A rooftop urban farm

acre farm and eatery Brickworks is home to a quail coop, composting and worm farms, as well as an impressive collection of vertical and hydroponic planting structures and garden beds, all alongside a beautiful café and restaurant offering paddockto-plate dining.

THE DEFINING HOMES ARE IN A PREMIUM LOCATION, WITH THE VILLAGE GREEN AND THE LINK JUST A MOMENT AWAY.
717 Home type 1 2+ 3 1 Home type 2 3+ 4 2 Home type 3 2+ 4 2 Home type 4 2+ 4 1 Home type 5 3+ 5 2
THE SHOPS AND ENTERTAINMENT, ROOFTOP URBAN FARM AND URBAN PLAZA ARE ALL WITHIN EASY WALKING DISTANCE OF THE DEFINING HOMES.
703 718 704 705 706 707 720 713 712
This plan is an artist’s impression. It is not to scale and should be used as a guide only. Please refer to the contract for sale for specifications and the inclusions list for details on landscaping, fencing, gates, driveways, turf etc. Purchasers must rely on their own enquiries and the contract for sale.
GROUND FLOOR FIRST FLOOR Bedroom 4 Bathroom 2 Powder room 1 Car 2 Lot area 250m Ground Floor 81.0m First Floor 115.4m Total Indoor Area 196.4m2 Garage 38.3m Porch 2.2m Total Indoor and Outdoor Area 236.9m2 LOT 717 MEALS LIVING ENTRY PDR WIP KIT LDRY ST GARAGE STORAGE AREA PORCH STEP STEP AC HWS 1 2 3 4 5 6 7 8 9 10 11 12 13 14 15 16 OBSCURE BATH WC BED 3 BED 4 BED 2 BED 1 WIR ENS 2 ND LIVING ST 3 4 AREA 1 2 GROUND FLOOR FIRST FLOOR LOT 717 MEALS LIVING ENTRY PDR WIP KIT LDRY ST GARAGE STORAGE AREA PORCH STEP STEP AC HWS 10 11 12 13 14 15 16 OBSCURE BATH WC BED 3 BED 4 BED 2 BED 1 WIR ENS 2 ND LIVING ST 3 4 AREA 1 2 GROUND FLOOR FIRST FLOOR 0 1m 2m 4m The dimensions and depictions of the layout of the house in this floor plan are approximations only, not to scale and may vary to the house when built. All room measurements are measured from internal walls to internal walls and may vary. Purchasers must rely on their own enquiries and the contract for sale.
HOME 717

HOME 718

4 BEDROOM + 2 BATHROOM + 1 CAR
Artist impression — based on home 623 (mirrored)

Village Green

Making up 1 hectare of the 2.5 hectares of open space throughout Burwood Brickworks, the Village Green offers residents and the wider community the opportunity to get outside and take in nature.

The Link

The Link acts as the precinct’s main thoroughfare, connecting the Urban Plaza to an abundance of green space via carefully articulated walking and cycling paths.

Urban Plaza

An outdoor extension of the retail centre offers paved paths winding past grassy mounds and intimate spaces that make the most of the outdoors.

Future-forward retail

Designed to be the world’s most sustainable shopping centre with over 40 retailers as well as a full line Woolworths, all within walking distance from home. Amenities include a cinema, childcare centre and an abundance of restaurants and cafés.

A rooftop urban farm

acre farm and eatery Brickworks is home to a quail coop, composting and worm farms, as well as an impressive collection of vertical and hydroponic planting structures and garden beds, all alongside a beautiful café and restaurant offering paddockto-plate dining.

THE DEFINING HOMES ARE IN A PREMIUM LOCATION, WITH THE VILLAGE GREEN AND THE LINK JUST A MOMENT AWAY.
718 Home type 1 2+ 3 1 Home type 2 3+ 4 2 Home type 3 2+ 4 2 Home type 4 2+ 4 1 Home type 5 3+ 5 2 703 704 705 706 707 720 717 713 712
THE SHOPS AND ENTERTAINMENT, ROOFTOP URBAN FARM AND URBAN PLAZA ARE ALL WITHIN EASY WALKING DISTANCE OF THE DEFINING HOMES.
This plan is an artist’s impression. It is not to scale and should be used as a guide only. Please refer to the contract for sale for specifications and the inclusions list for details on landscaping, fencing, gates, driveways, turf etc. Purchasers must rely on their own enquiries and the contract for sale.

HOME 718

GROUND FLOOR FIRST FLOOR Bedroom 4 Bathroom 2 Powder room 1 Car 1 Lot area 254m Ground Floor 95.4m First Floor 103.5m Total Indoor Area 198.9m2 Garage 25.7m Porch 2.8m Total Indoor and Outdoor Area 227.4m2 LOT 718 1 2 3 4 5 STORAGE AREA LIVING PDR ENTRY 2 ND LIVING KIT LDRY WIP MEALS GARAGE PORCH STEP STEP AC HWS 1 2 3 4 5 6 7 8 9 10 11 12 13 14 15 16 OBSCURE BED 3 BED 2 BED 1 BATH ENS WC BED 4 WIR OBSCURE ST 3 4 AREA 1 2
0 1m 2m 4m LOT 718 1 2 3 4 5 STORAGE AREA LIVING PDR ENTRY 2 ND LIVING KIT LDRY WIP MEALS GARAGE PORCH STEP STEP AC HWS 1 2 3 4 5 6 7 8 9 10 11 12 13 14 15 16 OBSCURE BED 3 BED 2 BED 1 BATH ENS WC BED 4 WIR OBSCURE ST 3 4 AREA 1 2
The dimensions and depictions of the layout of the house in this floor plan are approximations only, not to scale and may vary to the house when built. All room measurements are measured from internal walls to internal walls and may vary. Purchasers must rely on their own enquiries and the contract for sale.
GROUND FLOOR FIRST FLOOR
GROUND FLOOR FIRST FLOOR

HOME 719

4 BEDROOM + 2 BATHROOM + 2 CAR
Artist impression — based on home 623 (mirrored)

Village Green

Making up 1 hectare of the 2.5 hectares of open space throughout Burwood Brickworks, the Village Green offers residents and the wider community the opportunity to get outside and take in nature.

The Link

The Link acts as the precinct’s main thoroughfare, connecting the Urban Plaza to an abundance of green space via carefully articulated walking and cycling paths.

Urban Plaza

An outdoor extension of the retail centre offers paved paths winding past grassy mounds and intimate spaces that make the most of the outdoors.

Future-forward retail

A world first retail experience: intelligent architecture, renewable practices and an abundance of amenity and community. The shopping centre houses over 40 retailers, a cinema, childcare centre, medical centre and an abundance of restaurants and cafés. The Burwood Brickworks Shopping Centre has achieved full Living Building Challenge® certification. This means it generates more energy than it consumes, retaining and recycling all of the water it uses, dedicating 20% of its site footprint for food growing; among many other sustainable initiatives.

A rooftop urban farm

acre farm and eatery Brickworks is home to a quail coop, composting and worm farms, as well as an impressive collection of vertical and hydroponic planting structures and garden beds, all alongside a beautiful café and restaurant offering paddockto-plate dining.

This plan is an artist’s impression. It is not to scale and should be used as a guide only. Please refer to the contract for sale for specifications and the inclusions list for details on landscaping, fencing, gates, driveways, turf etc. Purchasers must rely on their own enquiries and the contract for sale.
THE DEFINING HOMES ARE IN A PREMIUM LOCATION, WITH THE VILLAGE GREEN AND THE LINK JUST A MOMENT AWAY.
Home type 1 2+ 3 1 Home type 2 3+ 4 2 Home type 3 2+ 4 2
THE SHOPS AND ENTERTAINMENT, ROOFTOP URBAN FARM AND URBAN PLAZA ARE ALL WITHIN EASY WALKING DISTANCE OF THE DEFINING HOMES.
704 719 701 702 708 711 716 715 714 709 710
GROUND FLOOR FIRST FLOOR The dimensions and depictions of the layout of the house in this floor plan are approximations only, not to scale and may vary to the house when built. All room measurements are measured from internal walls to internal walls and may vary. Purchasers must rely on their own enquiries and the contract for sale. HOME
Bedroom 4 Bathroom 2 Powder room 2 Car 2 Lot area 252m Ground Floor 82.6m First Floor 116.0m Total Indoor Area 198.6m2 Garage 38.3m Porch 2.6m Total Indoor and Outdoor Area 239.5m2 LOT
MEALS LIVING ENTRY PDR WIP KIT LDRY ST GARAGE STORAGE AREA PORCH STEP STEP OBSCURE HWS AC 10 11 12 13 14 15 16 OBSCURE OBSCURE OBSCURE BATH WC BED 3 BED 4 BED 2 BED 1 WIR ENS 2 ND LIVING OBSCURE OBSCURE ST 3 4 AREA 1 2
LOT
MEALS LIVING ENTRY PDR WIP KIT LDRY ST GARAGE STORAGE AREA PORCH STEP STEP OBSCURE HWS AC 1 2 3 4 5 6 7 8 9 10 11 12 13 14 15 16 OBSCURE OBSCURE OBSCURE BATH WC BED 3 BED 4 BED 2 BED 1 WIR ENS 2 ND LIVING OBSCURE OBSCURE ST 3 4 AREA 1 2
0 1m 2m 4m
719
719
GROUND FLOOR FIRST FLOOR
719
GROUND FLOOR FIRST FLOOR

HOME 720

5 BEDROOM + 3 BATHROOM + 2 CAR
Artist impression

Village Green

Making up 1 hectare of the 2.5 hectares of open space throughout Burwood Brickworks, the Village Green offers residents and the wider community the opportunity to get outside and take in nature.

The Link

The Link acts as the precinct’s main thoroughfare, connecting the Urban Plaza to an abundance of green space via carefully articulated walking and cycling paths.

Urban Plaza

An outdoor extension of the retail centre offers paved paths winding past grassy mounds and intimate spaces that make the most of the outdoors.

Future-forward retail

Designed to be the world’s most sustainable shopping centre with over 40 retailers as well as a full line Woolworths, all within walking distance from home. Amenities include a cinema, childcare centre and an abundance of restaurants and cafés.

A rooftop urban farm

acre farm and eatery Brickworks is home to a quail coop, composting and worm farms, as well as an impressive collection of vertical and hydroponic planting structures and garden beds, all alongside a beautiful café and restaurant offering paddockto-plate dining.

THE DEFINING HOMES ARE IN A PREMIUM LOCATION, WITH THE VILLAGE GREEN AND THE LINK JUST A MOMENT AWAY.
720 Home type 1 2+ 3 1 Home type 2 3+ 4 2 Home type 3 2+ 4 2 Home type 4 2+ 4 1 Home type 5 3+ 5 2 703 718 704 705 706 707 717 713 712
THE SHOPS AND ENTERTAINMENT, ROOFTOP URBAN FARM AND URBAN PLAZA ARE ALL WITHIN EASY WALKING DISTANCE OF THE DEFINING HOMES.
This plan is an artist’s impression. It is not to scale and should be used as a guide only. Please refer to the contract for sale for specifications and the inclusions list for details on landscaping, fencing, gates, driveways, turf etc. Purchasers must rely on their own enquiries and the contract for sale.
GROUND FLOOR FIRST FLOOR Bedroom 5 Bathroom 3 Powder room 2 Car 2 Lot area 338m Ground Floor 113.7m First Floor 126.1m Total Indoor Area 239.8m2 Garage 37.7m Porch 1.6m Balcony 8.2m Total Indoor and Outdoor Area 287.3m2 LOT 720 GARAGE PDR WIP KIT LDRY MEALS LIVING PORCH ENTRY BED 5 WIR ENS STORAGE AREA HWS AC WT BED 1 BED 2 BED 3 BED 4 PDR BATH ENS WIR 2 ND LIVING BALCONY OBSCURE OBSCURE ST 3 4 5 AREA 1 2 GROUND FLOOR FIRST FLOOR LOT 720 GARAGE PDR WIP KIT LDRY MEALS LIVING PORCH ENTRY BED 5 WIR ENS STORAGE AREA HWS AC WT BED 1 BED 2 BED 3 BED 4 PDR BATH ENS WIR 2 ND LIVING BALCONY OBSCURE OBSCURE ST 3 4 5 AREA 1 2 GROUND FLOOR FIRST FLOOR 0 1m 2m 4m The dimensions and depictions of the layout of the house in this floor plan are approximations only, not to scale and may vary to the house when built. All room measurements are measured from internal walls to internal walls and may vary. Purchasers must rely on their own enquiries and the contract for sale.
HOME 720

STAGE 7 THE DEFINING HOMES

*Note: Total House Area comprises: Living Areas all Floors +Garage + Porch + Balcony (if applicable)

TERMS OF SALE Deposit: 10% - Bank Cheque or Money Order – No Cash

21 days after issue of Certificate of Occupancy

Burwood Brickworks Stage 7 The Defining Homes x 11 11092021
LOT NO *TOTAL HOUSE M2 LAND M2 PRICE 3 Bedrooms / 2 Bathrooms / 1 Garage 701 196.7 193 $1,175,000 702 195.0 171 $1,170,000 704 192.8 194 $1,175,000 708 192.8 195 $1,175,000 709 190.0 165 $1,170,000 710 190.0 165 $1,170,000 711 192.8 194 $1,175,000 4 Bedrooms / 2 Bathrooms / 2 Garages 719 236.9 252 $1,515,000 4 Bedrooms / 3 Bathrooms / 1 Garages 716 253.7 339 $1,450,000 4 Bedrooms / 3 Bathrooms / 2 Garages 714 241.4 295 $1,350,000 715 241.4 295 $1,350,000
Price
Project Sales Managers: Giuliana Balla -
653 162 Jamie Chua – 0418
647 Frasers Property Australia Level 9, 484 St Kilda Road, Melbourne, Vic 3004 Phone: 13 38 38
Balance:
List Effective: 20 June 2023
0438
211

STAGE 7 THE DEFINING HOMES

*Note: Total House Area comprises: Living Areas all Floors +Garage + Porch + Balcony (if applicable)

TERMS OF SALE

Deposit: 10% - Bank Cheque or Money Order – No Cash Balance: 21 days after issue of Certificate of Occupancy

June 2023

Burwood Brickworks Stage 7 The Devining Homes x 10 17042021
LOT NO TOTAL HOUSE M2 LAND M2 PRICE 3 Bedrooms / 2 Bathrooms / 1 Garage 703 196.7 193 $1,110,000 705 190.0 165 $1,095,000 706 190.0 165 $1,095,000 707 192.8 194 $1,110,000 4 Bedrooms / 2 Bathrooms / 1 Garages 718 224.6 254 $1,265,000 4 Bedrooms / 2 Bathrooms / 2 Garages 717 234.7 250 $1,308,000 4 Bedrooms / 3 Bathrooms / 2 Garages 712 241.6 295 $1,245,000 713 241.6 295 $1,245,000
Sales Managers: Giuliana Balla - 0438 653 162 Jamie Chua – 0418 211 647 Frasers Property Australia Level 9, 484 St Kilda Road, Melbourne, Vic 3004 Phone: 13 38 38 720 5 Bedrooms / 3 Bathrooms / 2 Garages 227.5 338 $1,550,000
Price List Effective: 20
Project

13 July 2023

Frasers Property Level 9, 484 St Kilda Road

MELBOURNE VIC 3004

Dear Kelly

Re: Comparative Sales Evidence

Property: 78 Middleborough Road, Burwood East

Further to your recent instructions requesting the latest sales evidence of comparable townhouses in the general locality, we advise as follows.

At your request, our advice herein provides a schedule of sales evidence considered broadly relevant to the Stages 6 and 7 of the Burwood Brickworks development at 78 Middleborough Road, Burwood East, and could reasonably be expected to be made by an alternate valuation firm.

Charter notes that there is limited evidence within the immediate locality of established projects which present a comparable level of amenity to a masterplanned development such as Burwood Brickworks.

The sales schedule relevant to the various townhouse typologies and price points are detailed on the following pages.

charterkc.com.au

reception@charterkc.com.au

T 1300 242 787

Charter Keck Cramer Pty Ltd

ACN: 618 794 853

Charter Keck Cramer (Sydney) Pty Ltd

ACN: 601 785 326

ADVISORY. RESEARCH & STRATEGY VALUATIONS. PROJECTS. CAPITAL. Our Reference BC

With consideration to the product type having pre-sold ‘off-the-plan’, we have considered comparative established sales evidence within the general locality in the following categories:

i. Three-Bedroom Townhouse Sales;

ii. Four-Bedroom Townhouse Sales; and

iii. Five-Bedroom Townhouse Sales

We refer to the following sales:

We have considered comparative sales evidence as follows:

Sales Schedule – Three-Bedroom Townhouses

3/1 Malabar Road, Blackburn

Sale Price $1,215,000

Sale Date March 2023

Sale Settled Yes (SOURCE - RP Data)

Value Rate $7,594 p.s.m.

Building Area (sq.m.) 160

Lot Area (sq.m.) 204

BRs 3

Car Space 1 + 1 OSCP

Building Age 2015

Description

Floor Plan Internal

Two storey townhouse comprising three bedrooms, ensuite, central bathroom, powder room and separate laundry. Specifications include inset sink, glass splashbacks, stone benchtops and stainless steel appliances. Complemented by a single lock up garage and one off-street car space.

Christine Bafas – Jellis Craig Whitehorse – 0427 835 610

9 Charlottes Way, Forest Hill

Sale Price $1,170,000

Sale Date March 2023

Sale Settled Yes (SOURCE - RP Data)

Value Rate $6,126 p.s.m. Building Area (sq.m.) 191

Floor Plan

Contemporary style two-level townhouse. Comprises three bedrooms, ensuite, central bathroom, powder room, separate laundry and open plan living/dining. Specifications include timber flooring to living and kitchen, stone benchtops, stainless steel appliances and double undermount sink. Complemented by a double lockup garage and private open space.

Evan Zhang – McGrath Box Hill – 0430 838 662

PAGE 2
Burwood Brickworks (Stages 6 & 7), 78 Middleborough Road, Burwood East
Internal
Lot Area (sq.m.) 180 BRs 3 Car Space 2 Building Age 2015 Description

Sales Schedule – Three-Bedroom Townhouses

1/23 Pippin Avenue, Burwood East

Sale Price $1,245,000

Sale Date February 2023

Sale Settled Yes (SOURCE - RP Data)

Value Rate $7,114 p.s.m.

Building Area (sq.m.) 175

Lot Area (sq.m.) 234

BRs 3 + Study

Car Space 2

Building Age 2015

Description

Floor Plan

Contemporary but not new townhouse. Accommodation comprises of three bedrooms, study, ensuite to master, central bathroom, separate laundry/powder room and open plan living/dining. Specifications include timber flooring to kitchen and living, stone benchtops and splashbacks, stainless steel appliances and double undermount sink. Complemented by a double lockup garage and south facing private open space.

Connor Sun – Harcourts Ashwood – 0450 250 126

8 Northcote Circuit, Burwood East

Sale Price $1,105,000

Sale Date February 2023

Sale Settled Yes (SOURCE - RP Data)

Value Rate $7,517 p.s.m.

Building Area (sq.m.) 147

Lot Area (sq.m.) 151

BRs 3 + Study

Car Space 1 + 1 OSCP

Building Age 2021

Description

Floor Plan

Modern two storey townhouse forming part of the ‘Foundation Homes’ stage of the ‘Burwood Brickworks’ development. Comprises three bedrooms, study, ensuite, central bathroom, powder room, Euro laundry, and open plan living/dining. Specifications include timber flooring to living and kitchen, stone benchtops and splashbacks and stainless steel appliances. Complemented by a single lockup garage and one offstreet car space.

Mia Li – Auspacific Property Investment Melbourne – 0450883 163

20 Burn Nar Look Drive, Burwood

Sale Price $1,055,000

Sale Date December 2022

Sale Settled Yes (SOURCE - RP Data)

Value Rate $6,806 p.s.m.

Building Area (sq.m.) 155

Lot Area (sq.m.) 214

BRs 3

Car Space 1 + 1 OSCP

Building Age 2012

Description

Floor Plan

Older two-level townhouse. Accommodation comprises of three bedrooms, ensuite to master, central bathroom, powder room and open plan living/dining. Specifications include stainless steel appliances, inset sink and stone benchtops. Complemented by a single lockup garage, one off-street car space and south facing private open space.

Michelle Yan – Fletchers Blackburn – 0412 701 190

Burwood Brickworks (Stages 6 & 7), 78 Middleborough Road, Burwood East PAGE

3
Internal
Internal
Internal

Sales Schedule – Three-Bedroom Townhouses

20 Northcote Circuit, Burwood East

Sale Price $1,085,000

Sale Date November 2022

Sale Settled Yes (SOURCE - RP Data)

Value Rate $6,061 p.s.m.

Building Area (sq.m.) 179

Lot Area (sq.m.) 169

BRs 3 + Study

Car Space 1 + 1 OSCP

Building Age 2021

Description

Floor Plan

Contemporary style townhouse situated within the ‘Foundation Homes’ stage of the ‘Burwood Brickworks’ development. Comprises three bedrooms, study, ensuite to master, central bathroom, powder room and Euro laundry. Specifications include timber flooring to general areas, stone benchtops, double undermount sink and stainless steel appliances. Complemented by a single lockup garage and one off-street car park.

Casey Wang – Barry Plant Whitehorse – 9874 3355

We have considered comparative sales evidence as follows:

Sales Schedule – Four-Bedroom Townhouses

93 Eley Road, Box Hill South

Sale Price $1,600,000

Sale Date June 2023

Sale Settled No (SOURCE - RP Data)

Value Rate $6,926 p.s.m.

Building Area (sq.m.) 231

Lot Area (sq.m.) 399

BRs 4

Car Space 2

Building Age 2014

Description

Floor Plan

Contemporary style but not new double storey townhouse. Accommodation provides for four bedrooms, ensuite, central bathroom, powder room, second living area and open plan living/dining. Average level of specifications throughout including Caesarstone benchtops. Complemented by a double lockup garage and private open space.

Sam Babalis – Jellis Craig Doncaster – 0419 513 197

11 Christa Avenue, Burwood East

Sale Price $1,287,000

Sale Date May 2023

Sale Settled No (SOURCE - RP Data)

Value Rate $6,600 p.s.m.

Building Area (sq.m.) 195

Lot Area (sq.m.) 290

BRs 4

Car Space 1 + 1 OSCP

Building Age 2023

Description

Floor Plan

Internal

Recently completed two storey townhouse comprising four bedrooms, three ensuites, central bathroom and Euro laundry. Specifications include stone benchtops, glass splashbacks, stainless steel Omega appliances, double undermount sink and timber flooring to living and kitchen. Complemented by a single lockup garage and one off-street car space.

Connor Sun – Harcourts Ashwood – 0450 250 126

Burwood Brickworks (Stages 6 & 7), 78 Middleborough Road, Burwood East PAGE

4
Internal
Internal

Sales Schedule – Four-Bedroom Townhouses

1/3 McCubbin Street, Burwood

Sale Price $1,355,000

Sale Date April 2023

Sale Settled Yes (SOURCE - RP Data)

Value Rate $6,843 p.s.m.

Building Area (sq.m.) 198

Lot Area (sq.m.) 290

BRs 4

Car Space 2

Building Age 2023

Description

Floor Plan

Recently completed two-level townhouse forming part of a development of four. Accommodation comprises four bedrooms, two ensuites, central bathroom, powder room and separate laundry. Specifications include timber flooring to living and kitchen, stone benchtops, tiled splashbacks, double undermount sink, matte black finish single lever mixer tapware and stainless steel appliances. Complemented by a double garage.

Hans Liu – Ray White Burwood – 0430 595 592

1/48 Shawlands Avenue, Blackburn South

Sale Price $1,380,000

Sale Date March 2023

Sale Settled Yes (SOURCE - RP Data)

Value Rate $7,041 p.s.m.

Building Area (sq.m.) 196

Lot Area (sq.m.) 335

BRs 4

Car Space 2

Building Age 2012

Description

Floor Plan

Older two-level townhouse comprising four bedrooms, ensuite, central bathroom, powder room, second living area and open plan living/dining. Specifications include stone benchtops, inset sink, tiled splashbacks and stainless steel appliances. Complemented by a double lockup garage, private open space and street frontage.

Tony Kwan – The One Real Estate Box Hill – 0422 876 886

2/29 Montpellier Road, Burwood

Sale Price $1,293,000

Sale Date February 2023

Sale Settled Yes (SOURCE - RP Data)

Value Rate $6,989 p.s.m.

Building Area (sq.m.) 185

Lot Area (sq.m.) 268

BRs 4

Car Space 1 + 1 OSCP

Building Age 2017

Description

Floor Plan

Two-level townhouse constructed in 2017. Comprises four bedrooms, ensuite to master, central bathroom and separate laundry/powder room.

Average level of specifications throughout. Complemented by a single lockup garage and one off-street car space.

Hans Liu – Ray White Burwood

0430 595 592

5
Burwood Brickworks (Stages 6 & 7), 78 Middleborough Road, Burwood East
PAGE
Internal
Internal
Internal

Sales Schedule – Four-Bedroom Townhouses

2/1178 Riversdale Road, Box Hill South

Sale Price $1,180,000

Sale Date January 2023

Sale Settled Yes (SOURCE - RP Data)

Value Rate $5,763 p.s.m.

Floor Plan

Two-level townhouse within a development of two units. Accommodation provides for four bedrooms, two ensuites, central bathroom, powder room, separate laundry and open plan living/dining. Average level of specifications throughout. Complemented by a double lockup garage and south facing private open space.

Agent Unknown

Sale Price $1,230,000

Sale Date October 2022

Sale Settled Yes (SOURCE - RP Data) Value

p.s.m.

4/16 McCubbin Street, Burwood Floor Plan

Recently completed two-level townhouse within development of five units. Comprises four bedrooms, two ensuites, central bathroom, powder room and Euro laundry. Specifications include timber flooring to general areas, stone benchtops and splashbacks, matte black finish single lever mixer tapware, double undermount sink and induction cooktop. Complemented by a double lockup garage and 42 sq.m. of west facing private open space.

Hans Liu – Ray White Burwood – 0430 595 592

Price $1,490,000

Sale Date October 2022 Sale Settled Yes (SOURCE - RP Data)

1/2 Eyre Street, Burwood Floor Plan

Recently completed two-level townhouse. Accommodation provides for four bedrooms, two ensuites, central bathroom, powder room and open plan living/dining. Above average level of specifications throughout. Complemented by a double lockup garage and private open space.

Ethan He – First National JXRE Clayton – 0477 588 390

PAGE 6
Burwood Brickworks (Stages 6 & 7), 78 Middleborough Road, Burwood East
Internal
Building Area (sq.m.)
Lot Area (sq.m.) 294 BRs 4 Car Space 2 Building Age 2015 Description
205
Internal
Building Area (sq.m.) 202 Lot Area (sq.m.) N/A BRs 4 Car Space 2 Building Age 2022 Description
Rate $6,089
Internal
Sale
Building Area
Lot Area (sq.m.)
BRs 4 Car Space 2 Building Age
Description
Value Rate $7,233 p.s.m.
(sq.m.) 206
259
2022

We have considered comparative sales evidence as follows:

Sales Schedule – Five-Bedroom Townhouses

Sale Price $1,785,000

Sale Date June 2023

Sale Settled No (SOURCE - RP Data)

Value Rate N/A Building Area (sq.m.) N/A

2/42 Roslyn Street, Burwood Floor Plan

Recently completed double storey townhouse. Comprises five bedrooms, three ensuites, central bathroom, separate laundry/powder room and open plan living/dining. Specifications include timber herringbone flooring to living and kitchen and Miele appliances. Complemented by a double lockup garage and east facing private open space.

Nicole Lismore – Buxton Camberwell – 0401 617 908

1/21 Kingston Street, Mount Waverley

Sale Price $1,655,000

Sale Date April 2023

Sale Settled No (SOURCE - RP Data)

Value Rate $7,196 p.s.m. Building Area (sq.m.) 230 Lot Area (sq.m.) 319

5

Age 2020

Floor Plan

Contemporary style two-level townhouse. Comprises five bedrooms, ensuite to master, two central bathrooms, powder room and separate laundry. Specifications include stainless steel Bosch appliances, double undermount sink and stone benchtops. Complemented by a double lockup garage (no internal access).

Eric Li

LLC Real Estate Mount Waverley

0415 689 981

Sale Price $1,490,000 Sale Date March 2023

Settled Yes (SOURCE - RP Data)

1C Neville Street, Box Hill South Floor Plan

Double storey townhouse built 2019, enjoying its own street frontage. Comprises five bedrooms plus study, three bathrooms, open plan living and a retreat. Complemented by a double garage and a timber deck.

Calvin Chan – Buxton Box Hill – 0422 056 222

Burwood Brickworks (Stages 6 & 7), 78 Middleborough Road, Burwood East

PAGE 7
Internal
BRs 5 Car Space 2 Building
2023
Lot Area (sq.m.) 280 (Approx)
Age
Description
Internal
BRs
Car
Building
Description
Space 2
Internal
Sale
Value
Building Area
Lot Area (sq.m.)
BRs 5 Car Space 2 Building Age 2019 Description
Rate $6,682 p.s.m.
(sq.m.) 223
355

Sales Schedule – Five-Bedroom Townhouses

2/9 Skene Street, Burwood East

Sale Price $1,568,000

Sale Date March 2023

Sale Settled Yes (SOURCE - RP Data)

Value Rate N/A

Building Area (sq.m.) N/A

Lot Area (sq.m.) 267

BRs

Car Space 2

Building Age 2020

Description

Floor Plan

Contemporary two-level townhouse. Comprises five bedrooms, two ensuites, central bathroom, powder room, separate laundry and open plan living/dining. Standard level of specifications throughout including stone benchtops and stainless steel appliances. Complemented by a double lockup garage and east facing private open space.

Stephen Huang – Jellis Craig Monash – 0499 088 880

1/449 Highbury Road, Burwood East

Sale Price $1,619,000

Sale Date August 2022

Sale Settled Yes (SOURCE - RP Data)

Value Rate $6,718 p.s.m.

Building Area (sq.m.) 241

Lot Area (sq.m.) 331

BRs 5

Car Space 2

Building Age 2022

Description

Floor Plan

Recently completed two-level townhouse. Comprises five bedrooms, two ensuites, central bathroom, powder room, separate laundry and second living area. Specifications include stone benchtops and stainless steel Smeg appliances. Complemented by a double lockup garage and private open space.

Stephen Huang – Jellis Craig Monash – 0499 088 880

The sales summarised have been collated from sources including PDOL, REIV sales data, council records, estate agent reports and other usual sources of comparable sales data. The information reported is to the best of our knowledge correct however, we cannot make any absolute representation as to accuracy as it has been sourced essentially from information provided rather than obtained “first hand”. The building areas are based on council records, Endorsed Plans or, in some instances, RP Data Any party proposing to rely upon this sales summary should therefore make their own enquiries as to the accuracy of this advice. Additionally, the status of any non-settled sales listed in the schedule may have progressed since the date of issue of this letter and thus should be examined if relied upon for valuation purposes at a later date.

Should you have any queries in relation to this matter, please do not hesitate to contact the undersigned on mobile number +61 (0) 421 103 359 or via email at ben.carter@charterkc.com.au.

Yours sincerely

Liability limited by a scheme approved under Professional Standards Legislation.

8
Burwood Brickworks (Stages 6 & 7), 78 Middleborough Road, Burwood East
PAGE
Internal
5
Internal
Z:\JOBS\SETTLEMENT PACKS\BURWOOD BRICKWORKS - FRASERS\STAGE 6-7 (MD)\COMPARABLE SALES EVIDENCE LETTER - BURWOOD BRICKWORKS (MD6&7).DOCX

The following table provides a condensed summary of the sales contained within this report.

PAGE 9
Burwood Brickworks (Stages 6 & 7), 78 Middleborough Road, Burwood East
Three-Bedroom Townhouses Address Built BRs BthRs Cars Area (sq.m.) Sale Date Sale Price Value Rate p.s.m. 3/1 Malabar Road Blackburn 2015 3 2 + P 2* 160 Mar-23 $1,215,000 $7,594 9 Charlottes Way Forest Hill 2015 3 2 + P 2 191 Mar-23 $1,170,000 $6,126 1/23 Pippin Avenue Burwood East 2015 3 + S 2 + P 2 175 Feb-23 $1,245,000 $7,114 8 Northcote Circuit Burwood East 2021 3 + S 2 + P 2* 147 Feb-23 $1,105,000 $7,517 20 Burn Nar Look Drive Burwood 2012 3 2 + P 2* 155 Dec-22 $1,055,000 $6,806 20 Northcote Circuit Burwood East 2021 3 + S 2 + P 2* 179 Nov-22 $1,085,000 $6,061 Four-Bedroom Townhouses Address Built BRs BthRs Cars Area (sq.m.) Sale Date Sale Price Value Rate p.s.m. 93 Eley Road Box Hill South 2014 4 2 + P 2 231 Jun-23 $1,600,000 $6,926 11 Christa Avenue Burwood East 2023 4 4 2* 195 May-23 $1,287,000 $6,600 1/3 McCubbin Street Burwood 2023 4 3 + P 2 198 Apr-23 $1,355,000 $6,843 1/48 Shawlands Avenue Blackburn South 2012 4 2 + P 2 196 Mar-23 $1,380,000 $7,041 2/29 Montpellier Road Burwood 2017 4 2 + P 2* 185 Feb-23 $1,293,000 $6,989 2/1178 Riversdale Road Box Hill South 2015 4 3 + P 2 205 Jan-23 $1,180,000 $5,756 4/16 McCubbin Street Burwood 2022 4 3 + P 2 202 Oct-22 $1,230,000 $6,089 1/2 Eyre Street Burwood 2022 4 3 + P 2 206 Oct-22 $1,490,000 $7,233 Five-Bedroom Townhouses Address Built BRs BthRs Cars Area (sq.m.) Sale Date Sale Price Value Rate p.s.m. 2/42 Roslyn Street Burwood 2023 5 4 + P 2 N/A Jun-23 $1,785,000 N/A 1/21 Kingston Street Mount Waverley 2019 5 3 2 230 Apr-23 $1,655,000 $7,196 1C Neville Street Box Hill South 2019 5 + S 3 2 223 Mar-23 $1,490,000 $6,682 2/9 Skene Street Burwood East 2020 5 3 + P 2 N/A Mar-23 $1,568,000 N/A 1/449 Highbury Road Burwood East 2022 5 3 + P 2 241 Aug-22 $1,619,000 $6,718
*Second car space is off-street

RE: Park Crescent Homes - Rental Appraisal

Burwood Brickworks MD Stage 6

I am pleased to provide you with a with a rental appraisal for the above development.

After taking into account current market conditions and comparable brand-new properties leased in the Burwood area, if these apartments were available for rental today, I anticipate that gross weekly rental rates would be as follows:

- 4 bedroom + 2 bathrooms + 1 car space- $900 to $930 per week

- 4 bedrooms + 2 bathrooms + 2 car space- $930 to $960 per week

- 4 bedrooms + 3 bathrooms + 1 car space- $960 to $990 per week

- 4 bedrooms + 3 bathrooms + 2 car space - $970 to $1000 per week

- 5 bedrooms + 3 bathrooms + 2 car space - $990 to $1150 per week

These figures are gross rental amounts and do not factor in holding costs, including council rates, water rates, strata levies and any property management fees payable on the property.

I may need to re assess the rental estimate upon completion of the development which will enable me to consider factors such as market conditions, aspect, views and vacancy rates.

This appraisal is provided for information purposes only and therefore should not be taken as a sworn valuation to be relied upon for investment purposes or by a third party.

Should you have any queries, please do not hesitate to contact me via email on irene.colasante@frasersproperty.com.au or 0407 674 792.

Yours sincerely

T +61 3 9258 1281

M +61 407 674 792

E irene.colasante@frasersproperty.com.au

Level 9, 484 St Kilda Road, Melbourne VIC 3004 Australia www.frasersproperty.com.au | LinkedIn | YouTube

Dear purchaser, 23/06/2023

Turn static files into dynamic content formats.

Create a flipbook
Issuu converts static files into: digital portfolios, online yearbooks, online catalogs, digital photo albums and more. Sign up and create your flipbook.