Listing Kit 859 West Alameda Street

Page 1

Subject Property

Data Provided By:

First American Title Ins Co

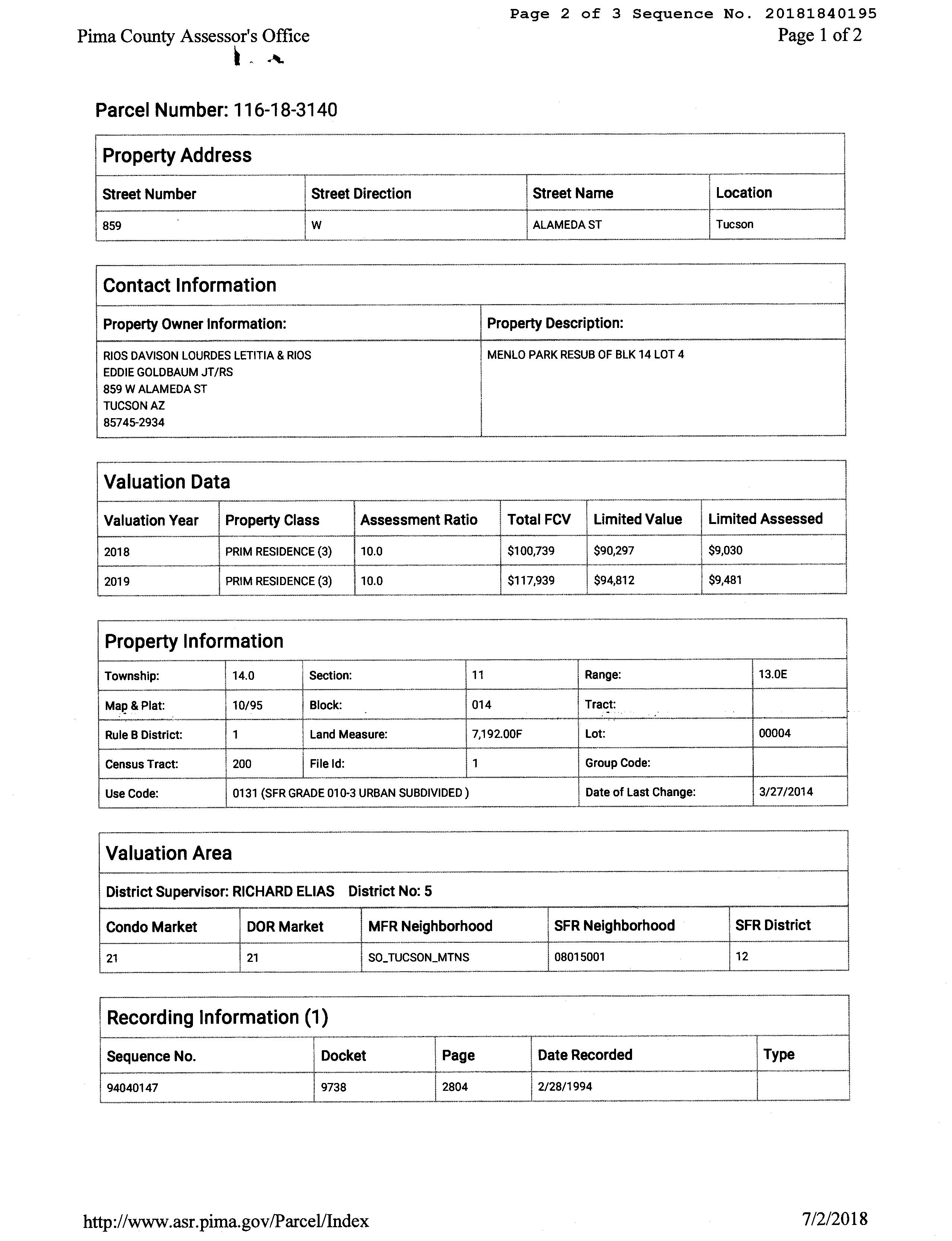
859 W Alameda St Tucson AZ 85745 APN: 116-18-3140
© 2023 CoreLogic. All rights reserved

LIMITATION OF LIABILITY FOR INFORMATIONAL REPORTS

IMPORTANT -- PLEASE READ CAREFULLY:

This report is not an insured product or service or a representation of the condition of title to real property. It is not an abst ract, legal opinion, opinion of title, title insurance commitment or preliminary report, or any form of Title Insurance or Guaranty. This report is issued exclusively for the benefit of the Applicant therefor and may not be used or relied upon by any other person. This report may not be reproduced in any manner without First American or Title Security's prior written consent. First American or Title Security does not represent or warrant that the information herein is complete or free from error, and the information herein is provided without any warranties of any kind, as-is, and with all faults. As a material part of the consideration given in exchange for the issuance of this report, recipient agrees that First American or Title Security's sole liability for any loss or damage caused by an error or omission due to inaccurate information or negligence in preparing this report shall be limited to the fee charged for the report. Recipient accepts this report with this limitation and agrees that First American or Title Security would not have issued this report but for the limitation of liability described above. First American or Title Security makes no representation or warranty as to the legality or propriety of recipient's use of the information herein.

Disclaimer

This REiSource report is provided "as is" without warranty of any kind, either express or implied, including without limitations any warrantees of merchantability or fitness for a particular purpose. There is no representation of warranty that this information is complete or free from error, and the provider does not assume, and expressly disclaims, any liability to any person or entity for loss or damage caused by errors or omissions in this REiSource report without a title insurance policy.

The information contained in the REiSource report is delivered from your Title Company, who reminds you that you have the right as a consumer to compare fees and serviced levels for Title, Escrow, and all other services associated with property ownership, and to select providers accordingly. Your home is the largest investment you will make in your lifetime and you should demand the very best.

Data Provided By: First American Title Ins Co
© 2023 CoreLogic. All rights reserved

Subject Property :   859 W Alameda St Tucson AZ 85745

Owner Information

Owner Name : Rios Davison Lourdes Letitia / Rios Eddie Goldbaum

Mailing Address : 859 W Alameda St, Tucson AZ 85745-2934 C024

Vesting Codes : / / Joint Tenants

Owner Occupied Indicator : O

Location Information

Legal Description : Menlo Park Resub Of Blk 14 Lot 4

County : Pima, Az

Census Tract / Block : 2.00 / 2

Township-Range- Sect : 14S-13E-11

Legal Book/Page : 10-95

Legal Lot : 4

Legal Block : 14

Owner Transfer Information

Recording/Sale Date : 02/28/1994 /

Document # : 9738-2804

Last Market Sale Information

Recording/Sale Date : 02/28/1994

Document # : 9738-2803

Seller Name : Rios Eddie G & Lourdes L D

Prior Sale Information

Prior Rec/Sale Date : / 06/00/1981

Prior Sale Price : $48,000

Property Characteristics

Gross Area : 1,240

Living Area : 1,240

Total Rooms : 5

Year Built / Eff : 1960

# of Stories : 1

Market Area : 21

APN : 116-18-3140

Subdivision : Menlo Park

Map Reference : 11-14S-13E

School District : Tucson Unified

Munic/Township : Tucson Unified

Deed Type : Joint Tenancy Deed

Deed Type : Warranty Deed

Transfer Document # : 40146

Parking Type : None

Roof Material : Asphalt

Prior Doc Number : 6557-69

Prior Deed Type : Joint Tenancy Deed

Patio Type : Covered Patio

Air Cond : Evap Cooler

Heat Type : Forced Air Quality : Fair

Cooling Type : Forced Air Condition : Average

Exterior wall : Brick

Bath Fixtures : 6

Customer Name : Jeremiah Stiffler

Customer Company Name : First American Prepared On : 08/23/2023

© 2023 CoreLogic. All rights reserved

Property Information

Customer Company Name : First American Prepared On : 08/23/2023

Land
Sfr Zoning : R-2 Lot Size : 7,192 County
Resurban Subd Lot Acres : 0.17 State Use : Single Fam Resurban Subd
Total Value : $173,375 Property Tax : $1,340.66 Current Year Total Value : $26,509 Total Taxable Value : $10,976 Tax Rate Area : 0150 Current Year Improvement Value : $26,459
Year : 2022 Market Value : $173,375 Current Year Land Value : $50 Tax
Current Assessed Year : 2024
Use :
Use : Single Fam
Tax Information
Assessed
Year : 2022
Customer Name : Jeremiah Stiffler
© 2023 CoreLogic.
All rights reserved
Criteria Subject Property Low High Average Sale Price $50,000 $425,000 $251,625 Bldg/Living Area 1240 1077 1330 1175 Price Per Square Foot $45 $322 $214.01 Year Built 1960 1921 2005 1962 Lot Size 7,192 3,440 15,000 7,464 Bedrooms Bathrooms 2 1 2 2 Stories 1 1 1 1 Total Assessed Value $173,375 $80,181 $249,377 $156,077 Distance From Subject 0 0.12 0.91 0.5 Summary of Comparables # Address Sale Price Total Assessed Value Sale Date Bed Bath Living Area Lot Size Year Built Dist (Miles) Zoning S 859 W Alameda St 173,375 02/28/1994 2 1,240 7,192 1960 R-2 1 915 W Franklin St 285,000 201,228 01/05/2023 2 1,292 6,270 1978 0.12 R-2 2 800 W Alameda St 348,000 198,669 11/16/2022 2 1,146 6,665 1984 0.13 R-2 3 61 N Grande Ave 235,000 170,919 03/02/2023 2 1,127 8,000 1951 0.16 R-2 4 117 N Grande Ave 250,000 161,734 09/20/2022 1 1,158 7,867 1921 0.16 R-2 5 238 N Grande Ave 230,000 165,464 10/06/2022 1 1,092 9,500 1956 0.2 R-2 6 239 N Palomas Ave 285,000 172,318 12/15/2022 1 1,171 8,000 1954 0.29 R-2 7 248 N Melrose Ave 50,000 139,667 03/16/2023 2 1,112 8,000 1959 0.32 R-2 8 214 S Grande Ave 329,000 186,073 06/28/2023 2 1,303 4,875 1972 0.38 R-2 9 118 S Melrose Ave 425,000 211,689 09/19/2022 2 1,321 15,000 1946 0.43 R-2 10 125 S Cuesta Ave 315,500 175,345 05/26/2023 2 1,078 7,500 1974 0.46 R-2 11 105 N Bella Vista Dr 250,000 155,718 04/06/2023 2 1,125 14,833 1952 0.51 R-2 12 1014 W Saint Marys Rd 160,000 108,445 03/17/2023 1 1,330 6,900 1945 0.54 C-2 13 1023 W Sonora St 235,000 101,314 03/06/2023 1 1,077 5,922 1951 0.57 R-2 Customer Name : Jeremiah Stiffler Customer Company Name : First American Prepared On : 08/23/2023 © 2023 CoreLogic. All rights reserved
Sales Analysis
14 519 N Melrose Ave 305,000 172,198 04/17/2023 2 1,200 7,400 2005 0.67 R-2 15 771 N Anita Ave 280,000 126,274 09/06/2022 2 1,130 4,000 2004 0.75 R-3 16 817 N Anita Ave 285,000 127,836 09/14/2022 2 1,193 7,500 1965 0.77 R-3 17 449 S Elias Ave 200,000 249,377 05/17/2023 1 1,100 3,440 1984 0.82 HR-2 18 1014 W Ontario St 195,000 118,658 02/17/2023 1 1,314 6,354 1948 0.83 R-2 19 933 N Van Alstine St 260,000 80,181 02/14/2023 2 1,096 7,660 1933 0.88 R-3 20 1212 W Delaware St 110,000 98,426 11/23/2022 1 1,138 3,588 1955 0.91 R-2 Distressed Sales = Map Customer Name : Jeremiah Stiffler Customer Company Name : First American Prepared On : 08/23/2023 © 2023 CoreLogic. All rights reserved

Details of Comparables

Property: 859 W Alameda St
85745
APN / Alternate APN: 116-18-3140 / Deed Type: Warranty Deed Land Use: Sfr Subdivision / Tract: Menlo Park / Lot Size: 7,192 Year Built / Eff: 1960 / Rec. Date / Price: 02/28/1994 / $ Living Area: 1,240 # of units: Document #: 9738-2803 Bedrooms: Pool: Total Tax Value: $173,375 Bath(F/H): / #1   915 W Franklin St Tucson Az 85745 Owner Name: Enriquez Erasmo P Jr
Maria L APN / Alternate APN: 116-18-1640 / Deed Type: Warranty Deed Land Use: Sfr Subdivision / Tract: Menlo Park / Lot Size: 6,270 Year Built / Eff: 1978 / Rec. Date / Price: 01/05/2023 / $285,000 Living Area: 1,292 # of units: Document #: 50515 Bedrooms: Pool: Total Tax Value: $201,228 Bath(F/H): / #2   800 W Alameda St Tucson Az 85745 Owner Name: Holland Marcie / APN / Alternate APN: 116-19-214A / Deed Type: Warranty Deed Land Use: Sfr Subdivision / Tract: Rio Nuevo Almeda / Lot Size: 6,665 Year Built / Eff: 1984 / Rec. Date / Price: 11/16/2022 / $348,000 Living Area: 1,146 # of units: Document #: 3200173 Bedrooms: Pool: Total Tax Value: $198,669 Bath(F/H): / #3   61 N Grande Ave Tucson Az 85745 Owner Name: A & C-l Llc / APN / Alternate APN: 116-18-2340 / Deed Type: Warranty Deed Land Use: Sfr Subdivision / Tract: Menlo Park / Lot Size: 8,000 Year Built / Eff: 1951 / Rec. Date / Price: 03/02/2023 / $235,000 Living Area: 1,127 # of units: Document #: 610410 Bedrooms: Pool: Total Tax Value: $170,919 Bath(F/H): / #4   117 N Grande Ave Tucson Az 85745 Owner Name: Fimbres Flor A / APN / Alternate APN: 116-18-158A / Deed Type: Warranty Deed Land Use: Sfr Subdivision / Tract: Menlo Park / Lot Size: 7,867 Year Built / Eff: 1921 / Rec. Date / Price: 09/20/2022 / $250,000 Living Area: 1,158 # of units: Document #: 2630475 Bedrooms: Pool: Total Tax Value: $161,734 Bath(F/H): /
Subject
Tucson Az
Owner Name: Rios Davison Lourdes Letitia /Rios Eddie Goldbaum
/Lujan
First American
08/23/2023 © 2023 CoreLogic. All rights reserved
Customer Name : Jeremiah Stiffler Customer Company Name :
Prepared On :
#5   238 N Grande Ave Tucson Az 85745
APN / Alternate APN: 116-18-0090 / Deed Type: Warranty Deed Land Use: Sfr Subdivision / Tract: Menlo Park / Lot Size: 9,500 Year Built / Eff: 1956 / Rec. Date / Price: 10/06/2022 / $230,000 Living Area: 1,092 # of units: Document #: 2790464 Bedrooms: Pool: Total Tax Value: $165,464 Bath(F/H): / #6   239 N Palomas Ave Tucson Az 85745 Owner Name: Rohani Sahba / APN / Alternate APN: 116-18-0430 / Deed Type: Warranty Deed Land Use: Sfr Subdivision / Tract: Menlo Park / Lot Size: 8,000 Year Built / Eff: 1954 / Rec. Date / Price: 12/15/2022 / $285,000 Living Area: 1,171 # of units: Document #: 3490595 Bedrooms: Pool: Total Tax Value: $172,318 Bath(F/H): / #7   248 N Melrose Ave Tucson Az 85745 Owner Name: 911 Insurance Llc / APN / Alternate APN: 116-18-0420 / Deed Type: Warranty Deed Land Use: Sfr Subdivision / Tract: Menlo Park / Lot Size: 8,000 Year Built / Eff: 1959 / Rec. Date / Price: 03/16/2023 / $50,000 Living Area: 1,112 # of units: Document #: 750439 Bedrooms: Pool: Total Tax Value: $139,667 Bath(F/H): /
APN / Alternate APN: 116-21-3210
Deed Type: Warranty Deed Land Use: Sfr Subdivision / Tract: Gila Salt River Base & Meridia / Lot Size: 4,875 Year Built / Eff: 1972 / Rec. Date / Price: 06/28/2023 / $329,000 Living Area: 1,303 # of units: Document #: 1790345 Bedrooms: Pool: Total Tax Value: $186,073 Bath(F/H): / #9   118 S Melrose Ave Tucson Az 85745
Name:
APN / Alternate APN: 116-21-144A / Deed Type: Warranty Deed Land Use: Sfr Subdivision / Tract: Menlo Park Anx Amd / Lot Size: 15,000 Year Built / Eff: 1946 / Rec. Date / Price: 09/19/2022 / $425,000 Living Area: 1,321 # of units: Document #: 2620205 Bedrooms: Pool: Total Tax Value: $211,689 Bath(F/H): /
American
© 2023 CoreLogic.
rights reserved
Owner Name: Mc Pherson Michael S /Rico Edward Ii
#8   214 S Grande Ave Tucson Az 85745 Owner Name: Hopkins Lee A /Ponciano-lopez Roger E
/
Owner
Bell Kathleen /
Customer Name : Jeremiah Stiffler Customer Company Name : First
Prepared On : 08/23/2023
All

Owner Name: Speelman Jack /Felix Emmalee

#15   771 N Anita Ave Tucson Az 85705

Owner Name: Cisneroz Martin /Callahan Kathleen S

Customer Name : Jeremiah Stiffler

Customer Company Name : First American Prepared On : 08/23/2023

#10   125 S Cuesta Ave Tucson Az 85745
Name:
L / APN / Alternate APN: 116-21-1280 / Deed Type: Warranty Deed Land Use: Sfr Subdivision / Tract: Menlo Park Anx Amd / Lot Size: 7,500 Year Built / Eff: 1974 / Rec. Date / Price: 05/26/2023 / $315,500 Living Area: 1,078 # of units: Document #: 1460673 Bedrooms: Pool: Total Tax Value: $175,345 Bath(F/H): / #11   105 N Bella Vista Dr Tucson Az 85745
Name:
Brittany / APN / Alternate APN: 116-15-0030 / Deed Type: Warranty Deed Land Use: Sfr Subdivision / Tract: Tucson Terrace / Lot Size: 14,833 Year Built / Eff: 1952 / Rec. Date / Price: 04/06/2023 / $250,000 Living Area: 1,125 # of units: Document #: 960113 Bedrooms: Pool: Total Tax Value: $155,718 Bath(F/H): / #12   1014 W Saint Marys Rd Tucson Az 85745
Name:
S APN / Alternate APN: 116-17-2780 / Deed Type: Warranty Deed Land Use: Sfr Subdivision / Tract: Riverside Park / Lot Size: 6,900 Year Built / Eff: 1945 / Rec. Date / Price: 03/17/2023 / $160,000 Living Area: 1,330 # of units: Document #: 760102 Bedrooms: Pool: Total Tax Value: $108,445 Bath(F/H): / #13
Owner
Gray Benton
Owner
Pena
Owner
Bernal Guadalupe /Bernal Jesus
1023 W Sonora St Tucson Az 85745
APN / Alternate APN:
Deed Type: Warranty Deed Land Use: Sfr Subdivision / Tract: Riverside Park / Lot Size: 5,922 Year Built / Eff: 1951 / Rec. Date / Price: 03/06/2023 / $235,000 Living Area: 1,077 # of units: Document #: 650323 Bedrooms: Pool: Total Tax Value: $101,314 Bath(F/H): / #14
APN / Alternate APN: 116-12-2700 / Deed Type: Warranty Deed Land Use: Sfr Subdivision / Tract: El Rio Park / Lot Size: 7,400 Year Built / Eff: 2005 / Rec. Date / Price: 04/17/2023 / $305,000 Living Area: 1,200 # of units: Document #: 1070368 Bedrooms: Pool: Total Tax Value: $172,198 Bath(F/H): /
116-17-2880 /
519 N Melrose Ave Tucson Az 85745 Owner Name: Diggins Matthew /
APN
Land Use: Sfr Subdivision
Size: 4,000 Year Built / Eff:
Rec. Date / Price: 09/06/2022
$280,000 Living Area: 1,130 # of units: Document #: 2490606 Bedrooms: Pool: Total Tax Value: $126,274 Bath(F/H): /
/ Alternate APN: 116-16-097B / Deed Type: Warranty Deed
/ Tract: Mckinley Park Amd / Lot
2004 /
/
© 2023 CoreLogic. All rights reserved
APN / Alternate APN: 116-16-1200 / Deed Type: Warranty Deed Land Use: Sfr Subdivision / Tract: Mckinley Park Amd / Lot Size: 7,500 Year Built / Eff: 1965 / Rec. Date / Price: 09/14/2022 / $285,000 Living Area: 1,193 # of units: Document #: 2570119 Bedrooms: Pool: Total Tax Value: $127,836 Bath(F/H): /
Name:
Llc APN / Alternate APN: 117-19-0250 / Deed Type: Warranty Deed Land Use: Sfr Subdivision / Tract: Elysian Grove / Lot Size: 3,440 Year Built / Eff: 1984 / Rec. Date / Price: 05/17/2023 / $200,000 Living Area: 1,100 # of units: Document #: 1370479 Bedrooms: Pool: Total Tax Value: $249,377 Bath(F/H): /
APN / Alternate APN: 116-17-1650 / Deed Type: Warranty Deed Land Use: Sfr Subdivision / Tract: Riverside Park / Lot Size: 6,354 Year Built / Eff: 1948 / Rec. Date / Price: 02/17/2023 / $195,000 Living Area: 1,314 # of units: Document #: 480495 Bedrooms: Pool: Total Tax Value: $118,658 Bath(F/H): / #19   933 N Van Alstine St Tucson Az 85705
Name:
Felipe / APN / Alternate APN: 116-16-0170 / Deed Type: Warranty Deed Land Use: Sfr Subdivision / Tract: Mckinley Park Amd / Lot Size: 7,660 Year Built / Eff: 1933 / Rec. Date / Price: 02/14/2023 / $260,000 Living Area: 1,096 # of units: Document #: 450122 Bedrooms: Pool: Total Tax Value: $80,181 Bath(F/H): / #20
Name:
APN / Alternate APN: 116-12-0170 / Deed Type: Warranty Deed Land Use: Sfr Subdivision / Tract: El Rio Park / Lot Size: 3,588 Year Built / Eff: 1955 / Rec. Date / Price: 11/23/2022 / $110,000 Living Area: 1,138 # of units: Document #: 3270601 Bedrooms: Pool: Total Tax Value: $98,426 Bath(F/H): /
#16   817 N Anita Ave Tucson Az 85705 Owner Name: Riggs Sally /
#17   449 S Elias Ave Tucson Az 85701 Owner
Belau Llc /Rentals By Mary
#18   1014 W Ontario St Tucson Az 85745 Owner Name: Allison Mitzi /Allison Warren
Owner
Villalba
1212 W Delaware St Tucson Az 85745 Owner
Ml Specialist Heating & Coo /
2023 CoreLogic.
reserved
Customer Name : Jeremiah Stiffler Customer Company Name : First American Prepared On : 08/23/2023 ©
All rights

Customer Name : Jeremiah Stiffler

Customer Company Name : First American Prepared On : 08/23/2023

© 2023 CoreLogic. All rights reserved

Subject Property :   859 W Alameda St Tucson AZ 85745

Customer Name : Jeremiah Stiffler

Customer Company Name : First American Prepared On : 08/23/2023

© 2023 CoreLogic. All rights reserved

865 W ALAMEDA ST Distance 0.01 Miles

Owner Name : Almazan Family Subdivision : Menlo Park

Sale Date : 04/01/1973

Total Value : $210,181

Bed / Bath : / 2

Land Use : Sfr

Stories : 1

Yr Blt / Eff Yr Blt : 1955 /

Recording Date : 05/16/1973

Sale Price  : $17,500

Property Tax : $931.07

Lot Acres : 0.17

Living Area : 1,716

APN : 116-18-3150

873 W ALAMEDA ST Distance 0.03 Miles

Owner Name : Elias-ohm Frank Subdivision : Menlo Park

Sale Date : 11/09/2001

Total Value : $130,421

Recording Date : 11/20/2001

Property Tax : $1,179.11

Land Use : Duplex Lot Acres : 0.20

Stories : 1

Yr Blt / Eff Yr Blt : 1973 / 1973

Living Area : 1,506

APN : 116-18-3160

55 N MELWOOD AVE Distance 0.07 Miles

Owner Name : Hudson Murray Macfarland Subdivision : Melwood Place

Sale Date : 01/23/2012

Total Value : $165,778

Bed / Bath : / 1

Land Use : Sfr

Stories : 1

Yr Blt / Eff Yr Blt : 1922 /

Recording Date : 07/27/2012

Sale Price  : $70,000

Property Tax : $836.09

Lot Acres : 0.12

Living Area : 1,015

APN : 116-18-5410

53 N MELWOOD AVE Distance 0.07 Miles

Owner Name : Hudson Duncan M

Sale Date : 10/01/2005

Total Value : $153,691

Bed / Bath : / 1

Land Use : Sfr

Stories : 1

Yr Blt / Eff Yr Blt  : 1922 /

Recording Date : 10/07/2005

Sale Price  : $142,000

Property Tax : $1,496.27

Lot Acres : 0.13

Living Area : 926

APN : 116-18-5420

© 2023 CoreLogic. All rights reserved

Customer Name : Jeremiah Stiffler Customer Company Name : First American Prepared On : 08/23/2023

0.08 Miles

Owner Name : Lomery Ashley Subdivision : Melwood Place

Sale Date : 10/17/2019

Recording Date : 10/25/2019

Total Value : $211,672 Sale Price  : $385,000

Bed / Bath : / 2 Property Tax : $2,069.02

Land Use : Sfr Lot Acres : 0.13

Stories : 1 Living Area : 1,681 Yr Blt / Eff Yr Blt : 1923 / APN : 116-18-5430

N MELWOOD AVE Distance 0.09 Miles

Owner Name : Hudson Murray Macfarland

66.66

Tax : $411.87

Total Value : $25,000 Lot Acres : 0.12

Land Use : Residential Lot APN : 116-18-5390

N MELWOOD AVE

Owner Name : Yeh Shiang-ting Subdivision : Menlo Park

Sale Date : 05/12/2020

Recording Date : 05/15/2020

Total Value : $191,783 Sale Price  : $315,000

Bed / Bath : / 3 Property Tax : $1,931.51

Land Use : Sfr Lot Acres : 0.22

Stories : 1 Living Area : 1,304

Yr Blt / Eff Yr Blt : 1974 / APN : 116-18-2110

Owner Name : Hudson Murray Macfarland

66.66 Property Tax : $411.87

Total Value : $25,000 Lot Acres : 0.12

Land Use : Residential Lot APN : 116-18-5400

0.09 Miles

0.09 Miles

Customer Company Name : First American Prepared On : 08/23/2023

© 2023 CoreLogic. All rights reserved

45
Distance
N MELWOOD AVE
49
Property
39
Distance
47
N MELWOOD AVE Distance
Customer Name : Jeremiah Stiffler

Owner Name : De La Cruz Ariadna Subdivision : Menlo Park

Sale Date : 01/19/2022

Total Value : $129,421

Bed / Bath : / 1

Land Use : Sfr

Stories : 1

Recording Date : 01/24/2022

Sale Price  : $374,500

Property Tax : $1,237.66

Lot Acres : 0.22

Living Area : 1,038

Yr Blt / Eff Yr Blt : 1947 / APN : 116-18-2140 927 W ALAMEDA ST

Owner Name : Carreon Victoria Hernandez Subdivision : Menlo Park

Sale Date : 05/28/1993

Total Value : $174,758

Bed / Bath : / 1

Land Use : Sfr

Stories : 1

Recording Date : 05/28/1993

Sale Price  : $49,900

Property Tax : $727.31

Lot Acres : 0.18

Living Area : 1,046

Yr Blt / Eff Yr Blt : 1948 / APN : 116-18-2020

0.09 Miles

33 N MELWOOD
Distance
AVE
Distance 0.09 Miles
Customer Name : Jeremiah Stiffler
© 2023 CoreLogic.
rights reserved
Customer Company Name : First American Prepared On : 08/23/2023
All
Census Tract / block: 2.00 / 2     Year: 2020 Household Population Population by Age Count: 4,426 0 - 11 Estimate Current Year: 4,123 12 - 17 Estimate in 5 Years: 3,106 18 - 24 24.67% Growth Last 5 Years: 8.9% 25 - 64 47.99% Growth Last 10 Years: -73.25% 65 - 74 8.11% 75+ Household Size Household Income Current Year: 2,288 0 - $25,000 35.31% Average Current Year: 1.9 $25,000 - $35,000 9% Estimate in 5 Years: 2,344 $35,000 - $50,000 11.54% Growth Last 5 Years: 8.35% $50,000 - $75,000 28.45% Growth Last 10 Years: 10.44% $75,000 - $100,000 3.1% Male Population: 49.73% Above $100,000 12.59% Female Population: 50.27% Average Household Income: $39,868 Married People: 19.32% Unmarried People: 80.68% Housing Median Mortgage Payments Home Values Under $300: 6.4% Below $100,000: 23.26% $300 - $799: 34.59% $100,000 - $150,000: 40.55% $800 - $1,999: 59.01% $150,000 - $200,000: 4.65% Over $2,000: 0% $200,000 - $300,000: 17.88% Median Home Value: $124,000 $300,000 - $500,000: 13.66% Unit Occupied Owner: 30.07% Above $500,000: 0% Median Mortgage: $567
© 2023 CoreLogic.
rights reserved
Customer Name : Jeremiah Stiffler Customer Company Name : First American Prepared On : 08/23/2023
All
Rent Payments Year Built Unit Occupied Renter: 69.93% 1999 - 2000 Median Gross Rent: $821 1995 - 1998 Less Than $499 11.69% 1990 - 1994 $500 - $749 28% 1980 - 1989 28.01% $750 - $999 25.13% 1970 - 1979 21.97% $1000 and Over 35.19% 1900 - 1969 36.67% Education Enrollment Public Pre-Primary School: 0% Not Enrolled in School: 66.76% Private Pre-Primary School: 1% Not A High School Graduate: 5.32% Public School: 30.95% Graduate Of High School: 22.78% Private School: 2.29% Attended Some College: 28.94% Public College: 17.27% College Graduate: 25.17% Private College: 1.29% Graduate Degree: 17.79% Workforce Occupation: Manager/Prof: 32.74% Private Worker: 55.55% Technical: Government Worker: 22.6% Sales: 38.04% Self Employed Worker: 0.83% Administrative: Unpaid Family Worker: 2.19% Private House Hold: Farming: 2.9% Service: 23.22% Skilled: Protective Services: Blue-Collar: 6% Commute Time Less Than 15 Min: 52.83% 15 min - 28 min: 30.2% 30 min - 57 min: 14.2% Over 60 min: 2.78% Customer
Customer
Name : First American Prepared On : 08/23/2023 © 2023 CoreLogic. All rights reserved
Name : Jeremiah Stiffler
Company

Customer Name : Jeremiah Stiffler

Customer Company Name : First American Prepared On : 08/23/2023

© 2023 CoreLogic. All rights reserved

Customer Name : Jeremiah Stiffler

Customer Company Name : First American Prepared On : 08/23/2023

© 2023 CoreLogic. All rights reserved

Customer Name : Jeremiah Stiffler

Customer Company Name : First American Prepared On : 08/23/2023

© 2023 CoreLogic. All rights reserved

Arizona Schools For detailed information and statistics on Arizona schools please go to https://azreportcards.azed.gov/ First American Title Insurance Company, and the operating divisions thereof, make no express or implied warranty respecting the information presented and assume no responsibility for errors or omissions. First American, the eagle logo, First American Title, and firstam.com are registered trademarks or trademarks of First American Financial Corporation and/or its affiliates. ©2021 First American Financial Corporation and/or its affiliates. All rights reserved. NYSE: FAF 05117910421

PIMA COUNTY

School District Information

This map is provided for general location only. Please contact school districts for actual street boundaries

05249570321 TUCSON INT'L AIRPORT Air Force WSilverbellRd SSantaRitaRd N M t L emmon Hwy ESascoRd NF38 W Avra Valley Rd E Grand Va ey Dr NAguirre R d N L u c k e R d N W e n t z R d N Wa terman Mounta i n R d N Anway Rd W El Tiro Rd N Trico Rd W Tucker Rd W Rudas l Rd W Manvi e Rd SSanJoaquinRd WBopp Rd W Snyder H l Rd S M a r s e a r R d W Park Rd W Hermans Rd W Hermans Rd W Guy St W Bush Rd S G a v e y R d N C a e R i n c o n a d o S W m o R d S Shaw Rd S Sierrita Mountain Rd S K o b R d W TwinButtes Rd W Mcgee Ranch Rd S E s t a n c a D r EDesertDove E Hemlock Dr N Bea r C a n y o n R d W E Camino Del Cerro E Fairmount St S Swan Rd NFrontageRd W Emigh Rd W Fort Lowe Rd N P u m p S t a t ion dR E Nona Rd Ch efButteRd Lo al Ave N Trico Rd S Cattle Tank Rd Evalyn Rd SOwlHead R a n c h Rd GasLineRd S P ec a n R d N T r c o R d W Bayard Rd S S a n d a r o R d W i l l owSpri n gsRd N Dove Mountain Blvd SHelvetiaRd WAnamax Mine Rd W G a c i a R a n hc R d Road424 WRagged Top Rd W Ruby Star Dr WBritten RanchRd W Pima Mine Rd S Mcgee Ranch R d E Edw n Rd SGuildRd 8 0 NKINNEYRD S PICACHO HWY E BAUMGARTNER RD N S A N D A R I O R D N ANWAY RD W VALENCIA RD W MOORE RD W INA RD N 1 S T A V E E SUNRISE DR E SNYDER RD NSILVERBELLRD N S O L D I E R T R L E RIVER RD E PRINCE RD E SPEEDWAY BLVD S FREEMAN RD E 22ND ST E 22ND ST W IRVINGTON RD S N O G A L E S H W Y W VALENCIA RD SMISSIONRD W SPEEDWAY BLVD S O L D S P A N I S H T RL W NARANJA DR W TWIN PEAKS RD W PICTURE ROCKS RD W MANVILLE RD SKINNEYRD W MILE WIDE RD E SAHUARITA RD N TRICO RD S S A N D A R O R D PARK LINK DR S OLD N O G ALES HW Y S H O U G H T O N R D S L A C A N A D A DR W HELMET PEAK RD WAJOHWY N S W A N R D S KOLB RD S HOUGHTON RD W TANGERINE RD E GRANT RD S H O U G H T O N R D 9 5 WAJOHWY E VALENCIA RD NORACLE R D I10 I-19 77 77 77 86 86 286 10 19 10 10 Corona de Tucson Casas Adobes Catalina Green Valley Oracle Picture Rocks Three Points Vail Summit Tanque Verde Tucson Sahuarita Red Rock Saddlebrooke Marana Oro Valley Rillito Summerhaven Willow Canyon Oracle Junction Cortaro Continental Littletown 20 30 13 15 51 39 12 01 01 08 10 16 11 06
SCHOOL DISTRICTS 15 AJO UNIFIED 111 N. Well Road, Ajo, AZ 85321 520.387.5618 51 ALTAR VALLEY ELEMENTARY 10105 S. Sasabe Road, Tucson, AZ 85736 520.822.1484 10 AMPHITHEATER UNIFIED 701 W. Wetmore, Tucson, AZ 85705 520.696.5000 16 CATALINA FOOTHILS UNIFIED 2101 E. River Road, Tucson, AZ 85718 520.209.7500 39 CONTINENTAL ELEMENTARY 1991 E. Whitehouse Canyon, Green Valley, AZ 85614 520.625.4581 08 FLOWING WELLS UNIFIED 1556 W. Prince Road, Tucson, AZ 85705 520.696.8800 06 MARANA UNIFIED 11279 W. Grier Road, Marana, AZ 85653 520.682.3243 11 PIMA COUNTY JTED 2855 W. Master Pieces Dr, Tucson, AZ 85741 520.352.5833 30 SAHUARITA UNIFIED 350 W. Sahuarita Road, Sahuarita, AZ 85629 520.625.3502 12 SUNNYSIDE UNIFIED 2238 E. Ginter Road, Tucson, AZ 85706 520.545.2000 13 TANQUE VERDE UNIFIED 2300 N. Tanque Verde Loop, Tucson, AZ 85749 520.749.5751 01 TUCSON UNIFIED 1010 E. 10th Street, Tucson, AZ 85717 520.225.6000 20 VAIL UNIFIED 10701 E. Mary Ann Cleveland Way, Tucson, AZ 85747 520.879.2000 First American Title Insurance Company, and the operating divisions thereof, make no express or implied warranty respecting the information presented and assume no responsibility for errors or omissions. First American, the eagle logo, First American Title, and firstam.com are registered trademarks or trademarks of First American Financial Corporation and/or its affiliates. ©2021 First American Financial Corporation and/or its affiliates. All rights reserved. NYSE: FAF

SEARCH PARAMETERS

PARCEL:  116-18-3140

PARCEL: 116-18-3140

OWNER: RIOS DAVISON LOURDES LETITIA & RIOS

SITUS: 859 W ALAMEDA ST TUC

MAIL: EDDIE GOLDBAUM JT/RS

859 W ALAMEDA

TUCSON AZ 85745

PLAT: LOT 00004 BLOCK 014

LEGAL: MENLO PARK RESUB OF BLK 14 LOT 4  CURRENT TAXES

END SEARCH

+ FIRST AMERICAN TITLE, FC0, JSTI
08/23/2023  09:36AM  R9C8  INVESTIGATIVE SEARCH RESULTS PAGE 1 OF 1
PIMA, AZ
INSTRUMENT REC DATE
9738 2804 02/28/1994
INFORMATION THROUGH 07/28/2023 LAND IMPR EXEMPT RATE AREA SPECIAL DISTRICTS PRIMARY  10,976  0  0  11.1537  0150 SECONDARY  50  17,287  0  2.7742  2022 TOTAL TAX BILLED 1,340.66 2022  TAX AMT TAX DUE INTEREST DATE PAID TOTAL DUE FIRST HALF  670.33  0.00  0.00  10/26/2022  0.00  SECOND HALF  670.33  0.00  0.00  03/09/2023  0.00  TOTAL CURRENT TAXES DUE 08/23 0.00 09/23 0.00 IMPROVEMENTS RESIDENTIAL  PHYSICAL CONDITION   BELOW AVE BLDG SQFT  1,240 FULL CASH VALUE  173,375 YEAR BUILT  1960 LAND USE  01 31 NUMBER OF STORIES  1.0 LOT SIZE  7,192 SQ FT STORIES HEIGHT  0 SCHOOL DISTRICT  0150 EXTERIOR WALLS  BRICK LAND FULL CASH VALUE  502 GRADE MATERIALS IMPR FULL CASH VALUE  172,873 SALES NO SALES
SFR
ADDITIONAL PROPERTY INFORMATION STANDARD LAND USE:
Page 1 of 1 08/23/2023 9:38 AM
Page 1 of 3 08/23/2023 9:38 AM
Page 2 of 3 08/23/2023 9:38 AM
Page 3 of 3 08/23/2023 9:38 AM

Turn static files into dynamic content formats.

Create a flipbook
Issuu converts static files into: digital portfolios, online yearbooks, online catalogs, digital photo albums and more. Sign up and create your flipbook.