Digital Listing Kit 1652 E Christina St

Page 1

Subject Property

1652 E Christina St Casa Grande AZ 85122 APN: 505-61-023

Provided

© 2024 CoreLogic. All rights reserved
Data
By: First American Title Ins Co

WIRE FRAUD ALERT THINK DIFFERENTLY

Email-based, real estate fraud schemes are on the rise. One common scenario is altering wiring instructions with the intention of rerouting funds.

Keeping this in mind, First American Title is changing the way we receive payment information. It is imperative that we are familiar with the people in our transactions.

RELYING ON EMAIL ALONE IS NO LONGER AN OPTION.

Fraudsters often use email to send falsified wire instructions to unsuspecting victims. Please warn your buyers and sellers to only follow wire instructions they receive personally from First American Title.

Additionally, we will not accept disbursement instructions for seller or buyer funds via email OR from any third party (attorney, real estate agent, etc).

ALTERNATIVE INSTRUCTIONS?

If your buyer or seller receives alternative wiring instructions that appear to be from First American Title, make sure they contact their escrow officer at a trusted phone number for confirmation.

Know that our wiring instructions do not change so any communication is suspect. Our banking institution is First American Trust.

IN SHORT – wire instructions will not be accepted by email. New wire instructions must be hand-carried or uploaded to the First American Secure Portal.

Thank you for joining First American Title in fostering a secure real estate transaction process. Have questions or concerns? Please contact our office or your escrow officer.

01100180621
IN THE REAL ESTATE CLOSING PROCESS For more information please contact your First American representative. www.firstam.com First American Title Insurance Company, and the operating divisions thereof, make no express or implied warranty respecting the information presented and assume no responsibility for errors or omissions. First American, the eagle logo, First American Title, and firstam.com are registered trademarks or trademarks of First American Financial Corporation and/or its affiliates. ©2023 First American Financial Corporation and/or its affiliates. All rights reserved. NYSE: FAF
DO NOT TRUST EMAILED INSTRUCTIONS YOU SHOULD BE AWARE OF PRECAUTIONS

LIMITATION OF LIABILITY FOR INFORMATIONAL REPORTS

IMPORTANT -- PLEASE READ CAREFULLY:

This report is not an insured product or service or a representation of the condition of title to real property. It is not an abstract, legal opinion, opinion of title, title insurance commitment or preliminary report, or any form of Title Insurance or Guaranty. This report is issued exclusively for the benefit of the Applicant therefor and may not be used or relied upon by any other person. This report may not be reproduced in any manner without First Americans prior written consent. First American does not represent or warrant that the information herein is complete or free from error, and the information herein is provided without any warranties of any kind, as-is, and with all faults. As a material part of the consideration given in exchange for the issuance of this report, recipient agrees that First Americans sole liability for any loss or damage caused by an error or omission due to inaccurate information or negligence in preparing this report shall be limited to the fee charged for the report. Recipient accepts this report with this limitation and agrees that First American would not have issued this report but for the limitation of liability described above. First American makes no representation or warranty as to the legality or propriety of recipient's use of the information herein.

Disclaimer

This REiSource report is provided "as is" without warranty of any kind, either express or implied, including without limitations any warrantees of merchantability or fitness for a particular purpose. There is no representation of warranty that this information is complete or free from error, and the provider does not assume, and expressly disclaims, any liability to any person or entity for loss or damage caused by errors or omissions in this REiSource report without a title insurance policy.

The information contained in the REiSource report is delivered from your Title Company, who reminds you that you have the right as a consumer to compare fees and serviced levels for Title, Escrow, and all other services associated with property ownership, and to select providers accordingly. Your home is the largest investment you will make in your lifetime and you should demand the very best.

Data
First American Title Ins Co
Provided By:
© 2024 CoreLogic. All rights reserved

Subject Property :   1652 E Christina St Casa Grande AZ 85122

Owner Information

Owner Name : Jetmore Donald / Jetmore Sheila

Mailing Address : 1652 E Christina St, Casa Grande AZ 85122-5367 C017

Owner Occupied Indicator : O

Location Information

Legal Description : Parkview Iii Unit 1: Lot 23 Por Of E1/2 Nw Sec 27-6s-6e 7,280 Sqft Cab B Sld 83

County : Pinal, Az

Census Tract / Block : 14.07 / 1

Township-Range- Sect : 06S-06E-27

Legal Lot : 23

Last Market Sale Information

Recording/Sale Date : 03/22/2016 / 03/08/2016

Sale Price : $143,500

Document # : 16751

Deed Type : Warranty Deed

Title Company : Title Sec Agcy Llc

Lender : Vip Mtg

Seller Name : Angel Arthur W & Marie R

Prior Sale Information

Prior Rec/Sale Date : 07/25/2003 / 06/00/2003

Prior Sale Price : $112,250

Property Characteristics

Gross Area : 1,846

Living Area : 1,356

Above Grade : 1356

Year Built / Eff : 1994

# of Stories : 1

Parking Type : Attached Garage

APN : 505-61-023

Subdivision : Parkview 03

Map Reference : 2706S06E

1st Mtg Amount/Type : $83,500 / Cnv

1st Mtg Document # : 16752

1st Mtg Term : 30

Price Per SqFt : $105.83

Prior Doc Number : 50799

Prior Deed Type : Warranty Deed

Garage Area : 490

Roof Type : Truss-joist

Cooling Type : Heat Pump

Exterior wall : Plaster

Foundation : Concrete Porch Type : Slab

Roof Material : Composition Shingle

Construction : Steel/wood

Heat Type : Heat Pump

Pool : Gunite

Quality : Average

Floor Cover : Carpet

: Jeremiah

Customer Name
Stiffler
© 2024 CoreLogic. All rights reserved
Customer Company Name : First American Prepared On : 06/13/2024

Property Information

Land Use : Sfr

Size : 7,405

Use : Single Fam Resurban Subd Lot Acres : 0.17

Tax Information Total Value : $159,336

Lot
State
Improve
Tax
Current
Improvement Value :
Property Tax : $1,422.94 Current Year Improvement Value : $14,923 Total Taxable Value :
Tax Rate Area : 0428 Current Year Land Value :
Market
Customer Name : Jeremiah Stiffler Customer Company Name : First American Prepared On : 06/13/2024 © 2024 CoreLogic. All rights reserved
% : 88% Current Assessed Year : 2025 Land Value : $19,500
Year : 2023
Year Total Value : $18,623
$139,836
$10,807
$3,700 Assessed Year : 2023
Value : $159,336
Sales
Criteria Subject Property Low High Average Sale Price $143,500 $155,000 $338,110 $286,216 Bldg/Living Area 1356 1156 1532 1405 Price Per Square Foot $105.83 $119 $235 $203.97 Year Built 1994 1986 2023 2002 Lot Size 7,405 5,750 7,841 6,875 Bedrooms Bathrooms Stories 1 1 1 1 Total Assessed Value $159,336 $1,500 $195,244 $114,777 Distance From Subject 0 0.07 0.73 0.45 Summary of Comparables # Address Sale Price Total Assessed Value Sale Date Bed Bath Living Area Lot Size Year Built Dist (Miles) Zoning S 1652 E Christina St 143,500 159,336 03/22/2016 1,356 7,405 1994 1 1622 E Christina St 264,000 150,019 08/22/2023 1,472 7,405 1996 0.07 2 1622 E Krystal St 319,000 146,939 04/15/2024 1,385 7,405 1996 0.08 3 248 N Monterey St 330,000 147,658 05/02/2024 1,523 7,841 1993 0.2 4 1733 E Catalina St 275,000 126,415 10/11/2023 1,178 7,841 1993 0.23 5 77 N Sierra Cir 305,000 130,283 07/19/2023 1,522 7,841 1989 0.27 6 90 N Sierra Cir 309,900 111,869 09/20/2023 1,407 7,841 1986 0.28 7 1735 E Parkview Ave 303,000 131,953 09/22/2023 1,485 6,970 1992 0.28 8 90 N Granada Cir 290,000 118,667 12/28/2023 1,522 7,841 1987 0.31 9 1566 E Fletcher Dr 299,987 1,500 09/28/2023 1,440 6,534 2023 0.54 10 1583 E Fletcher Dr 323,000 1,500 08/31/2023 1,440 6,534 2023 0.55 11 1575 E Fletcher Dr 303,315 1,500 09/08/2023 1,440 6,534 2023 0.56 12 1723 E Sycamore Rd 282,000 169,581 07/31/2023 1,292 6,547 1998 0.56 13 1571 E Fletcher Dr 338,110 1,500 10/17/2023 1,440 6,534 2023 0.56 14 1543 E Fletcher Dr 328,000 1,500 08/31/2023 1,440 6,534 2023 0.58 Customer Name : Jeremiah Stiffler Customer Company Name : First American Prepared On : 06/13/2024 © 2024 CoreLogic. All rights reserved
Analysis
15 1718 E Sycamore Rd 155,000 177,947 07/28/2023 1,299 6,961 1999 0.58 16 1546 E Falcon Ct 220,000 195,244 12/08/2023 1,532 5,750 2001 0.59 17 1770 E Sandalwood Rd 300,000 171,661 10/17/2023 1,304 6,050 2001 0.68 18 1774 E Sandalwood Rd 285,000 169,738 08/22/2023 1,290 6,050 2001 0.68 19 1133 N Agave St 289,000 186,771 05/10/2024 1,529 6,437 2001 0.69 20 1778 E Birch St 205,000 153,300 04/26/2024 1,156 6,050 2000 0.73 Distressed Sales = Map Customer Name : Jeremiah Stiffler Customer Company Name : First American Prepared On : 06/13/2024 © 2024 CoreLogic. All rights reserved

Details of Comparables

Subject Property: 1652 E Christina St Casa Grande Az 85122

Owner Name: Jetmore Donald /Jetmore Sheila APN / Alternate APN: 505-61-023 / Deed Type: Warranty Deed

Subdivision / Tract: Parkview 03 / Lot Size: 7,405

Land Use: Sfr

Year Built / Eff: 1994 / Rec. Date / Price: 03/22/2016 / $143,500 Living Area: 1,356

Document #: 16751

Total Tax Value: $159,336

# of units:

Bedrooms: Pool: Gunite

Bath(F/H): /

#1   1622 E Christina St Casa Grande Az 85122

Owner Name: Zubiate Jose Chavez / APN / Alternate APN: 505-61-058 / Deed Type: Warranty Deed

Subdivision / Tract: Parkview 03 02 / Lot Size: 7,405

Rec. Date / Price: 08/22/2023 / $264,000 Living Area: 1,472

Document #: 61923

Total Tax Value: $150,019

#2   1622 E Krystal St Casa Grande Az 85122

Land Use: Sfr

Year Built / Eff: 1996 /

# of

Bedrooms: Pool:

Bath(F/H): /

Owner Name: Magana Melvin O / APN / Alternate APN: 505-61-046 / Deed Type: Warranty Deed

Subdivision / Tract: Parkview 03 02 / Lot Size: 7,405

Rec. Date / Price: 04/15/2024 / $319,000 Living Area: 1,385

Document #: 27440

Total Tax Value: $146,939

Land Use: Sfr

Year Built / Eff: 1996 /

# of

Bedrooms: Pool:

Bath(F/H): /

#3   248 N Monterey St Casa Grande Az 85122

Owner Name: Gonzalez Emily /Toledo Cristian D

APN / Alternate APN: 505-50-124 / Deed Type: Warranty Deed

Subdivision / Tract: Parkview Sierra Ranch / Lot Size: 7,841

Rec. Date / Price: 05/02/2024 / $330,000 Living Area: 1,523

Document #: 32970

Total Tax Value: $147,658

Bedrooms:

Bath(F/H): /

#4   1733 E Catalina St Casa Grande Az 85122

Owner Name: Miller Paul W /

APN / Alternate APN: 505-50-120 / Deed Type: Warranty Deed

Subdivision / Tract: Parkview Sierra Ranch / Lot Size: 7,841

Rec. Date / Price: 10/11/2023 / $275,000 Living Area: 1,178

Document #: 75275

Total Tax Value: $126,415

Bedrooms:

Bath(F/H): /

Land Use: Sfr

Year Built / Eff: 1993 /

# of units:

Pool:

Land Use: Sfr

Year Built / Eff: 1993 /

# of units:

Pool:

Name : Jeremiah Stiffler Customer Company Name : First American Prepared On : 06/13/2024

units:
units:
Customer
© 2024 CoreLogic. All rights reserved

#5   77 N Sierra Cir Casa Grande Az 85122

Owner Name: Rochin Cesar Vidal /Soto Jarumy A Altamirano

APN / Alternate APN: 505-50-052 / Deed Type: Warranty Deed

Subdivision / Tract: Parkview 03 02 / Lot Size: 7,841

Land Use: Sfr

Year Built / Eff: 1989 / Rec. Date / Price: 07/19/2023 / $305,000 Living Area: 1,522

Document #: 53013

Total Tax Value: $130,283

#6   90 N Sierra Cir Casa Grande Az 85122

# of units:

Bedrooms: Pool:

Bath(F/H): /

Owner Name: Harmon Carrie /Thorhauer Sean M

APN / Alternate APN: 505-50-047 / Deed Type: Warranty Deed

Subdivision / Tract: Parkview/sierra Ranch / Lot Size: 7,841

Rec. Date / Price: 09/20/2023 / $309,900 Living Area: 1,407

Document #: 69578

Total Tax Value: $111,869

Land Use: Sfr

Year Built / Eff: 1986 /

# of units:

Bedrooms:

Bath(F/H): /

#7   1735 E Parkview Ave Casa Grande Az 85122

Owner Name: Korman Edward David Jr /Korman Kellee Lynn

APN / Alternate APN: 505-50-157 / Deed Type: Warranty Deed

Subdivision / Tract: Parkview Sierra Ranch / Lot Size: 6,970

Rec. Date / Price: 09/22/2023 / $303,000 Living Area: 1,485

Document #: 70317

Total Tax Value: $131,953

Bedrooms:

Bath(F/H): /

#8   90 N Granada Cir Casa Grande Az 85122

Owner Name: Maxwell Dante /

APN / Alternate APN: 505-50-040 / Deed Type: Warranty Deed

Subdivision / Tract: Parkview 03 02 / Lot Size: 7,841

Rec. Date / Price: 12/28/2023 / $290,000 Living Area: 1,522

Document #: 93347

Total Tax Value: $118,667

Land Use: Sfr

Year Built / Eff: 1992 /

# of units:

Pool:

Land Use: Sfr

Year Built / Eff: 1987 /

# of units:

Bedrooms: Pool:

Bath(F/H): /

#9   1566 E Fletcher Dr Casa Grande Az 85122

Owner Name: Wornica L Paul Trust / APN / Alternate APN: 505-27-124 / Deed Type: Corporation Grant Deed

Subdivision / Tract: Carlton Commons Ph

1 / Lot Size: 6,534

Rec. Date / Price: 09/28/2023 / $299,987 Living Area: 1,440

Document #: 72235

Total Tax Value: $1,500

Land Use: Sfr

Year Built / Eff: 2023 /

# of units:

Bedrooms: Pool:

Bath(F/H): / Customer Name : Jeremiah Stiffler Customer Company Name : First American Prepared On : 06/13/2024

Pool:
© 2024 CoreLogic. All rights reserved

#10   1583 E Fletcher Dr Casa Grande Az 85122

Owner Name: Woods Jhourdan Michael Bober / APN / Alternate APN: 505-27-138 / Deed Type: Corporation Grant Deed

Subdivision / Tract: Carlton Commons Ph 1 / Lot Size: 6,534

Rec. Date / Price: 08/31/2023 / $323,000 Living Area: 1,440

Document #: 65142

Total Tax Value: $1,500

Land Use: Sfr

Year Built / Eff: 2023 /

# of units:

Bedrooms: Pool:

Bath(F/H): /

#11   1575 E Fletcher Dr Casa Grande Az 85122

Owner Name: Blissful Residence Llc / APN / Alternate APN: 505-27-140 / Deed Type: Special Warranty Deed

Subdivision / Tract: Carlton Commons Ph 1 / Lot Size: 6,534

Rec. Date / Price: 09/08/2023 / $303,315 Living Area: 1,440

Document #: 66835

Total Tax Value: $1,500

Land Use: Sfr

Year Built / Eff: 2023 /

Bedrooms: Pool:

Bath(F/H): /

#12   1723 E Sycamore Rd Casa Grande Az 85122

Owner Name: Garcia Eric Russell /Castillo Victoria Yvonne

APN / Alternate APN: 505-69-117 / Deed Type: Warranty Deed

Subdivision / Tract: Sandalwood Ph 01 / Lot Size: 6,547

Land Use: Sfr

Year Built / Eff: 1998 /

Rec. Date / Price: 07/31/2023 / $282,000 Living Area: 1,292 #

Document #: 56327

Total Tax Value: $169,581

Bedrooms:

Bath(F/H): /

#13   1571 E Fletcher Dr Casa Grande Az 85122

Owner Name: Devon Amy Jo /Bonsen Darci Ellen

APN / Alternate APN: 505-27-141 / Deed Type: Corporation Grant Deed

Subdivision / Tract: Carlton Commons Ph 1 / Lot Size: 6,534

Rec. Date / Price: 10/17/2023 / $338,110 Living Area: 1,440

Document #: 76542

Total Tax Value: $1,500

Land Use: Sfr

Year Built / Eff: 2023 /

# of units:

Bedrooms: Pool:

Bath(F/H): /

#14   1543 E Fletcher Dr Casa Grande Az 85122

Owner Name: Castro Melanie Cecilia / APN / Alternate APN: 505-27-147 / Deed Type: Corporation Grant Deed

Subdivision / Tract: Carlton Commons Ph 1 / Lot Size: 6,534

Rec. Date / Price: 08/31/2023 / $328,000 Living Area: 1,440

Document #: 64983

Total Tax Value: $1,500

Land Use: Sfr

Year Built / Eff: 2023 /

# of units:

Bedrooms:

Bath(F/H): /

# of units:
units:
of
Pool:
Pool:
Customer
Stiffler Customer
Prepared
© 2024 CoreLogic. All rights reserved
Name : Jeremiah
Company Name : First American
On : 06/13/2024

#15   1718 E Sycamore Rd Casa Grande Az 85122

Owner Name: Valenzuela Wendy Marisol / APN / Alternate APN: 505-69-111 / Deed Type: Warranty Deed

Subdivision / Tract: Villa De Jardines Ph 01 / Lot Size: 6,961

Rec. Date / Price: 07/28/2023 / $155,000 Living Area: 1,299

Document #: 55659

Total Tax Value: $177,947

Bedrooms:

Bath(F/H): /

#16   1546 E Falcon Ct Casa Grande Az 85122

Owner Name: Lee John H Jr /Lee Cameisha C

APN / Alternate APN: 505-83-080 / Deed Type: Warranty Deed

Subdivision / Tract: Silverhawk / Lot Size: 5,750

Land Use: Sfr

Year Built / Eff: 1999 /

# of units:

Pool:

Land Use: Sfr

Year Built / Eff: 2001 / Rec. Date / Price: 12/08/2023 / $220,000 Living Area: 1,532

Document #: 89056

Total Tax Value: $195,244

# of units:

Bedrooms: Pool:

Bath(F/H): /

#17   1770 E Sandalwood Rd Casa Grande Az 85122

Owner Name: Martinez Gualberto G (te) & Li /Martinez

APN / Alternate APN: 505-80-058 / Deed Type: Warranty Deed

Subdivision / Tract: Sandalwood Ph 03 / Lot Size: 6,050

Land Use: Sfr

Year Built / Eff: 2001 / Rec. Date / Price: 10/17/2023 / $300,000 Living Area: 1,304

Document #: 76487

Total Tax Value: $171,661

# of units:

Bedrooms: Pool:

Bath(F/H): /

#18   1774 E Sandalwood Rd Casa Grande Az 85122

Owner Name: Brown Emily R / APN / Alternate APN: 505-80-057 / Deed Type: Warranty Deed

Subdivision / Tract: Sandalwood Ph 03 / Lot Size: 6,050

Rec. Date / Price: 08/22/2023 / $285,000 Living Area: 1,290

Document #: 61835

Total Tax Value: $169,738

Land Use: Sfr

Year Built / Eff: 2001 /

# of units:

Bedrooms: Pool:

Bath(F/H): /

#19   1133 N Agave St Casa Grande Az 85122

Owner Name: Garcia Jose /Garcia Berenice

APN / Alternate APN: 505-83-004 / Deed Type: Warranty Deed

Subdivision / Tract: Siverhawk / Lot Size: 6,437

Land Use: Sfr

Year Built / Eff: 2001 / Rec. Date / Price: 05/10/2024 / $289,000 Living Area: 1,529

Document #: 35082

Total Tax Value: $186,771

# of units:

Bedrooms:

Bath(F/H): /

Pool:
Customer
Jeremiah Stiffler Customer Company Name
First American Prepared On
06/13/2024 © 2024 CoreLogic. All rights reserved
Name :
:
:

#20   1778 E Birch St Casa Grande Az 85122

Owner Name: Kirby Clint J / APN / Alternate APN: 505-80-019 / Deed Type: Warranty Deed

Subdivision / Tract: Sandalwood Ph 03 / Lot Size: 6,050

Land Use: Sfr

Year Built / Eff: 2000 / Rec. Date / Price: 04/26/2024 / $205,000 Living Area: 1,156

Document #: 31143

Total Tax Value: $153,300

Bedrooms:

Bath(F/H): /

# of units:

Pool:

Customer Name : Jeremiah Stiffler Customer Company Name : First American Prepared On : 06/13/2024 © 2024 CoreLogic. All rights reserved
Customer Name : Jeremiah Stiffler Customer Company Name : First American Prepared On : 06/13/2024 © 2024 CoreLogic. All rights reserved
Subject Property :   1652 E Christina St Casa Grande AZ 85122
© 2024 CoreLogic. All rights reserved
Customer Name : Jeremiah Stiffler Customer Company Name : First American Prepared On : 06/13/2024

1646 E

Owner Name : Ramos Alvaro

Sale Date : 08/00/2004

Total Value : $130,140

Land Use : Sfr

Stories : 1

Blt / Eff Yr Blt : 1995 /

Subdivision  : Parkview 03 1656 E

Owner Name : Smith Charles E

Sale Date : 06/27/2016

Recording Date : 08/31/2004

Price  : $114,500

Tax : $492.84

Acres : 0.17

Recording Date : 06/27/2016

Price  : $136,500 Total Value : $138,665

Tax : $1,221.18 Land Use : Sfr

Stories : 1

/

Subdivision  : Parkview 03 1653 E

Owner Name : Dawkins Bryan

Sale Date : 03/05/2012

$141,633

Use : Sfr

Stories : 1

Acres : 0.17

Area : 1,462

Recording Date : 04/16/2012

Price  : $72,000

$1,221.40

0.17

Area : 1,212

Yr Blt / Eff Yr Blt : 1994 / APN : 505-61-028

Subdivision  : Parkview 03 02

1657 E KRYSTAL ST

Owner Name : Lopez Bernardo

Sale Date : 06/29/2021

Recording Date : 07/13/2021

Price  : $270,000 Total Value : $134,148

Land Use : Sfr

Stories : 1

$1,021.48

0.17

Area : 1,433

Yr Blt / Eff Yr Blt : 1994 / APN : 505-61-029

Subdivision  : Parkview 03 01

Name : Jeremiah Stiffler

Company Name : First American Prepared On : 06/13/2024

CHRISTINA ST Distance 0.01 Miles
Sale
Property
Lot
Living
Yr
APN :
Area : 1,251
505-61-024
CHRISTINA ST Distance 0.01 Miles
Property
Lot
Sale
Living
Yr
APN :
Blt / Eff Yr Blt : 1994
505-61-022
KRYSTAL ST Distance 0.02 Miles
Value :
Property Tax :
Lot Acres :
Sale
Total
Land
Living
Distance 0.02 Miles
Sale
Property Tax :
Lot Acres :
Living
Customer
© 2024 CoreLogic. All rights reserved
Customer

1647 E

1662 E

Owner Name : White Janet L

Sale Date : 10/11/2013

Total Value : $129,242

Land Use : Sfr

Stories : 1

Blt / Eff Yr Blt : 1995 /

Subdivision  : Parkview 03 01

Owner Name : Burnette Christine

Sale Date : 01/03/2017

Recording Date : 11/01/2013

Price  : $94,500

Tax : $989.44

Acres : 0.17

Recording Date : 02/02/2017

Price  : $147,000 Total Value : $156,746

Tax : $1,281.18 Land Use : Sfr

Stories : 1

Subdivision  : Parkview 03 1640 E

Owner Name : Morales Ben H

Acres : 0.17

Area : 1,446

Recording Date : 07/27/1998

Sale Date : 07/10/1998 Sale Price  : $108,900

$144,417

Sfr

Stories : 1

$1,251.02

0.19

Area : 1,504 Yr Blt / Eff Yr Blt : 1994 / APN : 505-61-025

Subdivision  : Parkview 03 01

1653 E CHRISTINA ST

Owner Name : Scharf Joshua D

Sale Date : 12/18/2015

0.03 Miles

Recording Date : 12/22/2015

Price  : $100,000 Total

$134,498

$977.06 Land Use : Sfr

Stories : 1

0.17

Area : 1,209

Yr Blt / Eff Yr Blt : 1995 / APN : 505-61-012

Subdivision  : Parkview 03

Name : Jeremiah Stiffler

Company Name : First American Prepared On : 06/13/2024

ST Distance 0.02 Miles
KRYSTAL
Sale
Property
Lot
Living
Yr
APN :
Area : 1,198
505-61-027
CHRISTINA ST Distance 0.03 Miles
Property
Lot
Sale
Living
Yr Blt
APN :
CHRISTINA ST Distance 0.03 Miles
/ Eff Yr Blt : 1995 /
505-61-021
Total Value :
Property Tax :
Lot Acres :
Land Use :
Living
Distance
Sale
Property Tax :
Lot
Value :
Acres :
Living
Customer
© 2024 CoreLogic. All rights reserved
Customer

1657 E CHRISTINA ST Distance 0.03 Miles

Owner Name : Zejnelovski Ibraim

Recording Date : 09/06/2022

Sale Date : 08/12/2022 Sale Price  : $237,500

Total Value : $143,496

Tax : $1,177.08

Land Use : Sfr Lot Acres : 0.17

Stories : 1

Area : 1,257

Yr Blt / Eff Yr Blt : 1995 / APN : 505-61-013

Subdivision  : Parkview 03

1647 E CHRISTINA ST Distance 0.03 Miles

Owner Name : Juergens Barbara J

Recording Date : 03/18/2015

Sale Date : 03/17/2015 Sale Price  : $119,000 Total Value : $135,142

Land Use : Sfr

Stories : 1

Tax : $1,028.78

Acres : 0.17

Area : 1,291

Yr Blt / Eff Yr Blt : 1995 / APN : 505-61-011

Subdivision  : Parkview Iii #1

Property
Living
Property
Lot
Living
Customer
Customer
© 2024 CoreLogic. All rights reserved
Name : Jeremiah Stiffler
Company Name : First American Prepared On : 06/13/2024

Census Tract / block: 14.07 / 1     Year: 2020

Household Population Population by Age Count: 2,132 0 - 11 Estimate Current Year: 1,979 12 - 17 Estimate in 5 Years: 1,469 18 - 24 4.92% Growth Last 5 Years: -11.87% 25 - 64 44.42% Growth Last 10 Years: -147.76% 65 - 74 17.12% 75+ Household Size Household Income Current Year: 781 0 - $25,000 21.51% Average Current Year: 2.67 $25,000 - $35,000 7.43% Estimate in 5 Years: 450 $35,000 - $50,000 25.1% Growth Last 5 Years: -14.85% $50,000 - $75,000 27.4% Growth Last 10 Years: 9.24% $75,000 - $100,000 10.5% Male Population: 49.62% Above $100,000 8.07% Female Population: 50.38% Average Household Income: $49,016 Married People: 52.25% Unmarried People: 47.75% Housing Median Mortgage Payments Home Values Under $300: 13.82% Below $100,000: 58.23% $300 - $799: 51.4% $100,000 - $150,000: 16.15% $800 - $1,999: 34.78% $150,000 - $200,000: 18.79% Over $2,000: 0% $200,000 - $300,000: 1.86% Median Home Value: $67,300 $300,000 - $500,000: 4.19% Unit Occupied Owner: 82.46% Above $500,000: 0.78% Median Mortgage: $629 Customer Name : Jeremiah Stiffler Customer Company Name : First American Prepared On : 06/13/2024 © 2024 CoreLogic. All rights reserved
Rent
Year Built Unit Occupied Renter: 17.54% 1999 - 2000 Median Gross Rent: $791 1995 - 1998 Less Than $499 8.41% 1990 - 1994 $500 - $749 27.1% 1980 - 1989 13.3% $750 - $999 38.32% 1970 - 1979 14.39% $1000 and Over 26.17% 1900 - 1969 1.77% Education Enrollment Public Pre-Primary School: 0.39% Not Enrolled in School: 78.55% Private Pre-Primary School: 0% Not A High School Graduate: 16.42% Public School: 19.15% Graduate Of High School: 39.37% Private School: 2.3% Attended Some College: 25.86% Public College: 4.49% College Graduate: 13.96% Private College: 0% Graduate Degree: 4.4% Workforce Occupation: Manager/Prof: 15.13% Private Worker: 68.02% Technical: Government Worker: 17.32% Sales: 14.51% Self Employed Worker: 6.86% Administrative: Unpaid Family Worker: 1.56% Private House Hold: Farming: 12.95% Service: 25.27% Skilled: Protective Services: Blue-Collar: 45.09% Commute Time Less Than 15 Min: 36.26% 15 min - 28 min: 43.49% 30 min - 57 min: 13.97% Over 60 min: 6.28% Customer Name : Jeremiah Stiffler Customer Company Name : First American Prepared On : 06/13/2024 © 2024 CoreLogic. All rights reserved
Payments
Customer
Customer
© 2024 CoreLogic. All rights reserved
Name : Jeremiah Stiffler
Company Name : First American Prepared On : 06/13/2024
Customer
Customer
© 2024 CoreLogic. All rights reserved
Name : Jeremiah Stiffler
Company Name : First American Prepared On : 06/13/2024
Customer
Jeremiah
Customer
First
Prepared On
06/13/2024 © 2024 CoreLogic. All rights reserved
Name :
Stiffler
Company Name :
American
:

Arizona Schools

For detailed information and statistics on Arizona schools please go to https://azreportcards.azed.gov/ First American Title Insurance Company, and the operating divisions thereof, make no express or implied warranty respecting the information presented and assume no responsibility for errors or omissions. First American, the eagle logo, First American Title, and firstam.com are registered trademarks or trademarks of First American Financial Corporation and/or its affiliates. ©2021 First American Financial Corporation and/or its affiliates. All rights reserved. NYSE: FAF 05117910421

PIMA COUNTY

05249570321 TUCSON INT'L AIRPORT Air Force WSilverbellRd SSantaRitaRd N M t L emmon Hwy ESascoRd NF38 W Avra Valley Rd E Grand Va ey Dr NAguirre R d N L u c k e R d N W e n t z R d N Wa terman Mounta i n R d N Anway Rd W El Tiro Rd N Trico Rd W Tucker Rd W Rudas l Rd W Manvi e Rd SSanJoaquinRd WBopp Rd W Snyder H l Rd S M a r s e a r R d W Park Rd W Hermans Rd W Hermans Rd W Guy St W Bush Rd S G a v e y R d N C a e R i n c o n a d o S W m o R d S Shaw Rd S Sierrita Mountain Rd S K o b R d W TwinButtes Rd W Mcgee Ranch Rd S E s t a n c a D r EDesertDove E Hemlock Dr N Bea r C a n y o n R d W E Camino Del Cerro E Fairmount St S Swan Rd NFrontageRd W Emigh Rd W Fort Lowe Rd N P u m p S t a t ion dR E Nona Rd Ch efButteRd Lo al Ave N Trico Rd S Cattle Tank Rd Evalyn Rd SOwlHead R a n c h Rd GasLineRd S P ec a n R d N T r c o R d W Bayard Rd S S a n d a r o R d W i l l owSpri n gsRd N Dove Mountain Blvd SHelvetiaRd WAnamax Mine Rd W G a c i a R a n hc R d Road424 WRagged Top Rd W Ruby Star Dr WBritten RanchRd W Pima Mine Rd S Mcgee Ranch R d E Edw n Rd SGuildRd 8 0 NKINNEYRD S PICACHO HWY E BAUMGARTNER RD N S A N D A R I O R D N ANWAY RD W VALENCIA RD W MOORE RD W INA RD N 1 S T A V E E SUNRISE DR E SNYDER RD NSILVERBELLRD N S O L D I E R T R L E RIVER RD E PRINCE RD E SPEEDWAY BLVD S FREEMAN RD E 22ND ST E 22ND ST W IRVINGTON RD S N O G A L E S H W Y W VALENCIA RD SMISSIONRD W SPEEDWAY BLVD S O L D S P A N I S H T RL W NARANJA DR W TWIN PEAKS RD W PICTURE ROCKS RD W MANVILLE RD SKINNEYRD W MILE WIDE RD E SAHUARITA RD N TRICO RD S S A N D A R O R D PARK LINK DR S OLD N O G ALES HW Y S H O U G H T O N R D S L A C A N A D A DR W HELMET PEAK RD WAJOHWY N S W A N R D S KOLB RD S HOUGHTON RD W TANGERINE RD E GRANT RD S H O U G H T O N R D 9 5 WAJOHWY E VALENCIA RD NORACLE R D I10 I-19 77 77 77 86 86 286 10 19 10 10 Corona de Tucson Casas Adobes Catalina Green Valley Oracle Picture Rocks Three Points Vail Summit Tanque Verde Tucson Sahuarita Red Rock Saddlebrooke Marana Oro Valley Rillito Summerhaven Willow Canyon Oracle Junction Cortaro Continental Littletown 20 30 13 15 51 39 12 01 01 08 10 16 11 06
School District Information This map is provided for general location only. Please contact school districts for actual street boundaries SCHOOL DISTRICTS 15 AJO UNIFIED 111 N. Well Road, Ajo, AZ 85321 520.387.5618 51 ALTAR VALLEY ELEMENTARY 10105 S. Sasabe Road, Tucson, AZ 85736 520.822.1484 10 AMPHITHEATER UNIFIED 701 W. Wetmore, Tucson, AZ 85705 520.696.5000 16 CATALINA FOOTHILS UNIFIED 2101 E. River Road, Tucson, AZ 85718 520.209.7500 39 CONTINENTAL ELEMENTARY 1991 E. Whitehouse Canyon, Green Valley, AZ 85614 520.625.4581 08 FLOWING WELLS UNIFIED 1556 W. Prince Road, Tucson, AZ 85705 520.696.8800 06 MARANA UNIFIED 11279 W. Grier Road, Marana, AZ 85653 520.682.3243 11 PIMA COUNTY JTED 2855 W. Master Pieces Dr, Tucson, AZ 85741 520.352.5833 30 SAHUARITA UNIFIED 350 W. Sahuarita Road, Sahuarita, AZ 85629 520.625.3502 12 SUNNYSIDE UNIFIED 2238 E. Ginter Road, Tucson, AZ 85706 520.545.2000 13 TANQUE VERDE UNIFIED 2300 N. Tanque Verde Loop, Tucson, AZ 85749 520.749.5751 01 TUCSON UNIFIED 1010 E. 10th Street, Tucson, AZ 85717 520.225.6000 20 VAIL UNIFIED 10701 E. Mary Ann Cleveland Way, Tucson, AZ 85747 520.879.2000 First American Title Insurance Company, and the operating divisions thereof, make no express or implied warranty respecting the information presented and assume no responsibility for errors or omissions. First American, the eagle logo, First American Title, and firstam.com are registered trademarks or trademarks of First American Financial Corporation and/or its affiliates. ©2021 First American Financial Corporation and/or its affiliates. All rights reserved. NYSE: FAF

SEARCH PARAMETERS

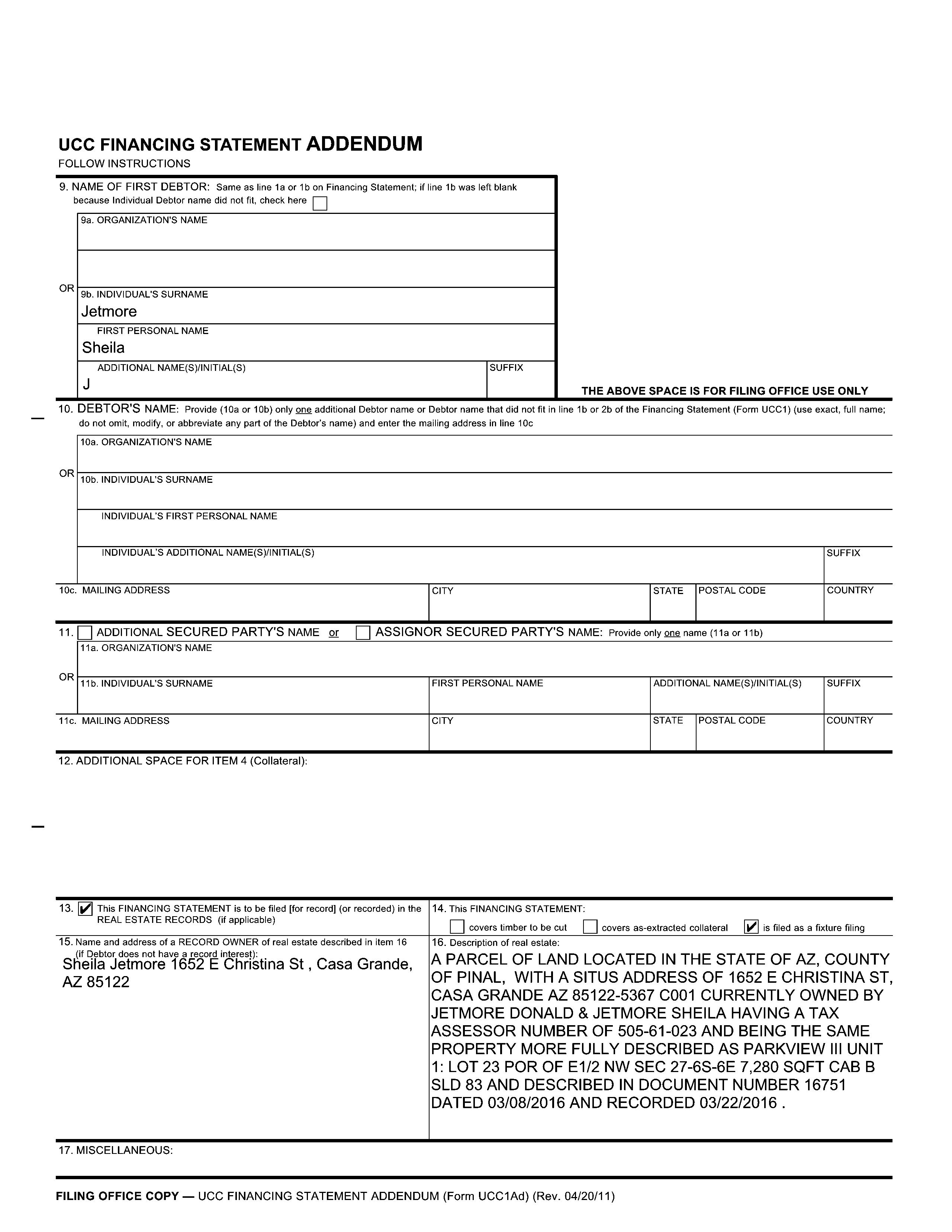
PARCEL:  505-61-0230

PARCEL: 505-61-0230 3

OWNER: JETMORE DONALD/SHEILA  AFFIDAVIT    2016 16751 03/22/2016

SITUS: 1652 E CHRISTINA ST CASA GRANDE

MAIL: 523 E JACKSON ST  COLUMBIA CITY IN 46725

LEGAL: PARKVIEW III UNIT 1: LOT 23 POR OF E1/2 NW SEC 27-6S-6E 7,280 SQ FT CAB B SLD 83

CURRENT TAXES INFORMATION THROUGH 06/01/2024

11900 14613 14900 15625 16601

24001 30002

ADDITIONAL PROPERTY INFORMATION

+ FIRST AMERICAN TITLE, FC0, JSTI PINAL (PL), AZ
INVESTIGATIVE SEARCH RESULTS PAGE 1 OF 1
06/13/2024  12:35PM  R9C8
INSTRUMENT REC DATE
LAND IMPR EXEMPT RATE AREA SPECIAL DISTRICTS PRIMARY
0  9.8719  0428
SECONDARY  1,950  13,984  0  3.1477
2023 TOTAL TAX BILLED 1,422.94 2023  TAX AMT TAX DUE INTEREST DATE PAID TOTAL DUE FIRST HALF  711.47  0.00  0.00  10/27/2023  0.00  SECOND HALF  711.47  0.00  0.00  05/01/2024  0.00  TOTAL CURRENT TAXES DUE 06/24 0.00 07/24 0.00 IMPROVEMENTS SINGLE FAMILY HOME  PHYSICAL CONDITION   ABOVE AVERAGE BLDG SQFT  1,356 FULL CASH VALUE  159,336 YEAR BUILT  1994 LAND USE  01 31 NUMBER OF STORIES  1.0 LOT SIZE  0.170 ACRES STORIES HEIGHT  9 SCHOOL DISTRICT  0428 EXTERIOR WALLS LAND FULL CASH VALUE  19,500 GRADE MATERIALS IMPR FULL CASH VALUE  139,836 RESIDENTIAL YARD IMPROVEMENTS  PHYSICAL CONDITION   ABOVE AVERAGE BLDG SQFT  1 FULL CASH VALUE  159,336 YEAR BUILT  2007 LAND USE  01 31 NUMBER OF STORIES  1.0 LOT SIZE  0.170 ACRES STORIES HEIGHT  1 SCHOOL DISTRICT  0428 EXTERIOR WALLS LAND FULL CASH VALUE  19,500 GRADE MATERIALS IMPR FULL CASH VALUE  139,836 SALES SALE DATE SALE AMOUNT INSTRUMENT TYPE SELLER NAME VALIDITY 03/22/2016 143,500    2016 16751 WD ANGEL ARTHUR W/MARIE R 07/25/2003 112,250    2003 50799 WD GILLESPIE GUY M
10,807  0
STANDARD LAND USE: SFR END SEARCH
PINAL (PL), AZ Document:DED WAR 2016.16751 Page:1 of 3 Printed on:6/13/2024 12:39 PM Branch :FC0 User :JSTI
PINAL (PL), AZ Document:DED WAR 2016.16751 Page:2 of 3 Printed on:6/13/2024 12:39 PM Branch :FC0 User :JSTI
PINAL (PL), AZ Document:DED WAR 2016.16751 Page:3 of 3 Printed on:6/13/2024 12:39 PM Branch :FC0 User :JSTI
PINAL (PL), AZ Document:DOT 2016.16752 Page:1 of 17 Printed on:6/13/2024 12:39 PM Branch :FC0 User :JSTI
PINAL (PL), AZ Document:DOT 2016.16752 Page:2 of 17 Printed on:6/13/2024 12:39 PM Branch :FC0 User :JSTI
PINAL (PL), AZ Document:DOT 2016.16752 Page:3 of 17 Printed on:6/13/2024 12:39 PM Branch :FC0 User :JSTI
PINAL (PL), AZ Document:DOT 2016.16752 Page:4 of 17 Printed on:6/13/2024 12:39 PM Branch :FC0 User :JSTI
PINAL (PL), AZ Document:DOT 2016.16752 Page:5 of 17 Printed on:6/13/2024 12:39 PM Branch :FC0 User :JSTI
PINAL (PL), AZ Document:DOT 2016.16752 Page:6 of 17 Printed on:6/13/2024 12:39 PM Branch :FC0 User :JSTI
PINAL (PL), AZ Document:DOT 2016.16752 Page:7 of 17 Printed on:6/13/2024 12:39 PM Branch :FC0 User :JSTI
PINAL (PL), AZ Document:DOT 2016.16752 Page:8 of 17 Printed on:6/13/2024 12:39 PM Branch :FC0 User :JSTI
PINAL (PL), AZ Document:DOT 2016.16752 Page:9 of 17 Printed on:6/13/2024 12:39 PM Branch :FC0 User :JSTI
PINAL (PL), AZ Document:DOT 2016.16752 Page:10 of 17 Printed on:6/13/2024 12:39 PM Branch :FC0 User :JSTI
PINAL (PL), AZ Document:DOT 2016.16752 Page:11 of 17 Printed on:6/13/2024 12:39 PM Branch :FC0 User :JSTI
PINAL (PL), AZ Document:DOT 2016.16752 Page:12 of 17 Printed on:6/13/2024 12:39 PM Branch :FC0 User :JSTI
PINAL (PL), AZ Document:DOT 2016.16752 Page:13 of 17 Printed on:6/13/2024 12:39 PM Branch :FC0 User :JSTI
PINAL (PL), AZ Document:DOT 2016.16752 Page:14 of 17 Printed on:6/13/2024 12:39 PM Branch :FC0 User :JSTI
PINAL (PL), AZ Document:DOT 2016.16752 Page:15 of 17 Printed on:6/13/2024 12:39 PM Branch :FC0 User :JSTI
PINAL (PL), AZ Document:DOT 2016.16752 Page:16 of 17 Printed on:6/13/2024 12:39 PM Branch :FC0 User :JSTI
PINAL (PL), AZ Document:DOT 2016.16752 Page:17 of 17 Printed on:6/13/2024 12:39 PM Branch :FC0 User :JSTI
PINAL (PL), AZ Document:UCC 2022.45683 Page:1 of 2 Printed on:6/13/2024 12:39 PM Branch :FC0 User :JSTI
PINAL (PL), AZ Document:UCC 2022.45683 Page:2 of 2 Printed on:6/13/2024 12:39 PM Branch :FC0 User :JSTI

Turn static files into dynamic content formats.

Create a flipbook
Issuu converts static files into: digital portfolios, online yearbooks, online catalogs, digital photo albums and more. Sign up and create your flipbook.