12055 N Musket Rd, Marana, AZ 85653

Page 1

Data Provided By: First American Title Ins Co

Property 12055 N Musket Rd Marana AZ 85653 APN: 208-18-220D
Subject
© 2023 CoreLogic. All rights reserved

LIMITATION OF LIABILITY FOR INFORMATIONAL REPORTS

IMPORTANT -- PLEASE READ CAREFULLY:

This report is not an insured product or service or a representation of the condition of title to real property. It is not an abst ract, legal opinion, opinion of title, title insurance commitment or preliminary report, or any form of Title Insurance or Guaranty. This report is issued exclusively for the benefit of the Applicant therefor and may not be used or relied upon by any other person. This report may not be reproduced in any manner without First American or Title Security's prior written consent. First American or Title Security does not represent or warrant that the information herein is complete or free from error, and the information herein is provided without any warranties of any kind, as-is, and with all faults. As a material part of the consideration given in exchange for the issuance of this report, recipient agrees that First American or Title Security's sole liability for any loss or damage caused by an error or omission due to inaccurate information or negligence in preparing this report shall be limited to the fee charged for the report. Recipient accepts this report with this limitation and agrees that First American or Title Security would not have issued this report but for the limitation of liability described above. First American or Title Security makes no representation or warranty as to the legality or propriety of recipient's use of the information herein.

Disclaimer

This REiSource report is provided "as is" without warranty of any kind, either express or implied, including without limitations any warrantees of merchantability or fitness for a particular purpose. There is no representation of warranty that this information is complete or free from error, and the provider does not assume, and expressly disclaims, any liability to any person or entity for loss or damage caused by errors or omissions in this REiSource report without a title insurance policy.

The information contained in the REiSource report is delivered from your Title Company, who reminds you that you have the right as a consumer to compare fees and serviced levels for Title, Escrow, and all other services associated with property ownership, and to select providers accordingly. Your home is the largest investment you will make in your lifetime and you should demand the very best.

Data Provided By: First American Title Ins Co
© 2023 CoreLogic. All rights reserved

Subject Property :   12055 N Musket Rd Marana AZ 85653

Owner Information

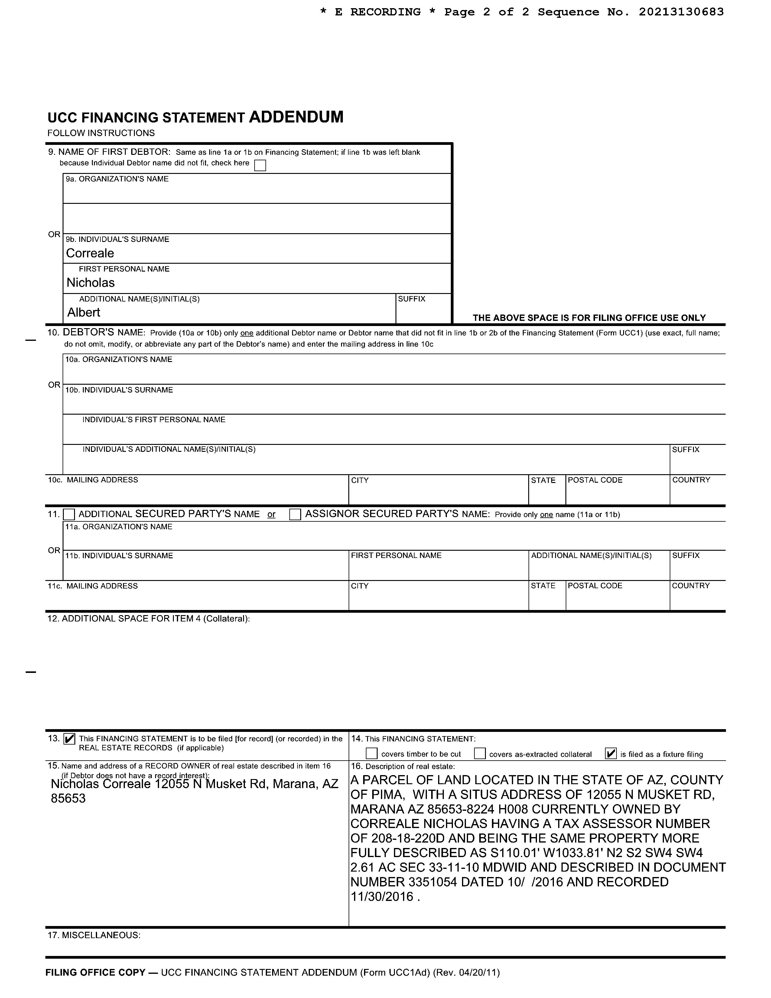
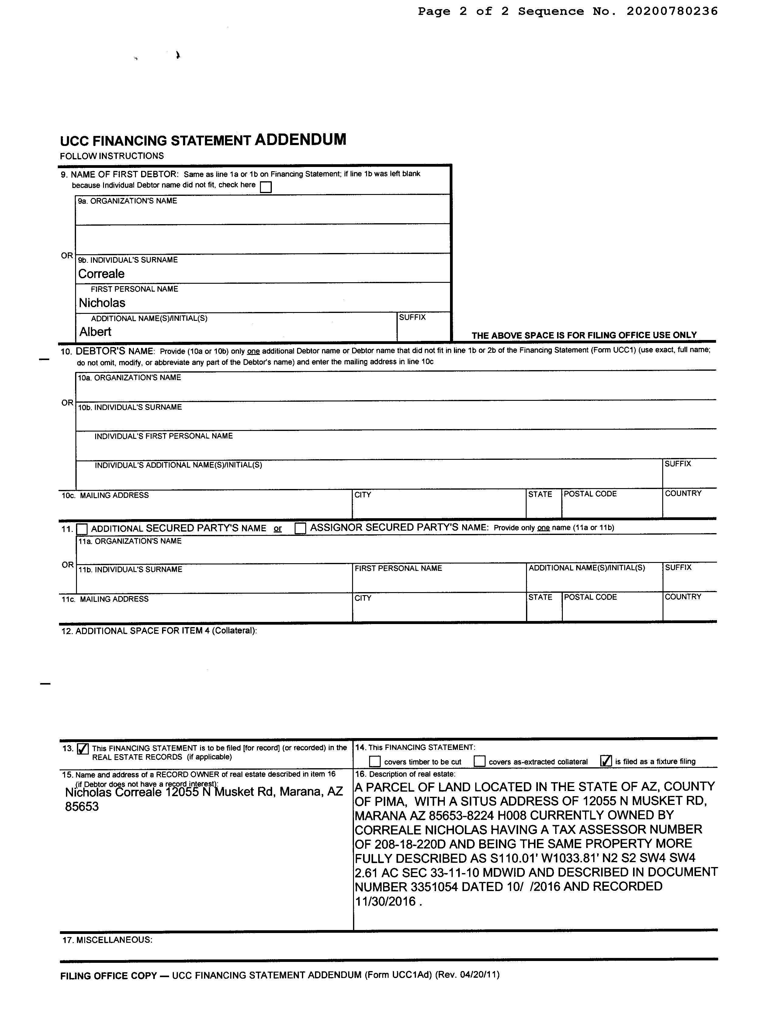
Owner Name : Correale Nicholas

Mailing Address : 12055 N Musket Rd, Marana AZ 85653-8224 H008

Owner Occupied Indicator : O

Location Information

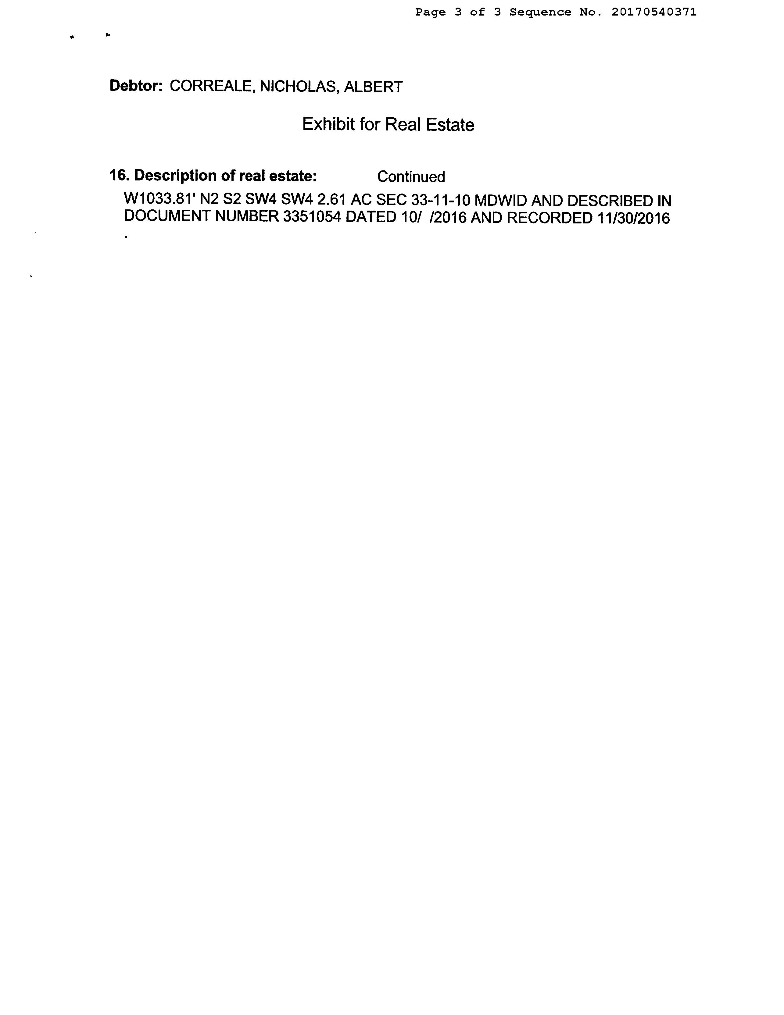
Legal Description : S110.01' W1033.81' N2 S2 Sw4 Sw4 2.61 Ac Sec 33-11-10 Mdwid

County : Pima, Az

Census Tract / Block : 44.19 / 4

Township-Range- Sect : 11S-10E-33

Market Area : 412

Owner Transfer Information

Recording/Sale Date : 02/09/2021 / 02/04/2021

Document # : 401093

Last Market Sale Information

APN : 208-18-220D

Map Reference : 33-11S-10E

School District : Marana

Munic/Township : Marana

Deed Type : Special Warranty Deed

Recording/Sale Date : 11/30/2016 / 11/17/2016 1st Mtg Amount/Type : $107,855 / Fha

Sale Price : $110,000 1st Mtg Document # : 3351055

Document # : 3351054 1st Mtg Term : 30

Deed Type : Warranty Deed

Title Company : Fidelity Title

Lender : Nova Fin'l & Inv Corp

Seller Name : Marnard Douglas

Prior Sale Information

Prior Rec/Sale Date : 03/31/2014 / 03/19/2014

Prior Sale Price : $102,000

Prior Deed Type : Warranty Deed

Prior Lender : Land Hm Fin'l Svcs

Prior Doc Number : 900331 Prior 1st Mtg Amt/Type : $96,900 / Conv

Property Characteristics

Year Built / Eff : 2009 / 2009 Parking Type : Detached Garage

# of Stories : 1 Garage Area : 840

Construction : Steel/wood

Customer Name : Jeremiah Stiffler

Customer Company Name : First American Prepared On : 04/25/2023

© 2023 CoreLogic. All rights reserved

Property Information Land Use : Mobile Home Zoning : GR-1 Lot Size : 113,692 County Use : Mh Non Subd Lot-affixed Mf Hm Lot Acres : 2.61 State Use : Mh Non Subd Lot-affixed Mf Hm Tax Information Total Value : $86,097 Property Tax : $1,272.10 Current Year Total Value : $10,752 Total Taxable Value : $8,610 Tax Rate Area : 0643 Current Year Improvement Value : $7,552 Assessed Year : 2022 Market Value : $86,097 Current Year Land Value : $3,200 Tax Year : 2022 Current Assessed Year : 2024
Name : Jeremiah Stiffler Customer Company Name : First American Prepared On : 04/25/2023 © 2023 CoreLogic. All rights reserved
Customer
Criteria Subject Property Low High Average Sale Price $110,000 $55,000 $383,000 $217,846 Bldg/Living Area 2240 2240 2240 Price Per Square Foot $171 $171 $170.98 Year Built 2009 1972 2006 1994 Lot Size 113,692 41,614 188,615 54,660 Bedrooms Bathrooms Stories 1 1 1 1 Total Assessed Value $86,097 $13,000 $148,493 $62,369 Distance From Subject 0 0.12 0.97 0.68 Summary of Comparables # Address Sale Price Total Assessed Value Sale Date Bed Bath Living Area Lot Size Year Built Dist (Miles) Zoning S 12055 N Musket Rd 110,000 86,097 11/30/2016 113,692 2009 GR-1 1 12085 N Musket Rd 235,000 69,700 10/21/2022 43,560 2006 0.12 GR-1 2 11895 N Derringer Rd 273,000 63,388 05/09/2022 80,586 1996 0.41 GR-1 3 11865 N Derringer Rd 55,000 19,777 02/17/2023 48,352 1995 0.43 GR-1 4 12006 N Star Cluster Dr 383,000 148,493 10/20/2022 2,240 188,615 2001 0.44 RH 5 17182 W Calle Carmela 244,000 13,000 06/30/2022 50,094 0.56 GR-1 6 17134 W Calle Carmela 230,000 82,420 03/01/2023 50,094 2005 0.58 GR-1 7 16940 W Calle Amaya 125,000 59,277 06/08/2022 45,212 1982 0.6 SH 8 12465 N Derringer Rd 100,000 42,040 02/08/2023 50,478 1988 0.65 SH 9 11531 N Musket Rd 240,000 48,890 11/22/2022 43,560 1996 0.68 GR-1 10 11645 N Placita Marcela 220,000 51,590 09/23/2022 48,144 1995 0.74 SH Customer Name : Jeremiah Stiffler Customer Company Name : First American Prepared On : 04/25/2023 © 2023 CoreLogic. All rights reserved
Sales Analysis
11 16961 W Calle Carmela 330,000 125,752 05/10/2022 41,831 1995 0.74 SH 12 16900 W Calle Carmela 259,011 72,406 10/11/2022 44,723 1998 0.75 SH 13 12571 N Derringer Rd 225,000 45,456 05/16/2022 41,897 1995 0.75 SH 14 11525 N Paseo Alejandro 242,000 53,762 07/20/2022 44,753 1996 0.83 SH 15 16821 W Calle Carmela 199,900 45,303 04/27/2022 44,298 1995 0.84 SH 16 11515 N Paseo Alejandro 305,000 93,066 06/17/2022 45,391 1996 0.85 SH 17 11641 N Paseo Anastasia 195,000 33,223 02/07/2023 45,391 1985 0.85 SH 18 16951 W Placita Dato 90,000 64,979 06/22/2022 41,614 1995 0.93 SH 19 11442 N Paseo Alejandro 303,000 61,195 06/15/2022 48,945 1996 0.96 SH 20 12666 N Single Six Rd 103,000 53,662 10/14/2022 45,654 1972 0.97 SH Distressed Sales = Customer Name : Jeremiah Stiffler Customer Company Name : First American Prepared On : 04/25/2023 © 2023 CoreLogic. All rights reserved

Customer Name : Jeremiah Stiffler

Customer Company Name : First American Prepared On : 04/25/2023

© 2023 CoreLogic. All rights reserved

Map

Details of Comparables

Subject

Owner Name: Burns Ryan /Burns Haley

APN / Alternate APN: 208-18-220D
Deed Type: Warranty Deed Land Use: Mobile Home Subdivision / Tract: / Lot Size: 113,692 Year Built / Eff: 2009 /2009 Rec. Date / Price: 11/30/2016 / $110,000 Living Area: # of units: Document #: 3351054 Bedrooms: Pool: Total Tax Value: $86,097 Bath(F/H): /
APN / Alternate APN: 208-18-220F
Deed Type: Warranty Deed Land Use: Mobile Home Subdivision / Tract: / Lot Size: 43,560 Year Built / Eff: 2006 /2006 Rec. Date / Price: 10/21/2022 / $235,000 Living Area: # of units: Document #: 2940691 Bedrooms: Pool: Total Tax Value: $69,700 Bath(F/H): /
Property: 12055 N Musket Rd Marana Az 85653 Owner Name: Correale Nicholas /
/
#1   12085 N Musket Rd Marana Az 85653 Owner Name: Perez Cesar /
/
#2   11895 N Derringer Rd Marana Az 85653
APN / Alternate APN: 208-25-009B
Deed Type: Warranty Deed Land Use: Mobile Home Subdivision / Tract: / Lot Size: 80,586 Year Built / Eff: 1996 /1996 Rec. Date / Price: 05/09/2022 / $273,000 Living Area: # of units: Document #: 1290854 Bedrooms: Pool: Total Tax Value: $63,388 Bath(F/H): / #3   11865 N Derringer Rd Marana Az 85653 Owner Name: Tucson Acquisition & Dev Co / APN / Alternate APN: 208-25-009G / Deed Type: Warranty Deed Land Use: Mobile Home Subdivision / Tract: / Lot Size: 48,352 Year Built / Eff: 1995 /1995 Rec. Date / Price: 02/17/2023 / $55,000 Living Area: # of units: Document #: 480487 Bedrooms: Pool: Total Tax Value: $19,777 Bath(F/H): / #4
Owner Name:
Dominique APN / Alternate APN: 208-25-033C / Deed Type: Warranty Deed Land Use: Mobile Home Subdivision / Tract: / Lot Size: 188,615 Year Built / Eff: 2001 /2001 Rec. Date / Price: 10/20/2022 / $383,000 Living Area: 2,240 # of units: Document #: 2930485 Bedrooms: Pool: Total Tax Value: $148,493 Bath(F/H): /
Customer Company Name : First American Prepared On : 04/25/2023 © 2023 CoreLogic. All rights reserved
/
12006 N Star Cluster Dr Marana Az 85653
Neari Nicholas /Cichon
Customer Name : Jeremiah Stiffler

#5   17182 W Calle Carmela Marana Az 85653

Owner Name: Hobson Robert Allan /

#6   17134 W Calle Carmela Marana Az 85653

Owner Name: Ortiz Maria L /Cerros Luis D O

#7   16940 W Calle Amaya Marana Az 85653

Owner Name: Rosas Mike /Rosas Insalaco

Date / Price: 06/08/2022 / $125,000 Living Area:

#8   12465 N Derringer Rd Marana Az 85653

Owner Name: Post Land Co Llc /

/ Alternate APN: 208-19-1260 / Deed Type: Warranty Deed

/ Tract: El Tirador Estates / Lot Size: 50,478

#9   11531 N Musket Rd Marana Az 85653

Owner Name: Anna Derik K /Barth Ramona M

/ Alternate APN: 208-25-025G / Deed Type: Joint Tenancy Deed

Date / Price: 11/22/2022 / $240,000 Living Area:

Document #: 3260477

Tax Value: $48,890

#10   11645 N Placita Marcela Marana Az 85653

Owner Name: Miranda Raul C /Miranda Mary A

/

Eff: 1982 /1982

Use: Mobile Home

/ Eff: 1996 /1996

APN / Alternate APN: 208-26-1200 / Deed Type: Warranty Deed Land Use: Mobile Home

Subdivision / Tract: Rancho Del Sol Lindo / Lot Size: 48,144 Year Built / Eff: 1995 /1995 Rec. Date / Price: 09/23/2022 / $220,000 Living Area:

Document #: 2660133

Total Tax Value: $51,590

/

Customer Name : Jeremiah Stiffler

Customer Company Name : First American Prepared On : 04/25/2023

© 2023 CoreLogic. All rights reserved

APN
Land Use: Mobile Home Subdivision /
50,094 Year Built / Eff: / Rec. Date
Area: # of units: Document #:
Bedrooms: Pool: Total Tax Value: $13,000 Bath(F/H): /
/ Alternate APN: 208-25-024H / Deed Type: Warranty Deed
Tract: / Lot Size:
/ Price: 06/30/2022 / $244,000 Living
1810296
APN
Land Use: Mobile Home Subdivision / Tract:
Lot Size: 50,094 Year Built / Eff: 2005 /2005 Rec. Date / Price:
Living Area: # of units: Document #: 600465 Bedrooms: Pool: Total Tax Value: $82,420 Bath(F/H): /
/ Alternate APN: 208-25-024J / Deed Type: Warranty Deed
/
03/01/2023 / $230,000
APN
Land Use: Mobile Home Subdivision / Tract: Rancho
Lot Size: 45,212 Year Built /
Rec.
#
Bedrooms: Pool: Total
Bath(F/H):
/ Alternate APN: 208-26-0530 / Deed Type: Warranty Deed
Del Sol Lindo /
of units: Document #: 1590441
Tax Value: $59,277
/
Land
Subdivision
Year
Rec. Date / Price: 02/08/2023
Living Area: # of units: Document #:
Bedrooms: Pool: Total Tax Value: $42,040 Bath(F/H):
APN
Built / Eff: 1988 /1988
/ $100,000
390266
/
APN
Land Use:
Subdivision
Year
# of
Bedrooms: Pool: Total
Bath(F/H):
Mobile Home
/ Tract: / Lot Size: 43,560
Built
Rec.
units:
#
of units:
Bedrooms: Pool:
Bath(F/H):

#11   16961 W Calle Carmela Marana Az 85653

Owner Name: Brown Stephen M /

#12   16900 W Calle Carmela Marana Az 85653 Owner

#13   12571 N Derringer Rd Marana Az 85653 Owner Name: Jarman Virgil W Iii /Sanders

#14   11525 N Paseo Alejandro Marana Az 85653

Owner Name: Stoeckle Justin /

#15   16821 W Calle Carmela Marana Az 85653

Owner Name: Duarte Victor Alfredo /

#16   11515 N Paseo Alejandro Marana Az 85653

Owner Name: Borland Brian /Borland Carol A

Customer Name : Jeremiah Stiffler Customer Company Name : First American Prepared On : 04/25/2023

APN / Alternate APN: 208-26-2270 / Deed Type: Warranty Deed Land Use: Mobile Home Subdivision / Tract: Rancho Del Sol Lindo / Lot Size: 41,831 Year Built / Eff: 1995 /1995 Rec. Date / Price: 05/10/2022 / $330,000 Living Area: # of units: Document #: 1300775 Bedrooms: Pool: Gunite Total Tax Value: $125,752 Bath(F/H): /
APN / Alternate APN: 208-26-1080 / Deed Type: Warranty Deed Land Use: Mobile Home Subdivision / Tract: Rancho Del Sol Lindo / Lot Size: 44,723 Year Built / Eff: 1998 /1998 Rec. Date / Price: 10/11/2022 / $259,011 Living Area: # of units: Document #: 2840185 Bedrooms: Pool: Total Tax Value: $72,406 Bath(F/H): /
Name: Hoy Leslie Van /
M APN / Alternate APN: 208-19-1300 / Deed Type: Warranty Deed Land Use: Mobile Home Subdivision / Tract: El Tirador Estates / Lot Size: 41,897 Year Built / Eff: 1995 /1995 Rec. Date / Price: 05/16/2022 / $225,000 Living Area: # of units: Document #: 1360256 Bedrooms: Pool: Total Tax Value: $45,456 Bath(F/H): /
Randi
APN / Alternate APN: 208-26-2230 / Deed Type: Warranty Deed Land Use: Mobile Home Subdivision / Tract: Rancho Del Sol Lindo / Lot Size: 44,753 Year Built / Eff: 1996 /1996 Rec. Date / Price: 07/20/2022 / $242,000 Living Area: # of units: Document #: 2010223 Bedrooms: Pool: Total Tax Value: $53,762 Bath(F/H): /
APN
Alternate
Warranty Deed Land Use: Mobile Home Subdivision / Tract: Del
Year Built / Eff:
Rec. Date / Price: 04/27/2022 / $199,900 Living Area: # of units: Document #: 1170190 Bedrooms: Pool: Total Tax Value: $45,303 Bath(F/H): /
/
APN: 208-26-1480 / Deed Type:
Sol Lindo Rho / Lot Size: 44,298
1995 /1995
APN
Land Use:
Subdivision / Tract:
Year Built
Rec. Date /
06/17/2022
Living Area: # of units: Document #: 1680636 Bedrooms: Pool: Gunite Total Tax Value: $93,066 Bath(F/H):
/ Alternate APN: 208-26-2220 / Deed Type: Warranty Deed
Mobile Home
Rancho Del Sol Lindo / Lot Size: 45,391
/ Eff: 1996 /1996
Price:
/ $305,000
/
© 2023 CoreLogic. All rights reserved

#17   11641 N Paseo Anastasia Marana Az 85653

Owner Name: Lyons Christopher R /

#18   16951 W Placita Dato Marana Az 85653

Owner Name: Woppert Robert L /

#19   11442 N Paseo Alejandro Marana Az 85653

Owner Name: Ford Matthew /

#20   12666 N Single Six Rd Marana Az 85653

Owner Name: Hunt Kenneth B /Hunt Danielle L

Customer Name : Jeremiah Stiffler Customer Company Name : First American Prepared On : 04/25/2023

APN / Alternate APN:
Deed Type: Warranty Deed Land Use: Mobile Home Subdivision / Tract: Rancho Del Sol Lindo / Lot Size: 45,391 Year Built / Eff: 1985 /1985 Rec. Date / Price: 02/07/2023 / $195,000 Living Area: # of units: Document #: 380472 Bedrooms: Pool: Total Tax Value: $33,223 Bath(F/H): /
208-26-1000 /
APN / Alternate APN: 208-26-2440
Deed Type: Warranty Deed Land Use: Mobile Home Subdivision / Tract: Rancho Del Sol Lindo / Lot Size: 41,614 Year Built / Eff: 1995 /1995 Rec. Date / Price: 06/22/2022 / $90,000 Living Area: # of units: Document #: 1730703 Bedrooms: Pool: Total Tax Value: $64,979 Bath(F/H): /
/
APN / Alternate APN: 208-26-1440
Deed Type: Warranty Deed Land Use: Mobile Home Subdivision / Tract: Rancho Del Sol Lindo / Lot Size: 48,945 Year Built / Eff: 1996 /1996 Rec. Date / Price: 06/15/2022
$303,000 Living Area: # of units: Document #: 1660904 Bedrooms: Pool: Total Tax Value: $61,195 Bath(F/H): /
/
/
APN
Land Use: Mobile Home Subdivision / Tract: El Tirador Estates / Lot Size: 45,654 Year Built / Eff: 1972 /1972 Rec. Date / Price: 10/14/2022 / $103,000 Living Area: # of units: Document #: 2870120 Bedrooms: Pool: Total Tax Value: $53,662 Bath(F/H): /
/ Alternate APN: 208-19-0800 / Deed Type: Warranty Deed
©
CoreLogic.
2023
All rights reserved

Customer Name : Jeremiah Stiffler

Customer Company Name : First American Prepared On : 04/25/2023

© 2023 CoreLogic. All rights reserved

Subject Property :   12055 N Musket Rd Marana AZ 85653

Customer Name : Jeremiah Stiffler

Customer Company Name : First American Prepared On : 04/25/2023

© 2023 CoreLogic. All rights reserved

Customer Name : Jeremiah Stiffler

Customer Company Name : First American Prepared On : 04/25/2023

© 2023 CoreLogic. All rights reserved

Arizona Schools For detailed information and statistics on Arizona schools please go to https://azreportcards.azed.gov/ First American Title Insurance Company, and the operating divisions thereof, make no express or implied warranty respecting the information presented and assume no responsibility for errors or omissions. First American, the eagle logo, First American Title, and firstam.com are registered trademarks or trademarks of First American Financial Corporation and/or its affiliates. ©2021 First American Financial Corporation and/or its affiliates. All rights reserved. NYSE: FAF 05117910421

PIMA COUNTY

School District Information

This map is provided for general location only. Please contact school districts for actual street boundaries

05249570321 TUCSON INT'L AIRPORT Air Force WSilverbellRd SSantaRitaRd N M t L emmon Hwy ESascoRd NF38 W Avra Valley Rd E Grand Va ey Dr NAguirre R d N L u c k e R d N W e n t z R d N Wa terman Mounta i n R d N Anway Rd W El Tiro Rd N Trico Rd W Tucker Rd W Rudas l Rd W Manvi e Rd SSanJoaquinRd WBopp Rd W Snyder H l Rd S M a r s e a r R d W Park Rd W Hermans Rd W Hermans Rd W Guy St W Bush Rd S G a v e y R d N C a e R i n c o n a d o S W m o R d S Shaw Rd S Sierrita Mountain Rd S K o b R d W TwinButtes Rd W Mcgee Ranch Rd S E s t a n c a D r EDesertDove E Hemlock Dr N Bea r C a n y o n R d W E Camino Del Cerro E Fairmount St S Swan Rd NFrontageRd W Emigh Rd W Fort Lowe Rd N P u m p S t a t ion dR E Nona Rd Ch efButteRd Lo al Ave N Trico Rd S Cattle Tank Rd Evalyn Rd SOwlHead R a n c h Rd GasLineRd S P ec a n R d N T r c o R d W Bayard Rd S S a n d a r o R d W i l l owSpri n gsRd N Dove Mountain Blvd SHelvetiaRd WAnamax Mine Rd W G a c i a R a n hc R d Road424 WRagged Top Rd W Ruby Star Dr WBritten RanchRd W Pima Mine Rd S Mcgee Ranch R d E Edw n Rd SGuildRd 8 0 NKINNEYRD S PICACHO HWY E BAUMGARTNER RD N S A N D A R I O R D N ANWAY RD W VALENCIA RD W MOORE RD W INA RD N 1 S T A V E E SUNRISE DR E SNYDER RD NSILVERBELLRD N S O L D I E R T R L E RIVER RD E PRINCE RD E SPEEDWAY BLVD S FREEMAN RD E 22ND ST E 22ND ST W IRVINGTON RD S N O G A L E S H W Y W VALENCIA RD SMISSIONRD W SPEEDWAY BLVD S O L D S P A N I S H T RL W NARANJA DR W TWIN PEAKS RD W PICTURE ROCKS RD W MANVILLE RD SKINNEYRD W MILE WIDE RD E SAHUARITA RD N TRICO RD S S A N D A R O R D PARK LINK DR S OLD N O G ALES HW Y S H O U G H T O N R D S L A C A N A D A DR W HELMET PEAK RD WAJOHWY N S W A N R D S KOLB RD S HOUGHTON RD W TANGERINE RD E GRANT RD S H O U G H T O N R D 9 5 WAJOHWY E VALENCIA RD NORACLE R D I10 I-19 77 77 77 86 86 286 10 19 10 10 Corona de Tucson Casas Adobes Catalina Green Valley Oracle Picture Rocks Three Points Vail Summit Tanque Verde Tucson Sahuarita Red Rock Saddlebrooke Marana Oro Valley Rillito Summerhaven Willow Canyon Oracle Junction Cortaro Continental Littletown 20 30 13 15 51 39 12 01 01 08 10 16 11 06
SCHOOL DISTRICTS 15 AJO UNIFIED 111 N. Well Road, Ajo, AZ 85321 520.387.5618 51 ALTAR VALLEY ELEMENTARY 10105 S. Sasabe Road, Tucson, AZ 85736 520.822.1484 10 AMPHITHEATER UNIFIED 701 W. Wetmore, Tucson, AZ 85705 520.696.5000 16 CATALINA FOOTHILS UNIFIED 2101 E. River Road, Tucson, AZ 85718 520.209.7500 39 CONTINENTAL ELEMENTARY 1991 E. Whitehouse Canyon, Green Valley, AZ 85614 520.625.4581 08 FLOWING WELLS UNIFIED 1556 W. Prince Road, Tucson, AZ 85705 520.696.8800 06 MARANA UNIFIED 11279 W. Grier Road, Marana, AZ 85653 520.682.3243 11 PIMA COUNTY JTED 2855 W. Master Pieces Dr, Tucson, AZ 85741 520.352.5833 30 SAHUARITA UNIFIED 350 W. Sahuarita Road, Sahuarita, AZ 85629 520.625.3502 12 SUNNYSIDE UNIFIED 2238 E. Ginter Road, Tucson, AZ 85706 520.545.2000 13 TANQUE VERDE UNIFIED 2300 N. Tanque Verde Loop, Tucson, AZ 85749 520.749.5751 01 TUCSON UNIFIED 1010 E. 10th Street, Tucson, AZ 85717 520.225.6000 20 VAIL UNIFIED 10701 E. Mary Ann Cleveland Way, Tucson, AZ 85747 520.879.2000 First American Title Insurance Company, and the operating divisions thereof, make no express or implied warranty respecting the information presented and assume no responsibility for errors or omissions. First American, the eagle logo, First American Title, and firstam.com are registered trademarks or trademarks of First American Financial Corporation and/or its affiliates. ©2021 First American Financial Corporation and/or its affiliates. All rights reserved. NYSE: FAF

Public Schools :

Elementary Schools

Roadrunner Elementary School Distance 0.99 Miles

16651 W Calle Carmela Marana AZ 85653

Telephone : (520) 616-6363

Lowest Grade : Pre-K

Kindergarten : Yes

School District : Marana Unified District (4404)

Highest Grade : 6th

School Enrollment :

Enrollment : 365 Total Expenditure/Student : 269

Customer Name : Jeremiah Stiffler

Customer Company Name : First American Prepared On : 04/25/2023

© 2023 CoreLogic. All rights reserved

Local Business Attractions / Recreation Name Address Telephone Distance (Miles) The Honey Lovers Club Ltd 12001 N Star Cluster Dr Marana Az (520) 609-4309 0.51 Bf Ventures Llc 12401 N Carbine Rd Marana Az (520) 682-5063 0.55 Mystic Management 17445 W Redrock Ln Marana Az (520) 792-4323 2.33 Angel Diamond Entertainment L L C 16900 W Silverbell Rd Marana Az (520) 682-6108 2.87 Eating / Drinking Name Address Telephone Distance (Miles) Ramirez Restaurants 2, Llc 16962 W Calle Cristobal Marana Az (520) 395-2928 1.02 Circle S Saloon Llc 16021 W El Tiro Rd Marana Az (520) 682-5377 1.68 The Water Hole 16540 W Avra Valley Rd Marana Az (520) 682-5667 3.23 Southwest Pizza Inc 3780 W Ina Rd Marana Az (520) 744-1111 3.24 Health Care Services Name Address Telephone Distance (Miles) Dds On The Mark 12550 N Doral Ave Lot 2 Marana Az (520) 471-0281 1.89 Gidiup Cleaning And Home Care Llc 9858 N Running Back Way Marana Az (480) 433-0609 2.82 Hospitality Name Address Telephone Distance (Miles) Hhh Enterprises, Llc 11351 N Paseo Alejandro Marana Az (520) 294-0748 1.09 Organizations / Associations Name Address Telephone Distance (Miles) Vincent Anderson Aaron 17441 W Picacho Rd Marana Az (520) 268-4073 1.3 Morning Star Fbf 14550 N Aguirre Rd Marana Az (520) 205-0562 3.14 Shopping Name Address Telephone Distance (Miles) Carnivore Candy 16940 W Branch Water Ln Marana Az (520) 616-0795 1.31 Customer Name : Jeremiah Stiffler Customer Company Name : First American Prepared On : 04/25/2023 © 2023 CoreLogic. All rights reserved
Dollar General 15841 W El Tiro Rd Marana Az (520) 682-5214 1.88 Super Stop 401 15841 W El Tiro Rd Marana Az (520) 682-6753 1.88 Dolgencorp, Llc 12355 N Trico Rd Marana Az (520) 282-4550 1.94
Customer Company Name : First American Prepared On : 04/25/2023 © 2023 CoreLogic. All rights reserved
Customer Name : Jeremiah Stiffler

12065 N MUSKET RD Distance 0.02 Miles

Owner Name : Curtis Aila

Sale Date : 02/28/2022

Total Value : $15,000

Sale Price  : $40,000

Property Tax : $370.99

Lot Acres : 2.61

Land Use : Residential Acreage APN : 208-18-220C

Recording Date  : 03/14/2022

12075 N MUSKET RD Distance 0.04 Miles

Owner Name : Denton Angela M

Sale Date : 01/08/2009

Total Value : $29,905

Land Use : Mobile Home

Recording Date : 01/29/2009

Sale Price  : $52,520

Property Tax : $441.93

Lot Acres : 2.61

Stories : 1 APN : 208-18-220B

Yr Blt / Eff Yr Blt  : 2009 / 2009

12101 N MUSKET RD Distance 0.09 Miles

Owner Name : Stewart Larry A

Total Value : $184,746

Bed / Bath : / 2

Recording Date : 12/28/1981

Property Tax : $1,774.44

Lot Acres : 9.78

Land Use : Sfr Living Area : 1,920

Stories : 1 APN : 208-18-2190

Yr Blt / Eff Yr Blt  : 1999 /

12085 N MUSKET RD Distance 0.12 Miles

Owner Name : Perez Cesar

Sale Date : 10/05/2022

Total Value : $69,700

Land Use : Mobile Home

Recording Date : 10/21/2022

Sale Price  : $235,000

Property Tax : $1,029.77

Lot Acres : 1.00

Stories : 1 APN : 208-18-220F

Yr Blt / Eff Yr Blt  : 2006 / 2006

Customer Name : Jeremiah Stiffler

Customer Company Name : First American Prepared On : 04/25/2023

© 2023 CoreLogic. All rights reserved

12091 N MUSKET RD Distance 0.13 Miles

Owner Name : Thompson Misty Lou-ann

Sale Date : 12/16/2013

Total Value : $19,752

Recording Date : 12/26/2013

Sale Price  : $59,000

Property Tax : $291.85

Land Use : Mobile Home Lot Acres : 1.00

Stories : 1 APN : 208-18-220E

Yr Blt / Eff Yr Blt  : 1984 / 1984

17205 W EL CAMINO DE TRES ARROYOS Distance 0.14 Miles

Owner Name : Mc Master Jan & Thelma S

Total Value : $110,819

Recording Date : 08/05/1975

Property Tax : $1,597.67

Land Use : Mobile Home Lot Acres : 4.20

Stories : 1 APN : 208-25-0140

Yr Blt / Eff Yr Blt  : 1971 / 1971

17259 W EL CAMINO DE TRES ARROYOS Distance 0.14 Miles

Owner Name : 7 Cs Tr

Sale Date : 06/05/2012

Total Value : $72,452

Recording Date : 06/06/2012

Sale Price  : $28,000

Property Tax : $1,044.53

Land Use : Mobile Home Lot Acres : 8.82

Stories : 1

Yr Blt / Eff Yr Blt : 1990 / 1990

Living Area : 732

APN : 208-25-0150

Customer Name : Jeremiah Stiffler Customer Company Name : First American Prepared On : 04/25/2023

©

2023 CoreLogic. All rights reserved
Census Tract / block: 44.19 / 4     Year: 2018 Household Population Population by Age Count: 6,308 0 - 11 Estimate Current Year: 7,361 12 - 17 Estimate in 5 Years: 13,645 18 - 24 9.97% Growth Last 5 Years: 14.39% 25 - 64 50.17% Growth Last 10 Years: -186.48% 65 - 74 12.54% 75+ Household Size Household Income Current Year: 2,367 0 - $25,000 19.65% Average Current Year: 2.66 $25,000 - $35,000 13.56% Estimate in 5 Years: 3,531 $35,000 - $50,000 13.81% Growth Last 5 Years: 13.35% $50,000 - $75,000 33.21% Growth Last 10 Years: -7.5% $75,000 - $100,000 7.82% Male Population: 53.36% Above $100,000 11.96% Female Population: 46.64% Average Household Income: $52,482 Married People: 56.19% Unmarried People: 43.81% Housing Median Mortgage Payments Home Values Under $300: 14.46% Below $100,000: 53.49% $300 - $799: 40.33% $100,000 - $150,000: 15.6% $800 - $1,999: 42.17% $150,000 - $200,000: 14.61% Over $2,000: 3.04% $200,000 - $300,000: 12.96% Median Home Value: $96,100 $300,000 - $500,000: 3.34% Unit Occupied Owner: 84.75% Above $500,000: 0% Median Mortgage: $718
©
Customer Name : Jeremiah Stiffler Customer Company Name : First American Prepared On : 04/25/2023
2023 CoreLogic. All rights reserved
Rent Payments Year Built Unit Occupied Renter: 15.25% 1999 - 2000 Median Gross Rent: $845 1995 - 1998 Less Than $499 0% 1990 - 1994 $500 - $749 37.8% 1980 - 1989 12.75% $750 - $999 36.89% 1970 - 1979 18.65% $1000 and Over 25.3% 1900 - 1969 7.08% Education Enrollment Public Pre-Primary School: 0% Not Enrolled in School: 77.21% Private Pre-Primary School: 0.38% Not A High School Graduate: 17.18% Public School: 19.46% Graduate Of High School: 38.27% Private School: 3.33% Attended Some College: 27.63% Public College: 2.96% College Graduate: 14.52% Private College: 1.11% Graduate Degree: 2.4% Workforce Occupation: Manager/Prof: 18.61% Private Worker: 76.41% Technical: Government Worker: 12.92% Sales: 20.63% Self Employed Worker: 2.65% Administrative: Unpaid Family Worker: 2.65% Private House Hold: Farming: 15.8% Service: 31.06% Skilled: Protective Services: Blue-Collar: 29.7% Commute Time Less Than 15 Min: 6.78% 15 min - 28 min: 28.87% 30 min - 57 min: 52.75% Over 60 min: 11.6% Customer Name : Jeremiah Stiffler Customer Company Name : First American Prepared On : 04/25/2023 © 2023 CoreLogic. All rights reserved

Customer Name : Jeremiah Stiffler

Customer Company Name : First American Prepared On : 04/25/2023

© 2023 CoreLogic. All rights reserved

Customer Name : Jeremiah Stiffler

Customer Company Name : First American Prepared On : 04/25/2023

© 2023 CoreLogic. All rights reserved

Customer Name : Jeremiah Stiffler

Customer Company Name : First American Prepared On : 04/25/2023

© 2023 CoreLogic. All rights reserved

SEARCH PARAMETERS

PARCEL:  208-18-220D

PARCEL: 208-18-220D

FLORES MONTY ALLEN

SITUS: 12055 N MUSKET RD PC

MAIL: 11620 N PLACITA MARCELA  MARANA AZ 85653  LEGAL: S110.01' W1033.81' N2 S2 SW4 SW4 2.61 AC SEC 33-11-10 MDWID

END SEARCH

04/25/2023  01:06PM  R9C8  INVESTIGATIVE SEARCH RESULTS PAGE 1 OF 1
+ FIRST AMERICAN TITLE, FC0, JSTI PIMA, AZ
INSTRUMENT REC DATE
AFFIDAVIT    2021 401093 02/09/2021
OWNER:
CURRENT TAXES INFORMATION THROUGH 01/28/2023 LAND IMPR EXEMPT RATE AREA SPECIAL DISTRICTS PRIMARY  8,610  0  0  8.7588  0643 SECONDARY  2,000  6,610  0  7.7290  2022 TOTAL TAX BILLED 1,272.10 2022  TAX AMT TAX DUE INTEREST DATE PAID TOTAL DUE FIRST HALF  636.05  0.00  0.00  10/26/2022  0.00  SECOND HALF  636.05  636.05  0.00  636.05  TOTAL CURRENT TAXES DUE 04/23 636.05 05/23 644.53 (ESTIMATED) IMPROVEMENTS MOBILE HOME  BLDG SQFT  0 FULL CASH VALUE  86,097 YEAR BUILT  2009 LAND USE  08 39 NUMBER OF STORIES  1.0 LOT SIZE  2.610 ACRES STORIES HEIGHT  0 SCHOOL DISTRICT  0643 EXTERIOR WALLS LAND FULL CASH VALUE  20,000 GRADE MATERIALS IMPR FULL CASH VALUE  66,097 SALES SALE DATE SALE AMOUNT INSTRUMENT TYPE SELLER NAME VALIDITY 11/30/2016 110,000    2016 3351054 WD MARNARD DOUGLAS 03/31/2014 102,000    2014 900331 WD PRINCE JOSHUA 11/14/2008 48,000    13434 2543 WD ITIP LLC ADDITIONAL PROPERTY INFORMATION STANDARD LAND USE: MOBILE HOME LOT
Page 1 of 3 04/25/2023 1:07 PM
Page 2 of 3 04/25/2023 1:07 PM
Page 3 of 3 04/25/2023 1:07 PM
Page 1 of 13 04/25/2023 1:07 PM
Page 2 of 13 04/25/2023 1:07 PM
Page 3 of 13 04/25/2023 1:07 PM
Page 4 of 13 04/25/2023 1:07 PM
Page 5 of 13 04/25/2023 1:07 PM
Page 6 of 13 04/25/2023 1:07 PM
Page 7 of 13 04/25/2023 1:07 PM
Page 8 of 13 04/25/2023 1:07 PM
Page 9 of 13 04/25/2023 1:07 PM
Page 10 of 13 04/25/2023 1:07 PM
Page 11 of 13 04/25/2023 1:07 PM
Page 12 of 13 04/25/2023 1:07 PM
Page 13 of 13 04/25/2023 1:07 PM
Page 1 of 3 04/25/2023 1:07 PM
Page 2 of 3 04/25/2023 1:07 PM
Page 3 of 3 04/25/2023 1:07 PM
Page 1 of 2 04/25/2023 1:07 PM
Page 2 of 2 04/25/2023 1:07 PM
Page 1 of 2 04/25/2023 1:07 PM
Page 2 of 2 04/25/2023 1:07 PM
Page 1 of 2 04/25/2023 1:07 PM
Page 2 of 2 04/25/2023 1:07 PM

Turn static files into dynamic content formats.

Create a flipbook
Issuu converts static files into: digital portfolios, online yearbooks, online catalogs, digital photo albums and more. Sign up and create your flipbook.