Skip to main content

Residential Portfolio

Page 1


portfolio.

SELECTED WORKS 2021-2025

FIORELLA CRISPIN

about me.

Architectural Technologist with a Bachelor of Architecture and experience supporting residential projects from design development through construction documentation. Recently completed the Interior Design Fundamentals Certificate at BCIT, further strengthening my understanding of residential construction drawings and technical detailing.

Experienced in preparing coordinated drawing sets, supporting consultant integration, and contributing to permit documentation for single-family and multifamily projects. Detail-oriented, organized, and collaborative, I am motivated to continue developing my technical skills within a professional design environment.

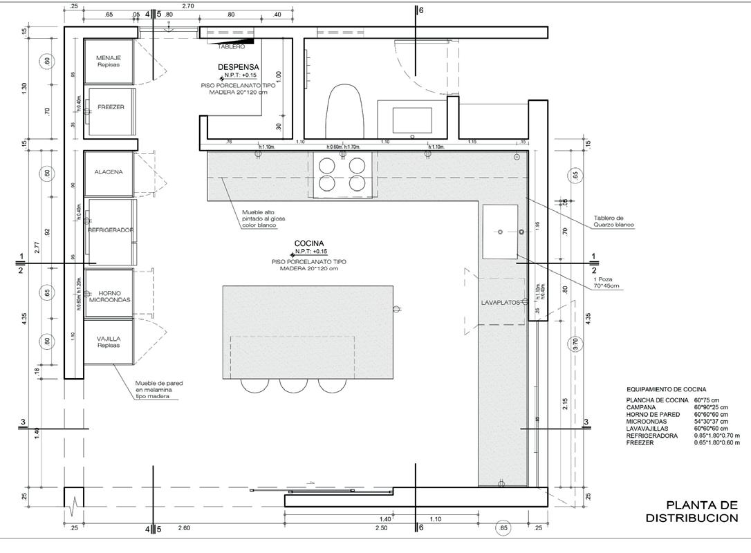
Ortiz Residence

Status: Built Project - Arquiga

Year: 2021

Typology: Residential (Beach House)

Location: Asia, Lima, Peru

Area: 3,387 sq. ft.

Software: AutoCAD, Photoshop, SketchUp

Role: Architectural Project Assistant

Scope: SD, DD, BP, CD

This new-construction beach house was developed from preliminary design through execution planning. At Arquiga, I worked on space planning to meet both condominium and national regulations, coordinated with engineering consultants, and prepared the full set of building documentation. The execution phase required detailed construction and millwork drawings to support accurate construction.

Drawings and images property of Arquiga

detailed plans.

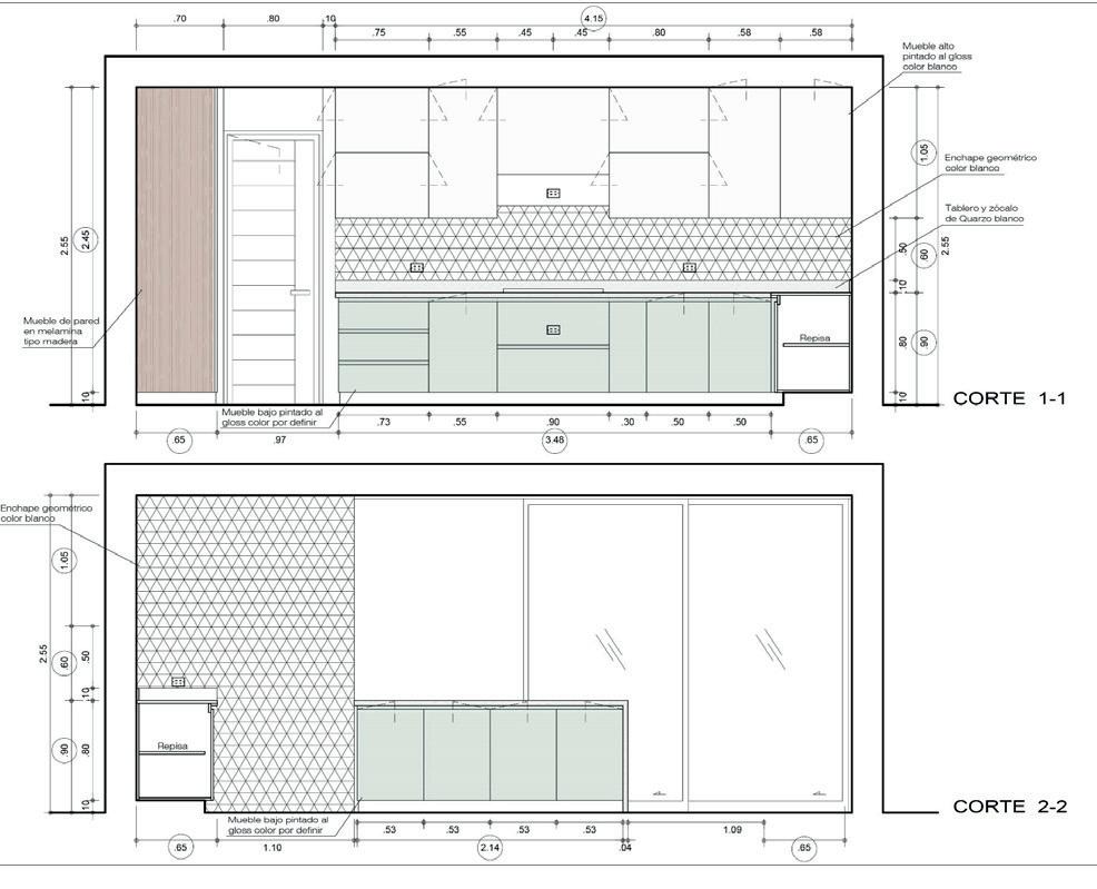
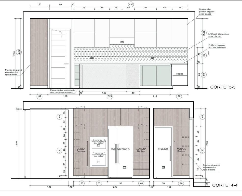
KITCHEN

BBQ AREA

BUILT-IN BAR MILLWORK
BATHROOM
Drawings and Images property of Arquiga

Nacach Residence

Status: Built Project - ARQUIGA

Year: 2021

Typology: Residential (Beach House)

Location: Cerro Azul, Cañete, Peru

Area: 1,919 sq. ft.

Software: AutoCAD, Photoshop, SketchUp

Role: Architectural Project Assistant

Scope: SD, DD, CD, Client Presentations, Drafting, Detailing, Consultant Coordination

This modern beach house was developed from schematic design through construction. At Arquiga, I collaborated on the design and documentation, producing graphics, except for renders, to communicate the project concept for client presentations and developing preliminary floor plans for feedback. I ensured compliance with local codes and delivered accurate documentation for the building permit. My work contributed to the successful completion of the construction, including millwork, within established deadlines.

Drawings and images property of Arquiga

FLOOR PLAN

All drawings and images are the property of ARQUIGA

Chavez Residence

Status: Built Project - ARQUIGA

Year: 2021

Typology: Residential

Location: Santa Cruz de Flores, Cañete, Peru

Area: 2,876 sq. ft.

Software: AutoCAD, SketchUp, Enscape

Role: Architectural Project Assistant

Scope: SD, DD, BP, CD

This new residential project, located in a suburban area, was developed from concept design through contruction. Working closely with the lead architect at Arquiga, I contributed to code and condominium compliance, consultant coordination, and the integration of engineering input into the architectural design. I also produced execution and detailed construction drawings to support an efficient construction process.

Drawings and images property of Arquiga

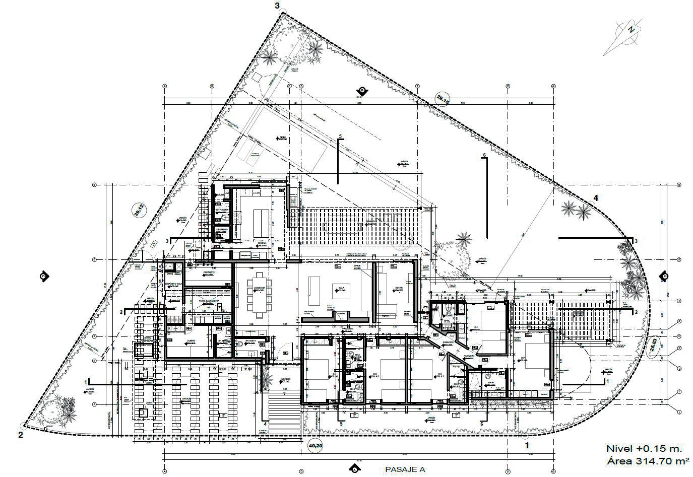
Site Access

Parking

Entry Porch

Foyer

Powder Room

Media Room

Living Room

Dining Room

Kitchen

Pantry

Laundry

Bathroom

Bedroom

Storage

Outdoor Living Area

Secondary Bedroom

Ensuite

Primary Bedroom Primary Ensuite

Bedroom

SECTION 1

FRONT ELEVATION

All drawings and images are the property of

ARQUIGA

Petersen Residence

Status: Academic Project - BCIT

Year: 2025

Typology: Residential

Location: Deep Cove, North Vancouver, BC

Area: 3,169 sq. ft.

Software: AutoCAD, SketchUp, Enscape

Two-storey single-family residential project developed in a Canadian context. The scope included the preparation of coordinated floor plans, elevations, sections, and key architectural details.

The layout was designed to maximize natural light and views while maintaining functional circulation and spatial efficiency. Portions of the BC Building Code (Part 9 – Housing and Small Buildings) were applied, including stair calculations, circulation clearances, and basic dimensional compliance for residential standards.

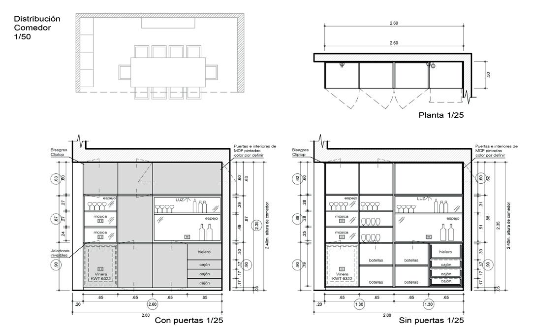
CONSTRUCTION PLAN

SPECIFICATION

SIZE: 25" X 22" X 13-5/8" MATERIAL: ENAMELED CAST IRON FINISH: 96 BISCUIT

LAUNDRY SINK FAUCET

MANUFACTURER: KOHLER MODEL: CORALAIS

Construction Drawings

8.

7.

4.

5.

6.

1.

POWER & COMMUNICATION PLAN

CENTURA TILE PRODUCT: BAL31547 BALI COLOUR: ALMOND SIZE: 2" x 16", THICKNESS: 8mm MANUFACTURER: EQUIPE

SUPPLIER: METROPOLITAN MATERIAL: ENGINEERED HARDWOOD BRAND: KENTWOOD FLOORS PRODUCT #: 30401 COLOUR: MAPLE COCO FINISH: LOW LUSTER SIZE: 5"W, 48"L, 9/16"T WALL COVERING WOOD PANELLING

SUPPLIER: BC FLOORS BRAND: MOHAWK GROUP PRODUCT: 821 RESIDENCE COLOUR: POLISHED TAN CARPET FIBRE: SMARTSTRAND SIZE: 12' W

FINISHES NOTES

· PAINT CONTRACTOR TO PREPARE SURFACE, SKIM COAT, MUD, AND SAND WHERE REQUIRED TO ACCEPT NEW FINISHES.

· ALL PAINT TO BE SATIN UNLESS NOTED OTHERWISE

· ALL WALLS TO RECEIVE TWO COATS OF PRIMER AND MINIMUM TWO COATS OF PAINT.

· BASEBOARDS AND CROWN MOULDINGS TO BE INSTALLED IN EVERY ROOM, ALL PRIMED AND PAINTED. SEE COLOR IN FINISHES SCHEDULE

· ALL INSIDE OF CLOSET TO BE SAME COLOR AS THE ROOM UNLESS NOTED OTHERWISE

· FLOORING CONTRACTOR TO PREPARE SURFACE, PRIME, AND LEVEL SUBFLOOR PRIOR TO INSTALLATION.

· SEE GROUT COLOR IN FINISHES SCHEDULE (NOT REQUIRED FOR ASSIGNMENT)

· CONTRACTOR TO PROVIDE SEAM DIAGRAM TO INTERIOR DESIGNER PRIOR TO INSTALLATION FOR APPROVAL · CARPET SEAM TO BE

Contact

email: fiorellacrispinr@gmail.com

LinkedIn: www.linkedin.com/in/fiorellacrispin

Turn static files into dynamic content formats.

Create a flipbook