
PROFESSIONAL ARCHITECTURE
SELECTED WORKS 2021-2024
![]()

PROFESSIONAL ARCHITECTURE
SELECTED WORKS 2021-2024

FIORELLA CRISPIN BArch. Designer
Bachelor of Architecture with experience working in architectural design firms in Lima, Peru, contributing to projects from concept to execution. Recently graduated from the Interior Design Fundamentals Certificate at BCIT, a program that strengthened my creative vision and expanded my understanding of construction drawings.
Skilled in project development, client communication, coordination with consultants and suppliers, ensuring efficient project outcomes. Detail-oriented, creative, and collaborative, I thrive in team environments and enjoy turning ideas into thoughtful design solutions.
Single-Family Projects | Arquiga
Ortiz Residence
Chavez Residence
Nacach Residence
Hilares Apartment
Multifamily Projects | Reusche Reyna Atelier
Vasco 640
Sbela
Salaverry 2431
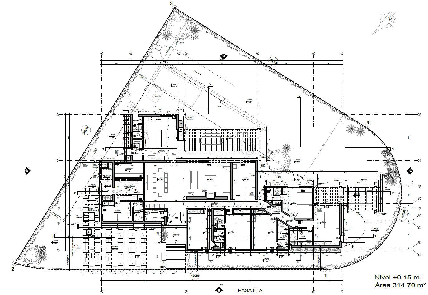
Location: Asia, Lima, Peru
Typology: Single-family (Beach house)
Year: 2021
Area: 314.70 m2
Role: Architectural Project Assistant
Scope: SD, DD, BP, CD
Software: AutoCAD, SketchUp, Lumion
Project Development & Coordination
This new-construction beach house was developed from preliminary design through execution planning. I worked on space planning to meet both condominium and national regulations, coordinated with engineering consultants, and prepared the full set of building documentation. The execution phase required detailed construction and millwork drawings to support accurate construction.









and Images property of Arquiga


Location: Santa Cruz de Flores, Cañete, Peru
Typology: Single-family
Year: 2021
Area: 2,876 sq. ft.
Role: Architectural Project Assistant
Scope: SD, DD, BP, CD
Software: AutoCAD, SketchUp, Enscape
Project development & Coordination
This new residential project, located in a suburban area, was developed from concept design through contruction. Working closely with the lead architect at Arquiga, I contributed to code and condominium compliance, consultant coordination, and the integration of engineering input into the architectural design. I also produced execution and detailed construction drawings to support an efficient construction process.



Site Access
Parking
Entry Porch
Foyer
Powder Room
Media Room
Living Room
Dining Room
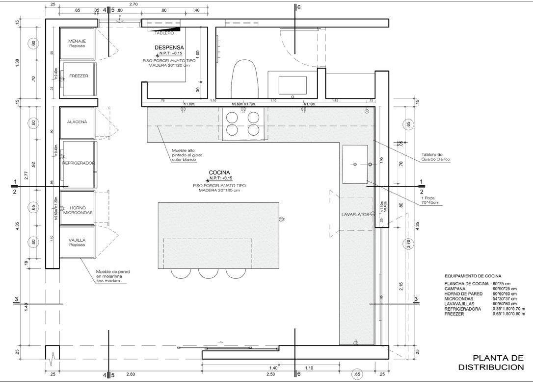
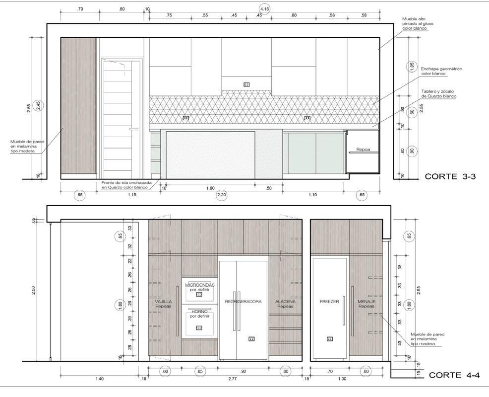
Kitchen
Pantry
Laundry
Bathroom
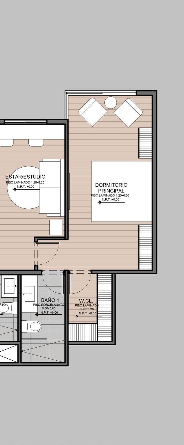
Bedroom
Storage Outdoor Living Area
Secondary Bedroom
Ensuite Primary Bedroom Primary Ensuite
Bedroom

section 1 front elevation




Location: Asia, Lima, Peru
Typology: Single-family (Beach house)
Year: 2021
Area: 182.54 m2
Role: Architectural Project Assistant
Scope: SD, DD, BP, CD
Software: AutoCAD, SketchUp, Lumion
Project development & Coordination
This project was developed from schematic design through construction. I collaborated on design development and documentation, producing presentation graphics and preliminary floor plans for client feedback. During the design development (DD) phase, I ensured compliance with local codes and prepared permit documentation. My contributions supported the successful execution of the project, including millwork, within established deadlines.








Drawings and images property
ARQUIGA
Location: Surco, Lima, Peru
Typology: Apartment renovation
Year: 2022
Area: 120 m2
Role: Architectural Project Assistant
Scope: SD, DD, BP, CD
Software: AutoCAD, SketchUp, Photoshop
Residential Renovation & Interior Design
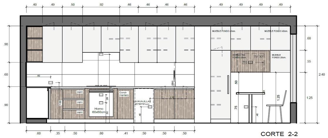
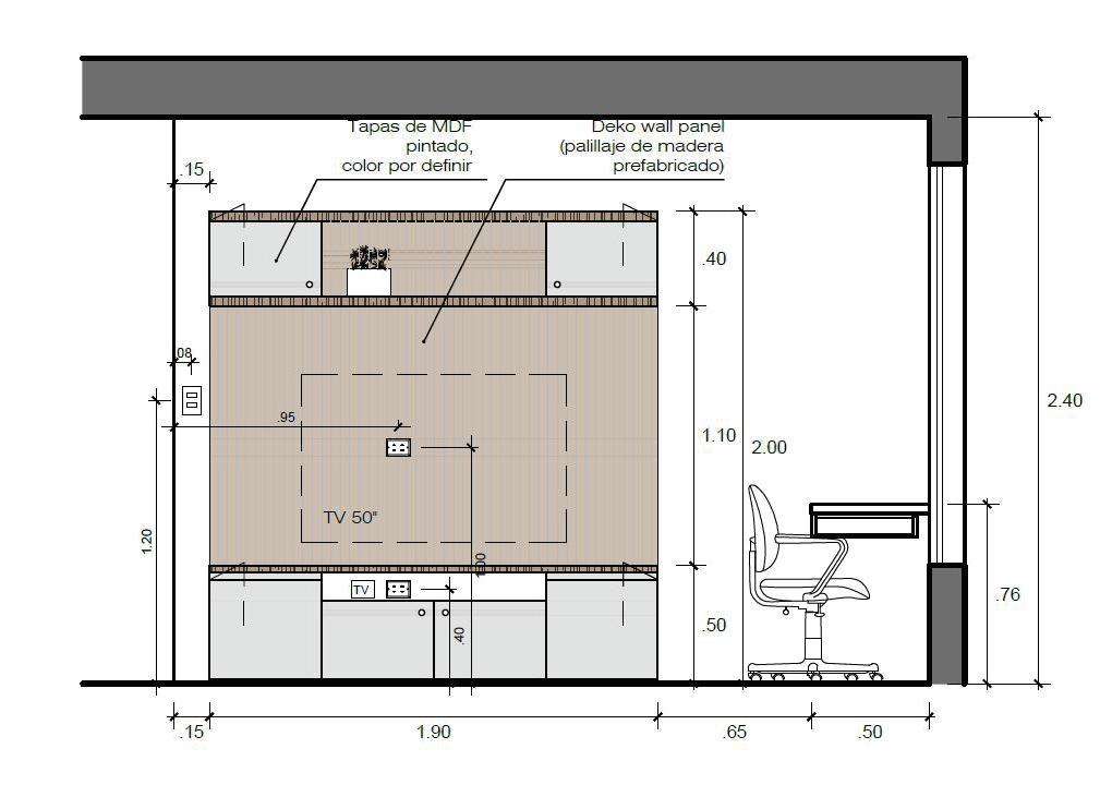
This apartment renovation required a complete reconfiguration of the layout while carefully considering existing structural and engineering constraints. I optimized the separation between private and common areas to improve spatial efficiency. My role also included designing custom millwork, coordinating with suppliers for interior finishes and materials, and integrating technical constraints into the final design solution.



MILLWORK DESIGN
KITCHEN

BEDROOM

Software: AutoCAD

FAMILY ROOM

REUSCHE REYNA ATELIER
Location: Miraflores, Lima, Peru
Typology: Multifamily
3 basements, 9 stories
Year: 2023
Role: Junior Architect
Scope: BP
Software: AutoCAD
Permit Documentation & Coordination
I assisted the Project Manager in developing the building permit documentation package. My role involved integrating technical requirements into the architectural design through close coordination with structural and MEP engineers. I reviewed specialty engineering drawings and applied knowledge of housing regulations to ensure accurate and compliant permit submissions.

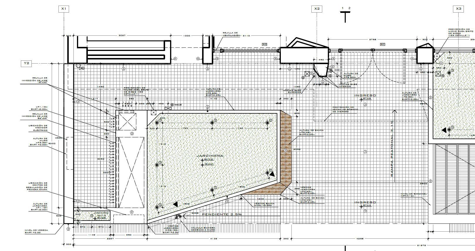
Location: San Borja, Lima, Peru
Typology: Multifamily
2 basements, 5 stories
Year: 2024
Role: Junior Architect
Scope: CD
Software: AutoCAD
Detailed Plands & Supervision
I collaborated in the development of detailed construction drawings for common areas, including facade systems, hallways, and staircases. Due to the project’s complexity and material diversity, the detailing process required a high level of precision. For private areas, I supervised the production of detailed plans, ensuring accuracy and compliance with project deadlines.

















REUSCHE REYNA ATELIER
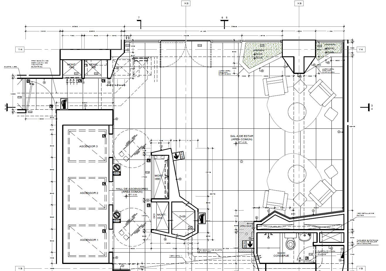
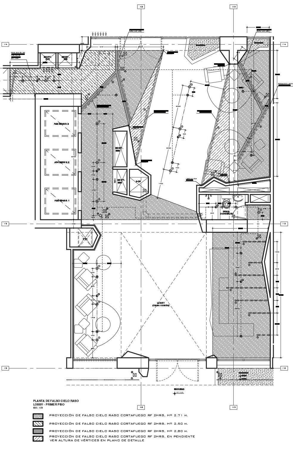
Location: San Isidro, Lima, Peru
Typology: Multifamily
6 basements, 28 stories
Year: 2023
Role: Junior Architect
Scope: CD
Software: AutoCAD, SketchUp
Detailed Plans Production & Coordination
The development of detailed drawings for the common areas of this 28-storey residential building required continuous coordination with engineering consultants and internal teams. My role focused on reviewing specialty plans and producing executionlevel details that respected the design intent and material standards established by the construction company, while integrating technical solutions as needed.



ENTRYWAY DETAILED PLAN




LAYOUT REFLECTED CEILING PLAN


Drawings and images property



