Skip to main content

Portfolio - Finn Woodrow

Page 1


MArch Architecture
Finn Woodrow
Postgraduate Applicant

Home Farm, Mount Edgcumbe, Torpoint, Cornwall, PL10 1JA

finn_woodrow@outlook.com

+44 (0)7857 013300

University of Plymouth

BA (Hons) Architecture 2022-2025

Grade: First Class

My personal line of enquiry within architecture is one that uses exploratory material-systems to investigate themes of ideology, social attitudes towards nature, and participation. During my second year I won the Pomeroy travelling scholarship to explore these themes in postsocialist Tbilisi, Georgia. This research also helped me to confront my own romanticism of these ‘bottomup’ environments that I was previously guilty of, by revealing them not as a radical solution, but the underbelly that allows the maintenance of the status quo. My third-year thesis project explores these themes through the proposal of a new type of funeral: ceremonial sea burial. This project simultaneously tackled ecological crises (burial space, waste material) and social crises (cohesion, death-denial) through the use of digital fabrication processes to create an open-source waste-timber block building system.

My ambition is to develop a conceptually ambitious portfolio on architectural material-systems that challenge social attitudes and environmental norms.

01 Civic Life-Cycles

A new kind of ceremonial funeral at the heart of an urban redevelopment, BA3

02 Waste Wood Blocks

An exploration of waste timber and technological innovation, BA3

03 Occupancy Manifest

Radical participation in the urban environment, BA2

04 Vessel Architec ts Part 1 Architectural Assistant

05 Glenn Murcutt Summer School Pittwater Summer School- 2026

Finn Woodrow MArch: Architecture applicant

Civic Life-Cycles

Raft-building & Sea-burials

My third year thesis project: Civic Life-Cycles is a project in Stonehouse Creek, Plymouth that aims to create a place of comfort for those who have lost a loved one, and to confront dominant attitudes towards death and waste in Western society. Situated next to a former dumping ground, this project proposes an alternative attitude towards death - this change in attitude can be the catalyst for a more sustainable future.

page group members:

Urban Planning

(a part of a group project)

The urban plan that locates my (individual) thesis project revitalises Stonehouse Creek through a number of small but radical catalyst buildings. By pairing housing and industry, public space is activated and becomes aliveallowing for serendipitous social interaction.

This
Myself, Chris Lipscomb, Luisa Osborne, Isabella Reggiardi & Shauna Kilkenny-Kelly.

Crematoria Site

A Time of Crisis

Death, waste, & capitalism

This project situates itself at a time of economic crisis. The dominant economic ideologies change the way in which we think about death. Capitalism can create extreme forms of ‘death denial’.

This can be seen in the marginalisation of cemeteries to the outskirts of a city - out of sight and therefore out of mind. Contemporary crematoria are often found next to the sewage works or a dump.

Reciprocity

Links between making and decay

This projects focus is circularity and reciprocity, aiming to probe into how we interact with systems (ecological, economic) in a truly sustainable way and what the positive social outcomes of this could be.

Returning to the Cycle Programmes of Recovery

Raft Making
Sea Burials Celebration/ Feast
Boat Building
Boat Reclamation
Traditional boat building methods used to build sea burial coffin rafts.
Bodies rowed out and buried at sea - an ecological burial option.
A ritualistic celebration of life after the funeral procession.
Raft building apprentices also build a sailing boat as part of their training.
Wooden boat material dimsantled and is reused in coffin rafts.

Civic Presence of Death

Two parallel themes

Both ecological and capitalist crises affect social relationships. The breakdown of human relations with one another as well as the ecological landscape can be seen as the result of death denial. Death denial can be seen in the separation of death and waste from city centres.

By bringing funerals into civic view, we can begin to break down these social barriers. Furthermore, by tackling material waste through innovative technological methods, these themes can run in parallel right down to the facade detailing.

Votive offering wall in public remembrance garden.
Parts of the funeral ceremony are open to public guests.
timber to public view.
Individuals (waste)
Experiences (waste)
Collective (waste aggregation)
Sea burial as sea-grass ecological regeneration.
Waste timber blocks as socio-economic storytelling.
Individuals (WasteBricks) Civic Whole (Building)

Ceremony

Processional journey to death

The journey through the building for a funeral attendee is representative of one from life (earth/ land) to death (water).

Raft building sets up an apprenticeship scheme in traditional wooden boat building techniques. Wooden boats are subject to rot, and boat builders constantly come into contact with rot (entropy). As a result, they become more comfortable with their own life in crisis, potentially becoming more at one with natural ecological systems.

Body placed into coffin raft.
Raft coffin floated down the channel into the communal part of the funeral ceremony.
Lookout to over the estuary to see the body be released.
Walkway along the side of the building to the celebration funeral finale.

Gathering

Intimate family meet together

Intimate family gather for the funeral raft to be placed in the water channel. Funeral members heave-to and raise the raft by rope and pulleys to transfer it onto the water before beginning the procession.

Time signatures

Rhythms

The main function of the building, sea-burials, require a high tide in order to launch the rafts. The building is guided by the moon and the tides, and therefore will have an off-beat rhythm throughout any given week, eventually snapping back to the start of the cycle.

Material Qualities

Conceptual alignment to waste

Like human death, waste material is also often hidden from view. Waste is one of the main outputs of capitalist production.

Revealing this waste in civic view can allow the critique of such systems. Waste timber behind a screen of plastic can reveal an ecosystem of growth below that can be afforded by the use of waste material.

An open-source material system that retains localised material qualities.

Waste as a critique of capitalist production

“Capitalism is all the time in crisis. This is why it appears all the time indestructible. Crisis is not its obstacles. It’s what pushes it towards permanent, revolutionizing, self-reproduction. Always more production. The other invisible side of it is waste, tremendous amounts of waste. Maybe the first thing to do is accept the waste, to accept that there are things out there that serve nothing. To break out of this eternal cycle of functioning.

The German philosopher Walter Benjamin said we experience history, what does it mean to be historical beings, not when things move, but when we see them at a rest. Wastes of culture being half-retaken with nature. At that point, we get an intuition of what history means.

Maybe without this moment of authentic, artistic possibility, nothing new can emerge. Maybe something new only emerges through the failure, the proper functioning of the existing network, lifework, where we are.”

Many people are ideologically blind to the concept of entropy applying to everything in their life. The lack of acceptance of that entropy causes them to feel like they are in a crisis when they do, of course, encounter entropy in their life. Zizek is saying that this avoidance of entropy is problematic, and perhaps entering a building constructed of waste timber blocks is a suitable way to encounter and confront that entropy.

We are all made up of biomass.

- Zizek on waste

Digital Aggregation

(as part of a group)

Identifying the aggregation

To start the aggregation we first need to identify the object - waste timber. This is done by setting its geometry, curve and point. Identifying each of these attributes, allows for the aggregation to know which faces to connect. This will help later as the faces you identify will be registered in the rules allowing for the desired connection later.

Diagram Visualising the Geometry, curve and point needed to start the aggregation

Setting and applying the rules allows the geometry (waste timber scans) to be intentional organised within a desired volume. These rule can be modified via human input allowing for a specific shape and orientation, and the rule can be simplified through a rule visualiser.

Diagram to show how simple rules work in the Wasp plug-in for Grasshopper.

Volumetric field construction

Rules visualised

Utilising a rules visualiser simplifies the process of transforming the aggregation into a deliberate aggregation. It converts Rec|0 to Rec1|1 into allocating a number for every connection and continues this for every face you wish to connect, labelling them as 1, 2, 3, 4, etc. This code input streamlines the procedure and minimises the likelihood of errors when additional components are added to aggregation.

The generation of the block is the final step in the process, serving as a guide and blueprint for its construction. In this phase, the aggregation can be modified through various attributes, such as the number of components. By adjusting the aggregation, an entirely new orientation can be achieved while still adhering to the same volume requirements. This requires some level of human interaction, as it allows for the user to choose how to orientate the volume.

visualising how the aggregation fills the volume from the centre outwards.

Setting and applying the rules allows the geometry to be intentionally organised within a desired volume. These rule can be modified via human input allowing for a specific shape and orientation of the waste timber. Block generation

Diagram of all available connection from generated block listed from 0 to 179.

of block generated

Diagram
Generate Mechanic
Diagram

Storytelling & QR Passporting

As well as playing an important role in the minimisation of future waste, the understanding of material procurement routes, and quantitative data, QR code passporting can also begin to keep track of more personal memories associated with waste timber by including a section on the passport application for short stories.

of

Artec Leo scanner.

FF Overhang Detail

Alternative details with this system can reveal the waste internally or externally, depending on needs.

1. WoodBlock structural wall

2. 75mm ventilated baton zone to hide a 50mm downpipe

3. Reused concrete shuttering timber cladding

4. 100mm Sheeps wool insulation

5. 12mm OSB Sheathing

6. Hard insulation under vapour control layer

7. Vapour control layer lapped over bottom WoodBrick

8. Wax sealant on exposed edges of WoodBricks

9. Metal bracket between I-beam joins with rubber gasket to prevent cold bridging

10. 100m wide I-beam

11. Vapour control layer in floor

12. 75mm ventilated baton zone under the floor to hide a 50mm box gutter

13. Breather membrane wrapped around wall and under floor

14. Reused concrete shuttering timber cladding

15. Reused concrete shuttering floor boards

16. Ventilation hole in concrete trombe wall for cool air flow

17. 800mm thick concrete trombe wall

Wall - Cool air passes through the wall and is heated by sunlight through glazing and then rises over the top of the wall.

Trombe

Ritual (Re)Construction

A festival of sustainable timber

By creating a link between the hinterland forestry of the southwest, the lifecycle of a tree, and the Brand/ Duffy shearing layers diagram, it is possible to use the long-lasting structure of the buildings on Armada Way as a base for shorter, more adaptable timber fit-outs that better suit the people of the city.

“The right to the city is far more than a right of individual access to resources: it is a right to change ourselves by changing the city more after our heart’s desire.” (David Harvey, 2003)

A crane is towed by the tram to access all buildings on Armada Way to load and unload timber.

Increasing the density and variety of housing in the Centre will make the City much more lively, aiding community cohesion.

A tram transports timber and people between the sea and City Centre workshop, linking them literally and symbolically.

INTERVETION: Communal Timber Workshop

This building will act as the catalyst for change within the whole City.

Timber is brought from hinterland forests via boats on rivers to be loaded onto the tram at Plymouth Hoe.

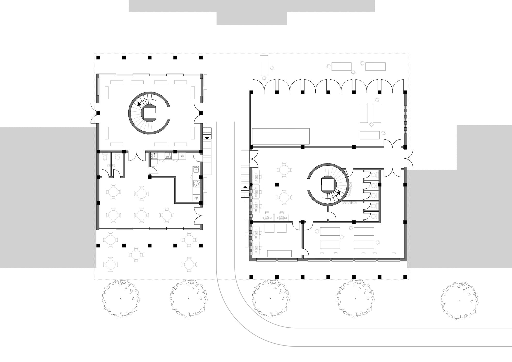
Occupancy Manifest

Radical participation in urban fabric

The envelope of the building is inside of the structure, so inhabitants can freely build and manifest their occupancy to the outside world without damaging the envelope integrity – applying the freedom of building seen in the ‘built to meet needs’ Tbilisi apartment building to a safe framework.

This project was the catalyst for my research proposal that won the Gavin Pomeroy Travelling Scholarship for my to visit Tbilisi, Georgia.

Manifestations of Occupancy Areas of regulation-free building for occupants

My craft-concious version of Brand’s ‘Shearing Layers’ diagram.
My photo of a radically modified postsocialist apartment in Tbilisi.
STUFF (Daily)

Little Highertown

Highly efficient home

Work shown here was done by me with oversight of Director Chris Lisney.

While working on Little Highertown, we had ambitious aims in terms of sustainability in line with the M5 policy and the RIBA 2030 roadmap. Through collaborative engagement with Mesh Energy, we have been able to achieve an impressive 24.8 year carbon payback for the demolishing and rebuild of a new home. On this project I was able to really push for (to mixed response) some innovative material systems and get to grips with detailing them. Such as:

- MBC passive timber frame - Hemp blocks wall insulation

- Margent corrugated hemp cladding

Lower Tor Farm

Grade II Renovation

Work shown here was done by me with oversight of Director Chris Lisney.

Restoration of dilapidated grade II listed Devon long-house and conversion of associated historic stone barns in Whitchurch, Tavistock. Working on Lower Tor I was exposed to the complexities of renovating a Grade II building, bringing it up to an extremely high efficiency level. Learning to balance ideas of fabric first and technological offerings. Detailing of elements such as new punctures through historic walls was vital for Listed Building Consent.

Pittwater Summer School

Our group project reinstated an ancient aboriginal track used to pass across the peninsula of Woody Point, Pittwater. One side of the peninsula is in harsh weather, but good for fishing - the other side is calm and safe.

Our sculptural intervention simultaneously reinstates a historic Western-er view from the youth hostel by removing trees, and the ancient aboriginal track - negotiating difficult histories. The removed trees are cut down, charred with fire, and ceremoniously taken down the hill and stood up in a rigid grid across the landscape. A visitor may be intrigued by the sculpture, and walk across the peninsula to investigate - (re)creating the track serendipitously.

This page group members: Myself, Mia Margolis, Beatrice Unknown, & Nancy Unknown.
Aboriginal fishing side (in weather)
Aboriginal eating side (out of weather)
Procession
Raising of the charred trunks
Grid amongst trees

Turn static files into dynamic content formats.

Create a flipbook
Portfolio - Finn Woodrow by finnwoodrow - Issuu