
1 Manor Cottage
Winwick | Northamptonshire | NN6 7PD
![]()

1 Manor Cottage
Winwick | Northamptonshire | NN6 7PD

A beautifully appointed country cottage in one of Northamptonshire’s most sought-after villages, set in stunning grounds, in a quiet and peaceful location and offered for sale with no onward chain.

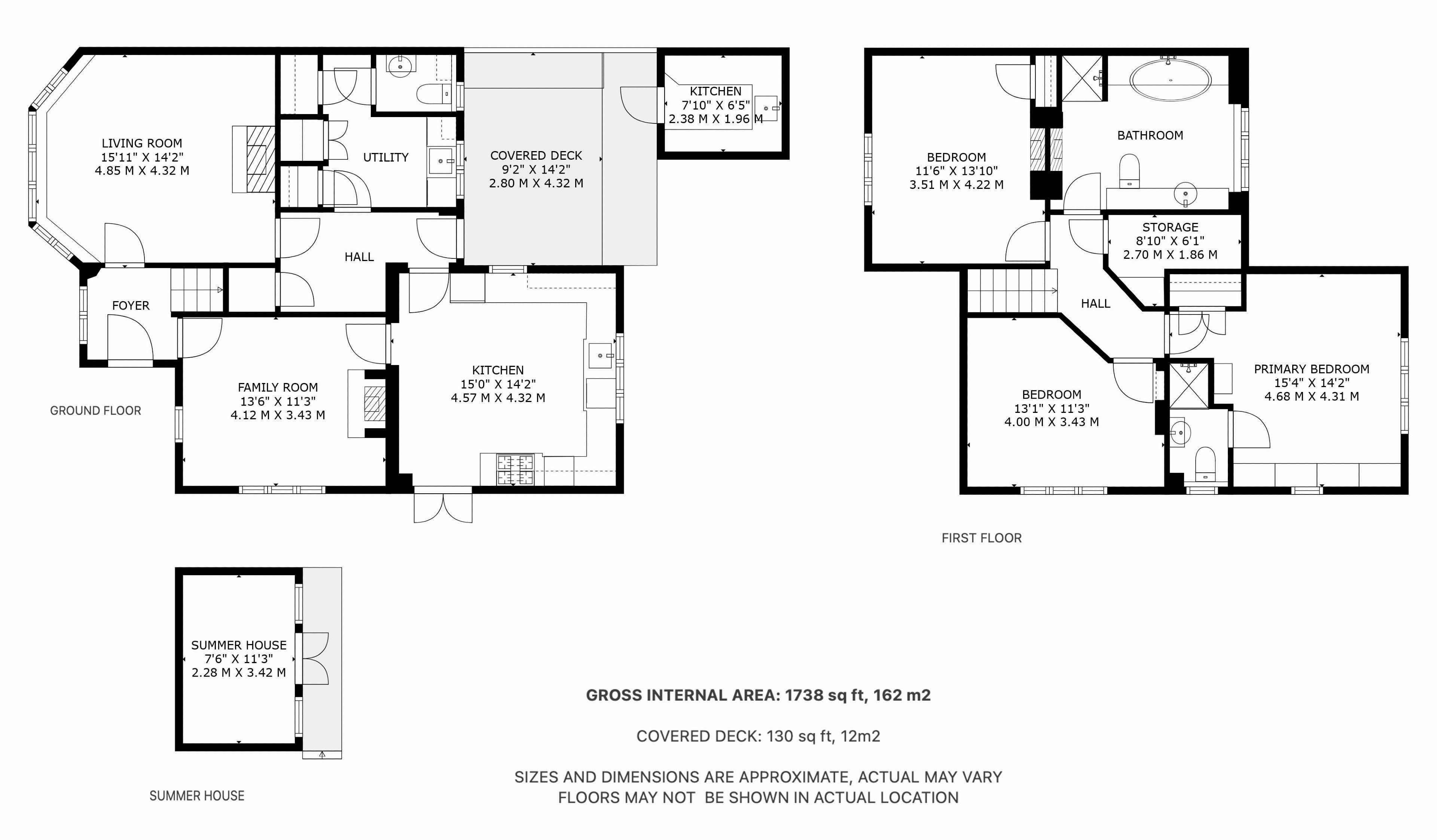
1 Manor Cottage is situated in the heart of the sleepy, picturesque village of Winwick, occupying a generous plot of 0.14 acres, with attractive gardens, outside entertaining space and a beautifully appointed interior. This semidetached cottage was originally constructed in the early 1900s and offers a wealth of charm and character and the tasteful interior, attributed to the vendor’s late husband who was an extremely talented joiner. The house has been sympathetically extended with the addition of a large kitchen and bedroom. The accommodation comprises, three first floor bedrooms, including the principal bedroom with its own ensuite shower room and a large four-piece family bathroom, whilst on the ground floor is a sitting room, dining room, a bespoke hand-built kitchen/breakfast room, utility room and cloakroom. The property occupies a corner plot in the heart of the village, with elevated private gardens, sheltered by a variety of trees and hedging, a truly envious setting offering a perfect rural retreat. The house is offered for sale with no onward chain.
A meandering cobbled pathway leads to the entrance porch with its glazed entrance door, hardwood floor and lead light windows overlooking the garden. There’s a staircase rising to the first floor and access to both the dining room and sitting room, which is filled with an abundance of interior features, including classic panelling and an original fireplace. The sitting room also has a large original, leaded window taking in attractive views of the gardens and access to a rear lobby, which has a rear door to the gardens and access to the utility room, with its variety of hand-built cabinetry, including a useful built-in study area and door that leads to the cloakroom. The kitchen breakfast room has attractive floor tiles, and a hand built oak kitchen with granite works surfaces and two windows overlooking the rear and side aspects. The built-in appliances include a dishwasher, Siemens electric oven and gas hob with extractor hood. There are attractive doors leading onto a raised decking area, perfect for summer entertaining. The dining room is currently used as a convenient snug with its log burner, raised hearth and windows to both side and front and an attractive oak hardwood floor.









I grew up in the idyllic village of Winwick and got married here,” says the owner of 1 Manor Cottage, a classic 3-bedroom country cottage in the heart of the village. “Having moved away, we always dreamed of moving back here, so when the chance came to return to Winwick, we were delighted. We knew the people who lived in the cottage and they offered it to us before putting it on the market – we said yes straight away! The cottage itself is over 100 years old and is the perfect home for all seasons: the main living room with its big bay window is lovely in summer with the light coming in, and equally gorgeous in winter with an open fire blazing.”
Since then, the cottage has been beautifully refurbished. “The cottage was well maintained by the previous owners, who left us with a blank canvas to really make it our own,” says the owner. “My late husband, a joiner by trade, handmade many elements of the interior, from built-in cupboards and bespoke wardrobes, to wood panelling throughout. Outside, we landscaped the gardens, which are now absolutely beautiful, arranged on different levels and zones, centred around a very pretty old apple tree in the middle. The gardens sit mostly to the front and side of the house, with a large decked area directly accessible from the big, sociable kitchen, complete with sofas and tables for al fresco dining and entertaining. We even have an outdoor kitchen, which allows us to entertain for large groups of people. For big occasions such as birthdays and Christmas, we put up a marquee over the decking, which has seated 26 people for Christmas dinner some years!”
The local area has much to recommend it, too. “The rural village setting is simply wonderful,” says the owner, “with a picturesque village church and stunning walks for miles around. There is no through traffic, so the village is very peaceful. While offering a quiet country lifestyle, Winwick is only a couple of miles from the next village and just 5 miles from Junction 18 of the M1, so you have easy access to anything you might need. In fact, I love it so much here that I am moving to another property within the village.”*
* These comments are the personal views of the current owner and are included as an insight into life at the property. They have not been independently verified, should not be relied on without verification and do not necessarily reflect the views of the agent.
The first-floor landing has access to the loft space, a large airing cupboard housing the central heating boiler and a variety of doors leading to the three bedrooms and family bathroom. Bedroom two has an attractive cast iron fireplace, a built-in closet and a window providing delightful views of the gardens. The principal bedroom forms part of the rear extension and has delightful views of the neighbouring fields at the rear. There is a built-in range of wardrobes and a door to an ensuite shower room with doubleglazed, conservation style roof window. Bedroom three has a leaded double-glazed window to the side aspect and attractive panelling, whilst the family bathroom is generous in size and has delightful views of the rear with shaped panelling around the bath, a separate shower cubicle, low-level WC and wash basin plus an original fireplace with cast iron surround.











The property occupies a plot of 0.14 acres in a heart of the village conservation area with most of the gardens at the front of the property, offering a private but elevated position. The front gardens are laid mainly to lawn and there’s an attractive cobble pathway that meanders down the garden past two productive apple trees to a convenient bin store and raised patio. The gardens are surrounded by a well-tended hedge and an attractive picket fence and gate.
The side gardens sit just off the French doors from the kitchen where there’s a raised decking area perfect for summer entertaining.
The rear garden plays host to some raised borders and an attractive lime tree on the corner boundary, a large covered rear porch and access to a convenient outdoor kitchen, with window, power and lighting.





Winwick is a small village located in the Daventry district of Northamptonshire, England. It is known for its picturesque rural setting and historical charm. The village’s history dates back several centuries, and it retains a quintessentially English countryside atmosphere with its traditional stone cottages and scenic landscapes.
One of the notable landmarks in Winwick is the church of St Michael & All Angels, an ancient church that has been a central part of the community for generations. The church’s architecture reflects various historical periods, and it stands as a testament to the village’s enduring heritage.
Winwick is surrounded by beautiful countryside, offering plenty of opportunities for walking and outdoor activities. The village is part of the larger Northamptonshire area, which is known for its rolling hills, historic estates, and charming villages.
Despite its small size, Winwick has a close-knit community, with local events and gatherings playing a significant role in village life. The village’s location in the heart of England makes it a peaceful retreat while still being accessible to larger towns and cities in the region.
Overall, Winwick embodies the tranquil and historical character of rural Northamptonshire, making it a delightful place to visit or live for those who appreciate the beauty and serenity of the English countryside.









Registered in England and Wales. Company Reg. No. 09929046 VAT No: 232999961
Head Office Address 5 Regent Street, Rugby, Warwickshire, CV21 2PE
copyright © 2024 Fine & Country Ltd.
Services, Utilities & Property Information
Utilities – Gas (LPG) central heating, electricity, mains water, mains drainage and broadband are connected with the telephone cable crossing a neighbouring property.
Mobile Phone Coverage - 4G and 5G mobile signal is available in the area we advise you to check with your provider
Broadband Availability – Ultrafast broadband (FTTP) is available in the area Tenure – Freehold
Parking – On street parking with no restrictions
Please note the property is within a conservation area and there are easements on the title.
Directions – NN6 7PD
Local Authority:West Northamptonshire Council
Council Tax Band: E
Viewing Arrangements
Strictly via the vendors sole agents Sam Funnell 07714515484 & Claire
Heritage 07894561313
Website
For more information visit www.fineandcountry.com/rugby-estate-agents
Opening Hours
Monday to Friday 9.00 am - 5.30 pm
Saturday 9.00 am - 4.30 pm
Sunday By appointment only




Agents notes: All measurements are approximate and for general guidance only and whilst every attempt has been made to ensure accuracy, they must not be relied on. The fixtures, fittings and appliances referred to have not been tested and therefore no guarantee can be given that they are in working order. Internal photographs are reproduced for general information and it must not be inferred that any item shown is included with the property. For a free valuation, contact the numbers listed on the brochure. Printe30.08.2024

Fine & Country is a global network of estate agencies specialising in the marketing, sale and rental of luxury residential property. With offices in over 300 locations, spanning Europe, Australia, Africa and Asia, we combine widespread exposure of the international marketplace with the local expertise and knowledge of carefully selected independent property professionals.
Fine & Country appreciates the most exclusive properties require a more compelling, sophisticated and intelligent presentation –leading to a common, yet uniquely exercised and successful strategy emphasising the lifestyle qualities of the property.
This unique approach to luxury homes marketing delivers high quality, intelligent and creative concepts for property promotion combined with the latest technology and marketing techniques.
We understand moving home is one of the most important decisions you make; your home is both a financial and emotional investment. With Fine & Country you benefit from the local knowledge, experience, expertise and contacts of a well trained, educated and courteous team of professionals, working to make the sale or purchase of your property as stress free as possible.


PARTNER AND PROPERTY MARKETING EXPERT
Fine & Country Rugby
01788 820070 | 07894 561313
email: claire.heritage@fineandcountry.com
Claire has worked in the property industry for over 18 years, during which time she has mastered the ever changing marketing techniques that have evolved numerous times during her working life. In particular, Claire is a marketing manager and social media expert which puts her in the perfect position to elevate the status of your home and create a successful and bespoke marketing strategy tailored to your needs. She has received many awards and testimonies from her contemporaries and clients alike. Claire is consistently dedicated to her role and is the consummate professional, always going out of her way to help others at any given time. With her warm personality and outstanding customer service, Claire’s sole aim is to ensure that our clients; journey is as smooth and as stress free as possible. Claire works closely with her partner Sam (Fine & Country Branch Partner) and lives in Rugby with her two children.

BRANCH PARTNER
Fine & Country Rugby
01788 820037 | 07714 515484
email: sam.funnell@fineandcountry.com
Sam heads up the team in Rugby and has worked in a Managerial capacity in the local area with other agents for over 20 years. Sam combines his wealth of local knowledge, with an enthusiasm for marketing, service and results. He is more than happy to provide a bespoke, tailored plan to aid any seller’s move using Fine & Country’s incredible marketing tools. The office constantly receives repeat business and excellent reviews, a true testament to the quality of service that Sam and the team consistently deliver.
Fine & Country Rugby
5 Regent Street, Rugby, Warwickshire CV21 2PE 01788 820062 | rugby@fineandcountry.com