Welshpool, Powys

Page 1

The Laurels

Pool Quay | Welshpool | Powys | SY21 9LJ

THE LAURELS

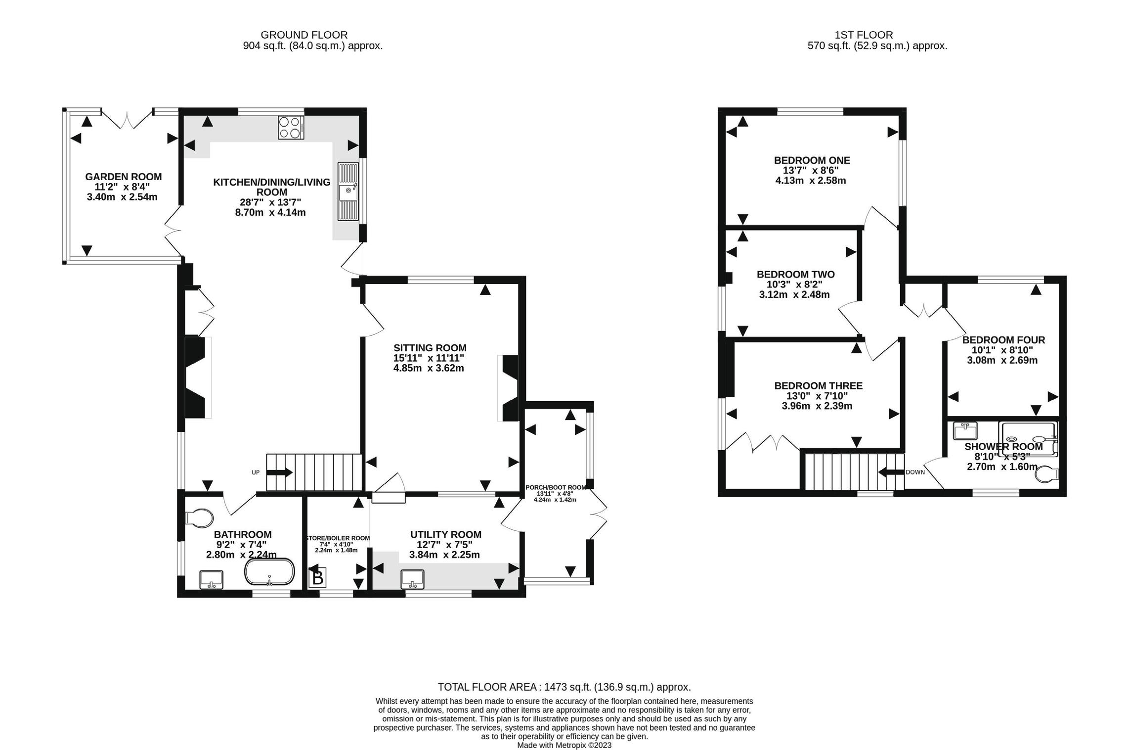
A charming detached country cottage with gardens and grounds extending to about 3.5 acres and including stables, an arena, a wide range of outbuildings and far reaching countryside views. The cottage, which is located between the villages of Guilsfield and Arddleen, provides plenty of character and the flexible accommodation briefly comprises; porch/boot room, utility room, sitting room, large kitchen/dining/living room, garden room, bathroom, four bedrooms and a shower room. The cottage is complemented by gardens and grounds which extend to about 3.5 acres in all, partly set up for equestrian use. The property includes a range of useful outbuildings, some of which offer potential for conversion (subject to the relevant consents).

The property is ideally suited for equestrian use and includes an all weather surfaced arena , tracks and paddocks, three stables, tack room, corral, large field shelter, a small hay barn and a goat stable. Part of the grounds has been registered as a Site of Special Scientific interest with rare wild plants. There are marvellous views over the adjoining countryside towards distant hills including ‘Rodney’s Pillar’. The grounds also include a large formal garden, a wildlife pond, ample parking space and patio space ideal for alfresco dining.

Location: Situated less than 3 miles from the villages of Guilsfield and Arddleen, which offer amenities including village shops, post office, public houses, a church, primary schools and a renowned garden centre and farm shop. The larger towns of Welshpool and Oswestry are about 6 and 10 miles away respectively, while Shrewsbury is a 40 minute drive. Access to the A5 trunk road is quick and easy, connecting to the M54 and motorway network beyond. Train stations are located at Welshpool and Shrewsbury.

KEY FEATURES

Accommodation:

Porch/Boot Room: Tiled floor.

Utility Room: Tiled floor, countryside views, wall and base units, Belfast style sink, space and plumbing for washing machine, space for freezer.

Store/Boiler Room: Central heating boiler, tiled floor, countryside views, loft access.

Sitting Room: Feature fireplace with wood burning stove, exposed floorboards, exposed beams, garden views, radiator.

Kitchen/Dining/Living Room: Views over garden, exposed beams, part tiled and part wood floor, oil fired Rayburn, a range of wall and base units, electric hob with extractor over and double oven under, space for fridge freezer, cupboards, radiators.

Garden Room: Garden views, tiled floor, radiator.

Bathroom: WC, wash basin, roll top bath with shower attachment, radiator, exposed beams.

Landing: Wood floor, linen cupboard.

Bedroom One: Far reaching views over surrounding countryside towards ‘Rodney’s Pillar’, radiator, loft access.

Bedroom Two: Countryside views, radiator.

Bedroom Three: Countryside views, radiator, built in wardrobes, large cupboard, loft access.

Bedroom Four: Views over garden towards distant countryside, radiator.

Shower Room: WC, wash basin, shower cubicle with wall mounted shower, radiator, countryside views.

Outside: Approached from the lane onto parking and turning space which provides access to the variety of outbuildings. The garden has been thoughtfully designed to create well-stocked formal gardens, yet retain a country cottage garden feel and provide a haven for wildlife. The grounds include an all weather surface arena adjacent to stables set in a stable yard and tack room making it ideal for equestrian use and grazing. The whole property extends to approximately 3.5 acres in all and part of the grounds have been registered as a Site of Special Scientific Interest.

Outbuildings:

Garage - 16’1” x 13’9” (4.9m x 4.2m)

Timber Frame Barn - 29’2” x 13’11” (8.9m x 4.24m)

Brick Built Outbuilding - 14’ x 12’11” (4.27m x 3.94m)

Former Dairy - 14’ x 12’11” (4.27m x 3.94m)

Former Milking Parlour - 27’7” (8.4m) (overall) x 13’9” (4.19m) (overall) Adjoining outhouse/freezer room and garden implement store.

Stable Block: Including three 12’x 12’ stables and a tack room around a concrete yard.

12’ x 20’ Field Shelter and concrete coral dry area, plus a Small Hay Barn.

MCCARTNEYS LLP McCartneys Registered Office: The Ox Pasture, Overton Road, Ludlow, Shropshire, SY8 4AA. 01584 872251.

Registered No: OC310186

copyright © 2023 Fine & Country Ltd.

Services: Mains water and electricity. Private drainage.

Heating: Oil fired.

Council Tax: Band G.

Tenure: Freehold.

Directions: Using the app ‘what3words’ type in: motor.snowboard.hint

Alternatively, from Welshpool proceed north on the A490. After just over a mile turn right signed Guilsfield. Follow this road and after leaving Guilsfield travel for about 1.5 miles taking a right turn signed Wern. Follow the lane and take the first left (signed ‘Weak Bridge’). The property will be on the right after a short distance.

Referral Fees: Fine & Country/McCartneys LLP routinely refers vendors and purchasers to providers of conveyancing, survey, removal and financial services. We may receive fees from them as declared in our Referral Fees Disclosure Form.

Note: Please note an old public footpath crosses part of the property. Please also be aware our client has advised the lower paddock floods in exceptional rainfall.

OIRO £575,000

Agents notes: All measurements are approximate and for general guidance only and whilst every attempt has been made to ensure accuracy, they must not be relied on. The fixtures, fittings and appliances referred to have not been tested and therefore no guarantee can be given that they are in working order. Internal photographs are reproduced for general information and it must not be inferred that any item shown is included with the property. For a free valuation, contact the numbers listed on the brochure. Printed 24.05.2023

FINE & COUNTRY

Fine & Country is a global network of estate agencies specialising in the marketing, sale and rental of luxury residential property. With offices in the UK, Australia, Egypt, France, Hungary, Italy, Malta, Namibia, Portugal, Russia, South Africa, Spain, The Channel Islands, UAE, USA and West Africa we combine the widespread exposure of the international marketplace with the local expertise and knowledge of carefully selected independent property professionals.

Fine & Country appreciates the most exclusive properties require a more compelling, sophisticated and intelligent presentationleading to a common, yet uniquely exercised and successful strategy emphasising the lifestyle qualities of the property.

This unique approach to luxury homes marketing delivers high quality, intelligent and creative concepts for property promotion combined with the latest technology and marketing techniques.

We understand moving home is one of the most important decisions you make; your home is both a financial and emotional investment. With Fine & Country you benefit from the local knowledge, experience, expertise and contacts of a well trained, educated and courteous team of professionals, working to make the sale or purchase of your property as stress free as possible.

THE FINE & COUNTRY FOUNDATION

The production of these particulars has generated a £10 donation to the Fine & Country Foundation, charity no. 1160989, striving to relieve homelessness.

Visit fineandcountry.com/uk/foundation

Fine & Country Welshpool on Fine & Country Welshpool
Broad Street,
JAMIE TULLOCH PARTNER follow
8
Welshpool, Powys SY21 7RZ 01938 531006 | welshpool@fineandcountry.com

Turn static files into dynamic content formats.

Create a flipbook
Issuu converts static files into: digital portfolios, online yearbooks, online catalogs, digital photo albums and more. Sign up and create your flipbook.
Welshpool, Powys by Fine & Country - Issuu