Faringdon, Oxfordshire

Page 1

Church Street | Shellingford | Faringdon | Oxfordshire | SN7 7QA

Shellingford House

SHELLINGFORD HOUSE

Shellingford House is a remarkable and spectacular house, full of elegance, enchantment and romance.

Shellingford House is a beautiful home with a rich and important history that never ceases to surprise and delight. Nestled within 8 acres of glorious grounds, and in the heart of this picturesque village, it offers a truly wonderful way of life.

This Grade 11 listed Elizabethan property is steeped in history and full of stories, with some wonderful original features and nods to its past, with beautiful windows allowing light to flood in to every room, an incredible Jacobean staircase, and many more wonderful distinctive attributes.

The main house has over 7,000 sq ft of flexible and generous accommodation over three floors, with 6-7 bedrooms, 4 reception rooms, as well as a studio and office. Additionally there are two cottages, offering great potential for visiting family, multigenerational living or rental potential.

Shellingford House is exceptional in that it is a village house with a large mature garden that offers privacy, plus land in the shape of a pretty five-acre field before it, onto which the house looks. This offers space to keep horses, ponies, marquees for entertaining, or even a helipad should you require! If you kept a pony, you would simply lead it from the field into the garden where the stables are found. The garden is walled, so it’s safe for children and pets, and it feels contained and extremely private. The grounds and gardens are very special indeed, with surprises and special moments at every turn, including a beautiful courtyard, secret garden with tree house, orchard, tennis court, stream and the most exquisite outdoor swimming pool.

As well as being a magnificent property of grand proportions, Shellingford House has a real warmth to it and is a family home that has clearly been loved and enjoyed over the years.

Accommodation summary

Ground Floor

As you step through the grand front door to the reception hall, this property will charm and wow you instantly, from the beautiful tiled floor, stunningly high ceiling, imposing Jacobean staircase and beautiful fireplace.

There are plenty of wonderful reception rooms that could be used in a variety of ways. The drawing room and dining room have floor to ceiling Georgian windows and doors to the front garden. Both rooms have a grandeur befitting of its period as well as being flooded with natural light and beautiful fireplaces. There is also a fantastic attached barn, ideal as a games room, gym or a studio / library and a beautifully bright dual-aspect office which is ideal as an art studio. There is a super kitchen / dining room (with access to the cellar) as well as a boot room and laundry room.

My Kitchen

Within the house itself, the kitchen island is made from walnut burr on top of which sits a magnificent and very rare slab of Bianco Eclipsia - a white/grey marble with grey semi translucent veining of exceptional quality and durability, originating from Brazil. Semi-precious tiger’s eye spheres serve as cabinet knobs. The island is designed to contain pots and pans, cookery books and equipment, leaving lots of free wall space for paintings, floating shelves to display flowers in vases, or pretty objects.

I love the combination of prep and cooking areas with the gas-fired Aga, electric oven, prep sink area, and island which incorporates a Smeg grey ceramic glass gas hob, whilst the washing up area has two Miele dishwashers perfectly placed.”

Seller Insight

When I first stepped through the front door, I immediately felt a sense of history and timelessness - the classic height of the ceilings in every room, together with the French windows framed by wisteria along the entire front of the house, leading out to the garden; a uniquely lovely flow between the principal rooms with the stunning Jacobean staircase at the centre, all of which made me realise that it’s an important historical house of huge elegance, but also a family house, naturally warm in feel, and cosy, which is essential in a large house.

I fell in love with the quality of light in the house as there is a double aspect in most rooms offering a huge amount of natural light, and even though I didn’t realise it at the time, what would also bring me great comfort due to the width of the walls is the coolness of the house in the summer, so in heat waves we are deliciously cool inside, whilst in winter it is naturally warm. I love the sumptuous ensuite bathroom with underfloor heating and a view from the bath.

We enjoy egg hunts and treasure hunts in the garden, family birthday barbecues at the pool, or in the woods, yoga by the pool, open fires in the house, cooking in the kitchen, games of tennis, football and cricket matches on the lawn. Cycle rides to Uffington Village. I love walks with my family and dogs across the field, with stunning views of the Ridgeway and White Horse beyond. The French windows leading out into the garden, the kitchen door leading out to the sun terrace, (a complete sun trap), picnics with my children on the lawn, reading on the lawn with music coming through the French windows, the scent of wisteria, blossom trees and pink roses, the flow of air and light throughout: it’s south-west facing so every side gets sun at every part of the day.

I enjoy and appreciate the spectacular views from every single window – waking up to look onto the field in spring with its meadow flowers and view of the ancient White Horse and the Ridgeway beyond. The south-east side of the house looks onto the lovely village church, which takes a couple of minutes to walk to. The Courtyard at the back is entirely private, at its centre sit established mulberry and English walnut trees and there’s a large Magnolia at the side. The Barn forms one side of the Courtyard, and has full length windows and doors that give onto the courtyard, and if you keep your classic cars there, a fine view of those!

It’s more than a house - it’s a way of life. It is full of joy, wonder and surprise. The house and garden never cease to amaze and surprise me - the views from every window and facade, the light on all sides of the house throughout the day, the garden’s abundance of rambling and climbing roses. The variety of trees from mulberry, English walnut, Scots pine, to horse chestnut to beech to Catalper, olive, rosehip, cherry, crab apple, Magnolia, and fruit trees of every kind, nod to talented horticulturalists who have lived here.

I delight in absolutely every element of the house and grounds. It has been a huge honour and privileged to be custodian of the beautiful and special Shellingford House, what I have put into it has returned to me a hundred-fold. She’s like a steady ship who has taken me through different parts of my life.”*

* These comments are the personal views of the current owner and are included as an insight into life at the property. They have not been independently verified, should not be relied on without verification and do not necessarily reflect the views of the agent.

First & Second Floor

As well as the incredible central Jacobean stair case, there are two more stair cases, giving access to the first floor. One rises from the rear lobby by the studio/library to a fabulous room, which could be a super office or another bedroom.

All of the bedrooms have a character and charm of their own, as well as some very special views. On the first floor, there is a superb principal suite with beautiful bathroom and dressing room, two more double bedrooms, a bathroom and shower room.

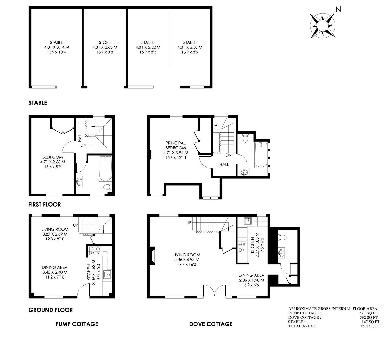
Pump Cottage & Dove Cottage

Shellingford House has the added benefit of two delightful one-bedroom cottages. They are completely self-contained, beautifully presented and each with its own character. As well as the income potential they could offer, these could also be fantastic for live-in relatives, who can be on site but with their own independence and privacy, or for visiting guests.

Pump Cottage and Dove Cottage Council Tax Band B Pump Cottage Dove Cottage

Step Outside

Shellingford House sits in approximately 8 acres and the gardens are an absolute delight, perfectly befitting of this substantial and elegant property. The gardens surrounding the property not only offer beautiful views at every turn but also complete privacy.

The wisteria at the front and side has been established for a long time, whilst the garden is full of mature trees, of particular note is a fine beech tree at the front. The gardens are simply beautiful with a romance inherent of The Secret Garden, and a stream running through at the bottom, which leads to the tennis court. The orchard has a number of wonderful apple trees with cooking varieties, as well as a mixture of delicious eating apples.

There is a 3-stable block and a large outbuilding off the main courtyard, ideal for storage or as a car barn.

Swimming Pool

The swimming pool area is quite simply like no other place I’ve ever been. Through the pool gate, a few stone steps lead down to a terrace, with three more stone steps to the pool, so it’s enclosed and sheltered. As the pool faces south-west, the Scots pine in the garden above gives it welcome shade at various times of the day. The space is stunning with its beautiful exotic Catalpa trees, silver birch and fig. The tiled swimming pool sits within an ornamental garden and has Roman steps leading down into it. White Annabelle hydrangeas run along one side, that when reflected in the blue sky of the pool look simply beautiful.

LOCATION

Shellingford is a beautiful rural village in the Vale of the White Horse peppered with unique and characterful homes, and with a highly regarded Primary school, wonderful walks, and incredible views across the Vale to Uffington White Horse.

Having an idyllic pastoral setting, it is conveniently located just 3 miles from the market town of Faringdon, where you have 3 large supermarkets as well as a choice of independent places to shop and eat. The village is also very well placed for access to some of the County’s most sought-after Independent Junior and Senior Schools.

You are spoilt for choice for places to visit and eat out in the area, whether it be a fantastic Sunday Roast in one of the many neighbouring village pubs or a delicious milkshake at Mollies Diner, as well as being just 7 miles from Estelle Manor.

Shellingford is a village where you can enjoy all of the peace, beauty and fresh air of the surrounding countryside, whilst being just 20 miles from Oxford City Centre, and 15 miles from Didcot with its direct link to London Paddington.

Directions - Postcode: SN7 7QA / what3words: volcano.bachelor. flask

Services:

Mains Water, Drainage, Gas and Electricity

Mobile Phone Coverage - 4G mobile signal is available in the area, we advise you to check with your provider

Broadband Availability - Superfast Broadband Speed is available in the area, with predicted highest available download speed 62 Mbps and highest available upload speed 14 Mbps

There are covenants on the property – please speak with the agent for further information.

The property is located in a conservation area

There is a public footpath in the field

Construction - Stone

Parking - There is a large gated driveway with parking for multiple vehicles as well as free street parking.

Registered in England and Wales. Company Reg No. 8328850. Registered Office: 121 Park Lane, Mayfair, London, W1K 7AG. copyright © 2024 Fine & Country Ltd.

Agents notes: All measurements are approximate and for general guidance only and whilst every attempt has been made to ensure accuracy, they must not be relied on. The fixtures, fittings and appliances referred to have not been tested and therefore no guarantee can be given that they are in working order. Internal photographs are reproduced for general information and it must not be inferred that any item shown is included with the property. For a free valuation, contact the numbers listed on the brochure. Printed 18.06.2024

Council Tax Band: H Tenure: Freehold

Fine & Country

T: 01285 339 019 | M: 07585 914 373 emma.brooks@fineandcountry.com

Emma is the Associate Partner for Fine & Country in Oxfordshire & the Cotswolds. She lives in the Cotswolds with her husband, children and two dogs. She is completely immersed in, and passionate about, the area she lives and works in and is perfectly placed to advise you on all aspects of moving to and within the area.

Emma has a depth of knowledge and experience from 19 years of working in the property industry as an Estate Agent in Oxfordshire and the Cotswolds. She has run highly successful businesses during changing and challenging markets, training her staff to her own exacting standards and creating a reputation as an honest and reliable professional who will guide you through the whole process and get you the best result for the circumstances.

Emma is dedicated to providing exemplary service throughout the whole buying and selling journey, offering expert and honest advice and developing long term relationships as a trusted advisor and friend to her clients.

FINE & COUNTRY

Fine & Country is a global network of estate agencies specialising in the marketing, sale and rental of luxury residential property. With offices in over 300 locations, spanning Europe, Australia, Africa and Asia, we combine widespread exposure of the international marketplace with the local expertise and knowledge of carefully selected independent property professionals.

Fine & Country appreciates the most exclusive properties require a more compelling, sophisticated and intelligent presentation – leading to a common, yet uniquely exercised and successful strategy emphasising the lifestyle qualities of the property.

This unique approach to luxury homes marketing delivers high quality, intelligent and creative concepts for property promotion combined with the latest technology and marketing techniques.

YOU CAN FOLLOW EMMA ON

We understand moving home is one of the most important decisions you make; your home is both a financial and emotional investment. With Fine & Country you benefit from the local knowledge, experience, expertise and contacts of a well trained, educated and courteous team of professionals, working to make the sale or purchase of your property as stress free as possible.

6
Fine & Country Tel: +44 (0)1285 339019 emma.brooks@fineandcountry.com 2 A P Ellis Rd, Upper Rissington, Cheltenaham, GL54 2QB

Turn static files into dynamic content formats.

Create a flipbook
Issuu converts static files into: digital portfolios, online yearbooks, online catalogs, digital photo albums and more. Sign up and create your flipbook.