Reading, Berkshire

Page 1

Scratchface Lane | Bradfield | Reading | Berkshire | RG7 6DN

Speedwell

SPEEDWELL

A brand new luxurious country home offering over 4000 sq ft of accommodation, set in just over two acres of grounds, in a tranquil rural location.

STEP INSIDE

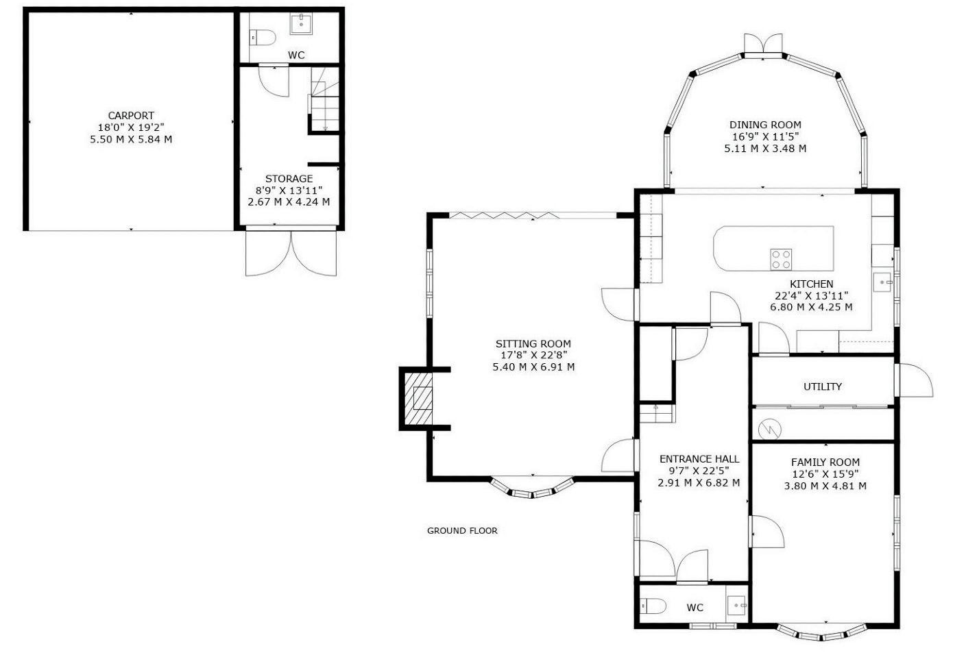
Speedwell is a stunning country property which has been newly constructed and finished to an exacting standard to create a luxurious, high specification family home. There are six double bedrooms, four bathrooms and three reception rooms along with an exquisite kitchen/ dining room with high specification appliances, double carport with large office above and cloakroom, electric gated driveway and just over two acres of gardens and grounds. There is underfloor heating to the ground floor and all the bedrooms are fitted with air-conditioning units. The family, sitting and kitchen / dining rooms also have Polk audio ceiling speakers.

The beautiful kitchen/dining room is the heart of this home. Fitted with hand painted shaker style cabinetry, Calacatta gold granite work surfaces, Quooker smart tap, comprehensive range of high specification NEFF appliances and a sleek built-in downdraft extractor ducted directly to outside, you’ll find every detail has been meticulously thought out. The dining area with its green oak vaulted ceiling and large picture windows, together with central French doors opening onto the patio and gardens finishes off this fabulous entertaining space.

The light, airy sitting room is triple aspect having an attractive herringbone brick chimney breast with oak mantlepiece which was purchased locally and is believed to have once been a part of the Globe Theatre in London. Sitting on a slate flagstone hearth is a Charnwood Cranmore 7 log burner, which is a DEFRA approved clean air burner. There are also bi-fold doors opening onto a large terraced area overlooking the garden.

There is also a dual aspect family room, cloakroom and a utility room to complete the ground floor accommodation.

The principal bedroom has two pairs of fitted wardrobes, a pair of side tables with drawers, a luxury ensuite shower room, and a large dressing room with fitted wardrobes. Bedroom two has a walk-in wardrobe and ensuite shower room. Bedroom three has a built-in wardrobe and desk unit with drawers. Bedroom four has two pairs of double wardrobes, two bedside cabinets with drawers. Bedroom five has a fitted double wardrobe. Every bedroom is fitted with a wall mounted Daikin air-conditioning unit providing cooling as well as heating. Perfect for the warmer summer months.

The luxurious bathrooms are fully tiled using Italian porcelain with furniture by Roca. All taps and shower valves are made by Grohe, apart from the bath filler taps which are Hudson Reed. Electric mirrors with built in light, shaver socket and de-misting pad.

SELLER INSIGHT

We are a well-established, family run business covering all aspects of property, including new builds and renovations. It’s fair to say that we have ‘quite a few years’ worth of experience’ in the industry and Speedwell is certainly a property of which we are very proud. The location and setting appealed to us and we purchased the plot and run down cottage with the aim of creating a brand new, luxury country house designed to make the most of the beautiful views over unspoilt countryside,” says the owner.

“Located on a peaceful lane on the outskirts of Pangbourne, the property is set in grounds of over 2 acres and is surrounded by trees and greenery, so it’s easy to forget that a wide range of amenities are close to hand, including highly regarded schools, shops, butchers, restaurants, and leisure facilities, so it really is the best of both worlds here.”

“My standout room has to be the luxurious kitchen with the stunning Green Oak timber frame and underfloor heating. I can envisage this being a superb room for day-to-day family life and entertaining, as it’s warm and welcoming with huge doors leading to the patio and garden beyond. It’s a real party house as there’s no one around to disturb, so the new owners can enjoy celebrations and get-togethers late into the evening; with 6 double bedrooms and plenty of parking and outdoor space available, it’ll be perfect for larger scale gatherings too.”

“We completed the build to the highest specification to include air conditioning, 360 degree CCTV, Italian porcelain tiles in the bathrooms, and granite kitchen worktops. I also like the flexibility that the layout offers, as well as the multi-functional space above the garage that could be utilised as a home office, games room, gym or as a playroom for children. The gardens are private and not overlooked, so are ideal for relaxing and BBQs with friends and family. I truly believe that this is a wonderful home ready and waiting for the new owners to come in and enjoy all that it has to offer.”*

* These comments are the personal views of the current owner and are included as an insight into life at the property. They have not been independently verified, should not be relied on without verification and do not necessarily reflect the views of the agent.

STEP OUTSIDE

The property is accessed via an electrically operated gate which has a Videx audio surface system with internal phone. There is parking for multiple vehicles and access to the green oak detached double car port which has a cloakroom, storage, and a large office space above which is fitted with two ceiling mounted air-conditioning units that also provide cooling and heating. There are French doors leading to a large balcony to enjoy the unspoilt countryside views. The property sits in approx. 2.1 acres of gardens and grounds of pastureland and lightly wooded areas. There is also a ZAPPI EV charger located in the car port which is compatible with all the leading electric car brands available in the UK. It has 3 charging speeds. Eco, Eco+ and fast charge.

LOCATION

Speedwell is perfectly positioned between Reading and Newbury, and Pangbourne is nearby with all its amenities, including a fantastic selection of independent shops and a train station. In nearby Yattendon, you’ll find the famous Royal Oak Country House Hotel and Pub which won Berkshire dining pub of the year in both 2020 and 2021. There’s a multitude of great schools in the area including Bradfield College, Cranford House, Down House, Moulsford Prep, The Oratory and Pangbourne College. The M4 J12 at Theale is within easy driving access, as is M4 J13.

Registered in England & Wales. LMSY2 Limited. Company No: 13409087.

Registered Office Address: Amelia House, Crescent Road, Worthing, West Sussex BN11 1RL copyright © 2024 Fine & Country Ltd.

INFORMATION

Services

Mains electricity, bore hole water supply shared with a neighbour, and private drainage provided by a new Graf one2clean sewage treatment plant system has been installed. There is an underground LPG tank located in the front lawn, monitored by Calor Telemetry device, which is automatically refilled by Calor before it empties. The only charge is the small amount of electric used by the pump to pull the water up. There is a BWT water softener that fills up two 500 litre Dab Esy tanks. The water when called for gets boosted into the house at 3 bars of pressure. This is accompanied by a 145 litre unvented Megaflo for high pressure hot water. The boiler is a Worcester Bosch Greenstar 8000 A-Rated LPG boiler. Broadband is not connected but there are various options available. You can find more information here - https://www.openreach.com/fibre-broadband . The vendors report no mobile coverage issues and are on the BT network. More information is available here https://checker.ofcom. org.uk/

Tenure

Freehold

Local Authority

West Berkshire Borough Council

Viewing Arrangements

Strictly via the vendors sole agents Fine & Country – Adrian Beatty 07899 875966.

Website

For more information visit www.fineandcountry.com/reading

Opening Hours:

Monday to Friday 8.00am – 10.00pm Saturday 8.00am – 8.00pm Sunday 8.00am – 8.00pm

Agents notes: All measurements are approximate and for general guidance only and whilst every attempt has been made to ensure accuracy, they must not be relied on. The fixtures, fittings and appliances referred to have not been tested and therefore no guarantee can be given that they are in working order. Internal photographs are reproduced for general information and it must not be inferred that any item shown is included with the property. For a free valuation, contact the numbers listed on the brochure. Printed 22.05.2024

FINE & COUNTRY

Fine & Country is a global network of estate agencies specialising in the marketing, sale and rental of luxury residential property. With offices in over 300 locations, spanning Europe, Australia, Africa and Asia, we combine widespread exposure of the international marketplace with the local expertise and knowledge of carefully selected independent property professionals.

Fine & Country appreciates the most exclusive properties require a more compelling, sophisticated and intelligent presentation –leading to a common, yet uniquely exercised and successful strategy emphasising the lifestyle qualities of the property.

This unique approach to luxury homes marketing delivers high quality, intelligent and creative concepts for property promotion combined with the latest technology and marketing techniques.

We understand moving home is one of the most important decisions you make; your home is both a financial and emotional investment. With Fine & Country you benefit from the local knowledge, experience, expertise and contacts of a well trained, educated and courteous team of professionals, working to make the sale or purchase of your property as stress free as possible.

Fine & Country Reading 01182 074997 | 07899 875 966

adrian.beatty@fineandcountry.com

Adrian has been in the property industry for a number of years having previously worked in finance in the City. He has extensive knowledge of new builds and property developments having completed a number of successful projects himself.

His ethos is to work transparently with his clients on a one-toone basis and put them first, listening to their requirements and getting them the outcome they want with uncompromising integrity and discretion.

production of these particulars has generated a £10 donation to the Fine & Country Foundation, charity no. 1160989, striving to relieve homelessness.

Visit fineandcountry.com/uk/foundation THE FINE
FOUNDATION
The
& COUNTRY

follow Fine & Country Reading on Fine & Country Venture House, 2 Arlington Square, Downshire Way, Bracknell, Berkshire RG12 1WA 01182 074997 | reading@fineandcountry.com

Turn static files into dynamic content formats.

Create a flipbook
Issuu converts static files into: digital portfolios, online yearbooks, online catalogs, digital photo albums and more. Sign up and create your flipbook.
Reading, Berkshire by Fine & Country - Issuu