Farnham, Surrey

Page 1

Whitmead Lane | Tilford | Farnham | Surrey | GU10

Ravenswing
2BF

RAVENSWING

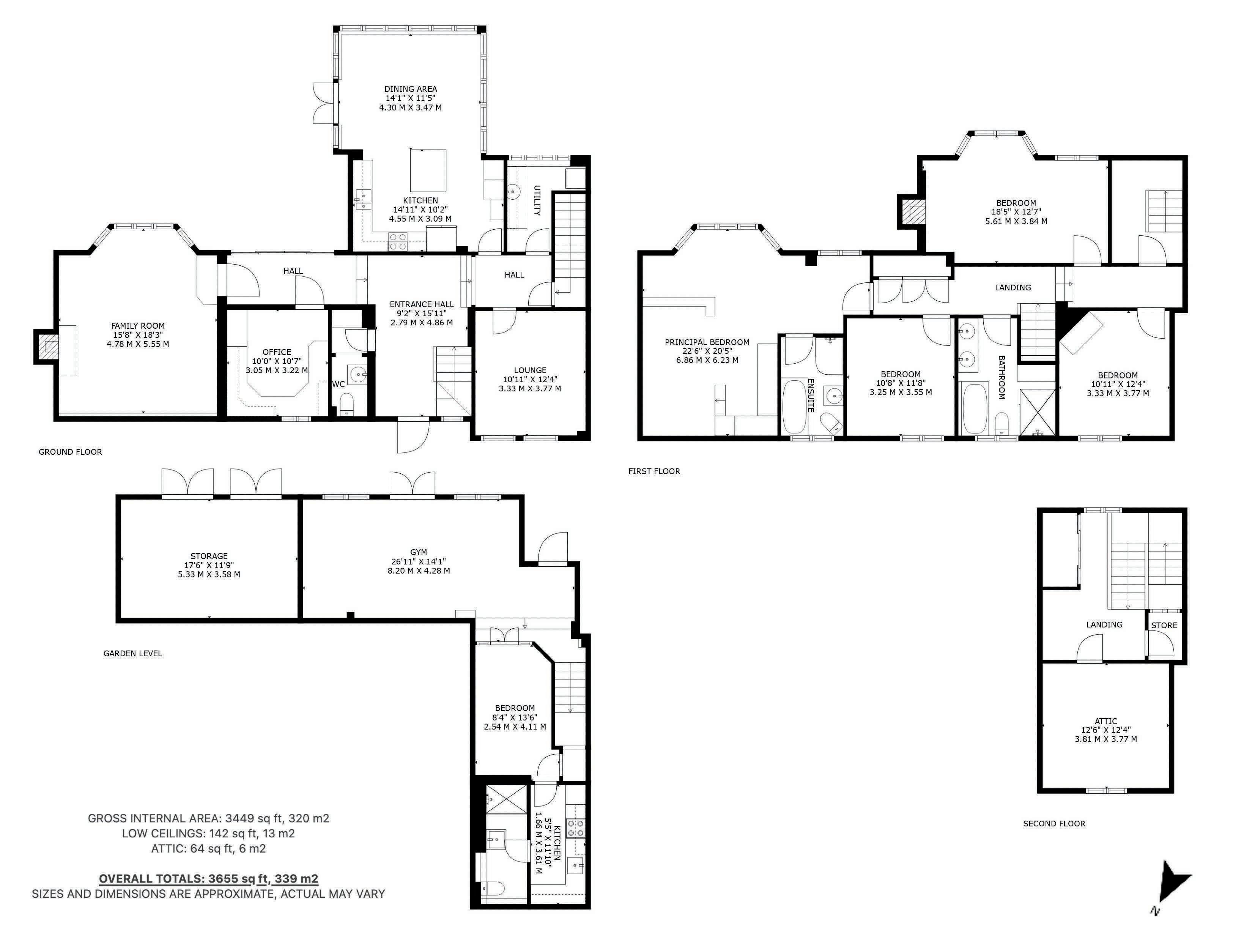
With 3449 square feet of well-proportioned accommodation over 3 floors, Ravenswing is full of character with an expansive sense of spaciousness.

Ground floor

The entrance hall is welcoming with exposed brick, giving an impressive introduction to the property, with a convenient cloakroom to one side.

A glass walkthrough leads to the study, and beyond to the main living room, which benefits from a log burner fireplace, bay window, and a unique 52ft deep bottle-shaped well, enclosed beneath reinforced glass at floor level. The kitchen breakfast room is light and airy with modern cabinetry, breakfast island and a conservatory extension which offers ample dining space, with views out over the gardens and surrounding countryside. French doors lead out to an inviting patio area, perfect for entertaining in the summer months.

Seller Insight

Nestled along the serene Whitmead Road in Tilford, Farnham, stands Ravenswing, a timeless Victorian wing of a country house dating back to 1883. For the past eight years, its proud owners have meticulously transformed it into a haven of modern comfort while preserving its rich historical character.

“We both fell in love with it the moment we saw it,” reminisces the owner, reflecting on what initially drew them to Ravenswing. “The character features, incredible views, stunning kitchen area, and quiet set-back location were simply irresistible.”

Situated on a secluded plot, Ravenswing offers a tranquil retreat from the bustle of everyday life. “It’s well set back from the road, providing a sense of privacy,” the owner shares.

Describing the area as semi-rural, the owner highlights its excellent proximity to essential amenities. “Elstead village for top-up shopping, Farnham for dining, and Guildford for retail therapy are all within easy reach,” they explain. “And London is just an hour away, making it ideal for commuting.”

The sense of community adds to Ravenswing’s appeal, with the owner praising their “absolutely lovely neighbors.” “We’ve had dinner parties and Friday drinks in our beautiful kitchen,” they share warmly.

One of Ravenswing’s standout features is its enchanting garden, described as “varied yet easy to maintain.” “It’s a perfect home if you have pets,” the owner enthuses. “My dog and cats absolutely adore the gardens and the miles of woodland to explore.”

The heart of the home, however, lies in its kitchen. “It’s the real heart of the home,” the owner affirms, praising its captivating view and functionality. Another unique feature, the well in the living room, adds to the property’s allure, providing a fascinating glimpse into its history.

But it’s not just the interior that captivates. “The view from the rear of the house is just stunning,” the owner reveals. “We often see deer, pheasants, foxes, and a huge variety of birds from our bedroom.”

Ravenswing’s spacious layout and inviting patio make it perfect for entertaining. “We’ve hosted many large family barbecues and Christmas gatherings,” the owner shares. “There are so many areas for people to gather, it never feels crowded.”

As they prepare to bid farewell to Ravenswing, the owner reflects on the things they’ll miss most: “The peaceful location, incredible views, spaces for entertaining, and walks down the lane with my beloved pets.”*

* These comments are the personal views of the current owner and are included as an insight into life at the property. They have not been independently verified, should not be relied on without verification and do not necessarily reflect the views of the agent.

First floor

Upstairs are generously sized double bedrooms. The master suite boasts high ceilings, a raised bed area and en-suite bathroom complete with underfloor heating. The views from the master and second bedroom are simply breath-taking reaching all the way to Thursley nature reserve. Servicing the remaining bedrooms, the luxurious family bathroom has both a bath and walk-in shower along with underfloor heating. There is ample scope to create an additional bedroom on the second floor, subject to planning permission.

Annexe

Accessed from within the house via an internal stair way is a self-contained annexe featuring a large reception room (currently used as a gym), French doors, a double bedroom, modern fitted kitchen, and bathroom with walk in shower. The annexe also has its own private front door entrance at garden level.

Outside

The property benefits from a large block paved drive providing ample parking and turning space, and is surrounded by meticulously landscaped gardens, featuring a charming well, Victorian archways, intricate paths, lawns, Victorian walls and pillars and ornate stairways leading to the lower levels. A large patio can be accessed through 2 sets of French doors from both the kitchen and glass walkway. An additional patio area can be found just off the annexe living room, also accessed by French doors.

Location

Ravenswing sits in the parish of Tilford, with the picturesque village green in walking distance. One of Surreys most sought after and recognisable villages, Tilford features a popular pub, cricket club, tennis club, fishing, golf and two high rated infant and junior schools. Stunning dog walks and excellent equestrian facilities are all on this property’s doorstep.

Conveniently situated close to Farnham, Godalming and Guildford. Nearby the A3 and A31 provide easy access to the M3 and M25. Trains less than an hour from Waterloo and less than an hour from Heathrow and Gatwick airports

Fantastic golf, tennis, fishing, sailing and equestrian opportunities.

Registered

Head

Services, Utilities & Property Information

Utilities – Mains gas, electricity, drainage.

A sewage treatment plant serves this property and two others, with the costs shared between them.

Central Heating - Gas

Mobile Phone Coverage: 4G mobile signal is available in the area. We advise you to check with your provider

Broadband Availability – Ultrafast Broadband (FTTP) is available in the area

Tenure – Freehold

Council Tax – Band G

Local Authority – Waverley Borough Council

EPC Rating - D

Title: There is an easement on this title. Please speak to the agent or further details

Directions - Postcode: GU10 2BF

in England and Wales. Company Reg. No. 087 75854, VAT Reg No 178445472
Office Address: 5 Regent Street, Rugby CV21 2PE copyright © 2024 Fine & Country Ltd.

Whilst we carry out our due diligence on a property before it is launched to the market and we endeavour to provide accurate information, buyers are advised to conduct their own due diligence. Our information is presented to the best of our knowledge and should not solely be relied upon when making purchasing decisions. The responsibility for verifying aspects such as flood risk, easements, covenants, and other property related details rests with the buyer.

Agents notes: All measurements are approximate and for general guidance only and whilst every attempt has been made to ensure accuracy, they must not be relied on. The fixtures, fittings and appliances referred to have not been tested and therefore no guarantee can be given that they are in working order. Internal photographs are reproduced for general information and it must not be inferred that any item shown is included with the property. For a free valuation, contact the numbers listed on the brochure. Printed 13.06.2024

CLAIRE ADAMS PARTNER AGENT

Fine & Country South and West Surrey claire.adams@fineandcountry.com 07801290950

Proudly representing Fine & Country, I’ve been a resident of Surrey for over 13 years, bringing in-depth local knowledge to assist clients in showcasing and selling their homes. I’m here to provide a dedicated and personalised service, offering a seamless and professional experience. I’ll be by your side from the start of your journey, collaborating on a tailored marketing strategy for your home, all the way through to completion and handing the keys to your buyers, navigating the market with expertise and care, ensuring a successful and smooth selling journey for you and your property.

YOU CAN FOLLOW US ON

FINE & COUNTRY

Fine & Country is a global network of estate agencies specialising in the marketing, sale and rental of luxury residential property. With offices in over 300 locations, spanning Europe, Australia, Africa and Asia, we combine widespread exposure of the international marketplace with the local expertise and knowledge of carefully selected independent property professionals.

Fine & Country appreciates the most exclusive properties require a more compelling, sophisticated and intelligent presentation – leading to a common, yet uniquely exercised and successful strategy emphasising the lifestyle qualities of the property.

This unique approach to luxury homes marketing delivers high quality, intelligent and creative concepts for property promotion combined with the latest technology and marketing techniques.

We understand moving home is one of the most important decisions you make; your home is both a financial and emotional investment. With Fine & Country you benefit from the local knowledge, experience, expertise and contacts of a well trained, educated and courteous team of professionals, working to make the sale or purchase of your property as stress free as possible.

6
Fine & Country Tel: +44 (0)1483 600844 swsurrey@fineandcountry.com Parallel House 32 London Road, Guildford, Surrey GU1 2AB

Turn static files into dynamic content formats.

Create a flipbook
Issuu converts static files into: digital portfolios, online yearbooks, online catalogs, digital photo albums and more. Sign up and create your flipbook.
Farnham, Surrey by Fine & Country - Issuu