Lancaster, Lancashire

Page 1

Westbourne Drive | Lancaster | Lancashire | LA1 5EE

Westwood

WESTWOOD

Substantial and impressive, a fine late Victorian residence, largely unchanged in architectural terms since it was built in 1890 by the developer of neighbouring properties for his own private residence. It has been respectfully upgraded and a garden room extension added alongside an open plan kitchen, which extends the living accommodation out into the rear garden and provides a wonderfully sociable living space – perfect for everyday family life and wonderful if you enjoy opening your home to friends.

Set back behind a deep front garden and thus affording a degree of privacy rare in such a central location, Westwood occupies a prime position in one of Lancaster’s most desirable and quiet residential addresses. Being within walking distance of all city amenities including the railway station, schools and shops, it is an exceptionally convenient and accessible place to live and enjoy a city lifestyle.

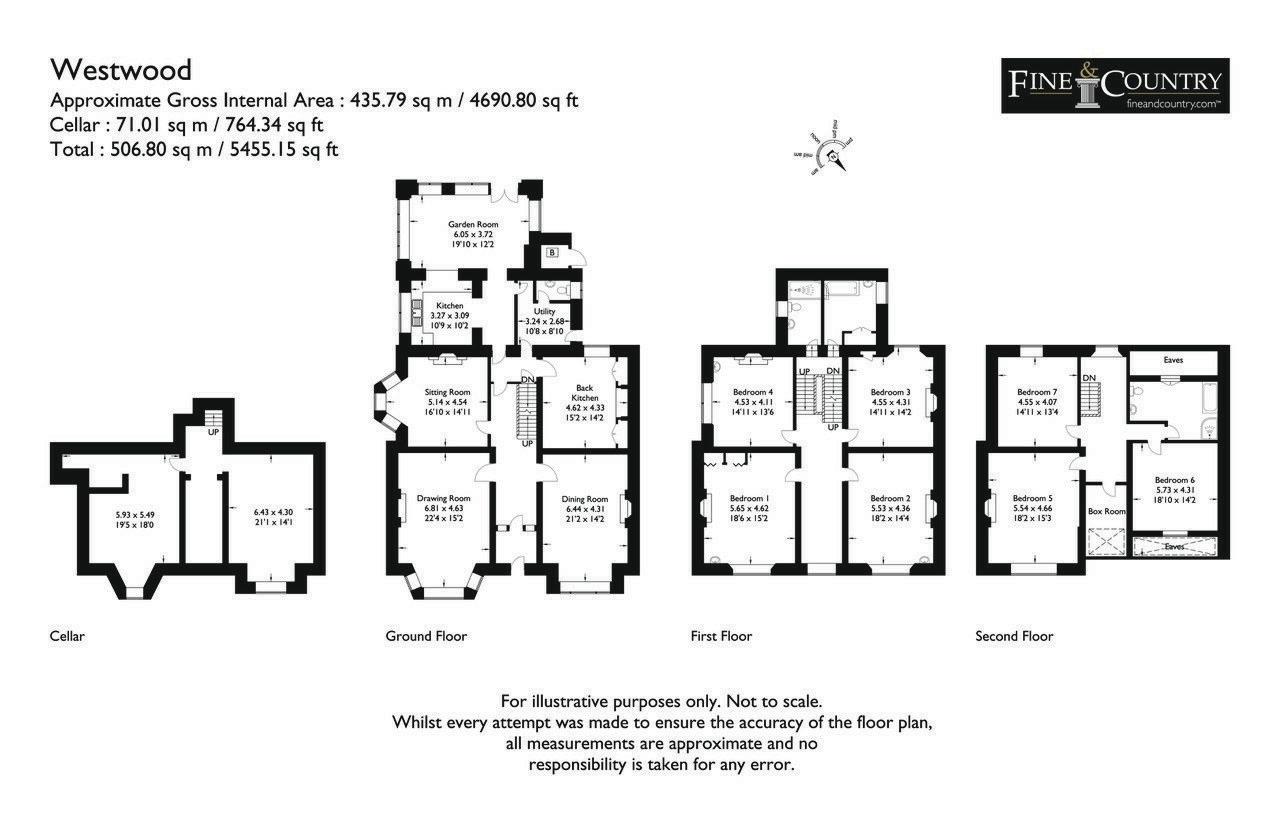
Whilst in many respects this is a true period piece, rich in architectural details with plentiful original features, it has all the appointments necessary for modern day living. An entrance vestibule opens into the staircase hall, there are three reception rooms, a kitchen opening into a garden room, an original ‘back’ kitchen, utility and cloakroom. A range of useful and substantial cellar rooms provide excellent storage. On the first floor there are four double bedrooms and two bath/shower rooms. On the second floor, three further double bedrooms, a box room and bathroom.

Outside, gardens surround the house to three sides. The front garden is well stocked and screens the house from quiet and elegant Westbourne Drive. The private driveway offers parking for several cars, the side seating terrace is an absolute sun trap and the back garden envelopes the garden room and creates a lovely leafy outlook from within.

In short, a prime period house in a premier location – highly recommended for those seeking a large house with the convenience and amenities of a city centre lifestyle.

When we first viewed Westwood we felt it had “good bones” and we loved the scale of the house with all its original features. There have only ever been four or five owners since it was built and so not a tremendous amount had changed over the years.

Over the last twenty years this has been a wonderful and much loved house for our family.

We have enjoyed entertaining family, friends and colleagues here; over the years we’ve hosted wedding celebrations, parties for special occasions, many a barbecue and every year on Christmas Eve we hold a traditional candle-lit Swedish dinner for the whole family.

Our children had friends who lived out of town and so our house became a hub for them after school and at weekends; somewhere they could all get together – we often had a house full and many sleep-overs.

Location

Within the Cannon Hill Conservation Area, leafy Westbourne Drive offers the best of both worlds and provides an attractive balance to life. All that the busy and bustling city of Lancaster has to offer is within walking distance and yet returning home there is a sense of peace and tranquility that pervades this smart and highly respected residential area.

Lancaster has wide appeal for all ages with an established cultural and music scene, excellent schools, a wide selection of restaurants, cafes and bars offering cuisines from around the world, a good range of high street and independent shops mainly located with the pedestrianised centre, a twice weekly market, a comprehensive provision of professional services, two universities (Lancaster and Cumbria) and good healthcare provision with both private and NHS hospitals in the city.

Centrally situated, Westwood is convenient for those working at the universities and hospitals and is within walking distance for children attending the Grammar Schools or Ripley St Thomas Church of England Academy.

Whether you need to travel for business or love to get out and about for pleasure, transport links are to hand. Importantly, the train station is within walking distance and has regular services to Manchester, London Euston and Edinburgh on the main West Coast line. If travelling by car, access to the M6 is either at J34 (where there is a convenient Park and Ride facility) or J33.

It’s a lovely quiet place to live. We are surrounded by greenery and hear the birds and owls, but within a short walk we’re right in the middle of the city. There are some great walks straight from the door - Fairfield Nature Reserve, Freeman’s Wood, along the canal and the river Lune from the quayside in both directions..

The location has been ideal for our family as the children could walk everywhere and then when they were old enough, the proximity of the station gave them great freedom and new opportunities.

Step inside

The owners tell us that it will be a wrench to leave Westwood and we fully appreciate why. It is an inviting, deeply charismatic and atmospheric period property, offering rare space and undeniable grandeur. With extensive accommodation laid out over four floors, it’s an ideal arrangement for family life where children can effectively have the top floor of bedrooms to themselves. Equally, it is the perfect house if you enjoy welcoming guests - the formal drawing room and dining room providing a real sense of occasion with the splendid proportions and fine period details. Deeply traditional in its layout, this is a substantial ‘four square’ house with generous and graciously proportioned rooms set over four floors connected by ample circulation space – a large hallway and spacious landings. It’s also a lovely light house, the front of the house attracts the morning sun which then moves round to the side terrace, sitting room, garden room and back garden for the afternoon and evening.

For those appreciative of period features, Westwood provides a taste of a bygone era with rooms boasting many hallmarks of the Victorian period. High ceilings, ornate moulded cornices still crisp in their fine detailing, ceiling roses and picture rails. Many of the floor coverings are original offering everything from Victorian tiling to exposed and polished floorboards.

There is an impressive selection of period fireplaces throughout the house - mahogany in the drawing room (said to be Gillows) with original hand painted tiles depicting pastoral scenes from the height of the romantic period, whilst the dining room mantlepiece is rouge royal red marble with a fire basket. The sunny south facing sitting room is a more informal room with a marvellous 1930s flame mahogany veneer fire surround with pastel coloured tiled insert and hearth. The former ‘back’ kitchen houses a high stone fire surround and whilst it is no longer in use it is flanked by the original and incredibly practical alcove cupboards and drawers. On the first floor, all four of the large bedrooms have period fireplaces and on the top floor, one of the three double bedrooms has a cast iron fireplace, presumably a former servant’s room.

Befitting the proportions of the rooms, skirting boards and architraves are suitably deep, internal doors are weighty, panelled and feature original handles, finger plates and ironmongery. The substantial staircase with elegant mahogany banister rises from the hall to the second floor, impressive in its proportions with a carpet runner secured with the original brass rods. Stone steps lead down to the cellar rooms.

Most windows are the original sash design, with double glazing in the extension. There is leaded and coloured glass featuring on the inner hall door and side panels and in the bathroom where the glazing is reminiscent of a sunrise, entirely appropriate as the bathroom suite is an authentic 1930s design in primrose yellow with the original vanity mirror and wall tiling. In addition to this absolute gem, there’s an adjacent modern second shower room with shower, plus a bathroom on the top floor and a ground floor cloakroom. Three of the first-floor bedrooms also have wash basins.

The present owners undertook a gentle remodelling at the rear of the house to provide a family friendly living space with a kitchen partially open to a light and airy garden room; it’s a successful configuration of space that provides room to cook, eat, chat and relax. The layout is sufficiently connected and open plan to be sociable but retains a degree of separation. Joiner made cabinets are bespoke and topped with granite worktops. The garden room is lovely by day, magical by night – especially for a summer dinner party. The pine floorboards have been given a Scandinavian look and lightened using a traditional lye finish to reflect light, there is wrap around glazing and French windows open to the garden. The outlook is surprisingly green; the lawn extending to mature and established planted borders with neighbouring trees providing a sense of seclusion.

All in all, an outstanding house, substantial, light and spacious and delight fully rich in architectural details.

The garden room is very much our ‘day room’ and it is also wonderful for a dinner party as candlelight reflects in the glass. We put ou r Christmas tree in front of the French windows for the same reason, so the lights reflect all around. We also much enjoy coming together during the evenings in the winter months around a fire in the very snug little sitting room.

Step outside

A deep front garden screens Westwood from this quiet street providing a rare and surprising degree of privacy and seclusion, unusual in a setting as central as this. Stone gate pillars sit either side of the entrance to the drive which offers parking for several cars. To both the front garden and the deep planted border that runs along the length of the drive are a variety of flowering and colourful shrubs including rhododendrons and a wide selection of acers. The boundaries and front elevation are adorned with a variety of climbing plants including honeysuckle and wisteria, clematis and a flowering hydrangea. Planted beds gently curve around the front elevation’s bay windows either side of the imposing front door.

In spring the garden awakens with a succession of snowdrops, crocuses, daffodils and tulips. Spring brings the blossom on a pair of cherry trees and another couple of apple trees. Primulas and violets follow with summer colour thereafter, including a wonderful array of heritage scented roses.

On the site of the former Victorian glass house there is now a sunny and sheltered terrace, a favoured place for sitting and eating outside. In spring there is an established camelia here, the crimson blossom providing a welcome pop of early colour. Two red grape vines grow in the garden, one believed to be original to the house and originally planted in the glass house. The grass under the apple tree in the back garden is left to go wild, primroses loving the shade. There are two ponds with thriving wildlife, an external boiler house and useful log store, a repurposed air-raid shelter!

Agents notes: All measurements are approximate and for general guidance only and whilst every attempt has been made to ensure accuracy, they must not be relied on. The fixtures, fittings and appliances referred to have not been tested and therefore no guarantee can be given that they are in working order. Internal photographs are reproduced for general information and it must not be inferred that any item shown is included with the property. For a free valuation, contact the numbers listed on the brochure. Printed 07.06.2024

FURTHER INFORMATION

On the road

M6 J34 3 miles

Preston 26.2 miles

Manchester 56.3 miles

Manchester airport 65.8 miles

Liverpool airport 71.3 miles

Windermere 29.6 miles

The above journey distances are for approximate guidance only and have been sourced from the fastest route on the AA website from the property postcode.

Broadband & Mobile

Broadband

Superfast speed available from Openreach of 66 Mbps download and for uploading 14 Mbps.

Mobile

Indoor: EE, Three, O2 and Vodaphone for both Voice and Data all likely

Outdoor: EE, Three, O2 and Vodaphone for Voice, Data and Enhanced Data all likely

Broadband and mobile information provided by Ofcom.

Rail Journeys

Based on approximate direct train journey times from Lancaster station. Train service durations vary, please check nationalrail.co.uk for further details.

Services

Mains electricity, gas, water and drainage.

Gas fired central heating from a Hamworthy boiler in the external boiler house.

57mins 2hr, 30mins Manchester (Piccadilly) London (Euston) 2hr, 17mins Edinburgh

Lancaster City Council Local Authority

Directions

what3words always.remit.editor

Use Sat Nav LA1 5EE with reference to the directions below:

On the one-way system around Lancaster (A6/King Street), turn left onto Market Street (becoming Meeting House Lane) following the signs for the train station. Pass the station and continue onto Westbourne Road. Turn left onto Westbourne Drive and Westwood is the second entrance on the right.

Please note

Westbourne Road is unadopted; there is a charge of £60pa towards the upkeep.

Places to visit

Lancaster Castle and Priory

Ashton Memorial and Butterfly House at Williamson Park

Museums: Lancaster Maritime and City Museums and Judges’ Lodgings

The Storey (an arts centre)

Live theatre - The Dukes and the Lancaster Grand Theatre, and Williamson Park hosts open air theatre during the summer Cinema - The Dukes and Vue

Local eateries

We’re spoilt for choice in the city, here are a few favourites to try

Informal dining, cafes and pubs

From Atkinsons Coffee Roasters choose from The Castle, The Hall or the Music Room

Stop off at The Water Witch or The White Cross after a canal side walk

The Sun Hotel

The Quarterhouse

Journey Social Buccellis Italian Brew

Great walks nearby

Straight from the door, there is a choice of routes that will take you around Fairfield Nature Reserve, along the canal out to Aldcliffe village or through Freeman’s Wood to the River Lune’s quayside and then south to Glasson Dock or east to Crook o’Lune.

There are many paths around the historic and landscaped Williamson Park with its focal point, the Ashton Memorial; it also features ornamental ponds and play areas for younger children.

If you fancy something a little more challenging then the beauty of Lancaster is that the surrounding countryside is stunning; two National Parks, two Areas of Outstanding Natural Beauty and the undulating

Local leisure activities

3-1-5 Health Club

Swimming, gym, climbing wall, tennis, badminton and squash facilities at the university

There are thriving football, rugby and cricket clubs

Golf clubs – Lancaster, Morecambe and Heysham

Schools

Primary

Moorside Primary School

Lancaster Christ Church CoE Primary School

St Bernadette’s Catholic Primary School

Dallas Road Primary School

Secondary

Lancaster Royal Grammar School and Lancaster Girls Grammar School

Ripley St Thomas CoE Academy

Our Lady’s Catholic College

Further Education

Lancaster University

University of Cumbria (Lancaster campus)

Special occasions

Quite Simply French Now or Never by Journey Social

Lancaster and Morecambe College

Included in the sale

Fitted carpets (and staircase carpet runner), modern curtain poles and blinds, modern light fittings and those original to the house (in the drawing room and bathroom) and splash-back mirrors above wash basins.

Available by way of further negotiation are the garden room Venetian blinds and the free-standing kitchen appliances (Stoves range with gas hob and ovens, washing machine and fridge).

Specifically excluded from the sale are the curtains, antique curtain poles and antique light fittings.

beauty of the Lune Valley are all within driving distance for great days out.

In the Lake District there are Wainwright’s 214 Lakeland fells to explore and in the Yorkshire Dales, you might decide to take on the famous Three Peaks challenge (Ingleborough, Whernside and Pen-yghent). The AONB of Silverdale and Arnside provides delightful coastal countryside to explore and The Forest of Bowland covers fells, deep valleys, ancient woodlands, sprawling heather and peat moorland. From Lancaster the Lune Valley Ramble is a very pleasant level route tracing the course of the River Lune’s lower reaches through some beautiful lowland countryside.

Registered in England and Wales. Company Reg No. 4270819 Registered Office: Ellerthwaite Square, Windermere, Cumbria, LA23 1DU copyright © 2024 Fine & Country Ltd.

Guide price £850,000

Council tax band - G

Tenure - Freehold

FINE & COUNTRY

Fine & Country is a global network of estate agencies specialising in the marketing, sale and rental of luxury residential property. With offices in the UK, Australia, Egypt, France, Hungary, Italy, Malta, Namibia, Portugal, Russia, South Africa, Spain, The Channel Islands, UAE, USA and West Africa we combine the widespread exposure of the international marketplace with the local expertise and knowledge of carefully selected independent property professionals.

Fine & Country appreciates the most exclusive properties require a more compelling, sophisticated and intelligent presentationleading to a common, yet uniquely exercised and successful strategy emphasising the lifestyle qualities of the property.

This unique approach to luxury homes marketing delivers high quality, intelligent and creative concepts for property promotion combined with the latest technology and marketing techniques.

We understand moving home is one of the most important decisions you make; your home is both a financial and emotional investment. With Fine & Country you benefit from the local knowledge, experience, expertise and contacts of a well trained, educated and courteous team of professionals, working to make the sale or purchase of your property as stress free as possible.

6
Fine & Country Tel: +44 (0)1524 380560 sales@fineandcountry-lakes.co.uk 19, Castle Hill, Lancaster, Lancashire, LA1 1YN

Turn static files into dynamic content formats.

Create a flipbook
Issuu converts static files into: digital portfolios, online yearbooks, online catalogs, digital photo albums and more. Sign up and create your flipbook.
Lancaster, Lancashire by Fine & Country - Issuu