
Yonder View

![]()

Yonder View

Yonder View certainly lives up to its name with probably one of the most panoramic views along the southeast coast. It has stunning views over the rolling hills of the North Downs to the sea and France. Indeed, you will probably never tire of watching the far reaching vista laid out before you where, on a clear day, you can see as far as Calais, Boulogne and Le Touquet. This large detached five bedroom family home was originally built by a property developer for his own use, so has been constructed to the highest standard with some fascinating individual features, but he sold it on to the current owners in 2002.
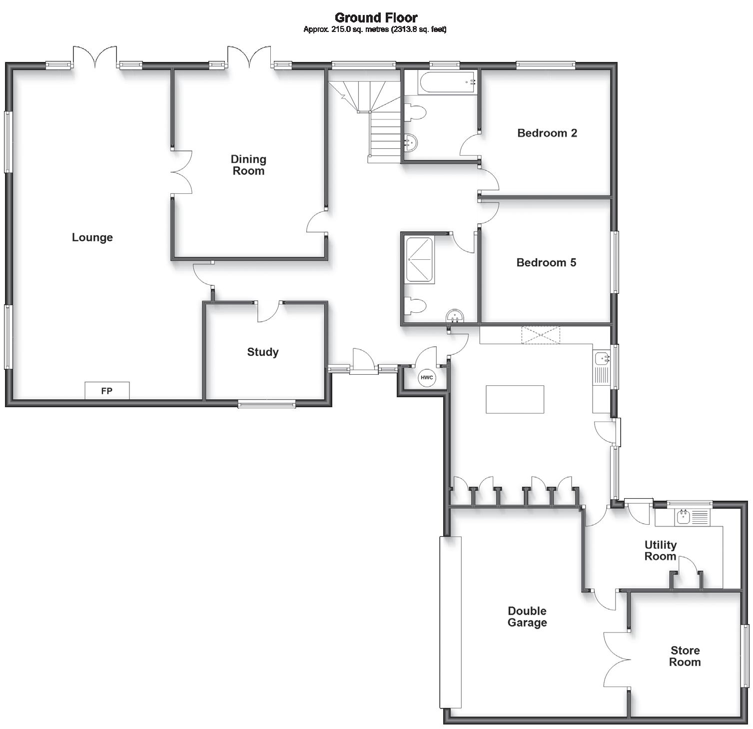
The property has a charming exterior with attractive brickwork, wood-effect uPVC framed windows, solar panels on the roof and a chimneystack and is located just off Gibraltar Lane on the outskirts of Hawkinge. It is approached via a wide block paved driveway bordered by hedging and a lawn that wraps around the property. The drive provides off road parking for a number of vehicles and leads to a double garage and access to the front door. This opens into a fascinating partially double height hall and includes an airing cupboard, a galleried landing that overlooks the hall, dark wood dado rails and stairs to the first floor as well as a vast cathedral style window overlooking the rear garden, providing plenty of natural light.
There is a very spacious dual aspect lounge with multi-pane French doors to the side patio and an impressive brick fireplace with an inset oak beam and a pair of glazed doors to the attractive dining room that also has French doors to the patio, a coved ceiling and dado rails. It is ideal for more formal entertaining and family celebrations. A useful study is located just inside the front door so is ideal for anyone working from home as business visitors do not need to venture into the private part of the property. However, the ‘piece de resistance’ is the superb contemporary kitchen/breakfast room that was installed about five years ago and is where the family spend much of their time. It was designed by Vegas Kitchens and includes a seven ring Cookmaster range cooker, a fascinating glass splash back and impressive white German Shaker style units with hardwearing composite worktops housing various appliances. There is also a central island/ breakfast bar and a door to the spacious rear terrace and access to the large fitted utility room.
This floor also incorporates a family shower room, a double bedroom with an en suite bathroom, so would be ideal for older family members or guests who find the stairs difficult, as well as an additional double bedroom that could always be used as a snug or playroom. While on the first floor there is a cloakroom and two double bedrooms with vaulted ceilings and Velux windows plus the stunning first bedroom with four Velux windows providing superb views, a spacious en suite bathroom with a separate shower and a single bedroom/dressing room that could always be a nursery or a study. The loft area above the garage has proper flooring with full height joists and the end walls include lintels so it would be easy to put in windows and convert this area into additional accommodation if required.
Outside the secluded garden has closed board fencing on three sides and is mainly laid to lawn with a side patio and a large rear terrace with a pergola covered seating area. This has power and lighting and is ideal for outdoor entertaining. There is also a greenhouse and a very large store room behind the garage that could always be converted into an office/studio if you want to work from home but not be disturbed by activities elsewhere in the property.


We have lived here since 2002 and it has been a great family home but the children have all grown up so it is time to downsize. It was the superb views that initially appealed to us as well as the uniqueness of the property and the top quality build. It is very quiet and peaceful but we are not far from Hawkinge village, which is a charming and friendly place with plenty of activities. There is a cricket and social club as well as a football club, four pubs including the White Horse that serves delicious food and the historic Cat and Custard Pot along with the Battle of Britain Museum. You will also find a number of takeaways, a restaurant and an enormous state-of-the-art Lidl for all your grocery shopping plus a dentist’s and doctor’s surgery.
There are stables in the village for anyone who enjoys riding and plenty of places to take a walk with the dog as well as Terlingham vineyard on our doorstep. In addition to a regular bus service you can drive to the M20 motorway in a minute or so for Ashford, Dover and London, while the Channel Tunnel is close by so you can even pop over to France for lunch via Eurotunnel while the fast trains from Folkestone West station can whisk you to London in well under an hour. As far as education is concerned, there are two primary schools in the village and excellent secondary grammar schools in Folkestone and Dover all rated Outstanding by Ofsted and the city of Canterbury is within easy reach with its historic buildings, high street stores, myriad of pubs and restaurants, theatres and cinemas as well as three universities and a wide variety of top class private and state schools.*

* These comments are the personal views of the current owner and are included as an insight into life at the property. They have not been independently verified, should not be relied on without verification and do not necessarily reflect the views of the agent.






Travel
By Road:
Folkestone West Station
Channel Tunnel
Ashford International
Docks
Airport
Charing Cross
By Train from Folkestone Central
High-Speed St. Pancras
mins
Charing Cross 1hr 31mins
Victoria 1hr 19 mins
Ashford International
Leisure Clubs & Facilities
mins
Hawkinge Cricket Club 01303 893873
Hawkinge Football Club 07979693495
Etchinghill Golf Club 01303 862929
Folkestone Rugby Club 01303 316005

Healthcare
The Hawkinge and Elham Valley
Surgery 01303 232300
New Lyminge Surgery 01303 863160
William Harvey Hospital 01233 633331
Royal Victoria Hospital 01303 850202
Education
Primary Schools:
Hawkinge Primary 01303 893892
Churchill Primary 01303 893892
Selsted Primary 01303 844286
Ashford School (Prep) 01233 625171
Secondary Schools:
Harvey Grammar for Boys 01303 252131
Folkestone School for Girls 01303 251125
Simon Langton Girls Grammar 01227 463711
Simon Langton Boys Grammar 01227 463567
King’s School, Canterbury 01227 595501
Ashford School 01233 625171
Entertainment
Marlowe Theatre, Canterbury 01227 787787
Leas Cliff Hall 01303 228600
White Horse pub 01303 980652
Black Horse Inn
01303 470773
Mayfly 01303 894689
Cat and Custard Pot 01303 892205
Hotel Imperial 01303 267441
Local Attractions / Landmarks
Hawkinge Battle of Britain Museum
Caesar’s Camp
Port Lympne Animal Park
Dover and Deal castles
Secret War Tunnels
Canterbury Cathedral
Hythe Miniature Railway
The Leas
Folkestone Creative Quarter

£800,000


Shower
Store
Rear Garden Side Garden
Driveway
Double Garage


