

![]()


This charming, detached bungalow is located in Epping Green, a rural parish close to the market town of Epping, surrounded by countryside and mature trees. To the front of the bungalow is a border of well-manicured shrubs providing privacy. In addition there is also a double garage and a carport.
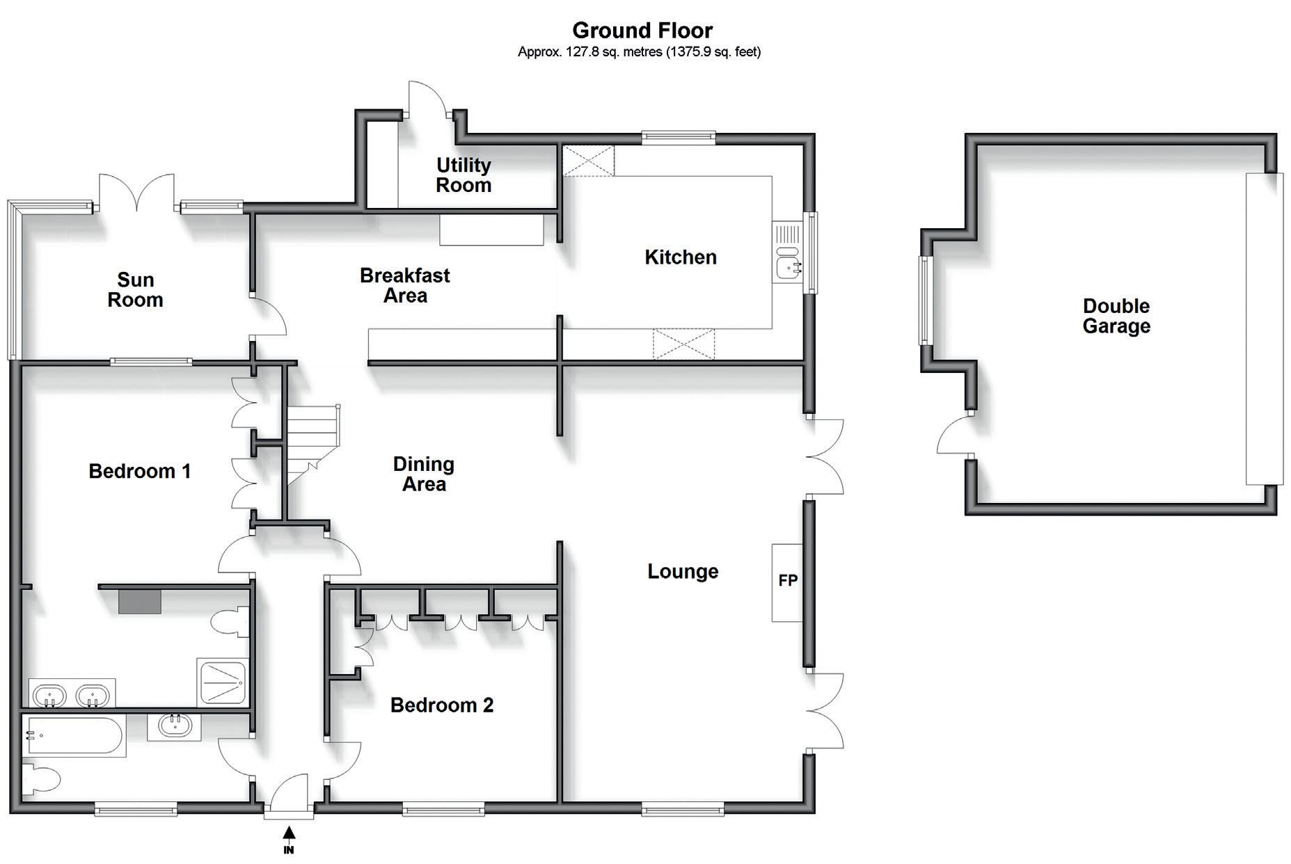
Stepping inside the entrance hall leads to all downstairs rooms, with the heart of the home being the lounge, which is a fantastic space to entertain friends and family as the patio doors can be opened in the warmer months to the garden for larger gatherings. Leading through from the lounge is the dining area that then flows beautifully into the breakfast area and kitchen, which has a really useful separate utility room to the side.
Two of the bedrooms are located on the ground floor, with bedroom one having an en-suite. Furthermore, you have the main bathroom completing the ground floor. The two other bedrooms are on the first floor, one of which is currently used as an office. You could also consider reconfiguring this floor to include a bathroom, subject to any relevant planning permissions be obtained.



We were first drawn to the bungalow due to the location, it is so green and peaceful and living here has been every bit as wonderful as we thought it would be.
It is so quiet here that after a busy day at work we can relax and completely switch off. Yet when we want to go shopping or eat out we are only a short drive from Epping High Street, which has a good selection of shops and restaurants, as well as a weekly market. Epping also has a Central Line station that can take you into Central London in approximately 45 minutes. *
* These comments are the personal views of the current owner and are included as an insight into life at the property. They have not been independently verified, should not be relied on without verification and do not necessarily reflect the views of the agent.



Travel Information
Epping Underground Station
Leisure Clubs & Facilities
Blakes Golf Club
01992525151
Epping Golf Course 01992572289
Coopersale Cricket Club 07432118349
Epping Upper Clapton Rugby Club 01992572588
Healthcare
High Street Epping Surgery

01992566501
The Limes Medical Centre 01992573838
St Margaret’s Hospital 01992561666
Education
Primary School
Epping Upland CofE Primary School 01992 572087
Water Lane Primary School 01279 417410
Coopersale and Theydon Garnon 01992 574890
Coopersale Hall (Independent) 01992 577133
Secondary School Epping St John’s School 01992 573028
Debden Park High School 02085082979
Oaklands School (Independent) 02085083517
Entertainment Restaurants and pubs
The Theydon Oak
The Garnon Bushes
The Kings Head
Local Attractions / Landmarks
Epping Forest
Hopefield Animal Sanctuary
Lee Valley Park Farm
Hainault Forest Country Park Copped Hall
01992572618
01992560211
01992525001




£875,000

