Dover, Kent

Page 1

The Meadow

Dover Road | Westcliffe | Dover | Kent | CT15 6EW

THE MEADOW

Step inside The Meadow

Designed by the multi-award winning architect Guy Holland of Holland Studio, The Meadow is an awe-inspiring and environmentally efficient modern, single storey property and has just won the prestigious RIBA Regional Award. The house is an architectural gem and also won the Bronze Award in What House? ‘Best Luxury Home’ awards last year. This is considered to be the ‘Oscars’ of the house building industry and an award is a highly respected symbol of prestige and excellence. Although it is the epitome of contemporary design and energy efficiency this impressive home with its black zinc covered roof blends amazingly well into its rural setting within the curtilage of the Grade II* Listed Wallets Court surrounded by the Kent countryside in an Area of Outstanding Natural Beauty.

This fantastic property is approached along a discreetly hidden entrance and gravel driveway that leads to a contemporary carport with photovoltaic solar panels on the roof and nestles in the midst of 0.952 of an acre of grounds filled with wild flowers and fruit trees. The first thing you notice is the impressive flint façade and the black office ‘pod’ designed as a modern version of the historic staddlestone huts. As you walk through the front door the wow factors start appearing when you see the vast picture window that dominates the hall framing the rear garden and the polished concrete flooring with underfloor heating that flows throughout the building. As you wander into the stunning open plan living space with its double height vaulted ceiling you can begin to appreciate the lightness and brightness that is characteristic of the entire property with vast corner windows and wide glazed doors providing stunning views across the garden and the Kent Downs beyond.

The contemporary kitchen includes a central island with Siemens appliances including an induction hob with a downdraft extractor and bespoke white flat fronted units with Silestone worktops housing two built in ovens, a dishwasher, larder fridge and separate freezer. Backing onto the central island is a hand built four-seater oak dining bench with under seat storage facilities and a dining area where you can easily sit 10 people round a table. The sitting room area provides plenty of opportunity for enjoying the views and has a fascinating textured cork wall feature with an inset television and a delightful raised contemporary Stovax log burner. There is a wide glazed door to the external covered terrace and outdoor kitchen with its Broil King grills and access to the glass lined corridor leading to the dual aspect office pod with views over the newly planted orchard.

Another important aspect of this property is the amount of storage available. Along the entire ‘spine’ of the building are floor to ceiling bespoke oak cupboards with a variety of different internal facilities including a concealed bar, shelving, drawers and full and half height hanging spaces.

On the other side of the hall there is a cloakroom and three double bedrooms. Two of them have full height windows and doors to the covered walkway that wraps around the building and en suite showers with large, mirrored cupboards over the basins. While the impressive main bedroom has huge floor to ceiling corner windows to the garden providing panoramic views while you sit in bed and sip your morning coffee, a delightful stand-alone contemporary modern bath in the bedroom, a bespoke oak headboard and bedroom furniture, a spacious dressing room and plenty of fitted wardrobes as well as a vast wet room with additional storage. There is also a door to an outside black stand-alone bath and separate shower discreetly hidden by bamboo screening that is ideal for a wash down after a walk with the dog or a morning run. Access is available to the utility/pump room with laundry facilities and the energy storing battery as well as a back door where you will find the air source heat pump that heats the underfloor heating and hot water and the carport.

The rear sunken garden is a mass of wild flowers and includes a gravel path leading to a charming patio with a firepit if you want to sit and enjoy the surrounding shrubs and meadow while the fabulous terrace with its vast roof overhang is ideal for al fresco dining.

One of the aspects that appealed to the judges when making the awards for the design of this property is its energy saving efficiency and this is apparent everywhere, from the high insulation, air tightness to reduce energy waste and the polished concrete flooring that acts as a heat store. This is of course in addition to the solar panels and battery that stores excess energy created during the day to be used at night and the air source heat pump.

Seller Insight

We have been thrilled to have been a part of creating this unique property and been absolutely delighted that the design has been accoladed by the industry. We have thoroughly enjoyed our time here but our needs have changed and we hope that another family will enjoy everything about this very special place. It is extremely quiet and very private to the extent that it has been designed so that all the windows face southwards and none look out over the drive, so could be ideal for anyone looking for privacy and security. As it is also low maintenance it could make an excellent ‘lock up and go’ home for anyone who may have regular commitments elsewhere.

The fascinating village of St Margaret’s has long been a magnet for famous names with Peter Ustinov, Noel Coward and Ian Fleming being among its past illustrious residents and there is still a friendly neighbourhood if you want to be involved in a variety of activities. We are not far from Martin Mill and Dover for the mainline station and high speed rail to London or the ferry port and Folkestone for access to the Continent while it is only a short drive to the lovely town of Deal with its seafront, individual shops, bars and restaurants. There are wonderful walks to the South Foreland Lighthouse – the first in the world to have electric light – or you can stroll along to the Dover Patrol Memorial, further along the clifftop. The village provides everything you may need on a daily basis and includes a post office, village shop, a number of restaurants and pubs including the well-known Coastguard at St Margaret’s Bay. There are a wide range of societies and clubs including bowls, tennis, cricket and football as well as two riding stables and a number of excellent nearby golf courses.*

* These comments are the personal views of the current owner and are included as an insight into life at the property. They have not been independently verified, should not be relied on without verification and do not necessarily reflect the views of the agent.

Travel

By Road:

Martin Mill Station

Dover Priory

Dover Docks

Gatwick Airport

Charing Cross

By Train from Dover Priory

St Pancras

Canterbury East

Charing Cross

Victoria

Ashford International

miles

4mins

mins

30 mins

mins

Martin Mill to St Pancras 1hr 38mins

Leisure Clubs & Facilities

Post Office Village Shop

01304 852425

The Deli 07512 672947

Walmer and Kingsdown Golf Club 01304 373256

Broome Park Golf Club 01227 830728

St. Margaret’s Bowls and Social 01304 853867

St. Margaret’s Players 01304 852975

Healthcare

Dr. Bahadur 01304 852291

Tara Surgery 01304 852291

Kent and Canterbury Hospital 01227 766877

Buckland Hospital 01304 222510

Education

St. Margaret’s at Cliffe Primary 01304 852639

Charlton C. of E. Primary 01304 201275

Deal Parochial C. of E. Primary 01304 374464

Dover College (Junior) 01304 205969

Secondary Schools:

Dover Grammar (Boys)

01304 206117

Dover Grammar (Girls) 01304 206625

St. Edmund’s Catholic School 01304 201551

Sir Roger Manwood’s Grammar 01304 613286

Kings School, Canterbury 01227 595501

Dover College 01304 852639

Entertainment

The Smugglers 01304 853404

The Coastguard 01304 851019

Marlowe Theatre, Canterbury 01227 787787

Local Attractions / Landmarks

Pine Gardens and the Pines Calyx

South Foreland Lighthouse

The White Cliffs of Dover

Walmer Castle and Gardens

Dover and Deal castles

Secret War Tunnels

2.0 miles
3.9 miles
3.7
miles
83.5
19.0
miles Canterbury
miles
78.1
1hr
16
1hr 42 mins
1hr
26
Registered in England and Wales. Company Reg. No. 2597969. Registered office address: St Leonard’s House, North Street, Horsham, West Sussex. RH12 1RJ copyright © 2024 Fine & Country Ltd.

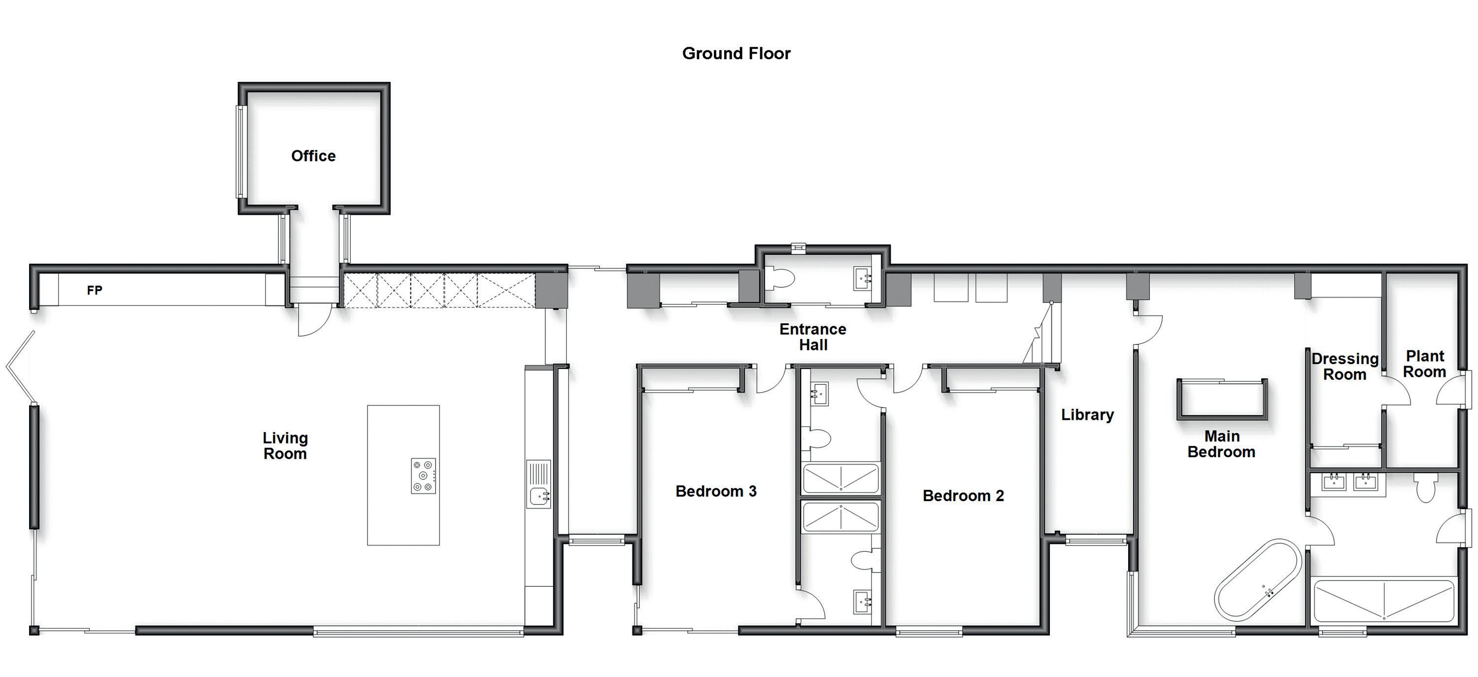
GROUND FLOOR

Entrance Hall

Cloakroom

Living Room

Office

35’0 x 24’0 (10.68m x 7.32m)

9’3 x 7’9 (2.82m x 2.36m)

Bedroom 3 17’6 x 10’6 (5.34m x 3.20m)

En-Suite Shower Room

Bedroom 2 17’6 x 10’6 (5.34m x 3.20m)

En-Suite Shower Room

Library

Main Bedroom

Dressing Room

En-suite Shower Room

Plant Room

24’0 x 12’1 (7.32m x 3.69m)

OUTSIDE

Rear Garden

Front Garden

Driveway

Double Car Barn

Council Tax Band: G

Tenure: Freehold

£1,750,000

Agents notes: All measurements are approximate and for general guidance only and whilst every attempt has been made to ensure accuracy, they must not be relied on. The fixtures, fittings and appliances referred to have not been tested and therefore no guarantee can be given that they are in working order. Internal photographs are reproduced for general information and it must not be inferred that any item shown is included with the property. For a free valuation, contact the numbers listed on the brochure. Printed 07.06.2024

FINE & COUNTRY

Fine & Country is a global network of estate agencies specialising in the marketing, sale and rental of luxury residential property. With offices in the UK, Australia, Egypt, France, Hungary, Italy, Malta, Namibia, Portugal, Russia, South Africa, Spain, The Channel Islands, UAE, USA and West Africa we combine the widespread exposure of the international marketplace with the local expertise and knowledge of carefully selected independent property professionals.

Fine & Country appreciates the most exclusive properties require a more compelling, sophisticated and intelligent presentationleading to a common, yet uniquely exercised and successful strategy emphasising the lifestyle qualities of the property.

This unique approach to luxury homes marketing delivers high quality, intelligent and creative concepts for property promotion combined with the latest technology and marketing techniques.

We understand moving home is one of the most important decisions you make; your home is both a financial and emotional investment. With Fine & Country you benefit from the local knowledge, experience, expertise and contacts of a well trained, educated and courteous team of professionals, working to make the sale or purchase of your property as stress free as possible.

6
Fine & Country Tel: +44 (0)1227 479 317 canterbury@fineandcountry.com 23 Watling Street, Canterbury, Kent CT1 2UA

Turn static files into dynamic content formats.

Create a flipbook
Issuu converts static files into: digital portfolios, online yearbooks, online catalogs, digital photo albums and more. Sign up and create your flipbook.