Upminster, Essexmn b

Page 1

Brandon Hall

Fen Lane | Bulphan | Upminster | Essex | RM14 3RL

BRANDON HALL

KEY FEATURES

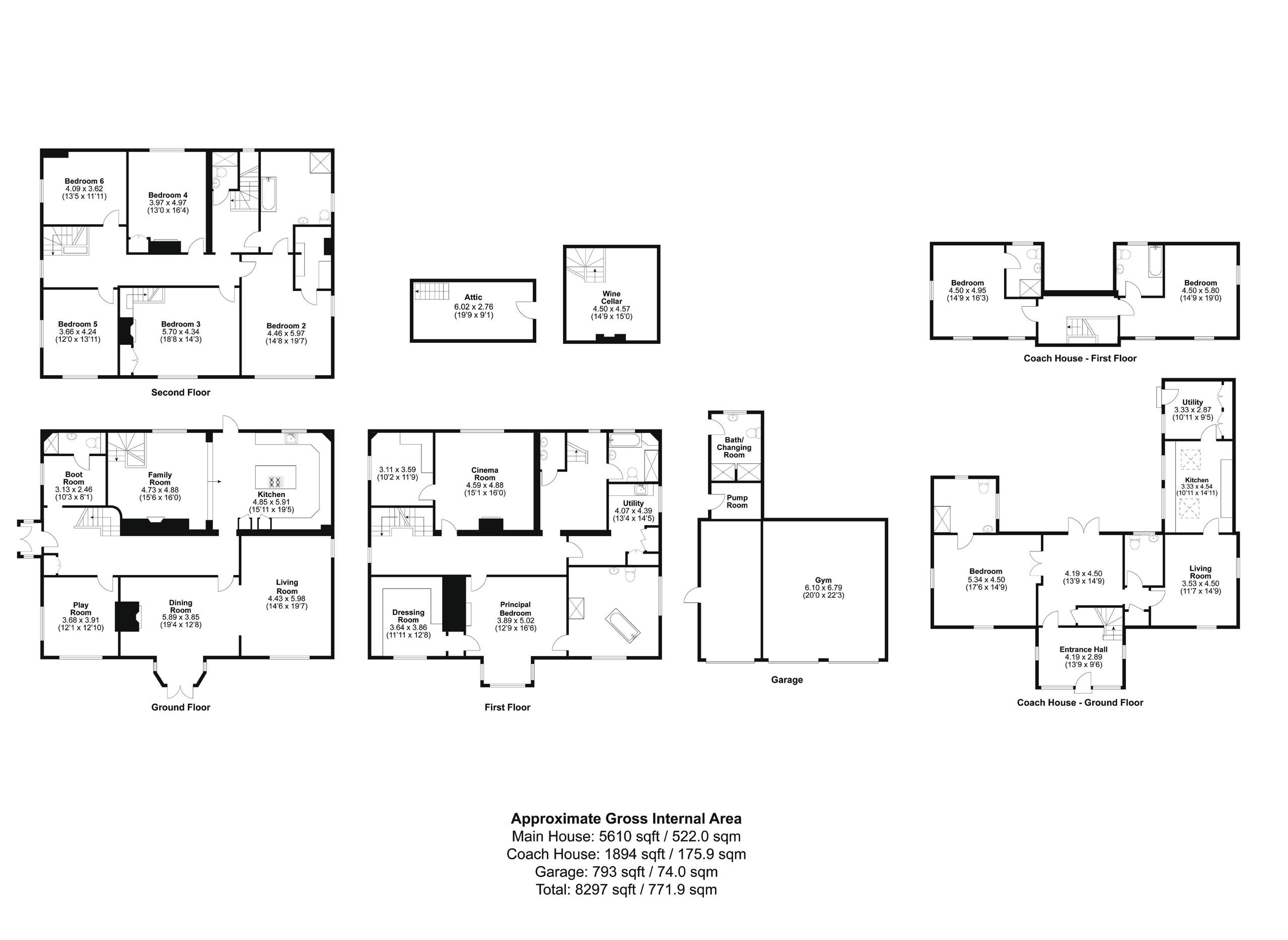
Brandon Hall stands as an exceptional residency, featuring two detached homes, situated on two-acre plot with landscaped gardens, a swimming pool, and a tennis court. Nestled in the village of Bulphan, Brandon Hall offers accommodation across three storeys, encompassing over 5,600 sqft with bespoke interiors throughout. Boasting six bedrooms, seven versatile reception rooms, and a superb open-plan kitchen/breakfast area, Brandon Hall exudes elegance and functionality. Adjacent to Brandon Hall, The Coach House offers flexible living across two floors, over 1,800 sqft and includes three-bedroom suites, two reception rooms, and a modern kitchen with adjoining utility room. Both properties are enveloped by landscaped grounds featuring an expansive alfresco dining area, a covered, heated swimming pool, a tennis court, and gym studio with convenient changing room facilities.

Step inside Brandon Hall and discover a seamless blend of historic charm and bespoke modern interiors. Recently renovated, this property boasts a rich local history, once serving as a Rectory originating back to Tudor times. The central magnificent hallway guides you through versatile reception rooms leading to a remarkable sitting/dining room with access to the terrace and grounds beyond. As the centrepiece of family living, the exceptional kitchen/breakfast room is complemented by a large central island and an adjacent family living/dining room. Proceeding to the first floor, you will find the cinema room, playroom, home office and convenient utility room, making Brandon Hall the idyllic family home. Across the first and second floors, six/seven expansive bedrooms, including three ensuites with high-quality fittings, offer uninterrupted views of the picturesque countryside. Brandon Hall further benefits from a lower ground floor which offers the ideal space for a wine cellar.

Positioned to the front of Brandon Hall, The Coach House presents a recently renovated further residency, ideal for multi-generational, flexible living. The further living accommodation is arranged over two floors including a convenient ground floor bedroom suite and modern, bespoke kitchen. The first floor offers two further beautifully presented bedroom suites.

KEY FEATURES

Step outside Brandon Hall to the enviable wraparound garden with far reaching picturesque views in every direction. In harmony with the home and its desirable lifestyle, the exterior features an in-ground, heated swimming pool with thermal cover, a tennis court and changing room facilities/gym studio. The south-facing gardens, enhanced with a generous paved patio area, effortlessly links the house with the gardens. Expansive lawns dotted with mature plantings and an array of fruit and nut trees create a tranquil environment. Access to this grand estate is via a private, gated entrance leading to a shingled driveway providing ample parking space.

Nestled in the quiet village of Bulphan, Brandon Hall is within proximity of local shops/ amenities and approximately 3 miles from West Horndon Train Station with a direct line to London. Brentwood Train Station is 7 miles which offers the convenience of the Elizabeth Line running directly to central London and beyond. Similarly, by road, the M25, A13, and A127 networks ensure connectivity to the wider region.

Council Tax Band: H (Thurrock) Tenure: Freehold

• Two Recently Renovated Properties

• Approximately 2 Acre Plot

• Private, Gated Driveway

• Superb Living Accommodation and Reception Rooms

• Beautiful Landscaped Gardens and Orchard

• Three Story Accommodation over 5,600 sqft

• Covered Outdoor Swimming Pool

• Gym/Leisure Facilities and Tennis Court

• Six/Seven Large Bedrooms

• 7.2MW Solar Panels and 2 Fast Car Chargers

Company Reg No. 12293451 Registered Office: F&C Area 25 Limited, 46 Hullbridge Road, South Woodham Ferrers, CM3 5NG copyright © 2024 Fine & Country Ltd.

Agents notes: All measurements are approximate and for general guidance only and whilst every attempt has been made to ensure accuracy, they must not be relied on. The fixtures, fittings and appliances referred to have not been tested and therefore no guarantee can be given that they are in working order. Internal photographs are reproduced for general information and it must not be inferred that any item shown is included with the property. For a free valuation, contact the numbers listed on the brochure. Printed 10.05.2024

Council Tax Band: H Tenure: Freehold MAIN HOUSE COACH HOUSE

FINE & COUNTRY

Fine & Country is a global network of estate agencies specialising in the marketing, sale and rental of luxury residential property. With offices in the UK, Australia, Egypt, France, Hungary, Italy, Malta, Namibia, Portugal, Russia, South Africa, Spain, The Channel Islands, UAE, USA and West Africa we combine the widespread exposure of the international marketplace with the local expertise and knowledge of carefully selected independent property professionals.

Fine & Country appreciates the most exclusive properties require a more compelling, sophisticated and intelligent presentationleading to a common, yet uniquely exercised and successful strategy emphasising the lifestyle qualities of the property.

This unique approach to luxury homes marketing delivers high quality, intelligent and creative concepts for property promotion combined with the latest technology and marketing techniques.

We understand moving home is one of the most important decisions you make; your home is both a financial and emotional investment. With Fine & Country you benefit from the local knowledge, experience, expertise and contacts of a well trained, educated and courteous team of professionals, working to make the sale or purchase of your property as stress free as possible.

THE FINE & COUNTRY FOUNDATION

The production of these particulars has generated a £10 donation to the Fine & Country Foundation, charity no. 1160989, striving to relieve homelessness.

Visit fineandcountry.com/uk/foundation

follow Fine & Country Mid and South Essex on Fine & Country Mid and South Essex Suite A Imperial House, Cottage Place, Victoria Road, Chelmsford, Essex CM1 1NY Tel: +44 (0)1245 979 777
midandsouthessex
|
@fineandcountry.com

Turn static files into dynamic content formats.

Create a flipbook
Issuu converts static files into: digital portfolios, online yearbooks, online catalogs, digital photo albums and more. Sign up and create your flipbook.