
Asking Price: £70,000

![]()

Asking Price: £70,000

Wintringham Road
EPC: D | Tenure: Freehold | Council Tax: A 2 2
1
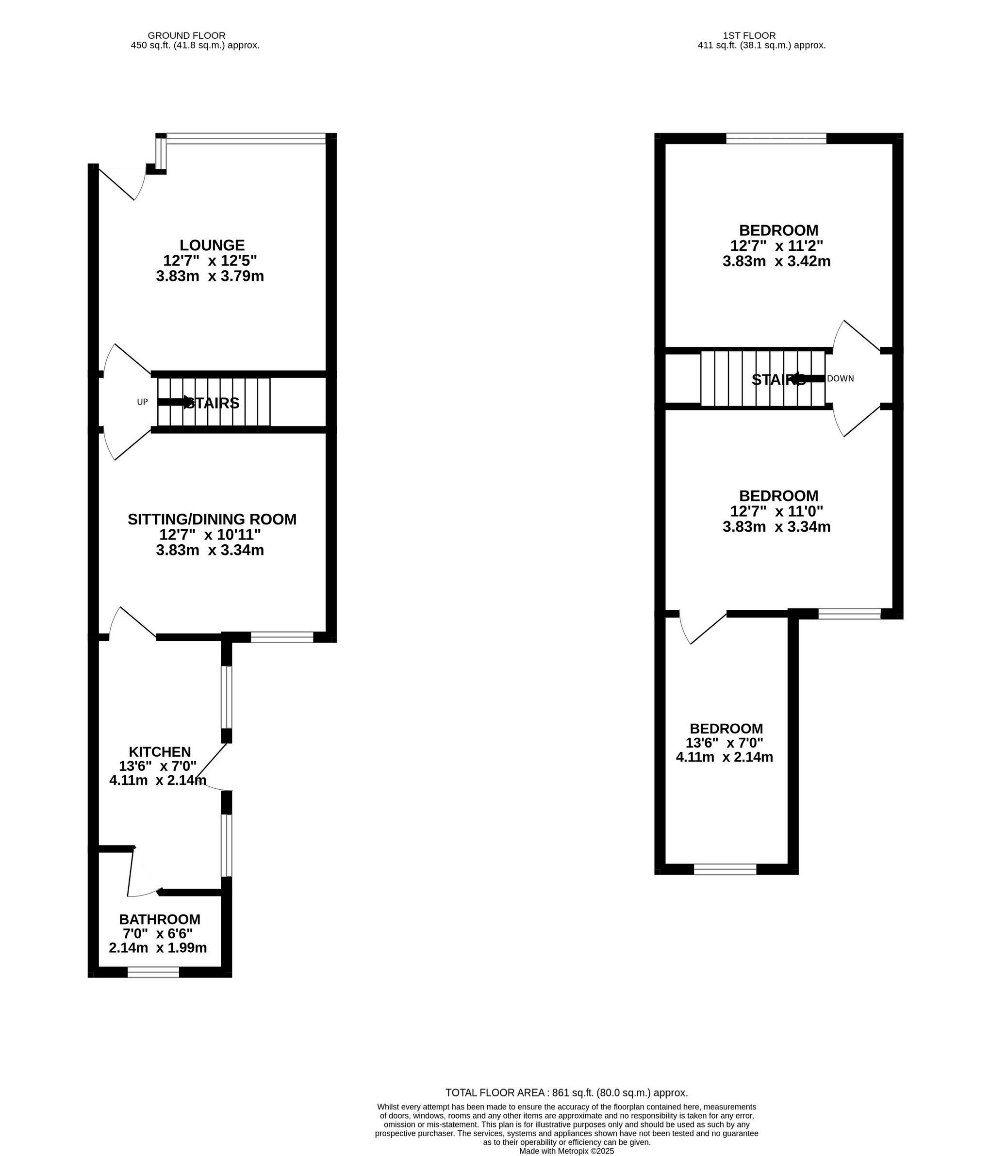
Located in the heart of Grimsby, this charming 2/3 bedroom terraced property on Wintringham Road offers both an investment opportunity with a tenant in situ or the potential for vacant possession.
Stepping into the home, you're welcomed into a cosy lounge adorned with a half bay window that fills the room with natural light. Passing the central staircase you will find a second sitting or dining room, perfect for entertaining or relaxing.
Adjacent to this space is a modern kitchen, well-appointed for culinary enthusiasts, followed by a contemporary bathroom, ideal for unwinding after a long day. Upstairs, the property features two spacious double bedrooms—one to the front and another to the rear, providing comfortable living spaces.
A unique feature of the home is the potential third bedroom or dressing room, accessible through the rear double bedroom, offering flexibility to suit various living arrangements. Outside, the property boasts a front yard and a rear yard, providing outdoor spaces for enjoying sunny days or hosting gatherings.
Situated just a stone's throw away from Grimsby Town Centre, residents benefit from easy access to an array of amenities, including shops, restaurants, and leisure facilities. The area is well-served by schools catering to all ages, making it an attractive location for families. Additionally, regular transport links ensure convenient connectivity to neighbouring areas.
Whether you're looking for a solid investment opportunity or a new place to call home, this property on Wintringham Road combines modern comfort with a convenient location, promising a lifestyle of ease and practicality.












Agents notes: All measurements are approximate and for general guidance only and whilst every attempt has been made to ensure accuracy, they must not be relied on The fixtures, fittings and appliances referred to have not been tested and therefore no guarantee can be given that they are in working order. Internal photographs are reproduced for general information and it must not be inferred that any item shown is included with the property. For a free valuation, contact the numbers listed on the brochure.

