Tunnard Street | Grimsby | North East Lincolnshire | DN32 7NA

Guide Price: £20,000

![]()
Tunnard Street | Grimsby | North East Lincolnshire | DN32 7NA

Guide Price: £20,000

DDM PROPERTY AUCTION : For sale by Modern Method of Auction: Starting Bid Price
£20,000 plus reservation fee.
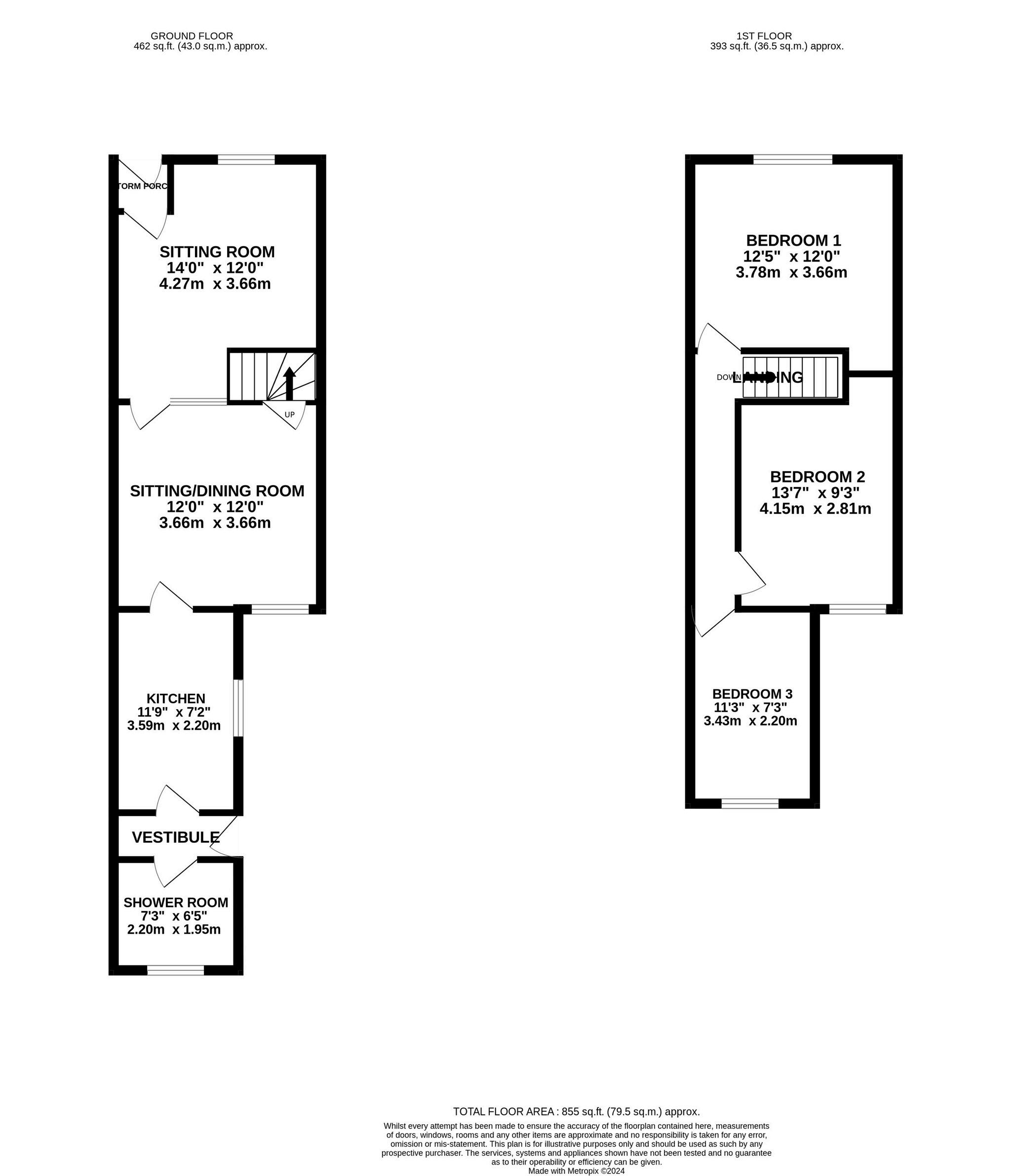
Investment Opportunity: Three Bedroom Terraced House in Grimsby.
Discover potential in this three bedroom terraced house located on Tunnard Street, Grimsby. In need of refurbishment throughout, this property offers an excellent opportunity for investors.
Upon entering through the porch, you are welcomed into the front sitting room, leading through to a rear sitting/dining room that connects seamlessly to the kitchen, rear vestibule, and shower room. The layout provides practicality and potential for modernization according to personal preference.
Upstairs, the property features a spacious double bedroom at the front, complemented by two smaller double bedrooms towards the middle and rear. This configuration lends itself well to accommodating a variety of household dynamics.
Outside, a garden at the rear of the property offers additional space for outdoor enjoyment.
Conveniently situated, the property benefits from easy access to local amenities, regular public transport links, and schools catering to all ages. This makes it an ideal choice for landlords looking to establish or expand a rental portfolio.
Estimated to achieve a rental income of approximately £6600 per annum post-refurbishment (subject to compliance with current legislation), this property promises a lucrative investment opportunity in a well-connected neighbourhood.
Don't miss the chance to transform and capitalize on this promising property in Grimsby. Contact us today to arrange a viewing and explore its full potential.
This property is for sale by the Modern Method of Auction, meaning the buyer and seller are to Complete within 56 days (the "Reservation Period"). Interested parties personal data will be shared with the Auctioneer (iamsold).
If considering buying with a mortgage, inspect and consider the property carefully with your lender before bidding.
A Buyer Information Pack is provided. The buyer will pay £349 (Inc. VAT) for this pack which you must view before bidding.
The buyer signs a Reservation Agreement and makes payment of a non-refundable Reservation Fee of 4.50% of the purchase price including VAT, subject to a minimum of £6,600.00 including VAT. This is paid to reserve the property to the buyer during the Reservation Period and is paid in addition to the purchase price. This is considered within calculations for Stamp Duty Land Tax.
Services may be recommended by the Agent or Auctioneer in which they will receive payment from the service provider if the service is taken. Payment varies but will be no more than £450.00. These services are optional.
TO VIEW OR MAKE A BID – Contact DDM Residential on 01472 358671.













Agents notes: All measurements are approximate and for general guidance only and whilst every attempt has been made to ensure accuracy, they must not be relied on The fixtures, fittings and appliances referred to have not been tested and therefore no guarantee can be given that they are in working order. Internal photographs are reproduced for general information and it must not be inferred that any item shown is included with the property. For a free valuation, contact the numbers listed on the brochure.

