Town Hill Drive

Page 1

Town Hill Drive

£650 PCM BROUGHTON | NORTH LINCOLNSHIRE | DN20 0HF

Step Inside

TOWN HILL DRIVE

EPC Rating: C 3 1 1

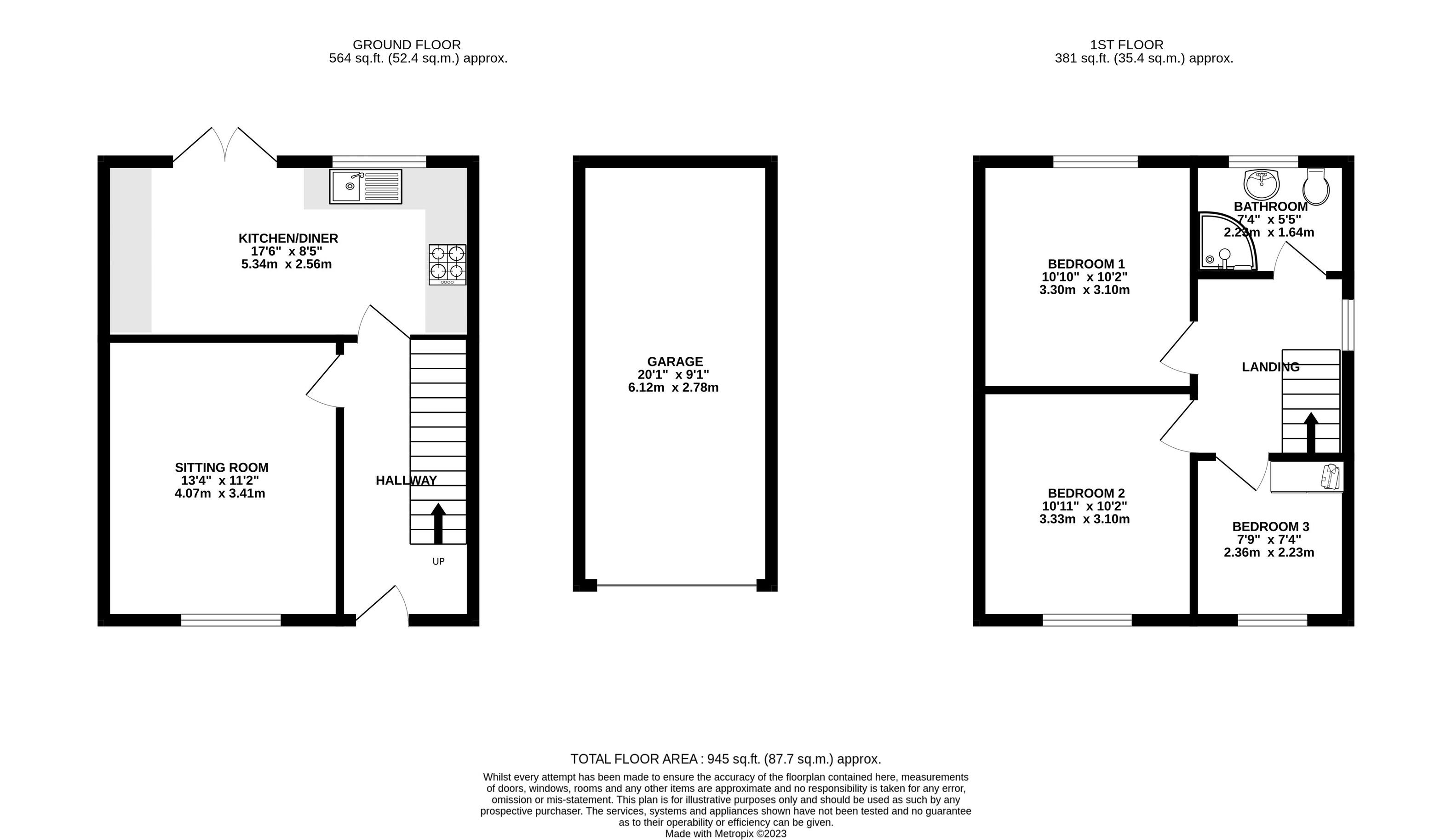
Unfurnished superb semi-detached family home situated in a popular residential location, 3 spacious bedrooms, modern kitchen/diner, spacious lounge, contemporary shower room, low-maintenance rear garden.

This unfurnished three-bedroom semidetached home is located on Town Hill Drive in the ever-popular residential area of Broughton.

Step Inside

A front entrance door opens directly into a welcoming entrance hallway leading to the spacious living room with a feature fireplace, a modern kitchen/diner with a range of fitted units and built-in appliances, and access door leading to the garden. The first floor landing allows access to the three bedrooms, all of which are served by the contemporary shower room with a walk-in shower cubicle, vanity hand wash basin and W.C.

Externally, the property benefits from ample off-road parking to the front and side that leads to the detached garage with an electric door. There is an enclosed low-maintenance rear garden with a raised patio seating area an Astro turfed lawn and decorative pebbled and planted borders.

Council Tax: B

Agents notes: All measurements are approximate and for general guidance only and whilst every attempt has been made to ensure accuracy, they must not be relied on. The fixtures, fittings and appliances referred to have not been tested and therefore no guarantee can be given that they are in working order. Internal photographs are reproduced for general information and it must not be inferred that any item shown is included with the property. For a free valuation, contact the numbers listed on the brochure

DDM Residential 72 Wrawby Street, Brigg, North Lincolnshire, DN20 8JE 01652 653666 | brigg@ddmresidential.co.uk followDDMResidentialon KIAH STENHOUSE 01652 653666

Turn static files into dynamic content formats.

Create a flipbook
Issuu converts static files into: digital portfolios, online yearbooks, online catalogs, digital photo albums and more. Sign up and create your flipbook.