

![]()


This charming two bedroom detached bungalow with attractive patio gardens to the rear is bound to appeal to a range of buyers in this ever desirable location of Station Road in New Waltham.
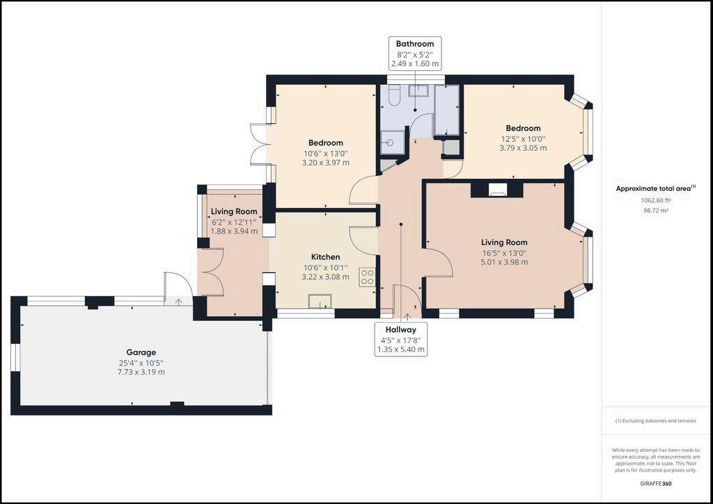
The property boasts two good sized double bedrooms, the master having double doors onto the garden as an added bonus. There is also a good sized lounge with feature fireplace and bay window. A real feature of the property is a well fitted kitchen which opens into a good sized sun lounge which the current owner has as a dining and seating area. This room is definitely the heart of the home with direct access onto the charming patio style gardens. The kitchen also boasts a large pantry cupboard as well as a comprehensive range of wall and base units as well as a built in dishwasher.
The two bedrooms in the bungalow are both light and spacious. The rear bedroom is attractively decorated with a range of fitted wardrobes. This charming room has patio doors leading onto the bedrooms own decking and seating area. The second bedroom to the front is also a good sized double with feature bay window.
The bathroom is fully fitted with sink, stand alone shower bath and toilet.
Externally, the property benefits from a good sized garage, providing ample space for a car and additional storage. There is also a beautiful garden and patio area, perfect for outdoor entertaining and accessed from the sun lounge as well as the master bedroom.
The rear garden is fully enclosed with high fencing to the rear. The rear garden can be accessed via a gated (with locks) wide side garden/alley entrance. The front garden is an added feature of the property offering a wealth of parking with a large gravelled area . This is enclosed with fencing and hedging all around, except for the entrance gateway.
With its village location, whilst close to Cleethorpes and the beach, the bungalow offers easy access to a range of local amenities, including shops, local schools being village primary and local secondary, also excellent transport links. This property would make the perfect home for couples, first-time buyers, retirees, or anyone looking for a low-maintenance and convenient lifestyle. Don't miss out on the opportunity to view this fantastic property!
Please note the owner informs us the property boundary to the left as you face the front of the property is on the far side of Deaton Lane. Ownership is only of the first part of the lane level with the rear boundary of the property. Legal advice and searches will indicate and confirm the status and the Property Owner Is happy to discuss this at the property viewings.
Agent’s Note: Prospective purchasers are advised that, in addition to the purchase price, further costs may be incurred when buying a property. These can include, but are not limited to, Stamp Duty Land Tax (SDLT), legal and conveyancing fees, survey costs, and mortgage arrangement fees. Buyers should ensure they seek appropriate financial advice and budget accordingly.
















Agents notes: All measurements are approximate and for general guidance only and whilst every attempt has been made to ensure accuracy, they must not be relied on. The fixtures, fittings and appliances referred to have not been tested and therefore no guarantee can be given that they are in working order Internal photographs are reproduced for general information and it must not be inferred that any item shown is included with the property For a free valuation, contact the numbers listed on the brochure.

