

![]()


Road
Situated in the ever-popular village of Burton-Upon-Stather, we bring to the market this two-bedroom semidetached property. Perfect for first time buyers, down sizing and investors. Boasting parking, garage and gardens.
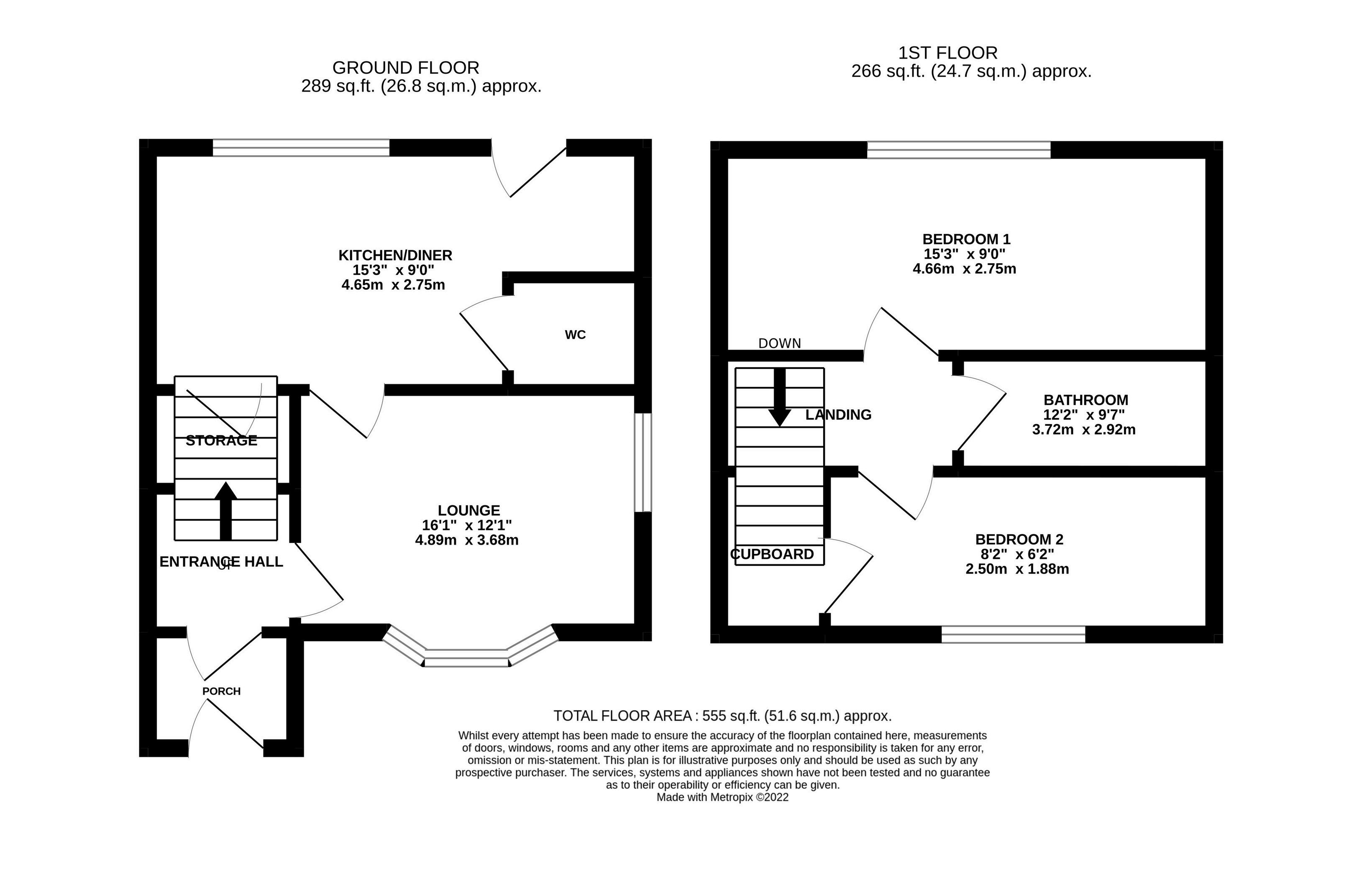
Internal inspection is a must and can reveal, an entrance via, porchway onto hallway with stairs to the first floor and access given to the forward-facing lounge and kitchen dining area to the rear leading through to sun room.
To the first floor are two double bedrooms and bathroom with threepiece suite to include a walk-in shower cubicle, hand wash basin and W.C.
Externally the property benefits from off street parking and a brick-built garage with a personal door onto the rear garden, with gardens to the front and rear.













Agents notes: All measurements are approximate and for general guidance only and whilst every attempt has been made to ensure accuracy, they must not be relied on The fixtures, fittings and appliances referred to have not been tested and therefore no guarantee can be given that they are in working order. Internal photographs are reproduced for general information and it must not be inferred that any item shown is included with the property. For a free valuation, contact the numbers listed on the brochure.

