

![]()


Tenanted three-bedroom terrace in central Grimsby ready-made investment with immediate income.
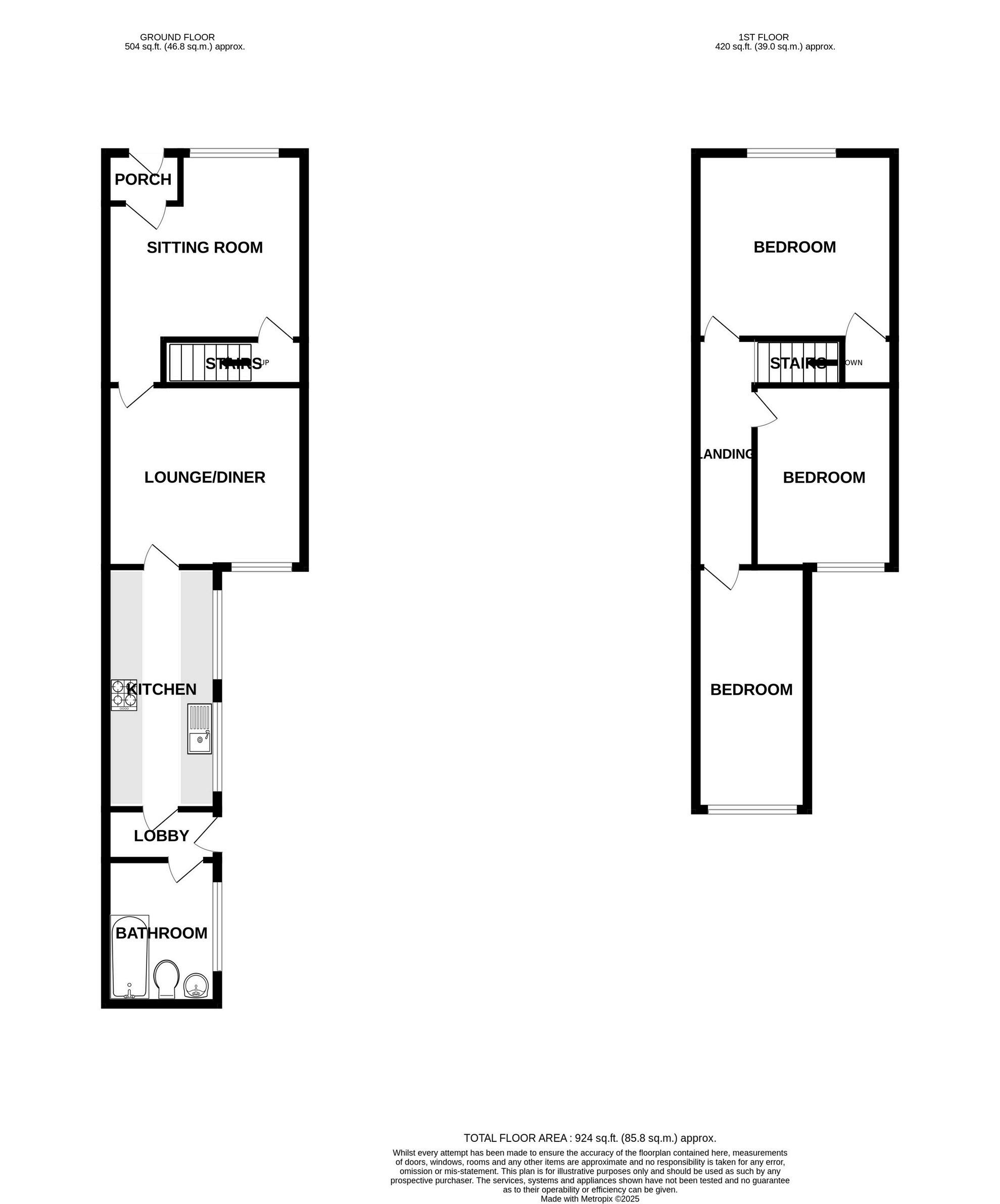
Inside: This two-storey terraced home offers a practical and well-proportioned layout ideal for long-term rental. The ground floor features a welcoming porch leading into a sitting room, followed by a spacious lounge/diner that flows into the kitchen at the rear. A small lobby connects to the downstairs bathroom, tucked away for privacy. Upstairs, the property comprises three generous bedrooms accessed via a central landing, providing comfortable accommodation for individuals, couples, or small families. The layout is straightforward and functional, with clear separation between living and sleeping areas, making it easy to maintain and appealing to tenants seeking simplicity and convenience.
Outside: Externally, the property benefits from both a front and rear yard. The front yard offers a modest buffer from the street, while the rear yard provides a private outdoor space suitable for storage, drying laundry, or light gardening. These low-maintenance outdoor areas are typical of the local housing stock and contribute to the property's appeal for tenants who value practicality over extensive upkeep.
Location: Situated on Stanley Street in Grimsby, the property enjoys a central location within easy reach of local amenities, schools, and transport links. Grimsby continues to attract rental demand due to its affordability, strong community ties, and proximity to employment hubs including the port and industrial estates. For landlords, this area offers reliable rental yields and a steady tenant base. With a tenant already in situ generating an annual income of £7,200, this property presents a ready-made investment opportunity with immediate returns and minimal void risk.










This property is for sale by Modern Method of Auction allowing the buyer and seller to complete within a 56 Day Reservation Period. Interested parties’ personal data will be shared with the Auctioneer (iamsold Ltd).
If considering a mortgage, inspect and consider the property carefully with your lender before bidding. A Buyer Information Pack is provided, which you must view before bidding. The buyer is responsible for the Pack fee. For the most recent information on the Buyer Information Pack fee, please contact the iamsold team.
The buyer signs a Reservation Agreement and makes payment of a Non-Refundable Reservation Fee of 4.5% of the purchase price inc VAT, subject to a minimum of £6,600 inc. VAT. This Fee is paid to reserve the property to the buyer during the Reservation Period and is paid in addition to the purchase price. The Fee is considered within calculations for stamp duty.
Services may be recommended by the Agent/Auctioneer in which they will receive payment from the service provider if the service is taken. Payment varies but will be no more than £960 inc. VAT. These services are optional.
