

![]()


Sandsfield Lane, Gainsborough
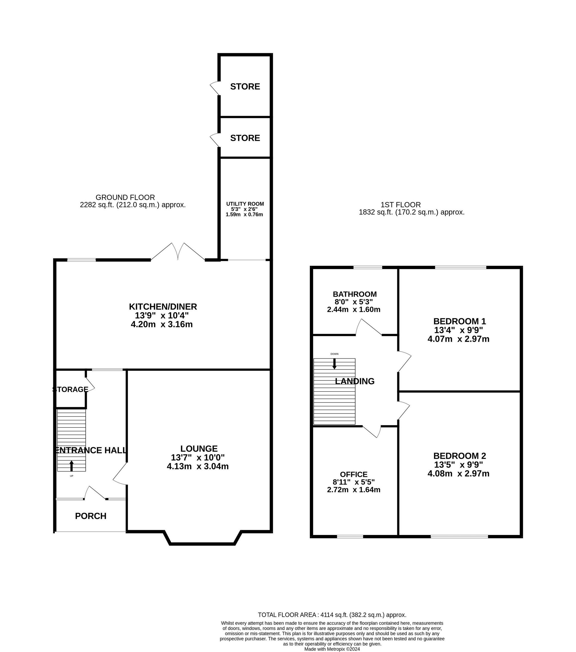
This charming 2 bedroom mid-terraced property is nestled in a wellestablished and popular residential area of Gainsborough. The home greets you with a buffer garden at the front, leading to a welcoming entrance hallway. Inside, the lounge boasts a bay window and a beautiful original fireplace, adding character and warmth to the space.
The modern kitchen diner, complete with an island, offers ample room for cooking and entertaining, with patio doors that open onto a fully enclosed rear garden. Off the kitchen, there is a convenient utility room, adding to the home's practicality.
Upstairs, the first floor features two generously sized bedrooms, an office space ideal for working from home, and a spacious, modern bathroom equipped with an overhead shower. At the rear of the property, you'll find two outbuildings perfect for storage and a laid patio area, providing an excellent spot for outdoor relaxation.
Situated close to the many local amenities of Gainsborough, including the popular Marshalls Yard shopping complex, John Coupland Hospital, Queen Elizabeth High School, Morton Primary School and Gainsborough Lea Road Train Station, which provides direct access to Leeds, Peterborough, Lincoln, and Doncaster, this home is ideally located for convenience and accessibility



















Agents notes: All measurements are approximate and for general guidance only and whilst every attempt has been made to ensure accuracy, they must not be relied on The fixtures, fittings and appliances referred to have not been tested and therefore no guarantee can be given that they are in working order. Internal photographs are reproduced for general information and it must not be inferred that any item shown is included with the property. For a free valuation, contact the numbers listed on the brochure.

