Peterson Drive

Page 1

ASKING PRICE £126,000
Drive NEW WALTHAM | NORTH EAST LINCOLNSHIRE | DN36 4LF
Peterson

Step Inside

PETERSON DRIVE

* NO CHAIN *

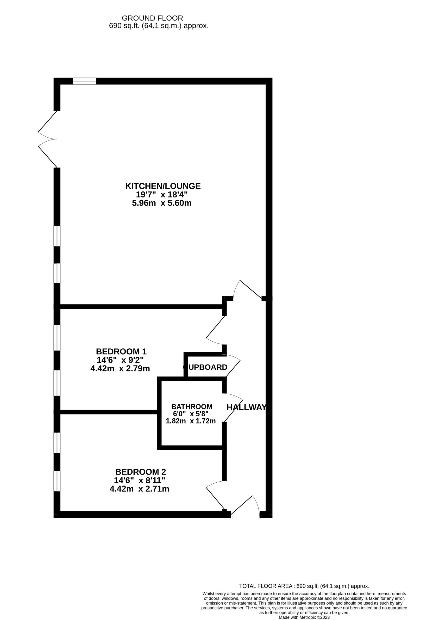
DDM Residential are delighted to offer to the open market a two bedroom purpose built ground floor apartment situated in a highly regarded location off Humberston Avenue in New Waltham.

The property briefly comprises of entrance onto hallway with access to the open plan lounge kitchen area with breakfast bar and a well appointed range of wall and base units, two double bedrooms and bathroom with three piece suite in white. Access to the property is via a secure intercom and security door system which opens into a communal hall.

The property benefits from UPVC double glazing, gas fired central heating, allocated parking space and no upward chain for ease of purchase.

The location of this property in New Waltham is close to shops, schools a supermarket and local bus routes.

EPC Rating: C | Tenure: Leasehold | Council Tax: B 2 1 1 https://bit.ly/PetersonDrive

Agents notes: All measurements are approximate and for general guidance only and whilst every attempt has been made to ensure accuracy, they must not be relied on. The fixtures, fittings and appliances referred to have not been tested and therefore no guarantee can be given that they are in working order. Internal photographs are reproduced for general information and it must not be inferred that any item shown is included with the property. For a free valuation, contact the numbers listed on the brochure

DDM Residential 25 Osborne Street, Grimsby, DN31 1EY 01472 358671 | grimsby@ddmresidential.co.uk followDDMResidentialon DOUG WEBSTER 01472 358671

Turn static files into dynamic content formats.

Create a flipbook
Issuu converts static files into: digital portfolios, online yearbooks, online catalogs, digital photo albums and more. Sign up and create your flipbook.