Palmer Lane

Page 1

Palmer Lane

BARROW-UPON-HUMBER | NORTH LINCOLNSHIRE | DN19 7BS

OFFERS IN EXCESS OF £225,000

Step Inside

PALMER LANE 3 2 1

Welcome to Palmer Lane.

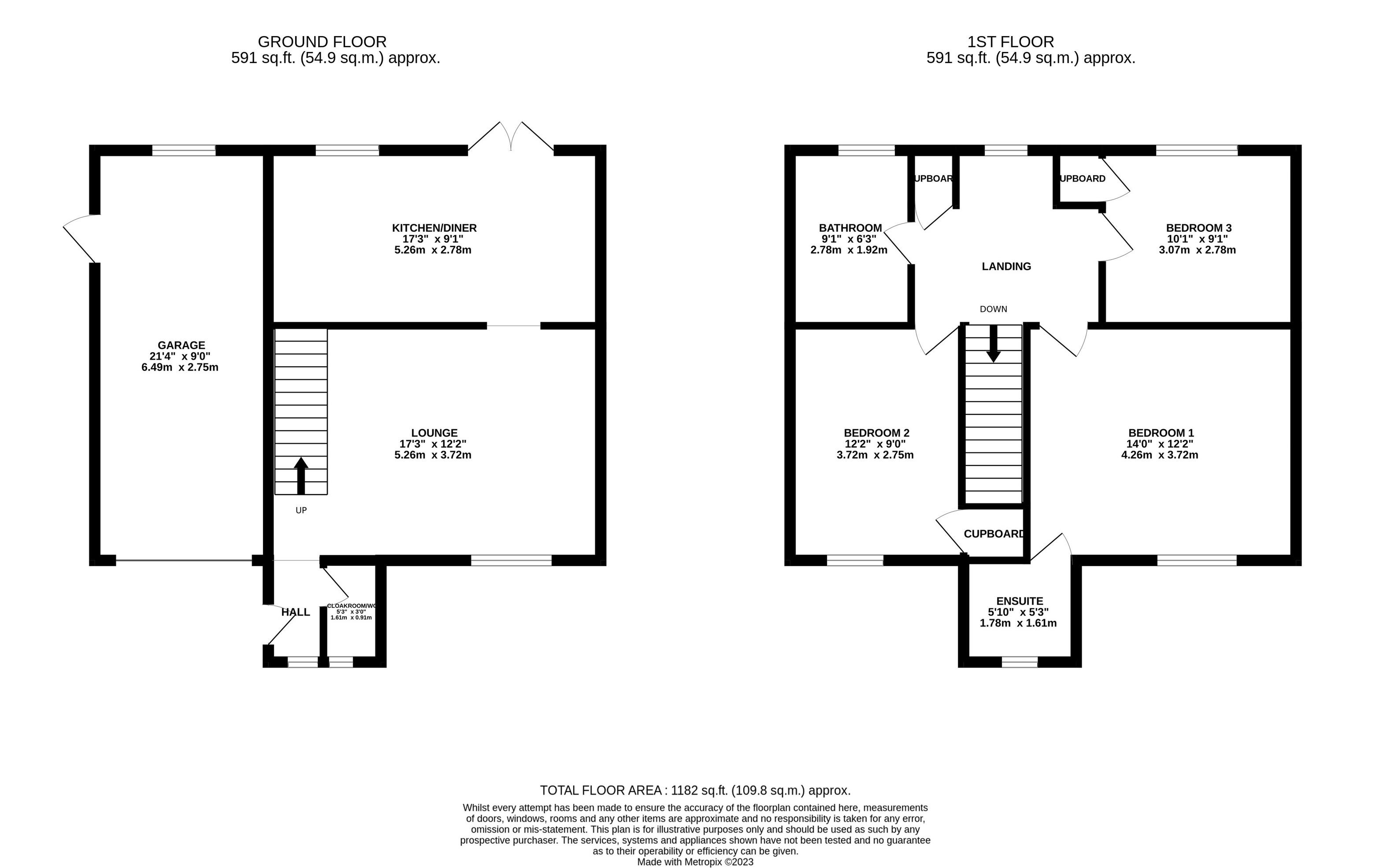
The part glazed entrance door leads into the bright hallway, which gives access to the cloakroom and the living room. The cloakroom is fitted with a two-piece coloured suite and has a window to the front aspect. The hallway leads into the living room which spans the full width of the property, has the stairs, rising to the first floor and window to the front aspect. The living room is open Plan to the kitchen diner, which again stretches a full width of the property, and has been recently refitted with a range of base and wall units, has space for a fridge freezer and there are double doors out to the garden.

The first floor has a good size landing which gives access to all adjoining rooms. The master bedroom is to the front of the property and has a door through to the ensuite shower room which comprises corner shower unit, wash hand basin and WC. Bedroom two is also to the front of the property and has a built-in over stairs, storage cupboard. The third bedroom has a rear aspect. The family bathroom is fitted with a three piece coloured suite comprising side panel bath with shower over, wash hand basin and WC low-level flush WC.

To the front of the property is a shared access driveway leading to a good-sized single garage. There is access around the side of the property to the rear garden, which is a low maintenance, private enclosed with new wood panelled fencing to the side. There is a patio area and space for a shed.

EPC Rating: C | Tenure: Freehold | Council Tax: C

Agents notes: All measurements are approximate and for general guidance only and whilst every attempt has been made to ensure accuracy, they must not be relied on. The fixtures, fittings and appliances referred to have not been tested and therefore no guarantee can be given that they are in working order. Internal photographs are reproduced for general information and it must not be inferred that any item shown is included with the property. For a free valuation, contact the numbers listed on the brochure

DDM Residential 12a George Street, Barton Upon Humber, DN18 5ES 01652 661166 | barton@ddmresidential.co.uk followDDMResidentialon KATE JEFFERY 01652 661166

Turn static files into dynamic content formats.

Create a flipbook
Issuu converts static files into: digital portfolios, online yearbooks, online catalogs, digital photo albums and more. Sign up and create your flipbook.