North Warren Road

Page 1

North Warren Road | Gainsborough | Lincolnshire | DN21 2TT |
Asking Price: £80,000

STEP INSIDE

North Warren Road

EPC: E | Tenure: Freehold | Council Tax: A 2 3

Welcome to North Warren Road, where opportunity knocks! This charming three-bedroom semi-detached house, nestled in the heart of Gainsborough's vibrant market town, beckons with its promise of potential and prime location.

Situated within arm's reach of essential amenities, you'll find convenience at every turn. Indulge in retail therapy at the nearby Marshall’s Yard Shopping complex, savor culinary delights at local restaurants, and rest easy knowing that the John Coupland Hospital and esteemed educational institutions like Queensway Elizabeth High School are within easy reach. Plus, with excellent transport and rail links to Scunthorpe, Lincoln, and Retford, commuting is a breeze.

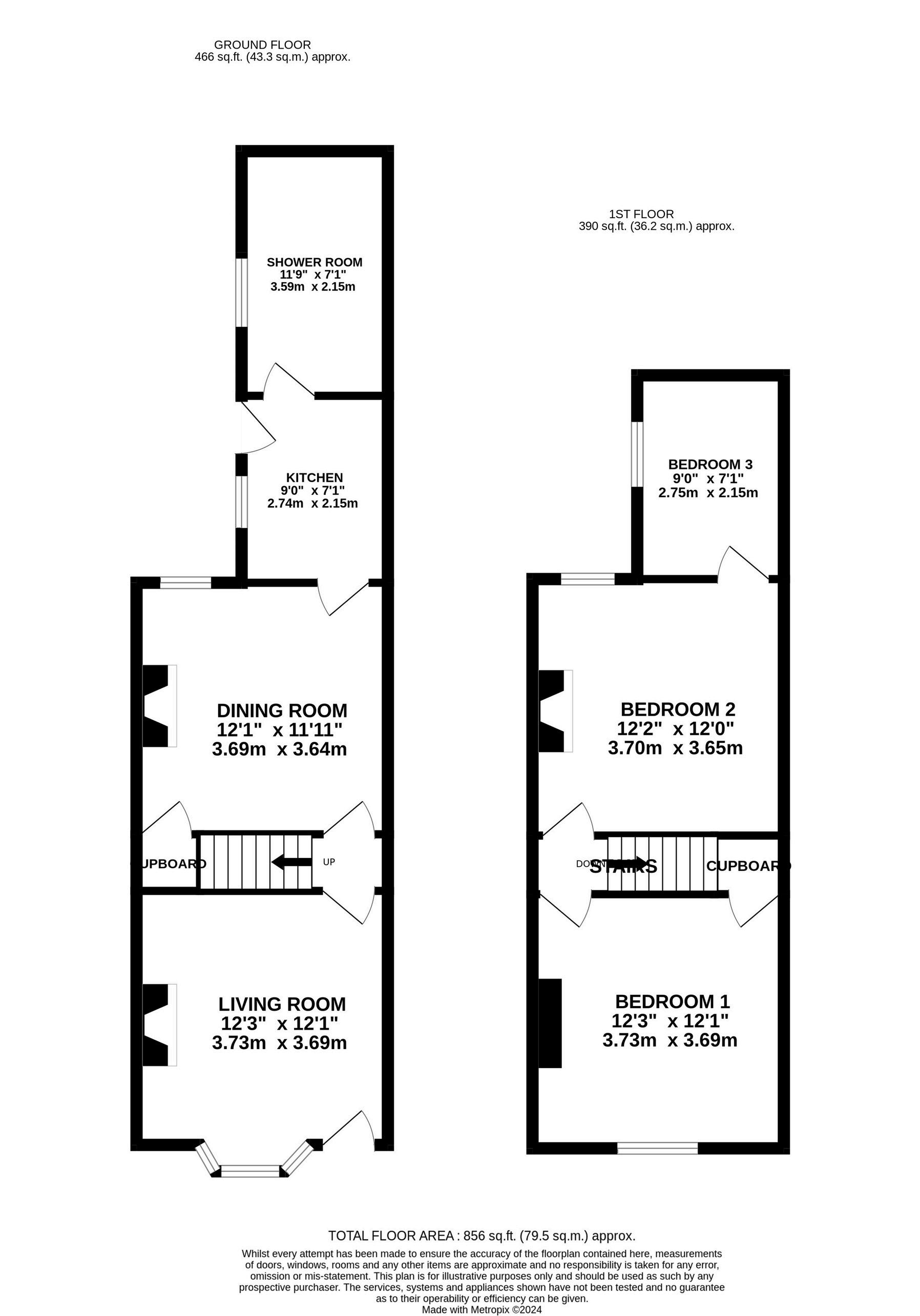
Perfect for both first-time buyers and savvy investors, this property is a canvas awaiting your personal touch. Step through the door to discover a welcoming front lounge boasting a bay window, ideal for basking in natural light. Journey through to the rear sitting/dining room, seamlessly connected to the kitchen—a space primed for culinary adventures. Completing the ground floor is a conveniently located good-sized shower room, adding both practicality and comfort.

Venture upstairs to find two generously proportioned double bedrooms, each adorned with original feature fireplaces that exude character and charm. An additional single bedroom, nestled off the second double bedroom, offers versatility and ample space for various lifestyle needs.

Outside, the property delights with its low-maintenance front garden and the fully enclosed rear garden invites outdoor enjoyment, featuring a lush lawn and a practical timber garden shed for storage needs.

Don't miss your chance to make this house your home. Contact us today to schedule a viewing and embark on your journey toward realizing the full potential of this North Warren Road gem.

1

Key Facts For Buyers

Agents notes: All measurements are approximate and for general guidance only and whilst every attempt has been made to ensure accuracy, they must not be relied on The fixtures, fittings and appliances referred to have not been tested and therefore no guarantee can be given that they are in working order. Internal photographs are reproduced for general information and it must not be inferred that any item shown is included with the property. For a free valuation, contact the numbers listed on the brochure.

FIONA HUSBAND 01427 616161 DDM Residential 9 Church Street, Gainsborough, Lincolnshire, DN21 2JJ 01427 616161 | gainsborough@ddmresidential.co.uk followDDMResidentialon

Turn static files into dynamic content formats.

Create a flipbook
Issuu converts static files into: digital portfolios, online yearbooks, online catalogs, digital photo albums and more. Sign up and create your flipbook.