

![]()


Welcome to this delightful 3-bedroom Detached Family Home , ideally situated in close proximity to Gainsborough town center. The property offers convenient access to various local amenities and is within the catchment area of the esteemed Queen Elizabeth High School.
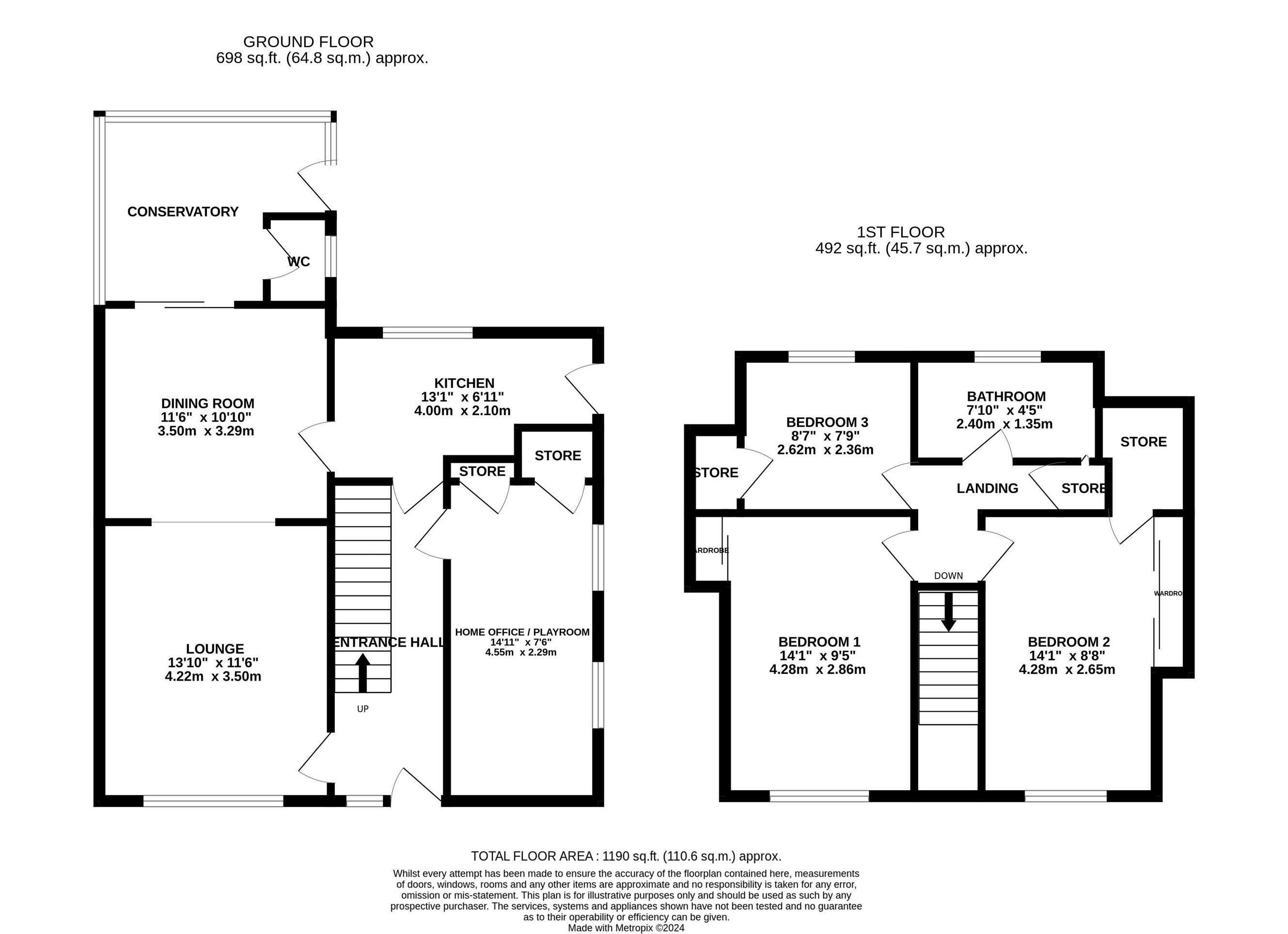
Upon entering the property, you are greeted by a welcoming hallway that sets the tone for the entire home. The hallway seamlessly leads into the spacious lounge area, perfect for relaxation and entertaining guests. Adjacent to the lounge is the dining room, which provides a cosy and intimate setting for family meals and gatherings.
Sliding doors from the dining room open into a charming conservatory, featuring underfloor heating to ensure year-round comfort.
The conservatory also houses a convenient downstairs WC, adding to the functionality of this versatile space. The fitted kitchen is equipped with modern appliances, including an electric oven and gas hob, catering to all your culinary needs. A breakfast bar offers a casual dining option and adds to the kitchen's appeal and convenience.
Ascending to the first floor, you will find three generously sized bedrooms, each offering ample storage with eaves storage solutions. The family bathroom on this level is well-appointed, serving all three bedrooms with ease and style.
Externally, the property boasts an enclosed rear garden, perfect for outdoor activities and relaxation. The front of the property features a gated driveway, Additionally, the integral garage has been thoughtfully converted for multi-functional use, making it an ideal space for a home office, playroom, or additional storage as required.
This charming family home presents a wonderful opportunity to enjoy comfortable and versatile living in a sought-after location.
Offered for sale with no onward chain for ease of purchase making it a perfect opportunity for first time buyers, investors or those looking to create their dream family home.
















Agents notes: All measurements are approximate and for general guidance only and whilst every attempt has been made to ensure accuracy, they must not be relied on. The fixtures, fittings and appliances referred to have not been tested and therefore no guarantee can be given that they are in working order Internal photographs are reproduced for general information and it must not be inferred that any item shown is included with the property For a free valuation, contact the numbers listed on the brochure.

